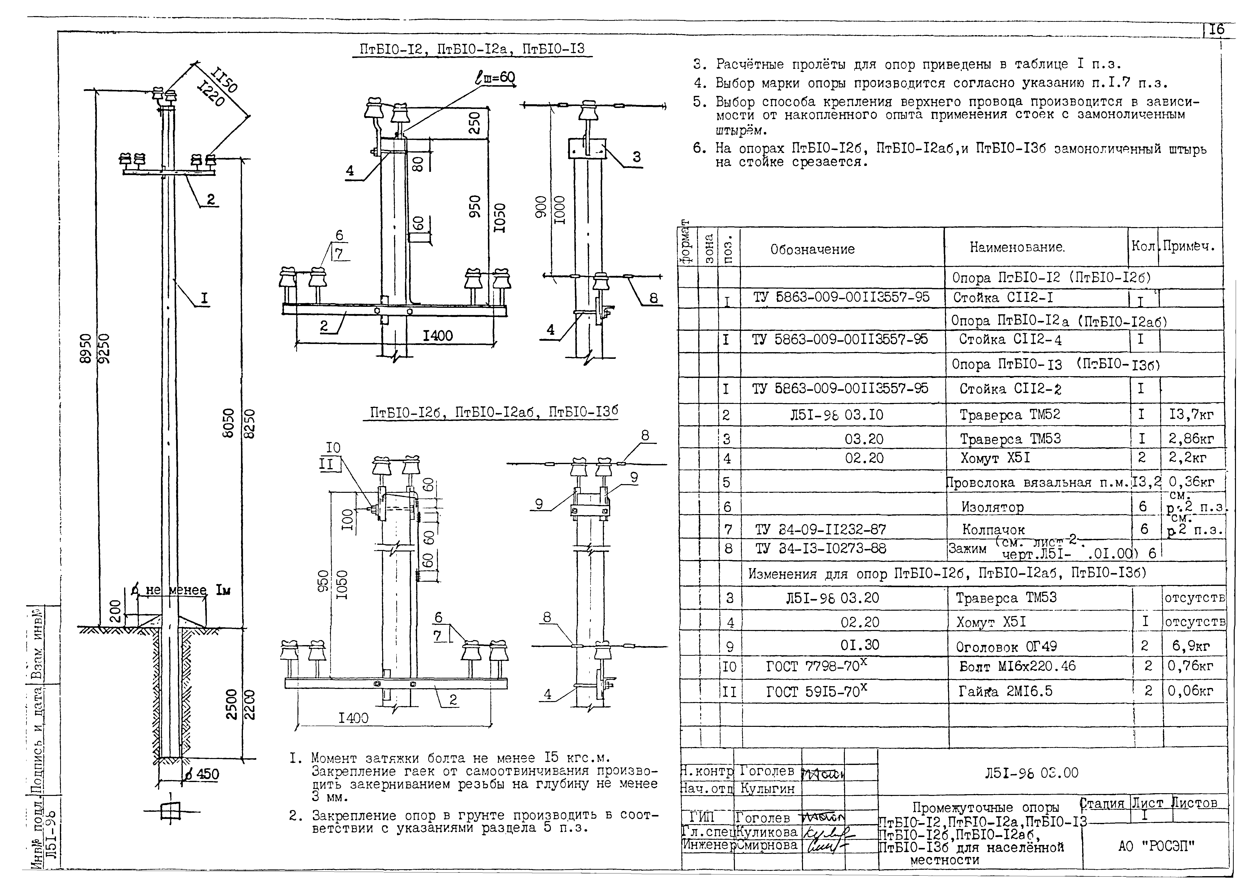
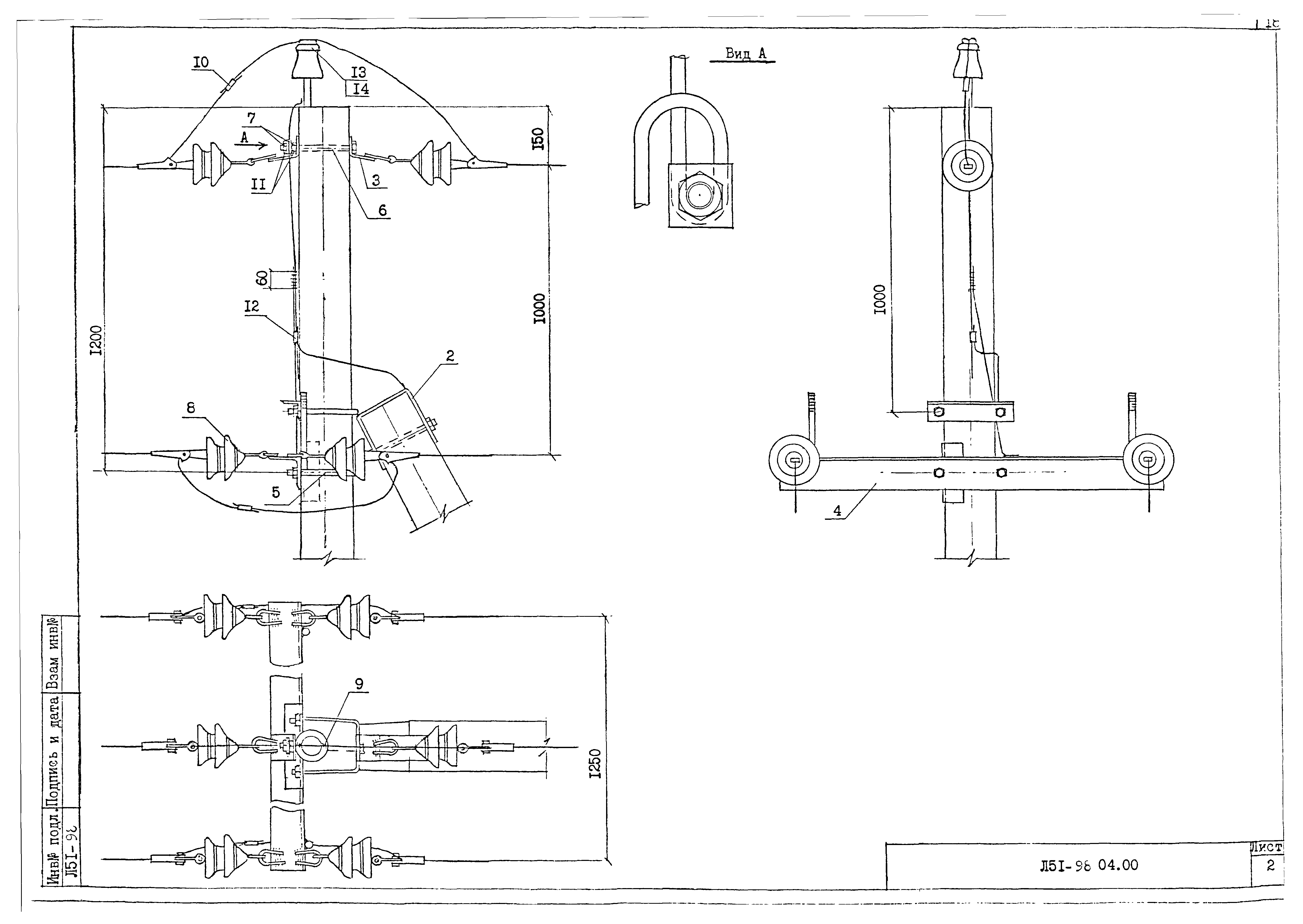
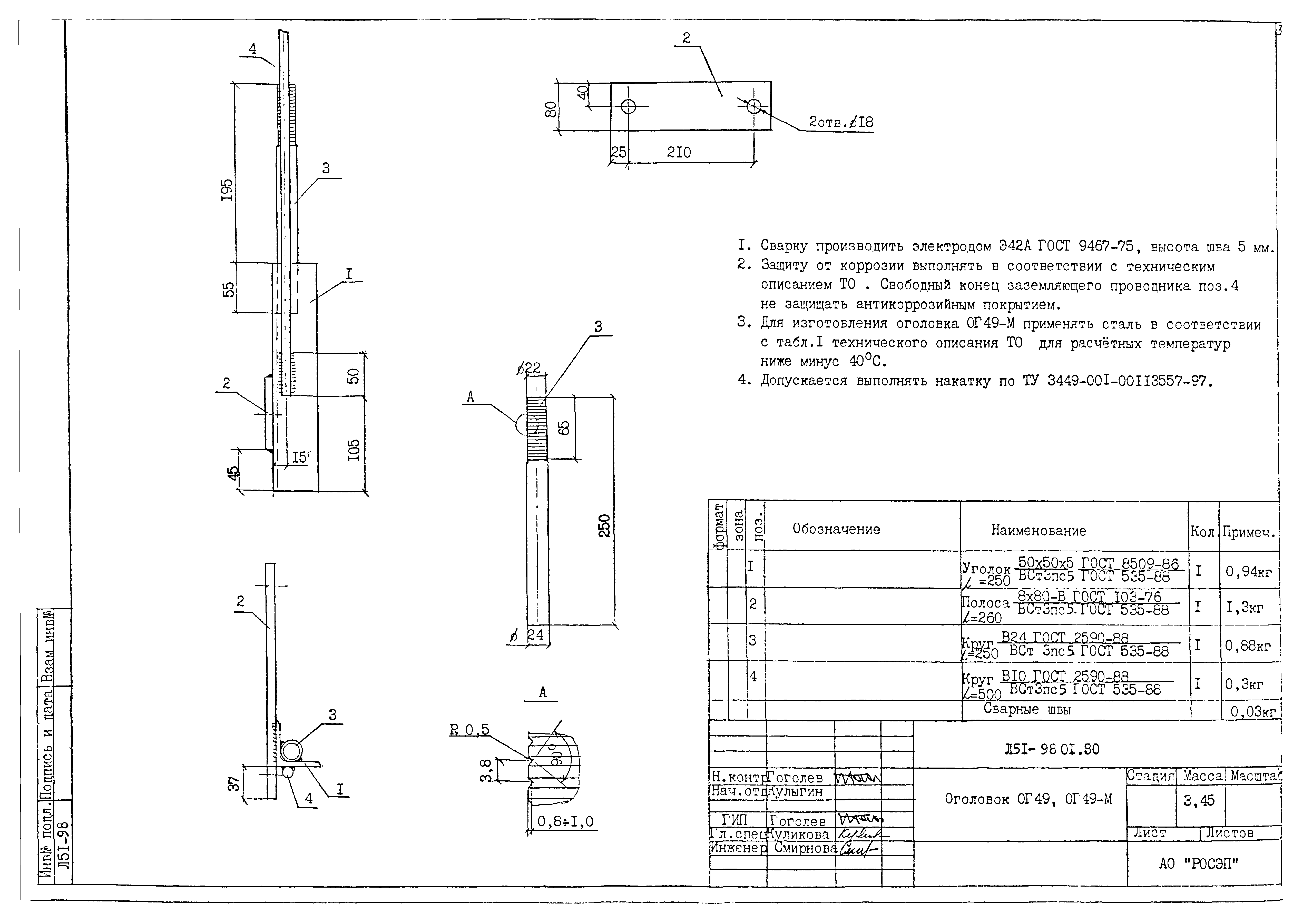
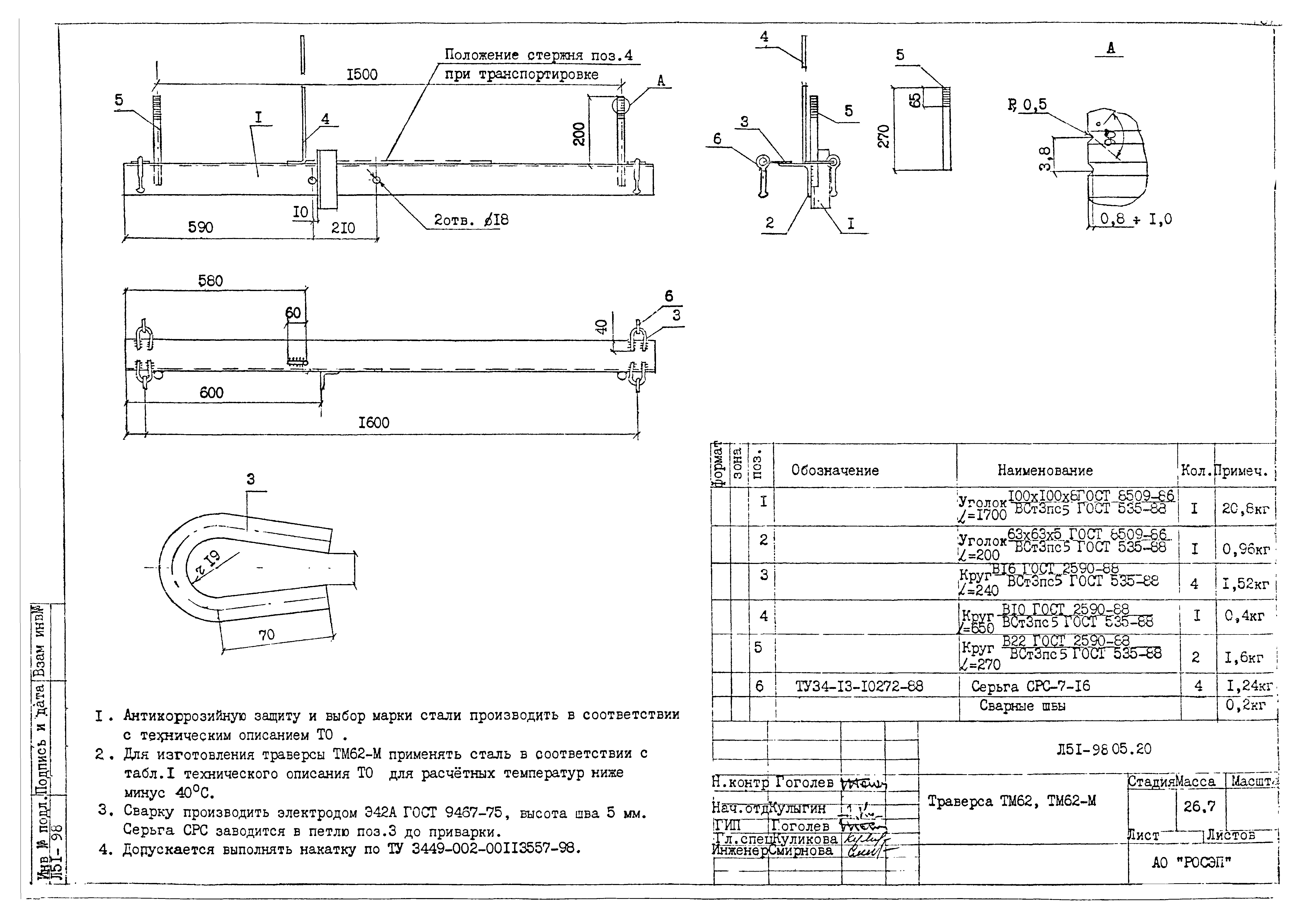
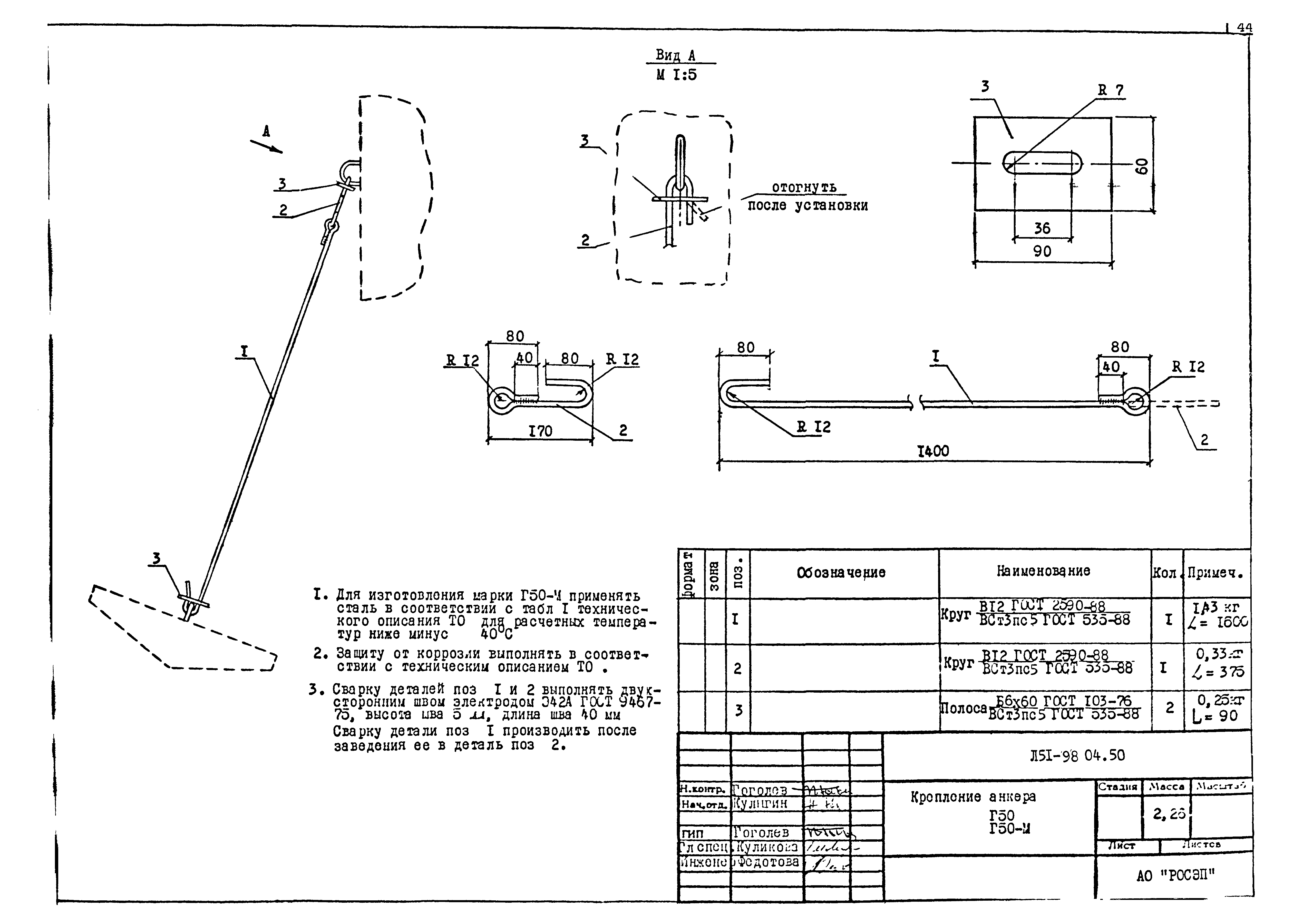
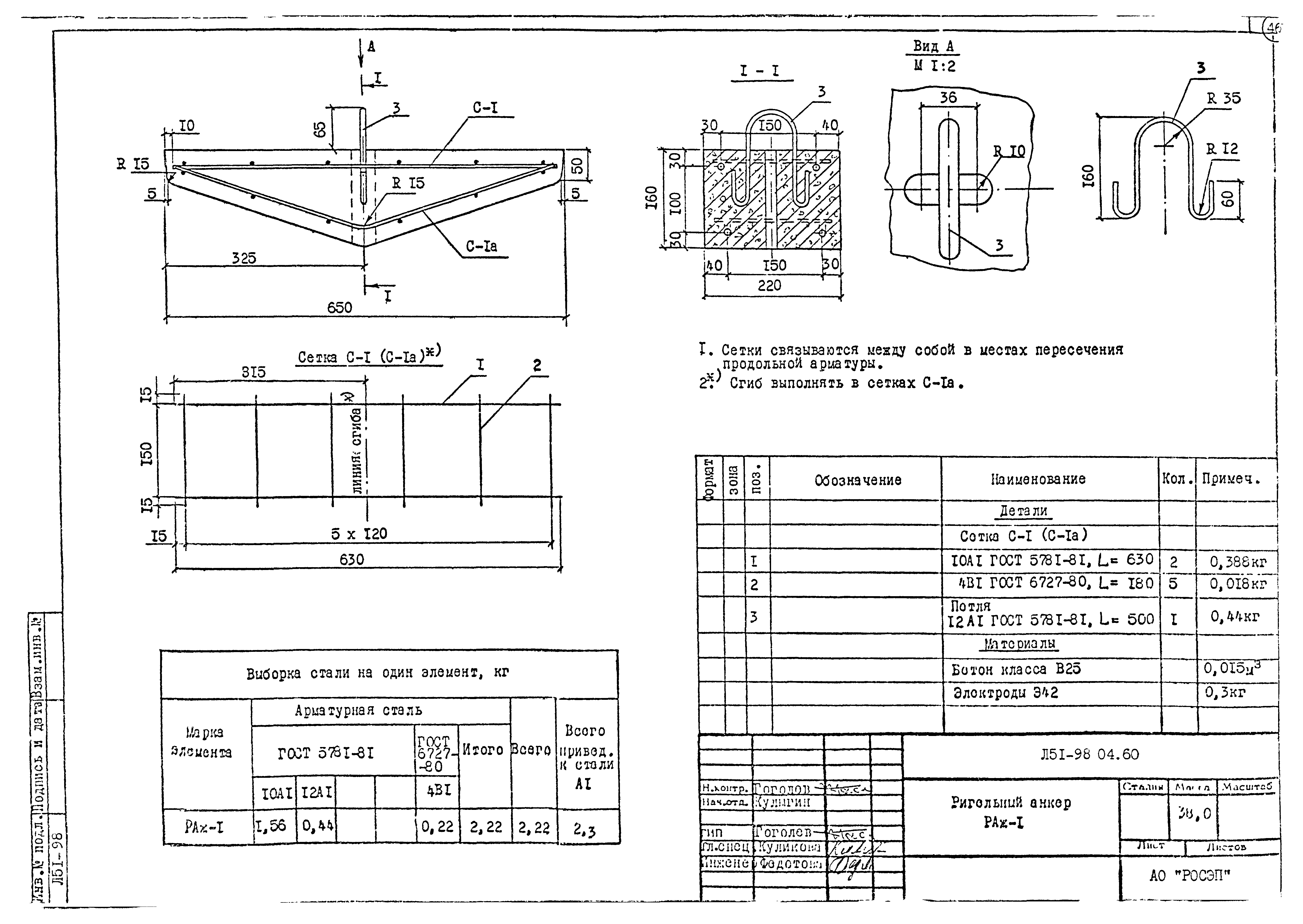
Скачать Нормальные железобетонные опоры ВЛ 10 кВ на базе стоек С112. Рабочие чертежиДата актуализации: 01.01.2021
Нормальные железобетонные опоры ВЛ 10 кВ на базе стоек С112. Рабочие чертежи| Статус: | не определен законодательством | | Название рус.: | Нормальные железобетонные опоры ВЛ 10 кВ на базе стоек С112. Рабочие чертежи | | Дата добавления в базу: | 01.09.2013 | | Дата актуализации: | 01.01.2021 | | Дата введения: | 01.01.1998 | | Дата окончания срока действия: | 30.06.2003 | | Разработан: | АО РОСЭП
| | Утверждён: | 01.01.1998 РАО ЕЭС России (UES of Russia RAO )
|
                                            
|