Скачать СП 35-110-2004 Отделения гериатрического обслуживания населения по месту жительстваДата актуализации: 01.01.2021
|
| Обозначение: | СП 35-110-2004 |
| Обозначение англ: | SP 35-110-2004 |
| Статус: | введен впервые |
| Название рус.: | Отделения гериатрического обслуживания населения по месту жительства |
| Название англ.: | Elements of geriatric service for living environment |
| Дата добавления в базу: | 01.09.2013 |
| Дата актуализации: | 01.01.2021 |
| Область применения: | Свод правил устанавливает основные положения и требования к размещению, участку, функциональной организации и архитектурно-планировочным решениям гериатрических учреждений для пожилых людей. |
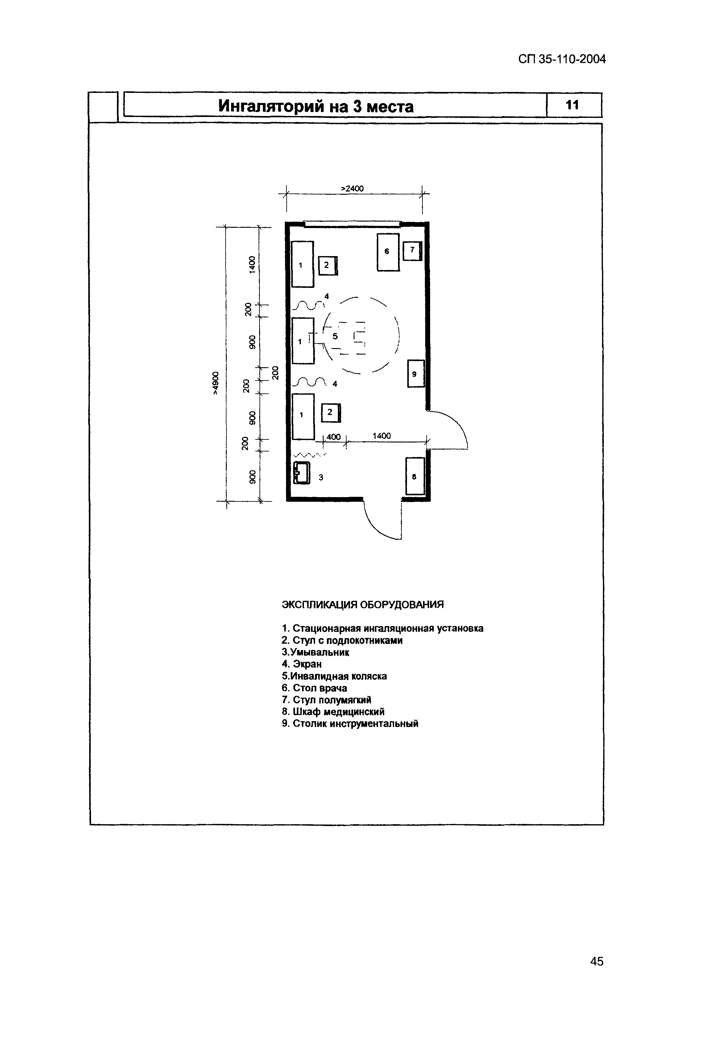
| Оглавление: | Введение 1 Область применения 2 Нормативные ссылки 3 Основные положения 4 Требования к размещению, участку и территории 5 Требования к функционально-планировочным решениям 6 Требования к инженерному оборудованию Приложение А. Рекомендуемые состав и площадь помещений отделений гериатрического центра Приложение Б. Информационные положения о гериатрическом центре, отделении медико-социальной помощи, враче-гериатре Приложение В. Примеры планировочных решений |
| Разработан: | Институт общественных зданий АПИО-Центр |
| Утверждён: | 24.12.2007 Институт общественных зданий (Institute of Public Buildings 22) |
| Издан: | ОАО ЦПП (2008 г. ) |
| Нормативные ссылки: |
|




































































