Скачать Типовой проект 211-1-290с.84 Альбом 2. Отопление и вентиляция. Водопровод и канализация. Электрооборудование. Связь и сигнализацияДата актуализации: 01.01.2021
|
| Обозначение: | Типовой проект 211-1-290с.84 |
| Обозначение англ: | 211-1-290с.84 |
| Статус: | не действует |
| Название рус.: | Альбом 2. Отопление и вентиляция. Водопровод и канализация. Электрооборудование. Связь и сигнализация |
| Дата добавления в базу: | 01.09.2013 |
| Дата актуализации: | 01.01.2021 |
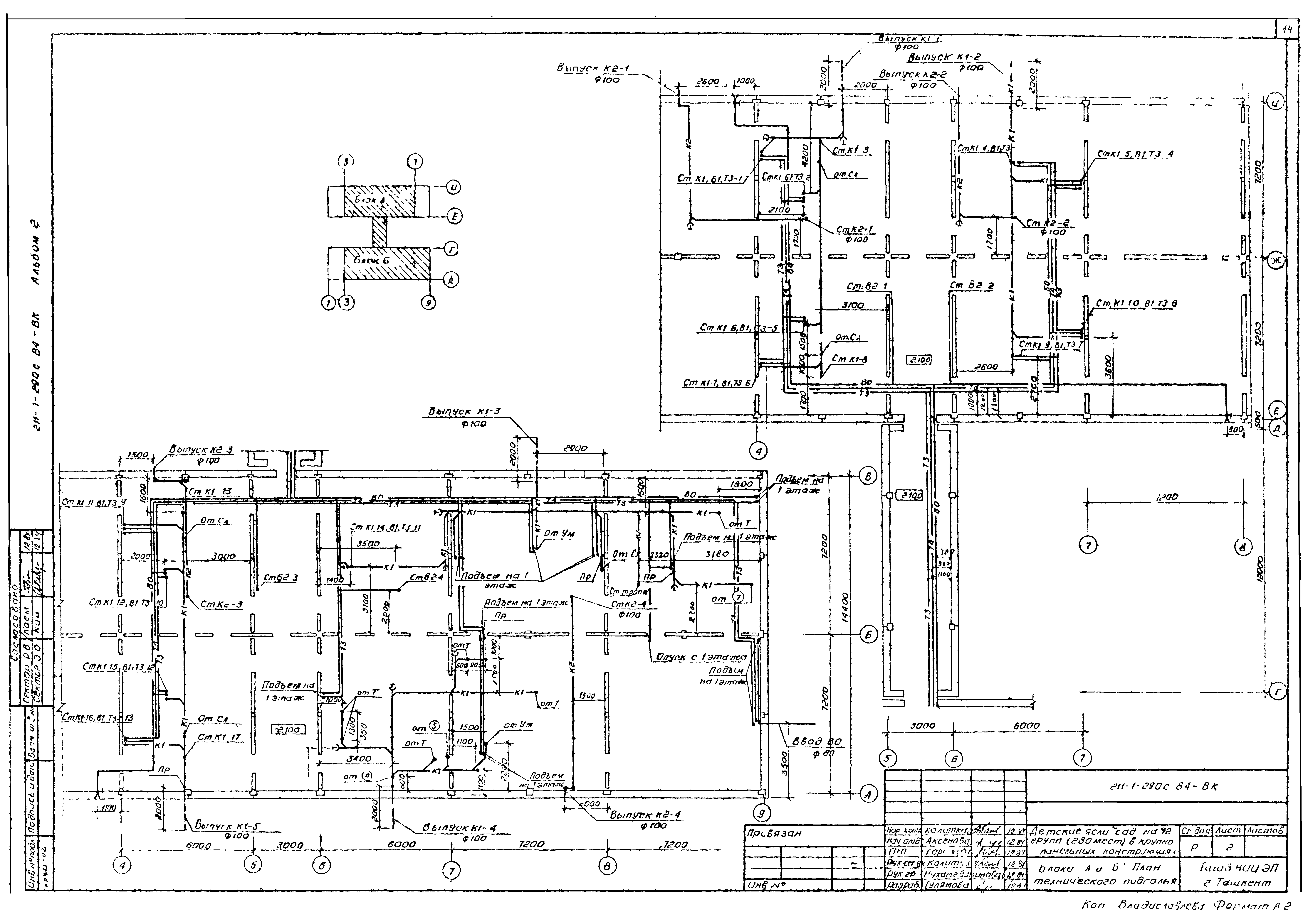
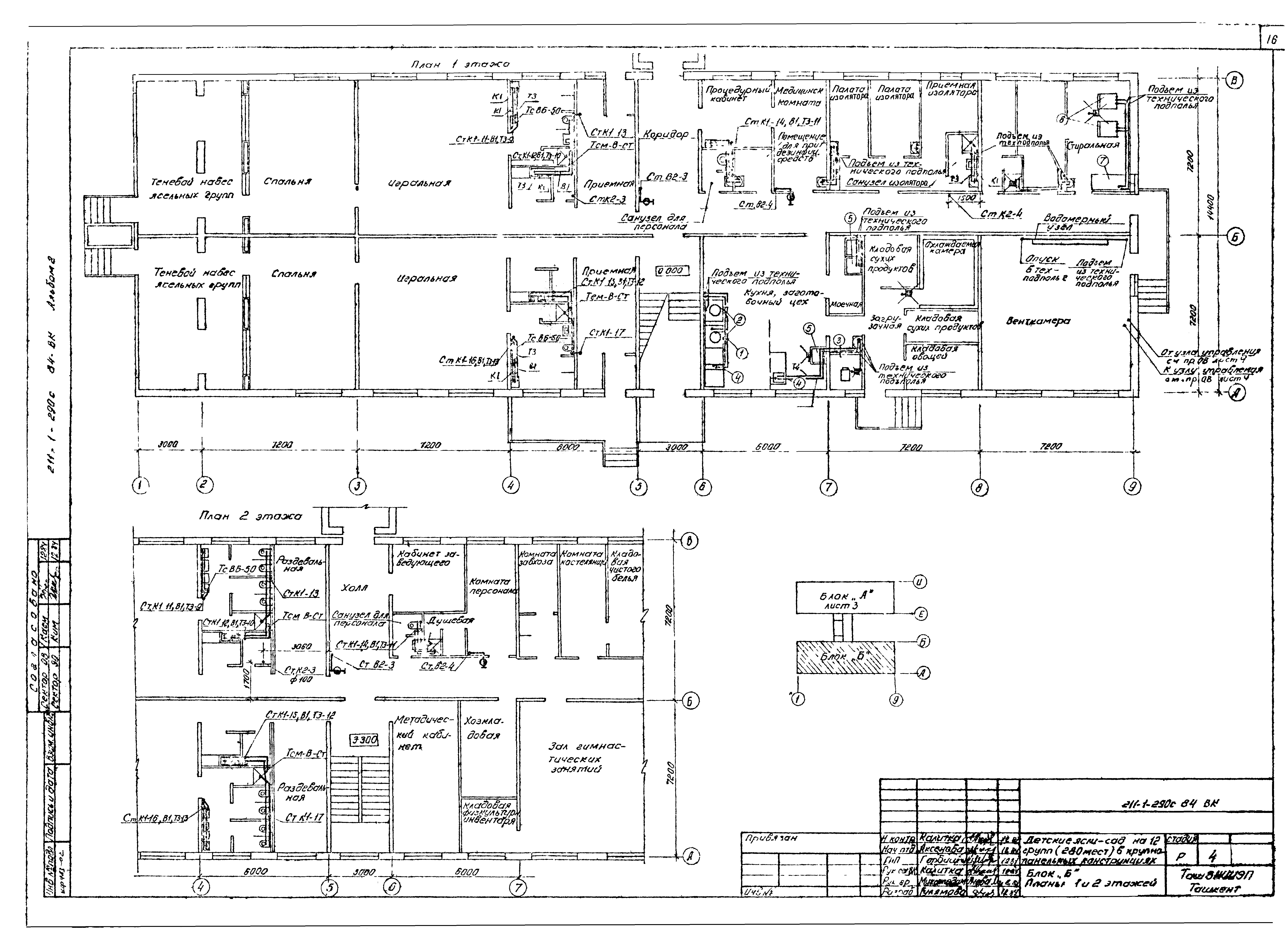
| Оглавление: | ТП 211-1-290с.84 ОВ Общие данные ТП 211-1-290с.84 ОВ Блок "А". План тех.подполья ТП 211-1-290с.84 ОВ Блок "Б". План тех.подполья ТП 211-1-290с.84 ОВ Блок "А". План 1 этажа ТП 211-1-290с.84 ОВ Блок "Б". План 1 этажа ТП 211-1-290с.84 ОВ Блок "А". План 2 этажа ТП 211-1-290с.84 ОВ Блок "Б". План 2 этажа ТП 211-1-290с.84 ОВ Схема системы отопления. Блок "А" ТП 211-1-290с.84 ОВ Схема системы отопления. Блок "Б" ТП 211-1-290с.84 ОВ Схема систем вентиляции. План кровли ТП 211-1-290с.84 ОВ Приточная венткамера ТП 211-1-290с.84 ВК Общие данные ТП 211-1-290с.84 ВК Блок "А" и "Б". План технического подполья ТП 211-1-290с.84 ВК Блок "А". Планы 1 и 2 этажей ТП 211-1-290с.84 ВК Блок "Б". Планы 1 и 2 этажей ТП 211-1-290с.84 ВК Схемы систем ВО;Т3;Т4;К2 ТП 211-1-290с.84 ВК Схема системы К1 ТП 211-1-290с.84 Э Общие данные ТП 211-1-290с.84 Э Схемы электрические расчетные ГРЩ и ЩС2 ТП 211-1-290с.84 Э Блок "А". План осветительных сетей 1 этажа. Расчетная схема ЩО1 ТП 211-1-290с.84 Э Блок "Б". План осветительных сетей 1 этажа. Расчетная схема ЩО3 и АЩ ТП 211-1-290с.84 Э Блоки "А" и "Б". Планы осветительных сетей 2 этажа ТП 211-1-290с.84 Э Блок "А". План осветительных сетей техподполья. Расчетные схемы ЩО2,ЩО4,АУО ТП 211-1-290с.84 Э Блок "Б". План осветительных сетей техподполья. Схема трасс каналов в стеновых панелях и перегородках ТП 211-1-290с.84 Э Блоки "А" и "Б". Планы силовых распределительных и магистральных сетей 1 и 2 этажей кровли ТП 211-1-290с.84 Э Блоки "А" и "Б". Планы магистральных сетей техподполья. Расчетная схема ЩС-1 ТП 211-1-290с.84 Э Схемы подключения шкафов ШУС1,ШУС2 ТП 211-1-290с.84 Э Опросный лист на панель ВРУ (Задание заводу-изготовителю) ТП 211-1-290с.84 ВЧ.А Общие данные ТП 211-1-290с.84 ВЧ.А Приточная система П1. Схемы функциональная и электрическая принципиальная управления ТП 211-1-290с.84 ВЧ.А Приточная система П1. Схема внешних проводок. План расположения ТП 211-1-290с.84 ВЧ.А Задвижка на вводе водопровода. Схемы электрическая принципиальная управления и внешних проводок ТП 211-1-290с.84 СС Общие данные ТП 211-1-290с.84 СС Блок "Б". План сетей 1 этажа ТП 211-1-290с.84 СС Блок "Б". План сетей 2 этажа ТП 211-1-290с.84 СС Блок "А". План сетей 1 этажа ТП 211-1-290с.84 СС Блок "А". План сетей 2 этажа. План сетей технического подполья и кровли |
| Разработан: | ТашЗНИИЭП Госгражданстроя |
| Утверждён: | 21.06.1984 Госгражданстрой (Gosgrazhdanstroy 168) |





































