Скачать Серия 1.464-11/82 Выпуск 6. Стальные конструкции фонарей с применением в покрытии стального профилированного настила высотой 114 мм. Чертежи КМДата актуализации: 01.01.2021
|
| Обозначение: | Серия 1.464-11/82 |
| Обозначение англ: | Series 1.464-11/82 |
| Статус: | заменен |
| Название рус.: | Выпуск 6. Стальные конструкции фонарей с применением в покрытии стального профилированного настила высотой 114 мм. Чертежи КМ |
| Дата добавления в базу: | 01.09.2013 |
| Дата актуализации: | 01.01.2021 |
| Дата введения: | 01.06.1990 |
| Дата окончания срока действия: | 01.12.1993 |
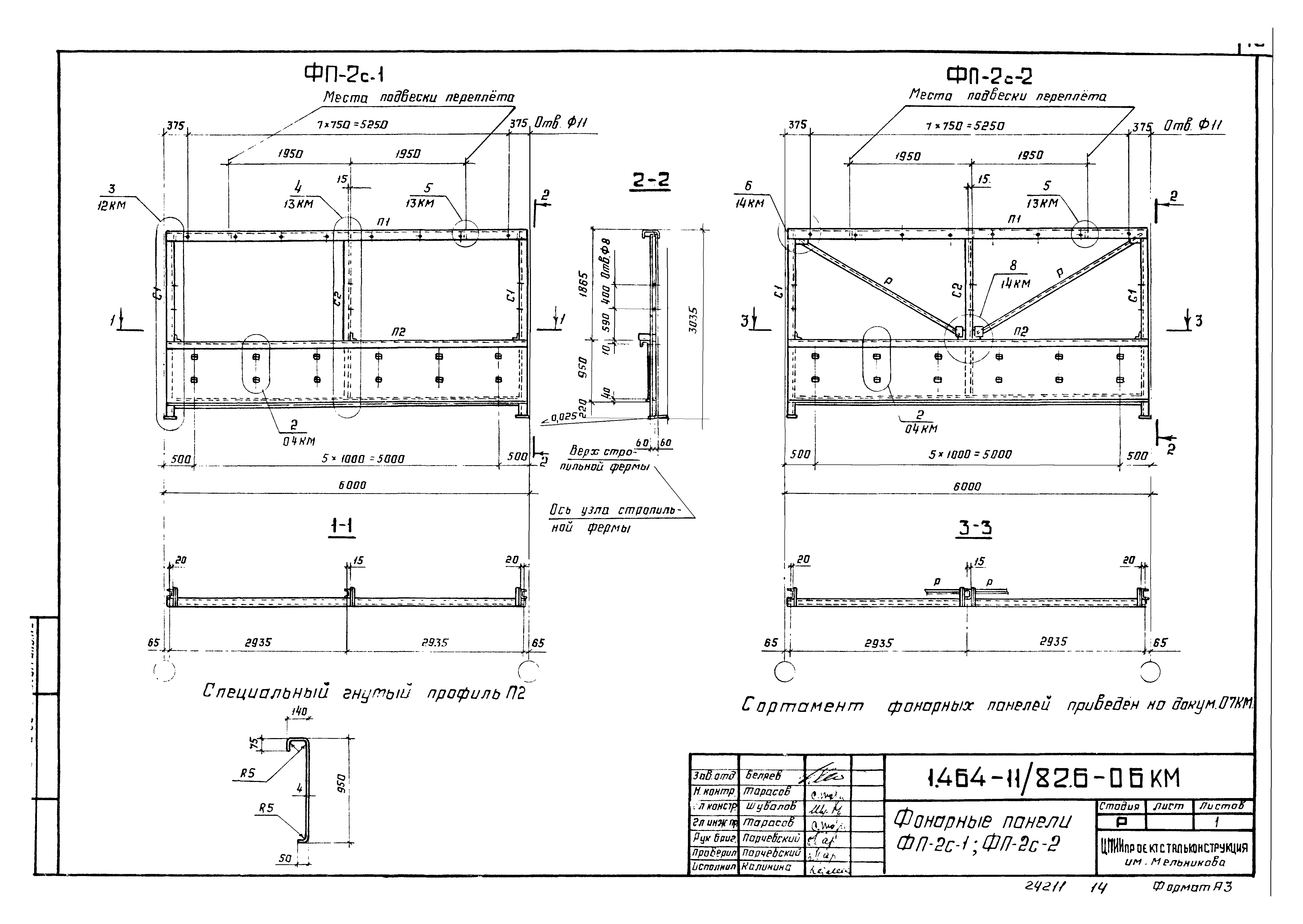
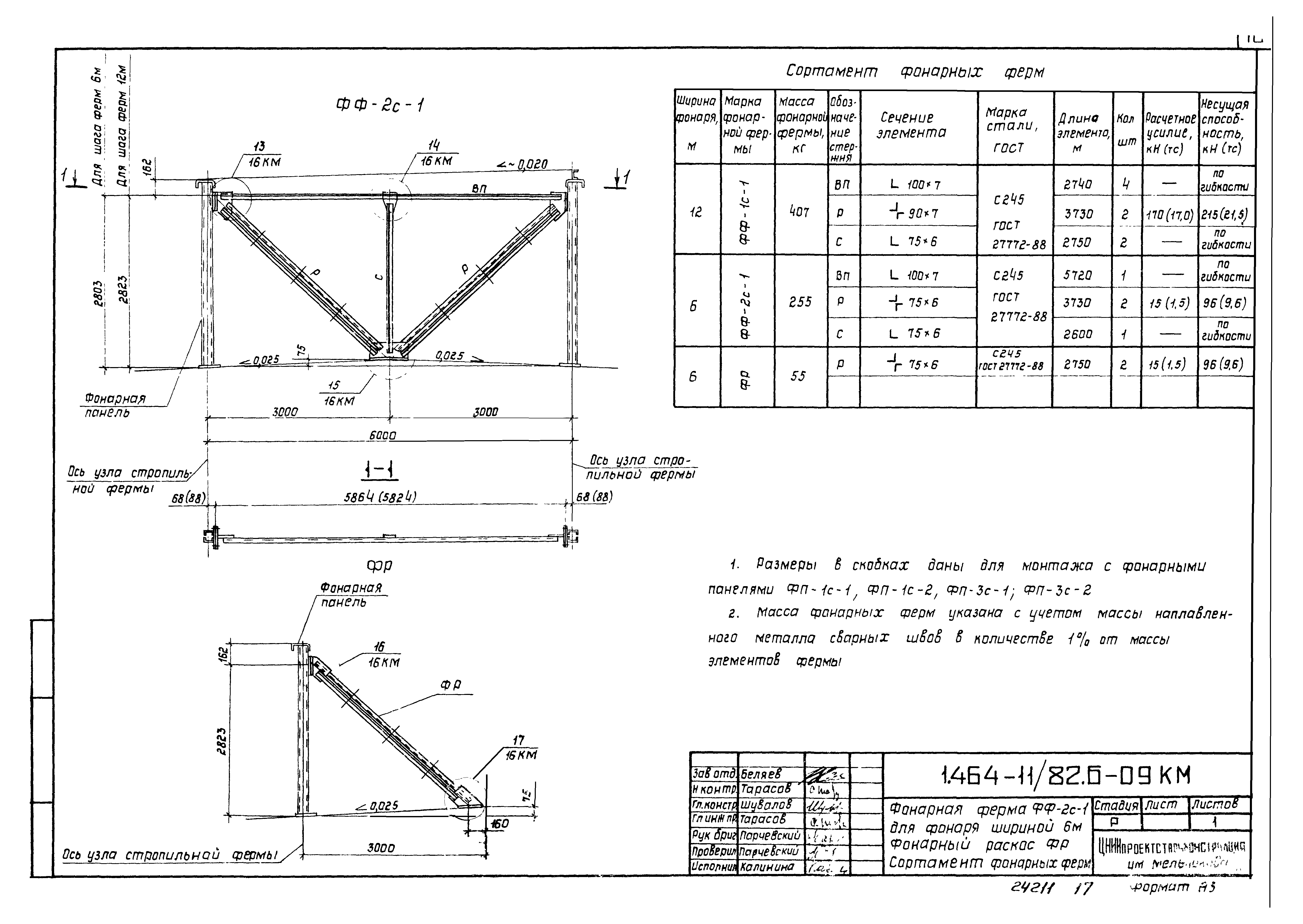
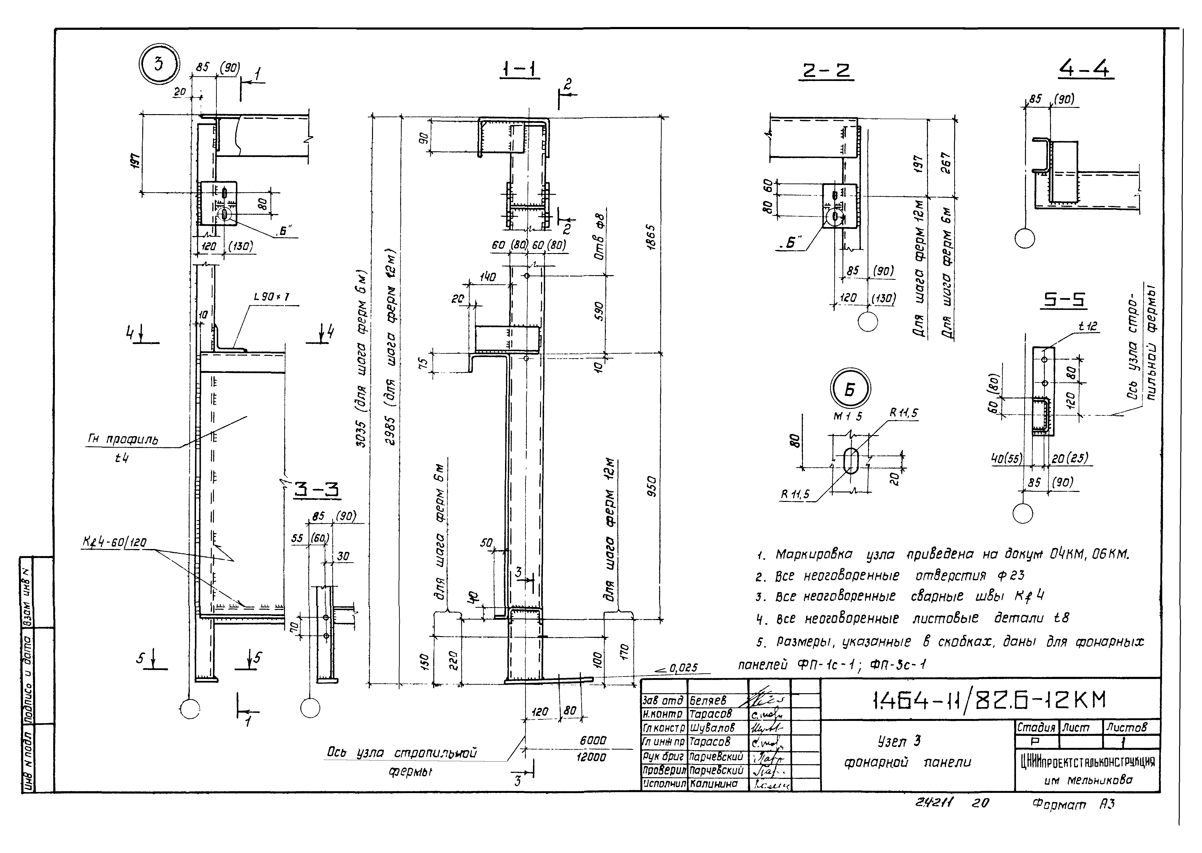
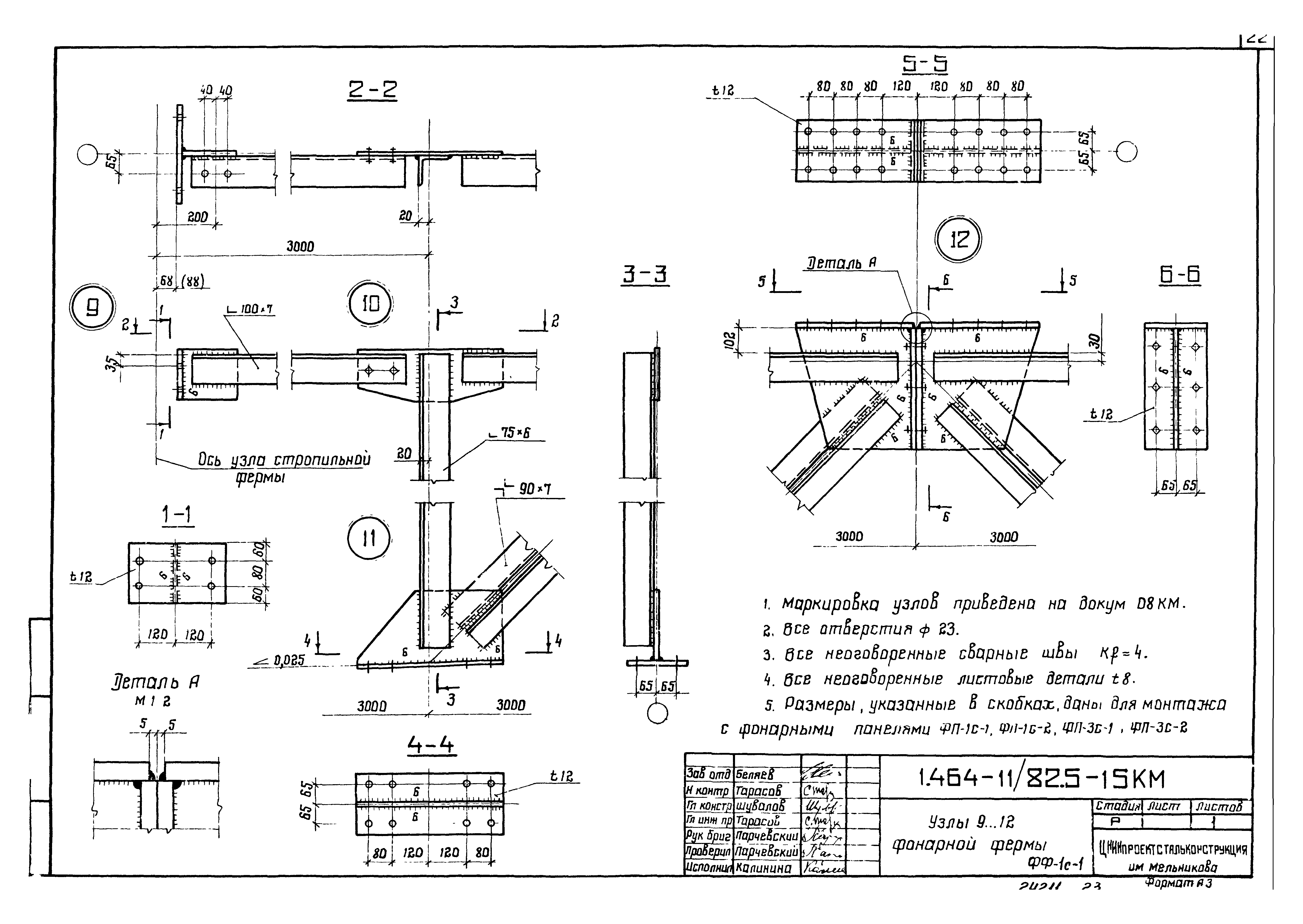
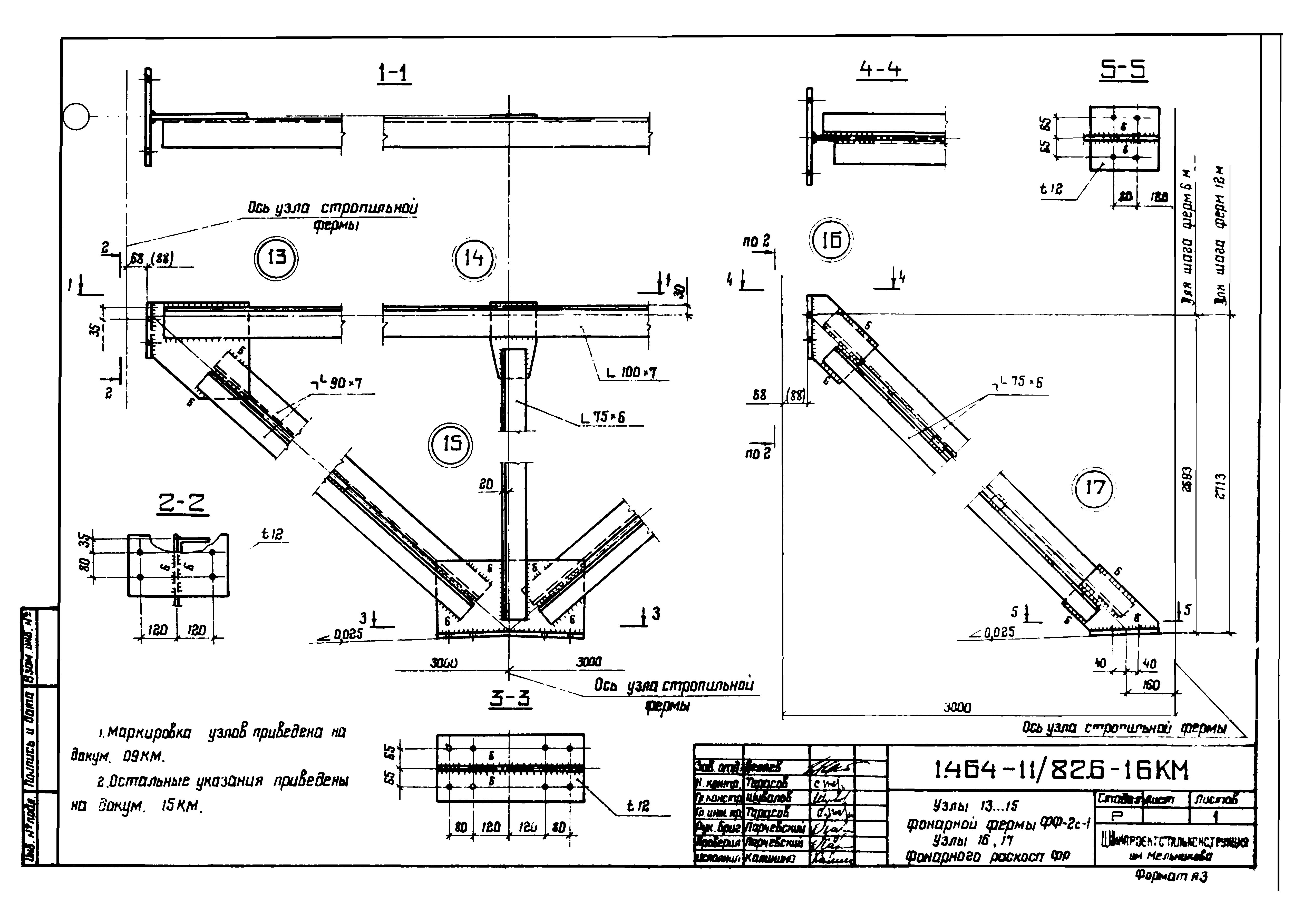
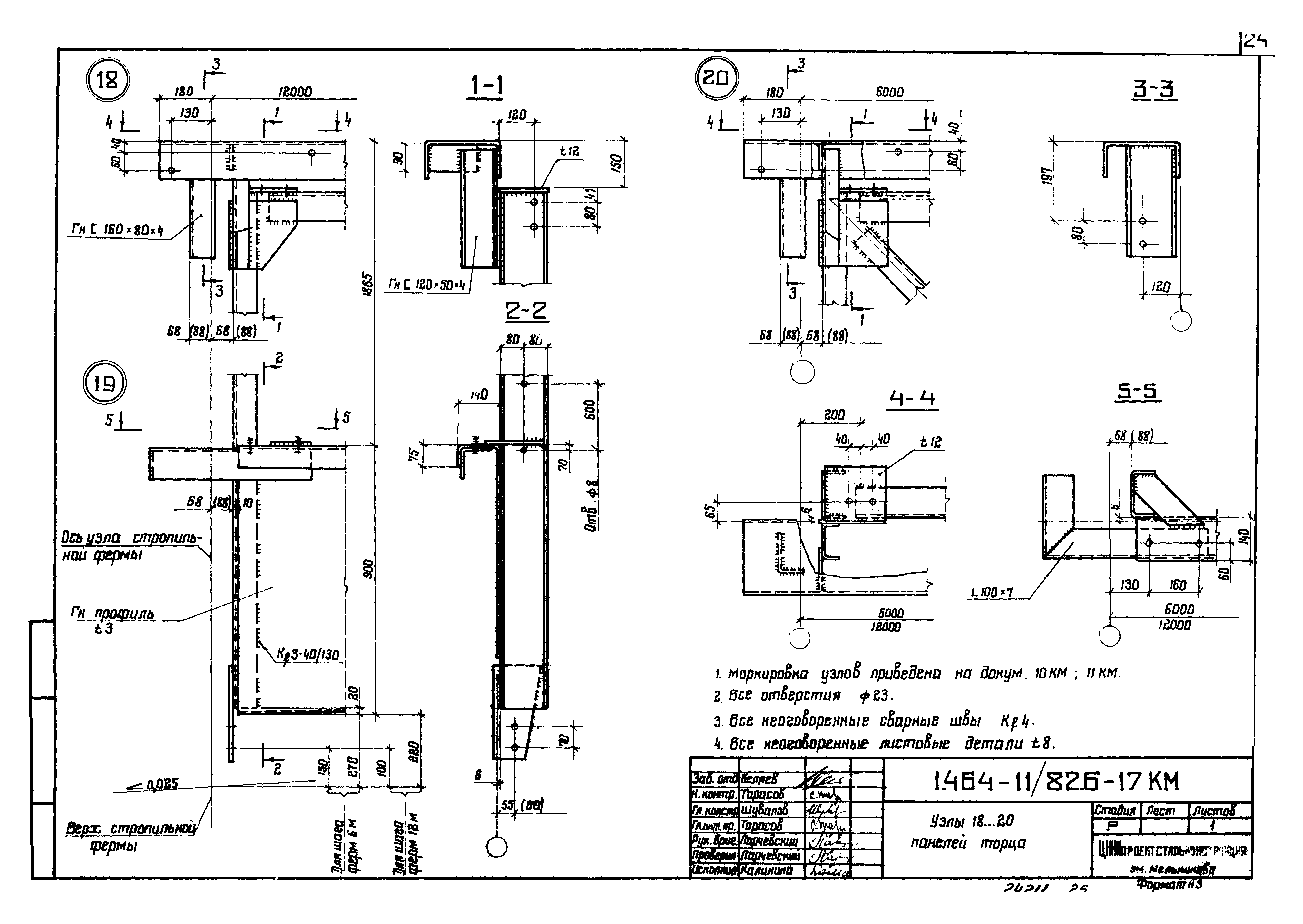
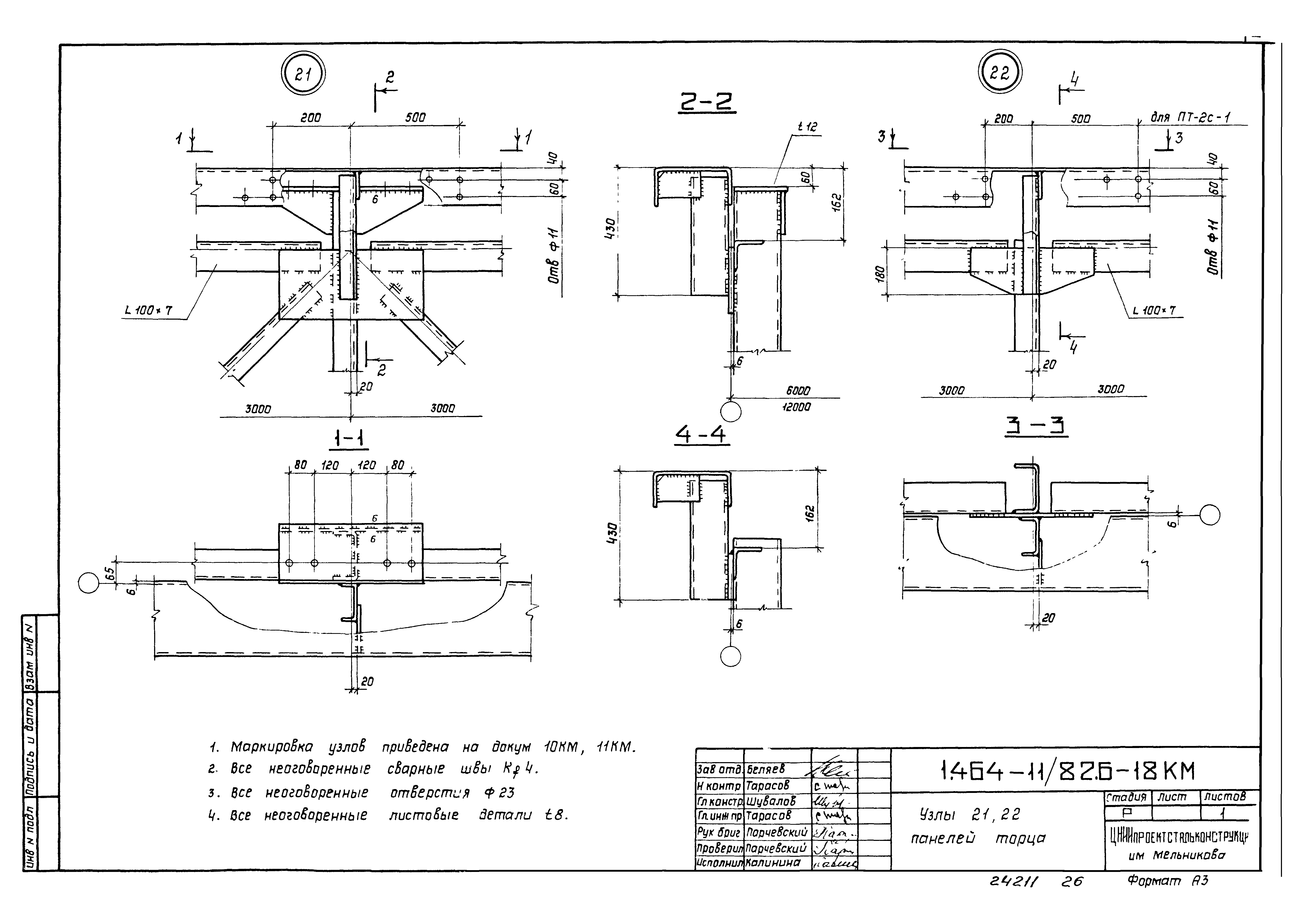
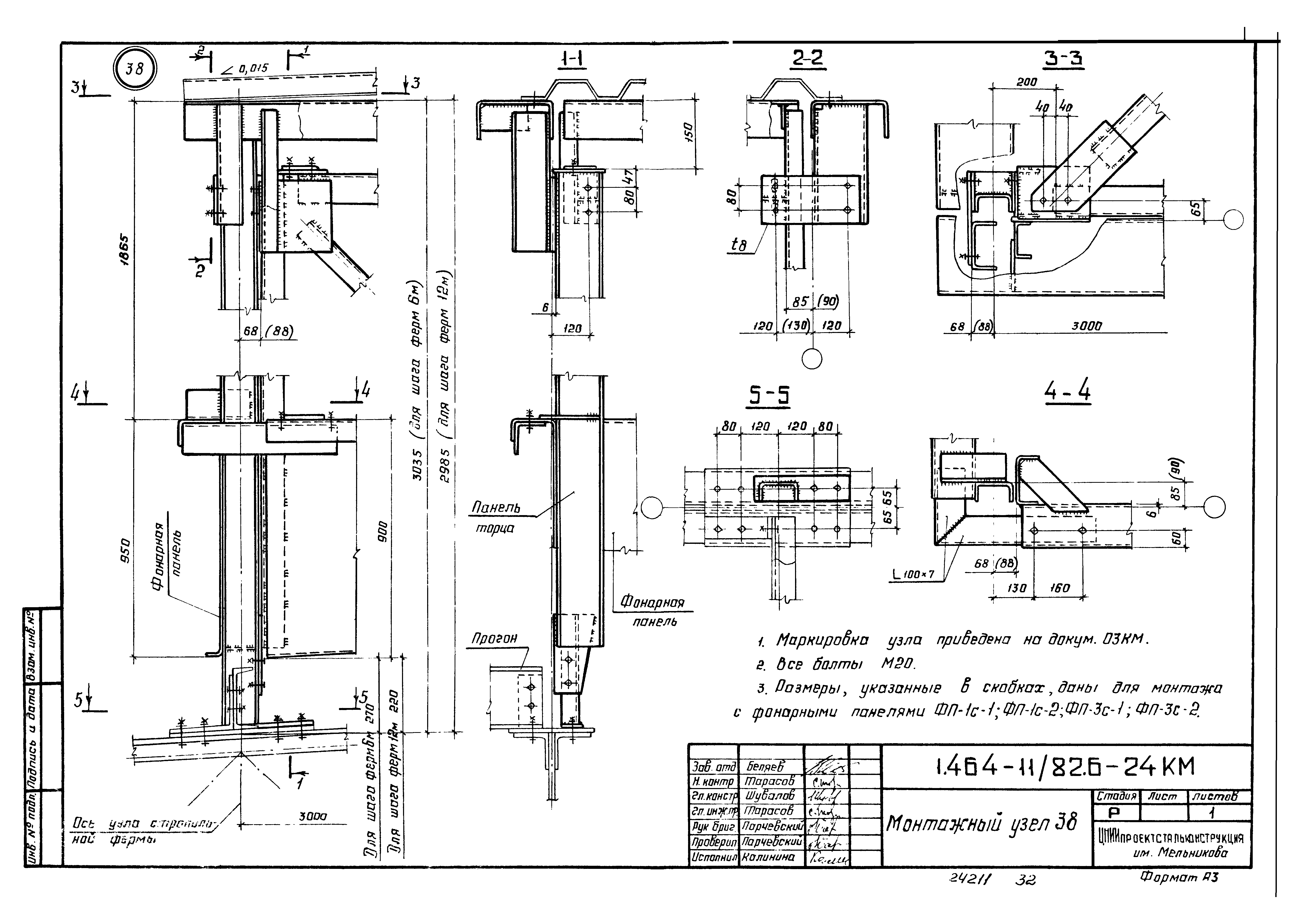
| Оглавление: | 1.464-11/82.6-ПЗ Пояснительная записка 1.464-11/82.6-01КМ Схемы расположения конструкций фонаря шириной 12м. Шаг ферм 12м, 6м 1.464-11/82.6-02КМ Схемы расположения конструкций фонаря шириной 6м. Шаг ферм 12м, 6м. Разрезы 1-1;2-2;3-3;4-4 1.464-11/82.6-03КМ Разрезы 5-5;6-6;8-8;9-9. Виды 7-7;10-10. Узел 1 1.464-11/82.6-04КМ Фонарные панели ФП-1с-1;ФП-3с-1. Узел 2 1.464-11/82.6-05КМ Фонарные панели ФП-1с-2;ФП-3с-2 1.464-11/82.6-06КМ Фонарные панели ФП-2с-1;ФП-2с-2 1.464-11/82.6-07КМ Сортамент фонарных панелей 1.464-11/82.6-08КМ Фонарная ферма ФФ-1с-1 для фонаря шириной 12м 1.464-11/82.6-09КМ Фонарная ферма ФФ-2с-1 для фонаря шириной 6м. Фонарный раскос ФР. Сортамент фонарных ферм 1.464-11/82.6-10КМ Панель торца ПТ-1с-1 для фонаря шириной 12м 1.464-11/82.6-11КМ Панель торца ПТ-2с-1 для фонаря шириной 6м. Сортамент панелей торца 1.464-11/82.6-12КМ Узел 3 фонарной панели 1.464-11/82.6-13КМ Узлы 4 и 5 фонарной панели 1.464-11/82.6-14КМ Узлы 6…8 фонарной панели 1.464-11/82.6-15КМ Узлы 9…12 фонарной фермы ФФ-1с-1 1.464-11/82.6-16КМ Узлы 13…15 фонарной фермы ФФ-2с-1. Узлы 16,17 фонарного раскоса ФР 1.464-11/82.6-17КМ Узлы 18…20 панелей торца 1.464-11/82.6-18КМ Узлы 21,22 панелей торца 1.464-11/82.6-19КМ Узлы 23…25 панелей торца 1.464-11/82.6-20КМ Узлы 26…29 крепления прогонов и горизонтальной связи. Шаг ферм 12м 1.464-11/82.6-21КМ Узлы 30…32 крепления прогонов и горизонтальной связи. Шаг ферм 6м 1.464-11/82.6-22КМ Монтажные узлы 33,34. Прогоны П4,П5 1.464-11/82.6-23КМ Монтажные узлы 35…37 1.464-11/82.6-24КМ Монтажный узел 38 1.464-11/82.6-25КМ Спецификация стали 1.464-11/82.6-26КМ Конструктивные решения ограждающих конструкций фонарей 1.464-11/82.6-27КМ Узлы 39,40. Устройство карниза фонарей 1.464-11/82.6-28КМ Раскладка элементов ограждения карниза фонаря шириной 6м 1.464-11/82.6-29КМ Раскладка элементов ограждения карниза фонаря шириной 12м |
| Разработан: | ЦНИИпромзданий ЦНИИпроектстальконструкция Госстроя |
| Утверждён: | 10.10.1989 Госстрой СССР (Государственный комитет Совета Министров СССР по делам строительства) (USSR Gosstroy 4/5-1314) |
| Издан: | ЦИТП Госстроя СССР (CITP, Gosstroy (USSR) 1990 г. ) |




































