Скачать Типовой проект 407-3-645.94 Альбом 3. Строительные изделияДата актуализации: 01.01.2021
|
| Обозначение: | Типовой проект 407-3-645.94 |
| Обозначение англ: | 407-3-645.94 |
| Статус: | не определен законодательством |
| Название рус.: | Альбом 3. Строительные изделия |
| Дата добавления в базу: | 01.09.2013 |
| Дата актуализации: | 01.01.2021 |
| Дата введения: | 05.07.1994 |
| Дата окончания срока действия: | 30.06.2003 |
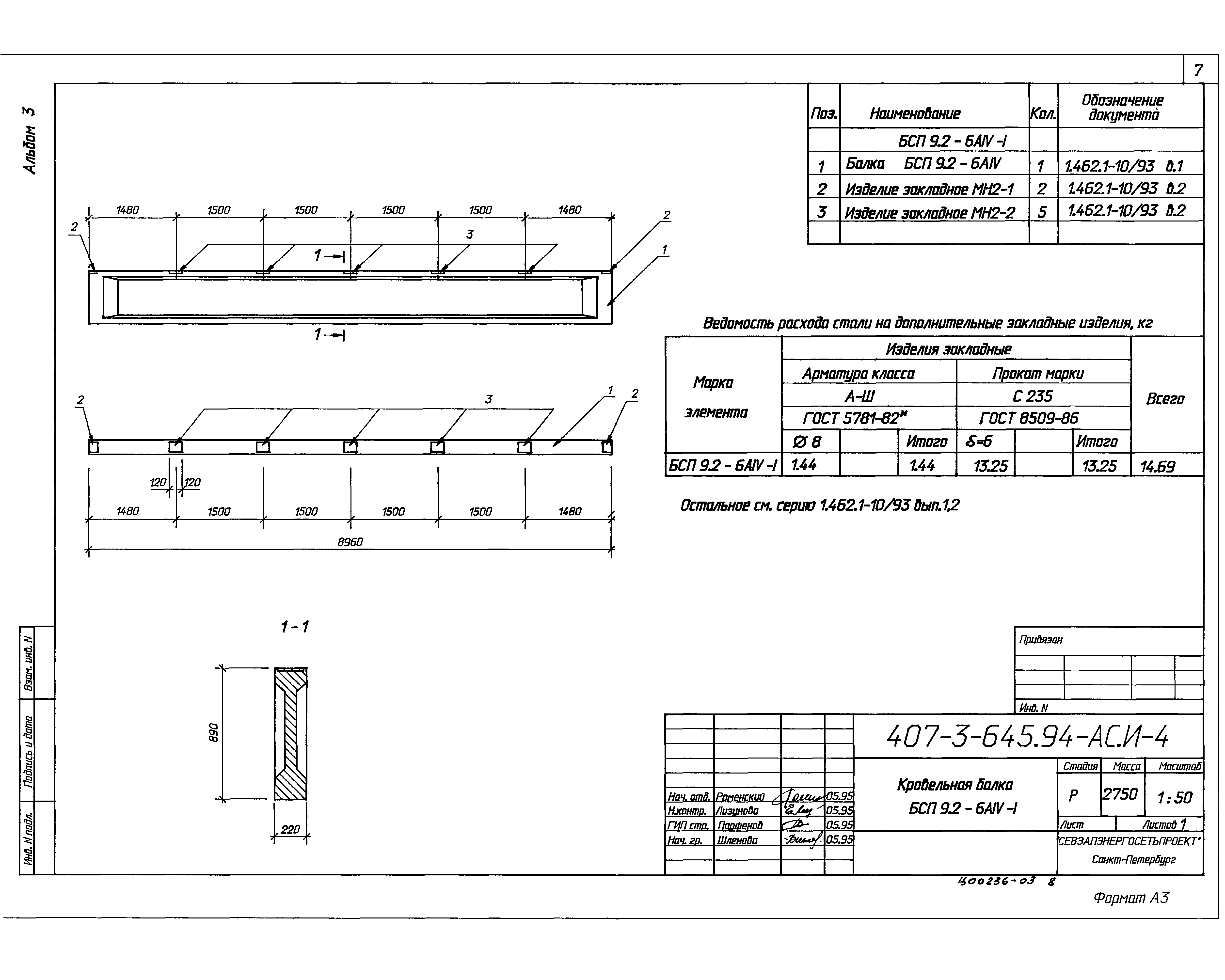
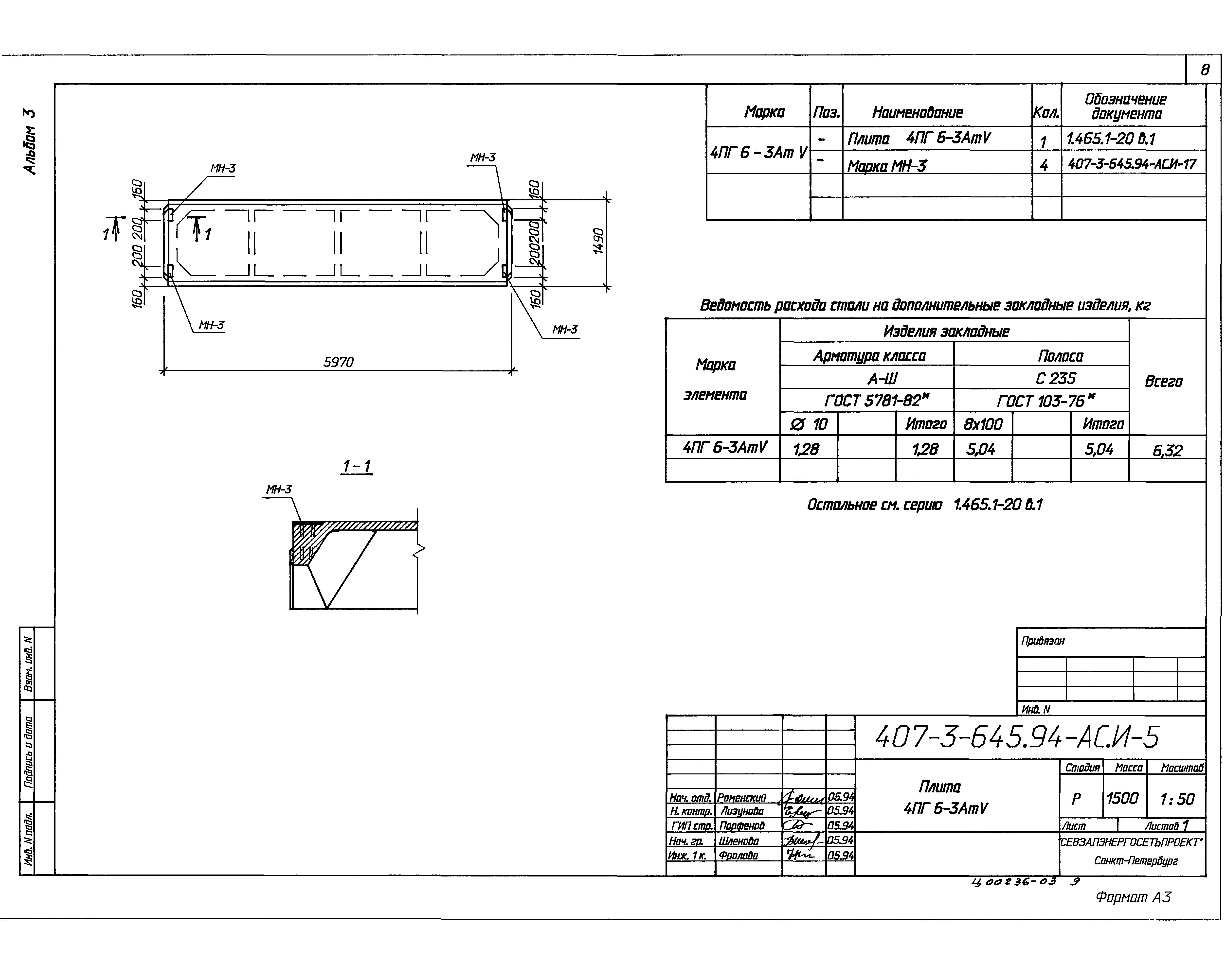
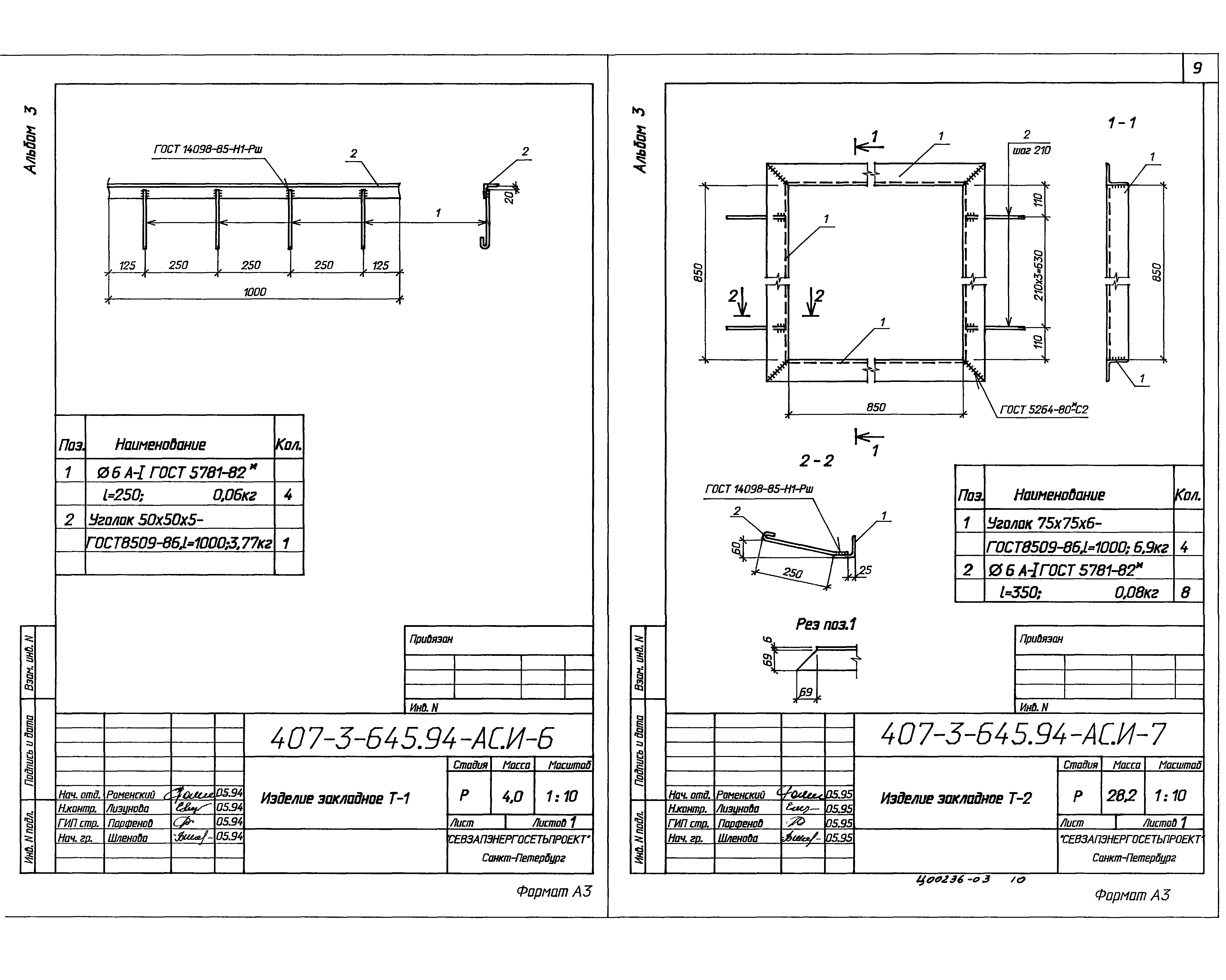
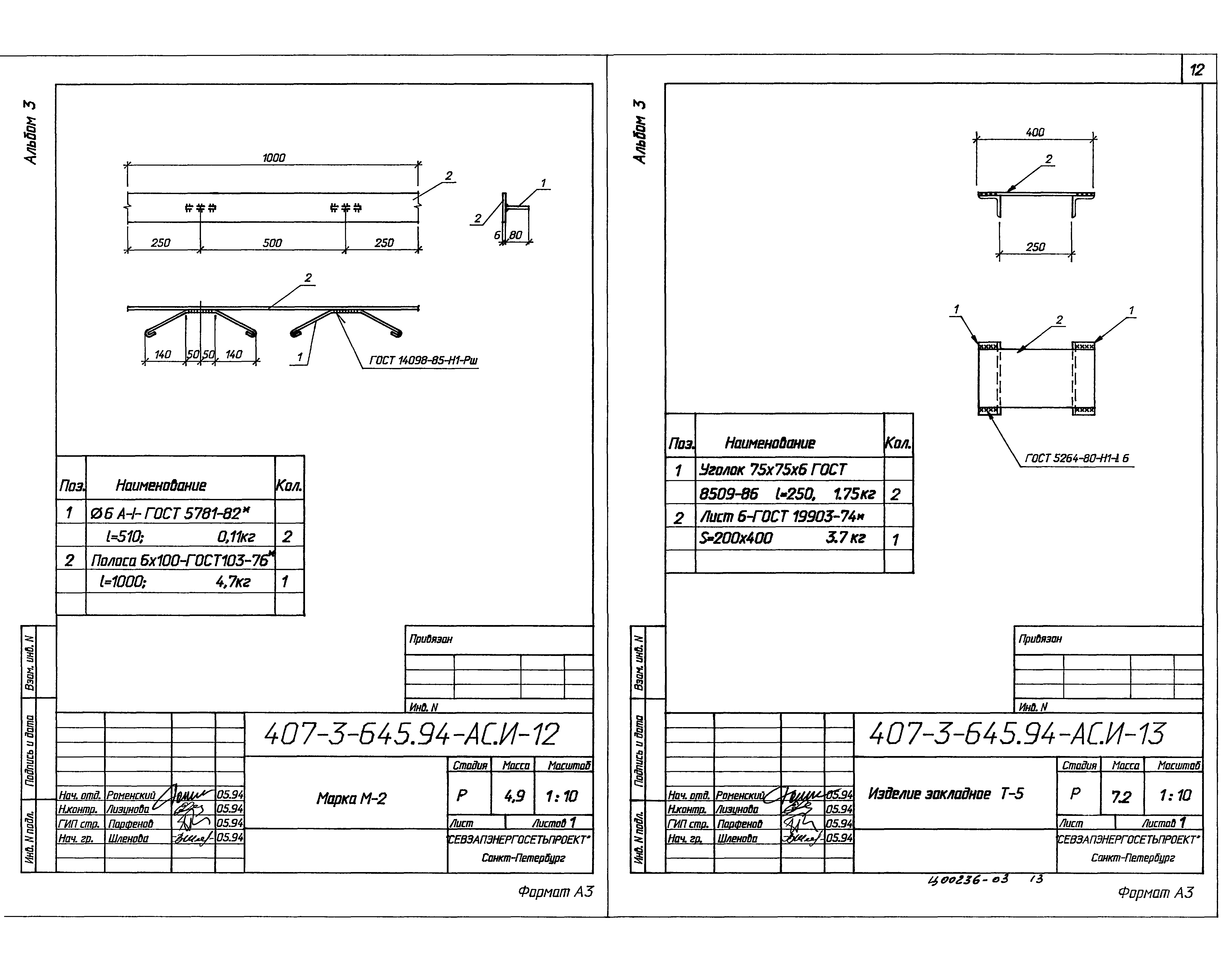
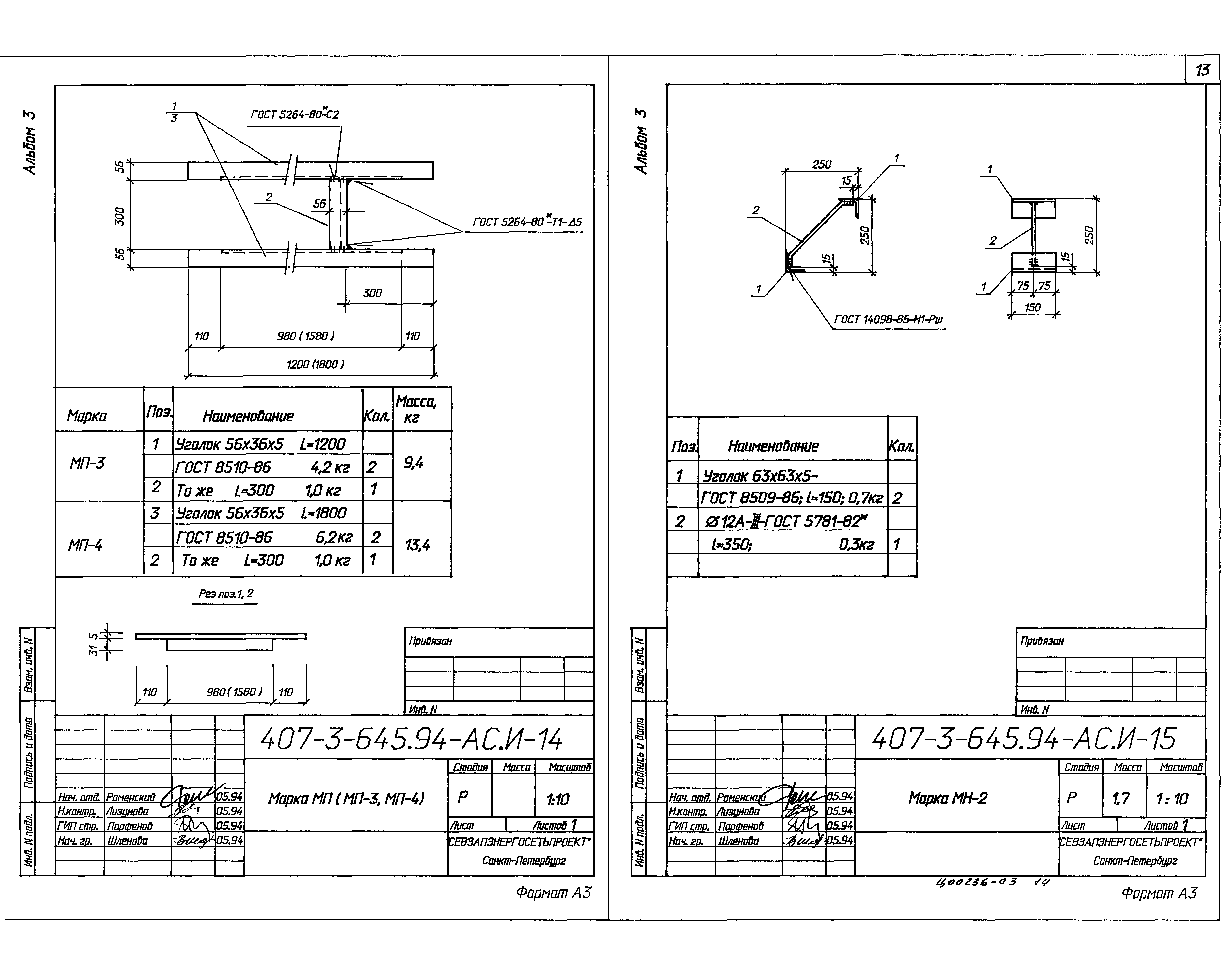
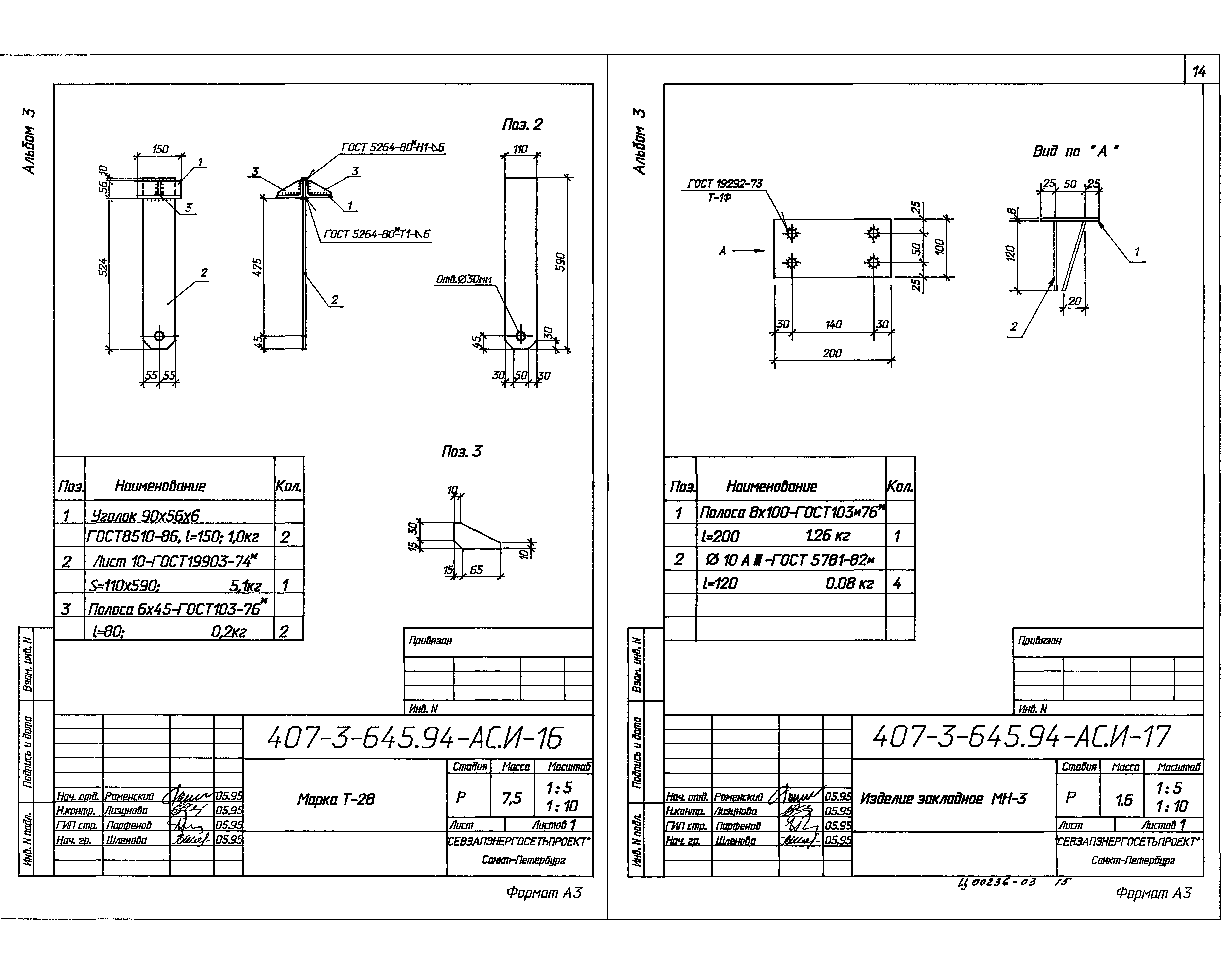
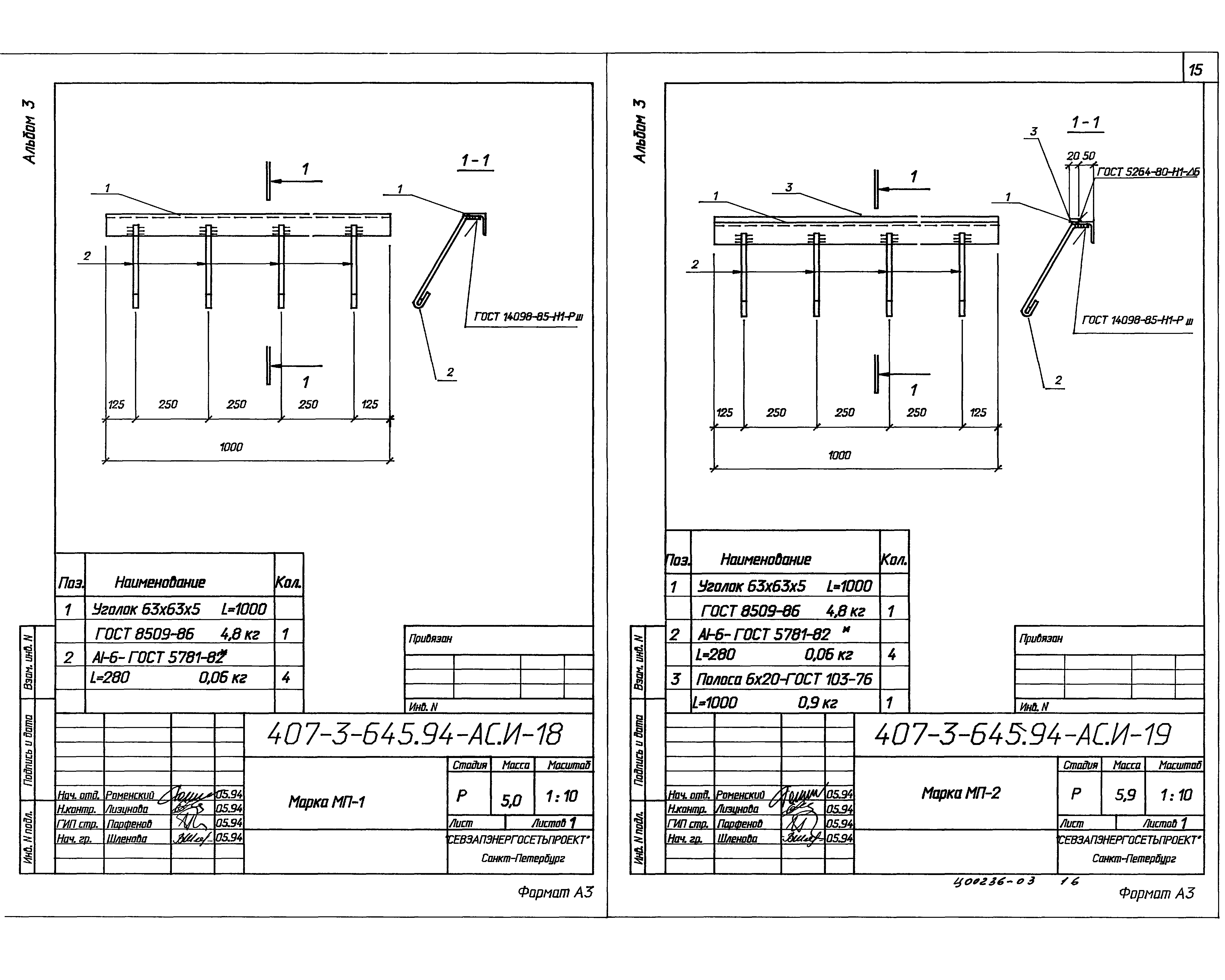
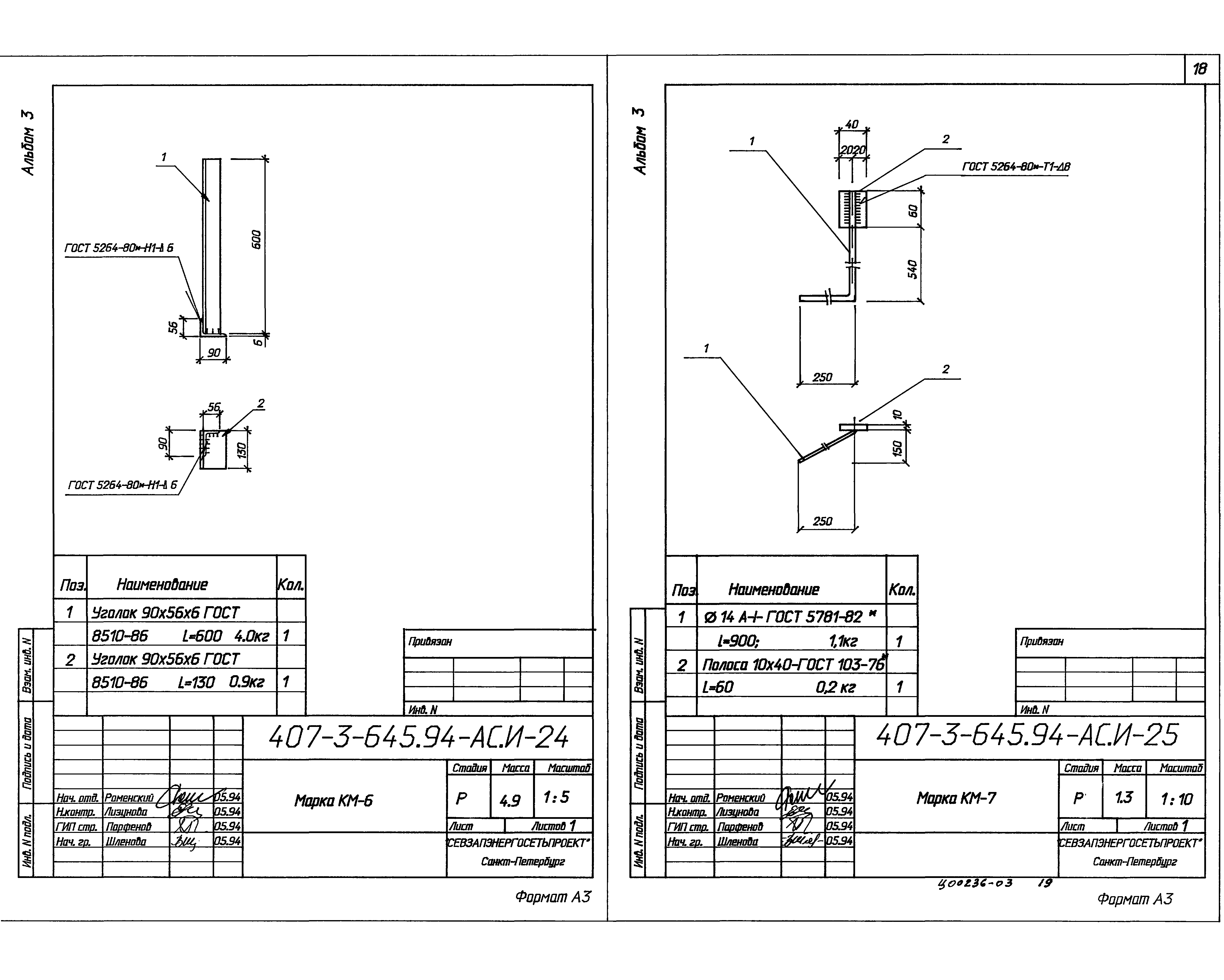
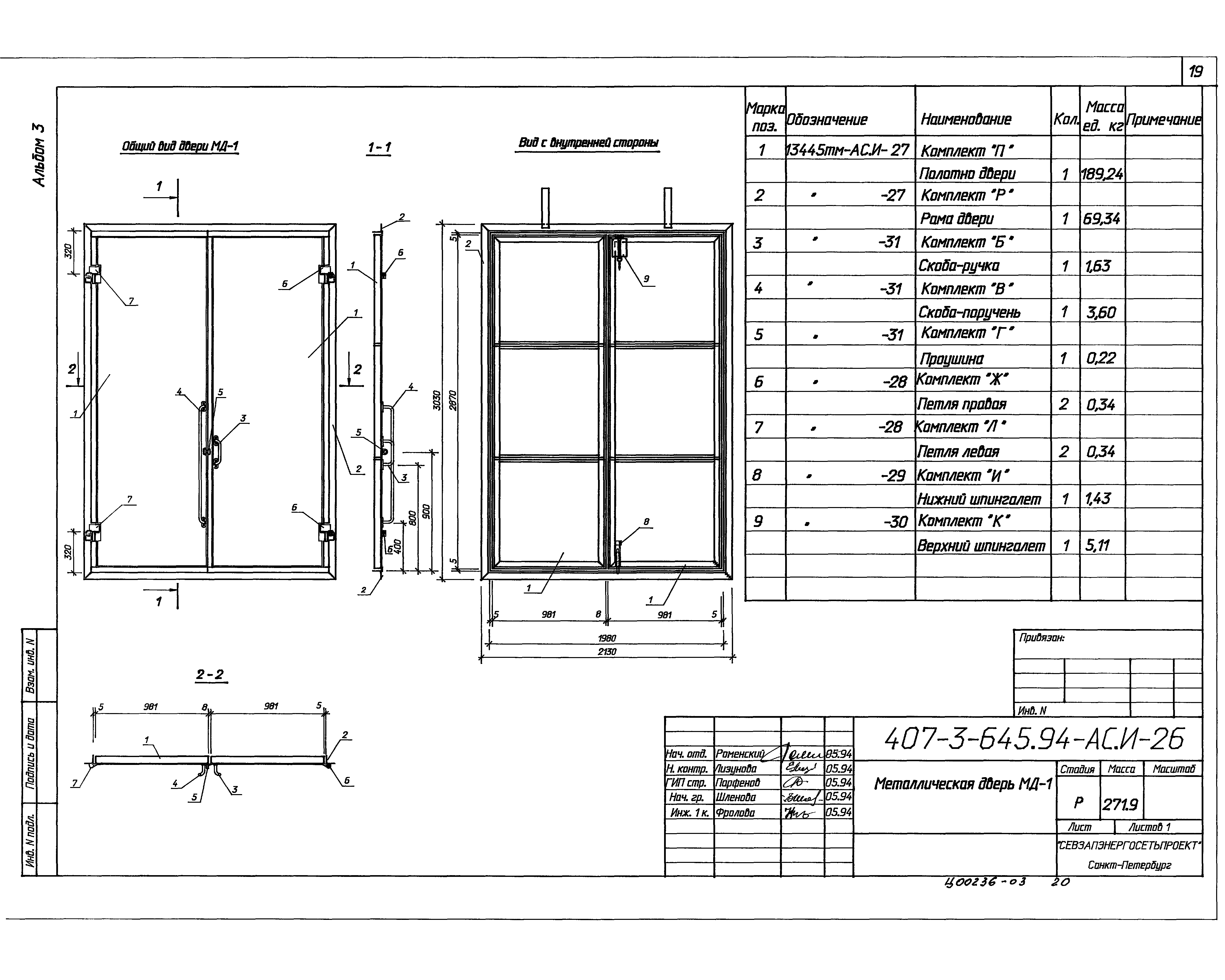
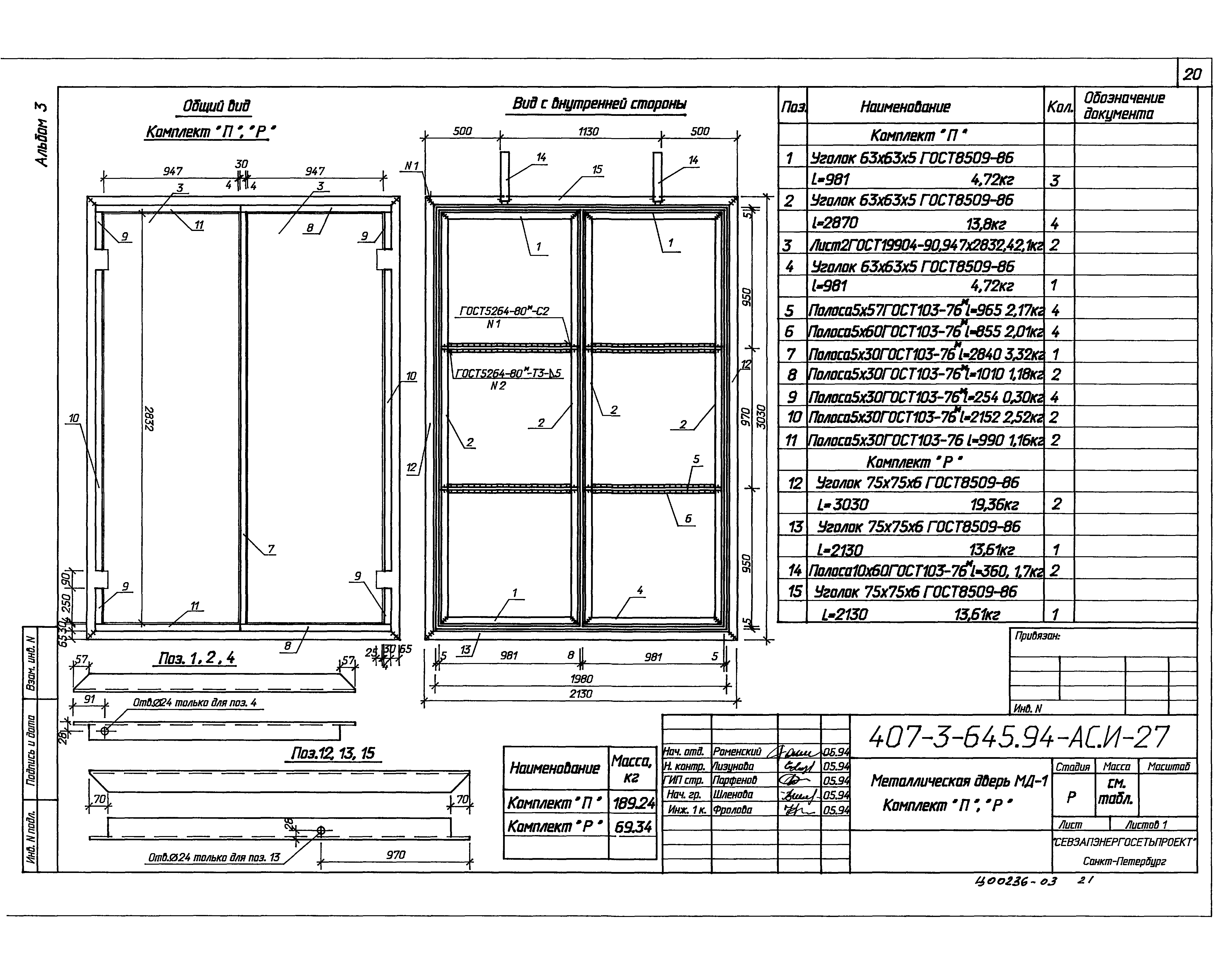
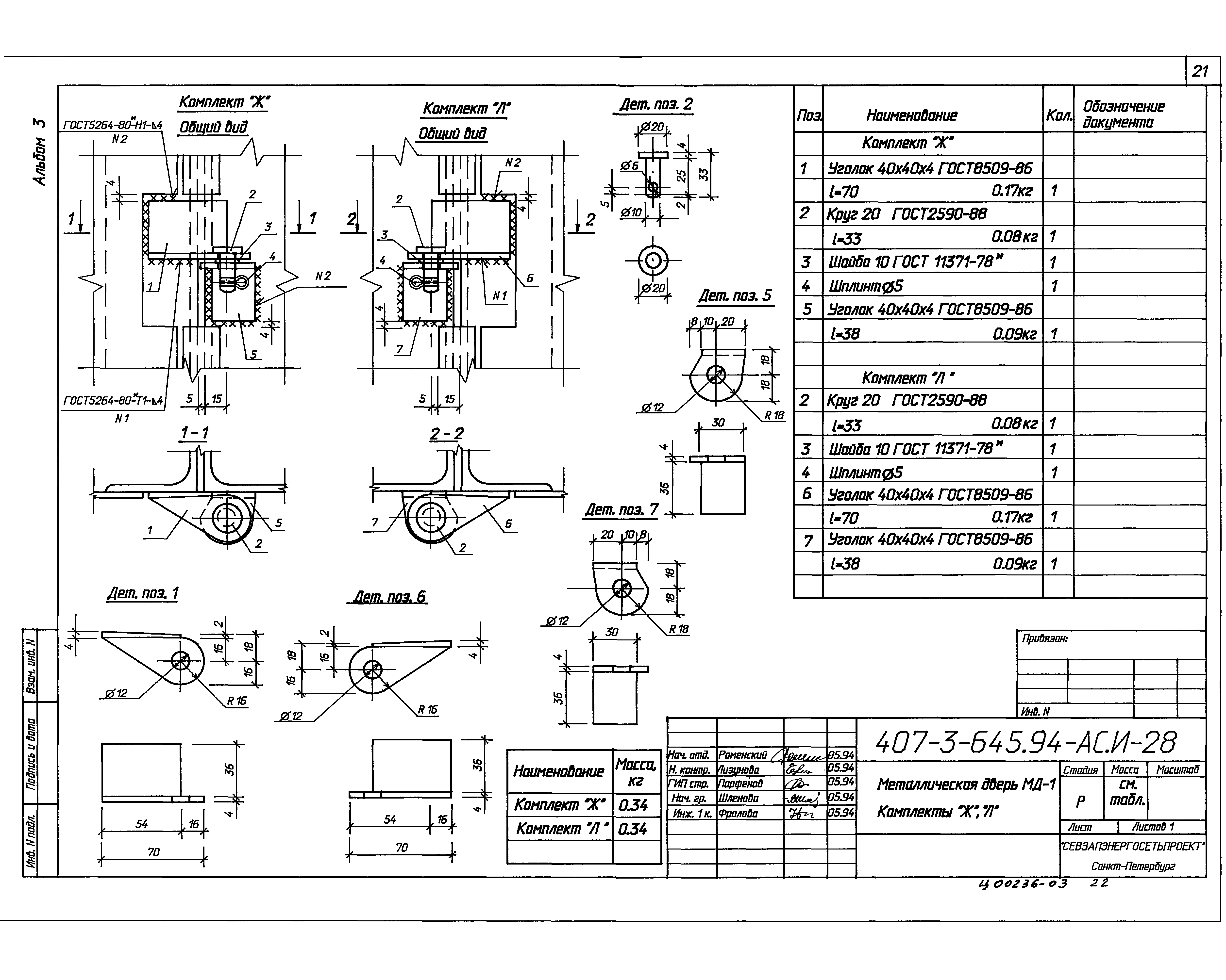
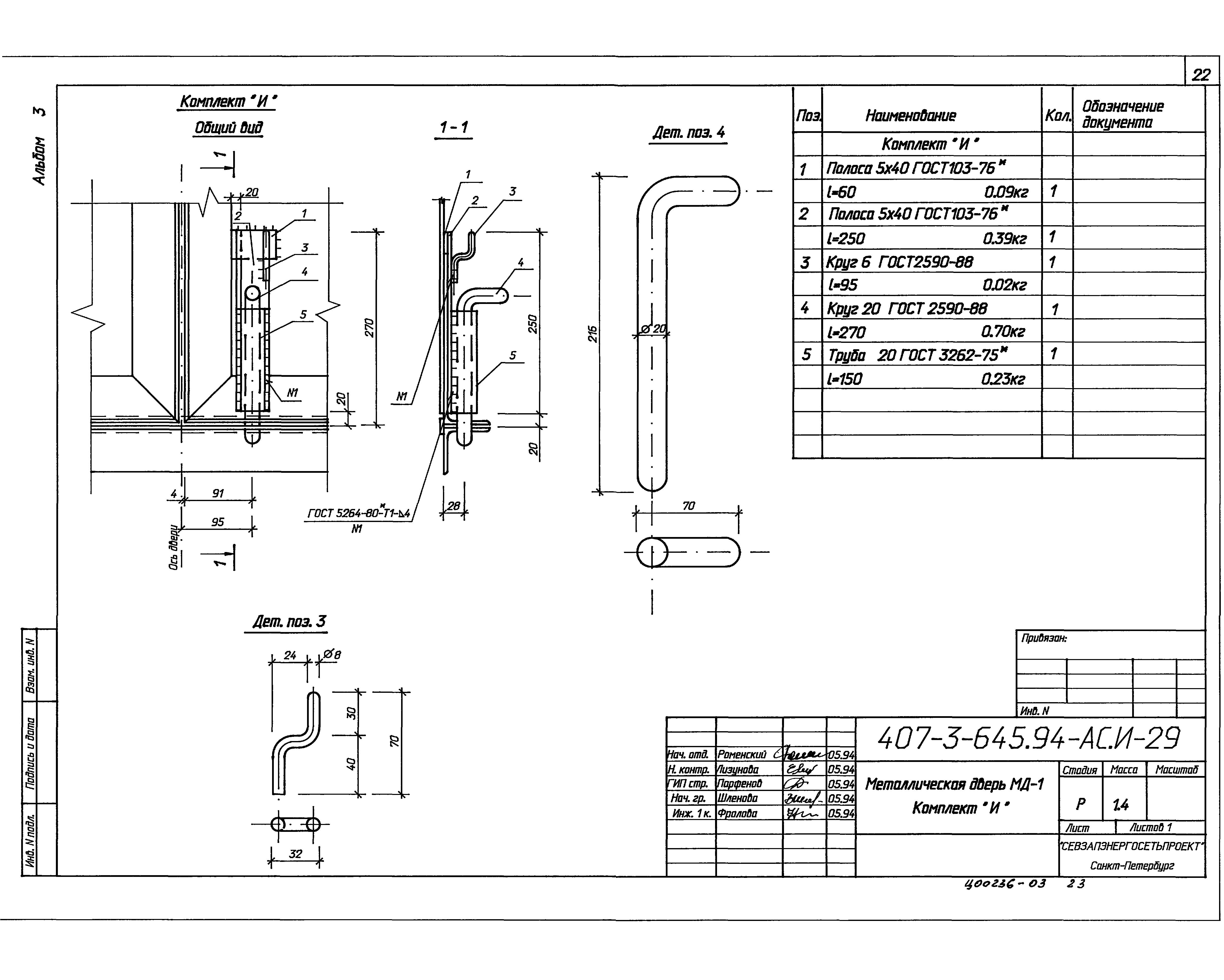
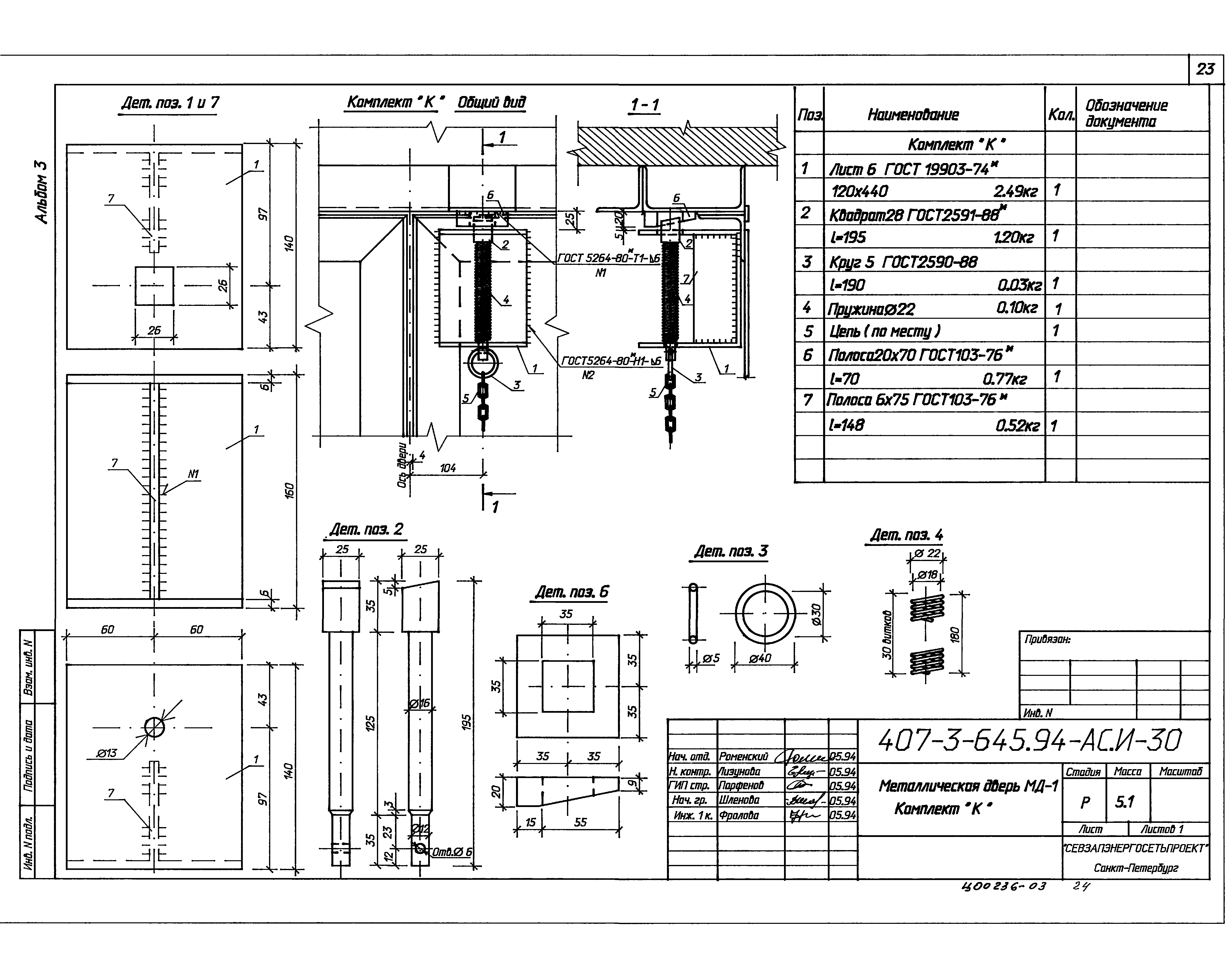
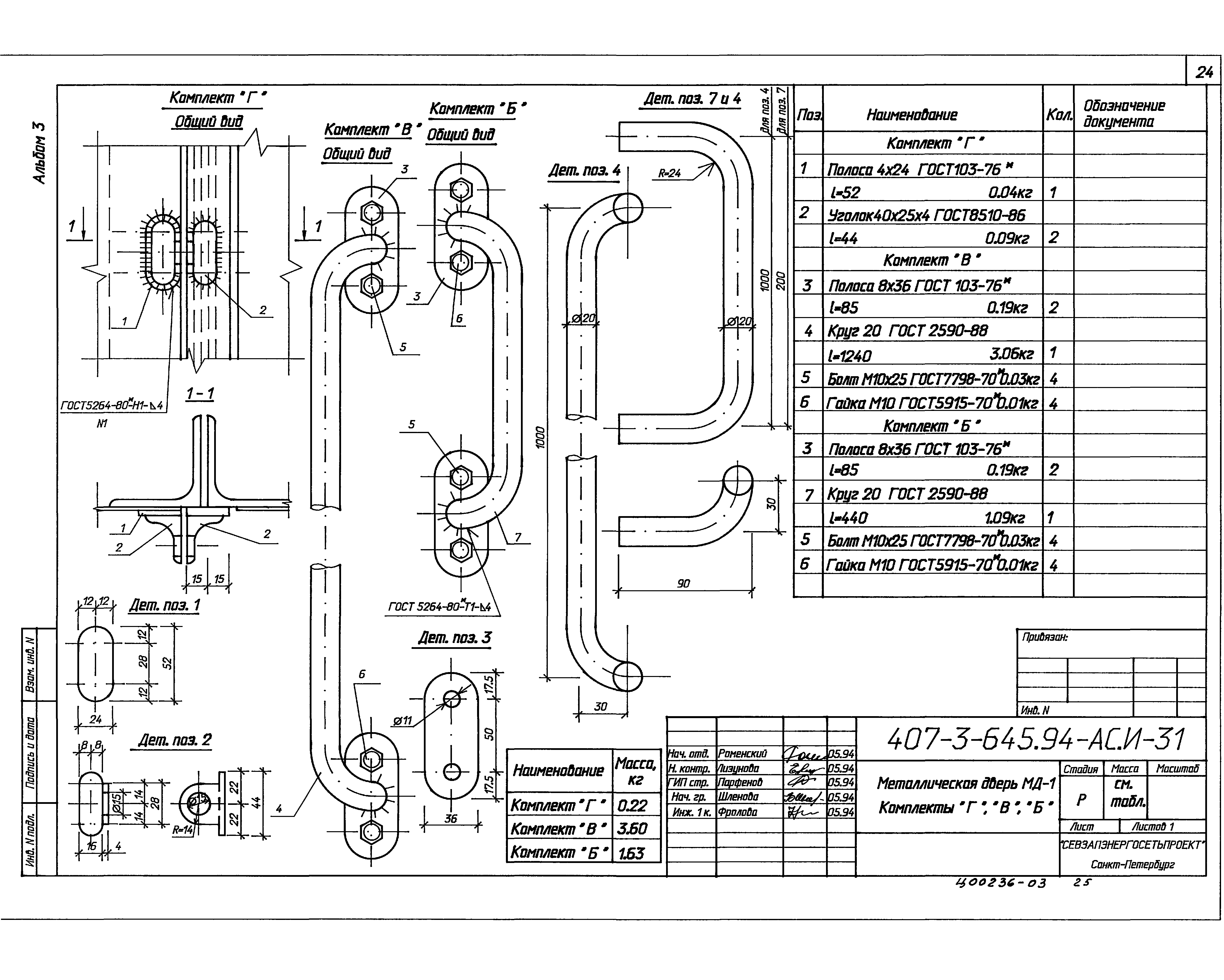
| Оглавление: | 407-3-645.94-АС.И Содержание альбома 407-3-645.94-АС.И-ТТ Технические требования 407-3-645.94-АС.И-1 Колонны 1К48-4М2-А и 1К48-4М2-Б 407-3-645.94-АС.И-2 Колонна 1К48-4М2-В 407-3-645.94-АС.И-3 Колонна 1К48-4М2-Г 407-3-645.94-АС.И-4 Кровельная балка БСП9.2-6АIV-1 407-3-645.94-АС.И-5 Плита 4ПГ6-3АmV 407-3-645.94-АС.И-6 Изделие закладное Т-1 407-3-645.94-АС.И-7 Изделие закладное Т-2 407-3-645.94-АС.И-8 Марка Т-10 407-3-645.94-АС.И-9 Марка Т-12 407-3-645.94-АС.И-10 Ограждение Т-13 407-3-645.94-АС.И-11 Кронштейны Т-14, Т-15 407-3-645.94-АС.И-12 Марка М-2 407-3-645.94-АС.И-13 Изделие закладное Т-5 407-3-645.94-АС.И-14 Марка МП (МП-3, МП-4) 407-3-645.94-АС.И-15 Марка МН-2 407-3-645.94-АС.И-16 Марка Т-28 407-3-645.94-АС.И-17 Изделие закладное МН-3 407-3-645.94-АС.И-18 Марка МП-1 407-3-645.94-АС.И-19 Марка МП-2 407-3-645.94-АС.И-20 Марка КМ (КМ-1, КМ-2) 407-3-645.94-АС.И-21 Марка КМ-3 407-3-645.94-АС.И-22 Марка КМ-4 407-3-645.94-АС.И-23 Марка КМ-5 407-3-645.94-АС.И-24 Марка КМ-6 407-3-645.94-АС.И-25 Марка КМ-7 407-3-645.94-АС.И-26 Металлическая дверь МД-1 407-3-645.94-АС.И-27 Металлическая дверь МД-1. Комплекты "П", "Р" 407-3-645.94-АС.И-28 Металлическая дверь МД-1. Комплекты "Ж", "Л" 407-3-645.94-АС.И-29 Металлическая дверь МД-1. Комплект "И" 407-3-645.94-АС.И-30 Металлическая дверь МД-1. Комплект "К" 407-3-645.94-АС.И-31 Металлическая дверь МД-1. Комплекты "Г", "В", "Б" 407-3-645.94-АС.И-32 Марка Т-25 407-3-645.94-АС.И-33 Марка Т-30 |
| Разработан: | Севзапэнергосетьпроект |
| Утверждён: | 05.07.1994 Минтопэнерго России (Russian Federation Mintopenergo 4) |

























