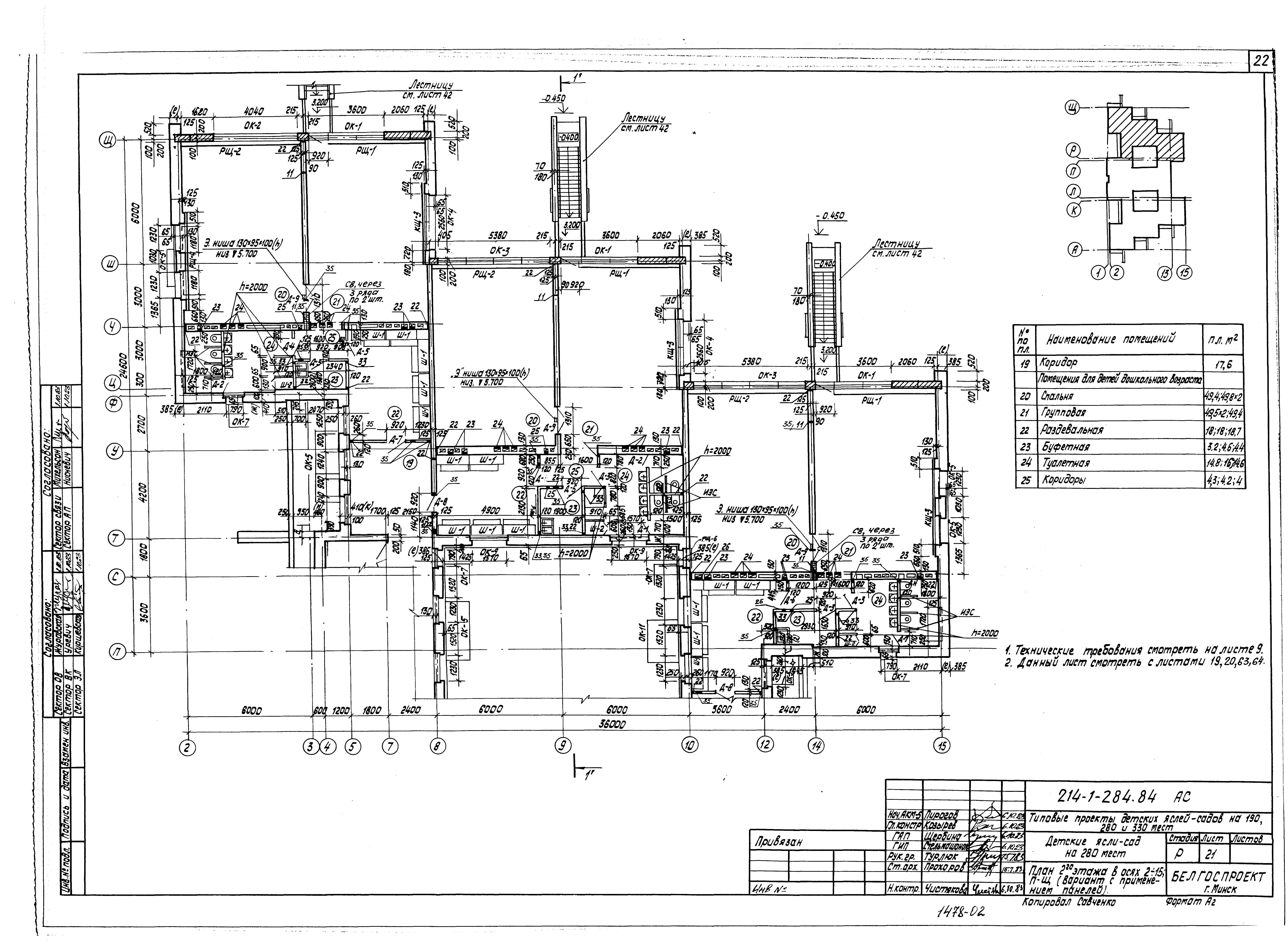
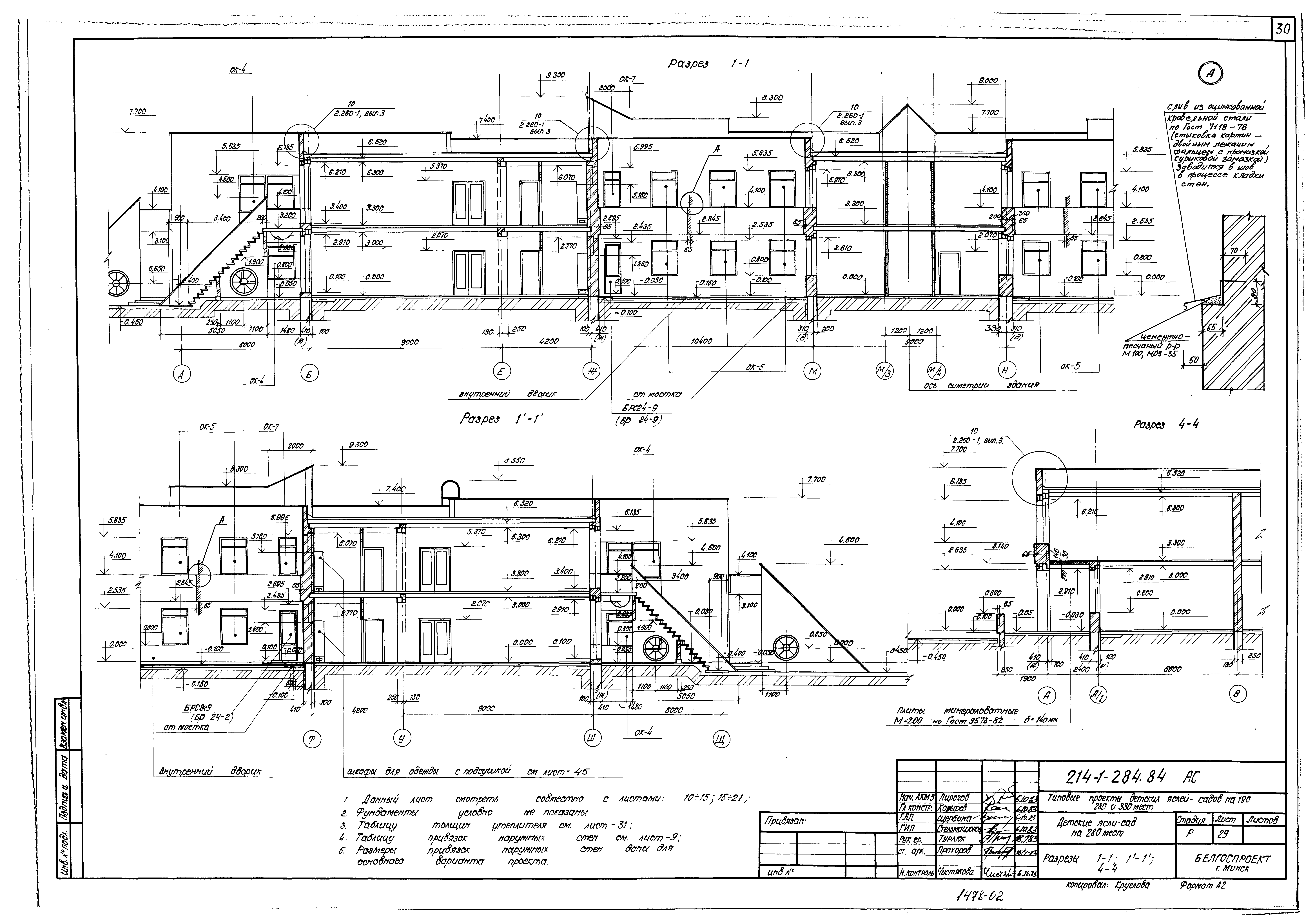
Скачать Типовой проект 214-1-284.84 Альбом I. Архитектурно-строительные решения. Технологические чертежи. Изделия металлические, изделия деревянныеДата актуализации: 01.01.2021 Типовой проект 214-1-284.84
Альбом I. Архитектурно-строительные решения. Технологические чертежи. Изделия металлические, изделия деревянные| Обозначение: | Типовой проект 214-1-284.84 | | Обозначение англ: | 214-1-284.84 | | Статус: | не определен законодательством | | Название рус.: | Альбом I. Архитектурно-строительные решения. Технологические чертежи. Изделия металлические, изделия деревянные | | Дата добавления в базу: | 01.09.2013 | | Дата актуализации: | 01.01.2021 | | Дата введения: | 01.08.1984 | | Дата окончания срока действия: | 30.06.2003 | | Разработан: | Белгоспроект
| | Утверждён: | 04.04.1984 Госстрой БССР (BSSR Gosstroy 60)
|
                                                                                                   
|