Скачать Серия 1.432-5 Выпуск 2. Панели для стен неотапливаемых зданий. Рабочие чертежи

Дата актуализации: 01.01.2021

Серия 1.432-5

Выпуск 2. Панели для стен неотапливаемых зданий. Рабочие чертежи

Обозначение: Серия 1.432-5
Обозначение англ: Series 1.432-5
Статус: заменен
Название рус.: Выпуск 2. Панели для стен неотапливаемых зданий. Рабочие чертежи
Дата добавления в базу: 01.09.2013
Дата актуализации: 01.01.2021
Дата введения: 01.01.1973
Дата окончания срока действия: 01.12.1979
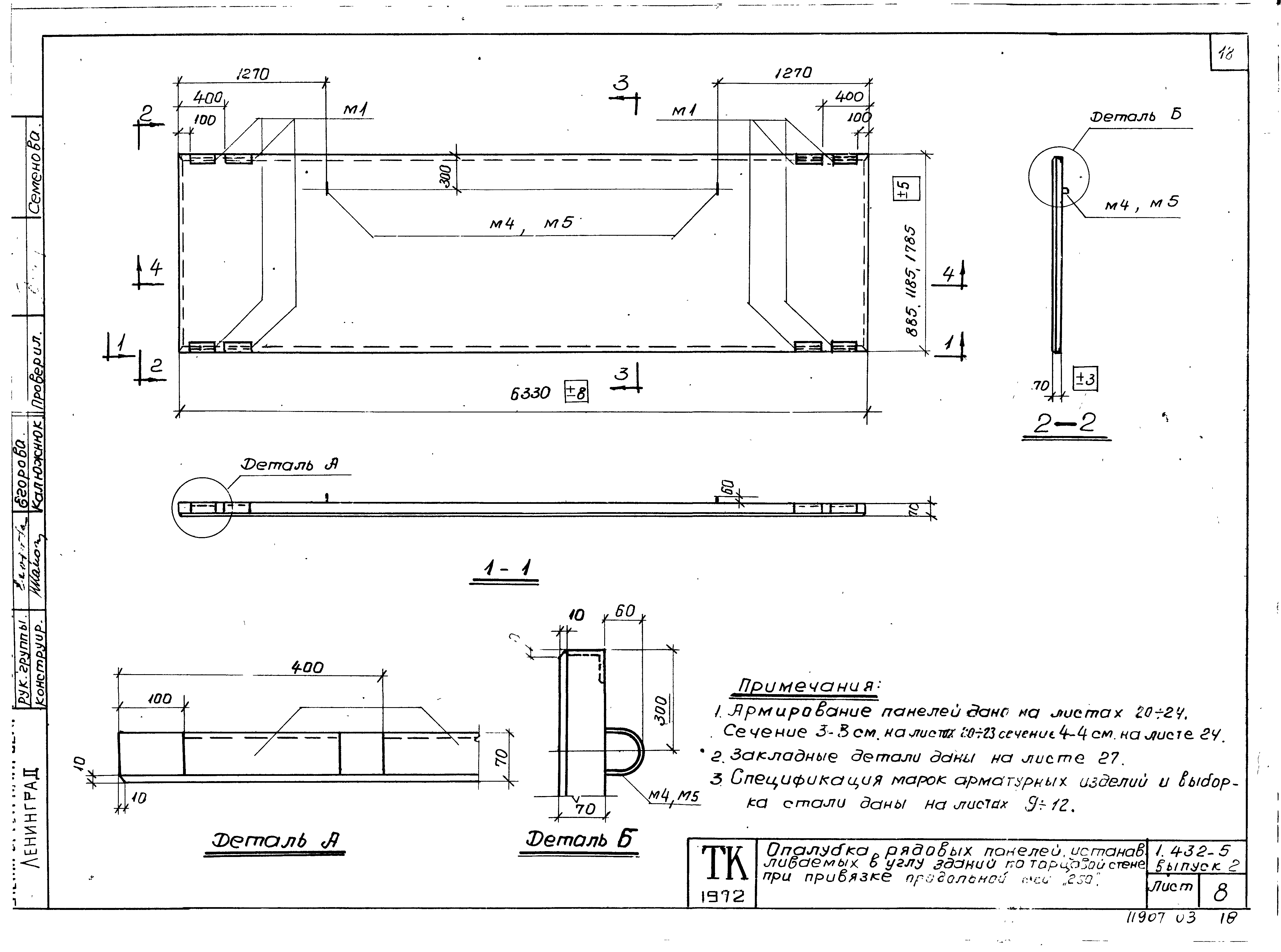
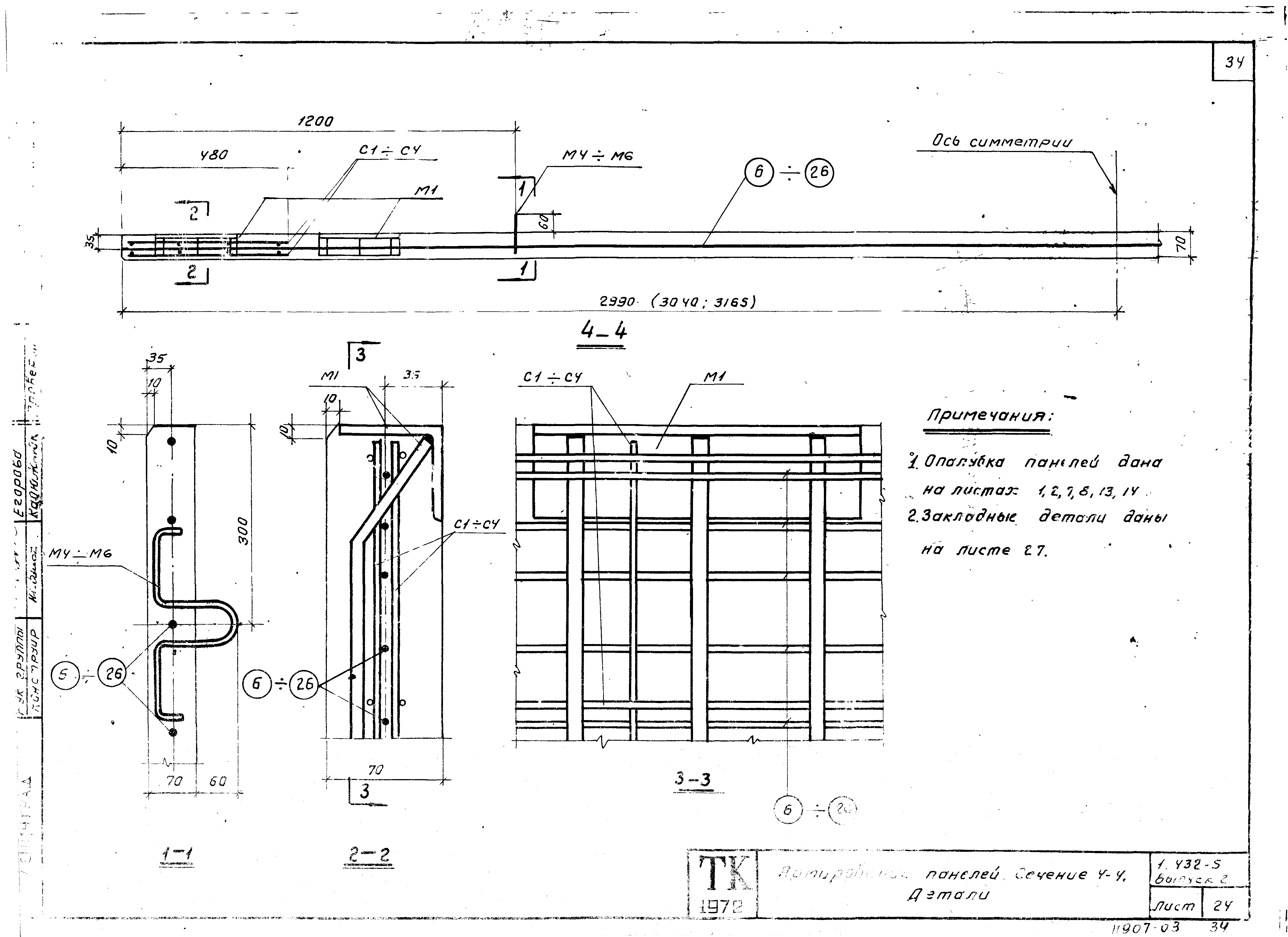
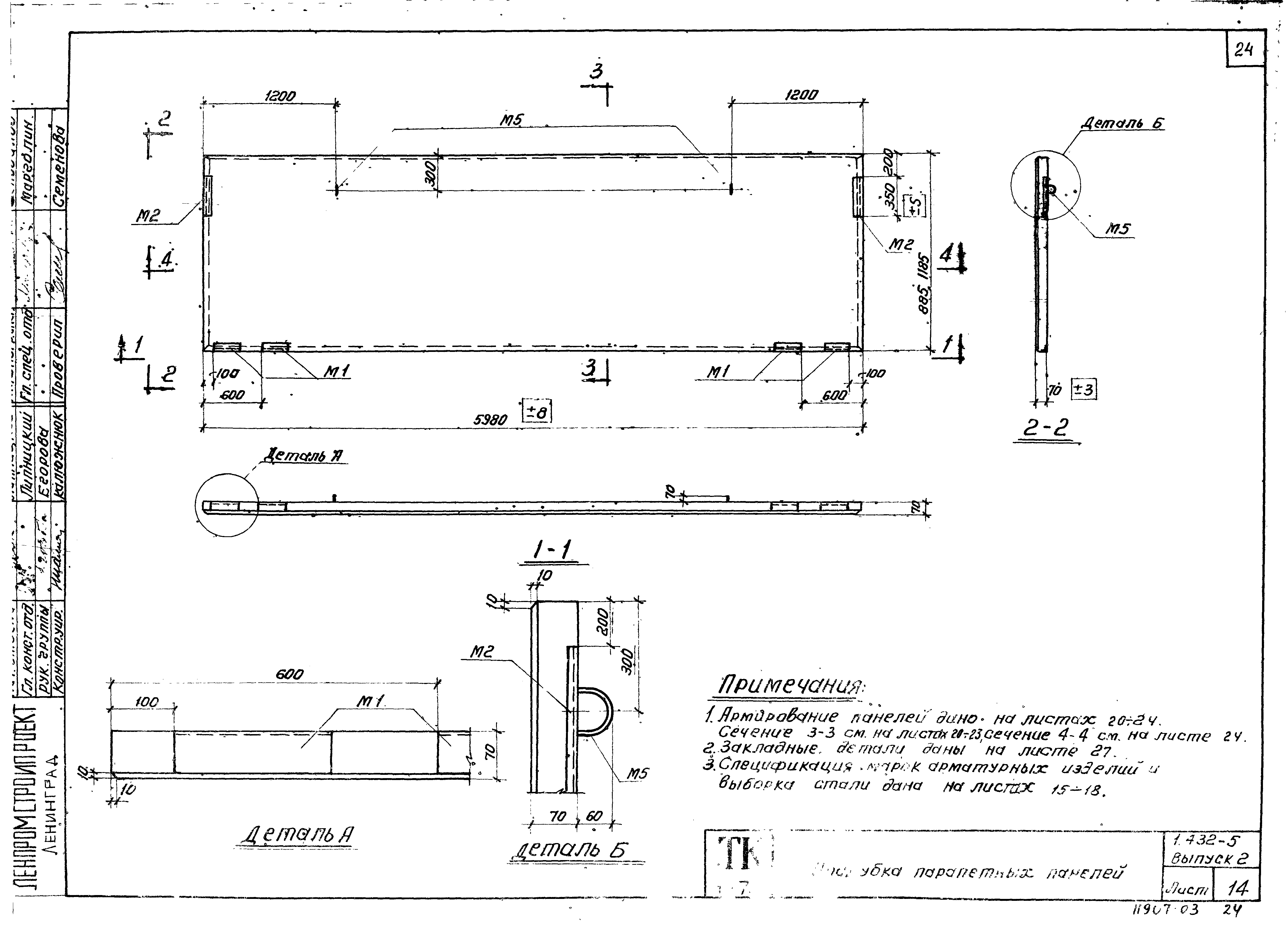
Область применения: Настоящий выпуск содержит рабочие чертежи плоских предварительно напряженных железобетонных стеновых панелей толщиной 70 мм длиной 6 м для неотапливаемых промышленных зданий
Разработан: ЦНИИпромзданий
Ленинградский Промстройпроект
НИИЖБ
Утверждён: 08.08.1972 Госстрой СССР (Государственный комитет Совета Министров СССР по делам строительства) (USSR Gosstroy 158)
Чем заменён:
  • Серия 1.432-14
  • Серия 1.432-15
Нормативные ссылки:
Серия 1.432-5Серия 1.432-5Серия 1.432-5Серия 1.432-5Серия 1.432-5Серия 1.432-5Серия 1.432-5Серия 1.432-5Серия 1.432-5Серия 1.432-5Серия 1.432-5Серия 1.432-5Серия 1.432-5Серия 1.432-5Серия 1.432-5Серия 1.432-5Серия 1.432-5Серия 1.432-5Серия 1.432-5Серия 1.432-5Серия 1.432-5Серия 1.432-5Серия 1.432-5Серия 1.432-5Серия 1.432-5Серия 1.432-5Серия 1.432-5Серия 1.432-5Серия 1.432-5Серия 1.432-5Серия 1.432-5Серия 1.432-5Серия 1.432-5Серия 1.432-5Серия 1.432-5Серия 1.432-5