Скачать Серия 1.134.1-11 Выпуск 1. Книга 2. Блоки толщиной 20 см. Материалы для проектирования и рабочие чертежиДата актуализации: 01.01.2021
|
| Обозначение: | Серия 1.134.1-11 |
| Обозначение англ: | Series 1.134.1-11 |
| Статус: | не определен законодательством |
| Название рус.: | Выпуск 1. Книга 2. Блоки толщиной 20 см. Материалы для проектирования и рабочие чертежи |
| Дата добавления в базу: | 01.09.2013 |
| Дата актуализации: | 01.01.2021 |
| Дата введения: | 25.06.1989 |
| Дата окончания срока действия: | 30.06.2003 |
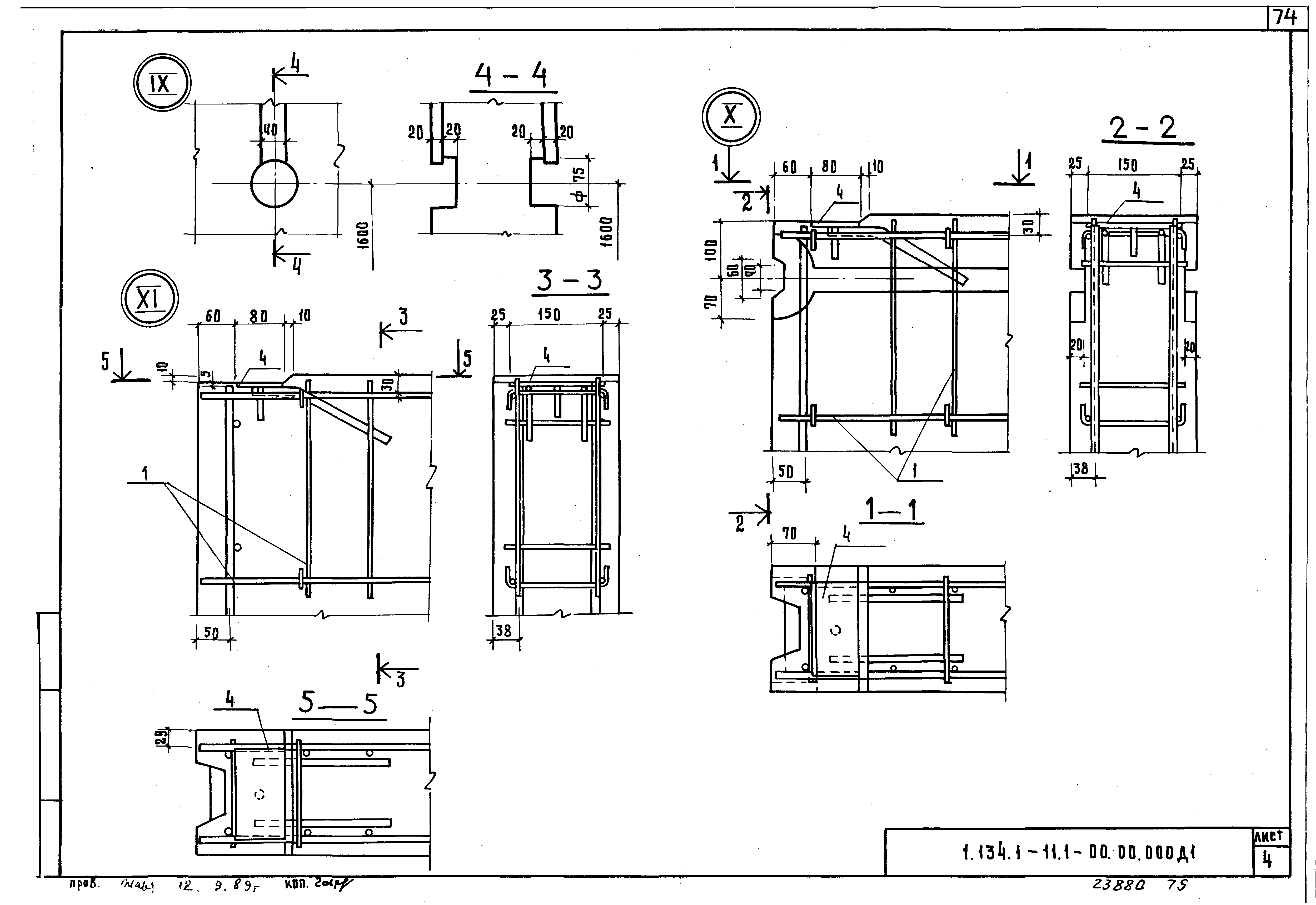
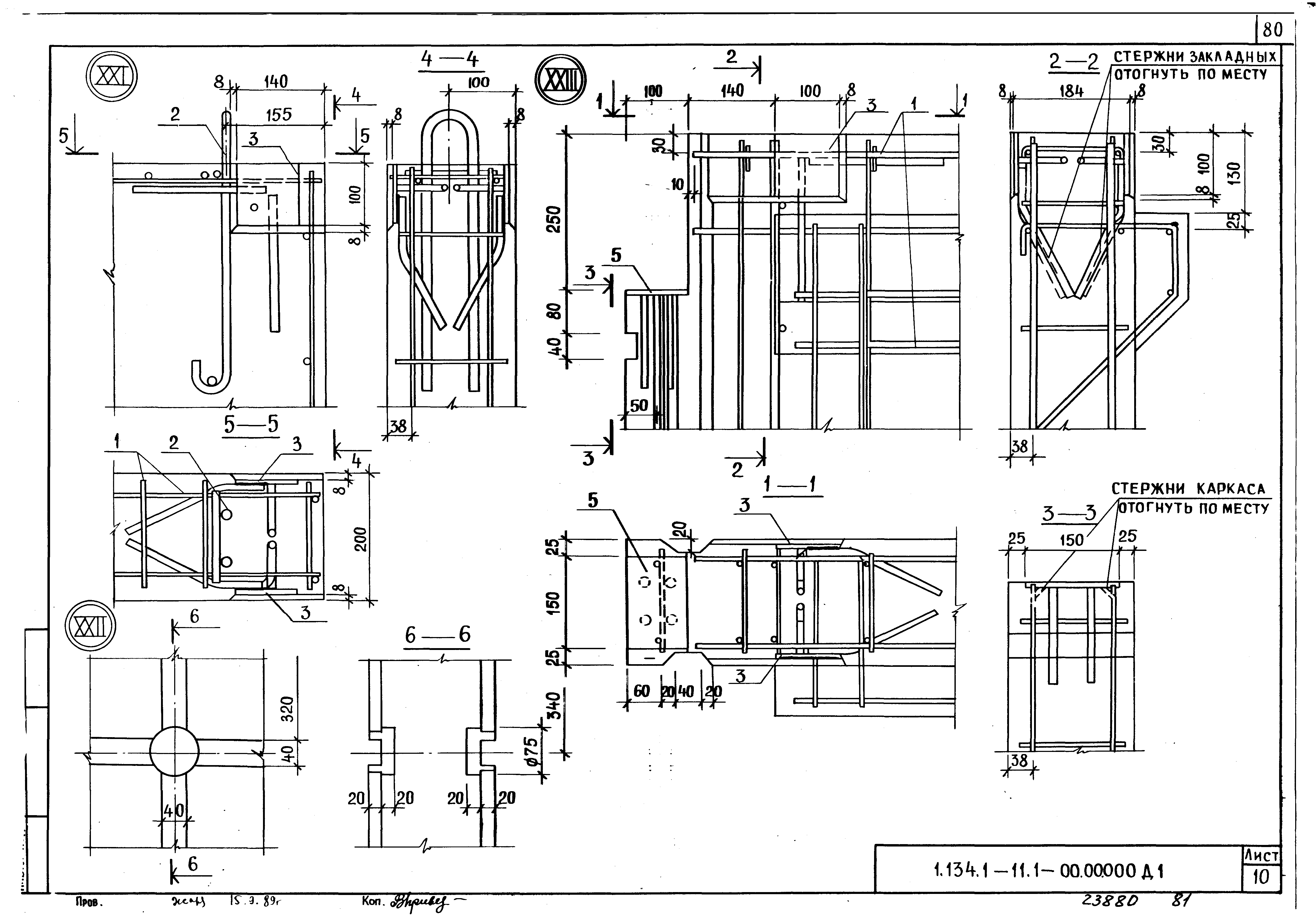
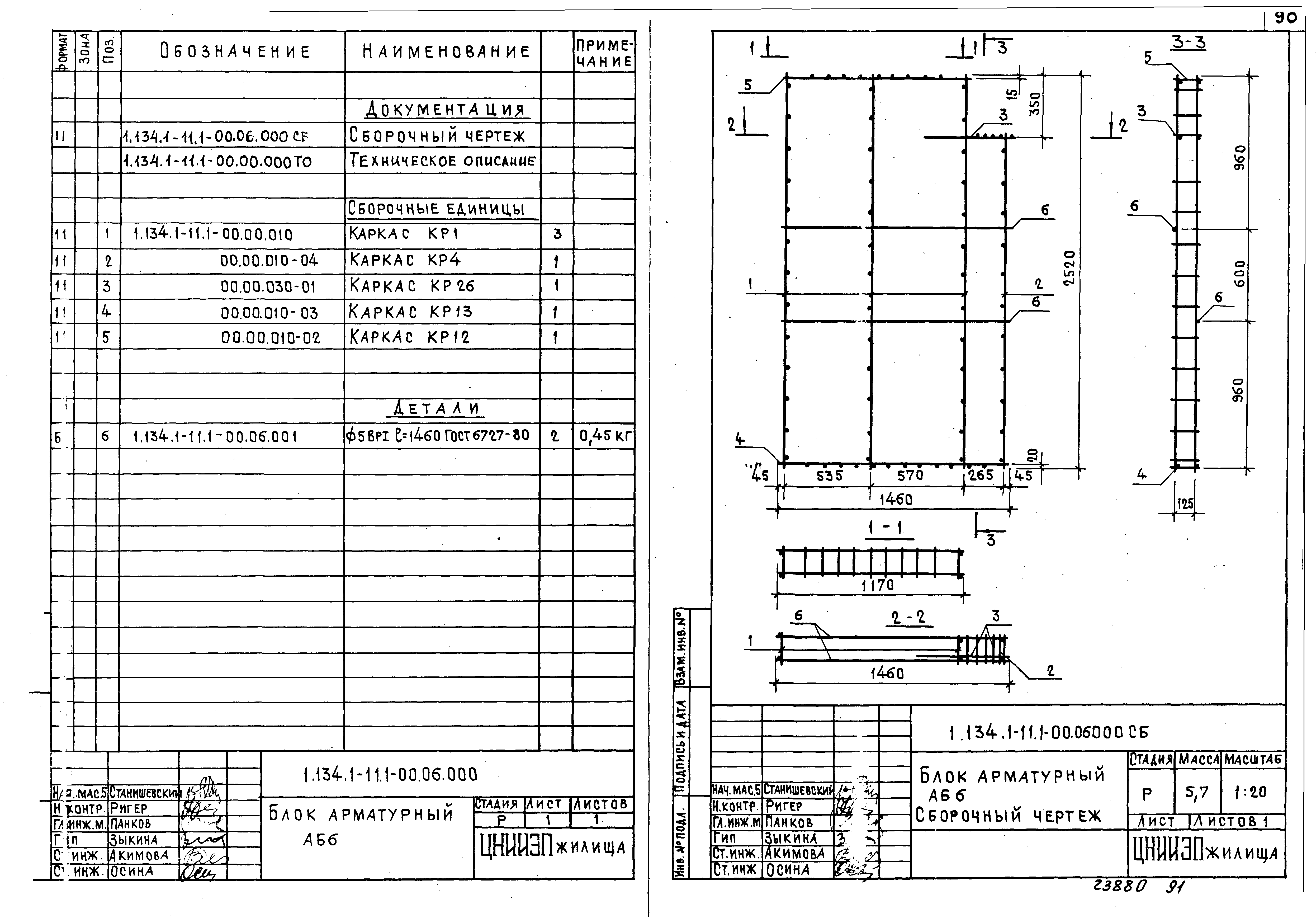
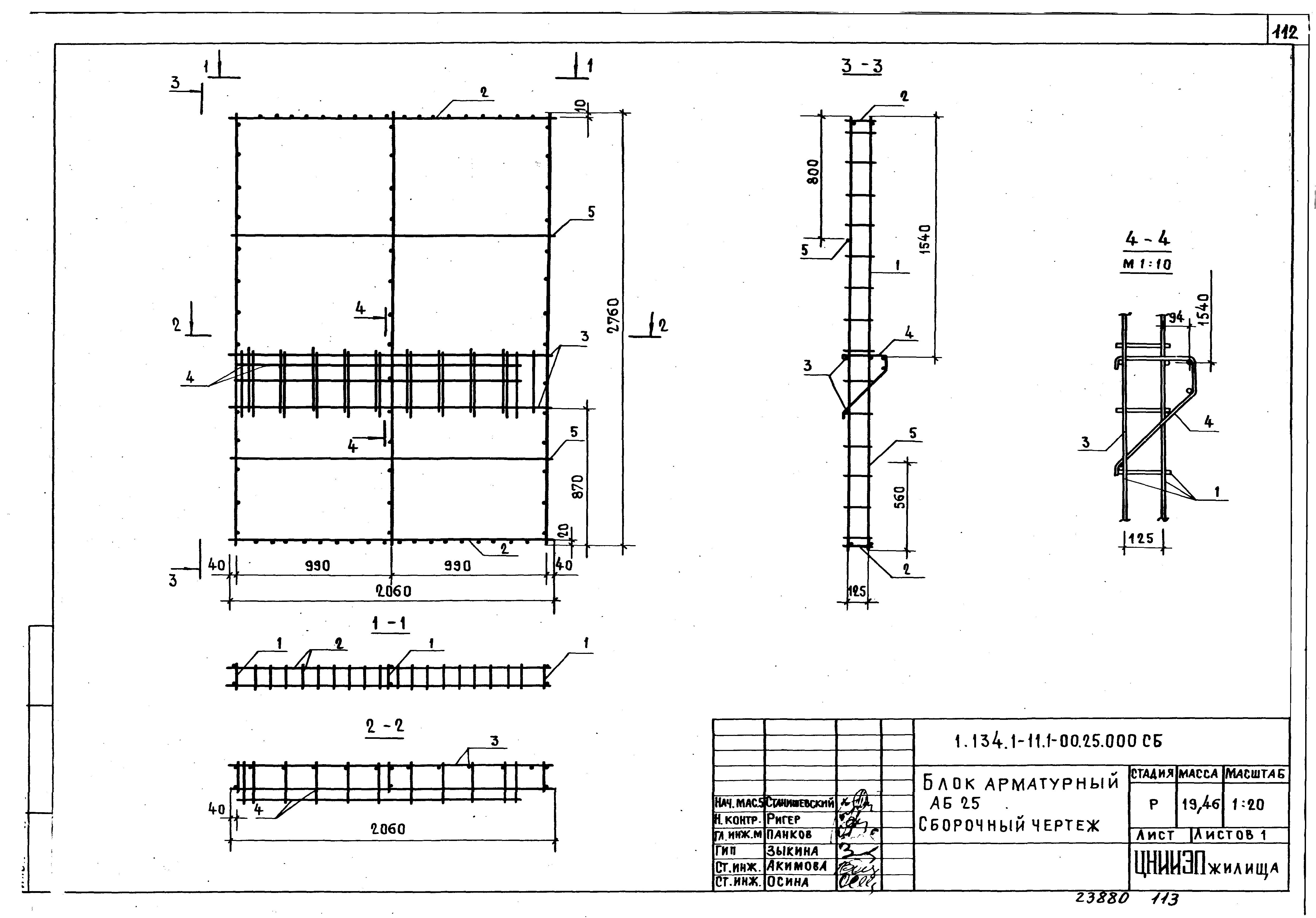
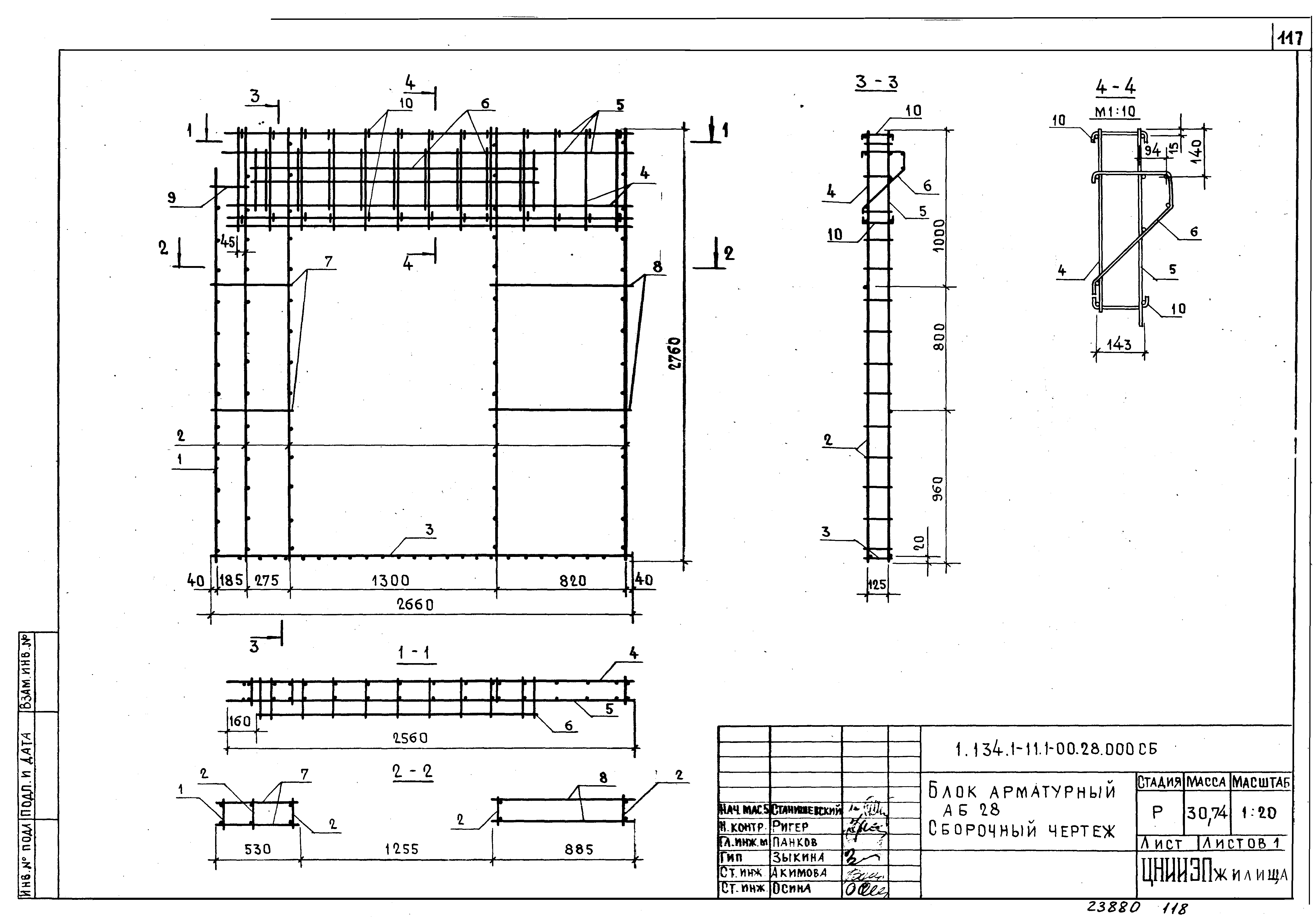
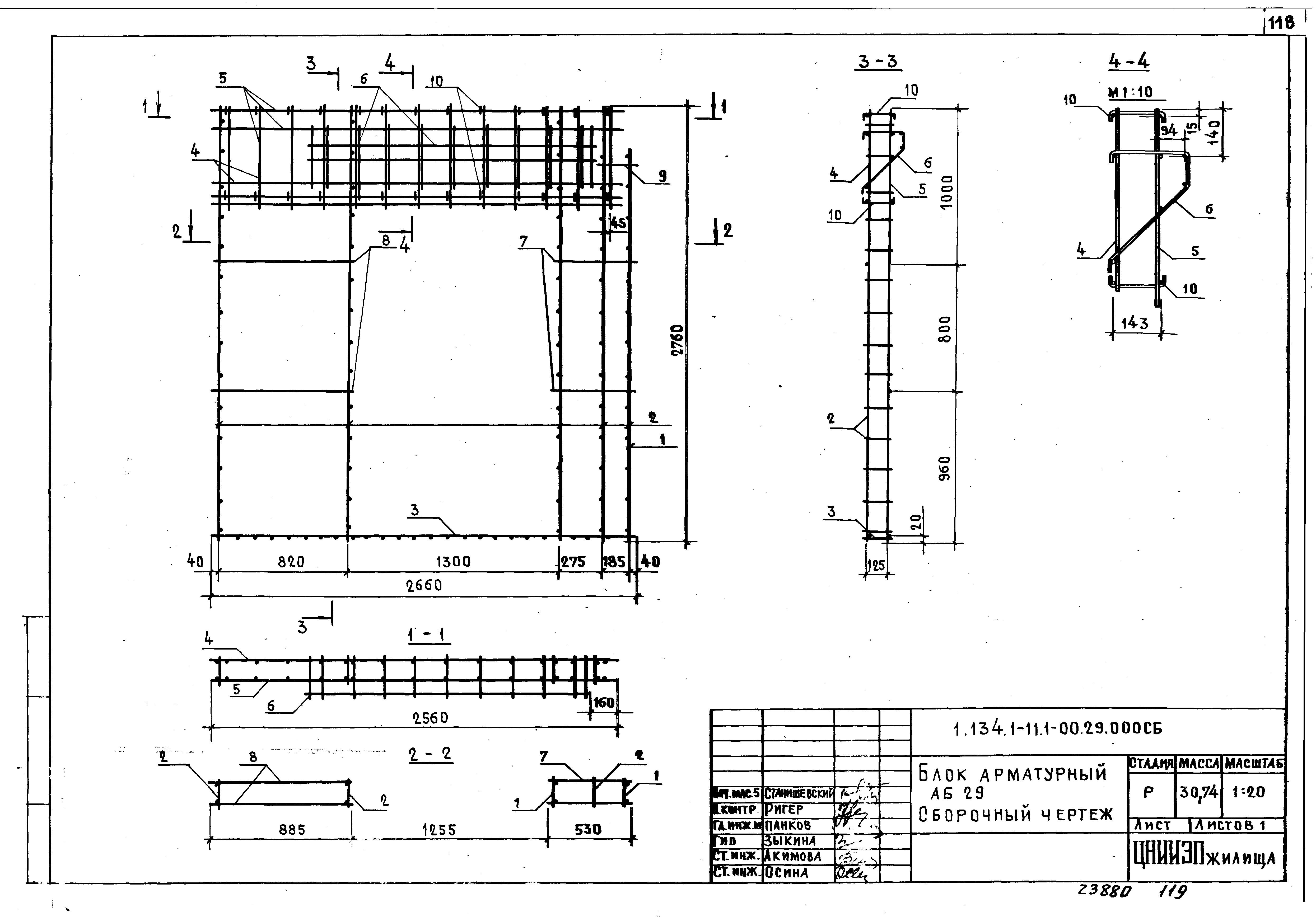
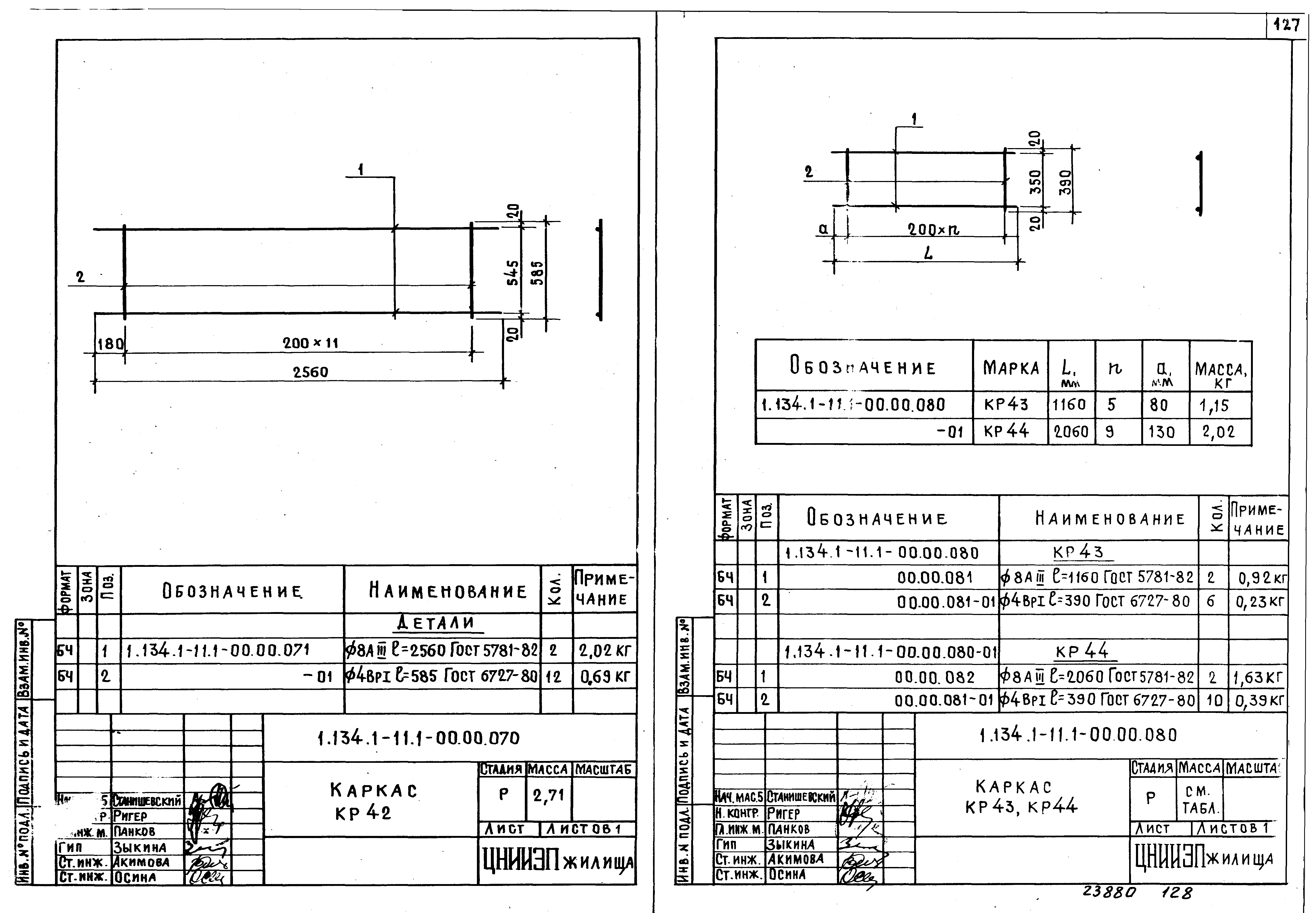
| Оглавление: | 1.134.1-11.1-30.00.000 Блок внутренней стены СБВ 1.134.1-11.1-30.00.000 СБ Блок внутренней стены СБВ. Сборочный чертеж 1.134.1-11.1-00.00.000 Д1 Узлы I… XXX 1.134.1-11.1-00.00.000 Д2 Фрагмент 1.134.1-11.1-00.01.000 Блок арматурный АБ1 1.134.1-11.1-00.01.000 СБ Блок арматурный АБ1. Сборочный чертеж 1.134.1-11.1-00.02.000 Блок арматурный АБ2 1.134.1-11.1-00.02.000 СБ Блок арматурный АБ2. Сборочный чертеж 1.134.1-11.1-00.03.000 Блок арматурный АБ3 1.134.1-11.1-00.03.000 СБ Блок арматурный АБ3. Сборочный чертеж 1.134.1-11.1-00.04.000 Блок арматурный АБ4 1.134.1-11.1-00.04.000 СБ Блок арматурный АБ4. Сборочный чертеж 1.134.1-11.1-00.05.000 Блок арматурный АБ5 1.134.1-11.1-00.05.000 СБ Блок арматурный АБ5. Сборочный чертеж 1.134.1-11.1-00.06.000 Блок арматурный АБ6 1.134.1-11.1-00.06.000 СБ Блок арматурный АБ6. Сборочный чертеж 1.134.1-11.1-00.07.000 Блок арматурный АБ7 1.134.1-11.1-00.07.000 СБ Блок арматурный АБ7. Сборочный чертеж 1.134.1-11.1-00.08.000 Блок арматурный АБ8 1.134.1-11.1-00.08.000 СБ Блок арматурный АБ8. Сборочный чертеж 1.134.1-11.1-00.09.000 Блок арматурный АБ9 1.134.1-11.1-00.09.00 СБ Блок арматурный АБ9. Сборочный чертеж 1.134.1-11.1-00.10.000 Блок арматурный АБ10 1.134.1-11.1-00.10.000 СБ Блок арматурный АБ10. Сборочный чертеж 1.134.1-11.1-00.11.000 Блок арматурный АБ11 1.134.1-11.1-00.12.000 Блок арматурный АБ12 1.134.1-11.1-00.11.000 СБ Блок арматурный АБ11. Сборочный чертеж 1.134.1-11.1-00.12.000 СБ Блок арматурный АБ12. Сборочный чертеж 1.134.1-11.1-00.13.000 Блок арматурный АБ13 1.134.1-11.1-00.13.000 СБ Блок арматурный АБ13. Сборочный чертеж 1.134.1-11.1-00.14.000 Блок арматурный АБ14 1.134.1-11.1-00.14.000 СБ Блок арматурный АБ14. Сборочный чертеж 1.134.1-11.1-00.15.000 Блок арматурный АБ15 1.134.1-11.1-00.16.000 Блок арматурный АБ16 1.134.1-11.1-00.15.000 СБ Блок арматурный АБ15. Сборочный чертеж 1.134.1-11.1-00.16.000 СБ Блок арматурный АБ16. Сборочный чертеж 1.134.1-11.1-00.17.000 Блок арматурный АБ17 1.134.1-11.1-00.17.000 СБ Блок арматурный АБ17. Сборочный чертеж 1.134.1-11.1-00.18.000 Блок арматурный АБ18 1.134.1-11.1-00.18.000 СБ Блок арматурный АБ18. Сборочный чертеж 1.134.1-11.1-00.19.000 Блок арматурный АБ19 1.134.1-11.1-00.19.000 СБ Блок арматурный АБ19. Сборочный чертеж 1.134.1-11.1-00.20.000 Блок арматурный АБ20 1.134.1-11.1-00.20.000 СБ Блок арматурный АБ20. Сборочный чертеж 1.134.1-11.1-00.21.000 Блок арматурный АБ21 1.134.1-11.1-00.21.000 СБ Блок арматурный АБ21. Сборочный чертеж 1.134.1-11.1-00.22.000 Блок арматурный АБ22 1.134.1-11.1-00.22.000 СБ Блок арматурный АБ22. Сборочный чертеж 1.134.1-11.1-00.23.000 Блок арматурный АБ23 1.134.1-11.1-00.23.000 СБ Блок арматурный АБ23. Сборочный чертеж 1.134.1-11.1-00.24.000 Блок арматурный АБ24 1.134.1-11.1-00.25.000 Блок арматурный АБ25 1.134.1-11.1-00.24.000 СБ Блок арматурный АБ24. Сборочный чертеж 1.134.1-11.1-00.25.000 СБ Блок арматурный АБ25. Сборочный чертеж 1.134.1-11.1-00.26.000 Блок арматурный АБ26 1.134.1-11.1-00.27.000 Блок арматурный АБ27 1.134.1-11.1-00.26.000 СБ Блок арматурный АБ26. Сборочный чертеж 1.134.1-11.1-00.27.000 СБ Блок арматурный АБ27. Сборочный чертеж 1.134.1-11.1-00.28.000 Блок арматурный АБ28 1.134.1-11.1-00.29.000 Блок арматурный АБ29 1.134.1-11.1-00.28.000 СБ Блок арматурный АБ28. Сборочный чертеж 1.134.1-11.1-00.29.000 СБ Блок арматурный АБ29. Сборочный чертеж 1.134.1-11.1-00.30.000 Блок арматурный АБ30 1.134.1-11.1-00.31.000 Блок арматурный АБ31 1.134.1-11.1-00.32.000 Блок арматурный АБ32 1.134.1-11.1-00.00.001 Петля строповочная П1, П2, П3 1.134.1-11.1-00.00.002 Петля строповочная П4 1.134.1-11.1-00.00.003 Петля строповочная П5 1.134.1-11.1-00.00.010 Каркас КР1/ КР7 1.134.1-11.1-00.00.010 СБ Каркас КР1/ КР7. Сборочный чертеж 1.134.1-11.1-00.00.020 Каркас КР10/ КР23 1.134.1-11.1-00.00.020 СБ Каркас КР10/ КР23. Сборочный чертеж 1.134.1-11.1-00.00.030 Каркас КР25, КР26 1.134.1-11.1-00.00.040 Каркас КР30/ КР34 1.134.1-11.1-00.00.040 СБ Каркас КР30/ КР34. Сборочный чертеж 1.134.1-11.1-00.00.050 Каркас КР40 1.134.1-11.1-00.00.060 Каркас КР41 1.134.1-11.1-00.00.070 Каркас КР42 1.134.1-11.1-00.00.080 Каркас КР43, 44 1.134.1-11.1-00.00.090 Каркас КР50, 51 1.134.1-11.1-00.00.110 Каркас КР52 1.134.1-11.1-00.00.120 Сетка С1, С1л 1.134.1-11.1-00.00.130 Сетка С2 1.134.1-11.1-00.00.140 Сетка С5/ С7 1.134.1-11.1-00.00.150 Сетка С8, С9 1.134.1-11.1-00.00.160 Изделие закладное М-1 1.134.1-11.1-00.00.170 Изделие закладное М-2 1.134.1-11.1-00.00.180 Изделие закладное М-3 1.134.1-11.1-00.00.190 Изделие закладное М-4 1.134.1-11.1-00.00.000 РС Ведомость расхода стали 1.134.1-11.1-00.00.000 ТУ Технические условия |
| Разработан: | ЦНИИЭП жилища |
| Утверждён: | 19.06.1989 Госгражданстрой (Gosgrazhdanstroy 113) |
| Издан: | ЦИТП Госстроя СССР (CITP, Gosstroy (USSR) 1989 г. ) |
| Нормативные ссылки: |
|







































































