Скачать Серия 3.503-14 Выпуск 5. Пролетные строения без диафрагм длиной 12, 15 и 18 м, армированные арматурой классов А-II и А-IIIДата актуализации: 01.01.2021
|
| Обозначение: | Серия 3.503-14 |
| Обозначение англ: | Series 3.503-14 |
| Статус: | заменен |
| Название рус.: | Выпуск 5. Пролетные строения без диафрагм длиной 12, 15 и 18 м, армированные арматурой классов А-II и А-III |
| Дата добавления в базу: | 01.09.2013 |
| Дата актуализации: | 01.01.2021 |
| Дата введения: | 15.12.1974 |
| Дата окончания срока действия: | 01.09.1987 |
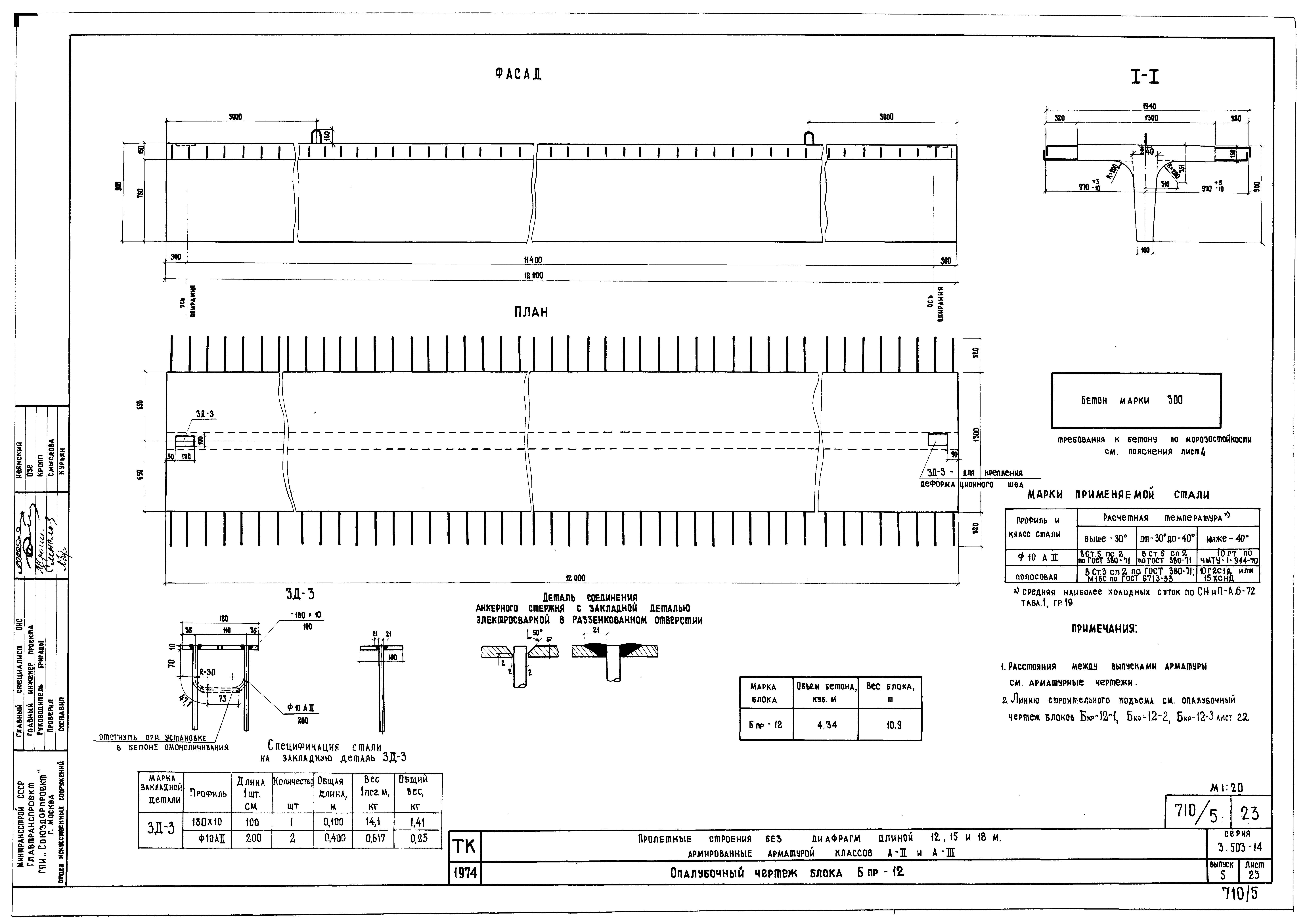
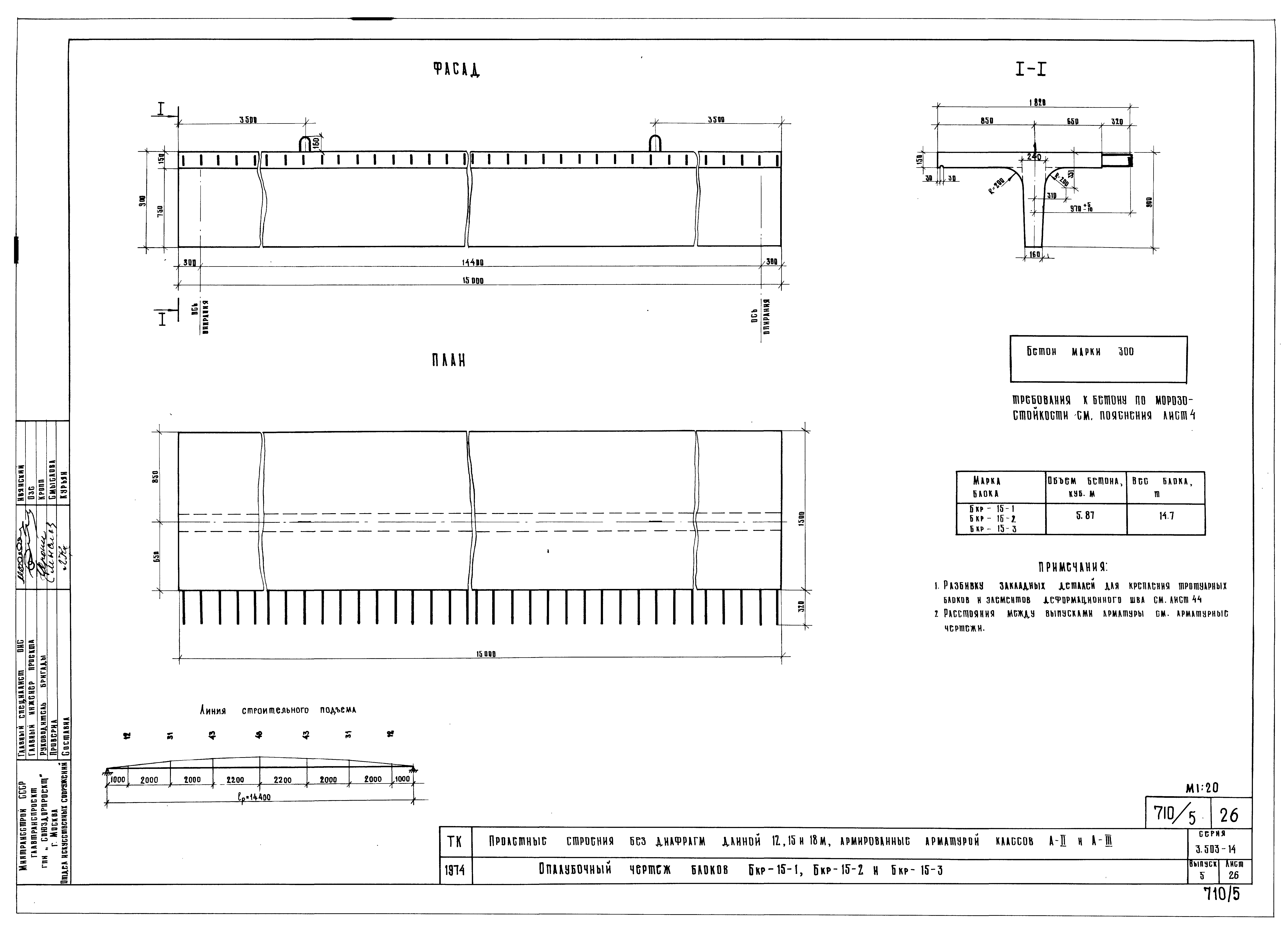
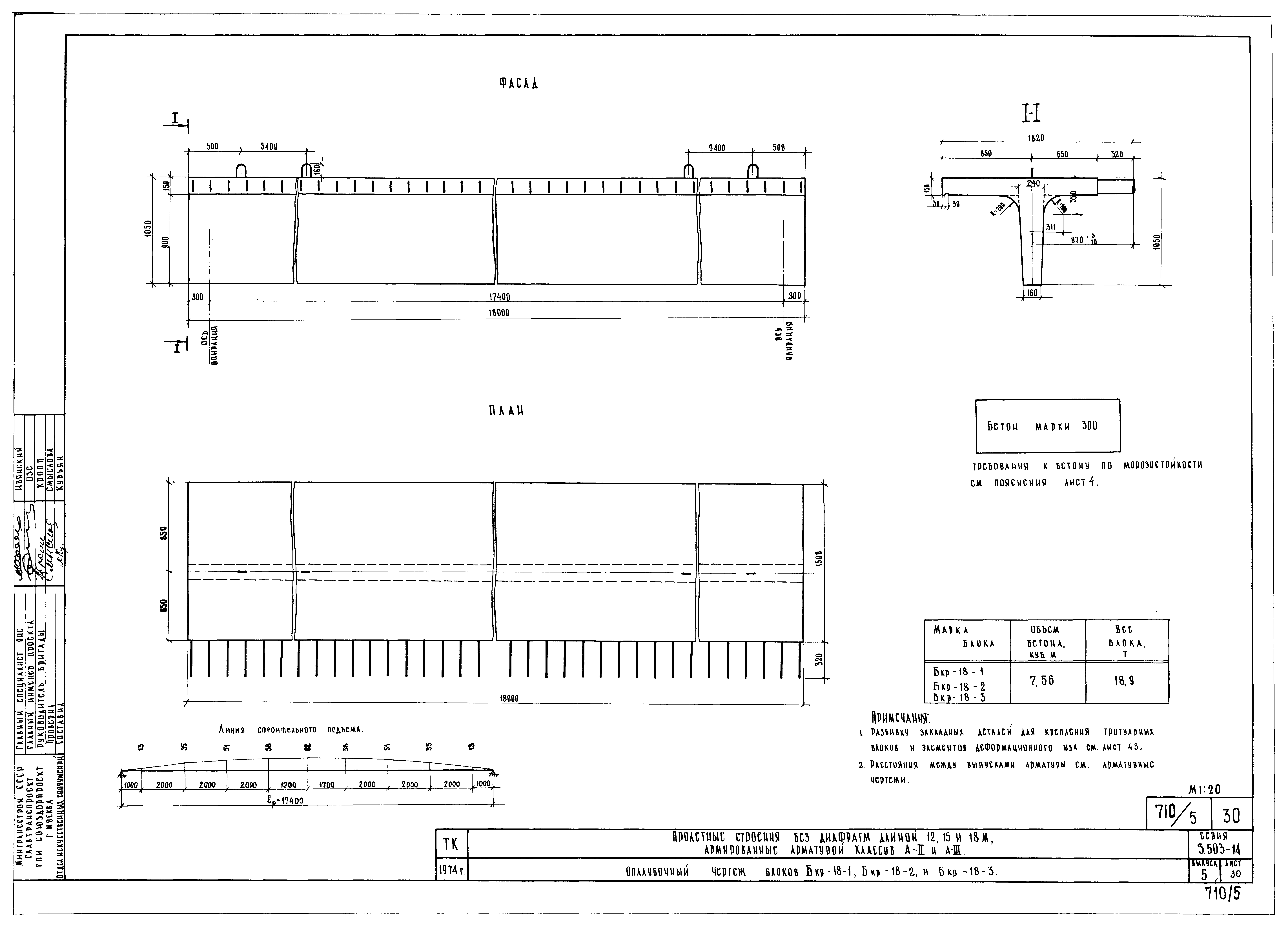
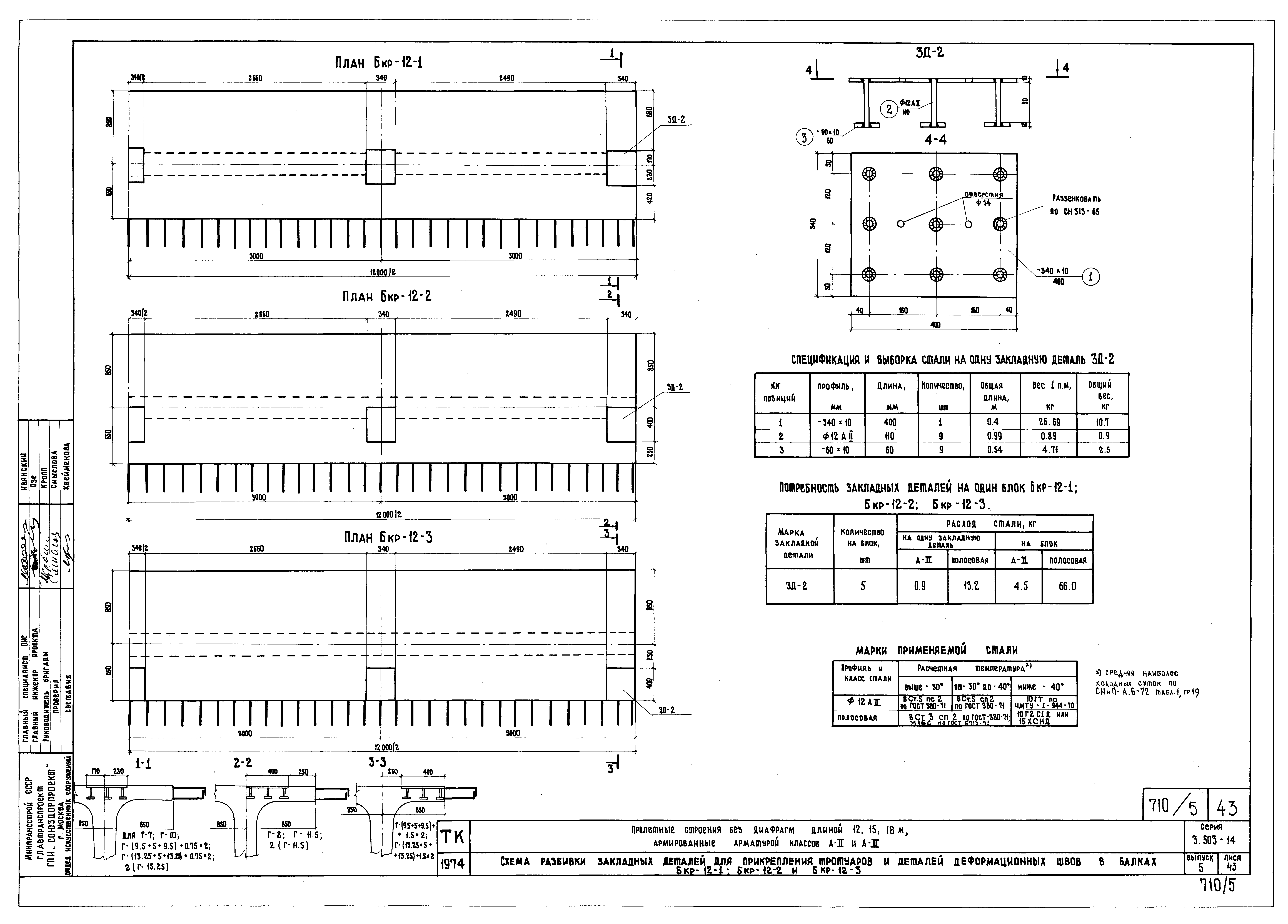
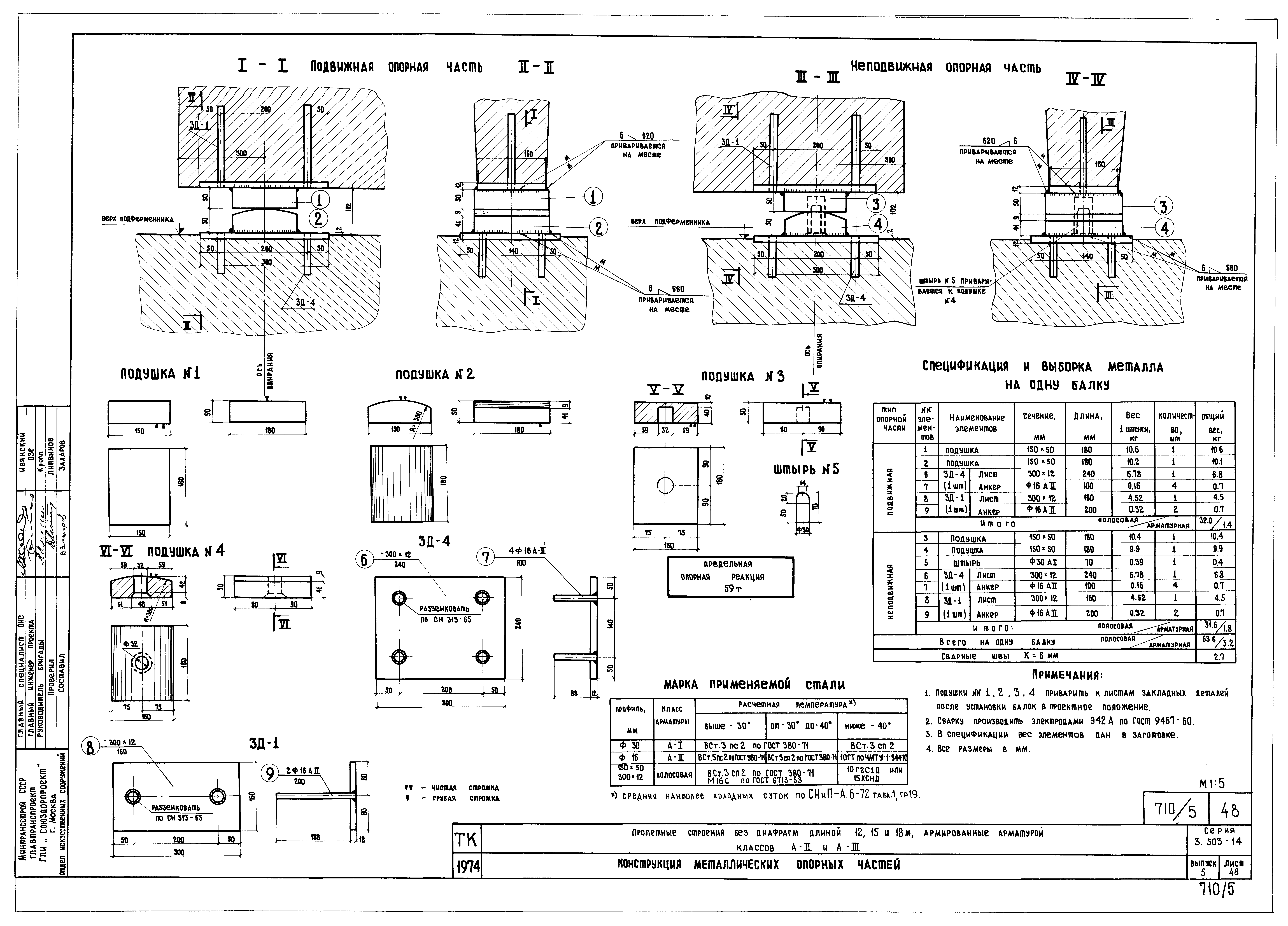
| Оглавление: | Пояснения Расчетные листы Сводные таблицы расхода материалов Общий вид пролетного строения длиной 12 м и таблица монтажных элементов Общий вид пролетного строения длиной 15 м и таблица монтажных элементов Общий вид пролетного строения длиной 18 м и таблица монтажных элементов Поперечные разрезы пролетных строений. Вариант с железобетонным ограждением Поперечные разрезы пролетных строений. Вариант с металлическим барьерным ограждением на накладных блоках Опалубочный чертеж блоков Бкр-12-1, Бкр-12-2, Бкр-12-3 Опалубочный чертеж блока Бпр-12 Армирование ребра крайней и промежуточной балок длиной 12 м сварными арматурными каркасами из стали А-II Армирование ребра крайней и промежуточной балок длиной 12 м сварными арматурными каркасами из стали А-III Опалубочный чертеж блоков Бкр-15-1, Бкр-15-2, Бкр-15-3 Опалубочный чертеж блока Бпр-15 Армирование ребра крайней и промежуточной балок длиной 15 м сварными арматурными каркасами из стали А-II Армирование ребра крайней и промежуточной балок длиной 15 м сварными арматурными каркасами из стали А-III Опалубочный чертеж блоков Бкр-18-1, Бкр-18-2, Бкр-18-3 Опалубочный чертеж блока Бпр-18 Армирование ребра крайней и промежуточной балок длиной 18 м сварными арматурными каркасами из стали А-II Армирование ребра крайней и промежуточной балок длиной 18 м сварными арматурными каркасами из стали А-III Армирование ребер крайних и промежуточных балок длиной 12, 15 и 18 м вязаными пространственными каркасами Спецификация и выборка арматуры на ребра балок длиной 12, 15 и 18 м, армированных вязаными пространственными каркасами из арматуры класса А-II Спецификация и выборка арматуры на ребра балок длиной 12, 15 и 18 м, армированных вязаными пространственными каркасами из арматуры класса А-III Армирование плиты крайних балок Бкр-12-1 (2, 3), Бкр-15-1 (2, 3), Бкр-18-1 (2, 3) арматурой класса А-II Армирование плиты крайних балок Бкр-12-1 (2, 3), Бкр-15-1 (2, 3), Бкр-18-1 (2, 3) арматурой класса А-III Армирование плиты промежуточных балок Бпр-12-1 (2, 3), Бпр-15-1 (2, 3), Бпр-18-1 (2, 3) арматурой класса А-II Армирование плиты промежуточных балок Бпр-12-1 (2, 3), Бпр-15-1 (2, 3), Бпр-18-1 (2, 3) арматурой класса А-III Схема расположения арматурных сеток и выборка арматуры плиты балок длиной 12, 15 и 18 м, армированных арматурой класса А-II Схема расположения арматурных сеток и выборка арматуры плиты балок длиной 12, 15 и 18 м, армированных арматурой класса А-III Схема разбивки закладных деталей для прикрепления тротуаров и деталей деформационных швов в балках Бкр-12-1, Бкр-12-2, Бкр-12-3 Схема разбивки закладных деталей для прикрепления тротуаров и деталей деформационных швов в балках Бкр-15-1, Бкр-15-2, Бкр-15-3 Схема разбивки закладных деталей для прикрепления тротуаров и деталей деформационных швов в балках Бкр-18-1, Бкр-18-2, Бкр-18-3 Детали сварных арматурных каркасов Поперечное соединение балок пролетных строений Конструкция металлических опорных частей Конструкция резиновой опорной части и детали опирания |
| Разработан: | Союздорпроект Минтрансстроя |
| Утверждён: | 13.12.1974 Министерство автомобильного транспорта и шоссейных дорог РСФСР (30) |
| Заменяет собой: | |
| Чем заменён: |

















































