Скачать Серия 3.503-14 Выпуск 1. Пролетные строения без диафрагм из цельноперевозимых балок, длиной 12, 15 и 18 м, армированных каркасной арматурой класса А-IIIДата актуализации: 01.01.2021
|
| Обозначение: | Серия 3.503-14 |
| Обозначение англ: | Series 3.503-14 |
| Статус: | заменен |
| Название рус.: | Выпуск 1. Пролетные строения без диафрагм из цельноперевозимых балок, длиной 12, 15 и 18 м, армированных каркасной арматурой класса А-III |
| Дата добавления в базу: | 01.09.2013 |
| Дата актуализации: | 01.01.2021 |
| Дата введения: | 01.01.1972 |
| Дата окончания срока действия: | 01.06.1975 |
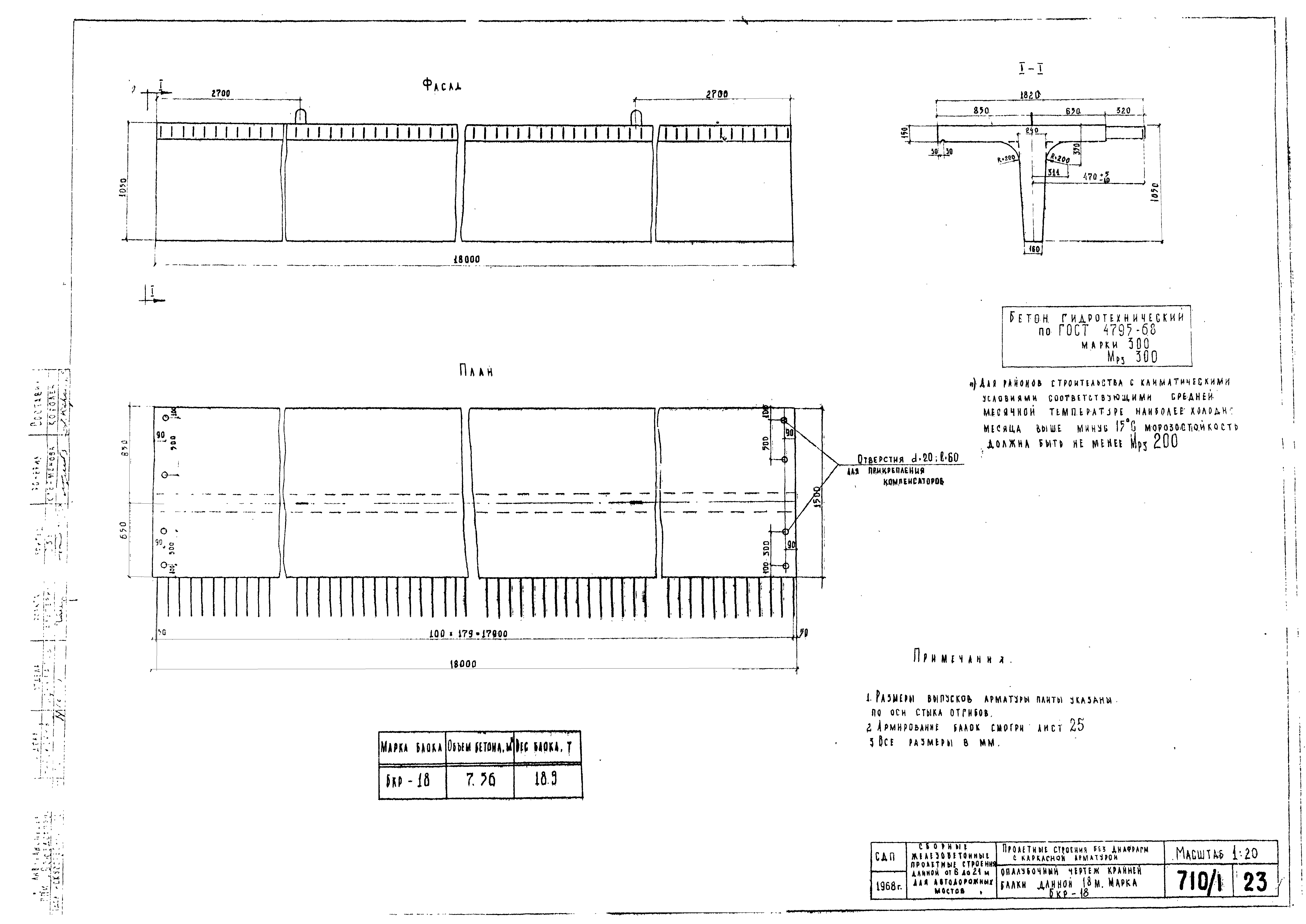
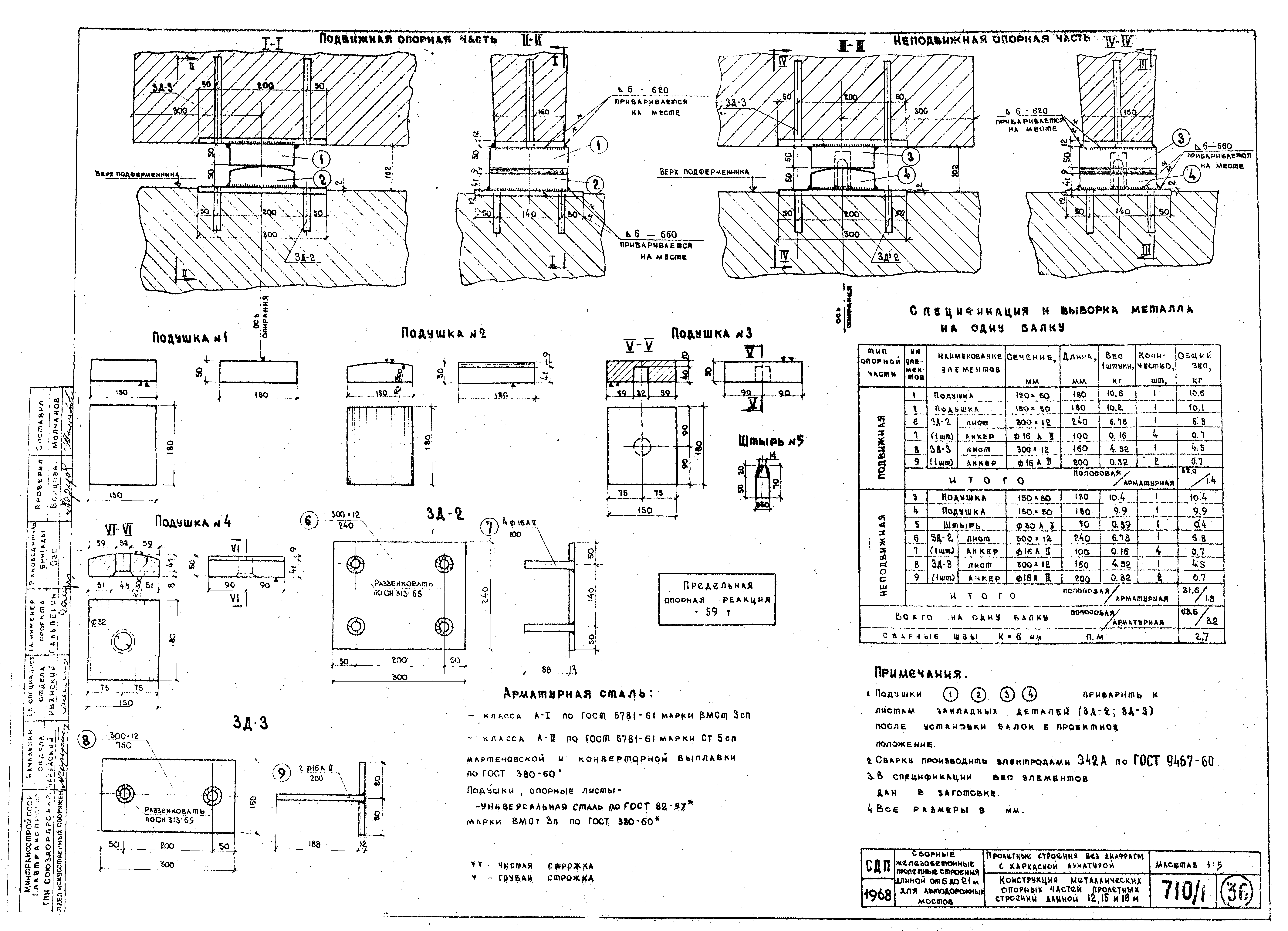
| Оглавление: | Пояснения Расчетный лист Сводные таблицы расхода материалов на пролетные строения Компоновка габаритов для пролетов 12, 15 и 18 м Вариант с пониженными тротуарами. Компоновка габаритов для пролетов 12, 15 и 18 м Общий вид пролетного строения длиной 12 м. Фасад и таблица показателей Опалубочный чертеж крайней балки длиной 12 м. Марка Бкр-12 Опалубочный чертеж промежуточной балки длиной 12 м. Марка Бпр-12 Армирование ребра крайней и промежуточной балок длиной 12 м. Бкр-12 и Бпр-12 Схема разбивки закладных деталей для прикрепления тротуаров в балках Бкр-12 Общий вид пролетного строения длиной 15 м. Фасад и таблица показателей Опалубочный чертеж крайней балки длиной 15 м. Марка Бкр-15 Опалубочный чертеж промежуточной балки длиной 15 м. Марка Бпр-15 Армирование ребра крайней и промежуточной балок длиной 15 м. Бкр-15 и Бпр-15 Схема разбивки закладных деталей для прикрепления тротуаров в балках Бкр-15 Общий вид пролетного строения длиной 18 м. Фасад и таблица показателей Опалубочный чертеж крайней балки длиной 18 м. Марка Бкр-18 Опалубочный чертеж промежуточной балки длиной 18 м. Марка Бпр-18 Армирование ребра крайней и промежуточной балок длиной 18 м. Бкр-18 и Бпр-18 Схема разбивки закладных деталей для прикрепления тротуаров в балках Бкр-18 Детали приварки стержней в арматурных каркасах Армирование плит крайних балок Бкр-12, Бкр-15, Бкр-18 Армирование плит промежуточных балок Бпр-12, Бпр-15, Бпр-18 Схема расположения арматурных сеток и выборка арматуры плиты балок длиной 12, 15 и 18 м Поперечное соединение балок пролетных строений Схема разбивки тротуарных блоков, перил и подтротуарных балок для пролетов 12, 15 и 18 м Детали крепления тротуарных блоков, перил и подтротуарных балок Схема разбивки тротуарных блоков и перил при варианте проезжей части с пониженными тротуарами Детали крепления тротуарных блоков при пониженных тротуарах Конструкция металлических опорных частей пролетных строений длиной 12, 15 и 18 м |
| Разработан: | Союздорпроект Минтрансстроя |
| Утверждён: | 19.06.1969 Министерство автомобильного транспорта и шоссейных дорог РСФСР (84) |


































