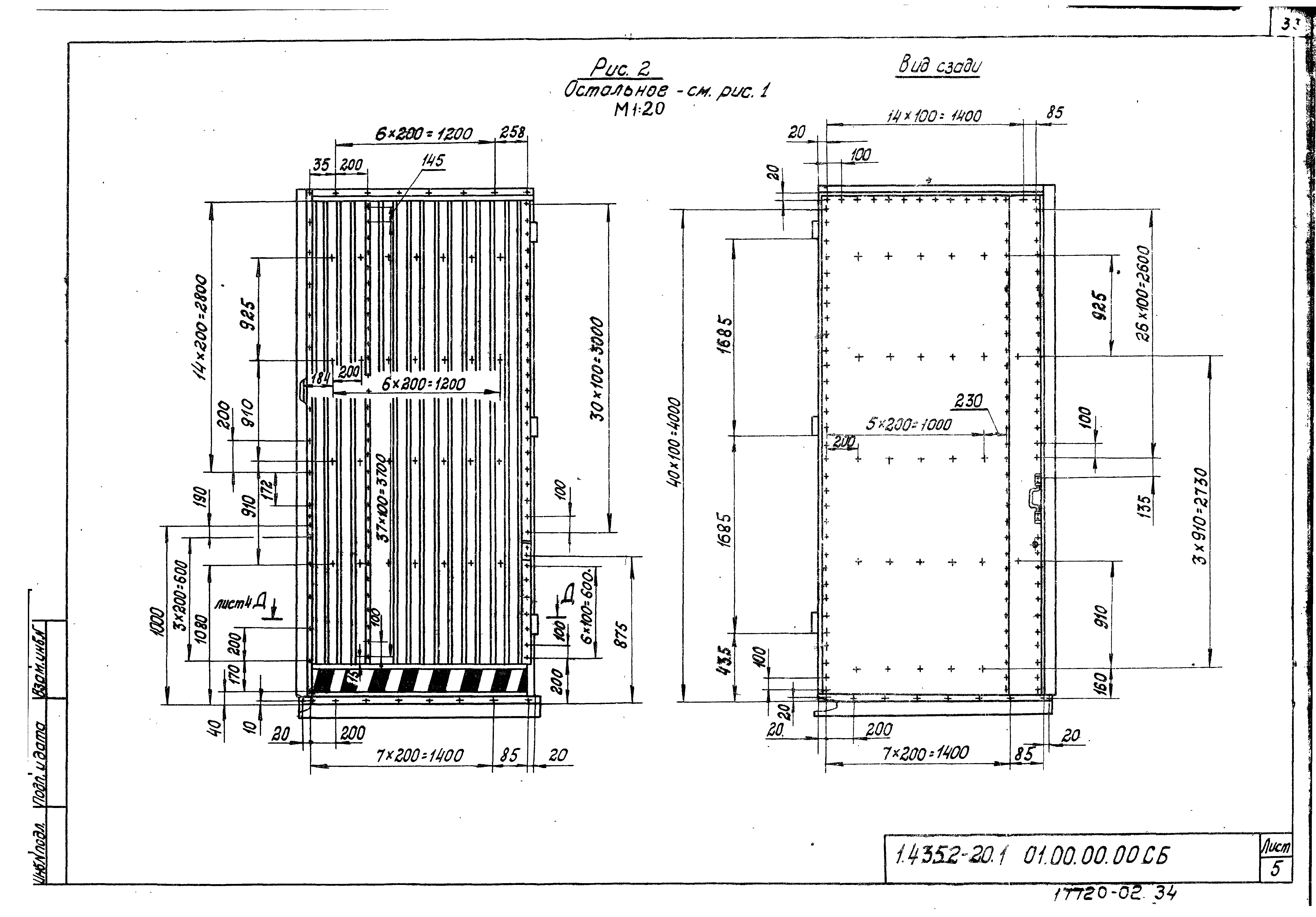
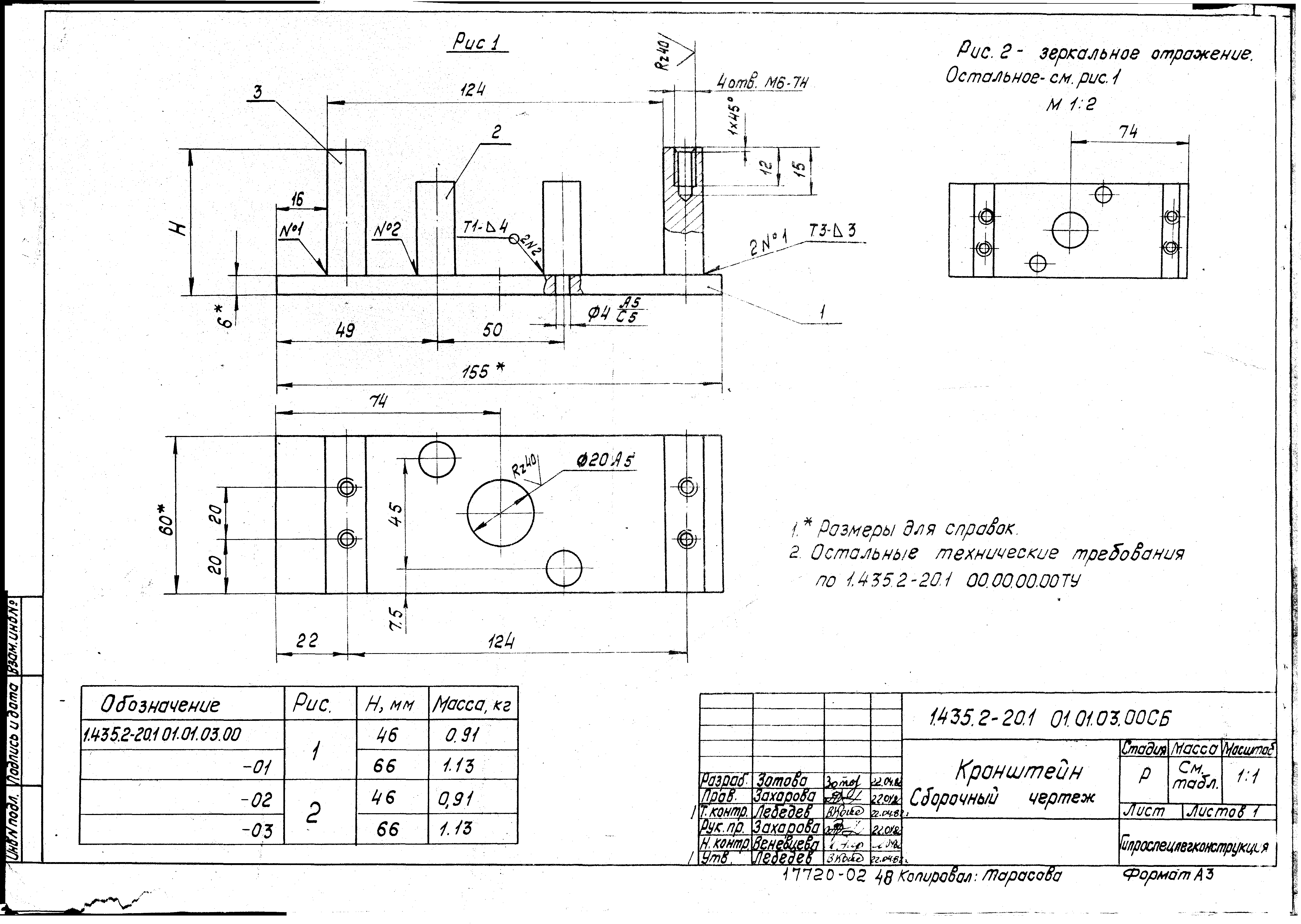
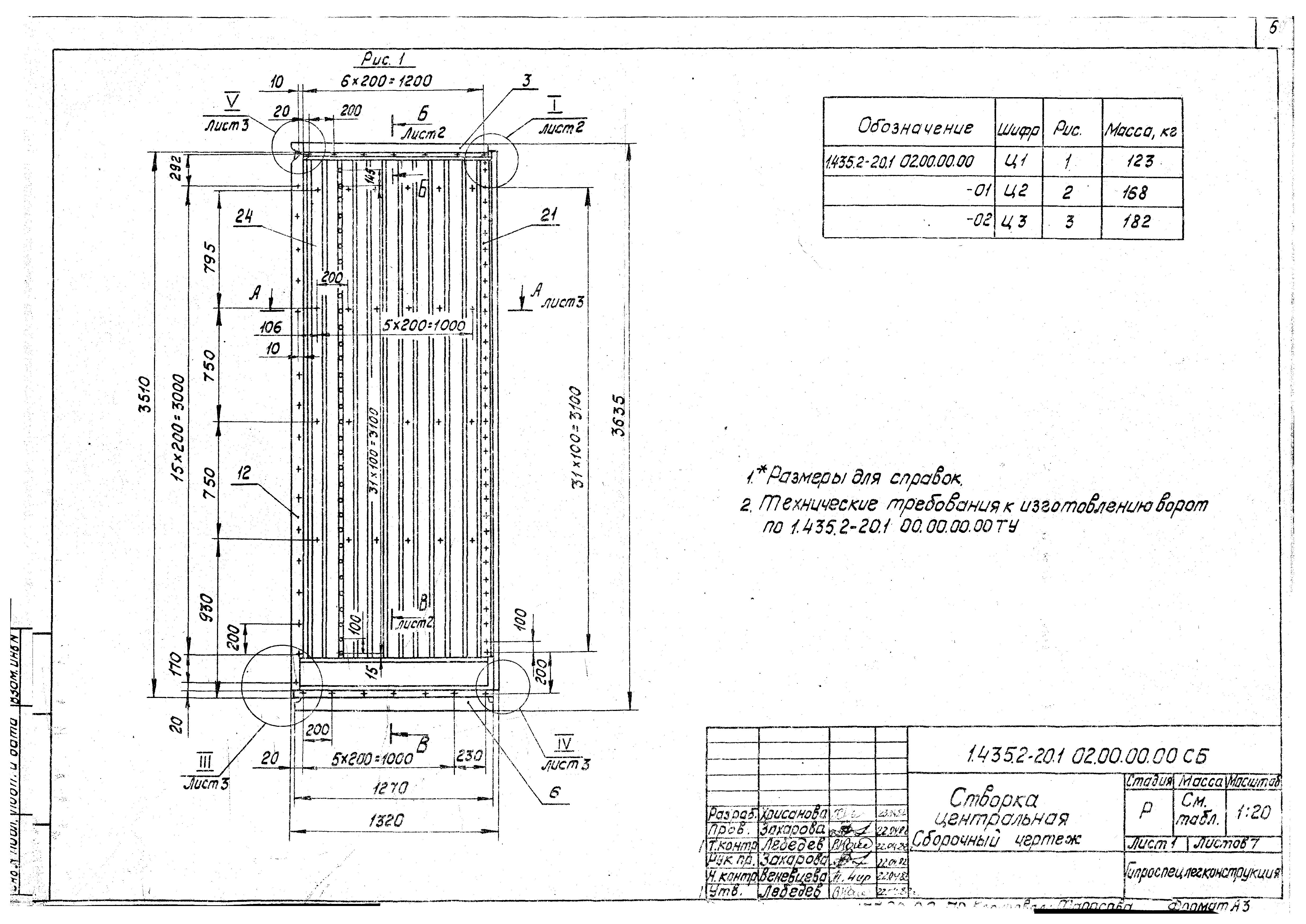
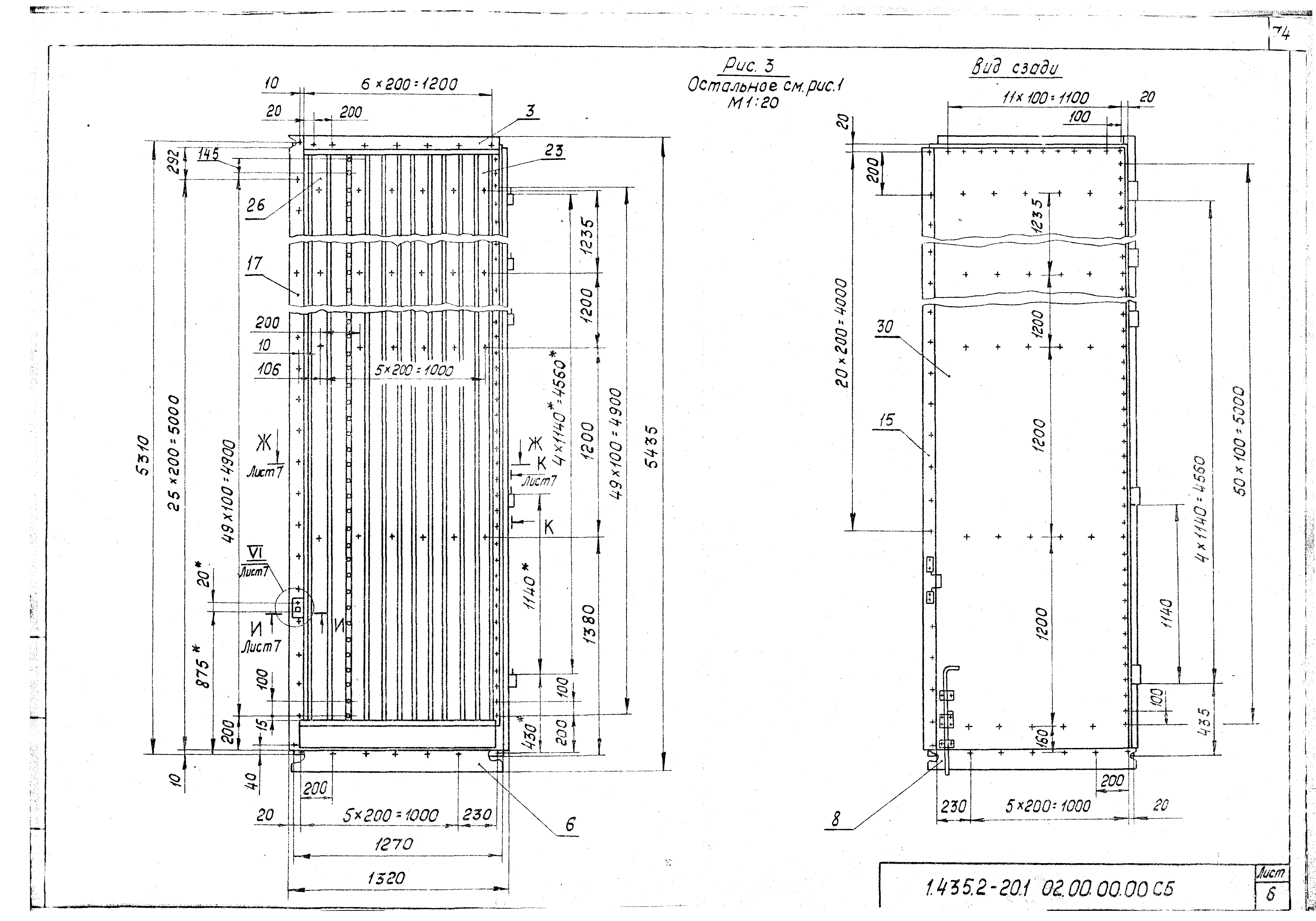
Скачать Серия 1.435.2-20 Выпуск 1. Часть 1. Рабочие чертежиДата актуализации: 01.01.2021
|
| Обозначение: | Серия 1.435.2-20 |
| Обозначение англ: | Series 1.435.2-20 |
| Статус: | не действует |
| Название рус.: | Выпуск 1. Часть 1. Рабочие чертежи |
| Дата добавления в базу: | 01.09.2013 |
| Дата актуализации: | 01.01.2021 |
| Дата введения: | 01.01.1983 |
| Дата окончания срока действия: | 01.12.1988 |
| Разработан: | Гипроспецлегконструкция |
| Утверждён: | 30.09.1982 Госстрой СССР (Государственный комитет Совета Министров СССР по делам строительства) (USSR Gosstroy 223) |
| Издан: | ЦИТП Госстроя СССР (CITP, Gosstroy (USSR) 1983 г. ) |
| Чем заменён: |


























































































































