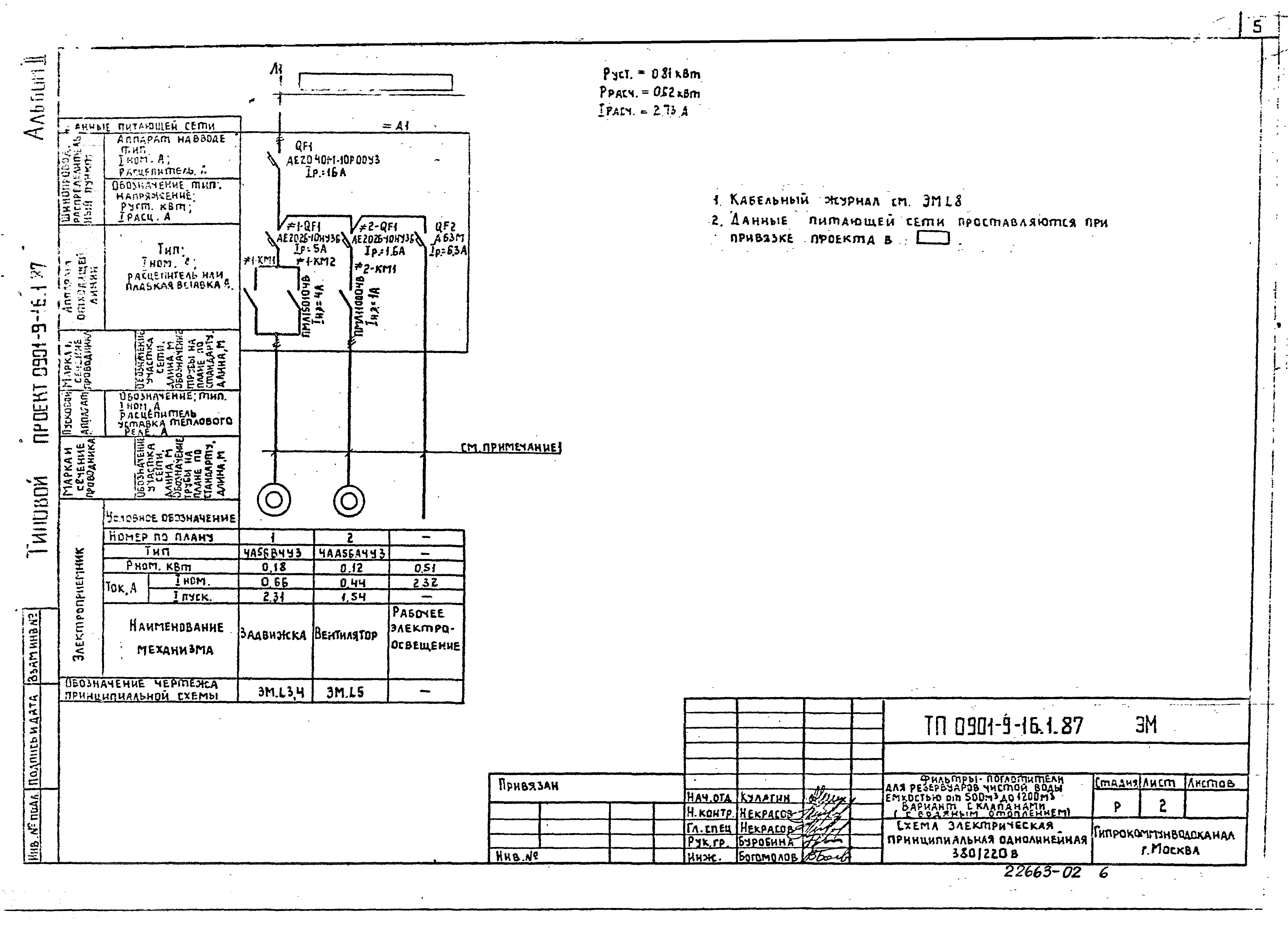
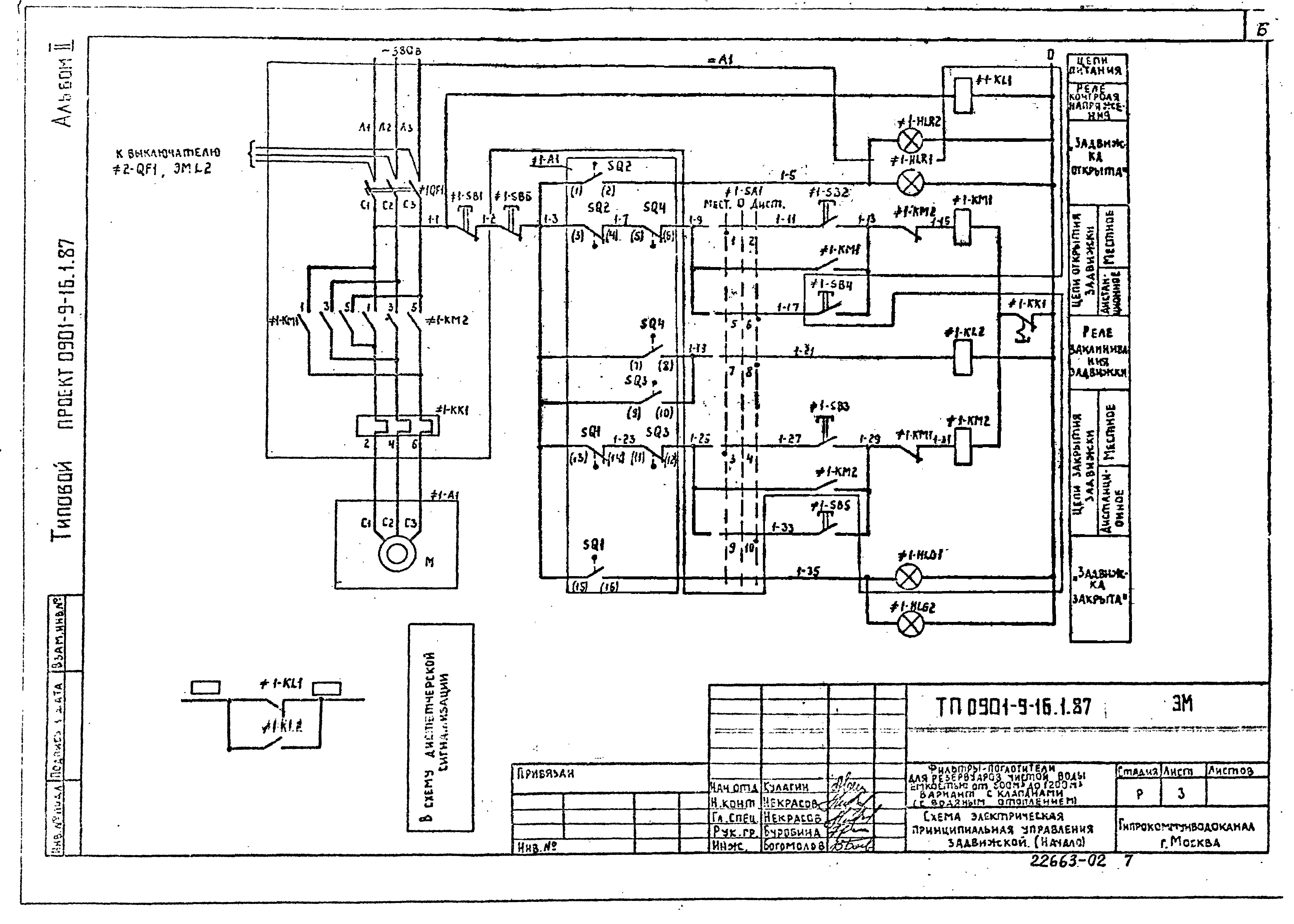
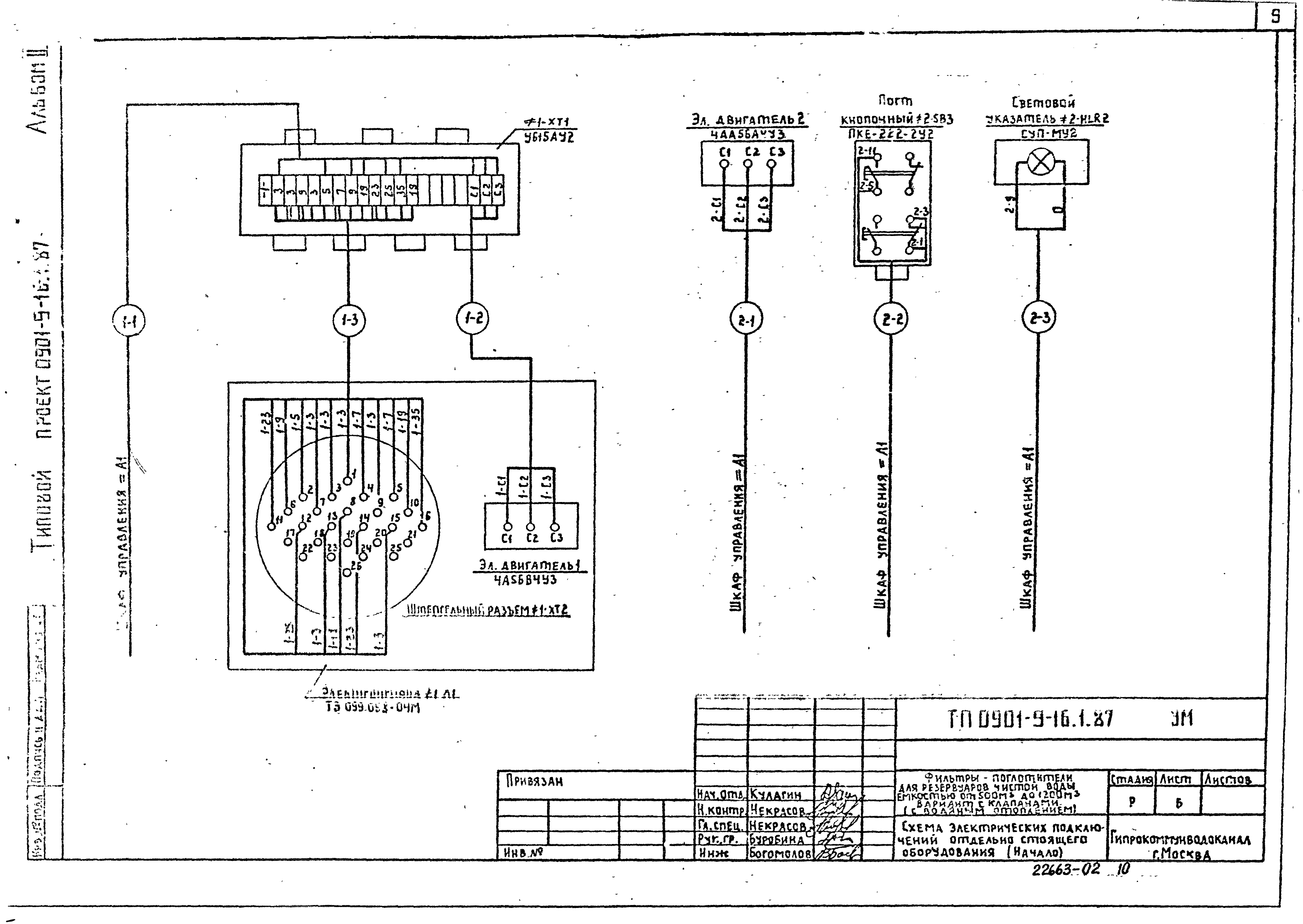
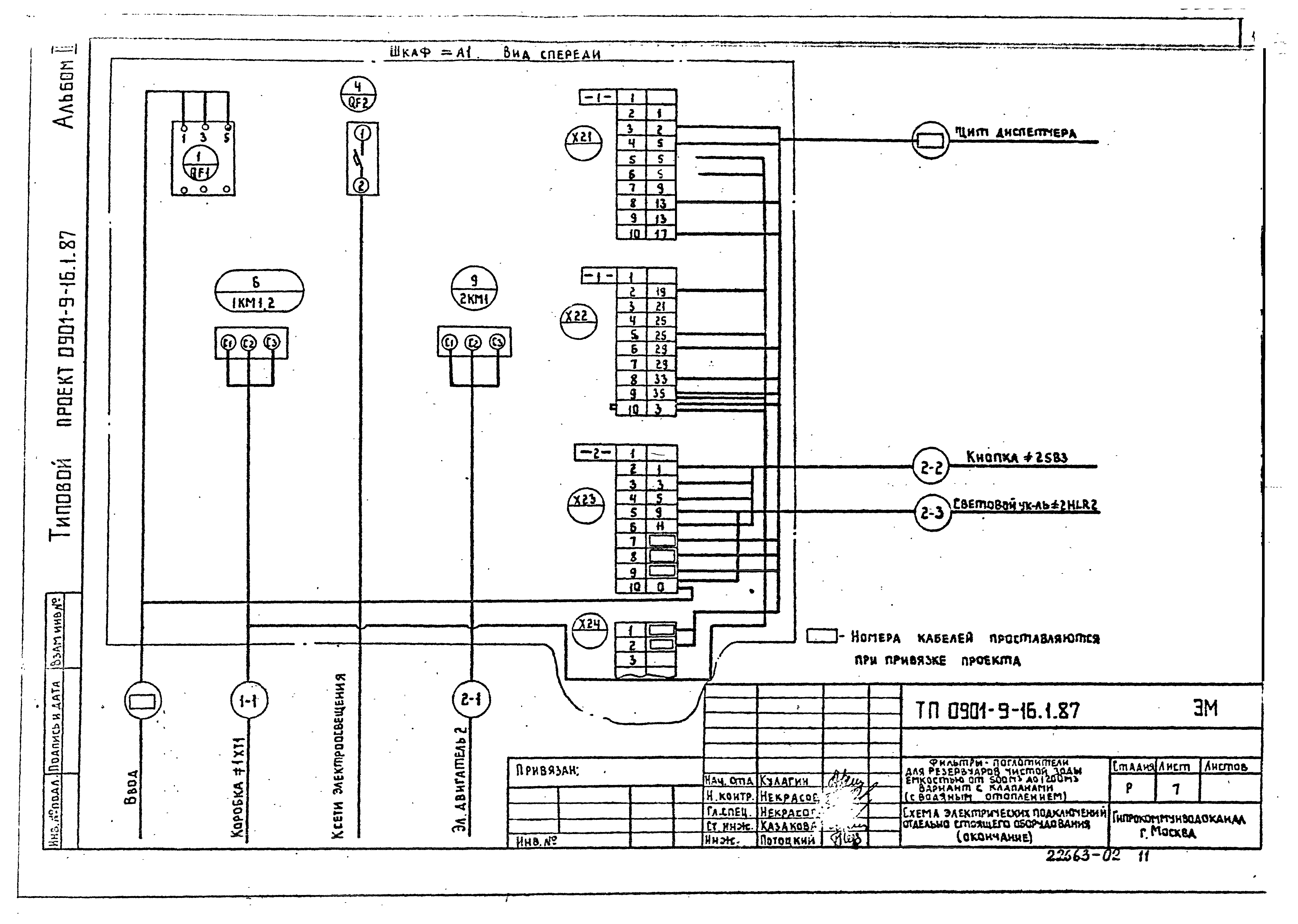
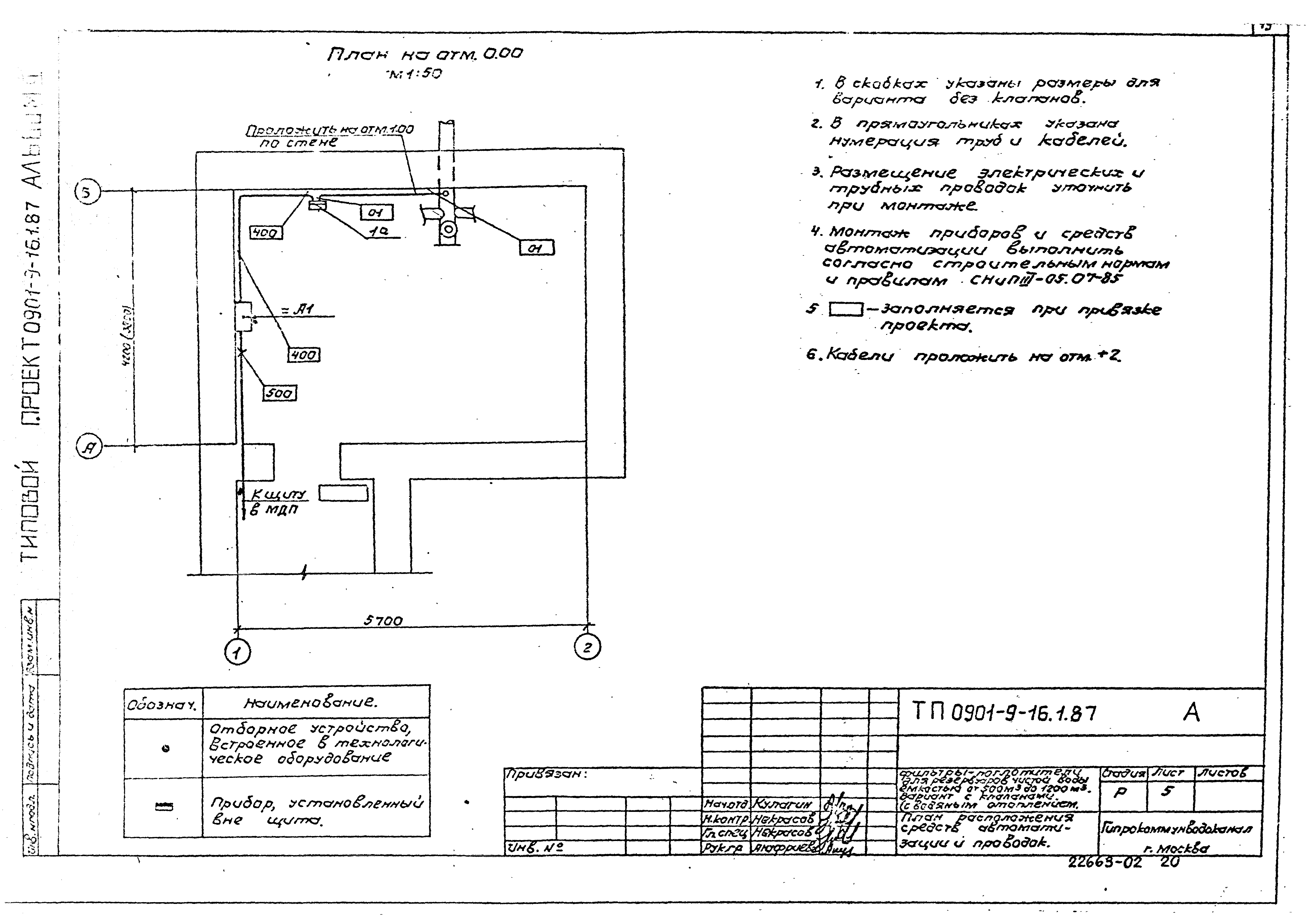
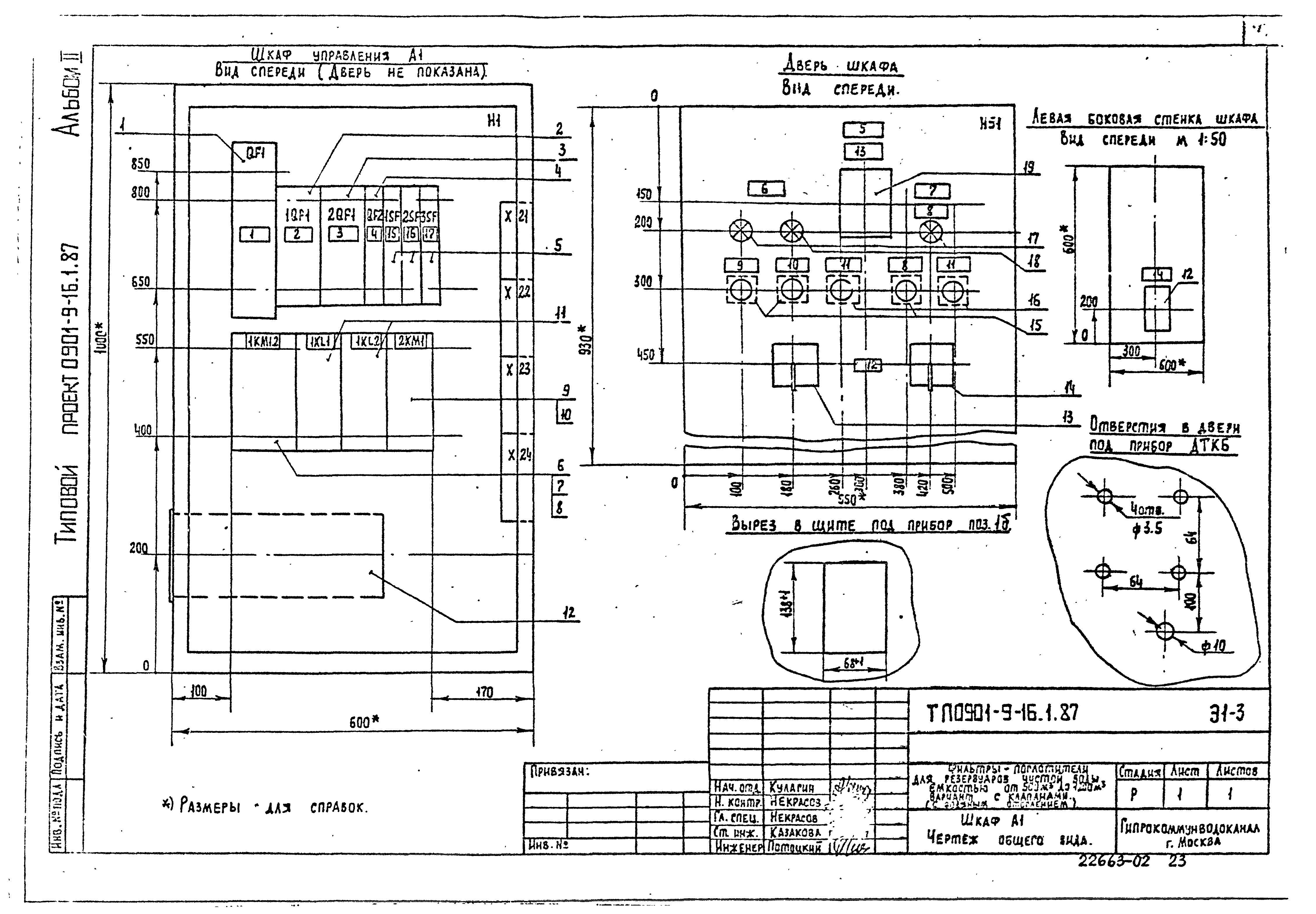
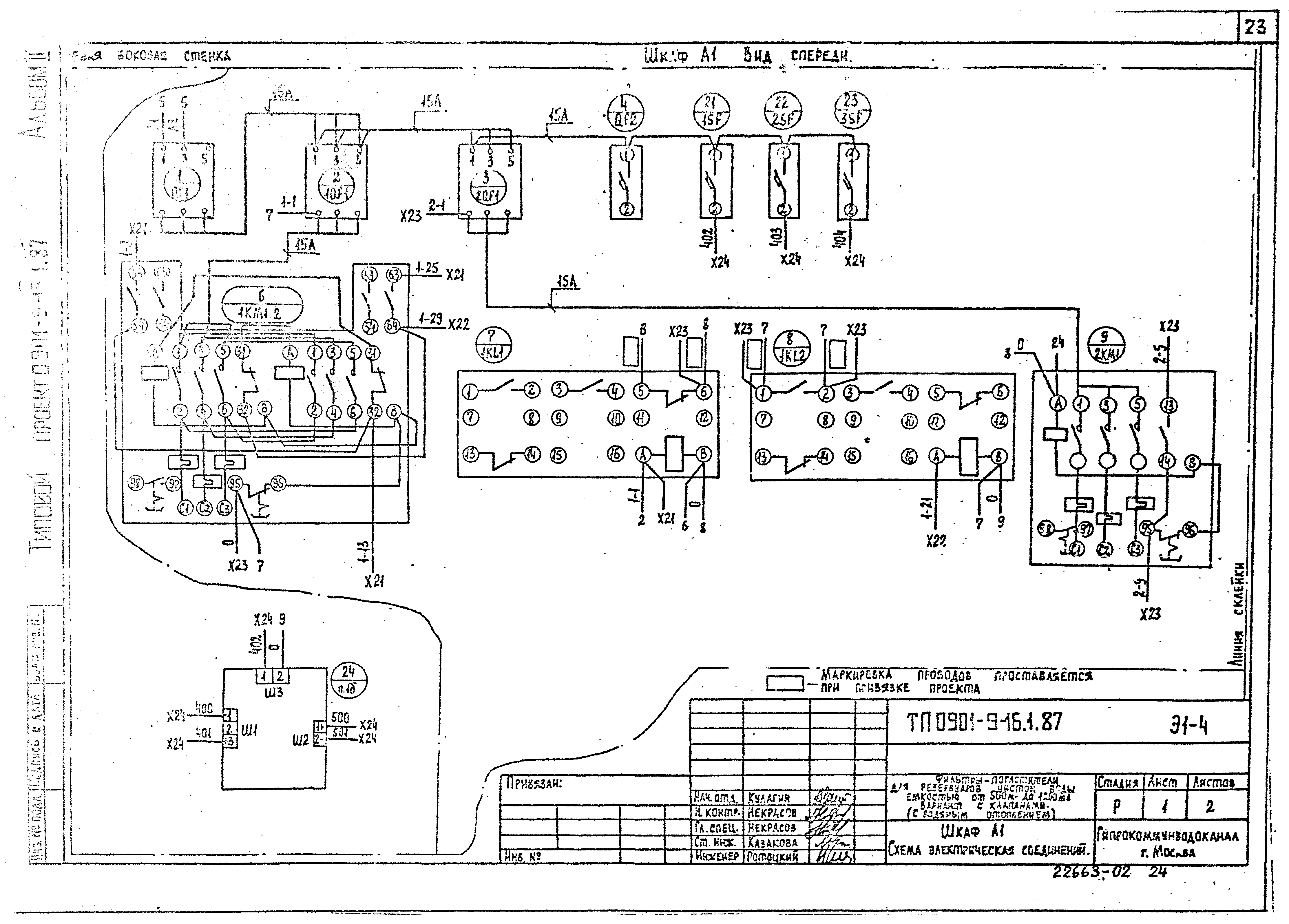
Скачать Типовой проект 0901-9-16.1.87 Альбом II. Электротехническая часть. Технологический контроль. Вариант с водяным отоплениемДата актуализации: 01.01.2021
|
| Обозначение: | Типовой проект 0901-9-16.1.87 |
| Обозначение англ: | 0901-9-16.1.87 |
| Статус: | не определен законодательством |
| Название рус.: | Альбом II. Электротехническая часть. Технологический контроль. Вариант с водяным отоплением |
| Дата добавления в базу: | 01.09.2013 |
| Дата актуализации: | 01.01.2021 |
| Дата введения: | 16.10.1987 |
| Дата окончания срока действия: | 30.06.2003 |
| Разработан: | Гипрокоммунводоканал Минжилкомхоза РСФСР |
| Утверждён: | 16.10.1987 Минжилкомхоз РСФСР (Russian Federation Minzhilkomkhoz 12-ТД) |


























