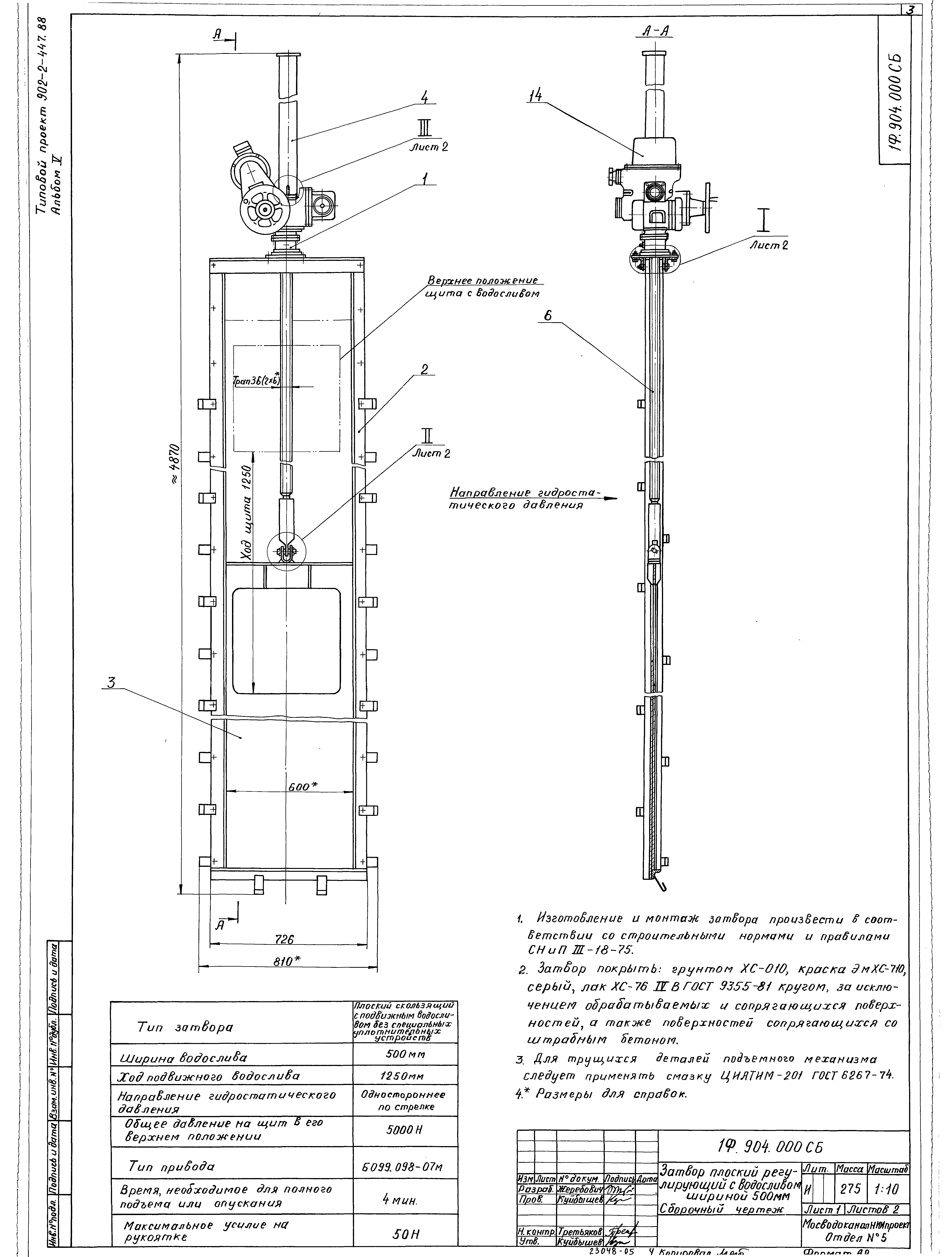
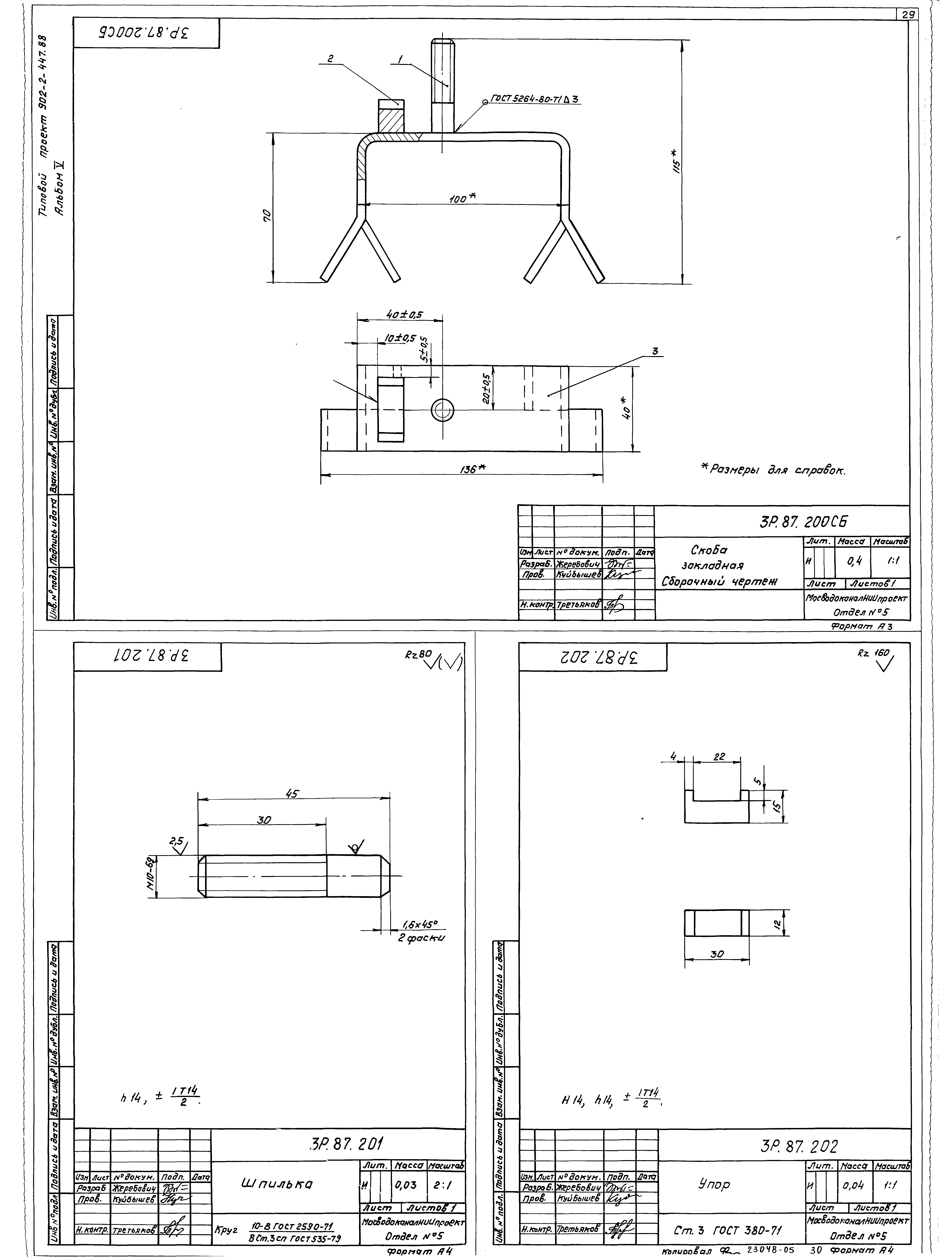
Скачать Типовой проект 902-2-447.88 Альбом V. Нестандартизированное оборудованиеДата актуализации: 01.01.2021
|
| Обозначение: | Типовой проект 902-2-447.88 |
| Обозначение англ: | 902-2-447.88 |
| Статус: | не определен законодательством |
| Название рус.: | Альбом V. Нестандартизированное оборудование |
| Дата добавления в базу: | 01.09.2013 |
| Дата актуализации: | 01.01.2021 |
| Дата введения: | 25.01.1988 |
| Дата окончания срока действия: | 30.06.2003 |
| Разработан: | МосводоканалНИИпроект |
| Утверждён: | 24.12.1987 Мосгорисполком (Mosgorispolkom 3) |





































