Скачать Положение о порядке допуска в эксплуатацию электрических и тепловых энергоустановок по городу МосквеДата актуализации: 01.01.2021 |
| Статус: | действует |
| Название рус.: | Положение о порядке допуска в эксплуатацию электрических и тепловых энергоустановок по городу Москве |
| Дата добавления в базу: | 01.09.2013 |
| Дата актуализации: | 01.01.2021 |
| Дата введения: | 05.08.2005 |
| Область применения: | Положение определяет порядок допуска в эксплуатацию и подключения электрических и тепловых энергоустановок потребителей электрической и тепловой энергии, оборудования и основных сооружений электростанций, электрических и тепловых сетей организаций независимо от их ведомственной принадлежности и форм собственности, а также индивидуальных предпринимателей и граждан, расположенных в городе Москве |
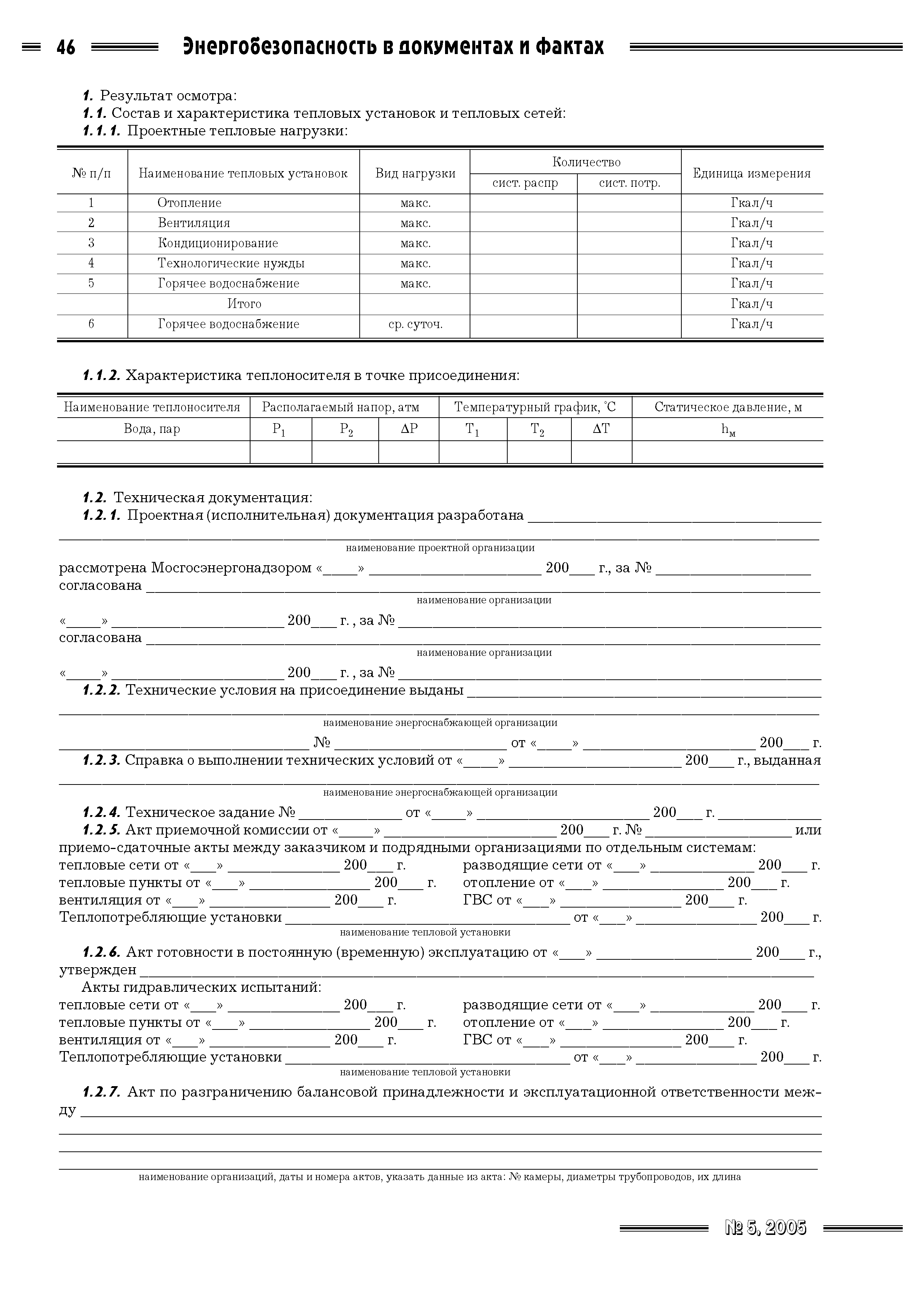
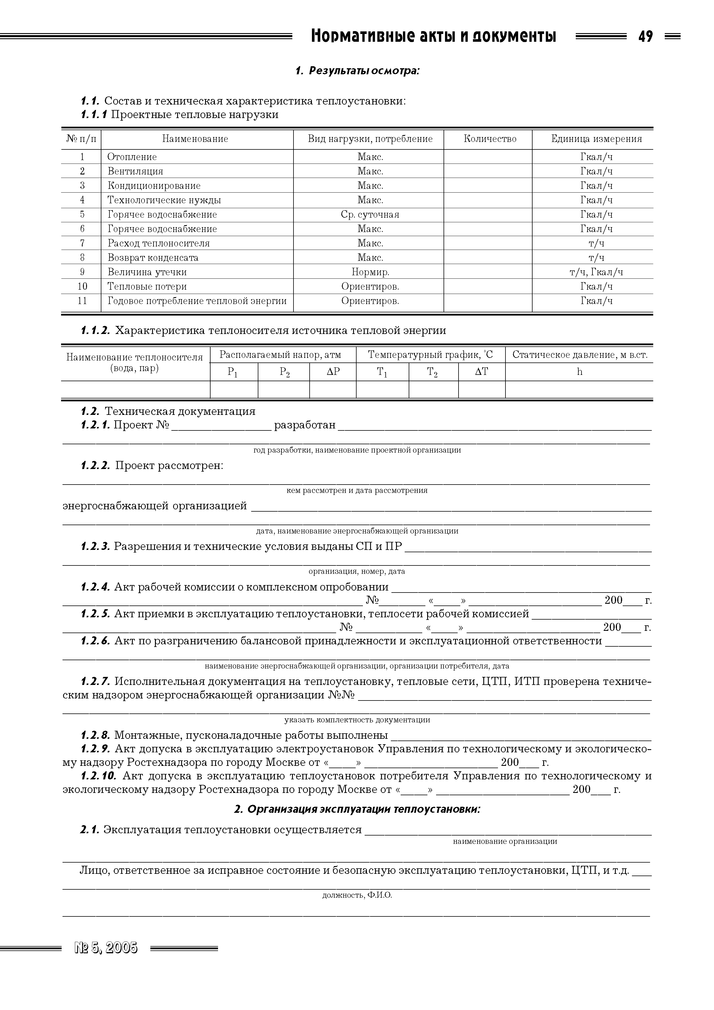
| Оглавление: | 1. Общая часть 2. Осмотр энергоустановок. Оформление акта-допуска в эксплуатацию энергоустановок 3. Включение энергоустановки в работу Приложение № 1 Форма акта допуска в эксплуатацию электроустановок потребителей Приложение № 2 Форма акта допуска в эксплуатацию тепловых установок и тепловых сетей потребителя Приложение № 3 Форма акта допуска в постоянную (временную) эксплуатацию теплоустановки, тепловой сети, ЦТП, ИТП энергоснабжающей организации Приложение № 4 Форма акта допуска в эксплуатацию котельной (котла) Приложение № 5 Форма акта-МЭС допуска в эксплуатацию электроустановки Приложение № 6 Форма заявления на проведение технического осмотра и осуществление допуска в эксплуатацию электроустановки, выполненной по проекту Приложение № 7 Форма заявления на проведение технического осмотра и осуществление допуска в эксплуатацию электроустановки, принятой от монтажной организации Приложение № 8 Перечень документов, представляемых в Управление технологического и экологического надзора Ростехнадзора по городу Москве в процессе допуска в эксплуатацию электрических установок энергоснабжающих организаций по городу Москве Приложение № 9 Перечень документов, представляемых в Управление по технологическому и экологическому надзору Ростехнадзора по городу Москве в процессе допуска в эксплуатацию тепловых энергоустановок и тепловых сетей потребителей Приложение № 10 Перечень документов, представляемых в Управление по технологическому и экологическому надзору Ростехнадзора по городу Москве заказчиком в процессе допуска в эксплуатацию тепловых установок, тепловых сетей, ЦТП и ИТП энергоснабжающих организаций Приложение № 11 Перечень документов, представляемых в Управление по технологическому и экологическому надзору Ростехнадзора по городу Москве заказчиком в процессе допуска в эксплуатацию котельных (котлов) |
| Утверждён: | 05.08.2005 Департамент топливно-энергетического хозяйства г. Москвы 05.08.2005 Управление по технологическому и экологическому надзору Ростехнадзора по г. Москве |
| Издан: | Журнал Энергобезопасность и энергосбережение (2005 г. (5)) |
| Нормативные ссылки: |
|



















