Скачать Типовые проектные решения 903-1-0230.86 Альбом 2. Нестандартизированное оборудованиеДата актуализации: 01.01.2021
|
| Обозначение: | Типовые проектные решения 903-1-0230.86 |
| Обозначение англ: | 903-1-0230.86 |
| Статус: | справочные материалы, мп, тпр |
| Название рус.: | Альбом 2. Нестандартизированное оборудование |
| Дата добавления в базу: | 01.09.2013 |
| Дата актуализации: | 01.01.2021 |
| Дата введения: | 01.03.1987 |
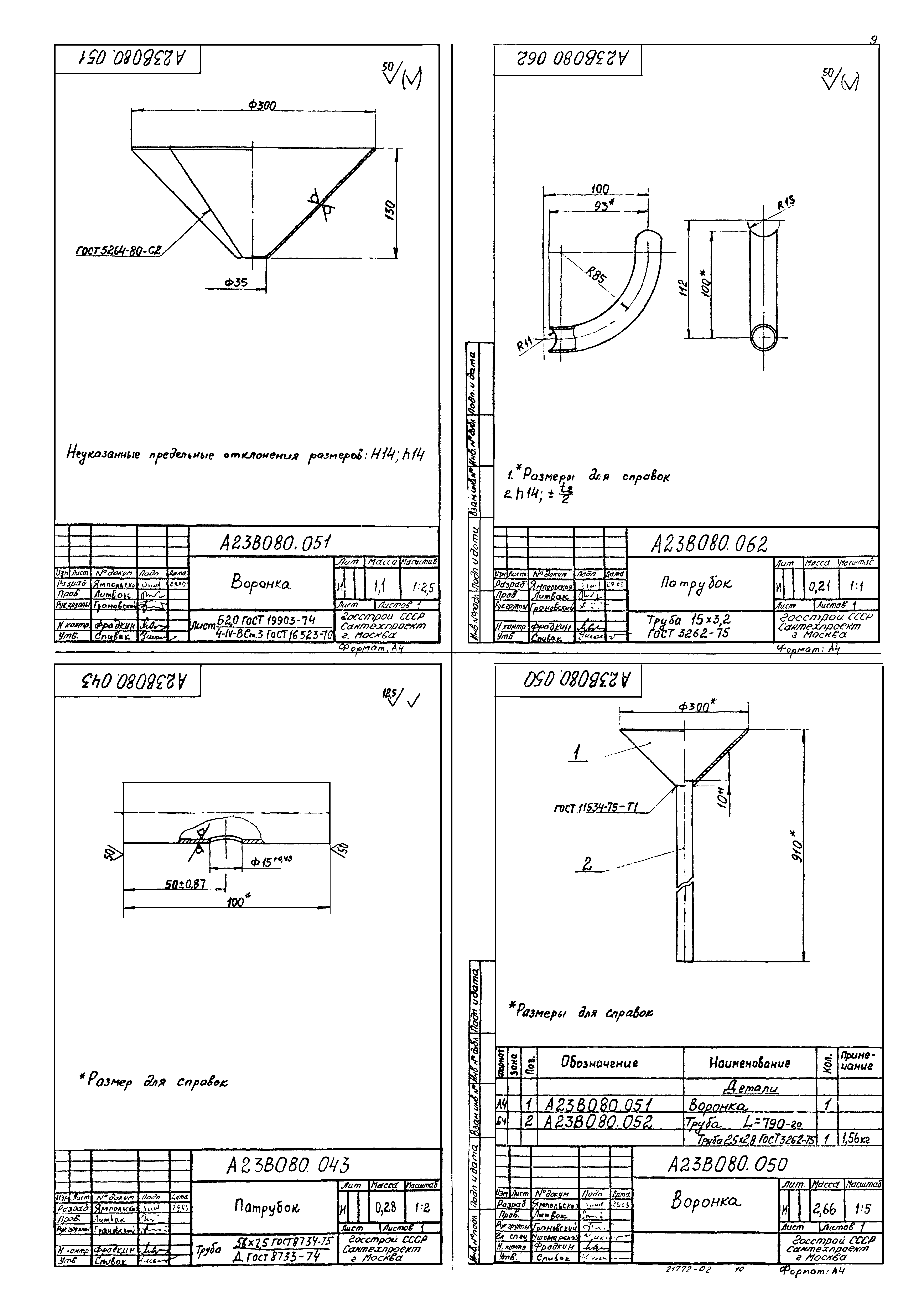
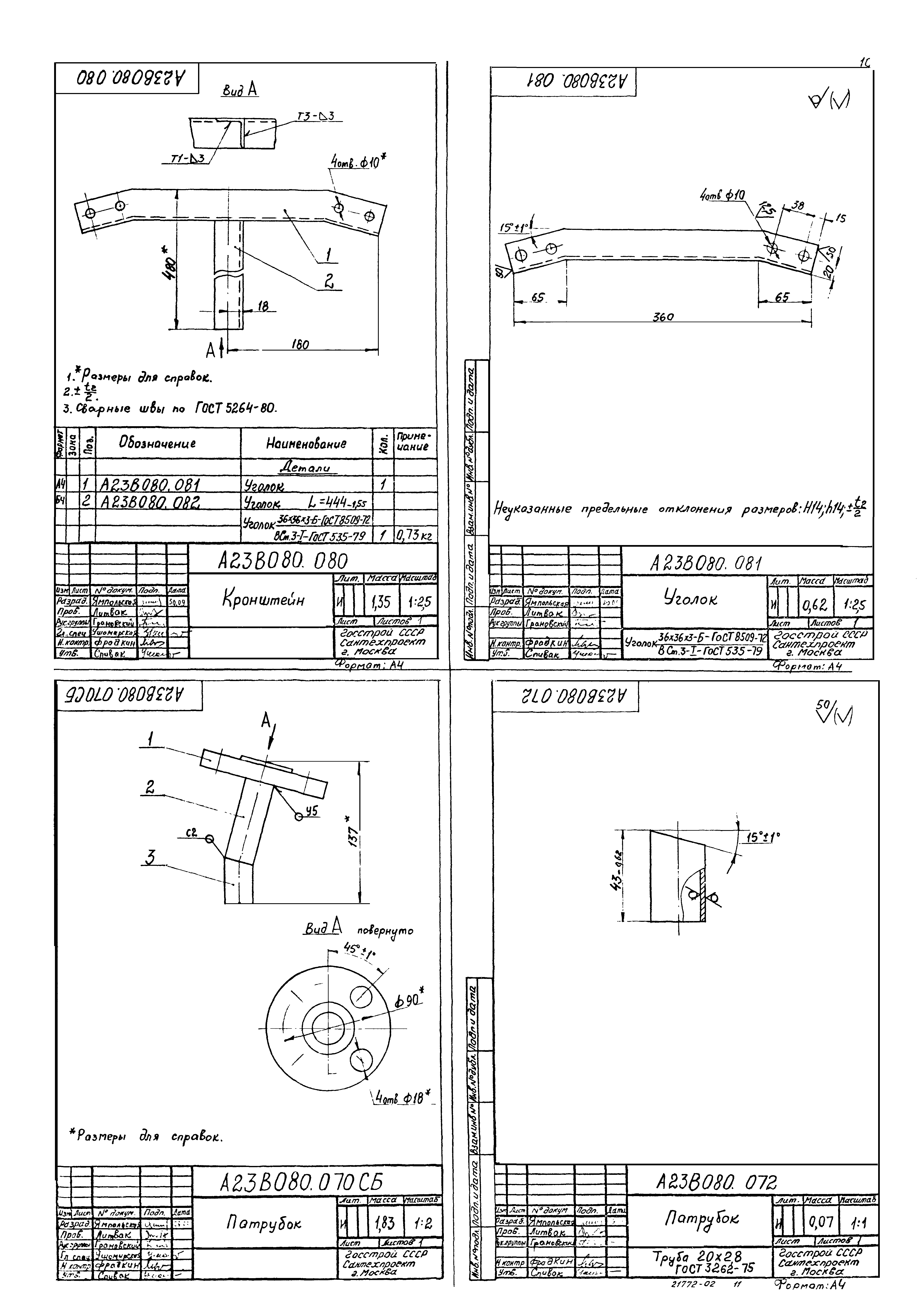
| Оглавление: | А23В080.000 СБ Блок холодильника отбора проб пара А23В080.000 Блок холодильника отбора проб пара А23В080.010 СБ Подставка А23В080.011 Косынка А23В080.013 Опора А23В080.020 Кронштейн А23В080.014 Лист А23В080.021 Основание А23В080.022 Дуга А23В080.010 Подставка А23В080.030 Трубопровод А23В080.040 СБ Трубопровод А23В080.042 Патрубок А23В080.040 Трубопровод А23В080.032 Труба А23В080.060 Трубопровод А23В080.061 Труба А23В080.043 Патрубок А23В080.050 Воронка А23В080.051 Воронка А23В080.062 Патрубок А23В080.070 СБ Патрубок А23В080.072 Патрубок А23В080.080 Кронштейн А23В080.081 Уголок А23В080.001 Трубопровод А23В080.02 Штуцер А23В080.003 Штуцер А23В080.090 Патрубок А23В080.004 Кронштейн А23В080.005 Кронштейн А23В080.006 Кронштейн А23В080.007 Прокладка А23В080.070 Патрубок А23В080.100 Патрубок А23В080.101 Патрубок А23В080.031 Флвнец А23В080.030 СБ Трубопровод А23В080.100 СБ Патрубок |
| Разработан: | Сантехпроект Госстроя СССР |
| Утверждён: | 08.10.1986 Госстрой СССР (Государственный комитет Совета Министров СССР по делам строительства) (USSR Gosstroy 74) |














