Скачать Типовой проект 902-1-136.88 Альбом 3. Надземная часть. Общие чертежи. Архитектурные решения. Конструкции железобетонные. Конструкции металлические. Изделия

Дата актуализации: 01.01.2021

Типовой проект 902-1-136.88

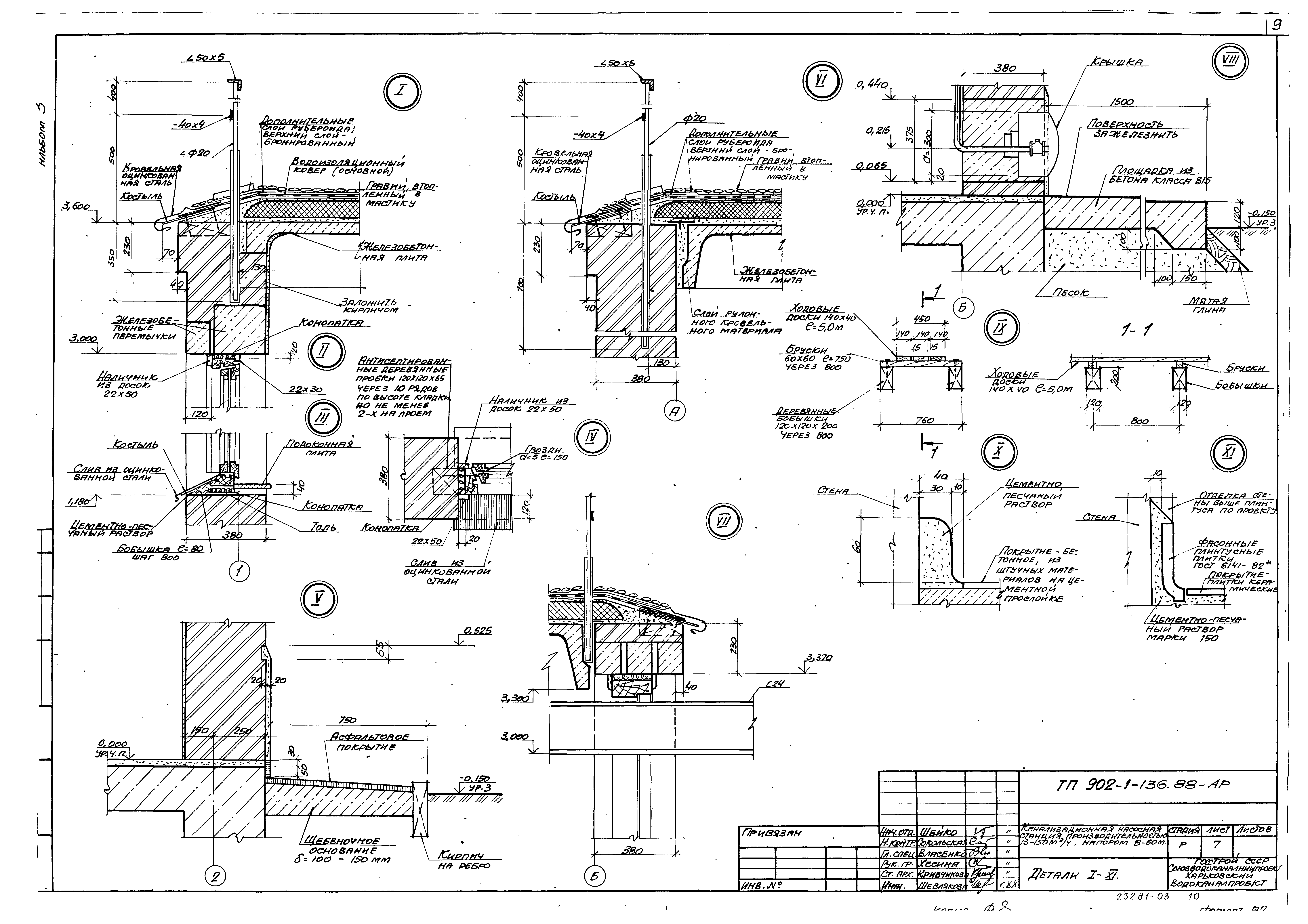
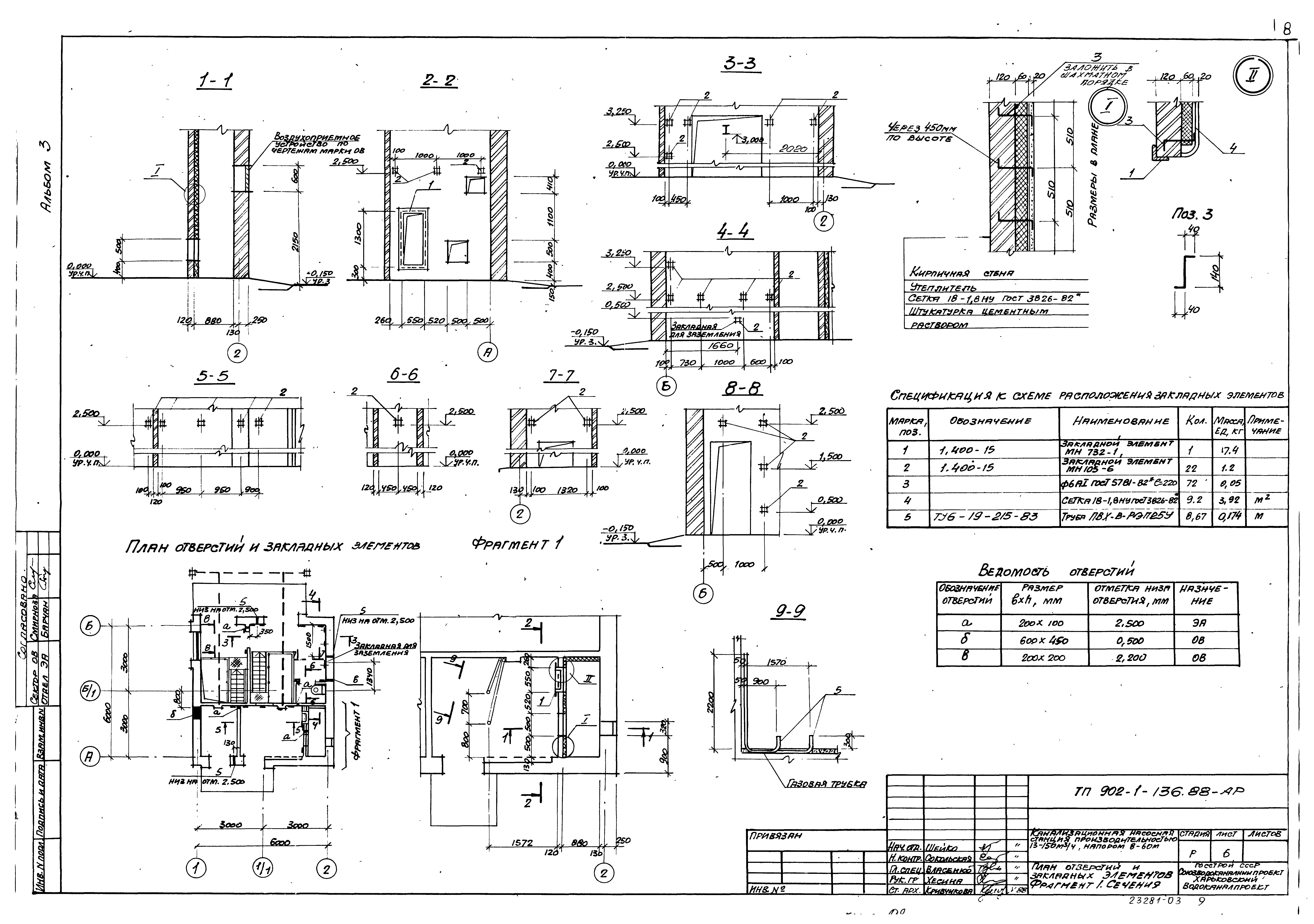
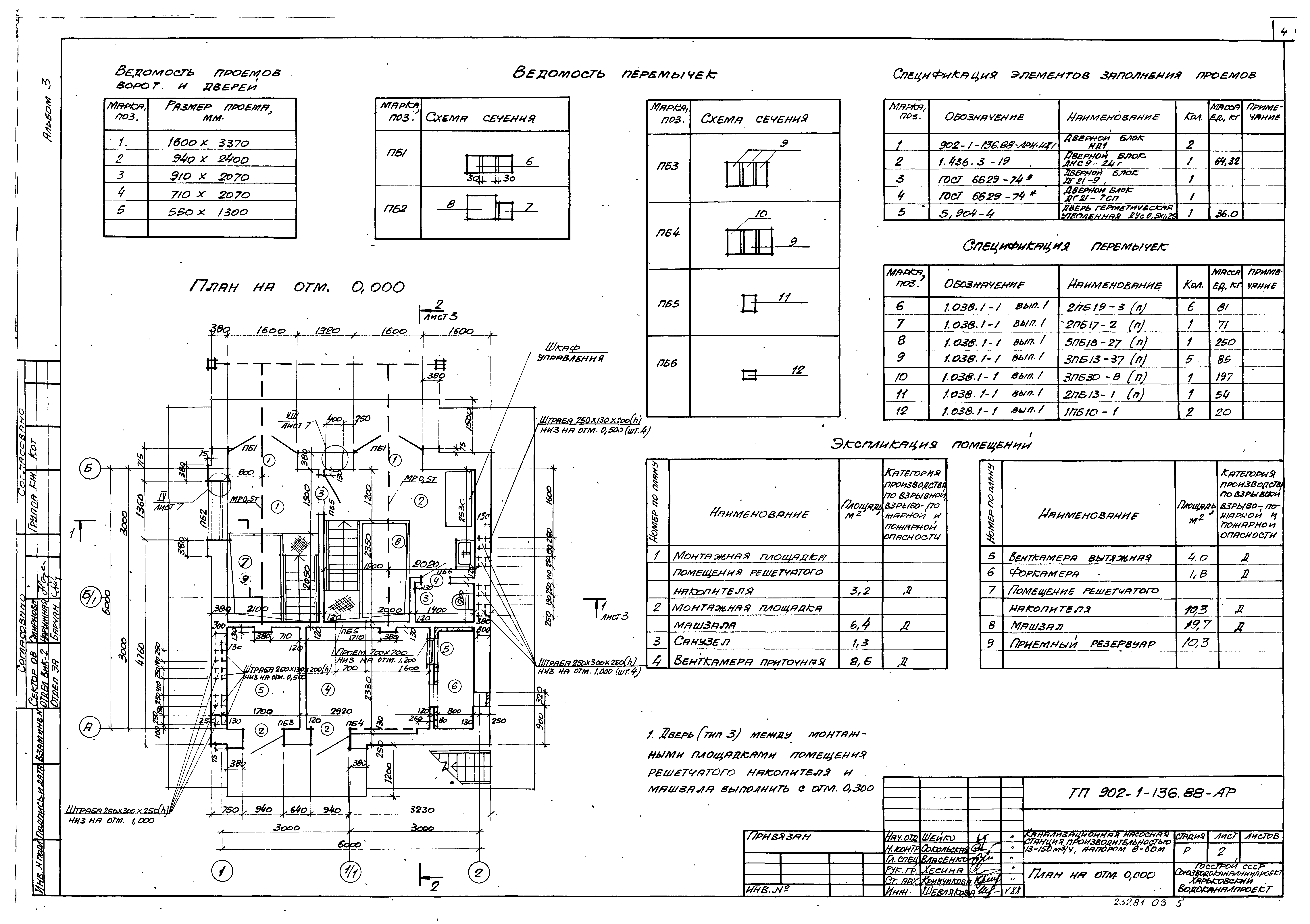
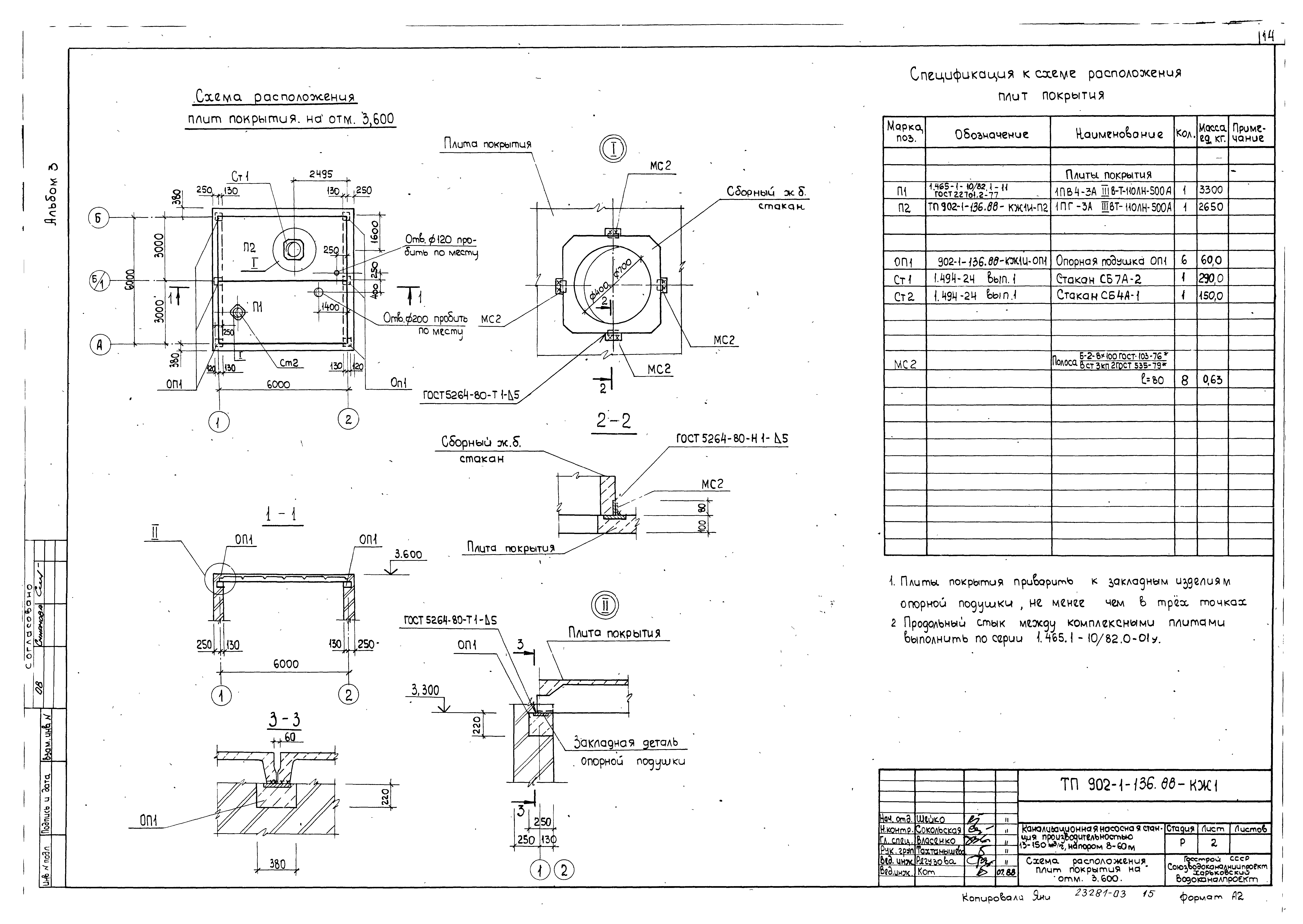
Альбом 3. Надземная часть. Общие чертежи. Архитектурные решения. Конструкции железобетонные. Конструкции металлические. Изделия

Обозначение: Типовой проект 902-1-136.88
Обозначение англ: 902-1-136.88
Статус:не определен законодательством
Название рус.:Альбом 3. Надземная часть. Общие чертежи. Архитектурные решения. Конструкции железобетонные. Конструкции металлические. Изделия
Дата добавления в базу:01.09.2013
Дата актуализации:01.01.2021
Дата введения:19.07.1988
Дата окончания срока действия:30.06.2003
Разработан: Харьковский Водоканалпроект
Утверждён:19.07.1988 Госстрой СССР (Государственный комитет Совета Министров СССР по делам строительства) (USSR Gosstroy 46)
Издан: ЦИТП Госстроя СССР (CITP, Gosstroy (USSR) 1988 г. )
Заменяет собой:
Типовой проект 902-1-136.88Типовой проект 902-1-136.88Типовой проект 902-1-136.88Типовой проект 902-1-136.88Типовой проект 902-1-136.88Типовой проект 902-1-136.88Типовой проект 902-1-136.88Типовой проект 902-1-136.88Типовой проект 902-1-136.88Типовой проект 902-1-136.88Типовой проект 902-1-136.88Типовой проект 902-1-136.88Типовой проект 902-1-136.88Типовой проект 902-1-136.88Типовой проект 902-1-136.88Типовой проект 902-1-136.88Типовой проект 902-1-136.88Типовой проект 902-1-136.88Типовой проект 902-1-136.88Типовой проект 902-1-136.88Типовой проект 902-1-136.88Типовой проект 902-1-136.88Типовой проект 902-1-136.88Типовой проект 902-1-136.88Типовой проект 902-1-136.88Типовой проект 902-1-136.88Типовой проект 902-1-136.88Типовой проект 902-1-136.88Типовой проект 902-1-136.88Типовой проект 902-1-136.88Типовой проект 902-1-136.88Типовой проект 902-1-136.88Типовой проект 902-1-136.88Типовой проект 902-1-136.88Типовой проект 902-1-136.88Типовой проект 902-1-136.88Типовой проект 902-1-136.88Типовой проект 902-1-136.88Типовой проект 902-1-136.88Типовой проект 902-1-136.88Типовой проект 902-1-136.88Типовой проект 902-1-136.88Типовой проект 902-1-136.88Типовой проект 902-1-136.88Типовой проект 902-1-136.88Типовой проект 902-1-136.88Типовой проект 902-1-136.88Типовой проект 902-1-136.88Типовой проект 902-1-136.88