Скачать Типовой проект 902-3-6 Альбом 5. Нестандартизированное оборудование (из ТП 902-3-10)Дата актуализации: 01.01.2021
|
| Обозначение: | Типовой проект 902-3-6 |
| Обозначение англ: | 902-3-6 |
| Статус: | не определен законодательством |
| Название рус.: | Альбом 5. Нестандартизированное оборудование (из ТП 902-3-10) |
| Дата добавления в базу: | 01.09.2013 |
| Дата актуализации: | 01.01.2021 |
| Дата введения: | 15.05.1980 |
| Дата окончания срока действия: | 30.06.2003 |
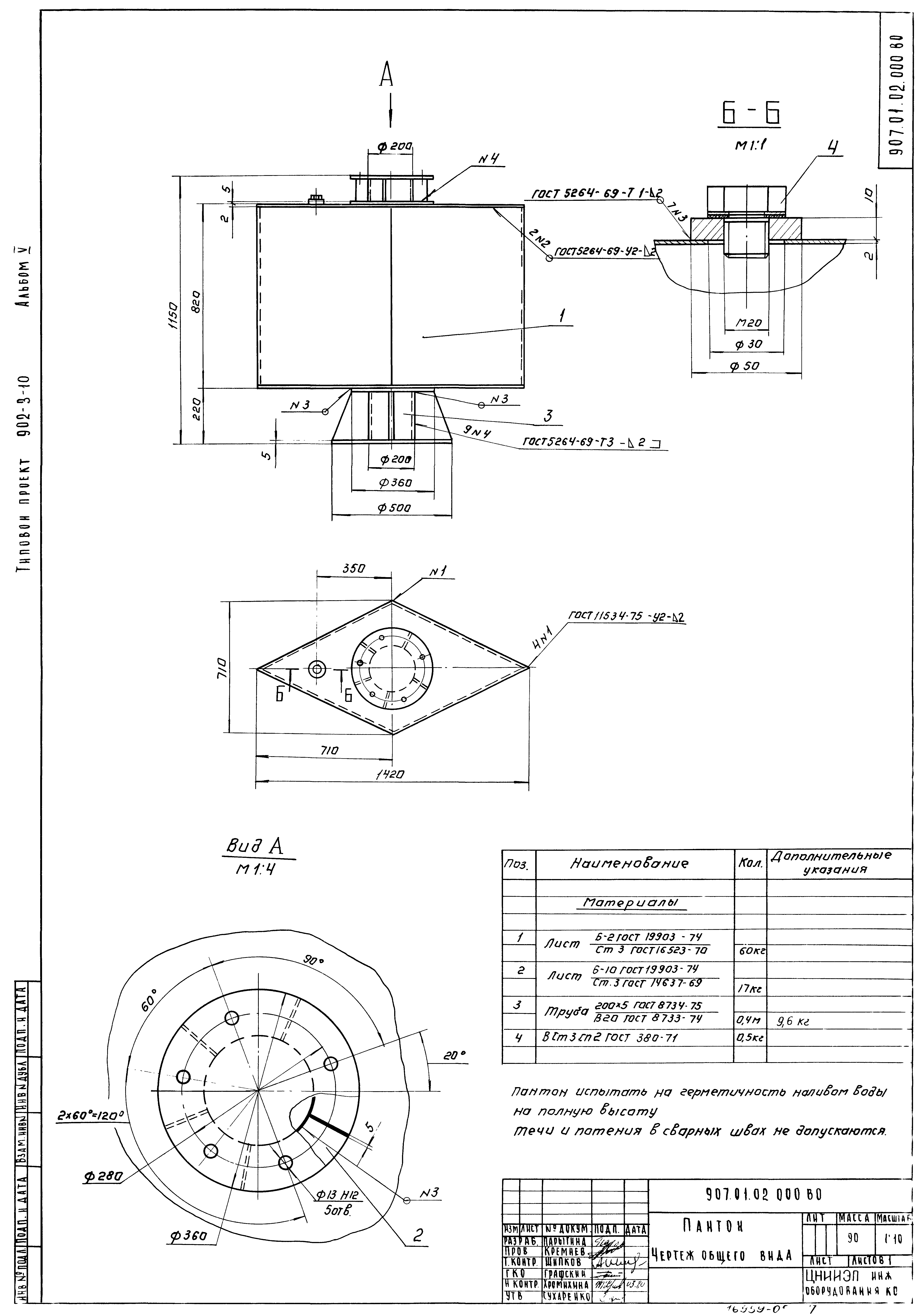
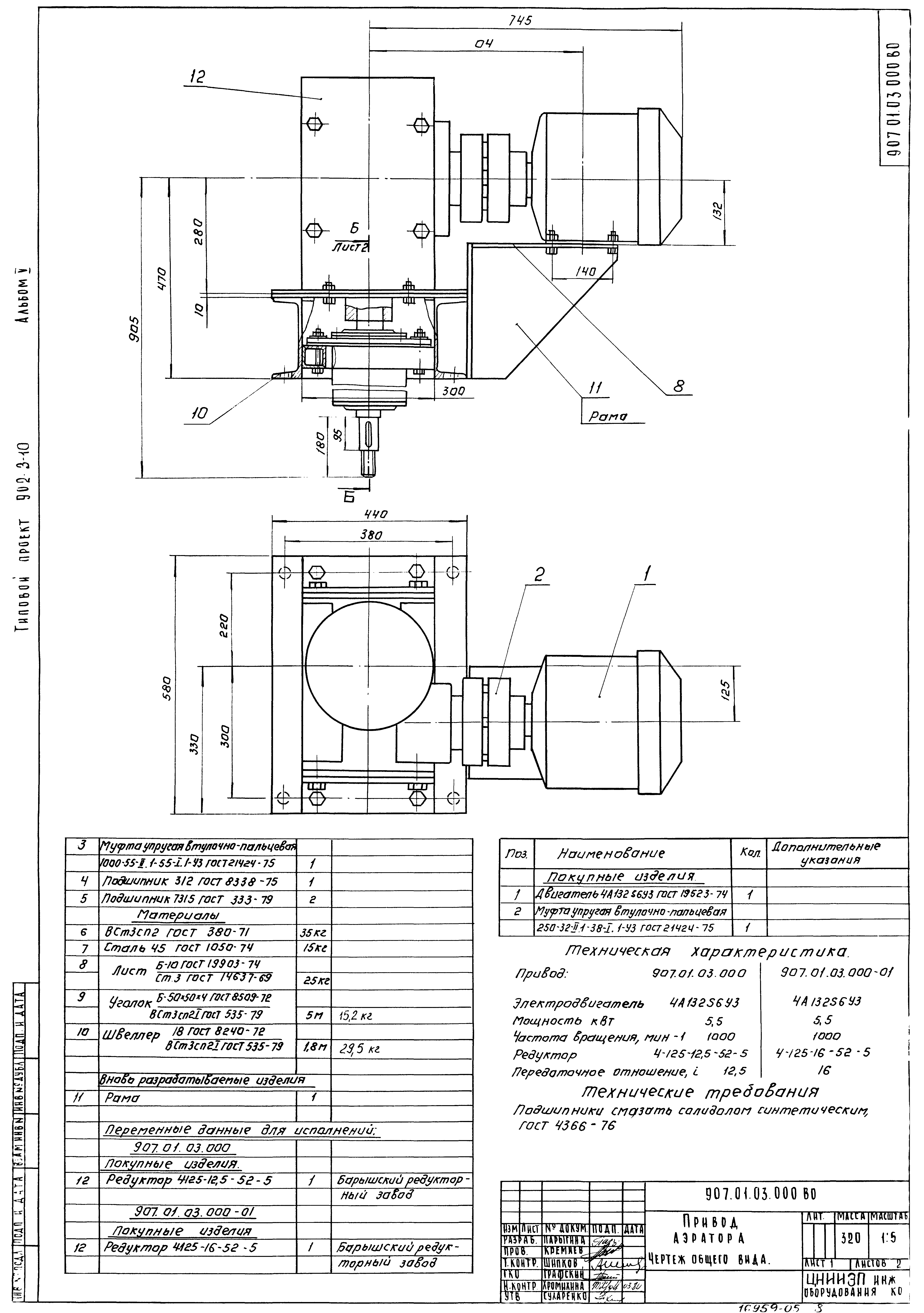
| Оглавление: | Титульный лист Содержание альбома 907.00.00.000 ВО Установка аэратора механического плавающего. Чертеж общего вида 907.01.00.000 ВО Аэратор механический плавающий. Чертеж общего вида. Лист 1 907.01.01.000 ВО Рама. Чертеж общего вида 907.01.02.000 ВО Пантон. Чертеж общего вида 907.01.03.000 ВО Привод аэратора. Чертеж общего вида. Лист 1 907.01.03.000 ВО Привод аэратора. Чертеж общего вида. Лист 2 907.01.04.000 ВО Ротор аэратора. Чертеж общего вида. 907.00.00.000 ТП Установка аэратора механического плавающего. Ведомость технического проекта 907.01.00.000 ВО Аэратор механический плавающий. Чертеж общего вида. Лист 2 907.01.00.000 ТП Аэратор механический плавающий. Ведомость технического проекта. Лист 1 907.01.00.000 ТП Аэратор механический плавающий. Ведомость технического проекта. Лист 2 911.00.00.000 ВО Установка ручной решетки. Чертеж общего вида 911.01.00.000 ВО Решетка. Чертеж общего вида 911.02.00.000 ВО Лоток. Чертеж общего вида |
| Разработан: | ЦНИИЭП |
| Утверждён: | 11.03.1980 Госгражданстрой (Gosgrazhdanstroy 75) |













