Скачать Типовой проект 902-2-424.86 Альбом 3. Строительные изделияДата актуализации: 01.01.2021
|
| Обозначение: | Типовой проект 902-2-424.86 |
| Обозначение англ: | 902-2-424.86 |
| Статус: | не определен законодательством |
| Название рус.: | Альбом 3. Строительные изделия |
| Дата добавления в базу: | 01.09.2013 |
| Дата актуализации: | 01.01.2021 |
| Дата введения: | 18.07.1986 |
| Дата окончания срока действия: | 30.06.2003 |
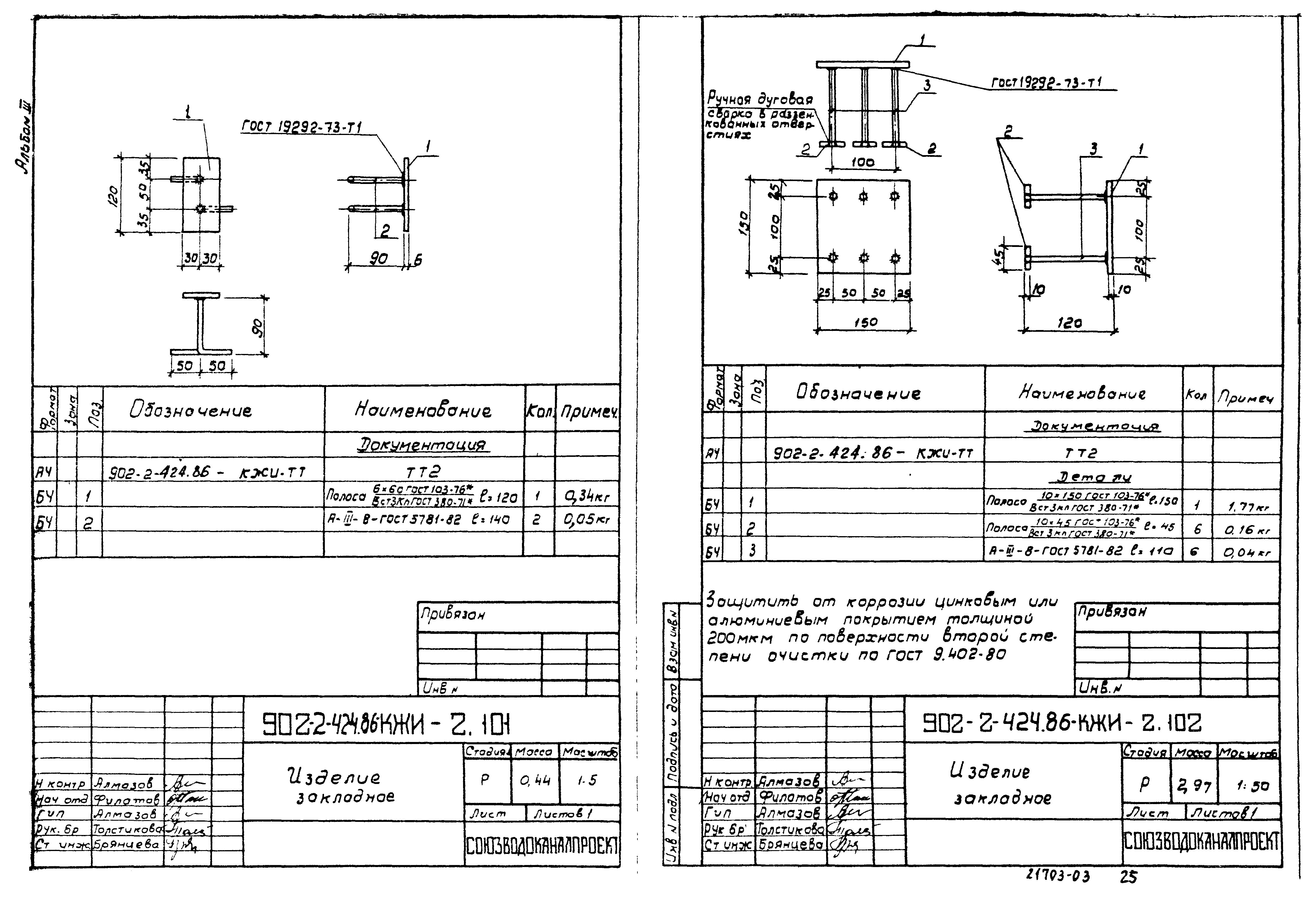
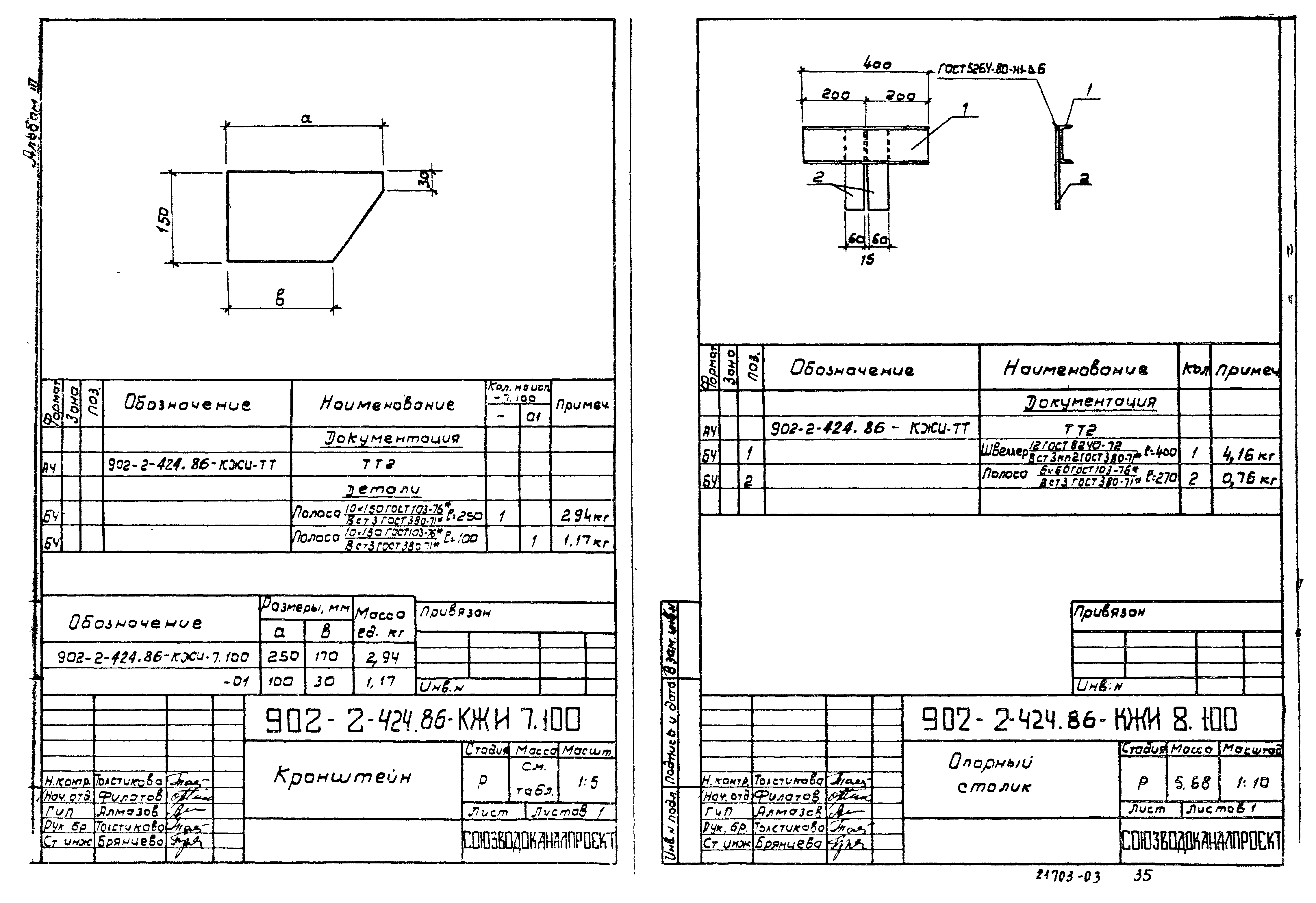
| Оглавление: | 902-2-424.86-КЖИ-ТТ Технические требования 902-2-424.86-КЖИ-1.100 Сетка 902-2-424.86-КЖИ-1.101 Сетка 902-2-424.86-КЖИ-1.102 Сетка 902-2-424.86-КЖИ-1.103 Сетка 902-2-424.86-КЖИ-1.106 Сетка 902-2-424.86-КЖИ-1.107 Сетка 902-2-424.86-КЖИ-1.108 Изделие закладное 902-2-424.86-КЖИ-1.109 Сетка 902-2-424.86-КЖИ-1.110 Каркас пространственный 902-2-424.86-КЖИ-1.1101Каркас пространственный 902-2-424.86-КЖИ-1.112 Каркас пространственный 902-2-424.86-КЖИ-1.113 Сетка 902-2-424.86-КЖИ-1.114 Сетка 902-2-424.86-КЖИ-1.115 Сетка 902-2-424.86-КЖИ-1.116 Сетка 902-2-424.86-КЖИ-1.117 Сетка 902-2-424.86-КЖИ-1.118 Сетка 902-2-424.86-КЖИ-1.119 Сетка 902-2-424.86-КЖИ-1.120 Сетка 902-2-424.86-КЖИ-1.121 Сетка 902-2-424.86-КЖИ-1.122 Сетка 902-2-424.86-КЖИ-1.123 Петля монтажная 902-2-424.86-КЖИ-1.124 Сетка 902-2-424.86-КЖИ-1.125 Сетка 902-2-424.86-КЖИ-1.126 Сетка 902-2-424.86-КЖИ-1.127 Сетка 902-2-424.86-КЖИ-1.128 Сетка 902-2-424.86-КЖИ-1.129 Сетка 902-2-424.86-КЖИ-1.130 Сетка 902-2-424.86-КЖИ-1.131 Сетка 902-2-424.86-КЖИ-1.132 Сетка 902-2-424.86-КЖИ-1.133 Сетка 902-2-424.86-КЖИ-1.134 Плита КЦП1-20-1а 902-2-424.86-КЖИ-1.135 Кожух стальной КС 902-2-424.86-КЖИ-2.100 Панель стеновая 902-2-424.86-КЖИ-2.101 Изделие закладное 902-2-424.86-КЖИ-2.102 Изделие закладное 902-2-424.86-КЖИ-2.103 Изделие закладное 902-2-424.86-КЖИ-2.110 Сетка 902-2-424.86-КЖИ-2.120 Сетка 902-2-424.86-КЖИ-2.130 Сетка 902-2-424.86-КЖИ-2.200 Панель стеновая 902-2-424.86-КЖИ-2.201 Изделие закладное 902-2-424.86-КЖИ-2.300 Панель стеновая 902-2-424.86-КЖИ-2.301 Изделие закладное 902-2-424.86-КЖИ-2.310 Сетка 902-2-424.86-КЖИ-3.100 Плита 902-2-424.86-КЖИ-3.101 Сетка 902-2-424.86-КЖИ-4.100 Изделие закладное 902-2-424.86-КЖИ-5.100 Ограждение 902-2-424.86-КЖИ-6.100 Гребенка переливная 902-2-424.86-КЖИ-7.100 Кронштейн 902-2-424.86-КЖИ-8.100 Опорный столик 902-2-424.86-КЖИ-9.100 Временное крепление лотков 902-2-424.86-КЖИ-9.101 Тяга 902-2-424.86-КЖИ-9.102 Хомут 902-2-424.86-КЖИ-10.100 Арматурное напрягаемое полукольцо 902-2-424.86-КЖИ-10.101 Изделие закладное 902-2-424.86-КЖИ-10.102 Изделие закладное 902-2-424.86-КЖИ-10.103 Изделие закладное 902-2-424.86-КЖИ-10.104 Изделие закладное |
| Разработан: | Союзводоканалпроект |
| Утверждён: | 18.07.1986 Госстрой СССР (Государственный комитет Совета Министров СССР по делам строительства) (USSR Gosstroy А4-73) |
| Заменяет собой: |
|







































