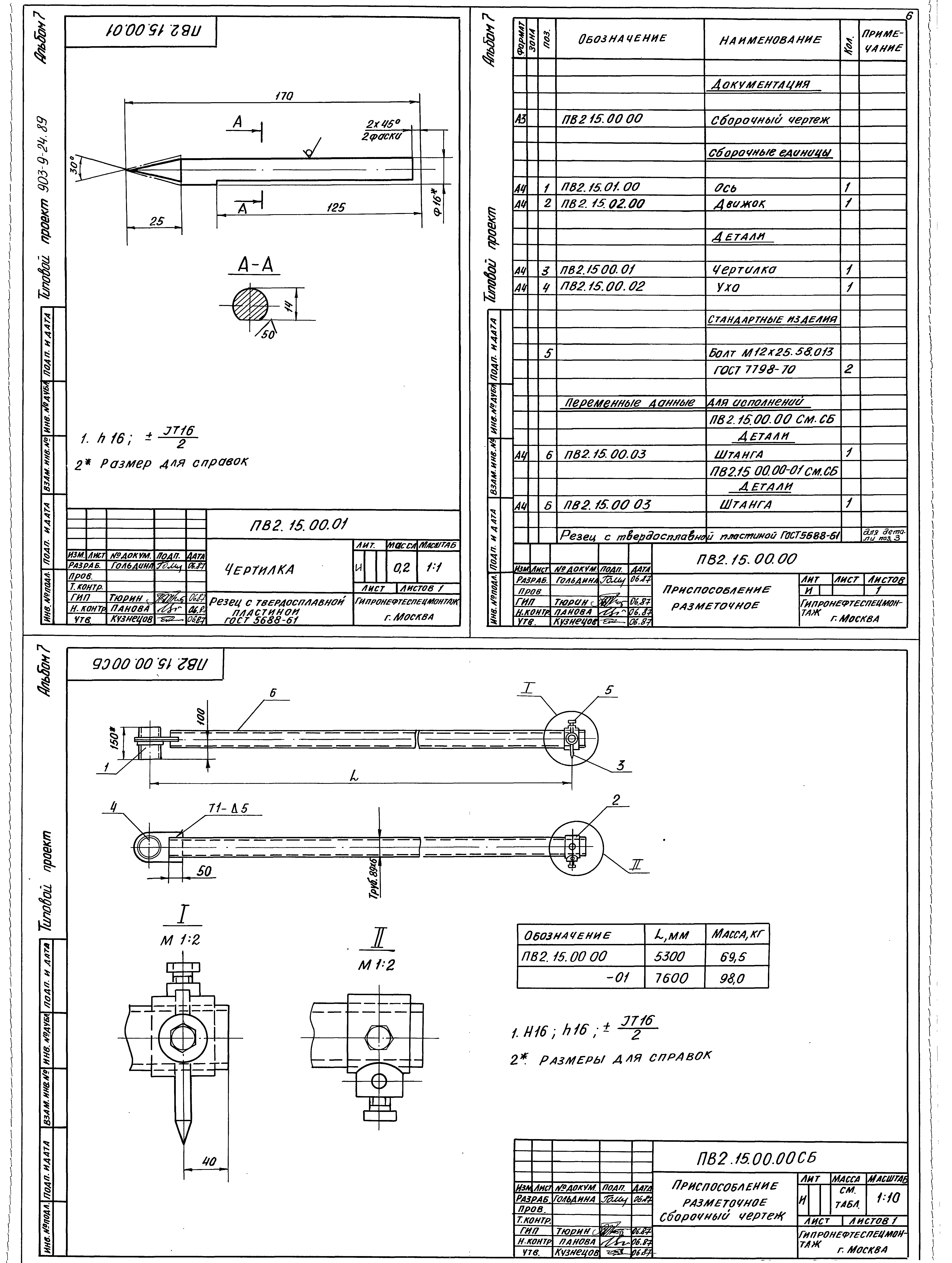
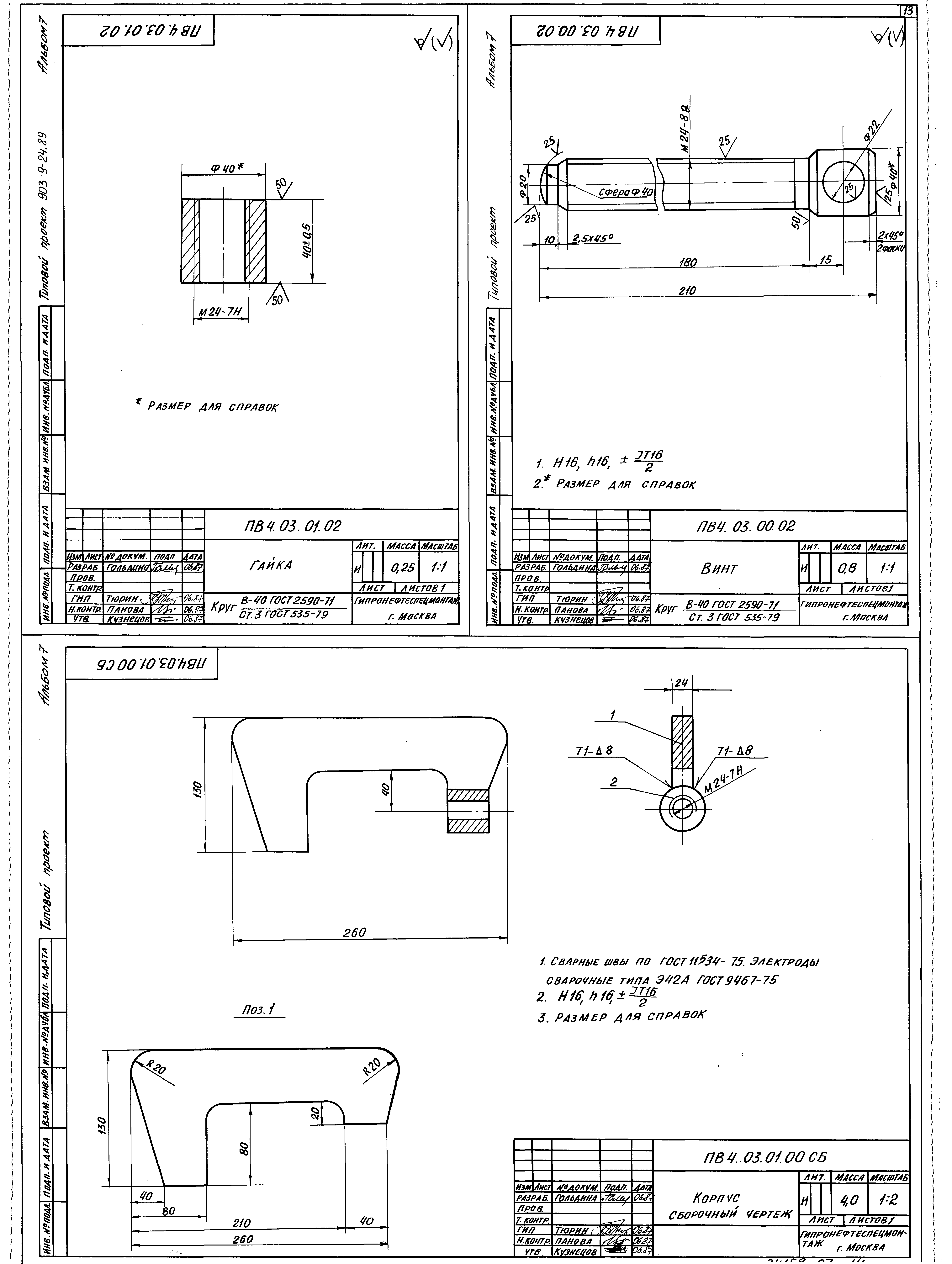
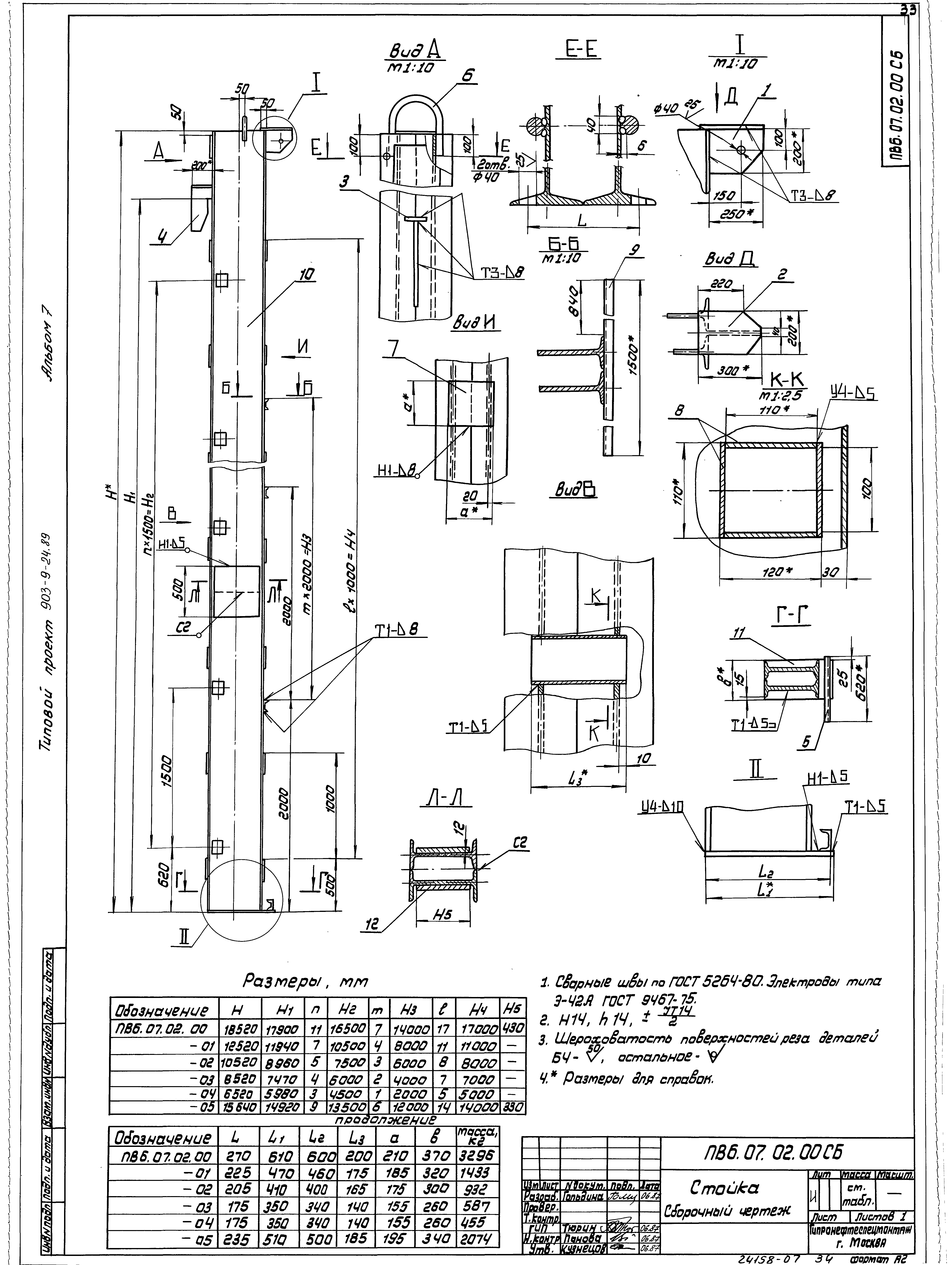
Скачать Типовой проект 903-9-24.89 Альбом 7. Монтажные приспособленияДата актуализации: 01.01.2021 Типовой проект 903-9-24.89
Альбом 7. Монтажные приспособления| Обозначение: | Типовой проект 903-9-24.89 | | Обозначение англ: | 903-9-24.89 | | Статус: | не действует | | Название рус.: | Альбом 7. Монтажные приспособления | | Дата добавления в базу: | 01.09.2013 | | Дата актуализации: | 01.01.2021 | | Разработан: | Гипрокоммунэнерго Гипронефтеспецмонтаж Минмонтажспецстроя СССР (Giproneftespetsmontazh, Minmontazhspetsstroy (USSR) )
| | Утверждён: | 21.12.1987 Министерство жилищно-коммунального хозяйства РСФСР (513)
|
                                                          
|