Скачать Типовой проект 902-2-433.87 Альбом 2. Часть 1. Технологические решения. Конструкции железобетонные. Спецификация оборудования. Ведомости потребности в материалах. Двухсекционная камераДата актуализации: 01.01.2021
|
| Обозначение: | Типовой проект 902-2-433.87 |
| Обозначение англ: | 902-2-433.87 |
| Статус: | не определен законодательством |
| Название рус.: | Альбом 2. Часть 1. Технологические решения. Конструкции железобетонные. Спецификация оборудования. Ведомости потребности в материалах. Двухсекционная камера |
| Дата добавления в базу: | 01.09.2013 |
| Дата актуализации: | 01.01.2021 |
| Дата введения: | 12.08.1987 |
| Дата окончания срока действия: | 30.06.2003 |
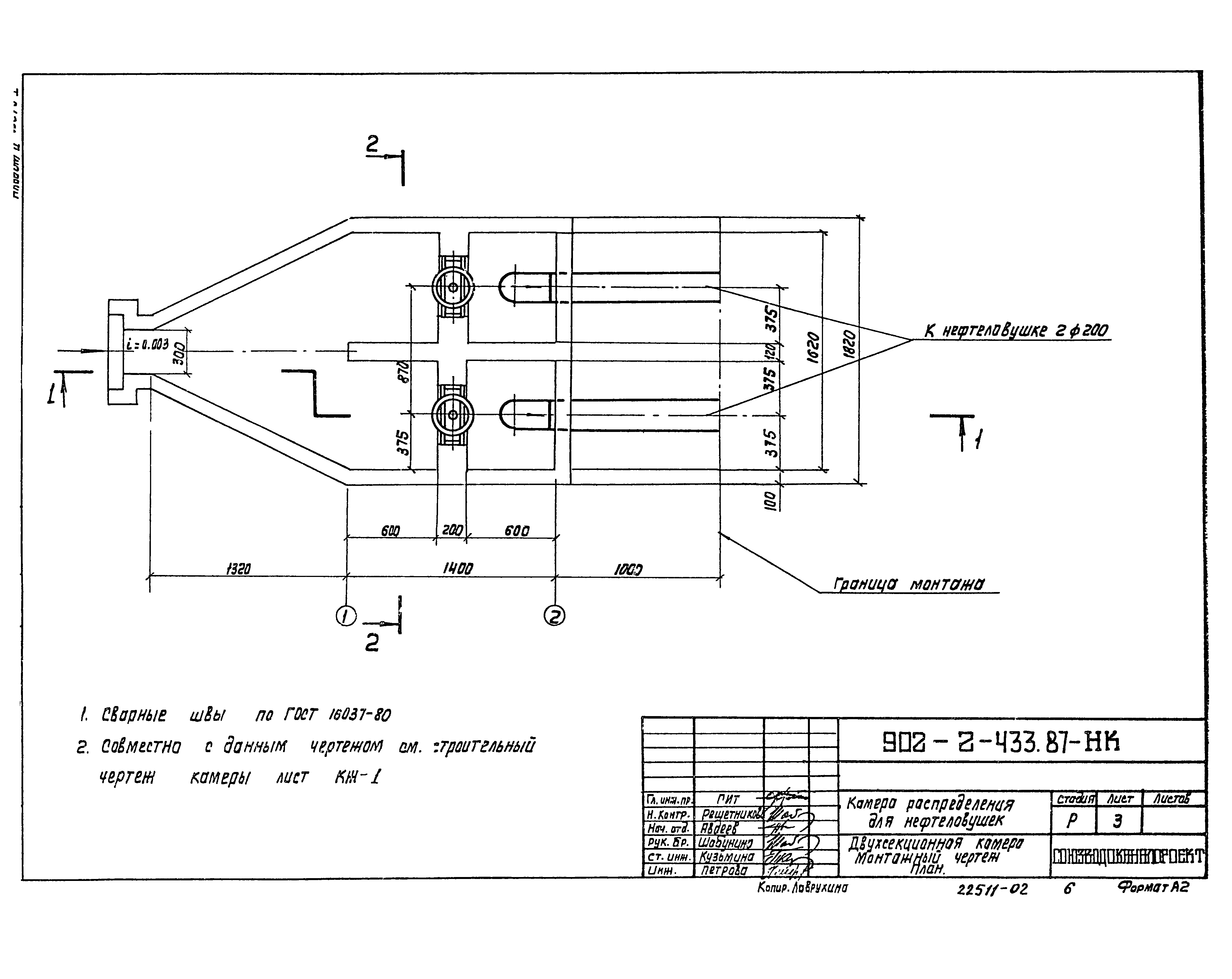
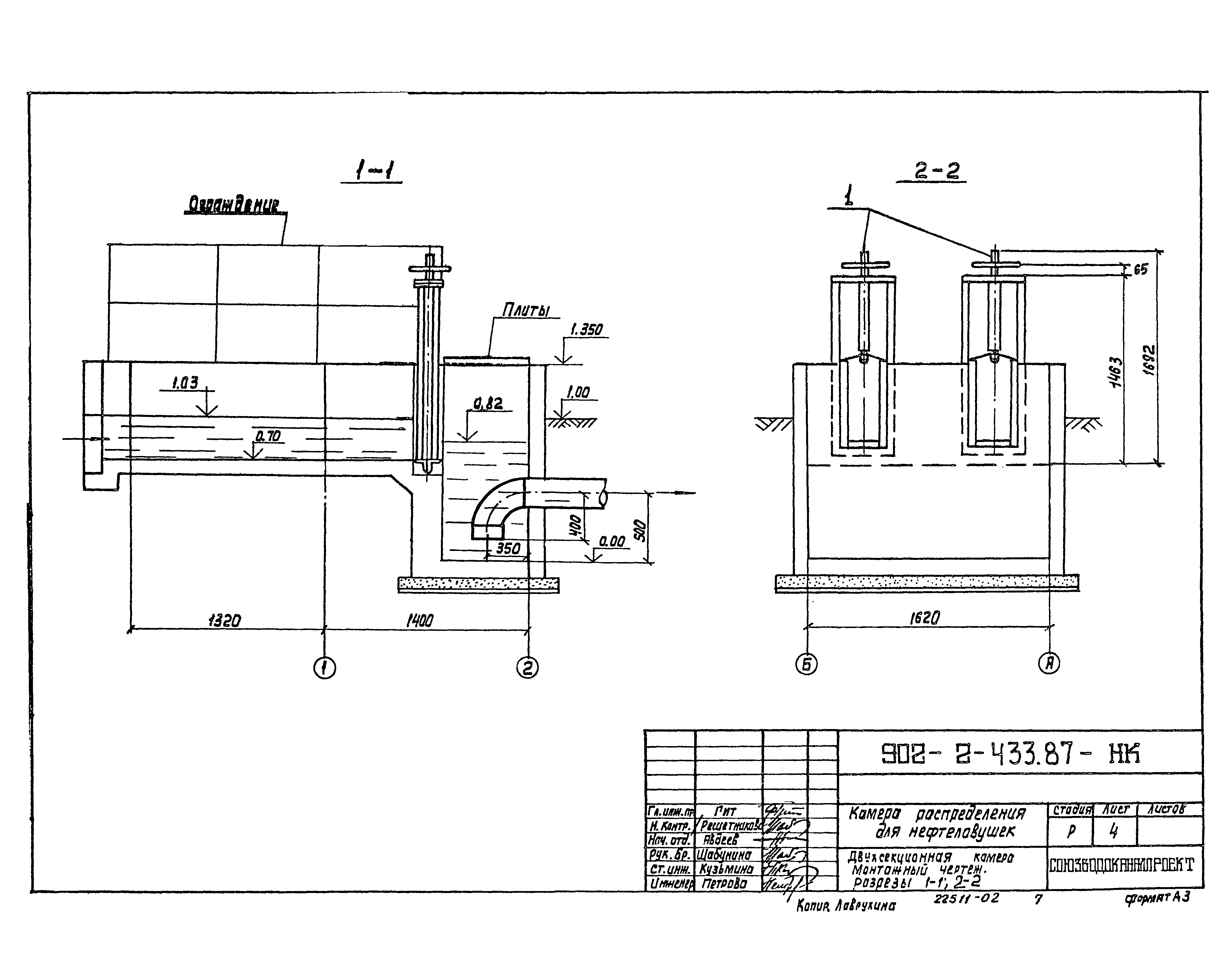
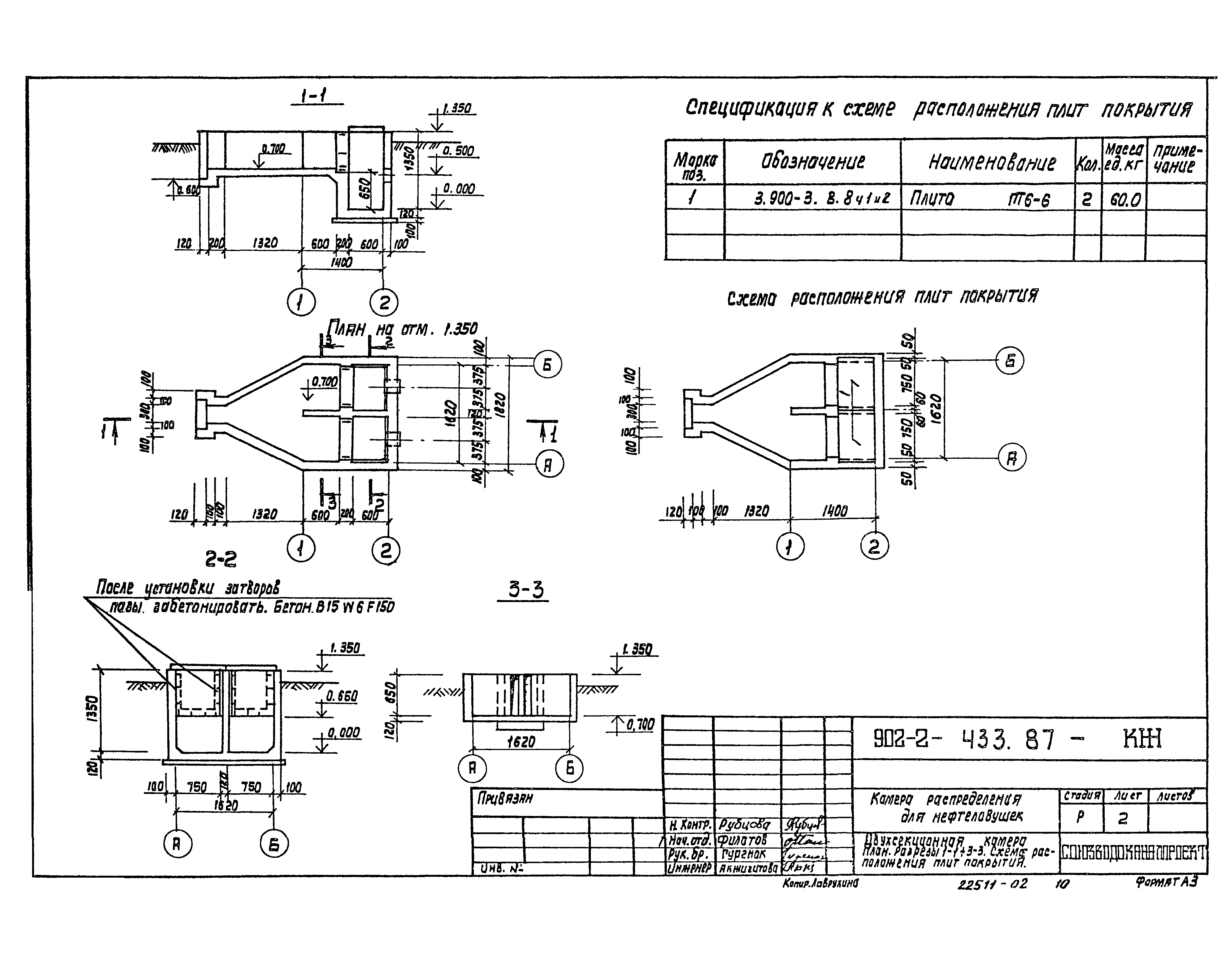
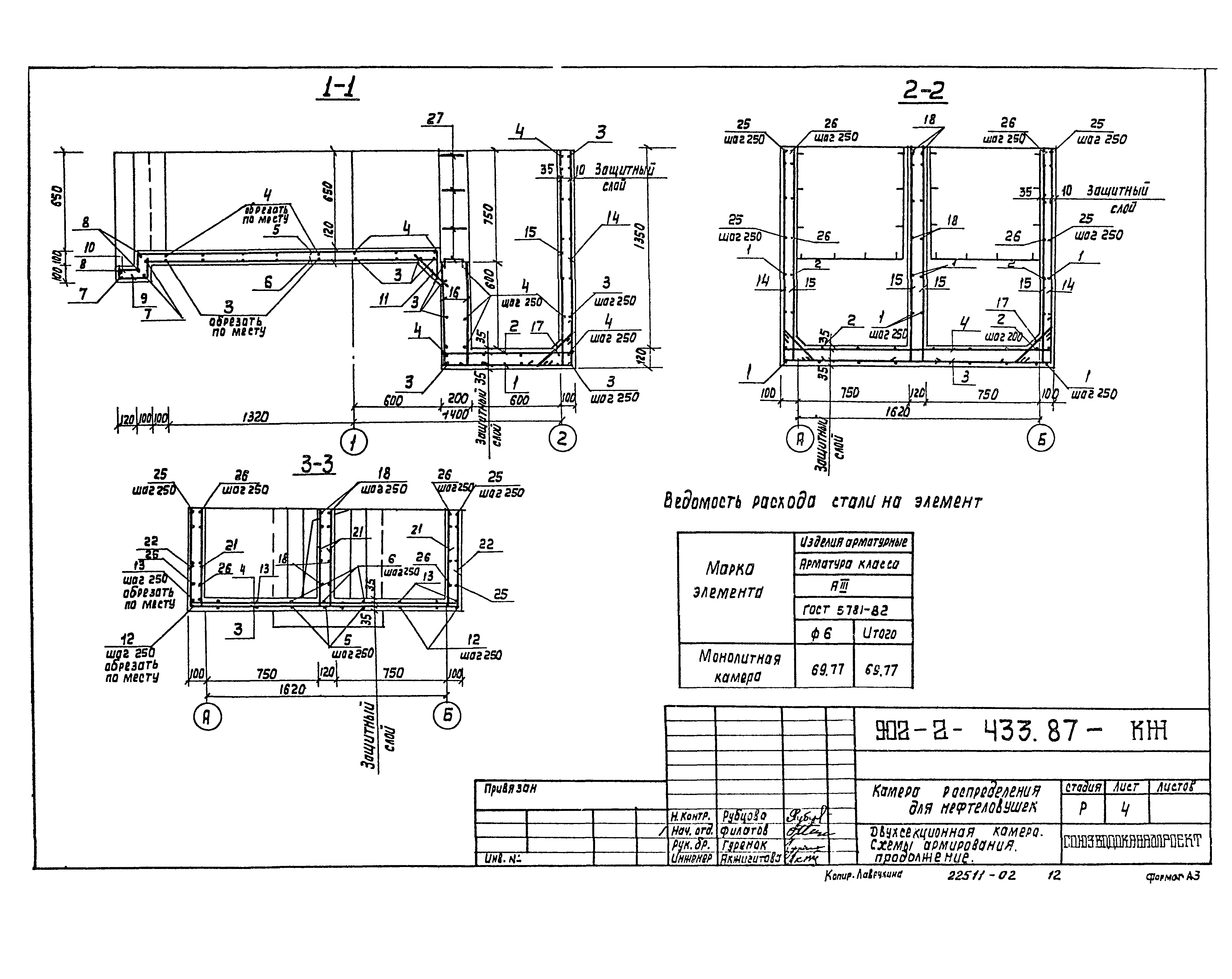
| Оглавление: | Содержание альбома Технологические решения Общие данные Монтажный чертеж. План Монтажный чертеж. Разрезы 1-1, 2-2 Спецификация оборудования Конструкции железобетонные Общие данные План. Разрезы 1-1…3-3. Схемы расположения плит покрытия Схемы армирования. Начало Схемы армирования. Продолжение Схемы армирования. Окончание Общие данные. Схема строительного генерального плана График производства работ Ведомости потребности в материалах |
| Разработан: | Союзводоканалпроект |
| Утверждён: | 12.08.1987 Госстрой СССР (Государственный комитет Совета Министров СССР по делам строительства) (USSR Gosstroy А4-72) |
| Заменяет собой: |

















