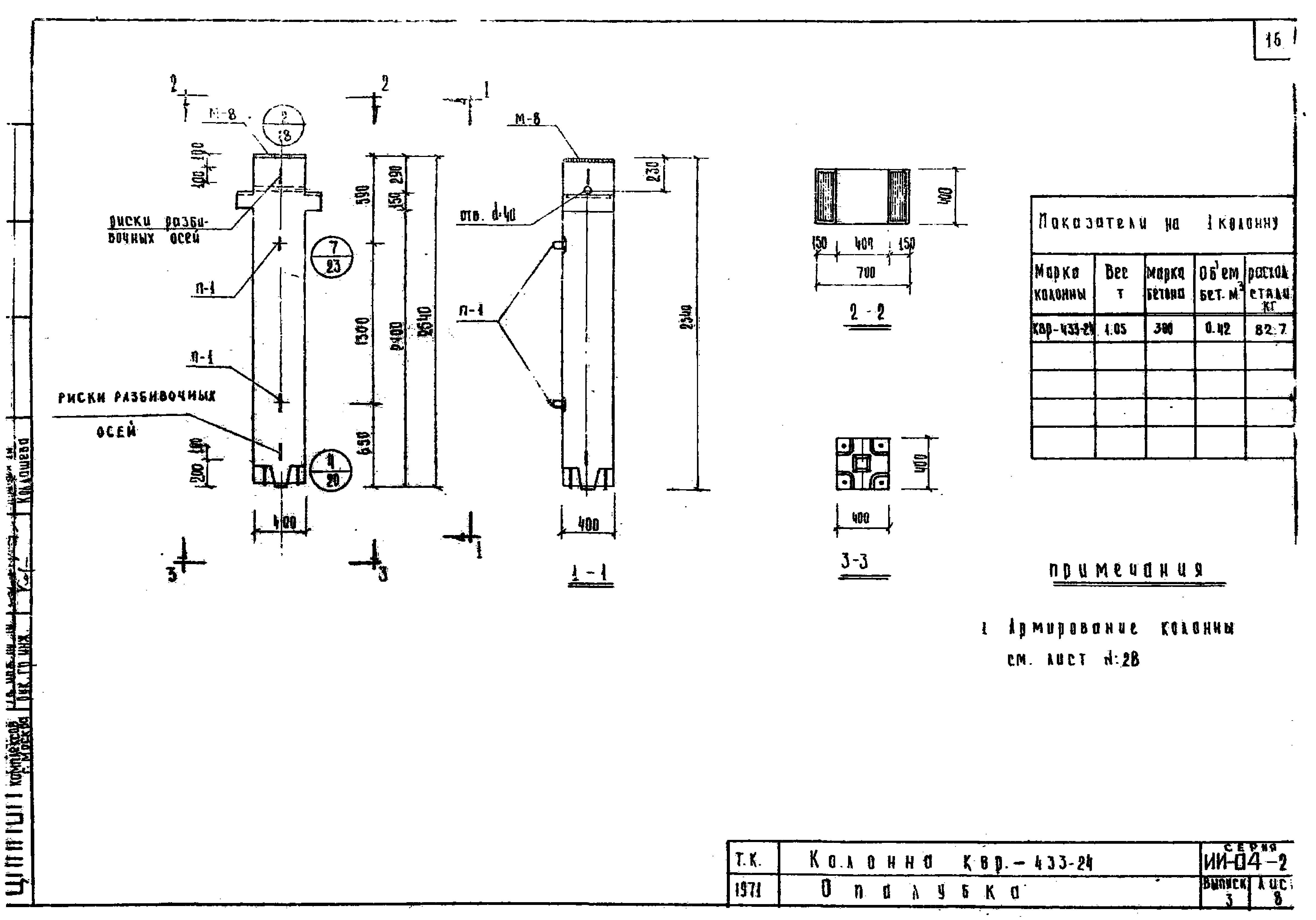
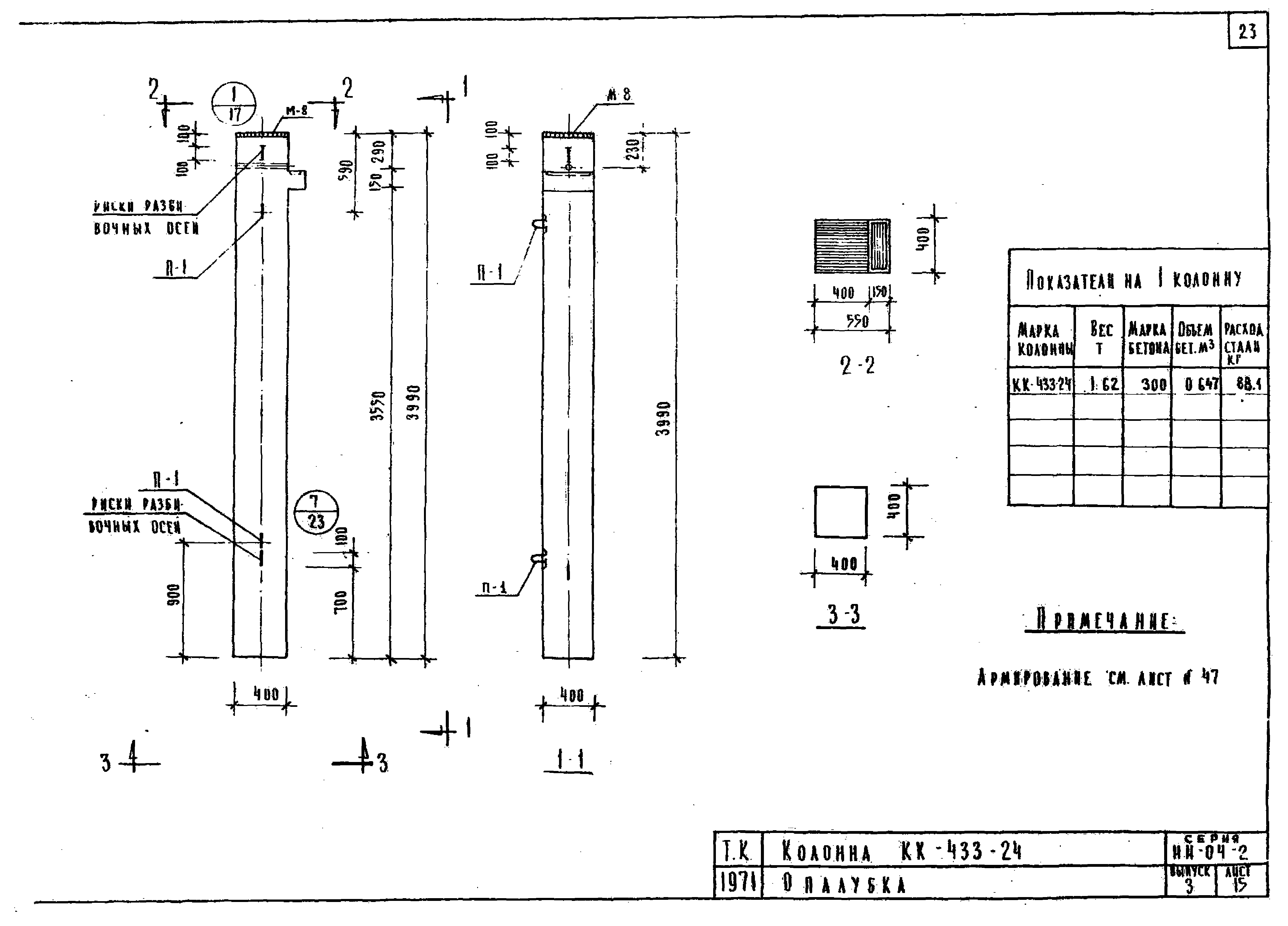
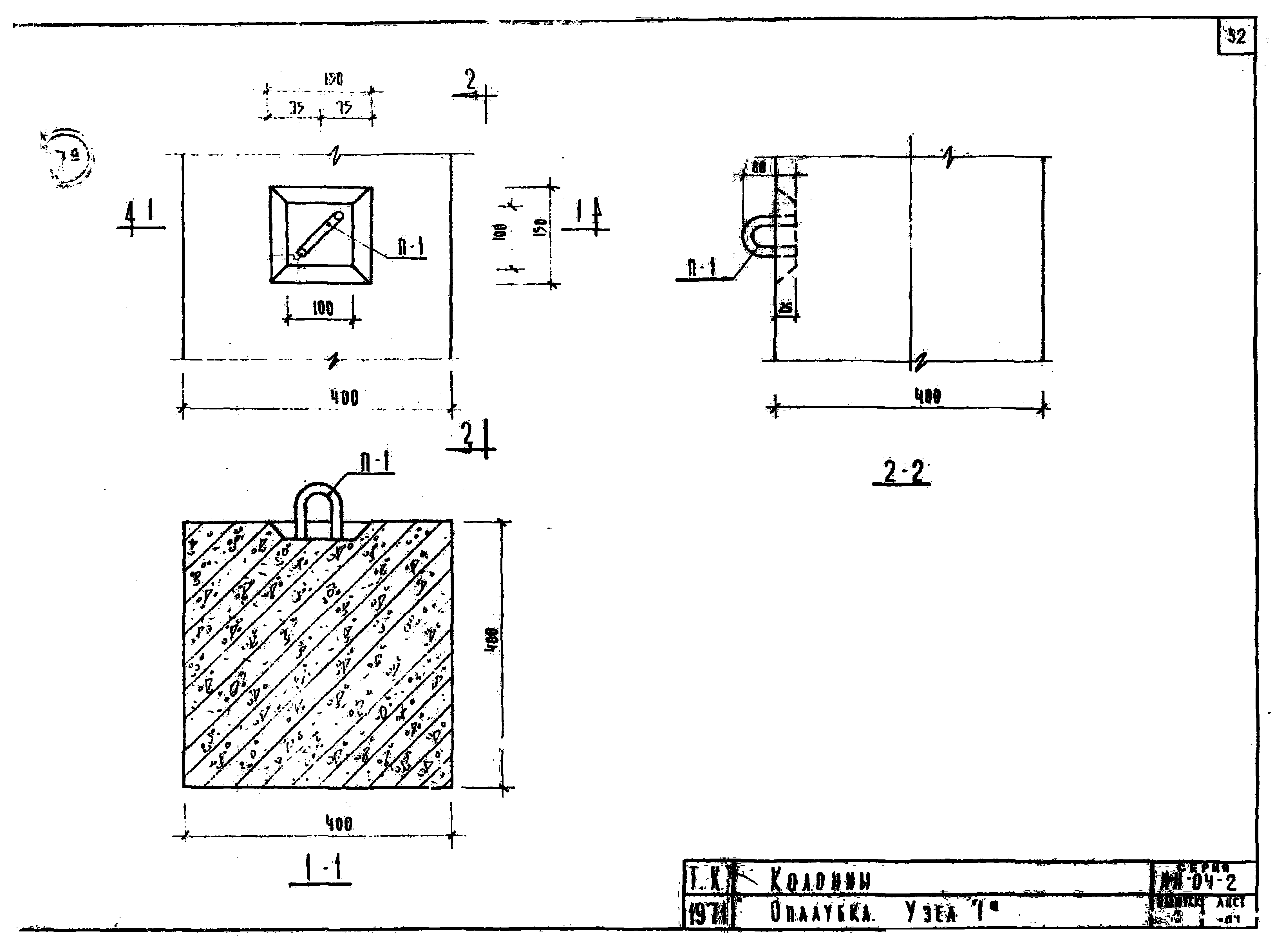
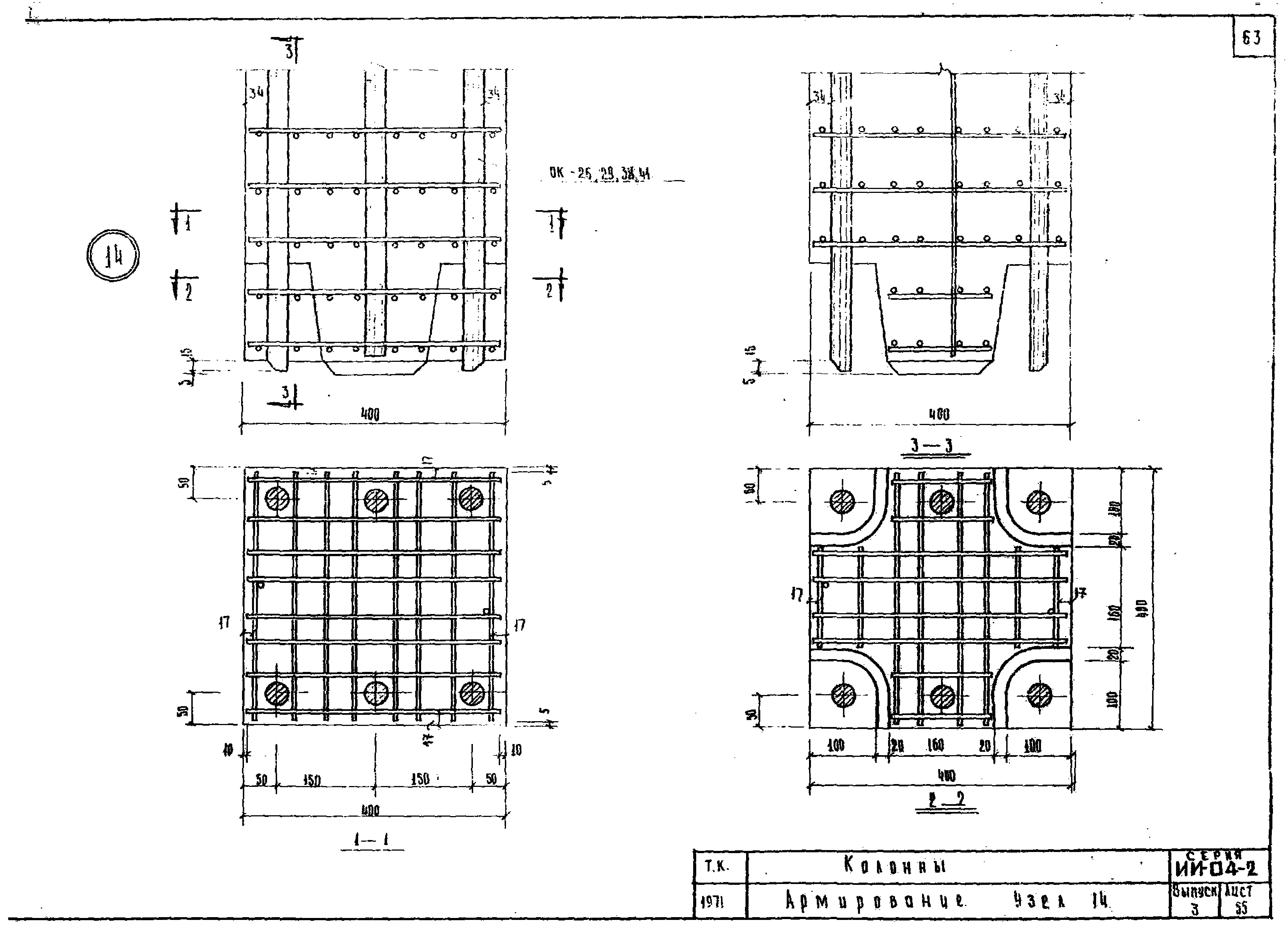
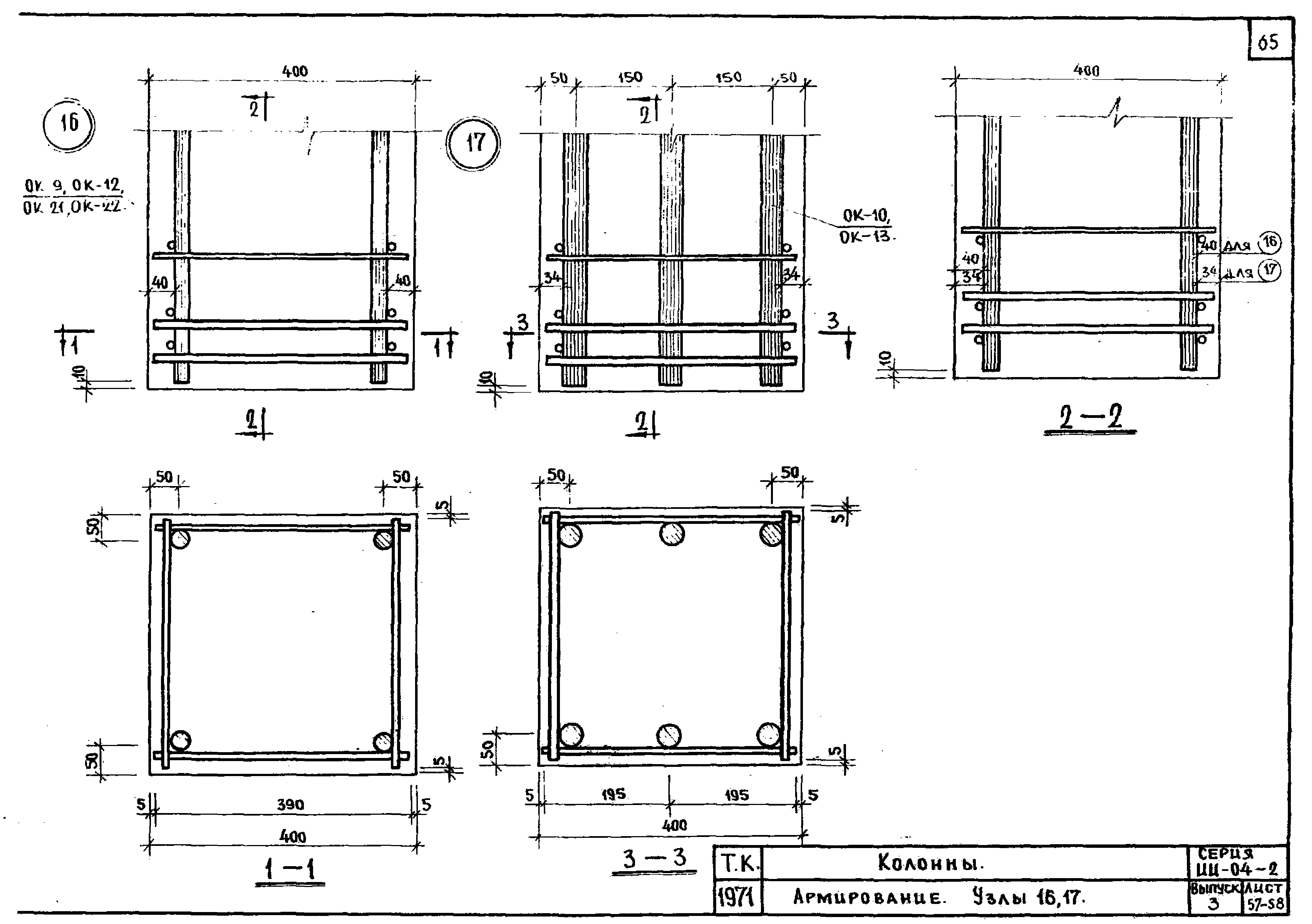
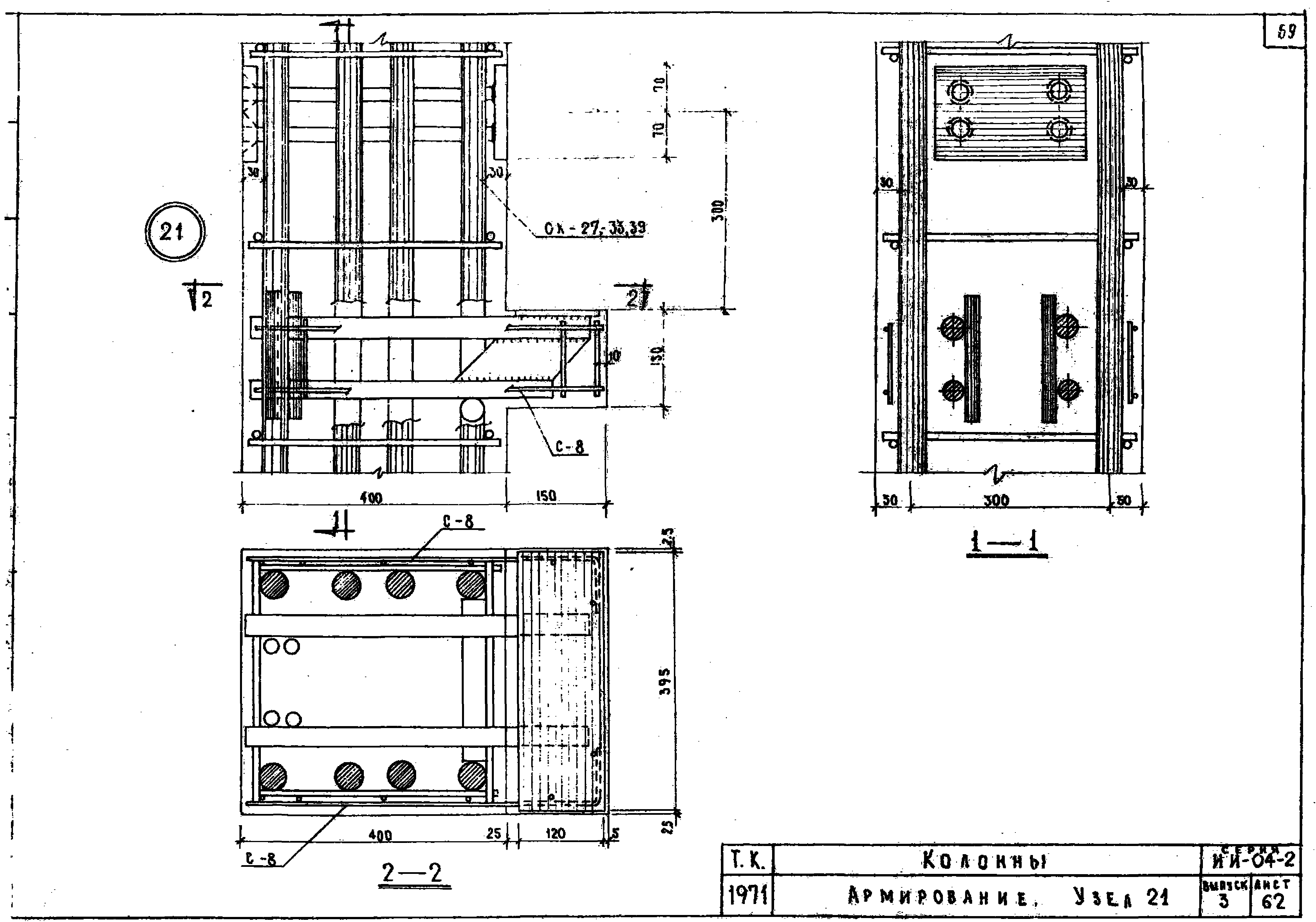
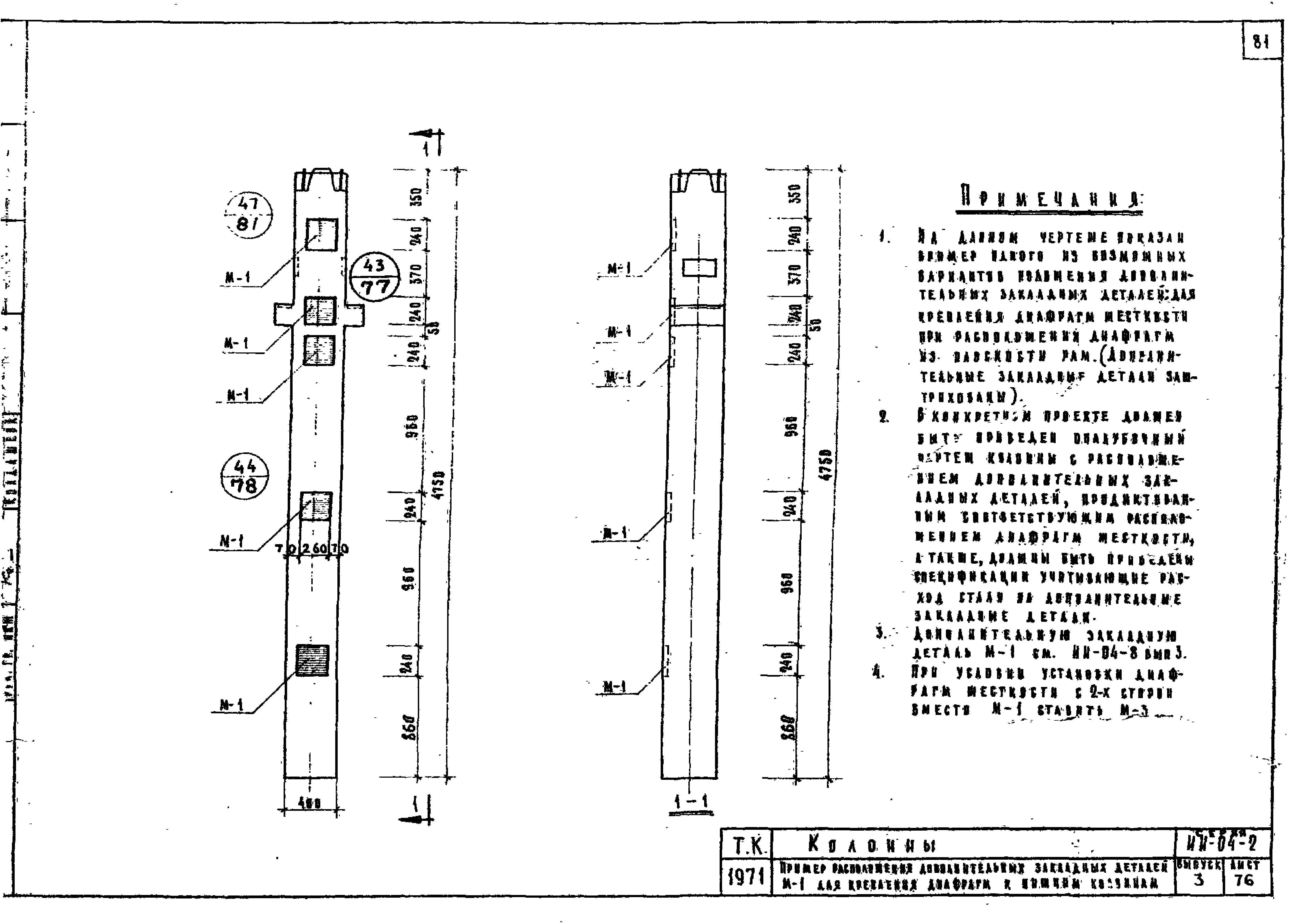
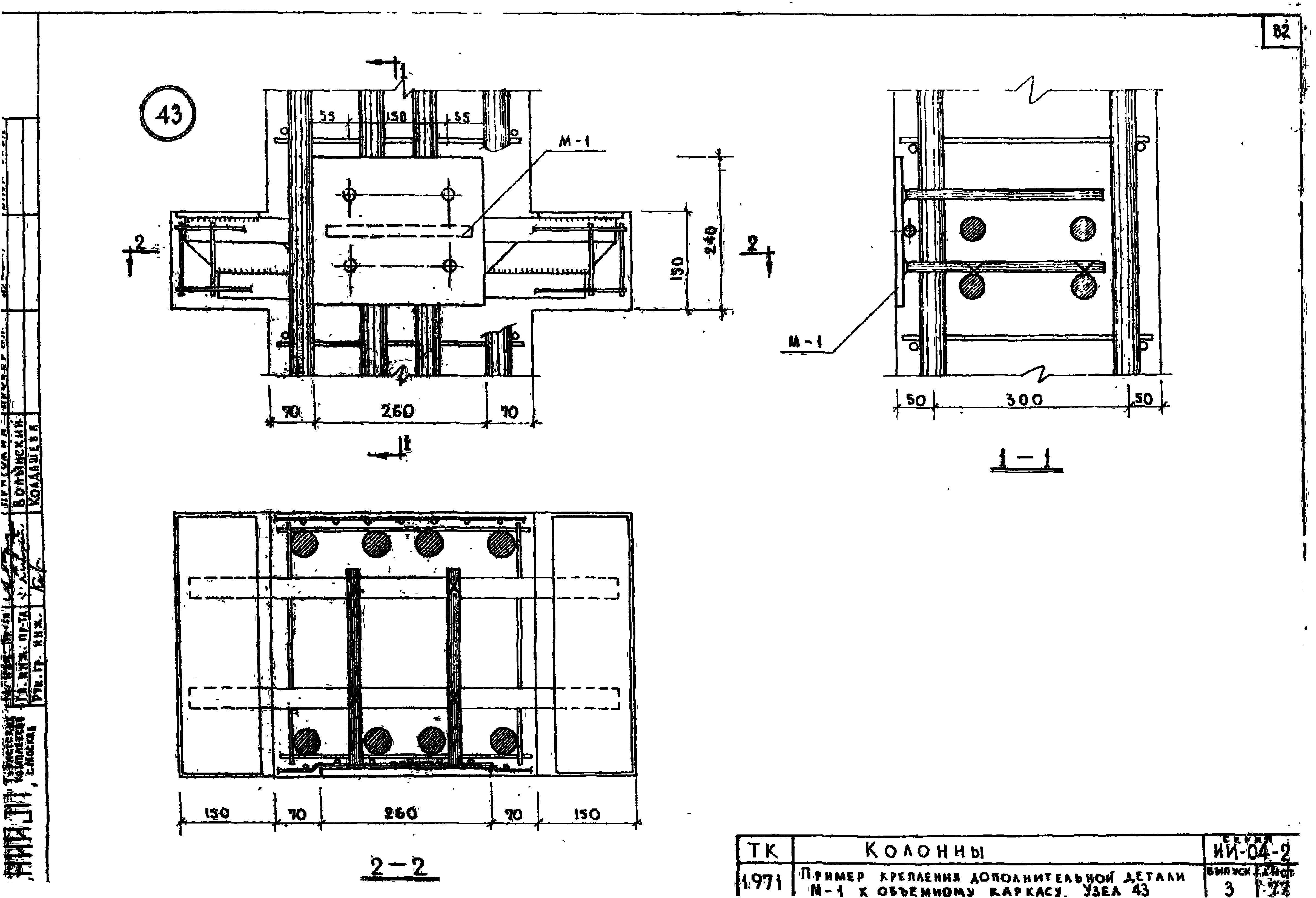
Скачать Серия ИИ-04-2 Выпуск 3. Колонны связевого каркаса сечением 40х40 см для зданий с высотой этажа 3,3 м, 2,4 м. Опалубка и армирование. Рабочие чертежиДата актуализации: 01.01.2021 Серия ИИ-04-2
Выпуск 3. Колонны связевого каркаса сечением 40х40 см для зданий с высотой этажа 3,3 м, 2,4 м. Опалубка и армирование. Рабочие чертежи| Обозначение: | Серия ИИ-04-2 | | Обозначение англ: | Series ИИ-04-2 | | Статус: | не действует | | Название рус.: | Выпуск 3. Колонны связевого каркаса сечением 40х40 см для зданий с высотой этажа 3,3 м, 2,4 м. Опалубка и армирование. Рабочие чертежи | | Дата добавления в базу: | 01.09.2013 | | Дата актуализации: | 01.01.2021 | | Разработан: | НИИЖБ Госстроя СССР ЦНИИЭП торгово-бытовых зданий и туристских комплексов
| | Утверждён: | 28.01.1972 Государственный комитет по гражданскому строительству и архитектуре при Госстрое СССР (9)
| | Чем заменён: | |
                                                                                     
|