Скачать Серия 1.479.5-1 Часть 2. Сборочные чертежи и деталиДата актуализации: 01.01.2021
|
| Обозначение: | Серия 1.479.5-1 |
| Обозначение англ: | Series 1.479.5-1 |
| Статус: | не определен законодательством |
| Название рус.: | Часть 2. Сборочные чертежи и детали |
| Дата добавления в базу: | 01.09.2013 |
| Дата актуализации: | 01.01.2021 |
| Дата введения: | 01.07.1981 |
| Дата окончания срока действия: | 30.06.2003 |
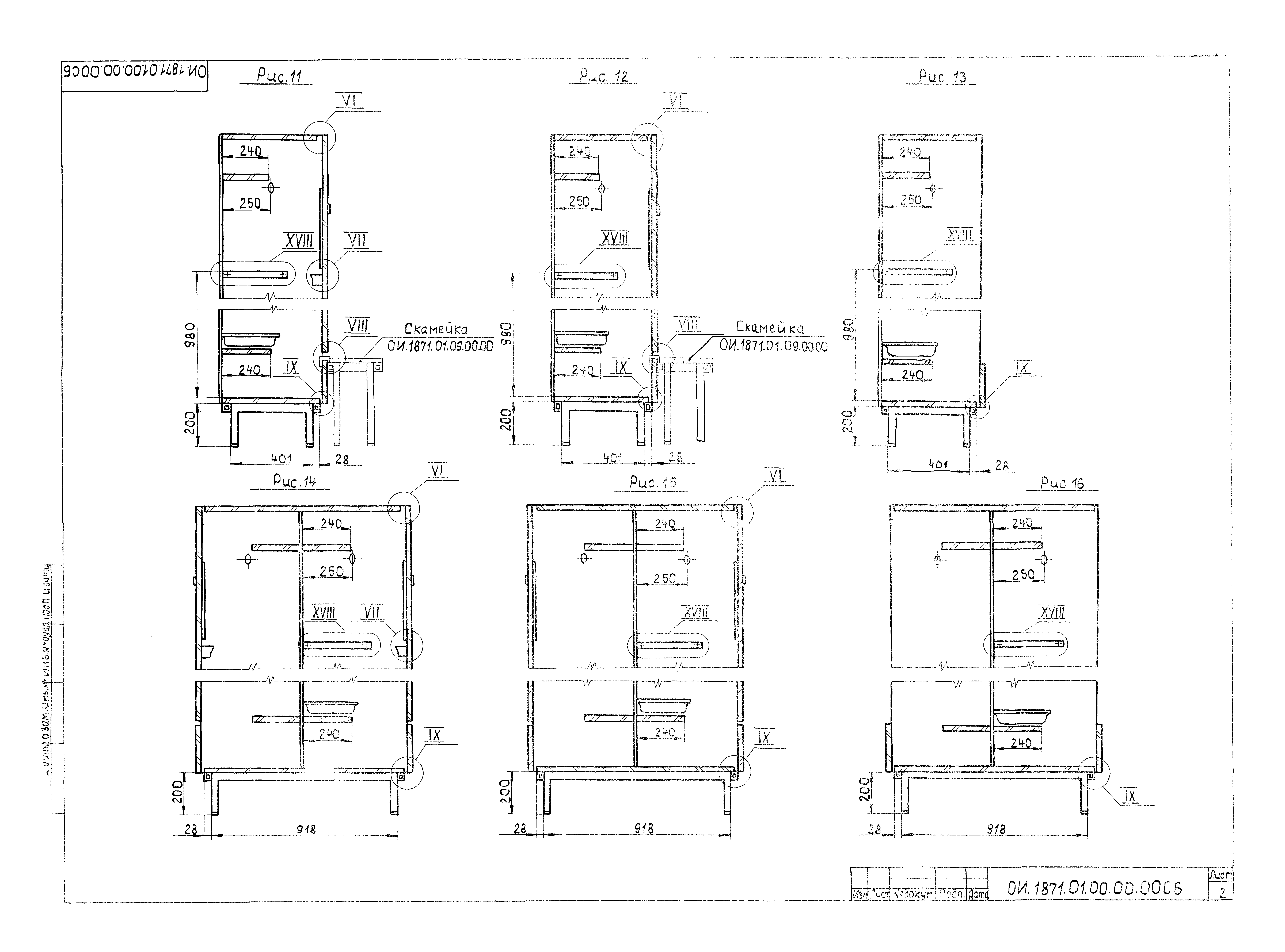
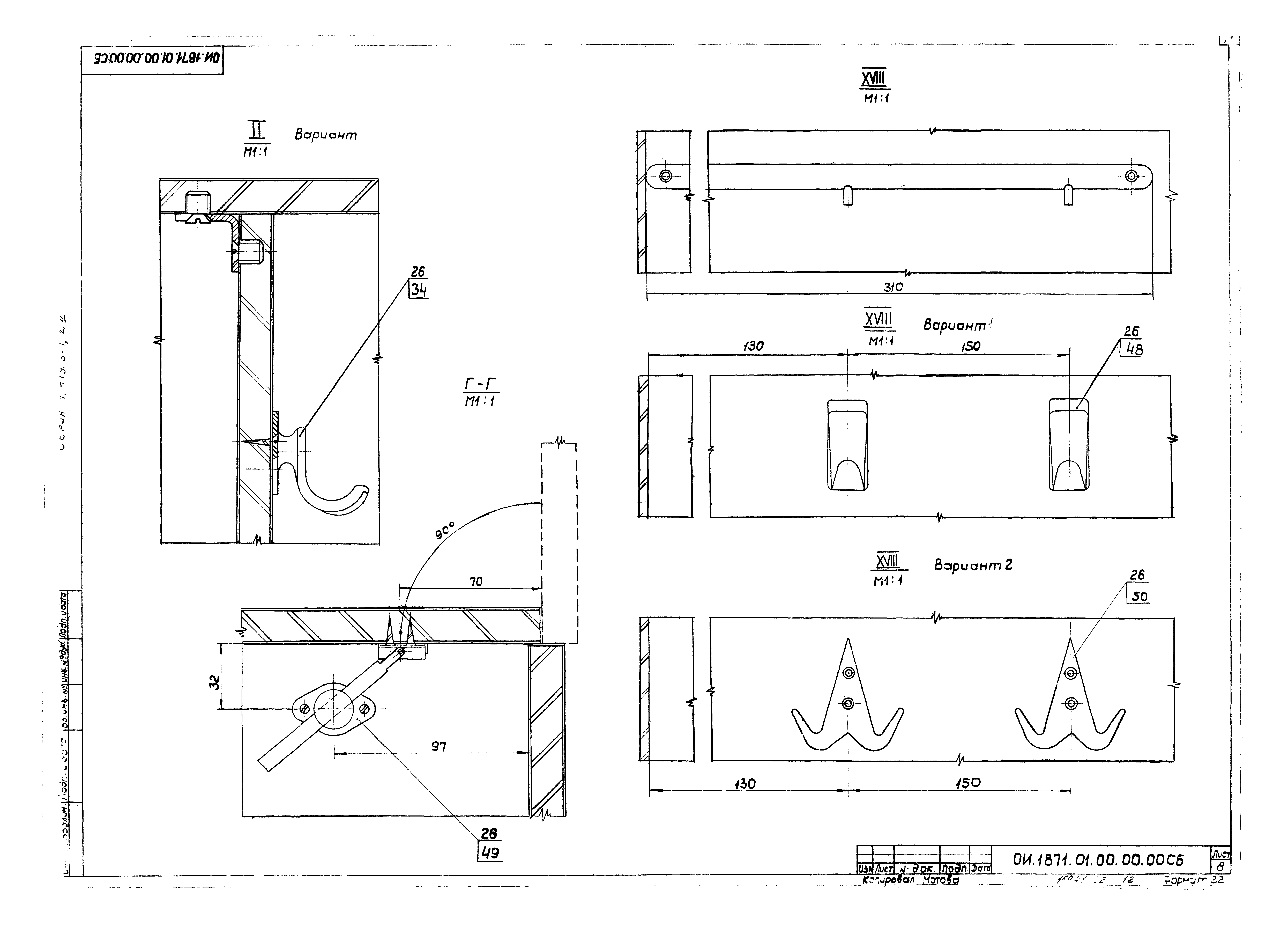
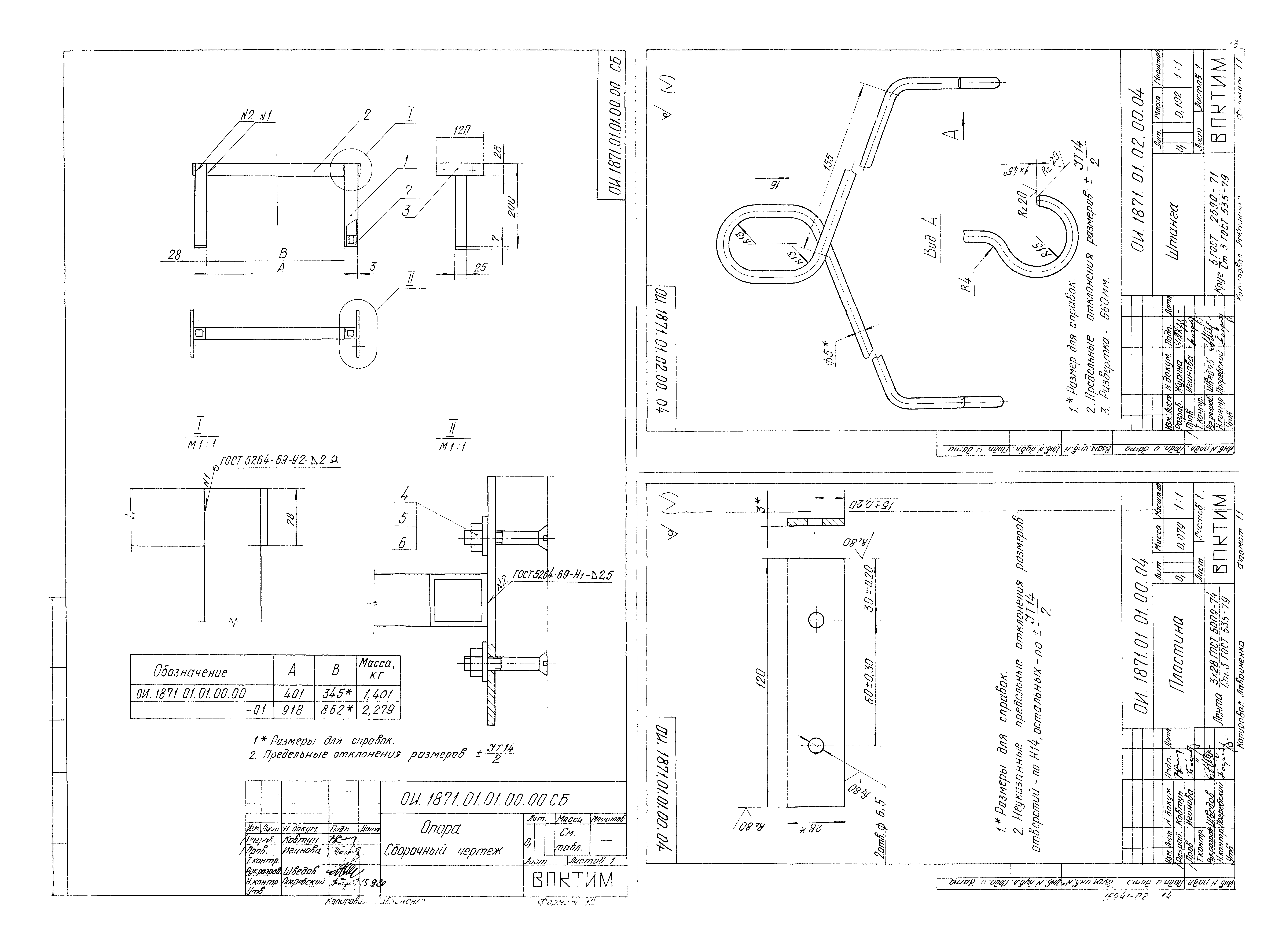
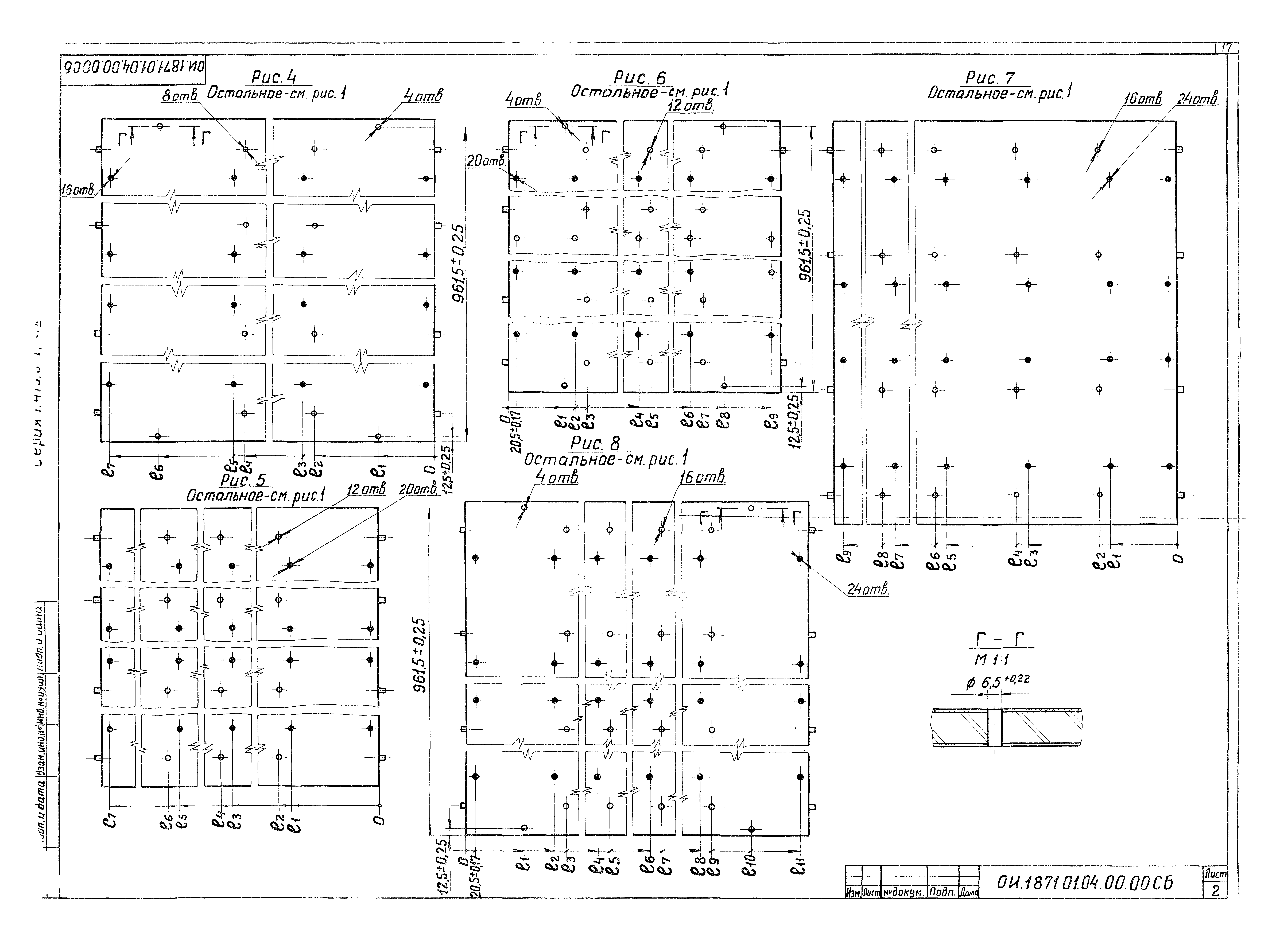
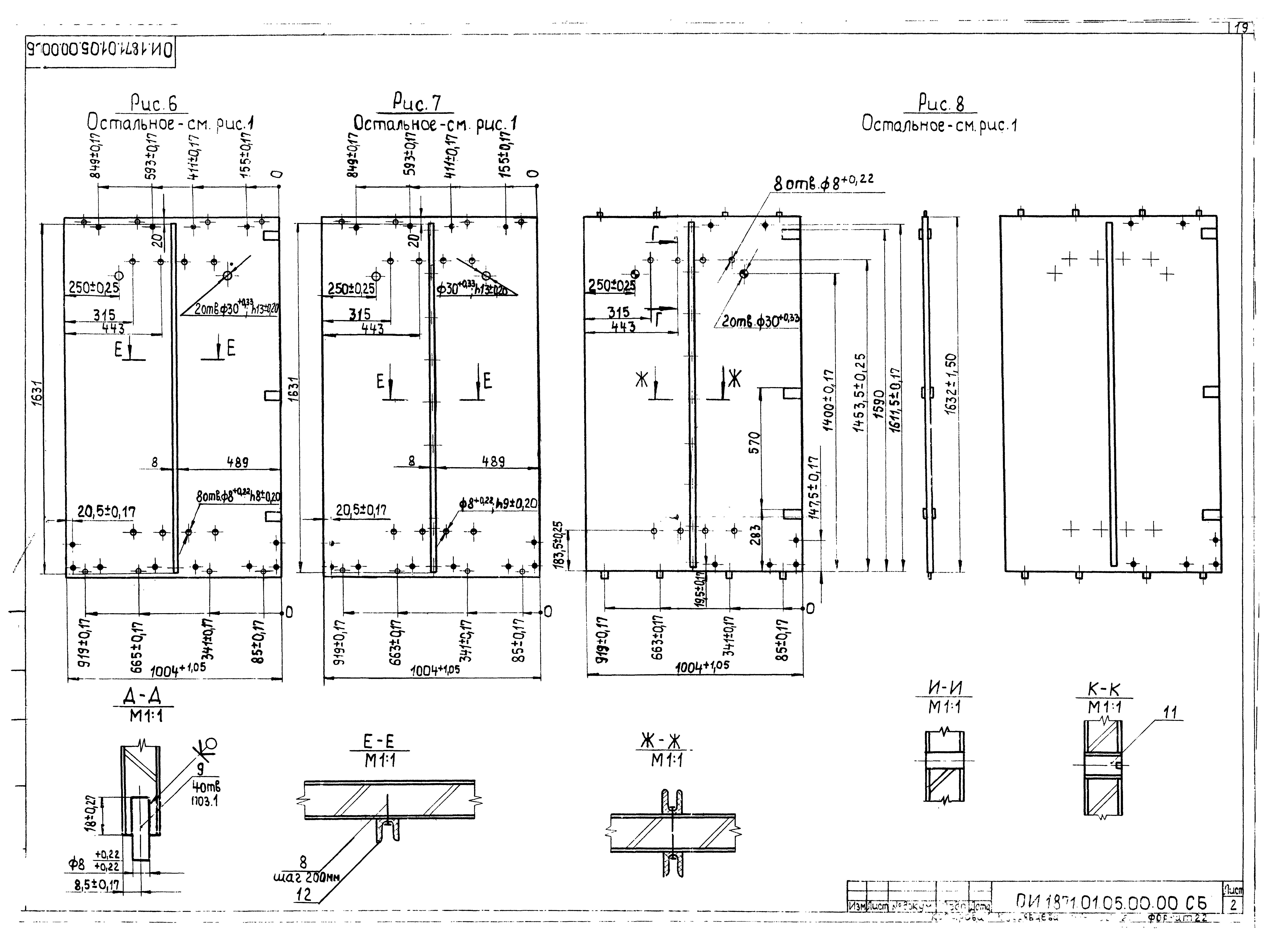
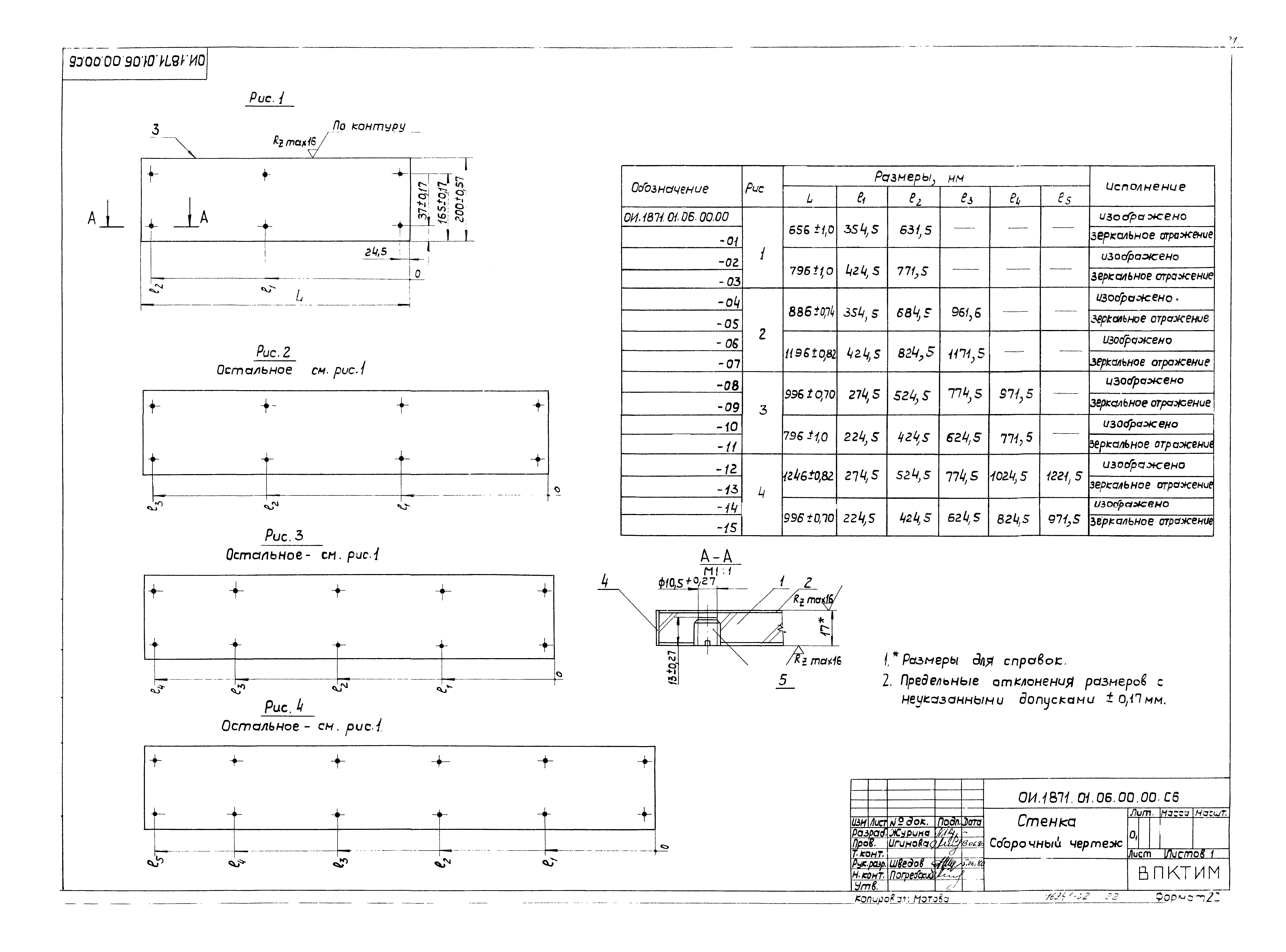
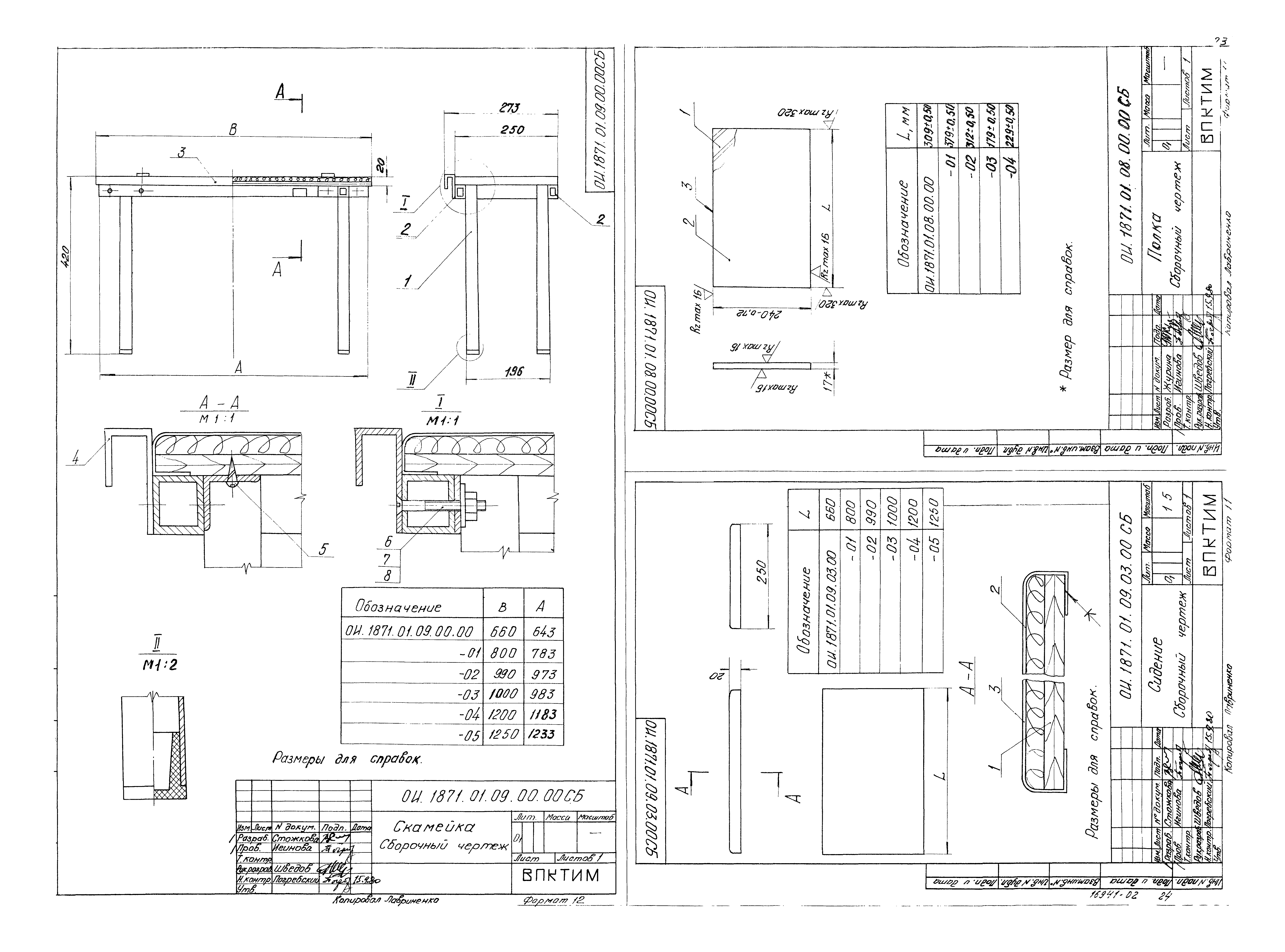
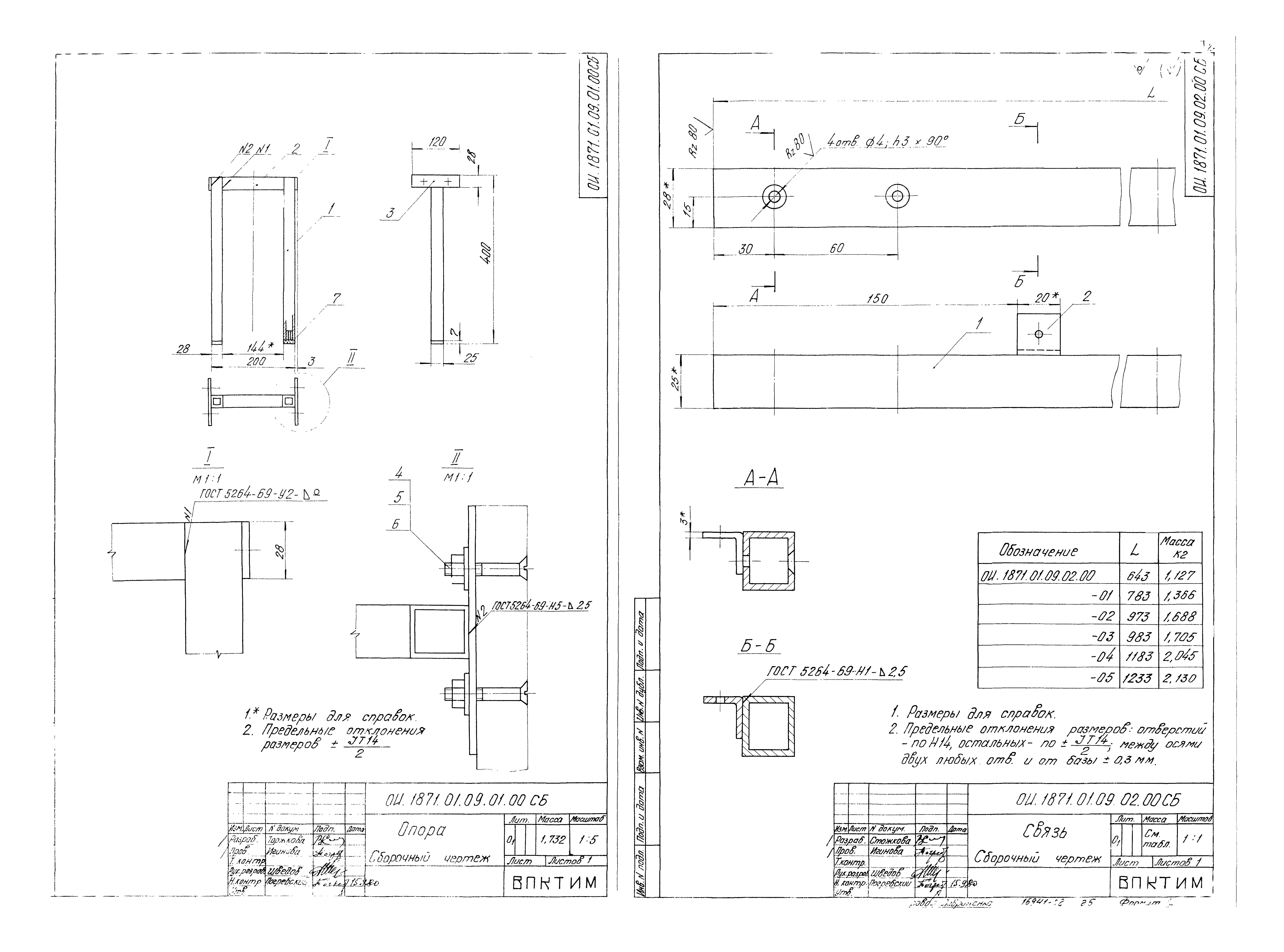
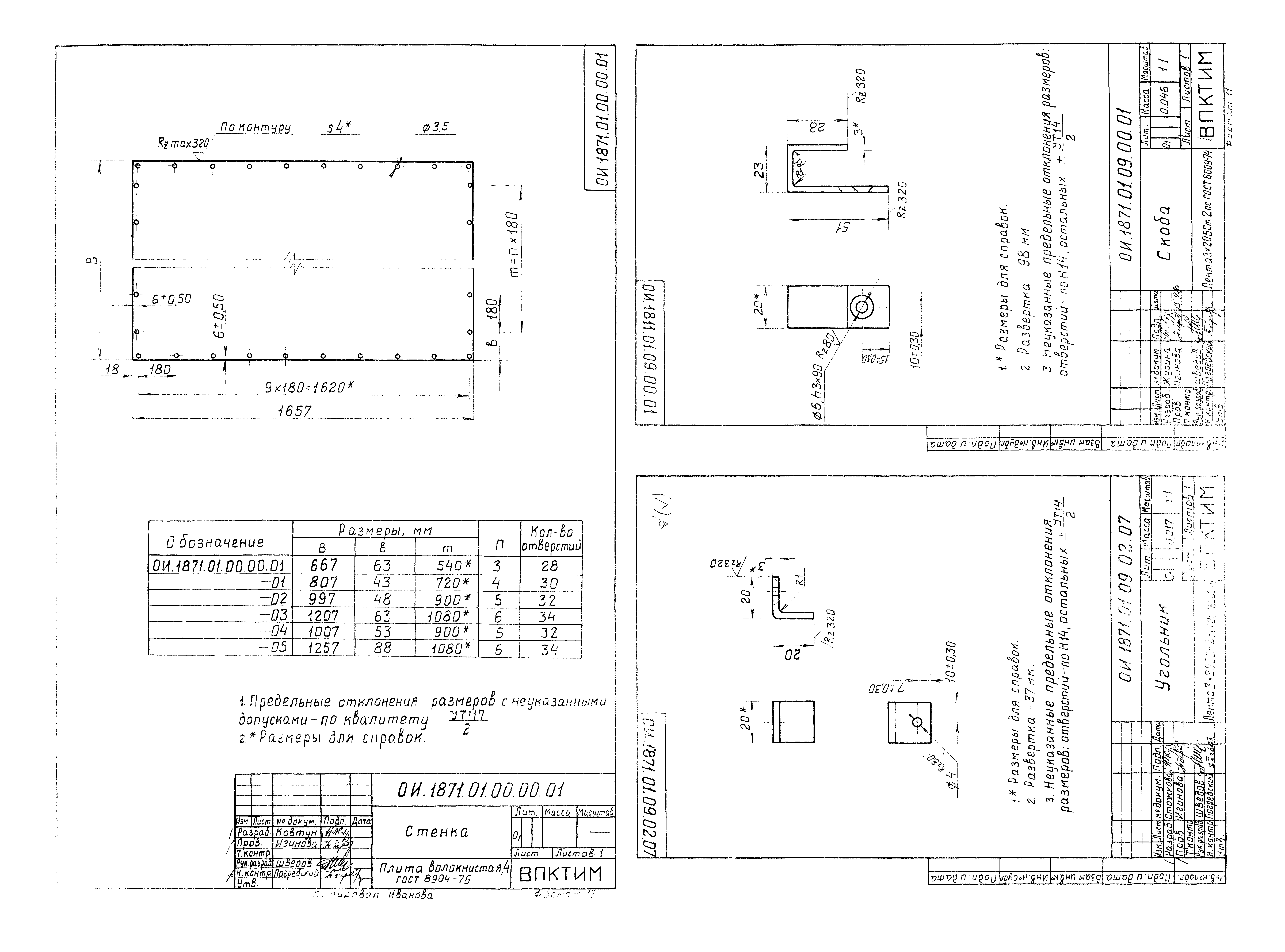
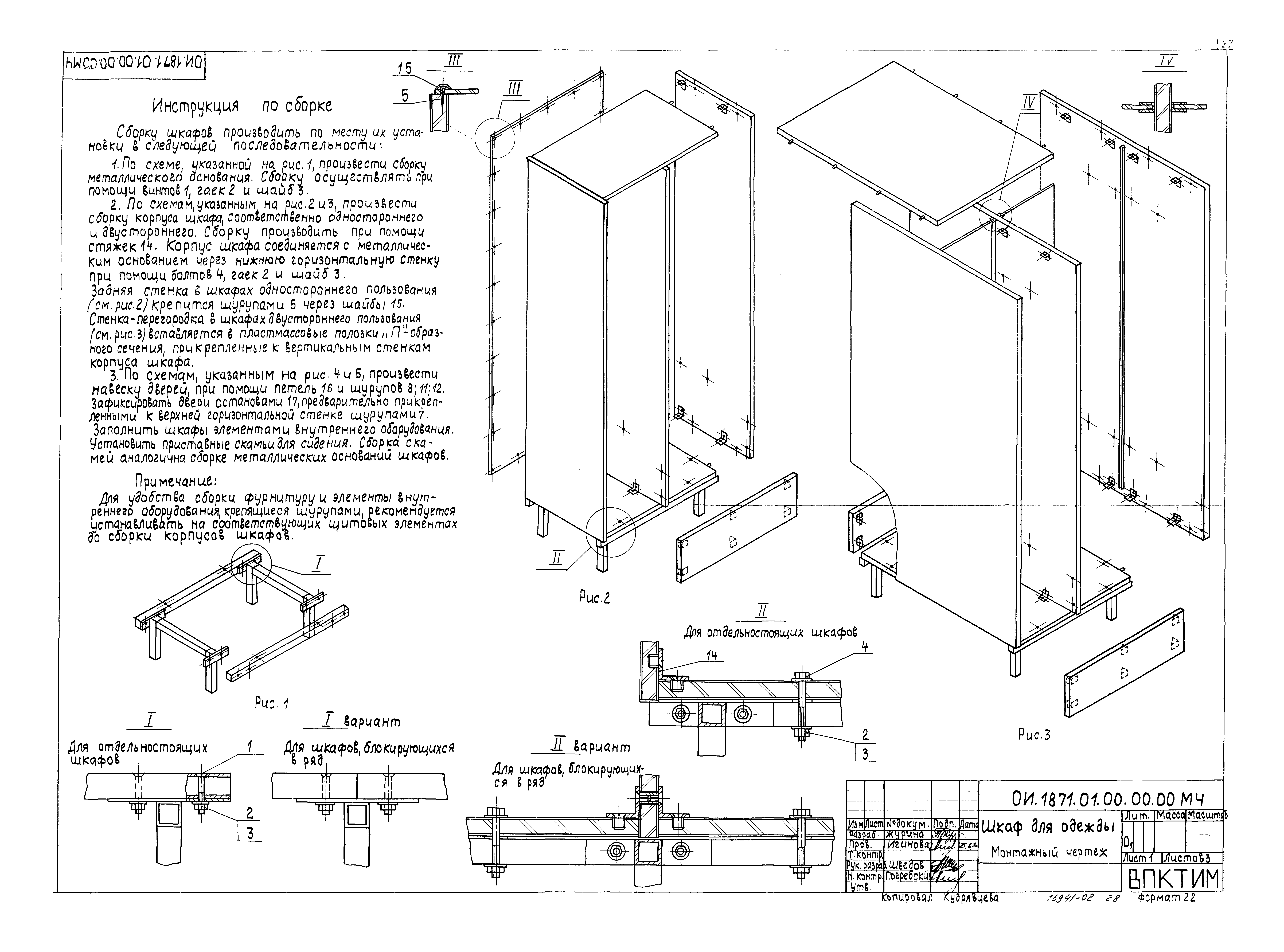
| Оглавление: | Краткая техническая характеристика ОИ 871.01.00.00.00 СБ Шкаф для одежды. Сборочный чертеж ОИ 871.01.01.00.00 СБ Опора. Сборочный чертеж ОИ 871.01.01.00.04 Пластина ОИ 871.01.02.00.04 Штанга ОИ 871.01.02.00.00 СБ Шторка. Сборочный чертеж ОИ 871.01.02.00.01 Брусок ОИ 871.01.02.00.02 Брусок ОИ 871.01.03.00.00 СБ Стенка. Сборочный чертеж ОИ 871.01.04.00.00 СБ Стенка. Сборочный чертеж ОИ 871.01.05.00.00 СБ Стенка. Сборочный чертеж ОИ 871.01.06.00.00 СБ Стенка. Сборочный чертеж ОИ 871.01.07.00.00 СБ Дверь. Сборочный чертеж ОИ 871.01.07.00.17 Зеркало ОИ 871.01.07.00.18 Индикатор ОИ 871.01.08.00.00 СБ Полка. Сборочный чертеж ОИ 871.01.09.00.00 СБ Скамейка. Сборочный чертеж ОИ 871.01.09.03.00 СБ Сидение. Сборочный чертеж ОИ 871.01.09.01.00 СБ Опора. Сборочный чертеж ОИ 871.01.09.02.00 СБ Связь. Сборочный чертеж ОИ 871.01.00.00.01 Стенка ОИ 871.01.09.02.07 Угольник ОИ 871.01.09.00.01 Скоба ОИ 871.01.00.00.08 Связь ОИ 871.01.00.00.00 МЧ Шкаф для одежды. Монтажный чертеж |
| Разработан: | ЦНИИпромзданий ВПКТИМ |
| Утверждён: | 09.03.1981 Госстрой СССР (Государственный комитет Совета Министров СССР по делам строительства) (USSR Gosstroy 31) |





























