Скачать Типовой проект 902-3-15 Альбом 5. Нестандартизированное оборудование (из ТП 902-3-14)Дата актуализации: 01.01.2021
|
| Обозначение: | Типовой проект 902-3-15 |
| Обозначение англ: | 902-3-15 |
| Статус: | не определен законодательством |
| Название рус.: | Альбом 5. Нестандартизированное оборудование (из ТП 902-3-14) |
| Дата добавления в базу: | 01.09.2013 |
| Дата актуализации: | 01.01.2021 |
| Дата введения: | 08.07.1981 |
| Дата окончания срока действия: | 30.06.2003 |
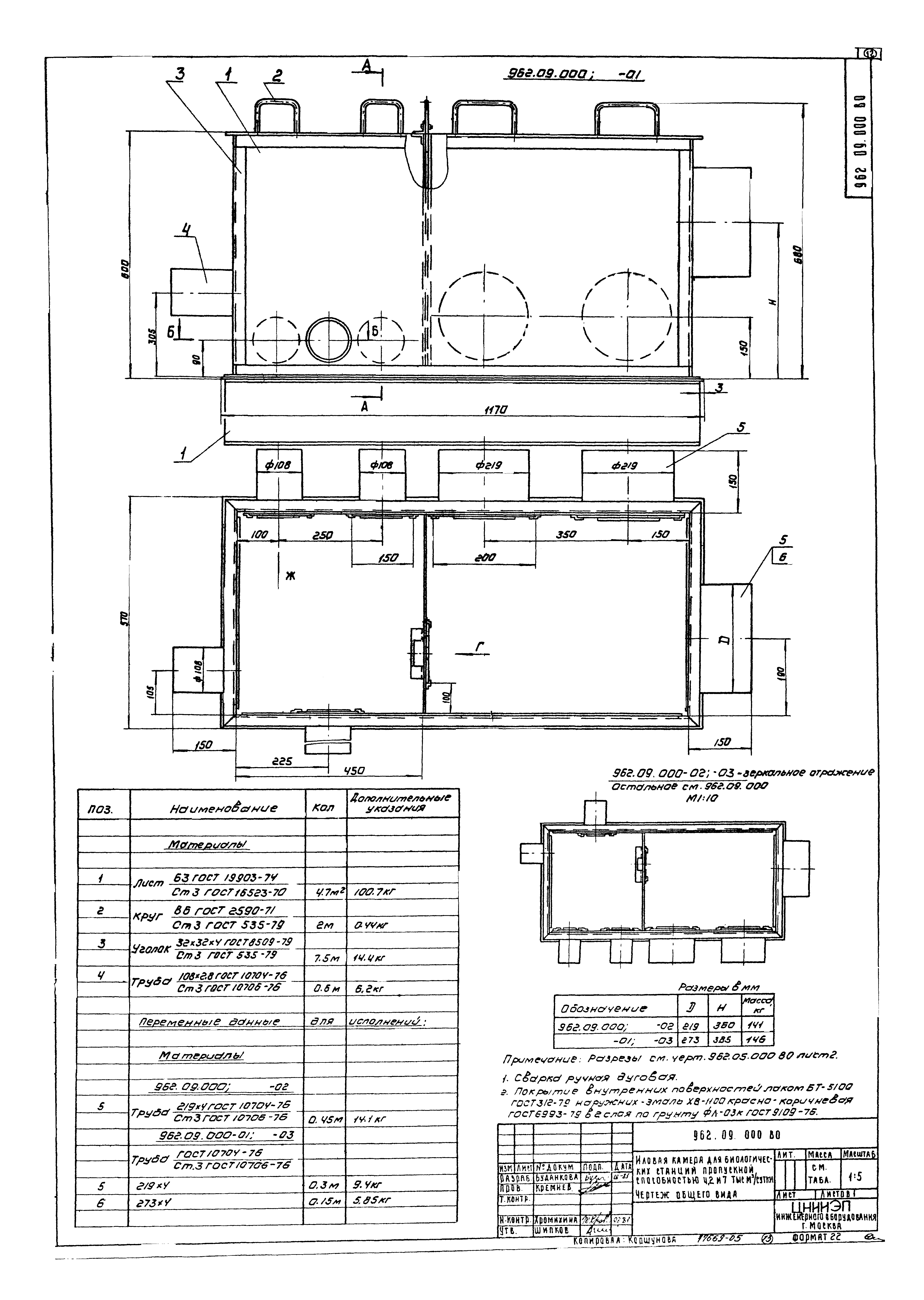
| Оглавление: | Содержание альбома Эрлифт для диагностических станций пропускной способностью 1,4 и 2,7 тыс. куб. м/сутки. Чертеж общего вида Эрлифт для диагностических станций пропускной способностью 4,2 и 7 тыс. куб. м/сутки. Чертеж общего вида Устройство для удаления плавающих веществ. Чертеж общего вида Устройство для удаления иловой воды. Чертеж общего вида Иловая камера для биологических станций пропускной способностью 1,4 и 2,7 тыс. куб. м/сутки. Чертеж общего вида. Лист 1 Иловая камера для биологических станций пропускной способностью 1,4 и 2,7 тыс. куб. м/сутки. Чертеж общего вида. Лист 2 Затвор глубинный. Чертеж общего вида. Лист 1 Затвор глубинный. Чертеж общего вида. Лист 2 Затвор трубный. Чертеж общего вида Лоток для измерения иловой воды. Чертеж общего вида Иловая камера для биологических станций пропускной способностью 4,2 и 7 тыс. куб. м/сутки. Чертеж общего вида |
| Разработан: | ЦНИИЭП |
| Утверждён: | 20.02.1981 Госгражданстрой (Gosgrazhdanstroy 59) |













