Скачать Серия 1.431-11 Выпуск 1. Конструкции, изделия и комплектующие материалыДата актуализации: 01.01.2021 Серия 1.431-11
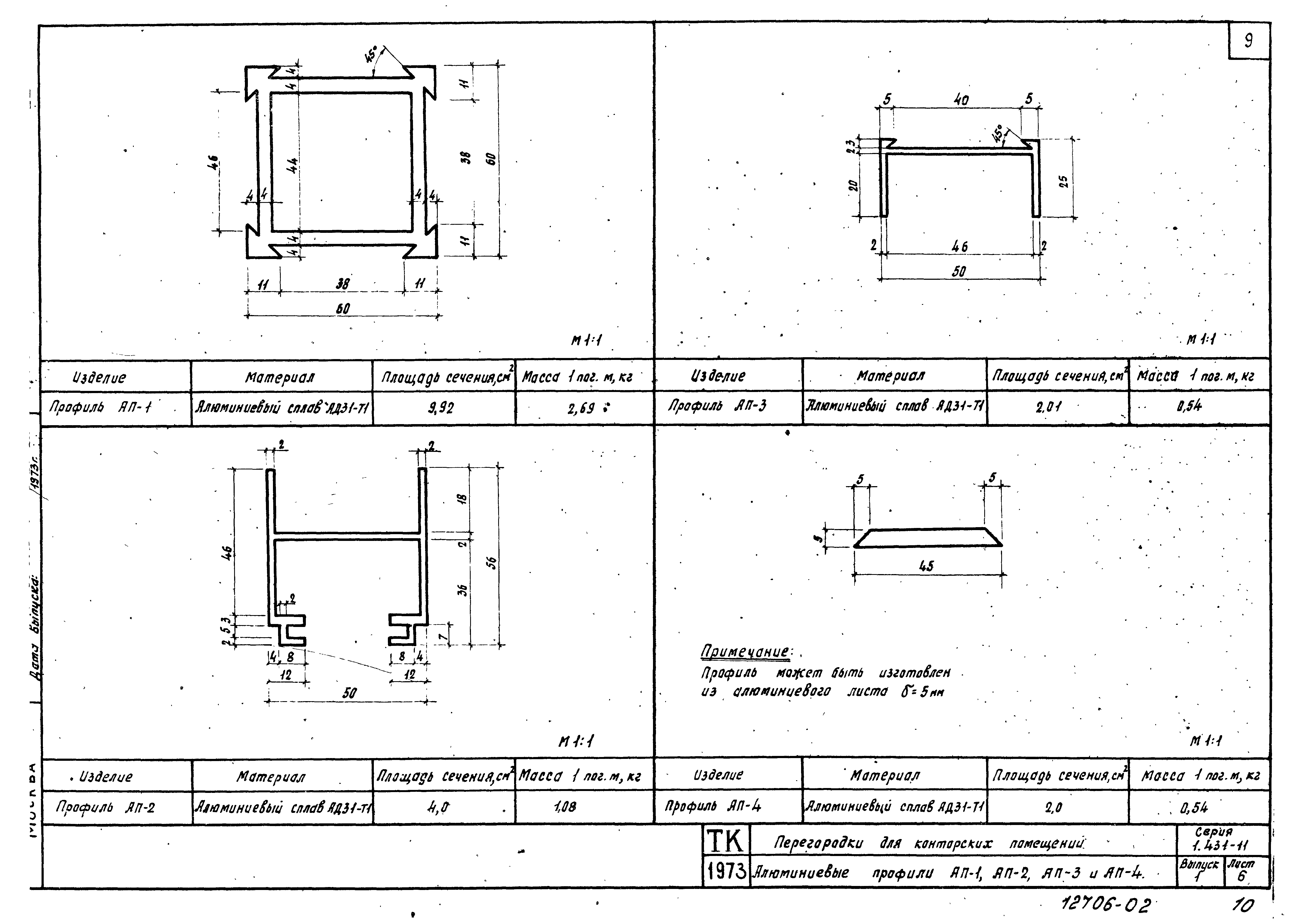
Выпуск 1. Конструкции, изделия и комплектующие материалы| Обозначение: | Серия 1.431-11 | | Обозначение англ: | Series 1.431-11 | | Статус: | не действует | | Название рус.: | Выпуск 1. Конструкции, изделия и комплектующие материалы | | Дата добавления в базу: | 01.09.2013 | | Дата актуализации: | 01.01.2021 | | Дата введения: | 01.02.1974 | | Дата окончания срока действия: | 01.05.1999 | | Область применения: | В настоящем выпуске приведены рабочие чертежи вставок, опорных башмаков, крышки стоек, алюминиевые и поливинилхлоридные профили | | Разработан: | ЦНИИпромзданий
| | Утверждён: | 29.08.1973 Госстрой СССР (Государственный комитет Совета Министров СССР по делам строительства) (USSR Gosstroy 2/2-353)
| | Нормативные ссылки: | |
            
|