Скачать Типовой проект 407-3-612.91 Альбом I. Пояснительная записка. Электротехнические решения. Конструкции строительные. Ведомость потребности в материалахДата актуализации: 01.01.2021
|
| Обозначение: | Типовой проект 407-3-612.91 |
| Обозначение англ: | 407-3-612.91 |
| Статус: | не определен законодательством |
| Название рус.: | Альбом I. Пояснительная записка. Электротехнические решения. Конструкции строительные. Ведомость потребности в материалах |
| Дата добавления в базу: | 01.09.2013 |
| Дата актуализации: | 01.01.2021 |
| Дата введения: | 10.09.1991 |
| Дата окончания срока действия: | 30.06.2003 |
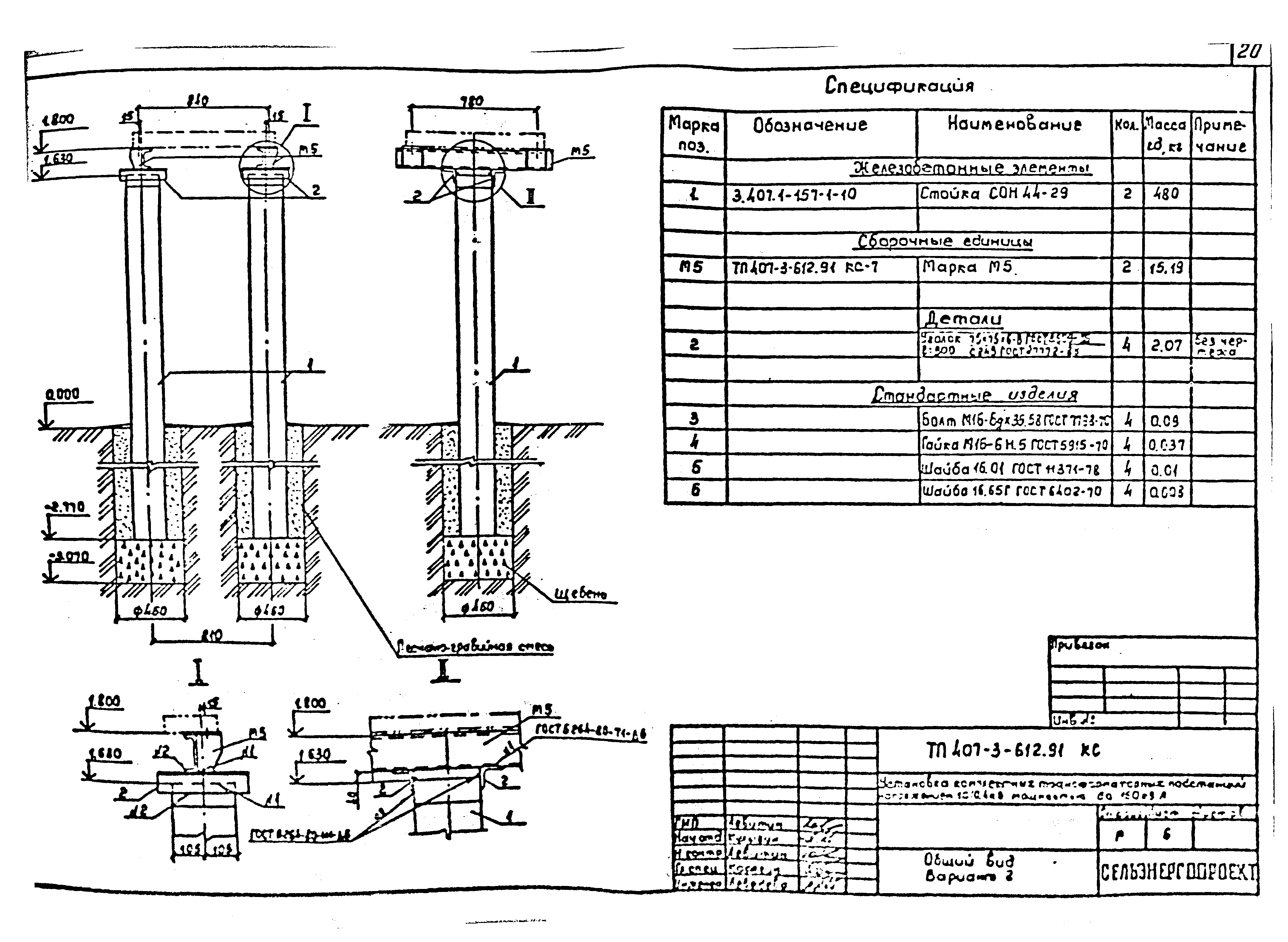
| Оглавление: | Содержание Пояснительная записка Электротехнические решения Общие данные Схема электрическая принципиальная КТП 25 - 100/10/0.4-90У1 Схема электрическая принципиальная КТП 160/10/0.4-90У1 Спецификация. Таблица выбора аппаратуры Общий вид КТП Присоединение ВЛ10 и 0.4 кВ к КТП (Пример) Блокировка КТП Конструкции строительные Общие данные Общий вид. Вариант 1 Марка М1 Марка М2 Марки М3; М4 Общий вид. Вариант 2 Марка М5 Общий вид. Вариант 3 Ведомость потребности в материалах. Вариант строительных конструкций 1 Ведомость потребности в материалах. Вариант строительных конструкций 2 Ведомость потребности в материалах. Вариант строительных конструкций 3 |
| Разработан: | Сельэнергопроект Минэнерго СССР |
| Утверждён: | 23.08.1991 Минэнерго СССР (USSR Minenergo ) |
| Заменяет собой: |
























