Скачать Типовой проект 902-1-54 Альбом 11. Сборные железобетонные изделия (глубина заложения подводящего коллектора 7,0 м). Вариант сборная стена в грунтеДата актуализации: 01.01.2021
|
| Обозначение: | Типовой проект 902-1-54 |
| Обозначение англ: | 902-1-54 |
| Статус: | не определен законодательством |
| Название рус.: | Альбом 11. Сборные железобетонные изделия (глубина заложения подводящего коллектора 7,0 м). Вариант "сборная стена в грунте" |
| Дата добавления в базу: | 01.09.2013 |
| Дата актуализации: | 01.01.2021 |
| Дата введения: | 01.12.1980 |
| Дата окончания срока действия: | 30.06.2003 |
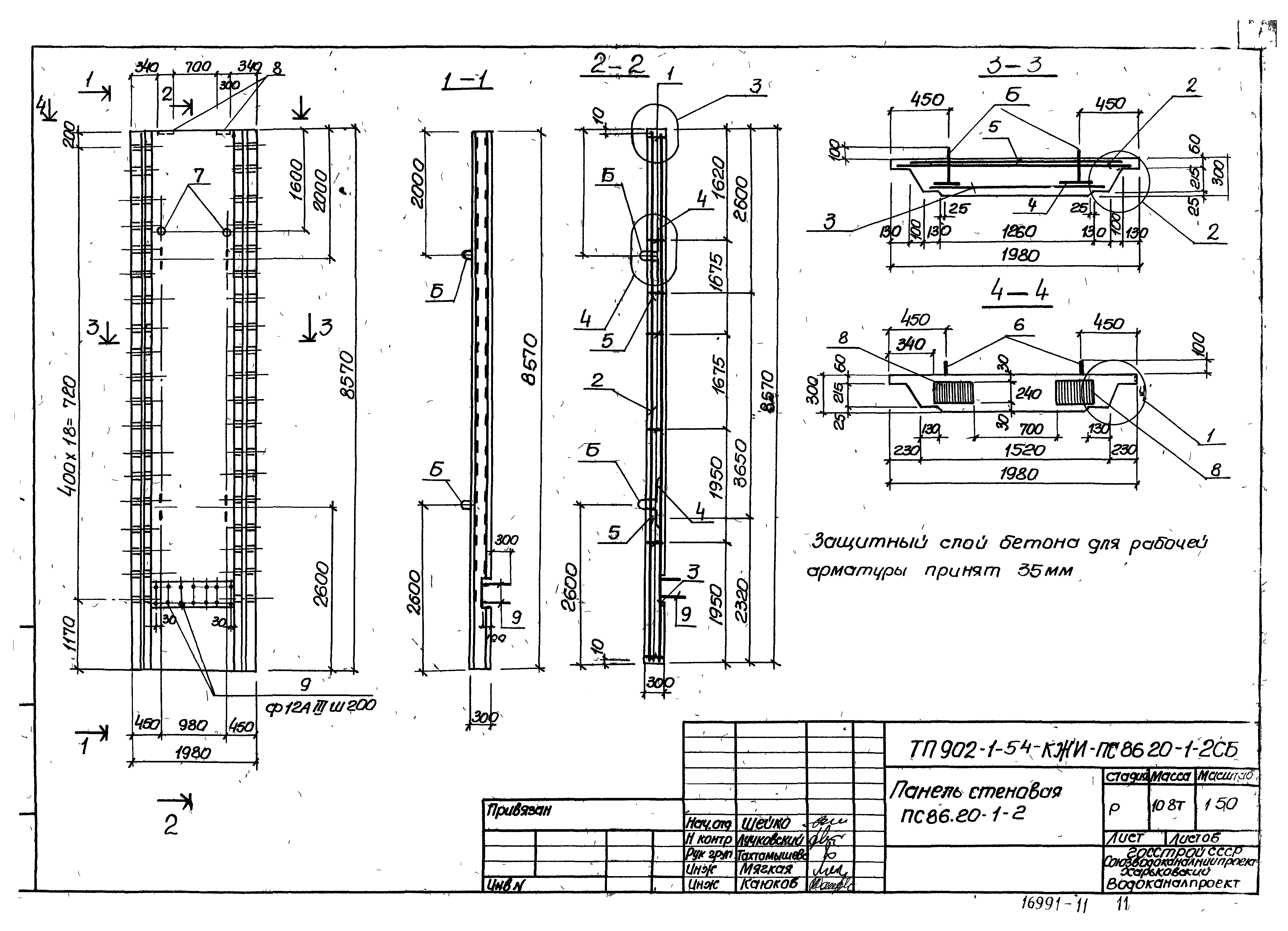
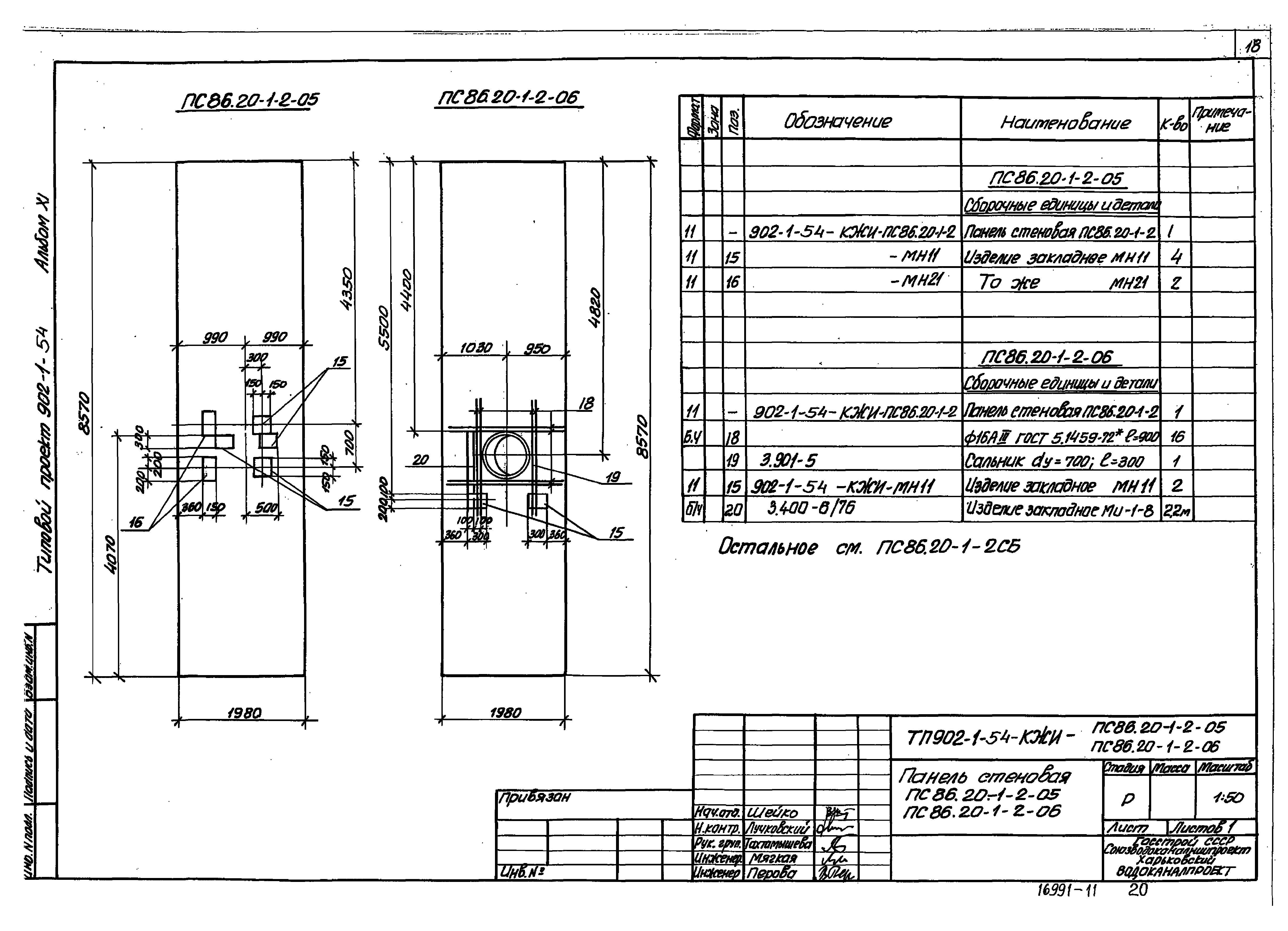
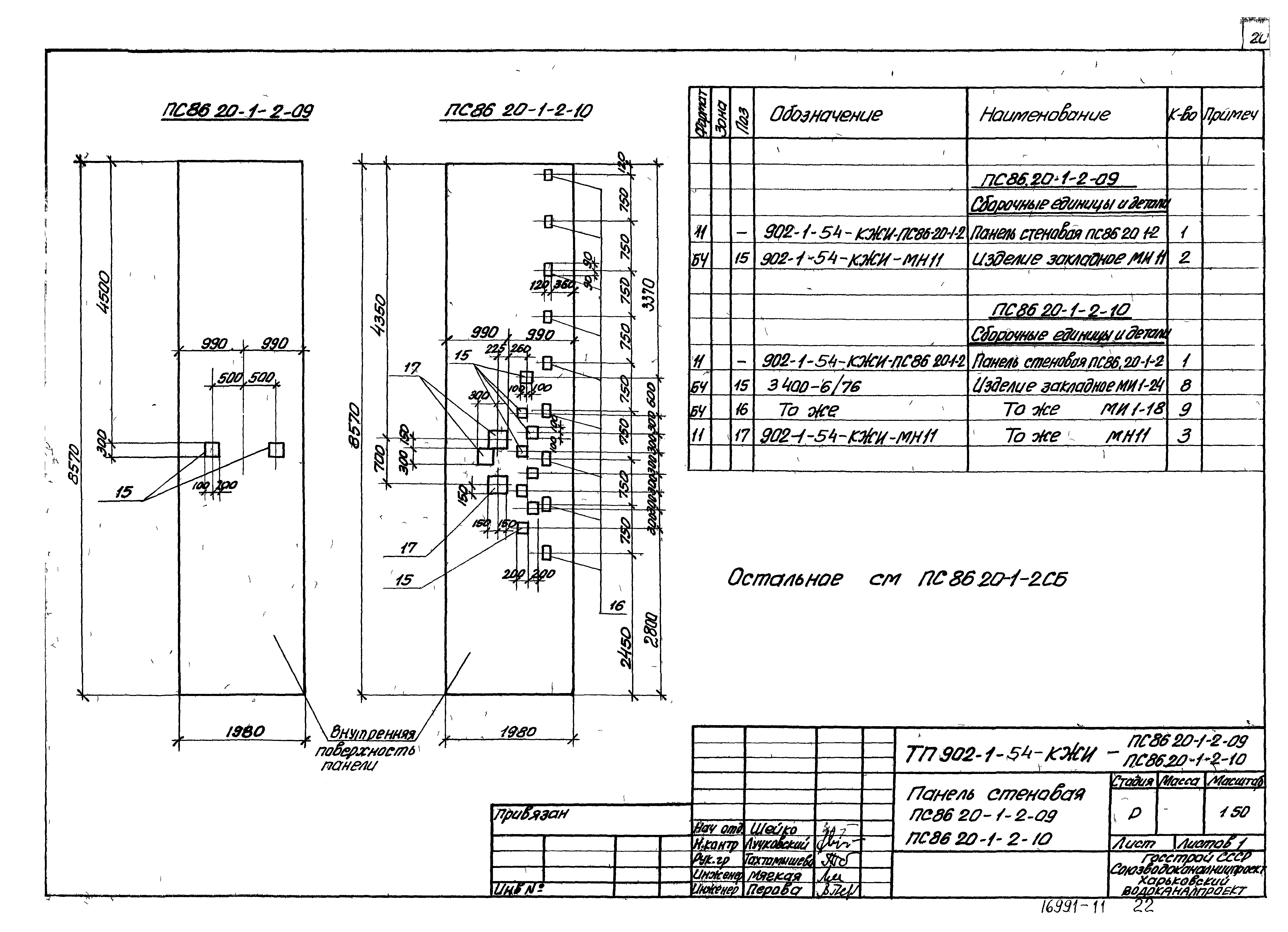
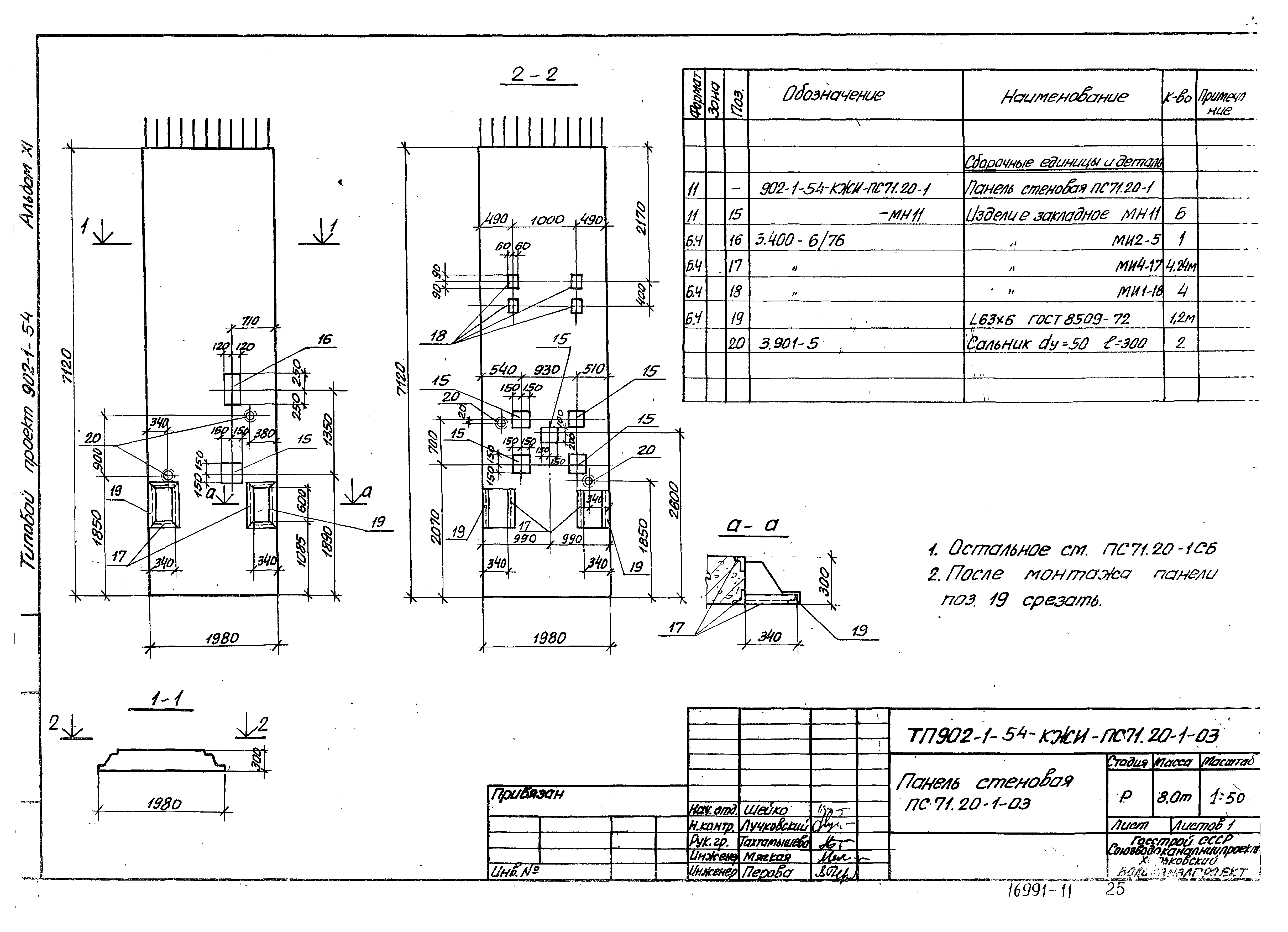
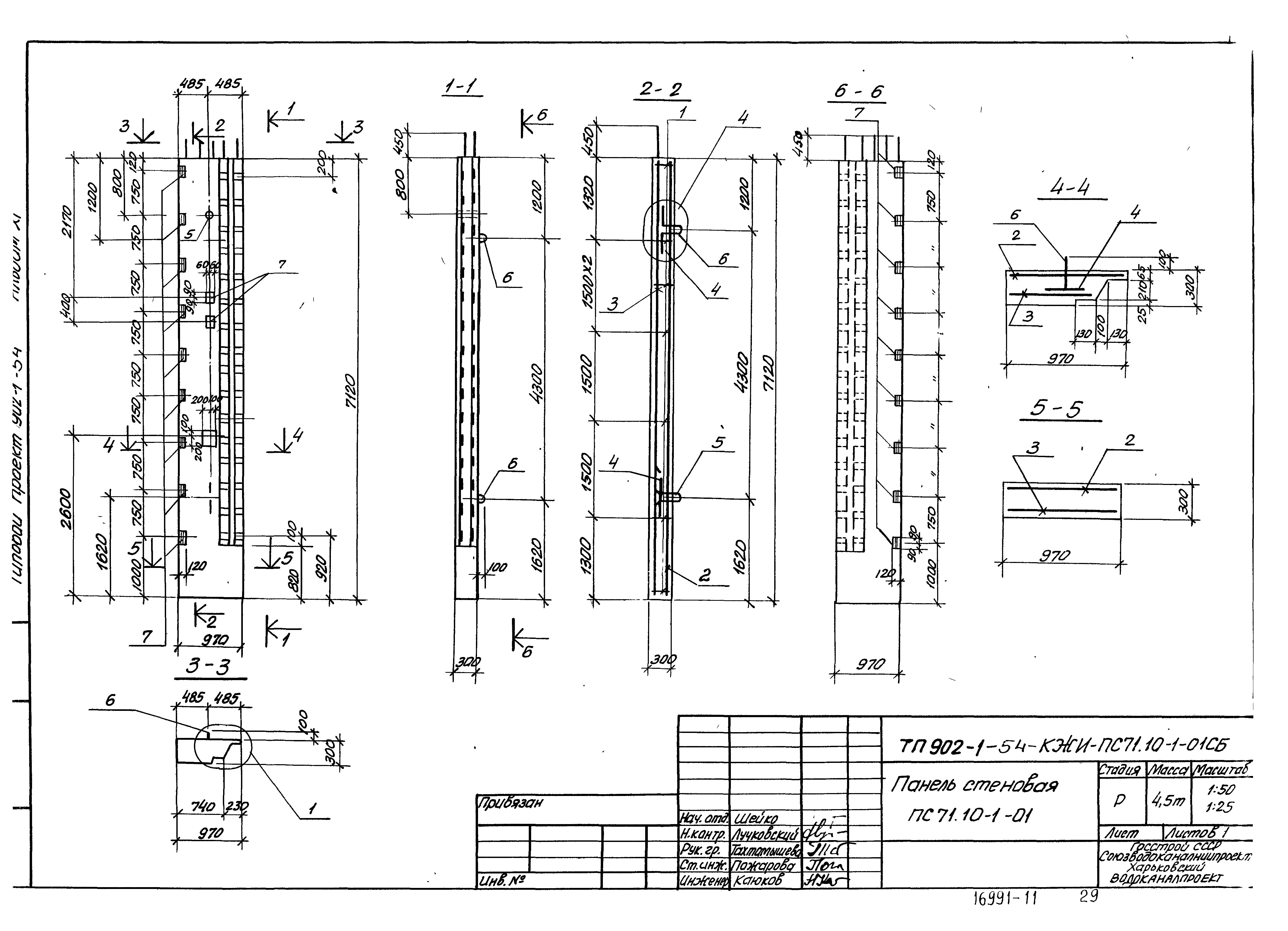
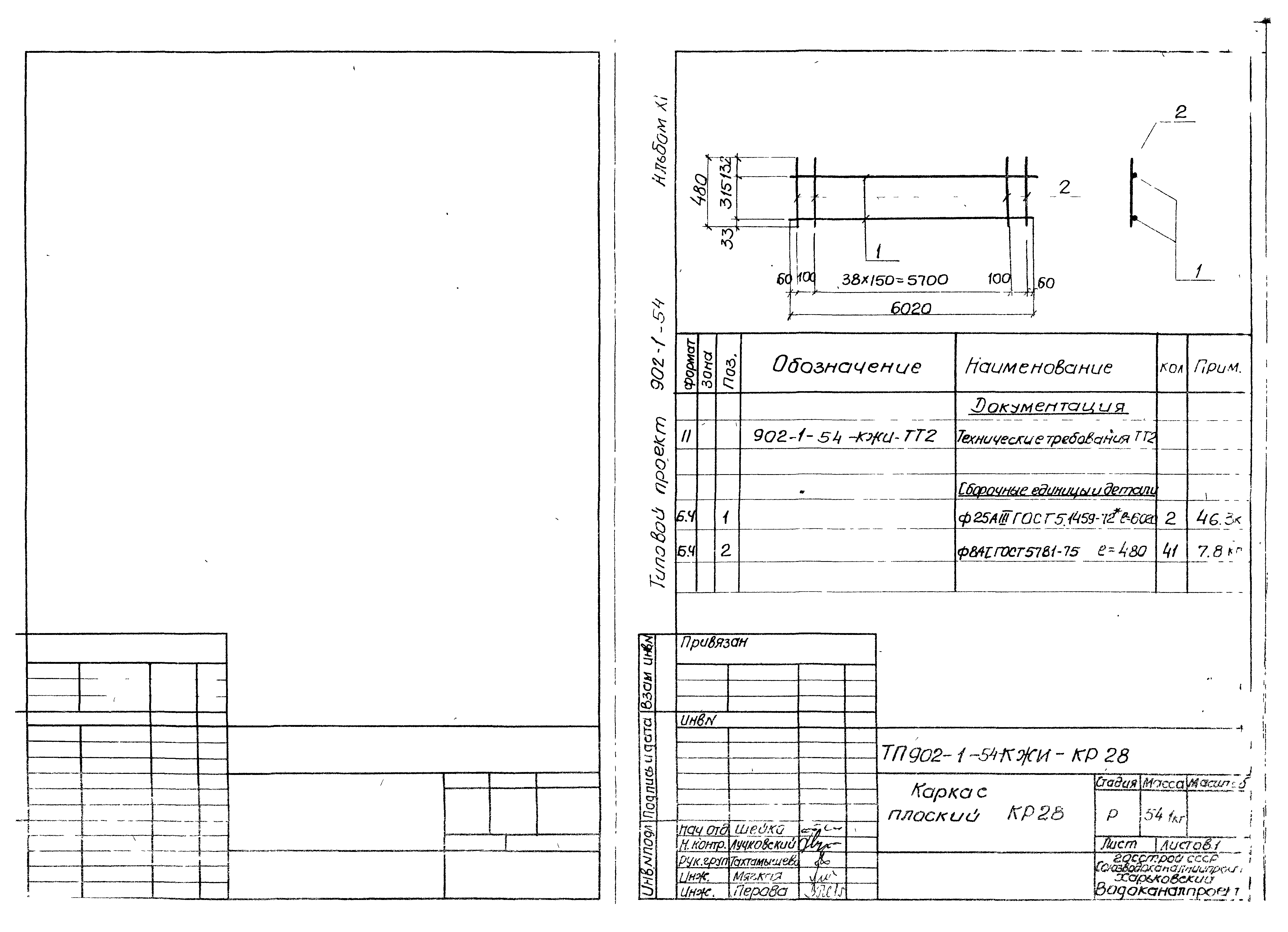
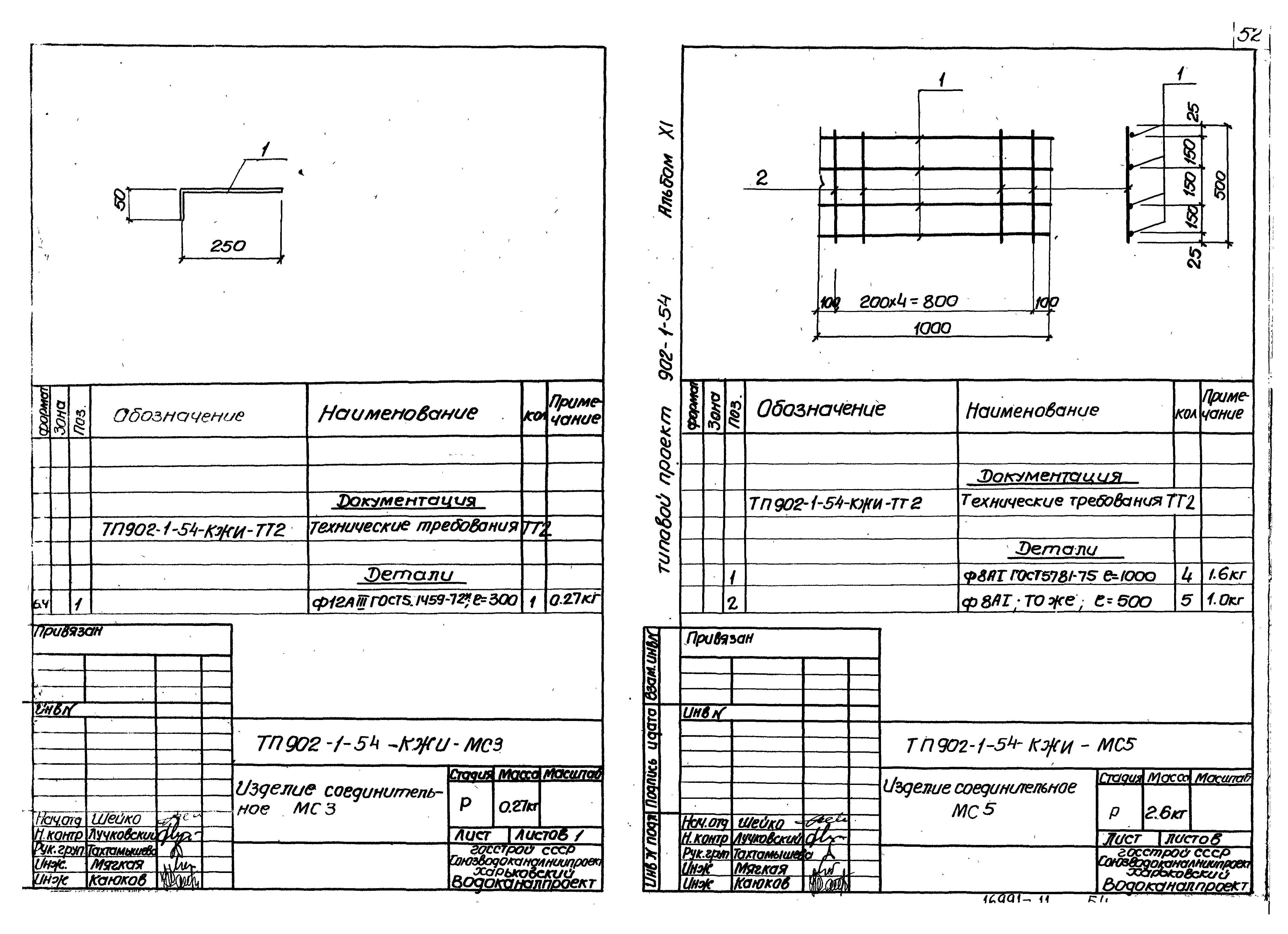
| Оглавление: | 902-1-54-КЖИ-ВД Ведомость документов 902-1-54-КЖИ-ТТ1 Технические требования к изготовлению сборных железобетонных изделий 902-1-54-КЖИ-ТТ2 Технические требования к изготовлению арматурных и закладных изделий 902-1-54-КЖИ-У Узлы 1 - 5 902-1-54-КЖИ-ВС Выборка стали 902-1-54-КЖИ-ПС86.20-1-1 Панель стеновая ПС86.20-1-1 902-1-54-КЖИ-ПС86.20-1-2 Панель стеновая ПС86.20-1-2 902-1-54-КЖИ-ПС71.20-1 Панель стеновая ПС71.20-1 902-1-54-КЖИ-ПС86.20-1-1СБ Панель стеновая ПС86.20-1-1 902-1-54-КЖИ-ПС86.20-1-2СБ Панель стеновая ПС86.20-1-2 902-1-54-КЖИ-ПС71.20-1СБ Панель стеновая ПС71.20-1 902-1-54-КЖИ-ПС86.20-1-1-01 Панель стеновая ПС86.20-1-1-01 902-1-54-КЖИ-ПС86.20-1-1-02 Панель стеновая ПС86.20-1-1-02 902-1-54-КЖИ-ПС86.20-1-1-03 Панель стеновая ПС86.20-1-1-03 902-1-54-КЖИ-ПС86.20-1-1-04 Панель стеновая ПС86.20-1-1-04 902-1-54-КЖИ-ПС86.20-1-1-05 Панель стеновая ПС86.20-1-1-05 902-1-54-КЖИ-ПС86.20-1-1-06 Панель стеновая ПС86.20-1-1-06 902-1-54-КЖИ-ПС86.20-1-1-07 Панель стеновая ПС86.20-1-1-07 902-1-54-КЖИ-ПС86.20-1-1-08 Панель стеновая ПС86.20-1-1-08 902-1-54-КЖИ-ПС86.20-1-1-09 Панель стеновая ПС86.20-1-1-09 902-1-54-КЖИ-ПС86.20-1-1-10 Панель стеновая ПС86.20-1-1-10 902-1-54-КЖИ-ПС86.20-1-2-01 Панель стеновая ПС86.20-1-2-01 902-1-54-КЖИ-ПС86.20-1-2-02 Панель стеновая ПС86.20-1-2-02 902-1-54-КЖИ-ПС86.20-1-2-03 Панель стеновая ПС86.20-1-2-03 902-1-54-КЖИ-ПС86.20-1-2-04 Панель стеновая ПС86.20-1-2-04 902-1-54-КЖИ-ПС86.20-1-2-05 Панель стеновая ПС86.20-1-2-05 902-1-54-КЖИ-ПС86.20-1-2-06 Панель стеновая ПС86.20-1-2-06 902-1-54-КЖИ-ПС86.20-1-2-07 Панель стеновая ПС86.20-1-2-07 902-1-54-КЖИ-ПС86.20-1-2-08 Панель стеновая ПС86.20-1-2-08 902-1-54-КЖИ-ПС86.20-1-2-09 Панель стеновая ПС86.20-1-2-09 902-1-54-КЖИ-ПС86.20-1-2-10 Панель стеновая ПС86.20-1-2-10 902-1-54-КЖИ-ПС71.20-1-01 Панель стеновая ПС71.20-1-01 902-1-54-КЖИ-ПС71.20-1-02 Панель стеновая ПС71.20-1-02 902-1-54-КЖИ-ПС71.20-1-03 Панель стеновая ПС71.20-1-03 902-1-54-КЖИ-ПС71.20-1-04 Панель стеновая ПС71.20-1-04 902-1-54-КЖИ-ПС71.20-1-05 Панель стеновая ПС71.20-1-05 902-1-54-КЖИ-ПС71.10-1-01 Панель стеновая ПС71.10-1-01 902-1-54-КЖИ-ПС71.10-1-02 Панель стеновая ПС71.10-1-02 902-1-54-КЖИ-ПС71.10-1-01СБ Панель стеновая ПС71.10-1-01 902-1-54-КЖИ-ПС71.10-1-02СБ Панель стеновая ПС71.10-1-02 902-1-54-КЖИ-Б1 Балка Б1 (для t = - 20; t = - 30 градусов Цельсия) 902-1-54-КЖИ-Б1 Балка Б1 (для t = - 40 градусов Цельсия) 902-1-54-КЖИ-Б1А Балка Б1А (для t = - 20; t = - 30 градусов Цельсия) 902-1-54-КЖИ-Б1А Балка Б1А (для t = - 40 градусов Цельсия) 902-1-54-КЖИ-Б1, Б1АСБ Балка Б1, Б1А 902-1-54-КЖИ-Б2, Б2А Балка Б2, Б2А (для t = - 20; t = - 30 градусов Цельсия) 902-1-54-КЖИ-Б2, Б2А Балка Б2, Б2А (для t = - 40 градусов Цельсия) 902-1-54-КЖИ-Б2, Б2АСБ Балка Б2, Б2А 902-1-54-КЖИ-Б3, Б4 Балка Б3, Б4 902-1-54-КЖИ-КП3 Каркас пространственный КП3 902-1-54-КЖИ-КП2 Каркас пространственный КП2 902-1-54-КЖИ-КП5 Каркас пространственный КП5 902-1-54-КЖИ-КП4 Каркас пространственный КП4 902-1-54-КЖИ-КП6 Каркас пространственный КП6 902-1-54-КЖИ-Кр22, Кр23 Каркас плоский Кр22, Кр23 902-1-54-КЖИ-Кр27 Каркас плоский Кр27 902-1-54-КЖИ-Кр26 Каркас плоский Кр26 902-1-54-КЖИ-Кр28 Каркас плоский Кр28 902-1-54-КЖИ-С10 Сетка арматурная С10 902-1-54-КЖИ-С11 Сетка арматурная С11 902-1-54-КЖИ-С13 Сетка арматурная С13 902-1-54-КЖИ-С12 Сетка арматурная С12 902-1-54-КЖИ-С14 Сетка арматурная С14 902-1-54-КЖИ-С15 Сетка арматурная С15 902-1-54-КЖИ-С16, С17 Сетка арматурная С16, С17 902-1-54-КЖИ-С18, С19 Сетка арматурная С18, С19 902-1-54-КЖИ-Мн12, Мн18 Изделие закладное Мн12, Мн18 902-1-54-КЖИ-Мн15, Мн19 Изделие закладное Мн15, Мн19 902-1-54-КЖИ-Мн14, Мн26 Изделие закладное Мн14, Мн26 902-1-54-КЖИ-Мн11 Изделие закладное Мн11 902-1-54-КЖИ-Мн17 Изделие закладное Мн17 902-1-54-КЖИ-Мн22, Мн23 Изделие закладное Мн22, Мн23 902-1-54-КЖИ-Мс10, Мс11 Изделие соединительное Мс10, Мс11 902-1-54-КЖИ-Мн16 Изделие закладное Мн16 902-1-54-КЖИ-Мс3, Мс5 Изделие соединительное Мс3, Мс5 902-1-54-КЖИ-Мн11 Изделие закладное Мн11 902-1-54-КЖИ-Мн21 Изделие закладное Мн21 |
| Разработан: | Харьковский Водоканалпроект |
| Утверждён: | 19.06.1980 Союзводоканалпроект (Soyuzvodokanalproject 43) |
| Заменяет собой: |
|






















































