Скачать Серия 2.800-2 Выпуск 9. Вытяжные вентиляционные шахты с ручным открыванием клапановДата актуализации: 01.01.2021
|
| Обозначение: | Серия 2.800-2 |
| Обозначение англ: | Series 2.800-2 |
| Статус: | не определен законодательством |
| Название рус.: | Выпуск 9. Вытяжные вентиляционные шахты с ручным открыванием клапанов |
| Дата добавления в базу: | 01.09.2013 |
| Дата актуализации: | 01.01.2021 |
| Дата введения: | 01.06.1969 |
| Дата окончания срока действия: | 30.06.2003 |
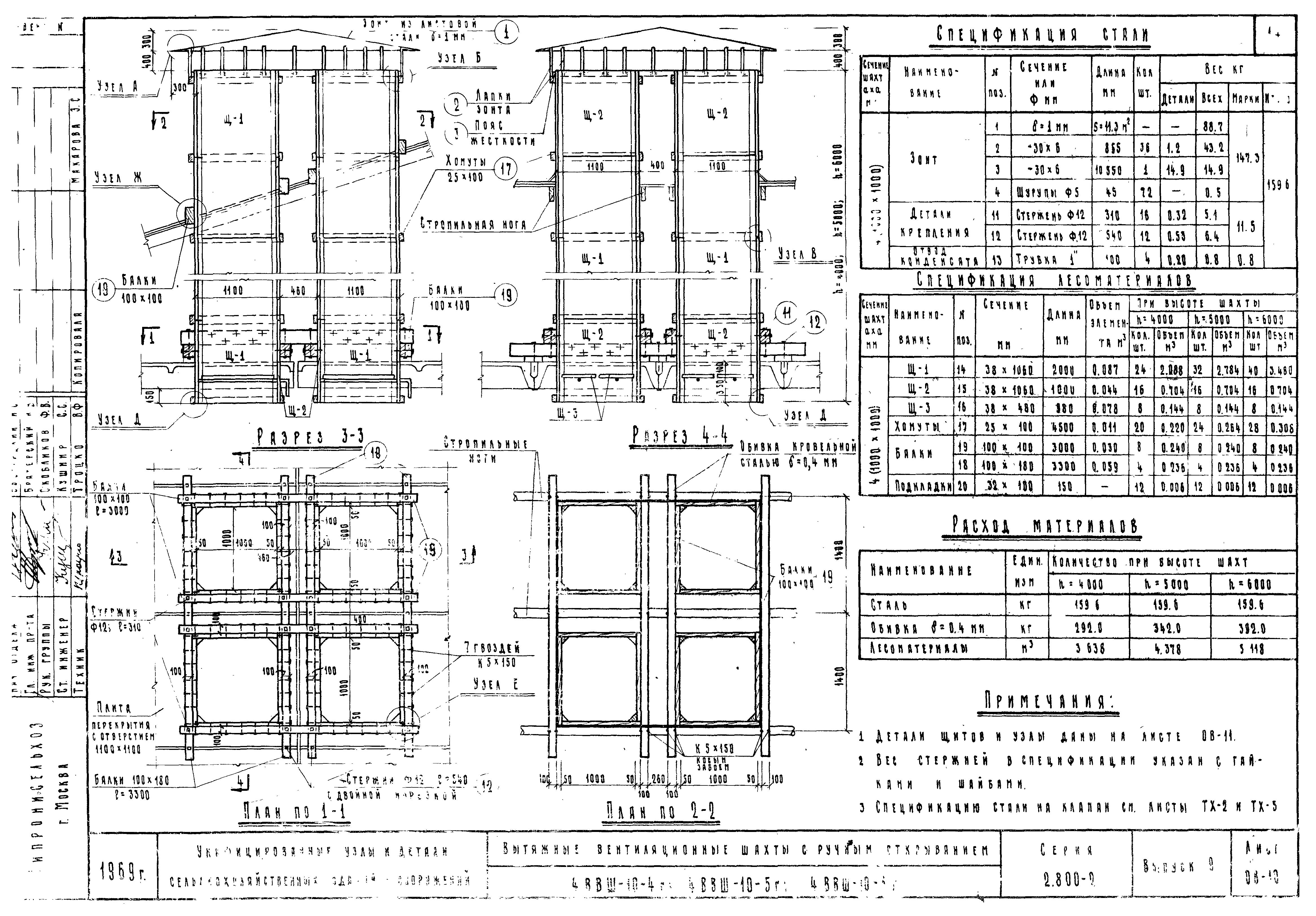
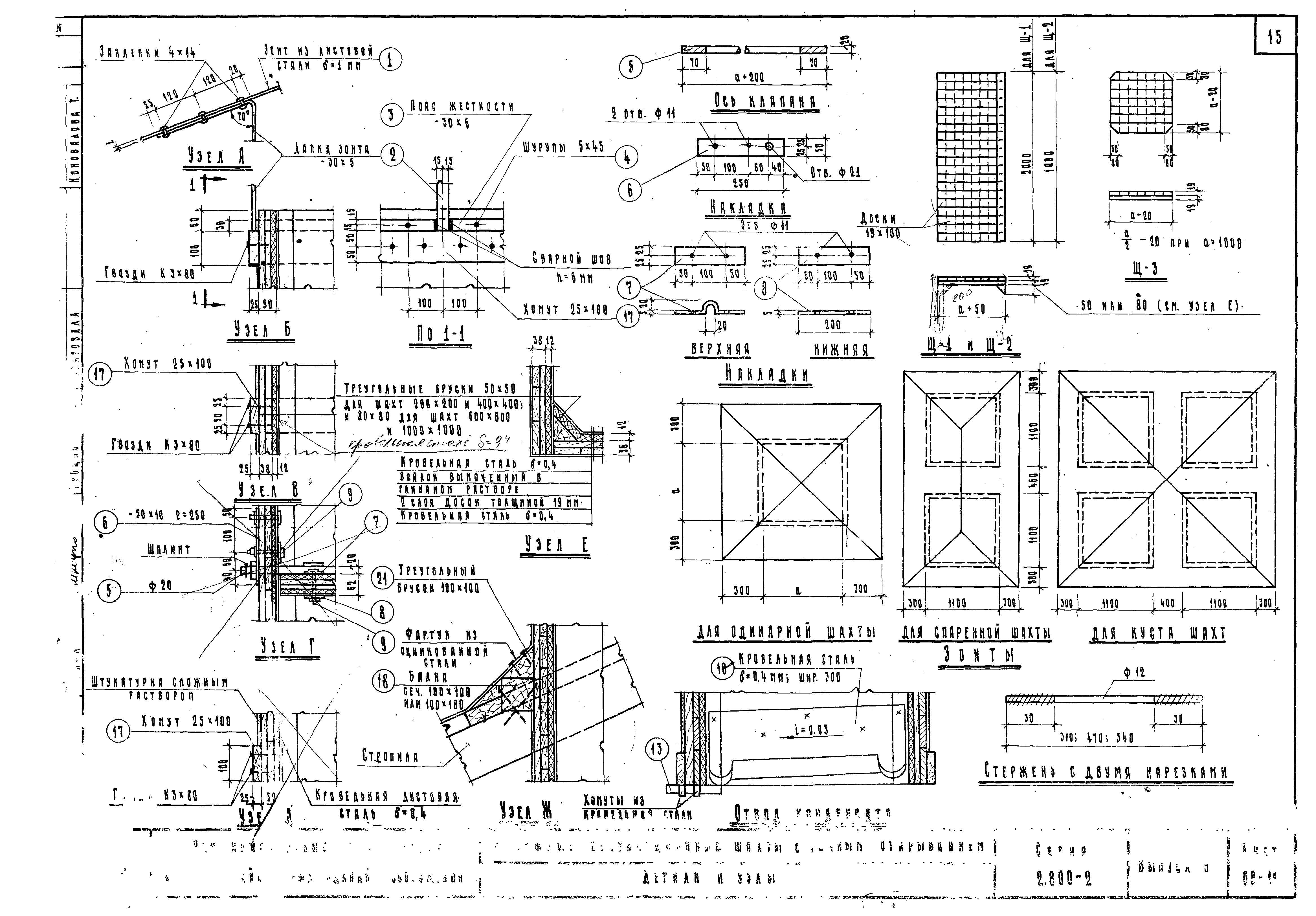
| Оглавление: | Содержание альбома Пояснительная записка Номенклатура вытяжных вентиляционных шахт ВВШ-2-2ж ВВШ-2-4ж, ВВШ-2-5ж, ВВШ-2-6ж ВВШ-4-3и, ВВШ-6-3и ВВШ-4-4и, ВВШ-4-5и, ВВШ-4-6и, ВВШ-6-4и, ВВШ-6-5и, ВВШ-6-6и ВВШ-6-3г, ВВШ-10-3г ВВШ-6-4г, ВВШ-6-5г, ВВШ-6-6г, ВВШ-10-4г, ВВШ-10-5г, ВВШ-10-6г 2ВВШ-10-3г 4ВВШ-10-3г 2ВВШ-10-4г, 2ВВШ-10-5г, 2ВВШ-10-6г 4ВВШ-10-4г, 4ВВШ-10-5г, 4ВВШ-10-6г Детали и узлы Узлы крепления шахт при покрытиях из лесоматериалов Механизация открывания и закрывания клапанов шахт. Спецификация Устройство для фиксаций положений клапана. Узлы. Спецификация Устройство для фиксаций положений клапана. Детали Блок. Ограждение балансирного груза. Детали. Спецификация Ось клапана. Узлы. Спецификация Ось клапана. Детали |
| Разработан: | ГипроНИсельхоз (Институт Гипронисельхоз ) |
| Утверждён: | 19.02.1969 Главсельстройпроект Минсельхоза СССР (Glavselstroyproject, USSR Minselkhoz 15) |






















