Скачать Типовой проект 416-1-201.87 Альбом II. Строительные изделияДата актуализации: 01.01.2021
|
| Обозначение: | Типовой проект 416-1-201.87 |
| Обозначение англ: | 416-1-201.87 |
| Статус: | не определен законодательством |
| Название рус.: | Альбом II. Строительные изделия |
| Дата добавления в базу: | 01.09.2013 |
| Дата актуализации: | 01.01.2021 |
| Дата введения: | 26.09.1986 |
| Дата окончания срока действия: | 30.06.2003 |
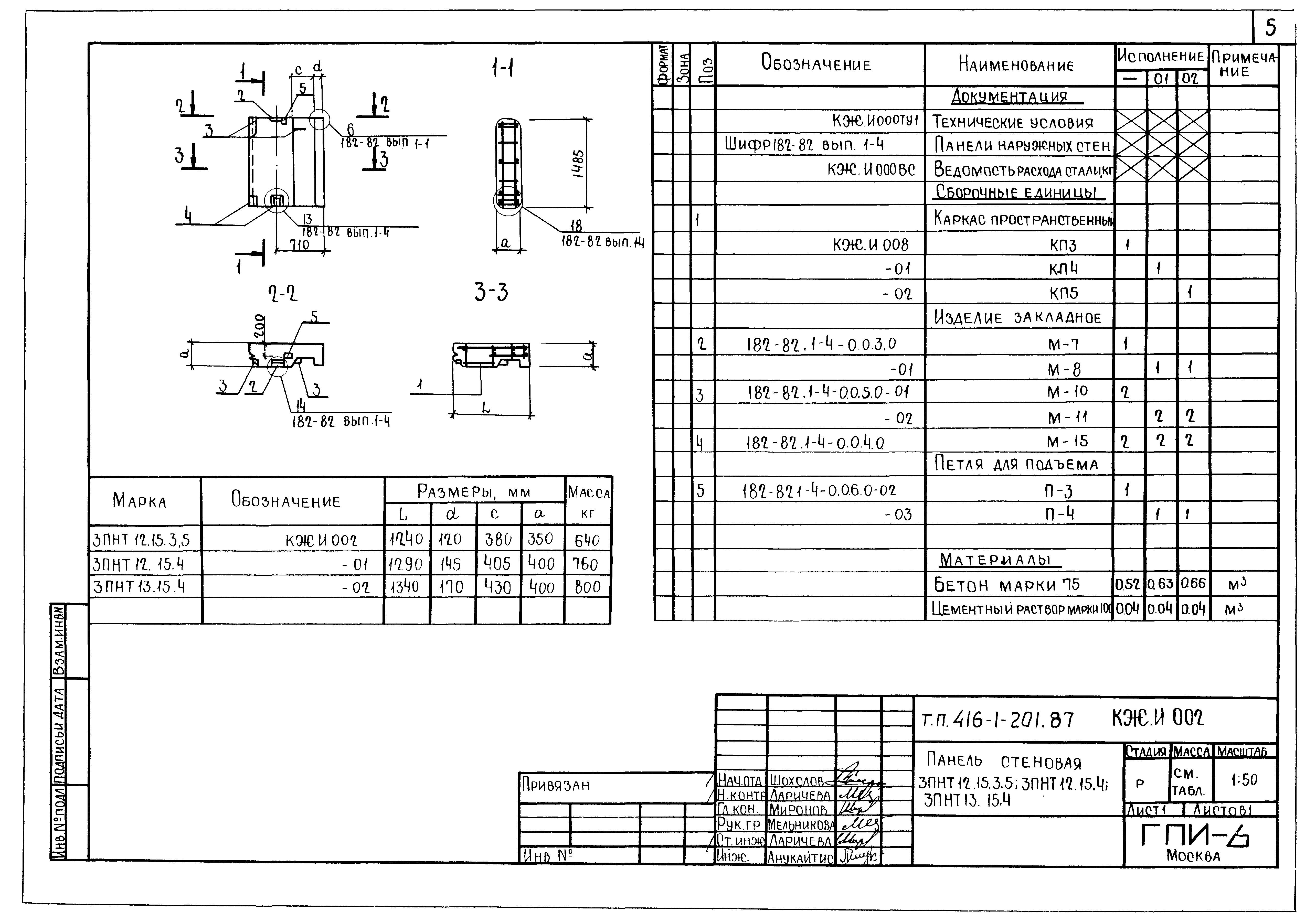
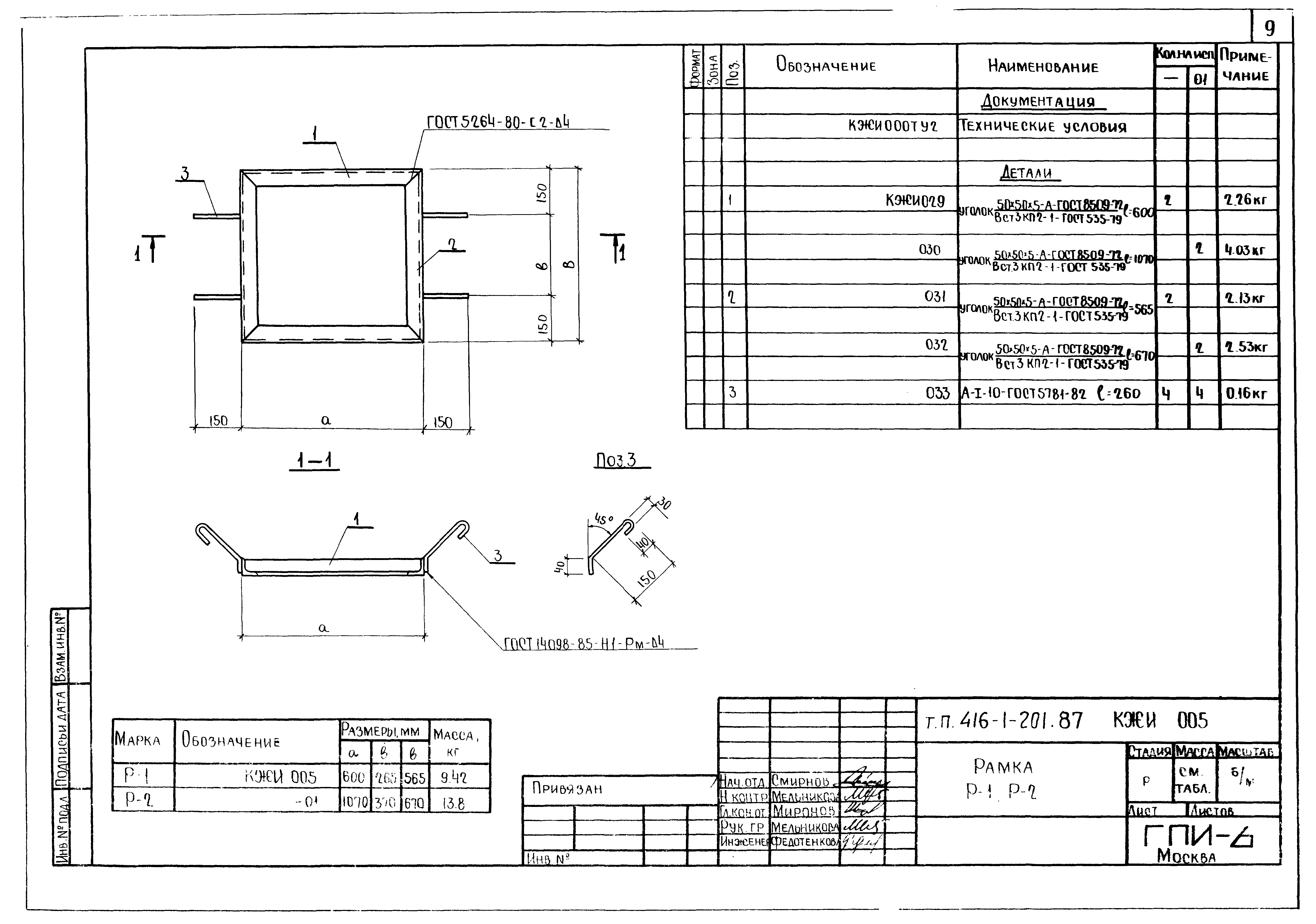
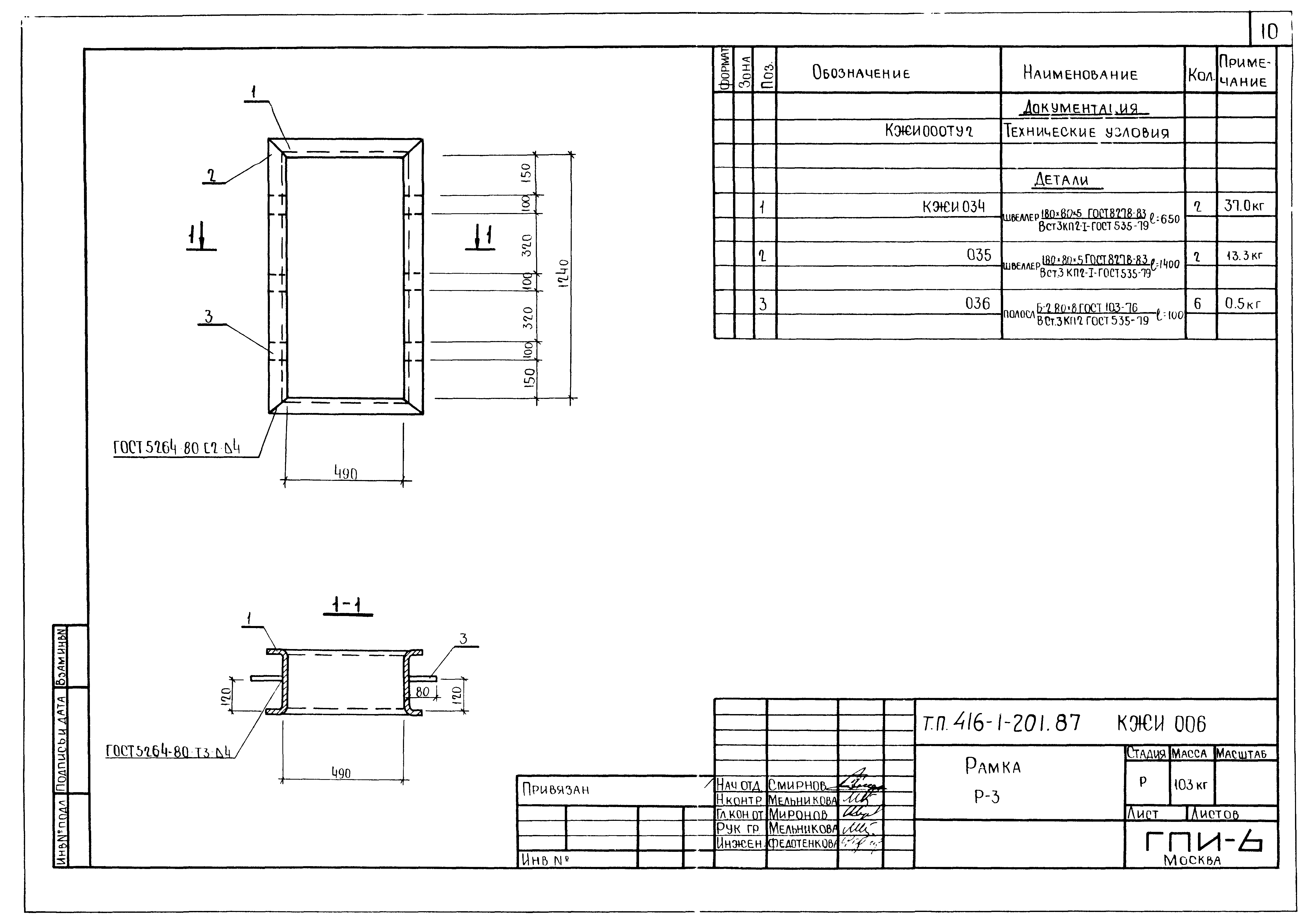
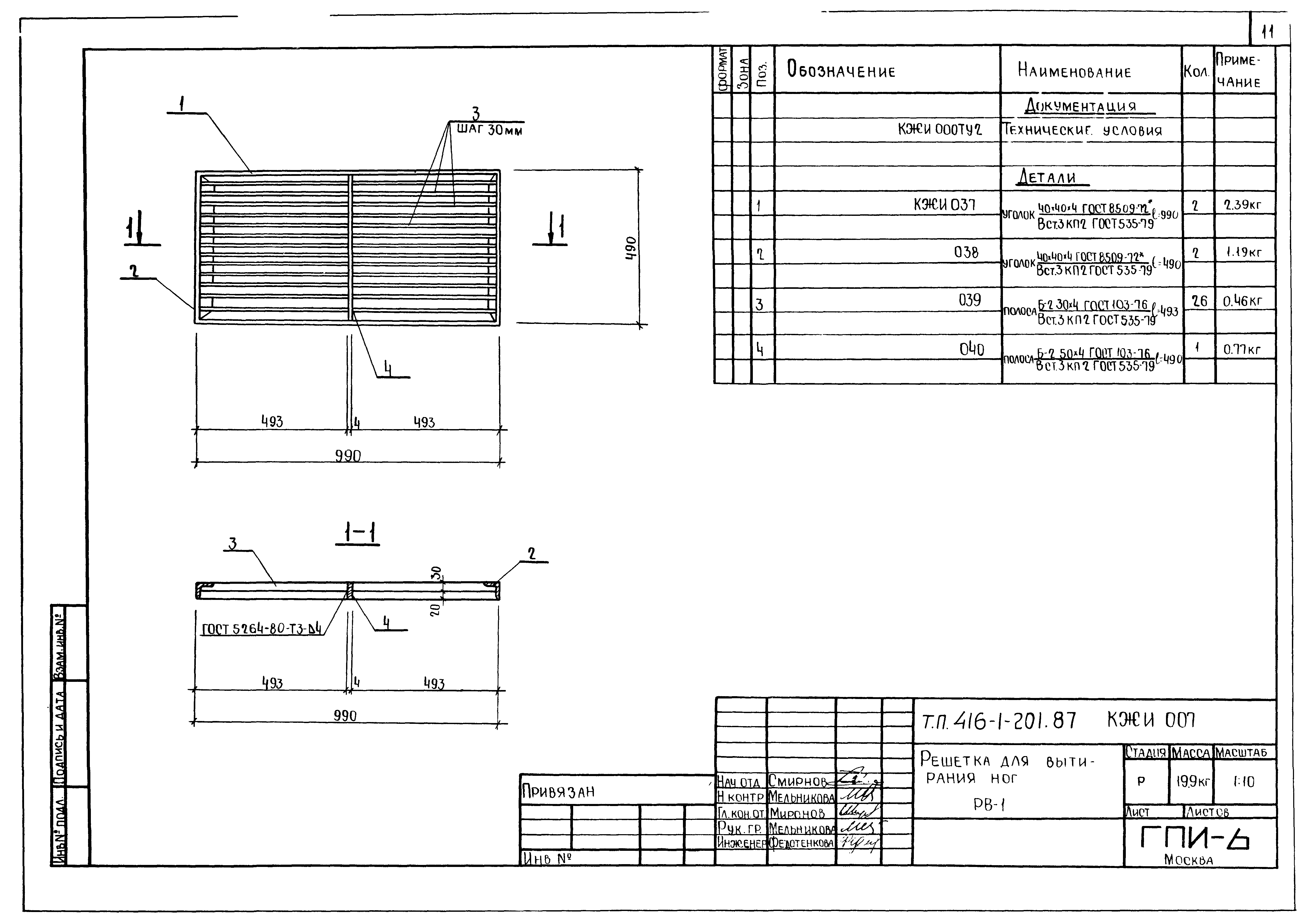
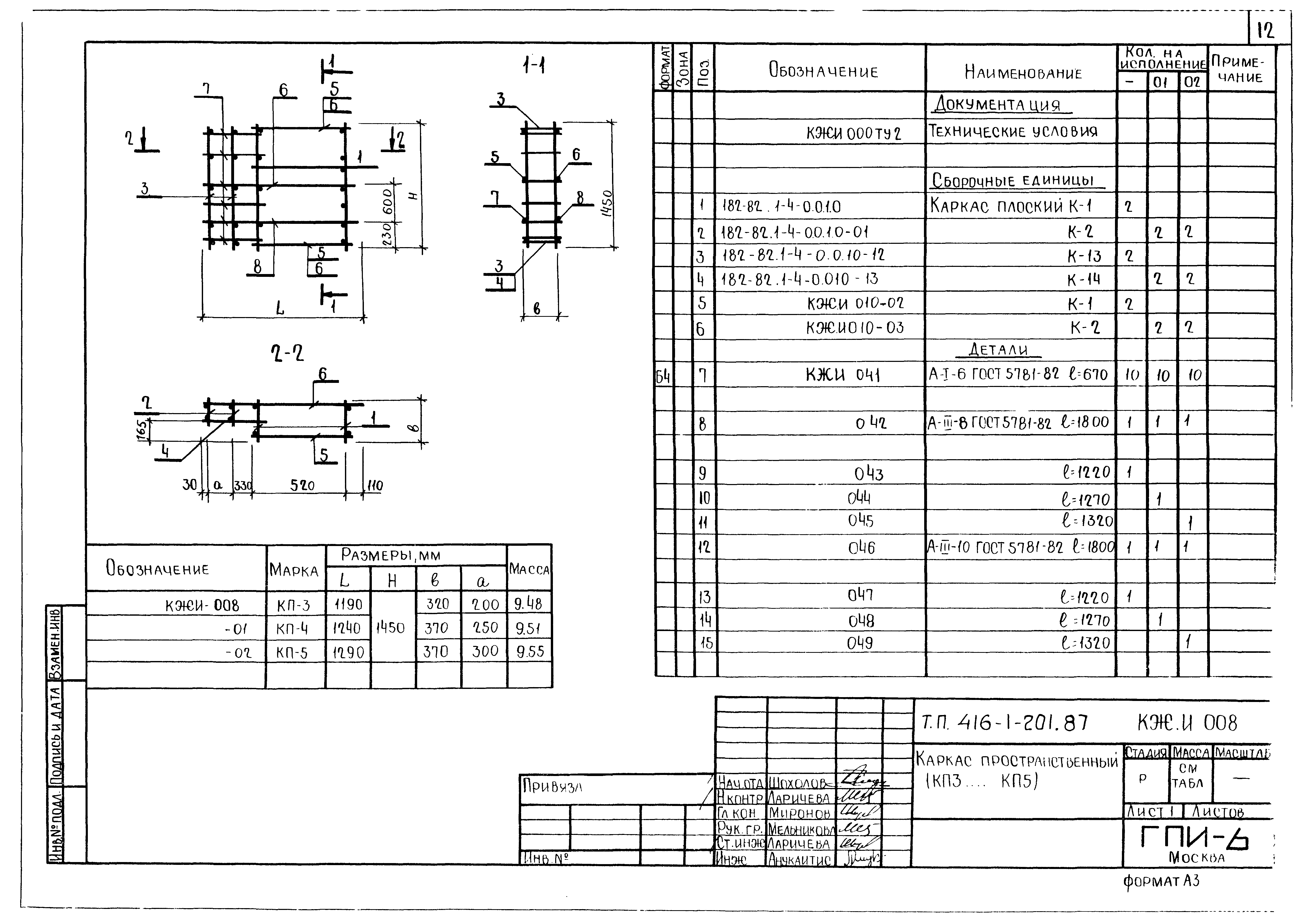
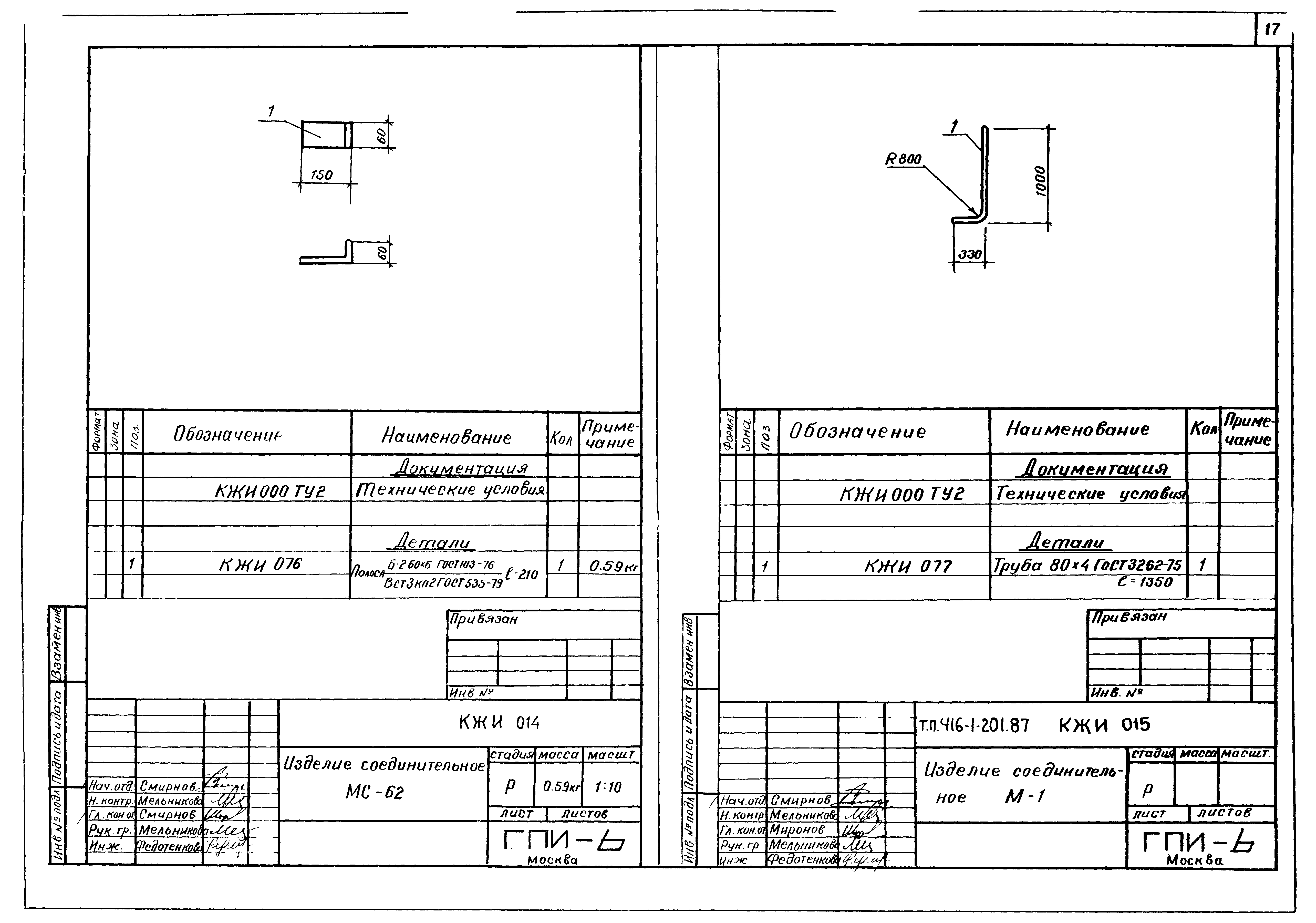
| Оглавление: | ТП 416-1-201.87 КЖ.И 000ДО Содержание альбома ТП 416-1-201.87 КЖ.И 000ТУ1 Технические условия ТП 416-1-201.87 КЖ.И 000ТУ2 Технические условия ТП 416-1-201.87 КЖ.И 001 Панель стеновая 2ПНТ12.15.3.5, 2ПНТ12.15.4, 2ПНТ13.15.4 ТП 416-1-201.87 КЖ.И 002 Панель стеновая 3ПНТ12.15.3.5, 3ПНТ12.15.4, 3ПНТ13.15.4 ТП 416-1-201.87 КЖ.И 000ВС Ведомость расхода стали, кг ТП 416-1-201.87 КЖ.И 003 Панель перекрытия ПР-60.13а, ПР8-60.15а ТП 416-1-201.87 КЖ.И 004 Стальной щит СЩ1…СЩ3 ТП 416-1-201.87 КЖ.И 005 Рамка Р-1,Р-2 ТП 416-1-201.87 КЖ.И 006 Рамка Р-3 ТП 416-1-201.87 КЖ.И 007 Решетка для вытирания ног РВ-1 ТП 416-1-201.87 КЖ.И 008 Каркас пространственный КП3…КП5 ТП 416-1-201.87 КЖ.И 009 Каркас плоский КР1,КР2,К1,К3 ТП 416-1-201.87 КЖ.И 010 Сетка С-1,С-2 ТП 416-1-201.87 КЖ.И 011 Сетка С-3 ТП 416-1-201.87 КЖ.И 012 Изделие соединительное МС 60 ТП 416-1-201.87 КЖ.И 013 Изделие соединительное МС 61 ТП 416-1-201.87 КЖ.И 014 Изделие соединительное МС 62 ТП 416-1-201.87 КЖ.И 015 Изделие соединительное М-1 ТП 416-1-201.87 КЖ.И 016 Изделие соединительное М-2 ТП 416-1-201.87 КЖ.И 017 Изделие соединительное М-3 ТП 416-1-201.87 КЖ.И 018 Изделие соединительное А-1 ТП 416-1-201.87 КЖ.И 019 Стальная стойка СТ-1 ТП 416-1-201.87 КЖ.И 020 Стальная крышка СК1;СК2 ТП 416-1-201.87 КЖ.И 021 Каркас плоский КР3,КР4 |
| Разработан: | ГПИ-6 Госкомлегпрома |
| Утверждён: | 26.09.1986 ГПИ-6 (193) |





















