Скачать Типовой проект 902-2-428.87 Альбом 5. Нестандартизированное оборудованиеДата актуализации: 01.01.2021
|
| Обозначение: | Типовой проект 902-2-428.87 |
| Обозначение англ: | 902-2-428.87 |
| Статус: | не определен законодательством |
| Название рус.: | Альбом 5. Нестандартизированное оборудование |
| Дата добавления в базу: | 01.09.2013 |
| Дата актуализации: | 01.01.2021 |
| Дата введения: | 01.05.1987 |
| Дата окончания срока действия: | 30.06.2003 |
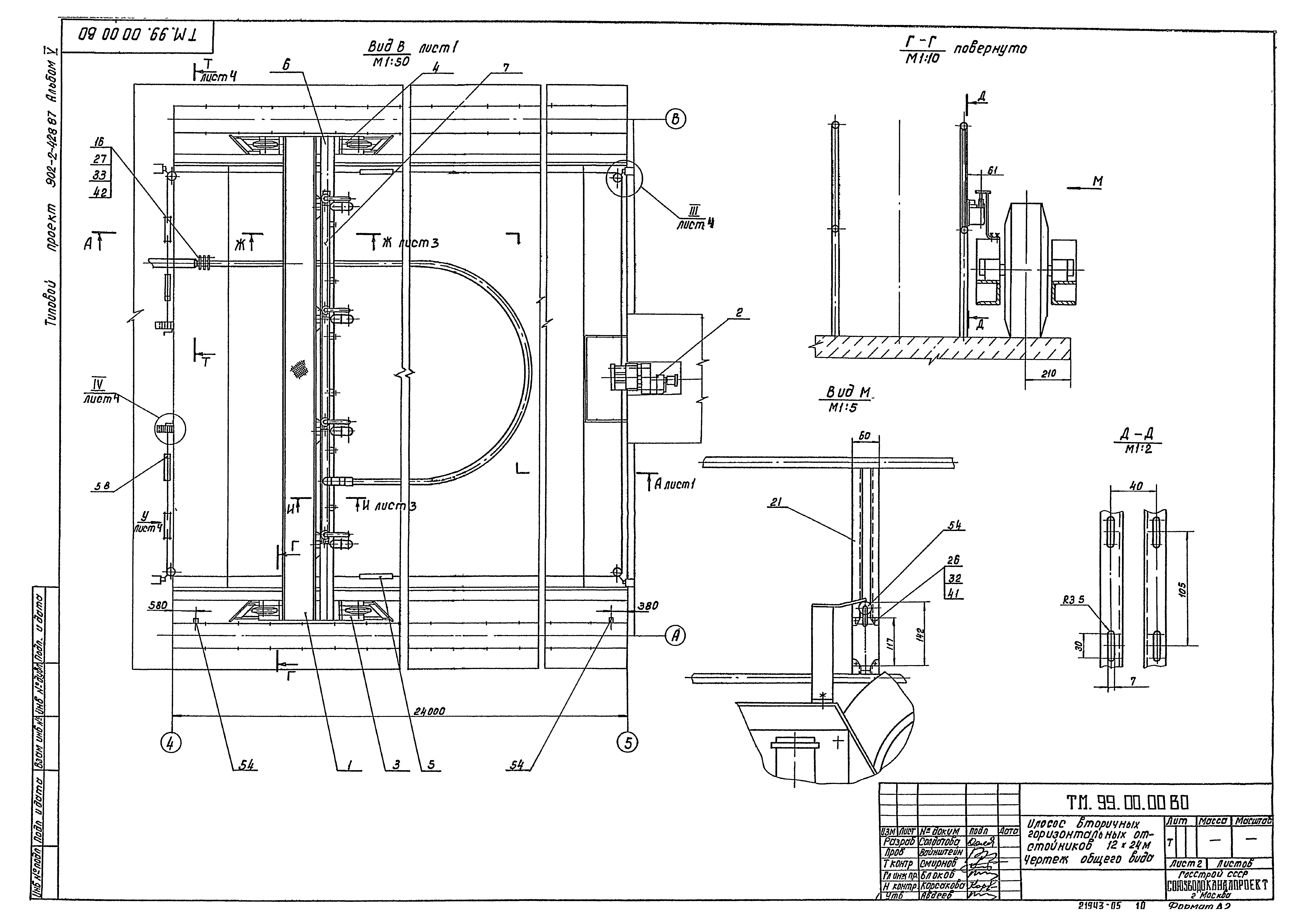
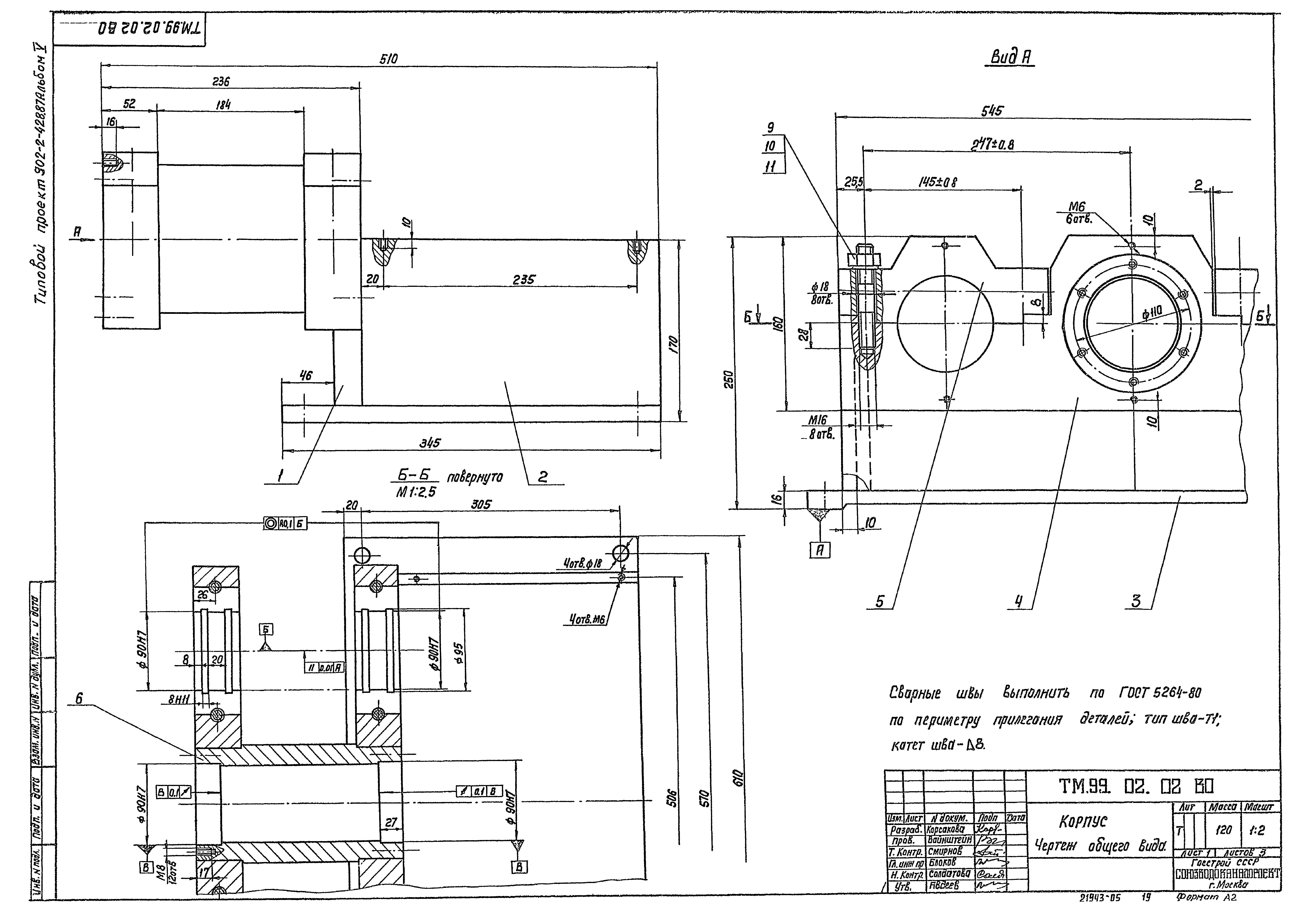
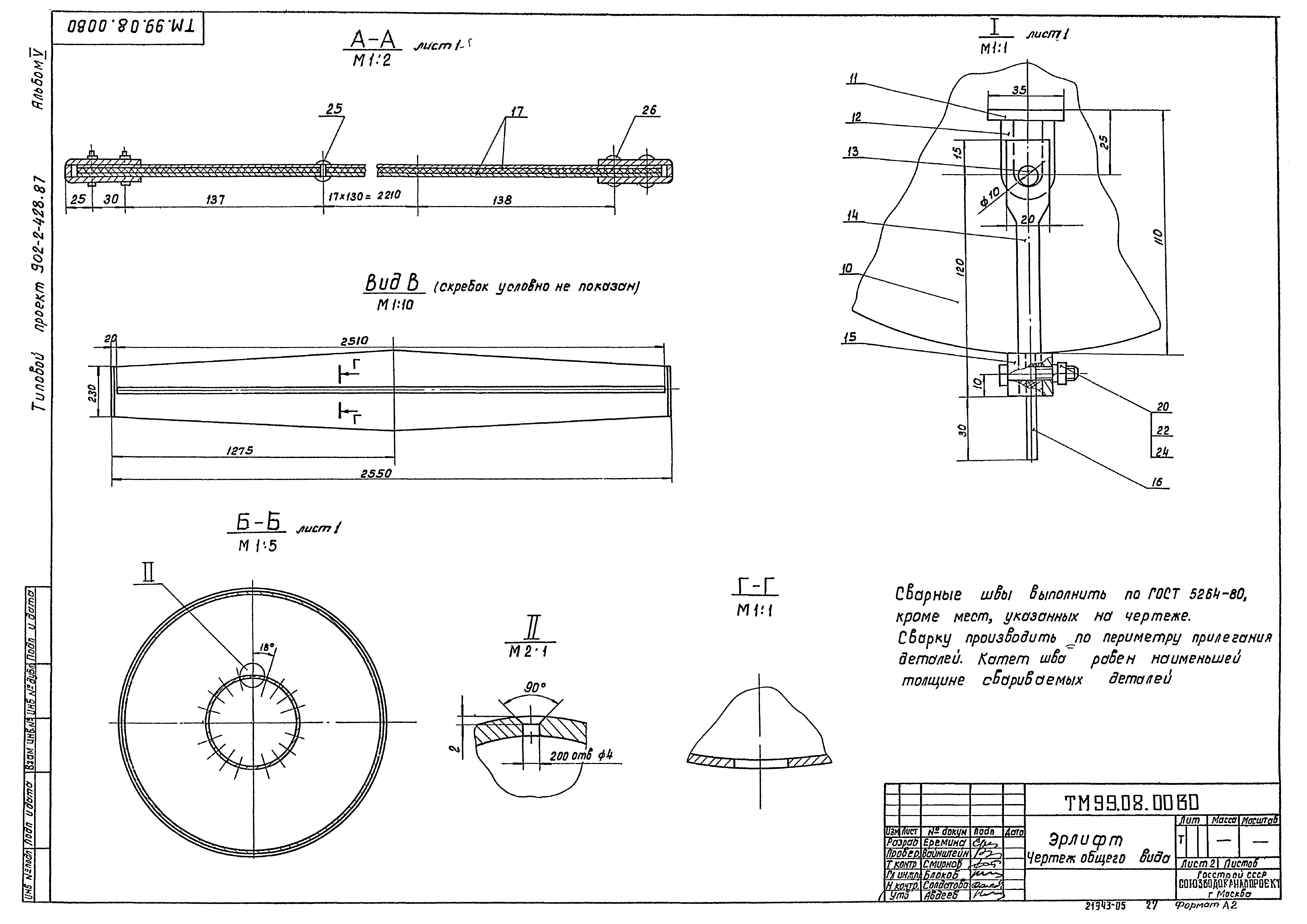
| Оглавление: | ТП 902-2-428.87 Титульный лист ТП 902-2-428.87 ТМ99.00.00,100.01…04ПЗ Содержание альбома ТП 902-2-428.87 ТМ99.00.00ТП Нестандартизированное оборудование. Пояснительная записка ТП 902-2-428.87 ТМ99.00.00ВП Илосос вторичных горизонтальных отстойников 12х24 м. Ведомость технического проекта ТП 902-2-428.87 ТМ99.00.00СХ Илосос вторичных горизонтальных отстойников 12х24 м. Ведомость покупных изделий ТП 902-2-428.87 ТМ99.00.00ВО Илосос вторичных горизонтальных отстойников 12х24 м. Схема запасовки канатной системы ТП 902-2-428.87 ТМ99.00.00ВО Илосос вторичных горизонтальных отстойников 12х24 м. Чертеж общего вида ТП 902-2-428.87 ТМ99.00.00ВО Мост. Чертеж общего вида ТП 902-2-428.87 ТМ99.00.00ВО Балка. Чертеж общего вида ТП 902-2-428.87 ТМ99.00.00ВО Привод. Чертеж общего вида ТП 902-2-428.87 ТМ99.00.00ВО Рама. Чертеж общего вида ТП 902-2-428.87 ТМ99.00.00ВО Корпус. Чертеж общего вида ТП 902-2-428.87 ТМ99.00.00ВО Тележка правая. Чертеж общего вида ТП 902-2-428.87 ТМ99.00.00ВО Скребок. Чертеж общего вида ТП 902-2-428.87 ТМ99.00.00ВО Тележка левая. Чертеж общего вида ТП 902-2-428.87 ТМ99.00.00ВО Динамометр. Чертеж общего вида ТП 902-2-428.87 ТМ99.00.00ВО Труба илосборная. Чертеж общего вида ТП 902-2-428.87 ТМ99.00.00ВО Воздуховод. Чертеж общего вида ТП 902-2-428.87 ТМ99.00.00ВО Эрлифт. Чертеж общего вида ТП 902-2-428.87 ТМ99.00.00ВО Ролик. Чертеж общего вида ТП 902-2-428.87 ТМ99.00.00ВО Стойка. Чертеж общего вида ТП 902-2-428.87 ТМ99.00.00ТП Затвор-водослив 900х500. Ведомость технического проекта ТП 902-2-428.87 ТМ99.00.00ТП Затвор щитовой 300х250. Ведомость технического проекта ТП 902-2-428.87 ТМ99.00.00ТП Установка трубки пито Ду350. Ведомость технического проекта ТП 902-2-428.87 ТМ99.00.00ТП Эрлифт. Ведомость технического проекта ТП 902-2-428.87 ТМ99.00.00ВО Затвор-водослив 900х500. Чертеж общего вида ТП 902-2-428.87 ТМ99.00.00ВО Затвор щитовой 300х250. Чертеж общего вида ТП 902-2-428.87 ТМ99.00.00ВО Установка трубки пито Ду350. Чертеж общего вида ТП 902-2-428.87 ТМ99.00.00ВО Эрлифт. Чертеж общего вида |
| Разработан: | Союзводоканалпроект |
| Утверждён: | 18.07.1986 Госстрой СССР (Государственный комитет Совета Министров СССР по делам строительства) (USSR Gosstroy АЧ-42) |















































