Скачать Типовой проект 902-1-78.83 Альбом 3. Архитектурно-строительные решения. Надземная часть. Общие чертежиДата актуализации: 01.01.2021
|
| Обозначение: | Типовой проект 902-1-78.83 |
| Обозначение англ: | 902-1-78.83 |
| Статус: | не действует |
| Название рус.: | Альбом 3. Архитектурно-строительные решения. Надземная часть. Общие чертежи |
| Дата добавления в базу: | 01.09.2013 |
| Дата актуализации: | 01.01.2021 |
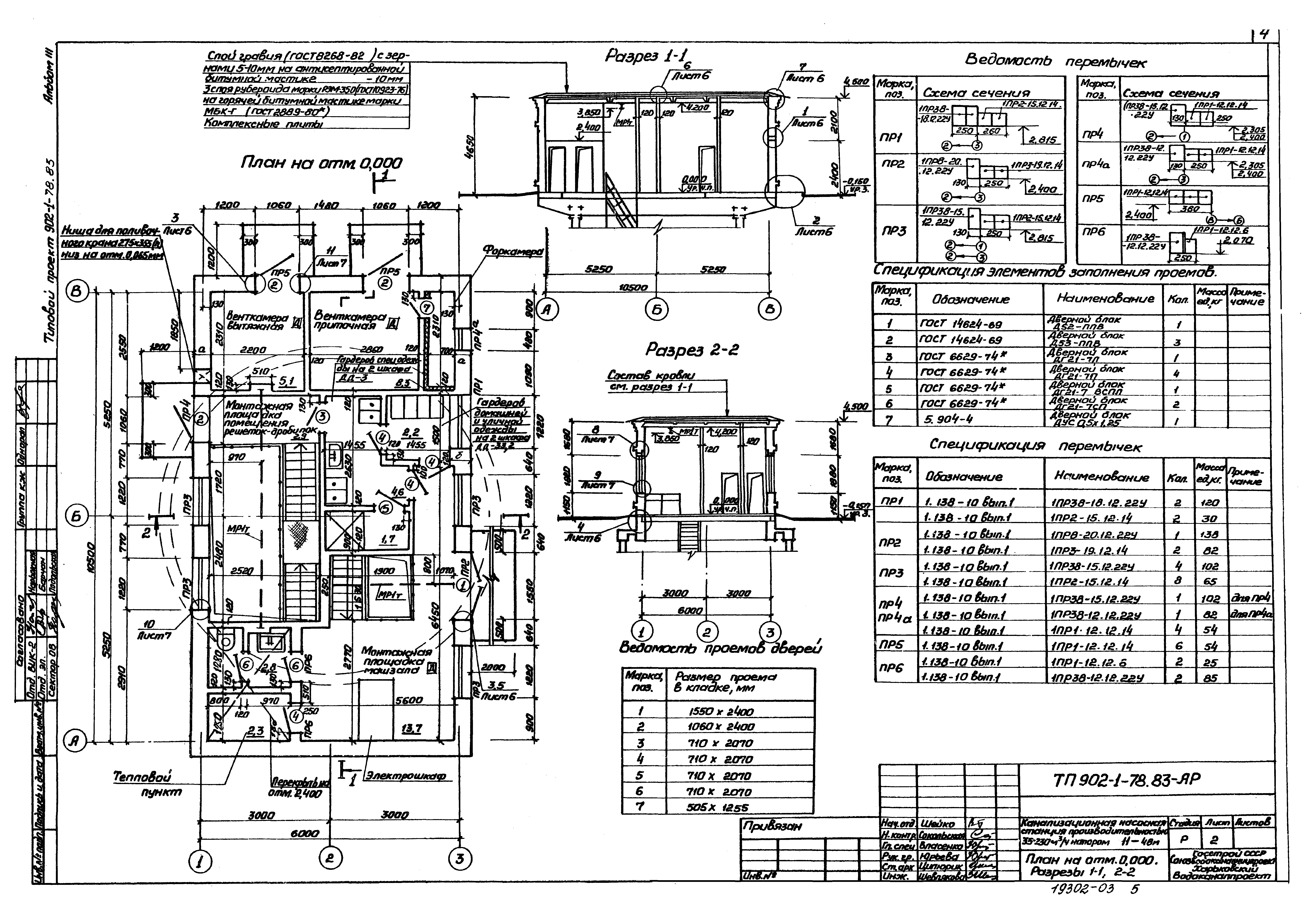
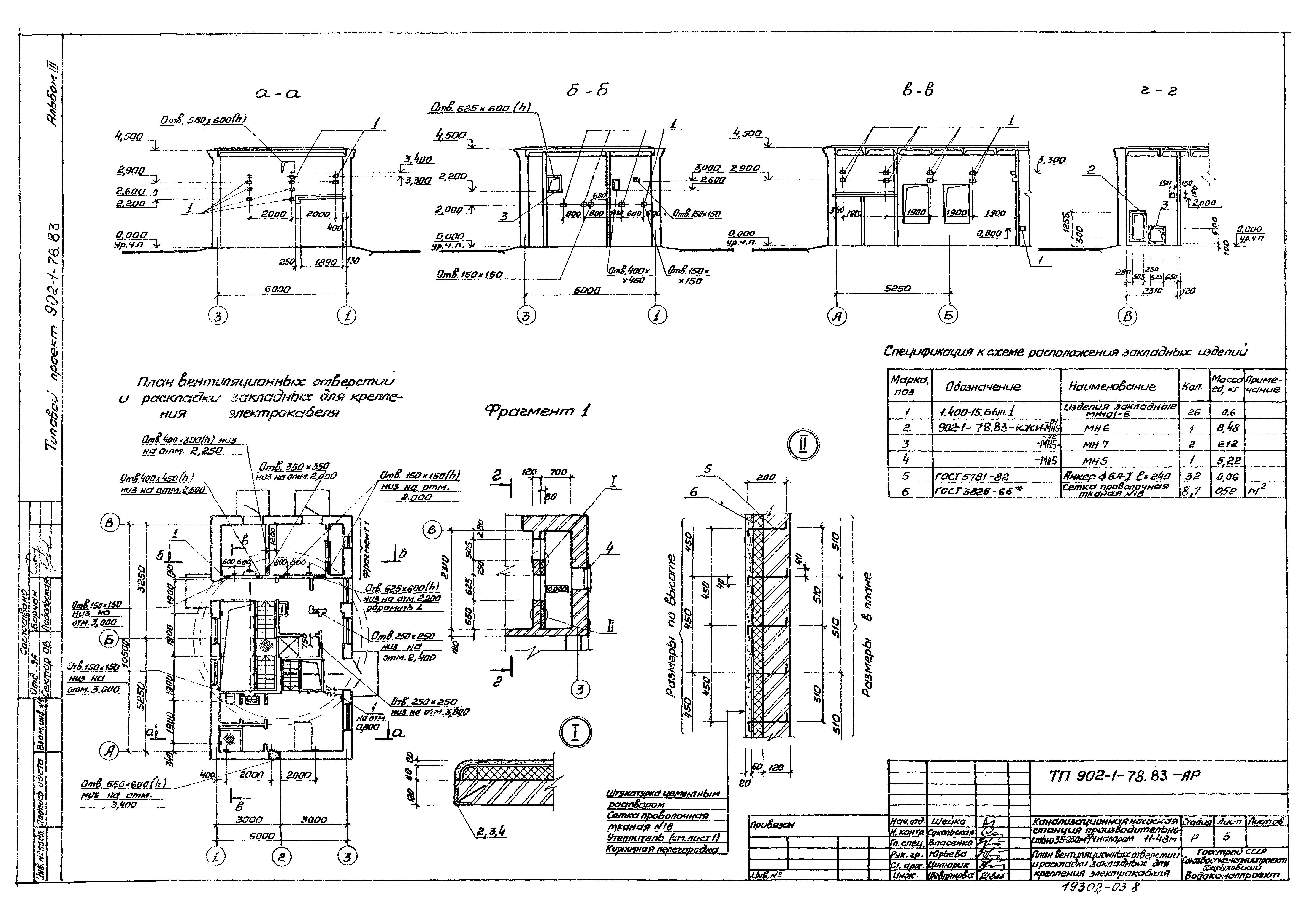
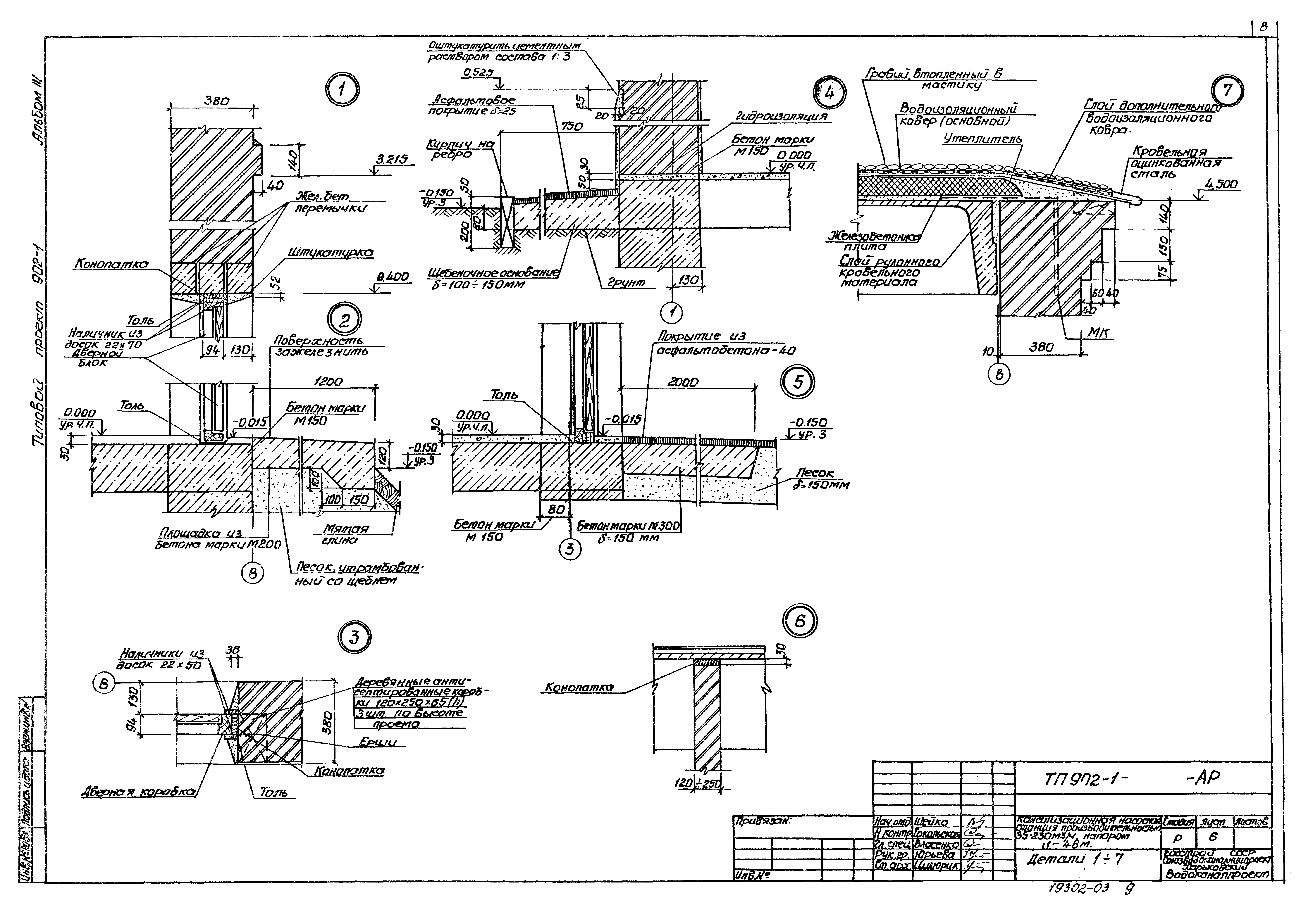
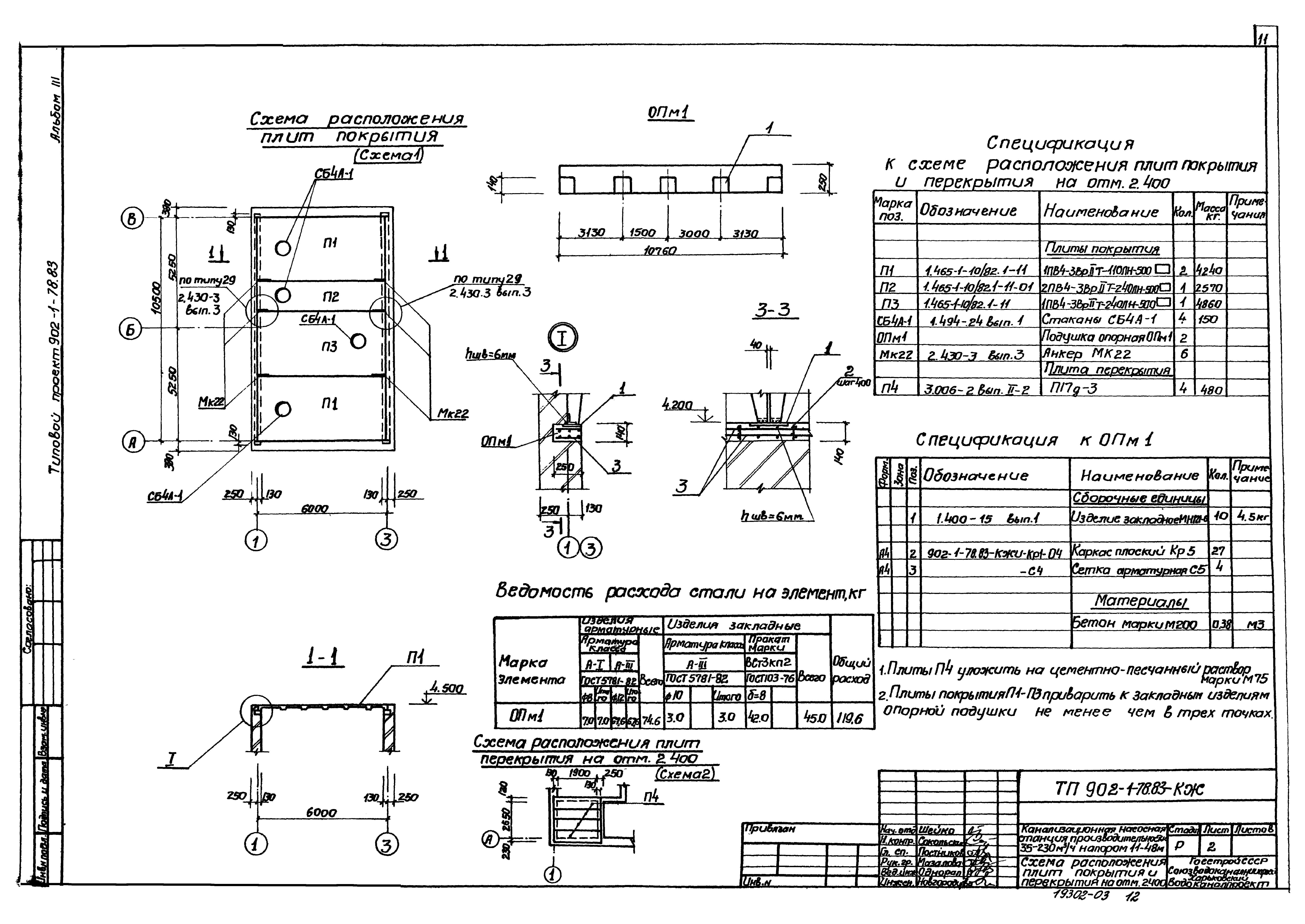
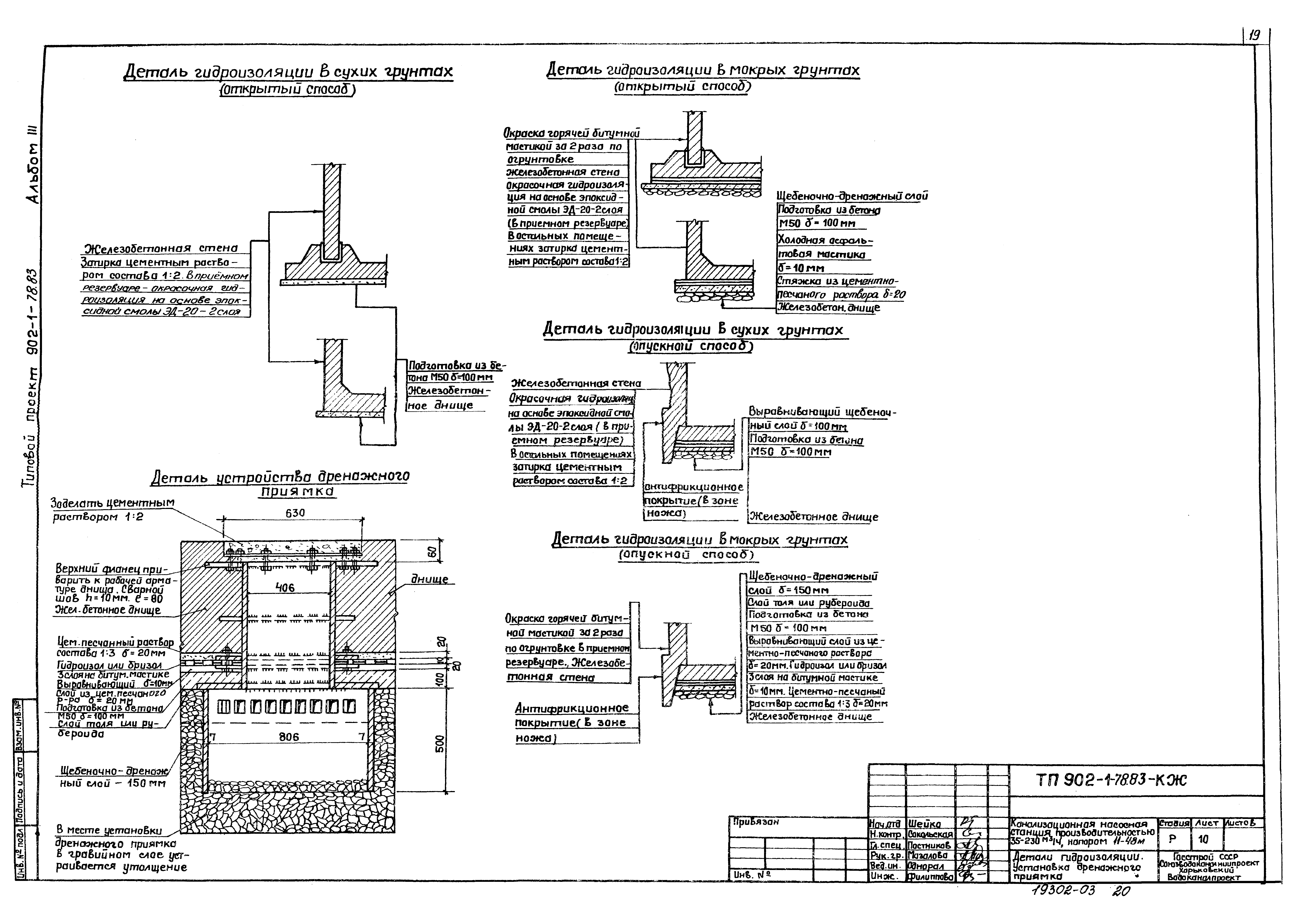
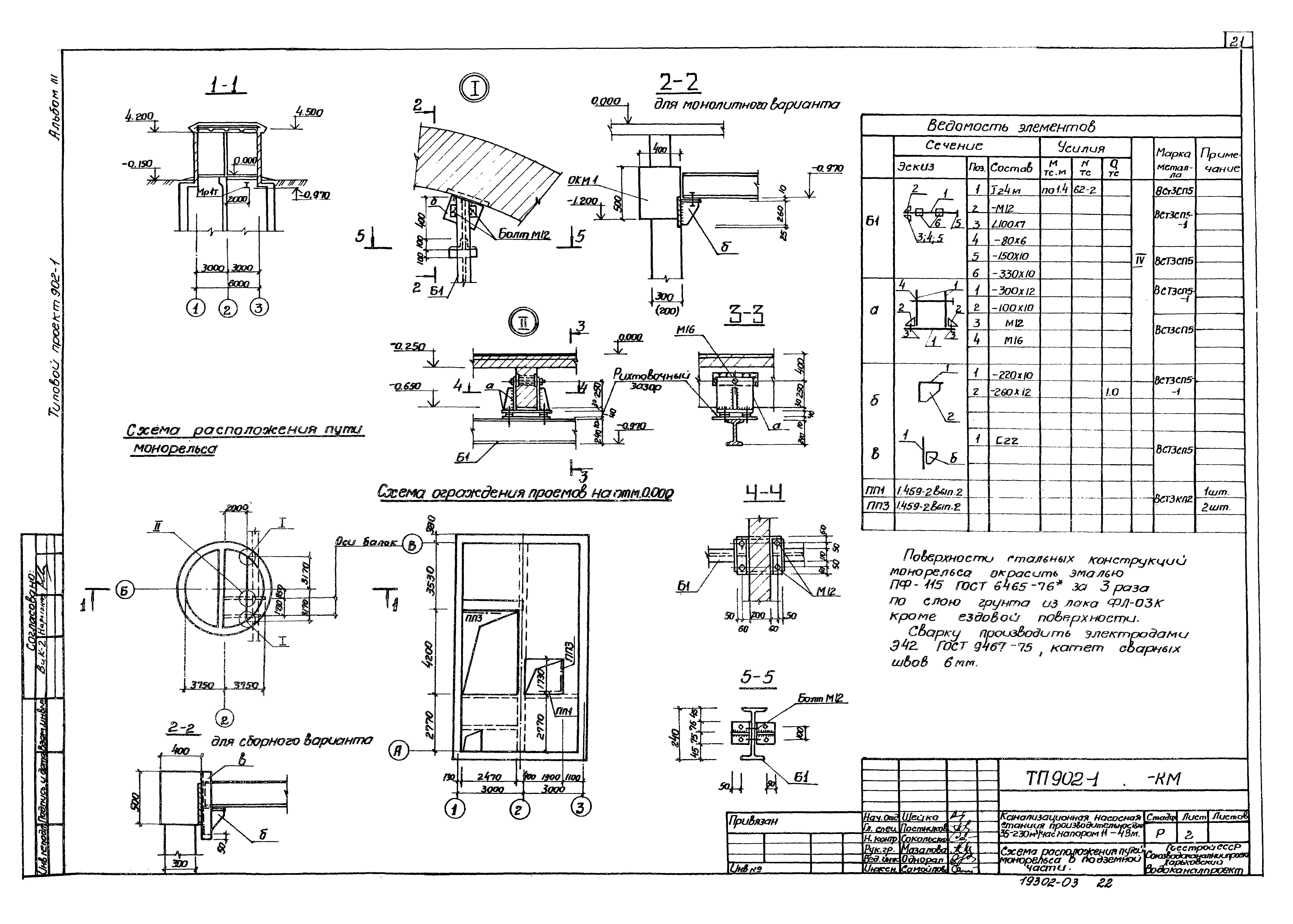
| Оглавление: | Содержание Основной комплект АР Общие данные План на отм. 0,000. Разрезы 1-1, 2-2 Фасады. Ведомость отделки помещений. Схемы расположения элементов заполнения оконных проемов План кровли. Планы полов. Экспликация полов План вентиляционных отверстий и раскладки закладных для крепления электрокабеля Детали 1 - 7 Детали 8 - 15 Основной комплект КЖ Общие данные Схема расположения плит покрытия и перекрытия на отм. 2,400 Схема расположения плит перекрытия на отм. 0,000 Перекрытие на отм. -0,250. РКм1. Общий вид Балки БМ1 - БМ5, БОМ1 - БОМ3. Общие виды и схемы армирования Схема расположения фундаментов под оборудование Обвязочная балка ОКМ1. Общий вид и схема армирования Детали гидроизоляции. Установка дренажного приямка Основной комплект КМ Общие данные Схема расположения монорельса в подземной части Схема расположения путей монорельса Основной комплект КЖИ Опись документов Техническое описание Каркас плоский КР (КР1…КР5) Каркас плоский КР (КР1…КР5). Сборочный чертеж Каркас плоский КР6 Сетка арматурная С (С1, С2) Сетка арматурная С (С1, С2). Сборочный чертеж Сетка арматурная С (С3...С5) Сетка арматурная С (С3...С5). Сборочный чертеж Плиты П1, П2, П4, П5 Плиты П3, П6. Перемычка ПР13-а Изделие закладное МН (МН1…МН3) Изделие закладное МН4 Изделие закладное МН (МН5…МН7) Опора ОП2 |
| Разработан: | Харьковский Водоканалпроект |
| Утверждён: | 27.10.1983 Союзводоканалпроект (Soyuzvodokanalproject 59) |




























