Скачать Типовой проект 902-2-387.85 Альбом 3. Строительная часть. Узлы, детали (из ТП 902-2-388.85)Дата актуализации: 01.01.2021
|
| Обозначение: | Типовой проект 902-2-387.85 |
| Обозначение англ: | 902-2-387.85 |
| Статус: | не определен законодательством |
| Название рус.: | Альбом 3. Строительная часть. Узлы, детали (из ТП 902-2-388.85) |
| Дата добавления в базу: | 01.09.2013 |
| Дата актуализации: | 01.01.2021 |
| Дата введения: | 01.12.1985 |
| Дата окончания срока действия: | 30.06.2003 |
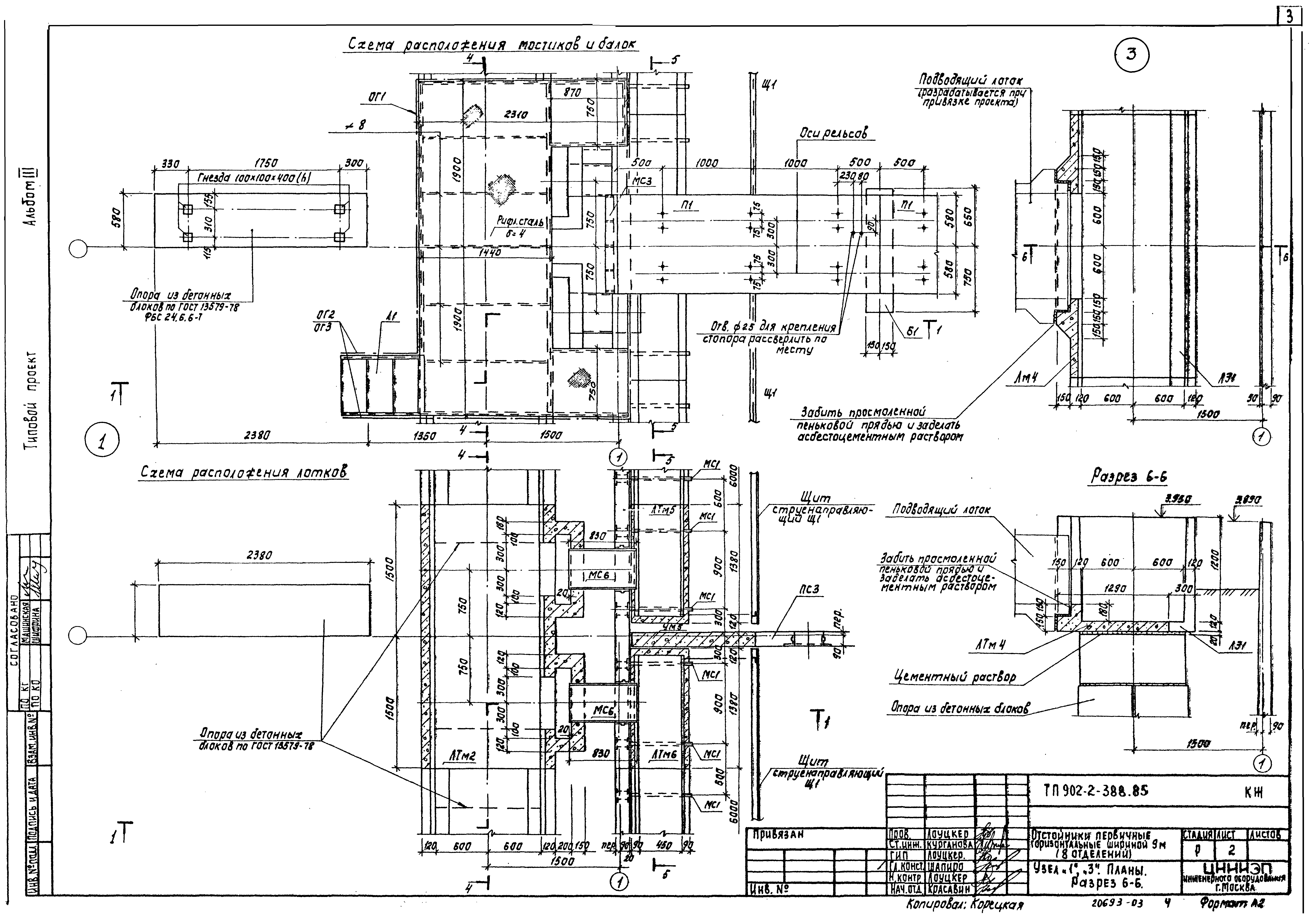
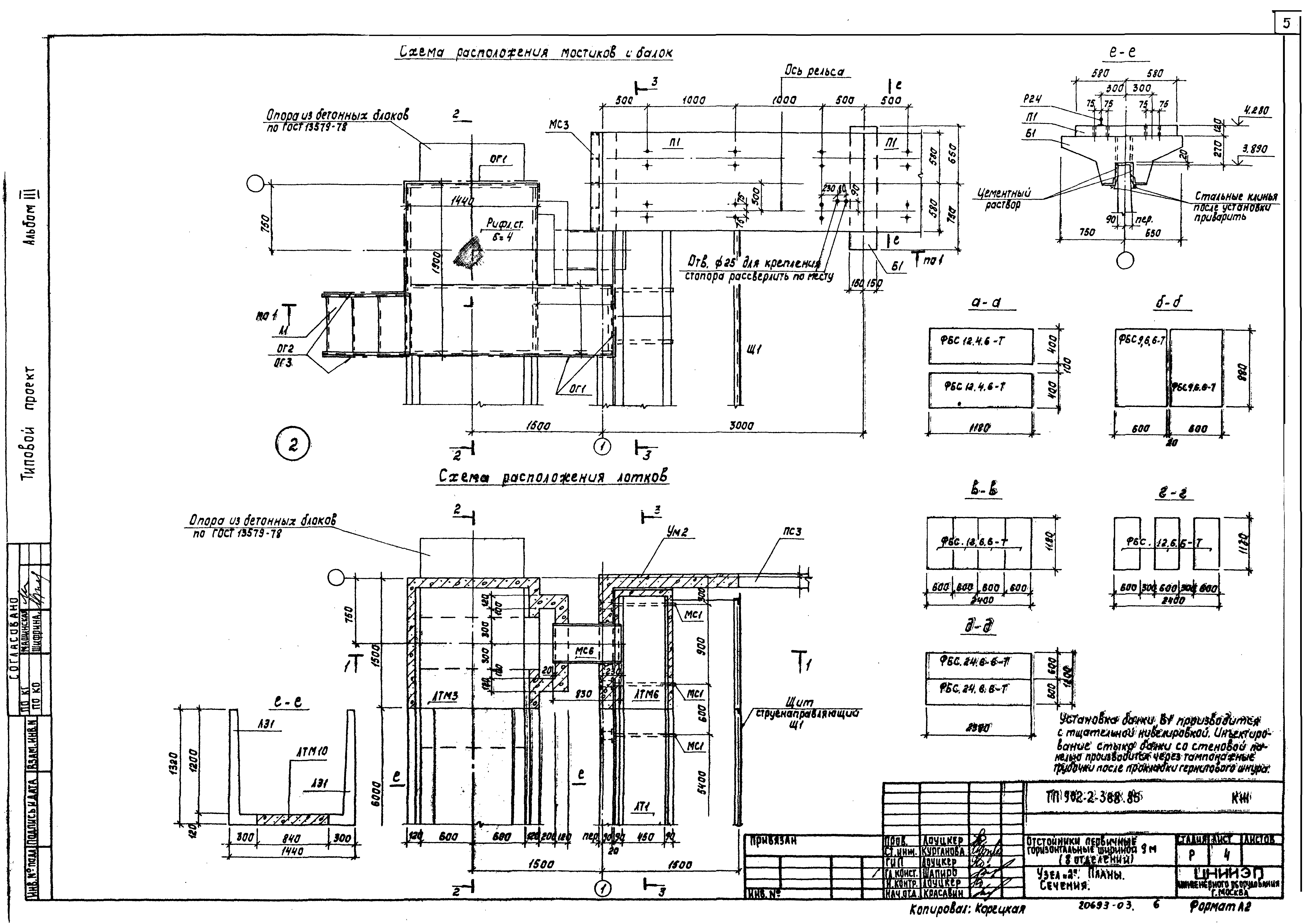
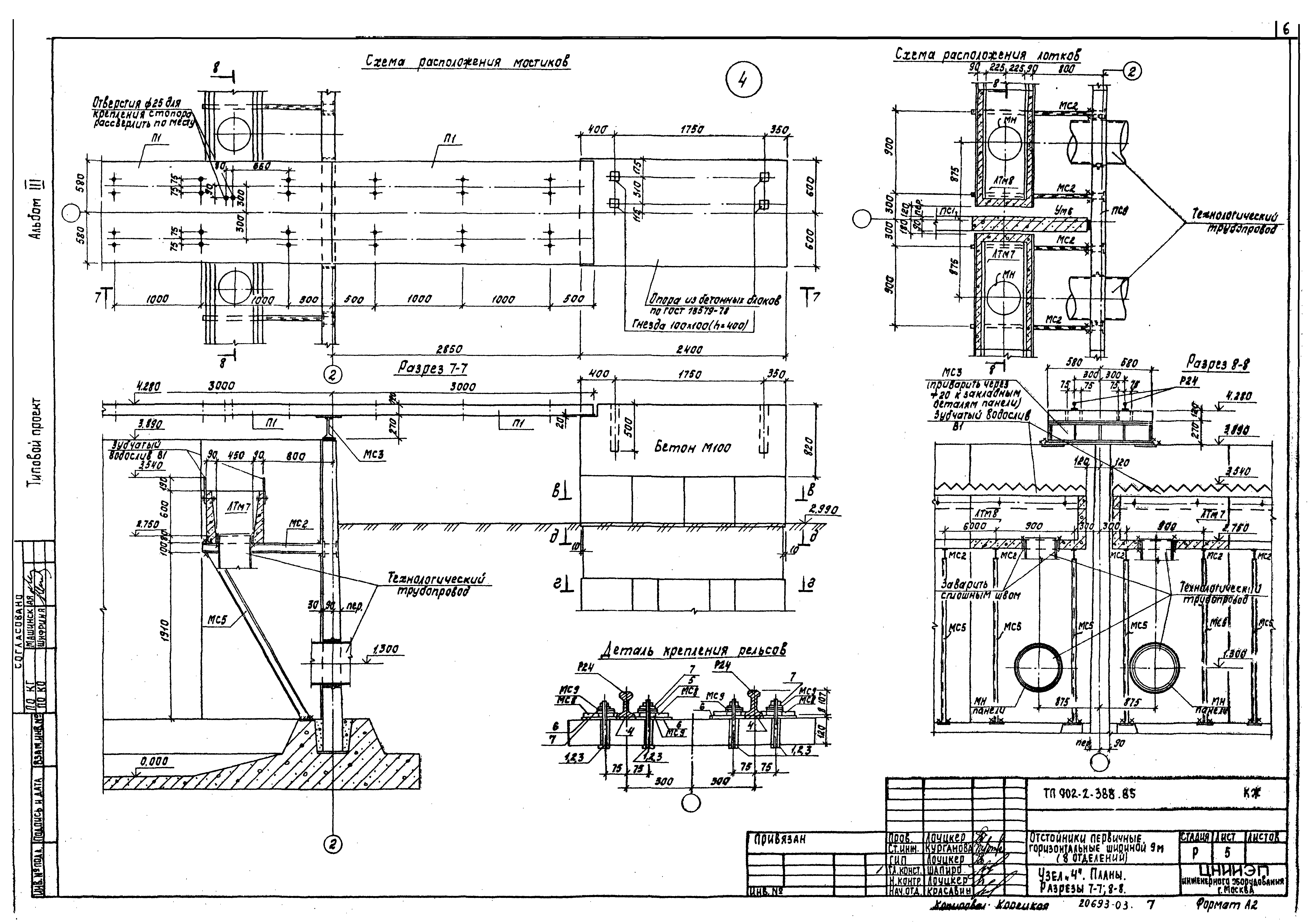
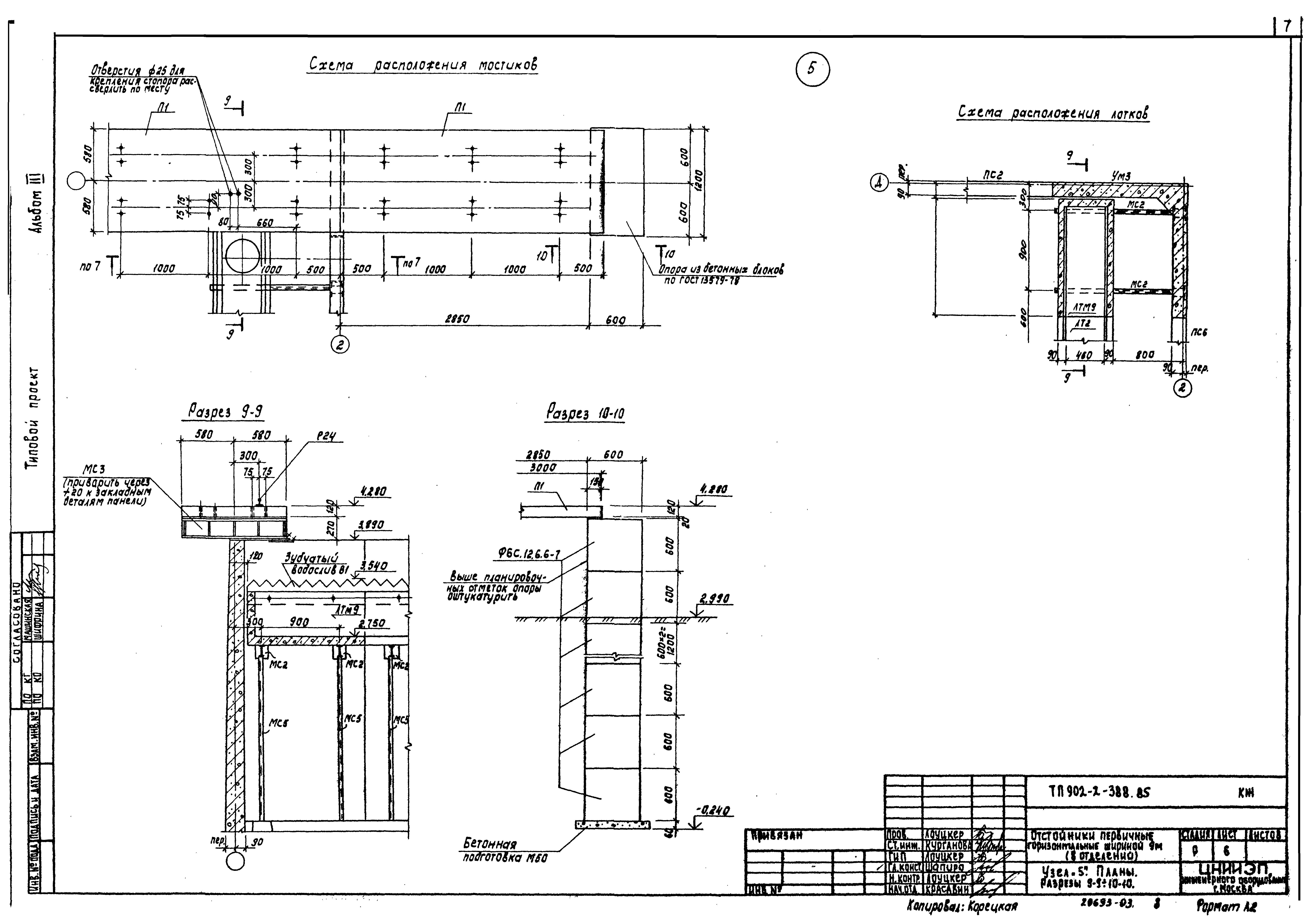
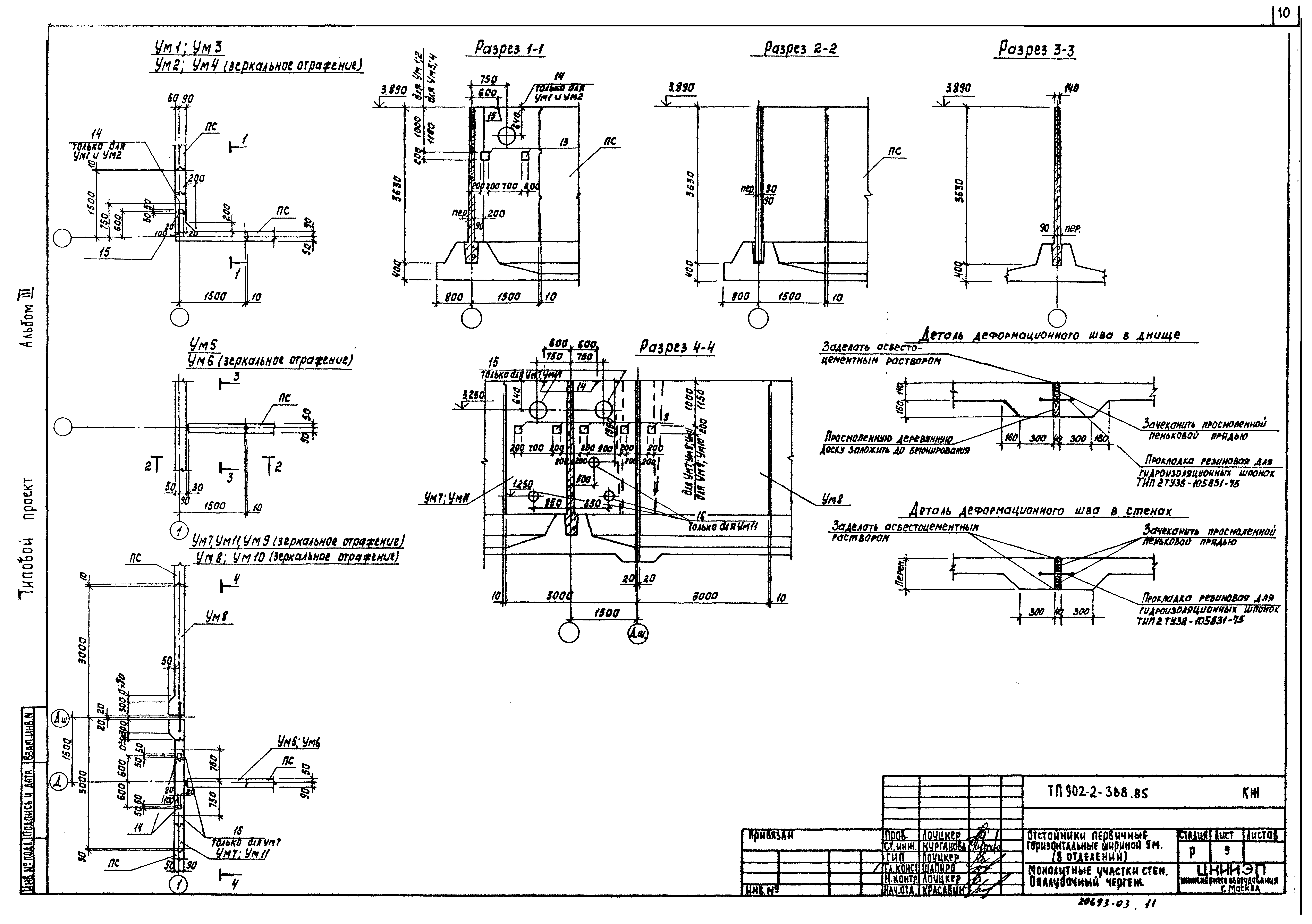
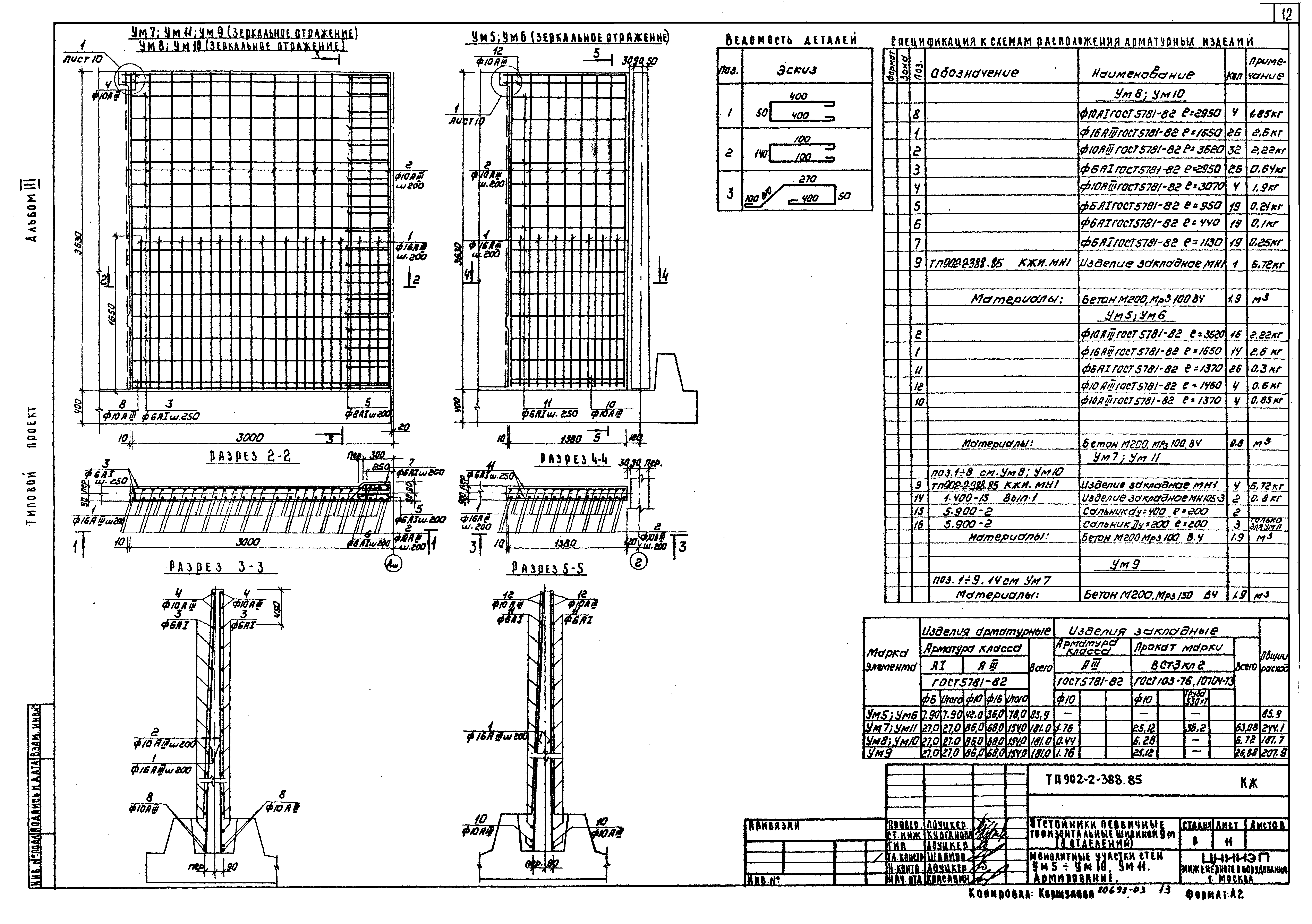
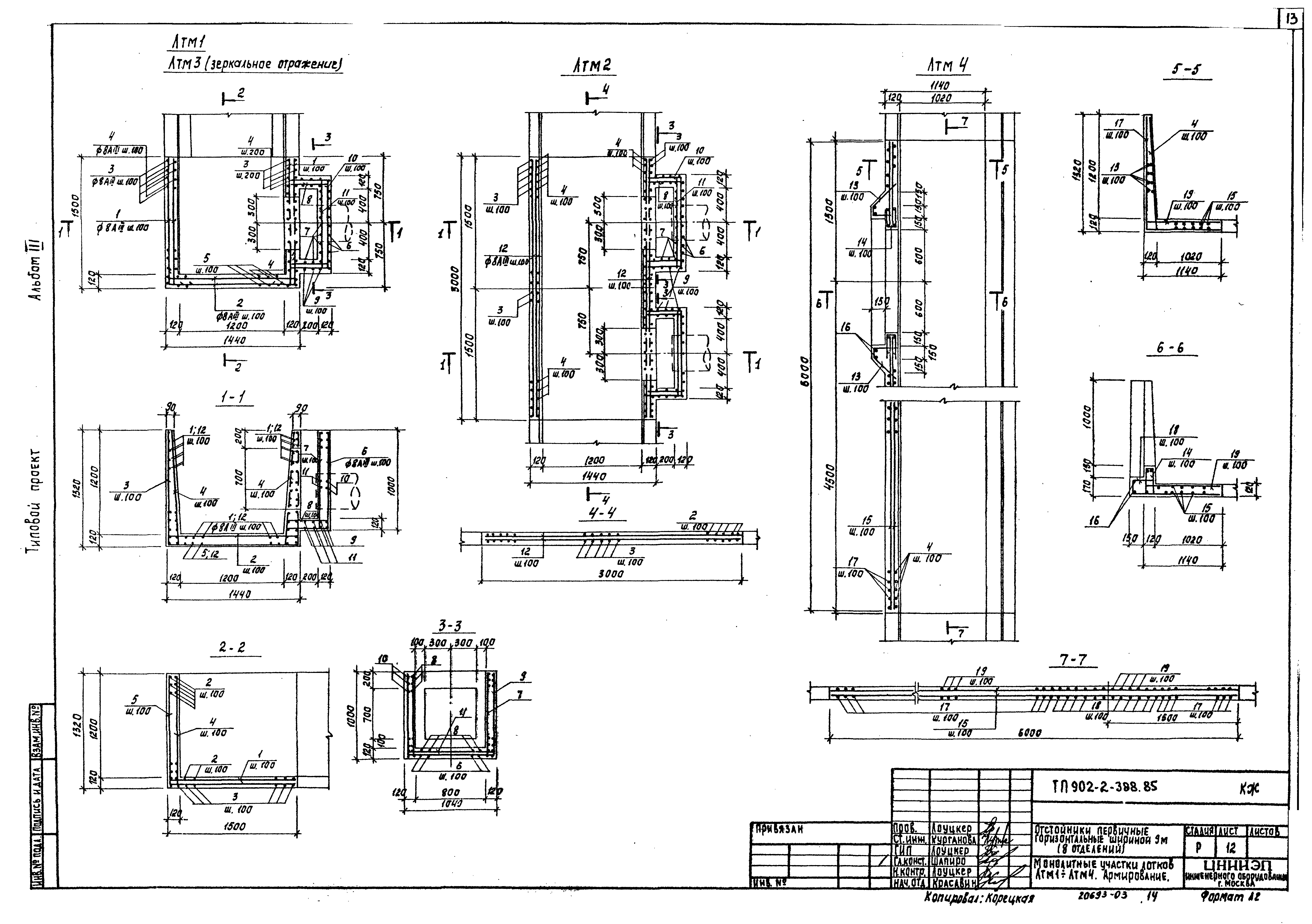
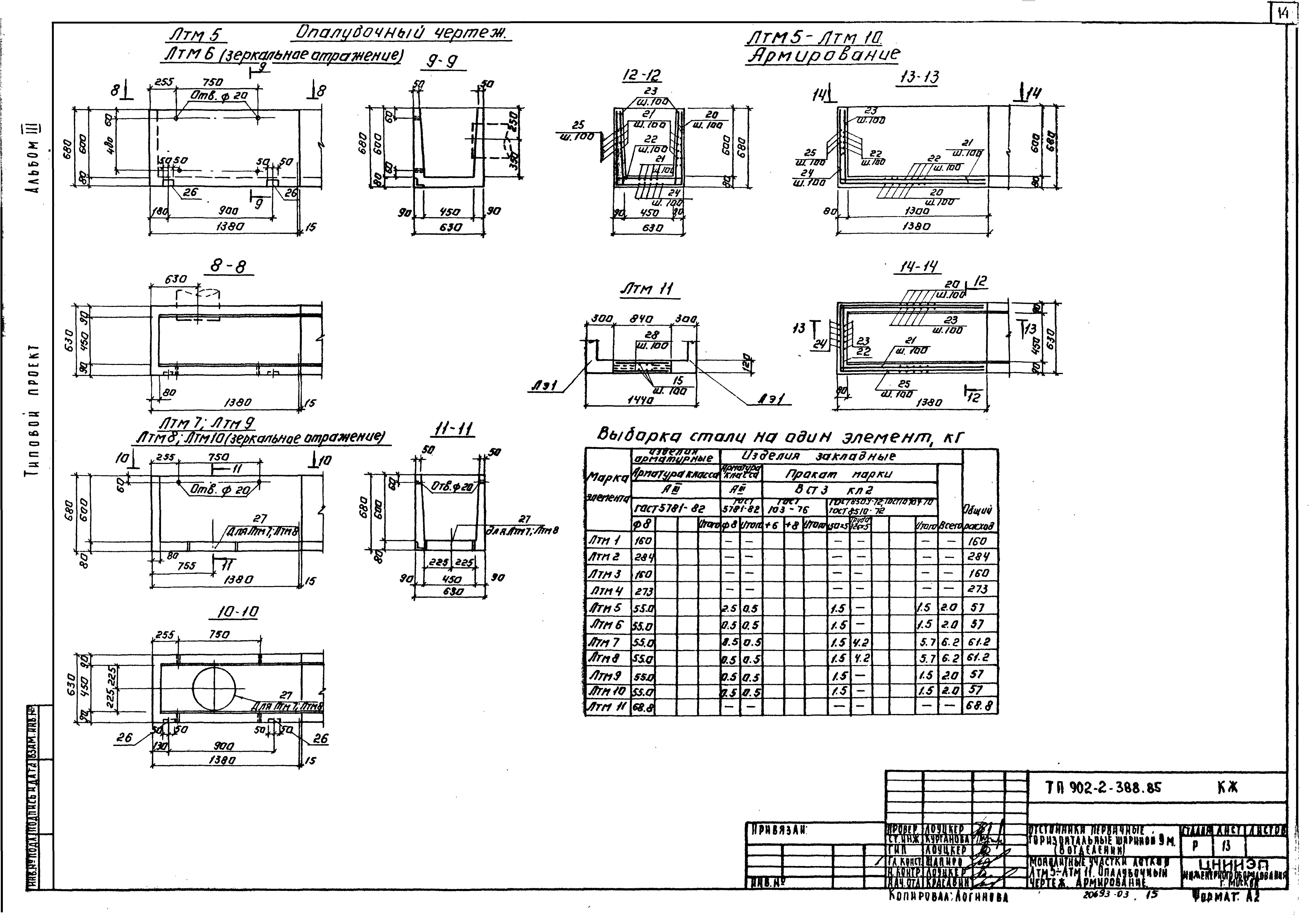
| Оглавление: | Общие данные Узел 1 и 3. Планы. Разрез 6-6 Узел 1. Разрезы 1-1, 4-4, 5-5. Узел 2. Разрезы 2-2, 3-3 Узел 2. Планы. Сечения Узел 4. Планы. Разрезы 7-7, 8-8 Узел 5. Планы. Разрезы 9-9, 10-10 Набетонка по днищу. План. Разрезы. Опалубочный чертеж днища. Узлы Днище. Армирование. Узлы Монолитные участки стен. Опалубочный чертеж Монолитные участки стен Ум1…Ум4. Армирование. Узлы 1, 2 Монолитные участки стен Ум5…Ум10, Ум11. Армирование Монолитные участки лотков Лтм1…Лтм4. Армирование Монолитные участки лотков Лтм5…Лтм11. Опалубочный чертеж. Армирование Монолитные участки лотков. Спецификация |
| Разработан: | ЦНИИЭП инженерного оборудования |
| Утверждён: | 22.07.1974 Госгражданстрой (Gosgrazhdanstroy 164) |















