Скачать Шифр А12-93 Прокладка кабелей в межцеховых тоннелях. Материалы для проектирования и рабочие чертежиДата актуализации: 01.01.2021
|
| Обозначение: | Шифр А12-93 |
| Обозначение англ: | А12-93 |
| Статус: | справочные материалы, мп, тпр |
| Название рус.: | Прокладка кабелей в межцеховых тоннелях. Материалы для проектирования и рабочие чертежи |
| Дата добавления в базу: | 01.10.2014 |
| Дата актуализации: | 01.01.2021 |
| Дата введения: | 01.06.1993 |
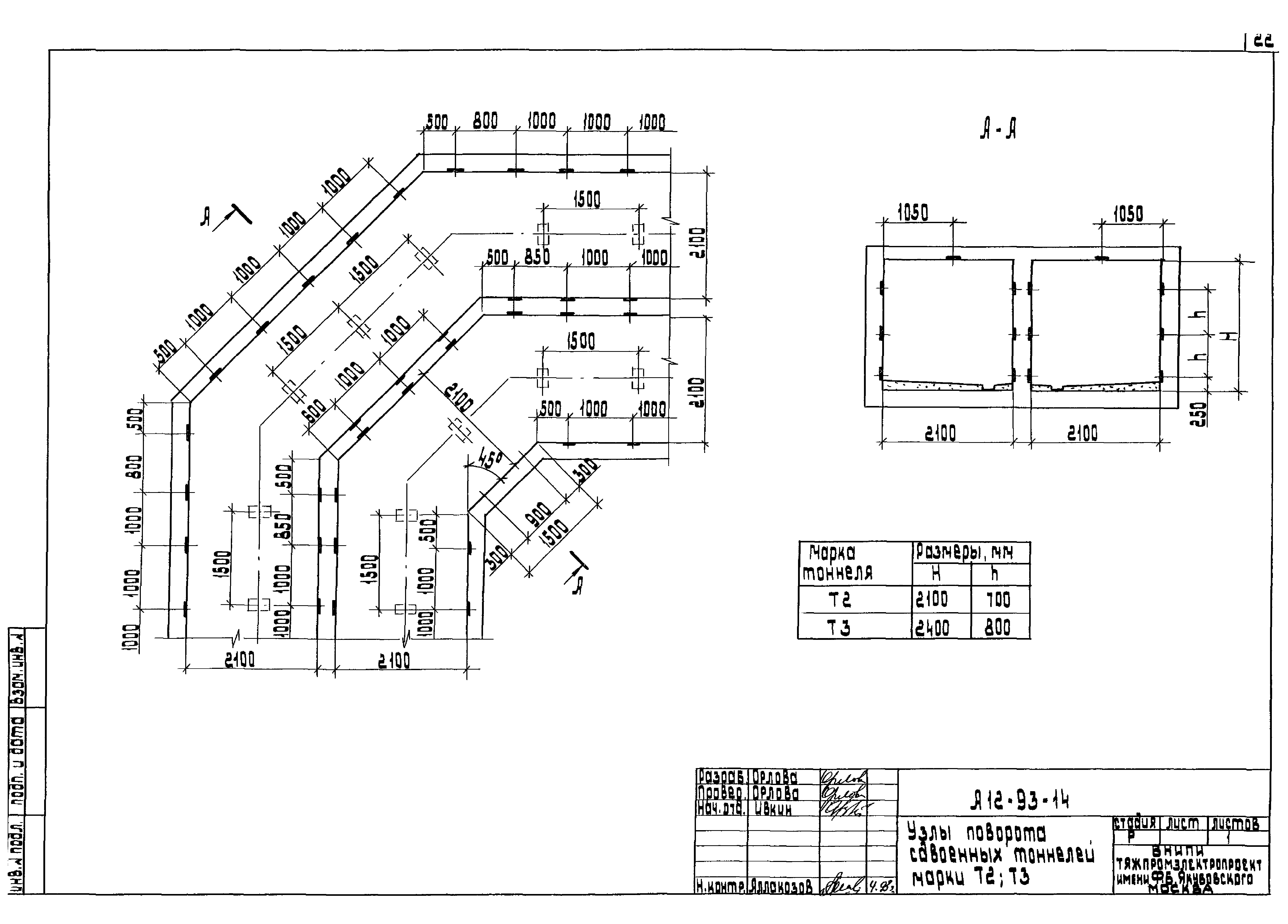
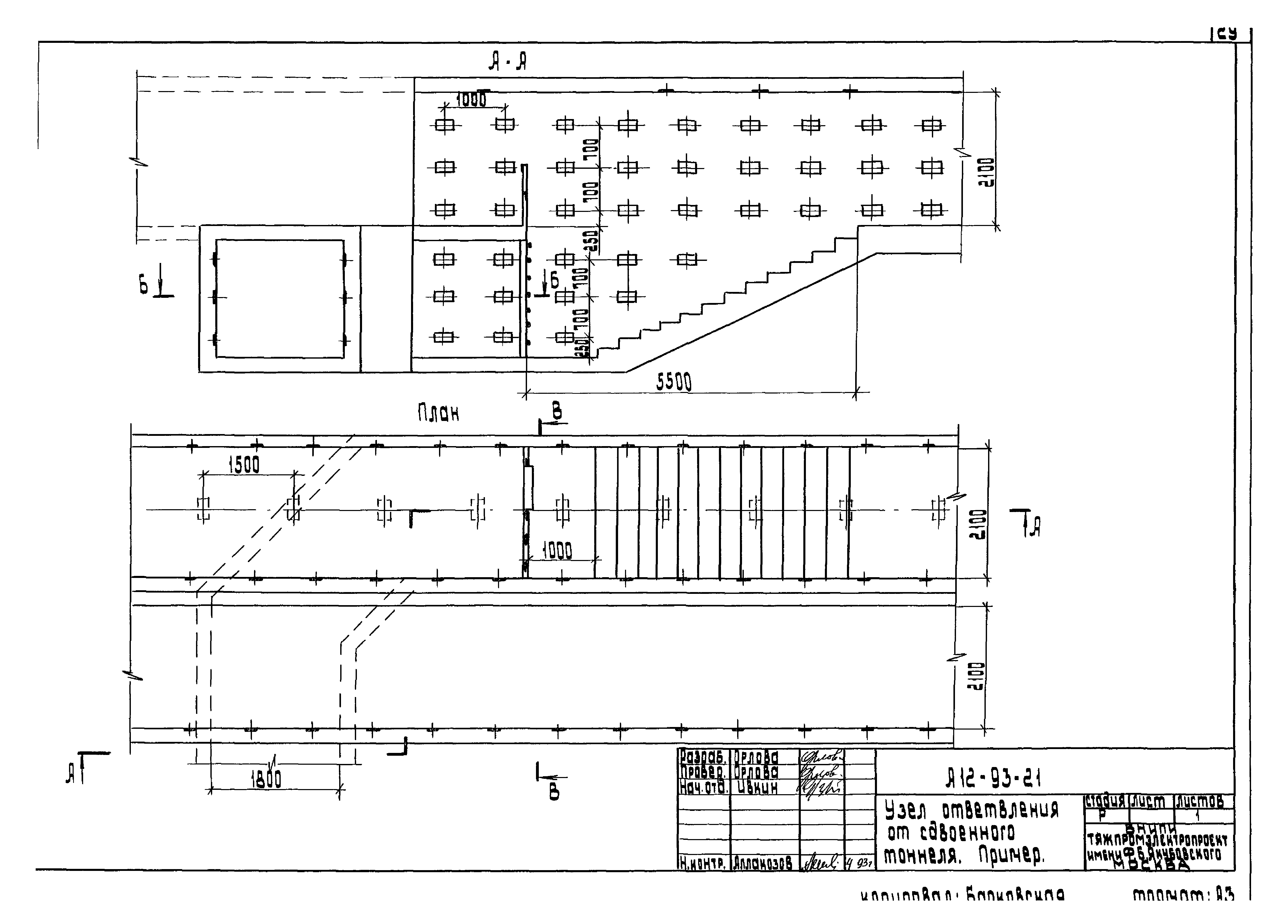
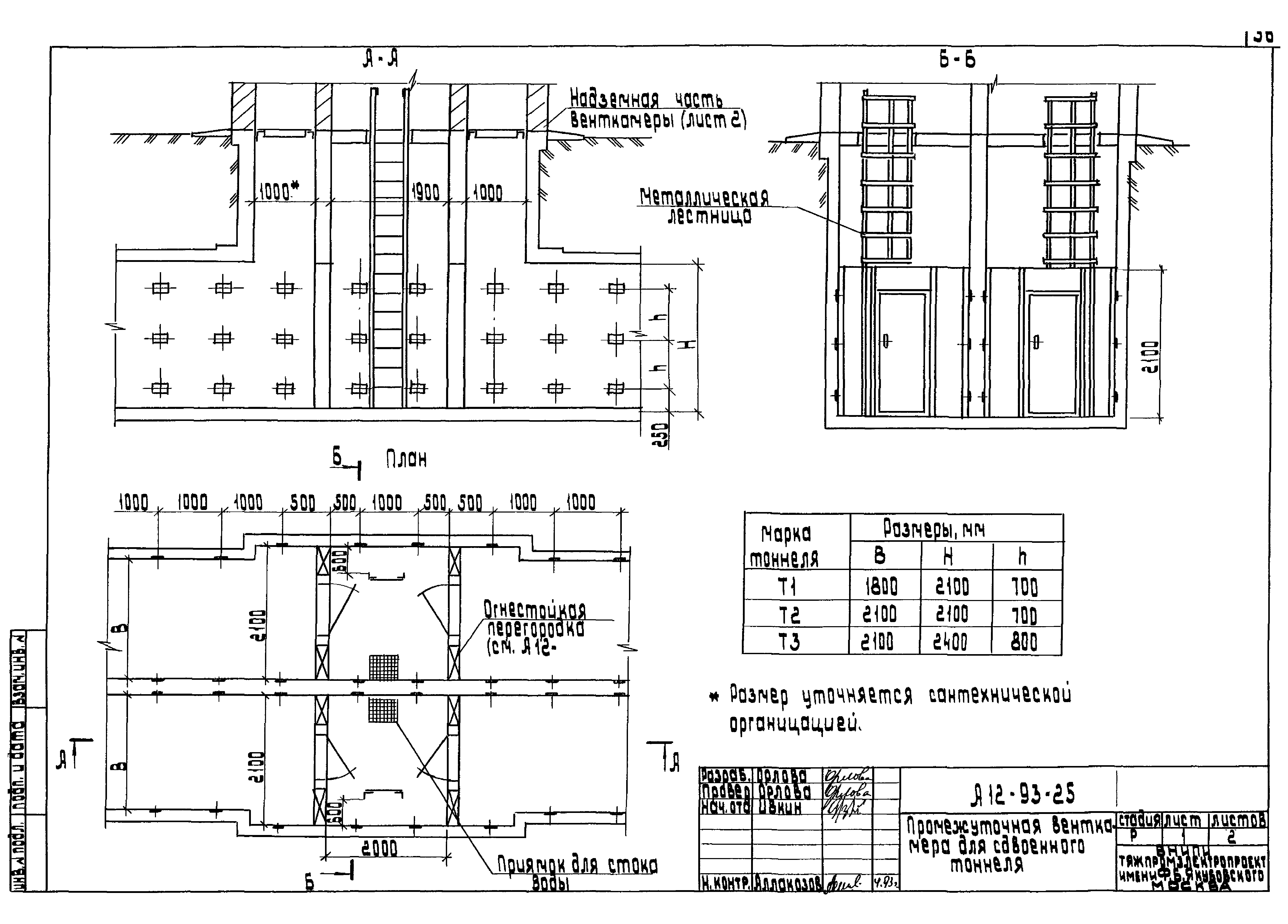
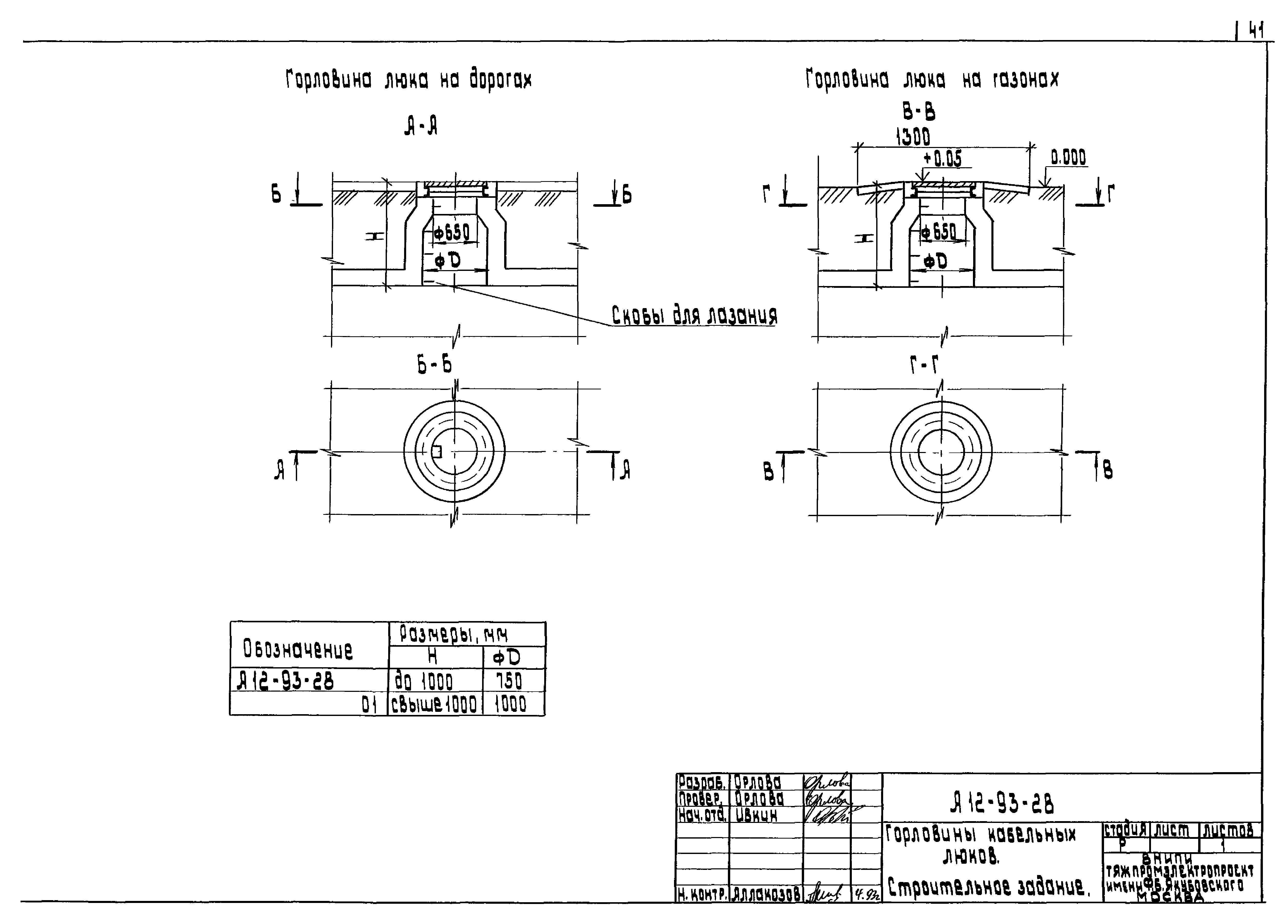
| Оглавление: | А12-93 Содержание А12-93-01 Пояснительная записка А12-93-02 Габариты кабельных тоннелей А12-93-03 Размещение кабелей в тоннелях А12-93-04 Размещение кабелей на конструкциях А12-93-05 Рекомендуемые расстояния между полками кабельных конструкций А12-93-06 Минимальные радиусы изгиба кабелей и количество кабелей на полке А12-93-07ГЧ Элементы кабельных конструкций. Габаритный чертеж Строительные задания на элементы кабельных тоннелей А12-93-08 Требования к строительным заданиям на кабельные тоннели А12-93-09 Строительное задание на кабельные тоннели. Пример А12-93-10 Прямой участок тоннеля А12-93-11 Узел поворота тоннеля марки Т1 А12-93-12 Узел поворота тоннеля марки Т2, Т3 А12-93-13 Узел поворота сдвоенного тоннеля марки Т1 А12-93-14 Узел поворота сдвоенного тоннеля марки Т2, Т3 А12-93-15 Узел разветвления тоннелей. Вариант 1 А12-93-16 Узел разветвления тоннелей. Вариант 2 А12-93-17 Узел разветвления тоннелей. Вариант 3 А12-93-18 Узел разветвления тоннелей. Вариант 4 А12-93-19 Узел разветвления тоннелей. Вариант 5 А12-93-20 Узел разветвления тоннелей. Вариант 6 А12-93-21 Узел ответвления от сдвоенного тоннеля. Пример А12-93-22 Узел перехода кабелей в траншею (или блок). Пример А12-93-23 Промежуточная венткамера А12-93-24 Концевая венткамера А12-93-25 Промежуточная венткамера для сдвоенного тоннеля А12-93-26 Концевая венткамера для сдвоенного тоннеля А12-93-27 Огнестойкая перегородка. Строительное задание А12-93-28 Горловина кабельных люков. Строительное задание А12-93-29 Аварийный выход из тоннеля. Строительное задание Примеры прокладки кабелей и установки конструкций А12-93-30 Прокладка кабелей на прямом участке тоннеля. Пример А12-93-31 Прокладка кабелей при разветвлении тоннеля по варианту 2. Пример А12-93-32 Прокладка кабелей при разветвлении тоннеля по варианту 6. Пример А12-93-33 Прокладка кабелей при ответвлении от сдвоенного тоннеля. Пример А12-93-34 Установка горизонтальной разделительной перегородки А12-93-35 Крепление кабеля на конструкции однолапковой скобой А12-93-36 Крепление кабеля на конструкции двухлапковой скобой А12-93-37 Крепление кабеля на конструкции накладкой А12-93-38 Кабельная конструкция Н 400 - 1200 А12-93-39 Кабельная конструкция Н 1600 А12-93-40 Кабельная конструкция Н 1800, 2200 А12-93-41 Конструкция распорная А12-93-42 Кронштейн А12-93-43 Установка конструкции в тоннелях. Примеры А12-93-44 Эскизы кабельных конструкций. Примеры |
| Разработан: | ВНИПИ Тяжпромэлектропроект им. Ф.Б. Якубовского |
| Утверждён: | 26.04.1993 ВНИПИ Тяжпромэлектропроект им. Ф.Б. Якубовского (F.B.Yakubovskiy Tyazhpromelektroproject VNIPI 20) |
























































