Скачать Типовой проект 902-2-361 Альбом 3. ИзделияДата актуализации: 01.01.2021
|
| Обозначение: | Типовой проект 902-2-361 |
| Обозначение англ: | 902-2-361 |
| Статус: | не определен законодательством |
| Название рус.: | Альбом 3. Изделия |
| Дата добавления в базу: | 01.09.2013 |
| Дата актуализации: | 01.01.2021 |
| Дата введения: | 26.01.1983 |
| Дата окончания срока действия: | 30.06.2003 |
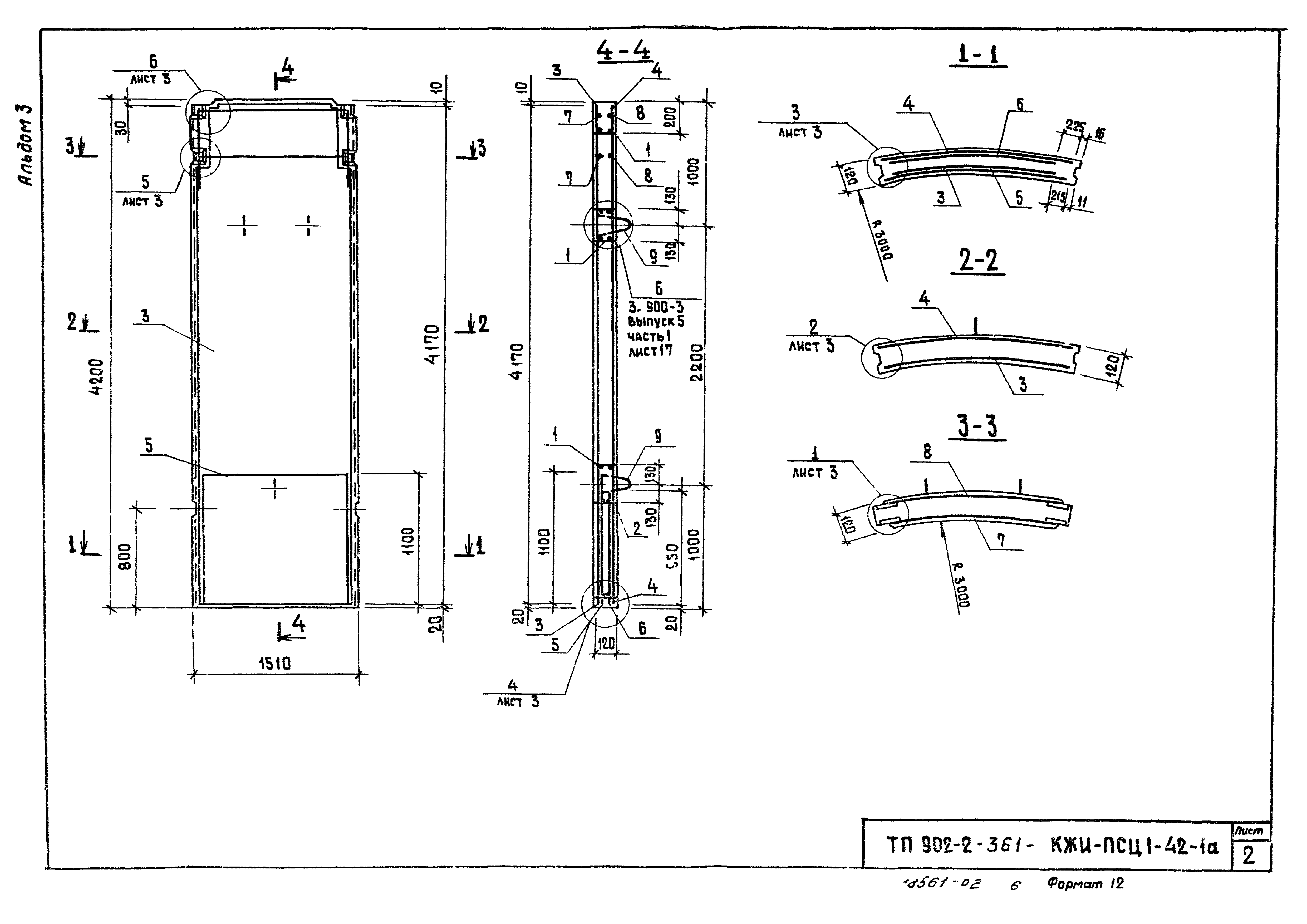
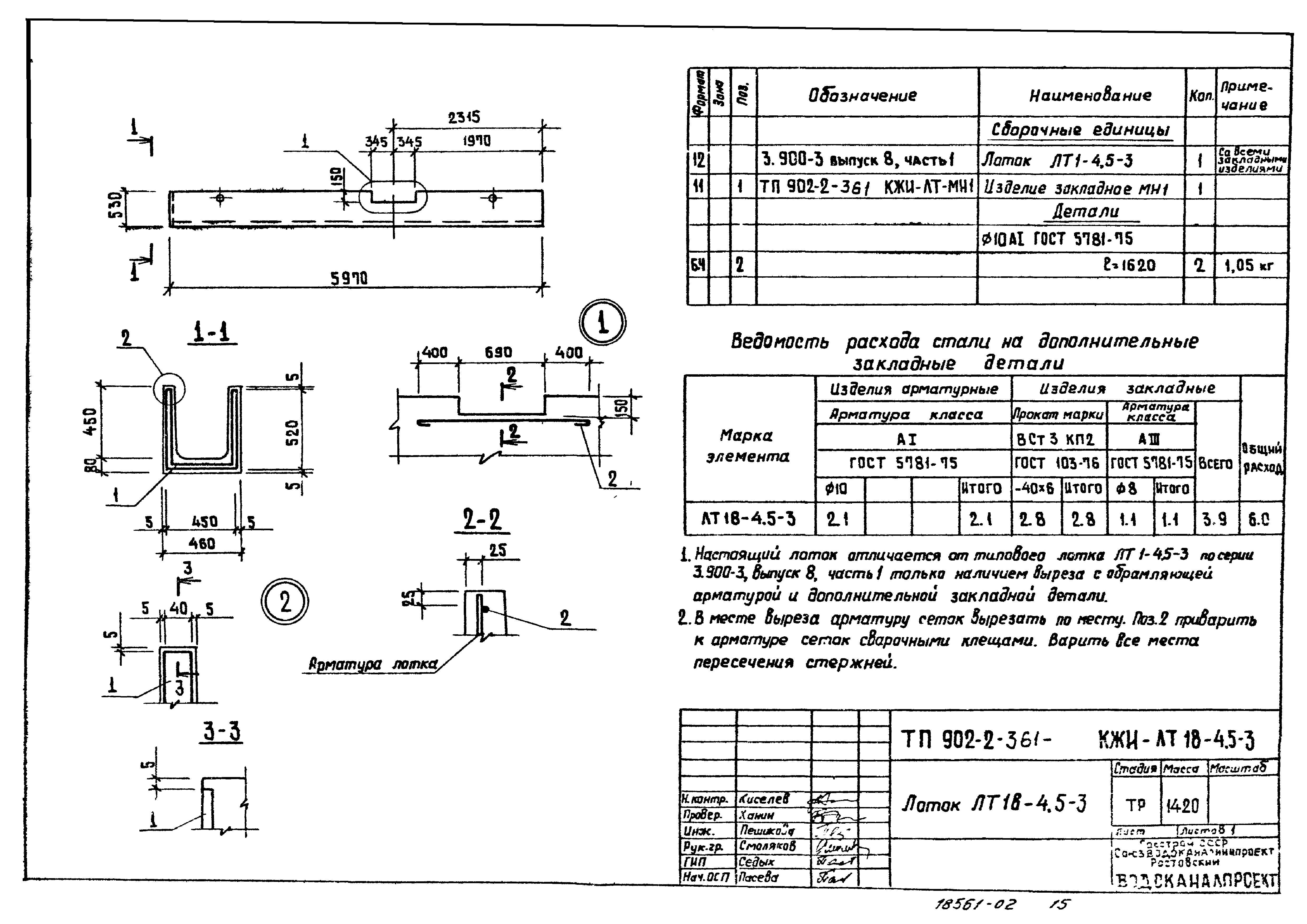
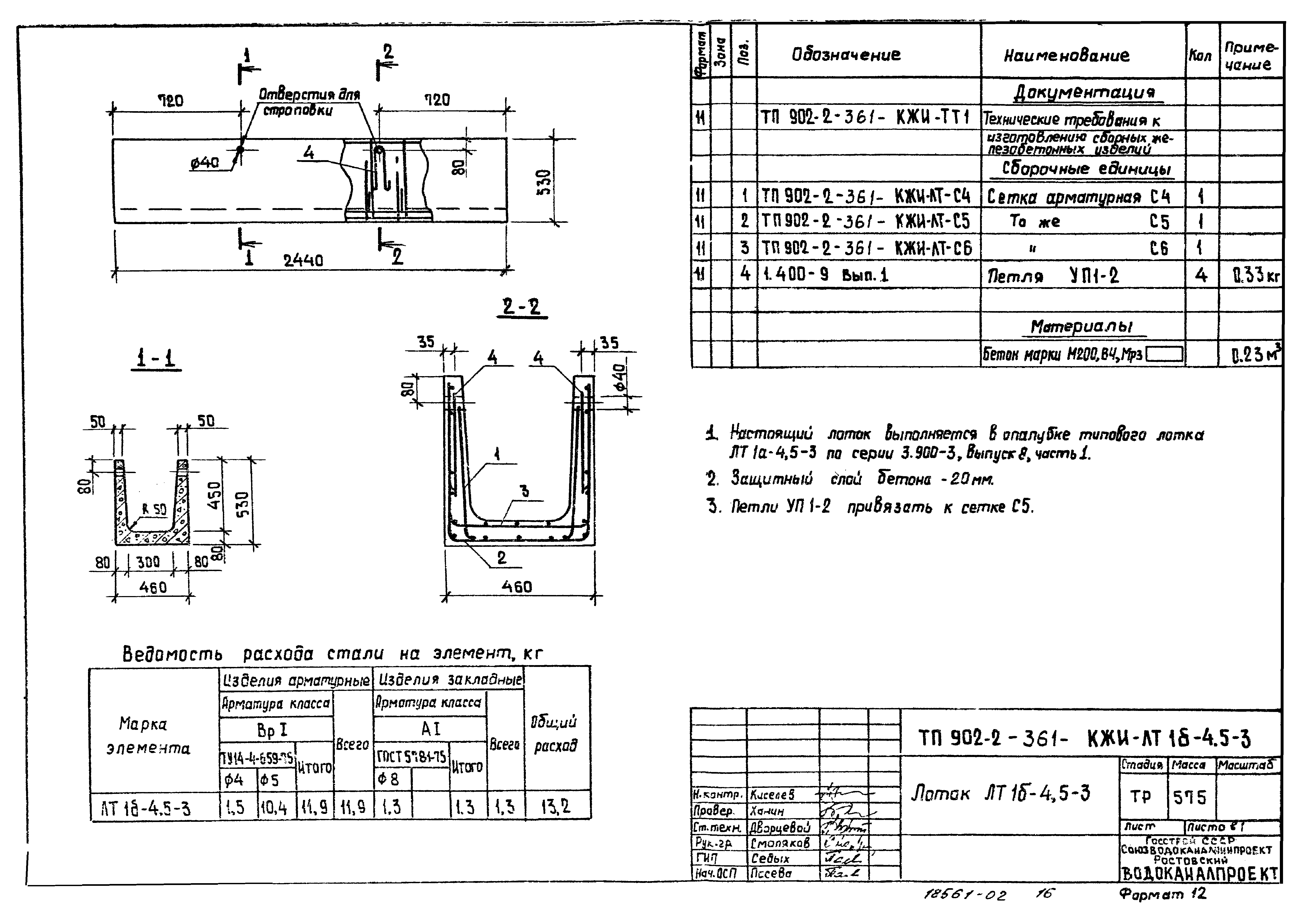
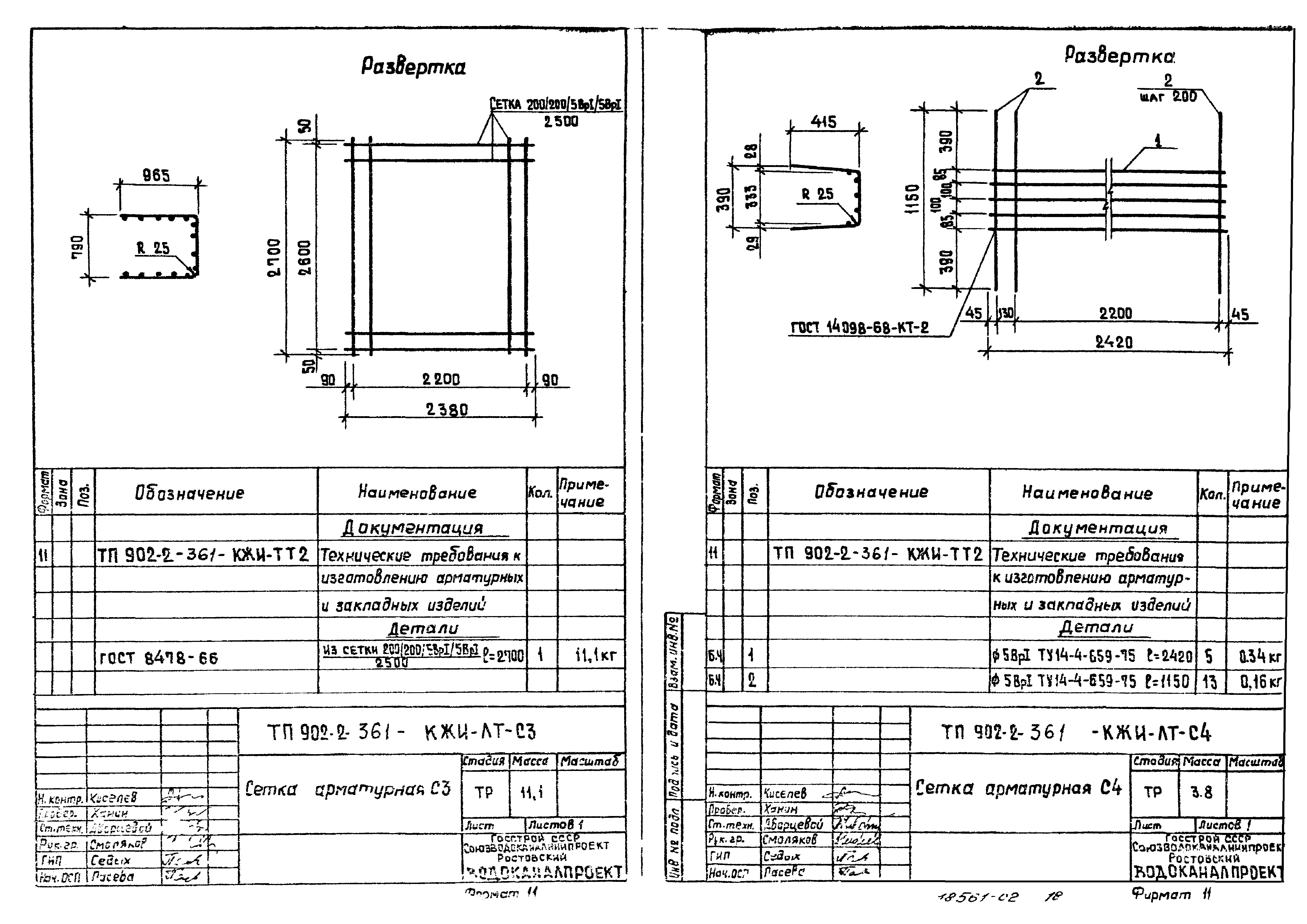
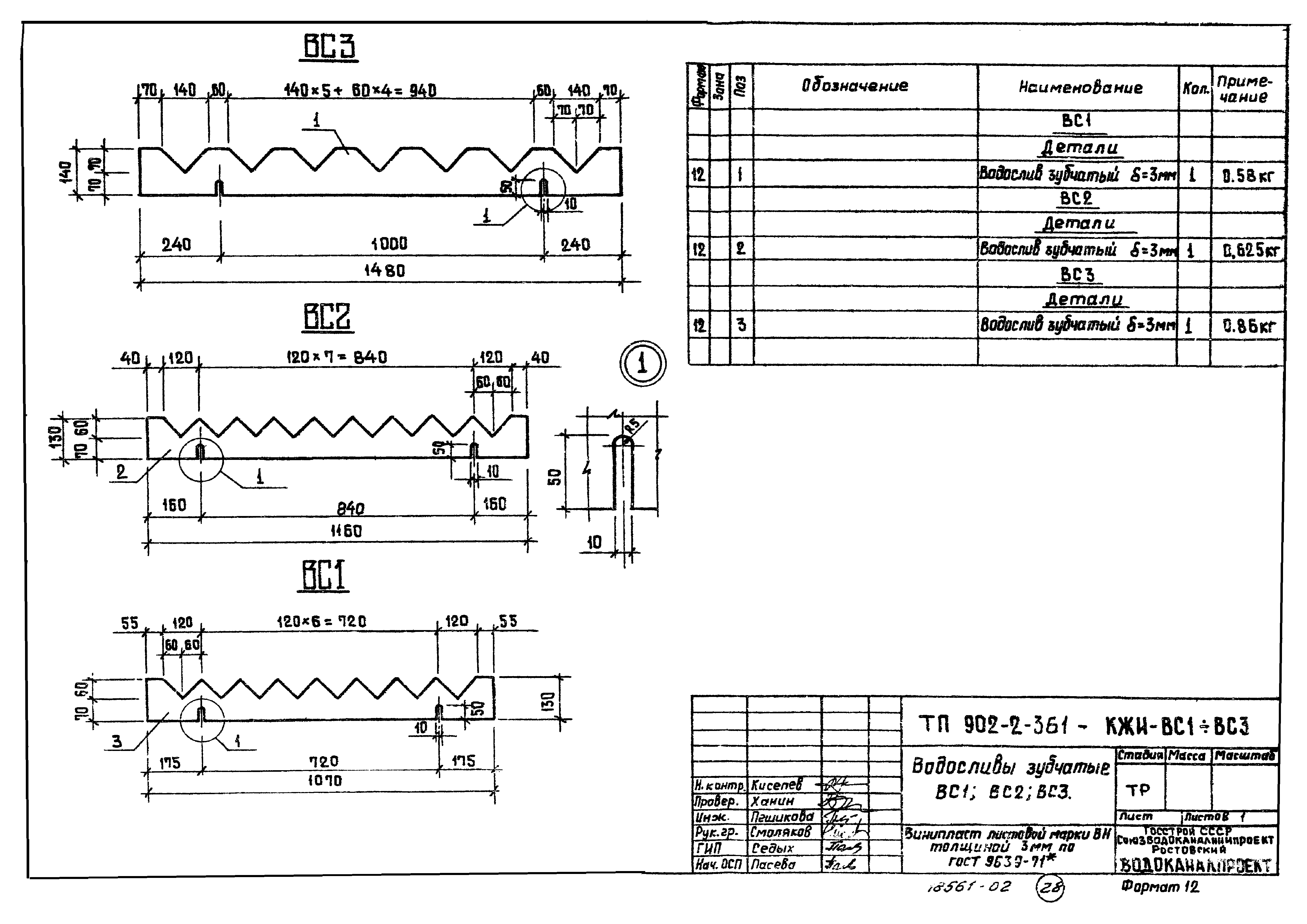
| Оглавление: | 902-2-361-КЖИ-ДО Содержание листов альбома 902-2-361-КЖИ-ТТ1 Технические требования к изготовлению сборных железобетонных изделий 902-2-361-КЖИ-ТТ2 Технические требования к изготовлению арматурных и закладных изделий 902-2-361-КЖИ-ПСЦ1-42-1а Панель стеновая ПСЦ1-42-1а 902-2-361-КЖИ-ПСЦ1-42-1б; ПСЦ1-42-1в Панель стеновая ПСЦ1-42-1б; ПСЦ1-42-1в 902-2-361-КЖИ-ПСЦ1-42-1г; ПСЦ1-42-1д Панель стеновая ПСЦ1-42-1г; ПСЦ1-42-1д 902-2-361-КЖИ-ПСЦ-КР1; КР2 Каркасы плоские КР1; КР2 902-2-361-КЖИ-ПСЦ-С1; С2 Сетки арматурные С1; С2 902-2-361-КЖИ-ПСЦ-С3 Сетка арматурная С3 902-2-361-КЖИ-ПСЦ-С4 Сетка арматурная С4 902-2-361-КЖИ-ПСЦ-МН1; МН2 Изделия закладные МН1; МН2 902-2-361-КЖИ-ПСЦ-МН3 Изделие закладное МН3 902-2-361-КЖИ-ПСЦ-МН4 Изделие закладное МН4 902-2-361-КЖИ-ЛТ1б-9-6 Лоток ЛТ1б-9-6 902-2-361-КЖИ-ЛТ1в-4,5-3 Лоток ЛТ1в-4,5-3 902-2-361-КЖИ-ЛТ1б-4,5-3 Лоток ЛТ1б-4,5-3 902-2-361-КЖИ-ЛТ-С1 Сетка арматурная С1 902-2-361-КЖИ-ЛТ-С2 Сетка арматурная С2 902-2-361-КЖИ-ЛТ-С3 Сетка арматурная С3 902-2-361-КЖИ-ЛТ-С4 Сетка арматурная С4 902-2-361-КЖИ-ЛТ-С5 Сетка арматурная С5 902-2-361-КЖИ-ЛТ-С6 Сетка арматурная С6 902-2-361-КЖИ-ЛТ-МН1 Изделие закладное МН1 902-2-361-КЖИ-КЦП1-15-2а Плита перекрытия КЦП1-15-2а 902-2-361-КЖИ-КЦП-МН1 Изделие закладное МН1 902-2-361-КЖИ-КП1 Каркас пространственный КП1 902-2-361-КЖИ-КП2 Каркас пространственный КП2 902-2-361-КЖИ-КР1 Каркас плоский КР1 902-2-361-КЖИ-КР2 Каркас плоский КР2 902-2-361-КЖИ-С1 Сетка арматурная С1 902-2-361-КЖИ-С2 Сетка арматурная С2 902-2-361-КЖИ-С3 Сетка арматурная С3 902-2-361-КЖИ-С4 Сетка арматурная С4 902-2-361-КЖИ-С5 Сетка арматурная С5 902-2-361-КЖИ-МН1 Изделие закладное МН1 902-2-361-КЖИ-ВС1 - ВС3 Водосливы зубчатые ВС1; ВС2; ВС3 |
| Разработан: | Ростовский Водоканалпроект |
| Утверждён: | 25.08.1982 Главстройпроект Госстроя СССР (32) |
| Издан: | ЦИТП Госстроя СССР (CITP, Gosstroy (USSR) 1983 г. ) |
| Заменяет собой: |




























