Скачать Типовой проект 902-1-147.88 Альбом 5. Подземная часть. Конструкции железобетонные. Конструкции металлические. ИзделияДата актуализации: 01.01.2021
|
| Обозначение: | Типовой проект 902-1-147.88 |
| Обозначение англ: | 902-1-147.88 |
| Статус: | не определен законодательством |
| Название рус.: | Альбом 5. Подземная часть. Конструкции железобетонные. Конструкции металлические. Изделия |
| Дата добавления в базу: | 01.09.2013 |
| Дата актуализации: | 01.01.2021 |
| Дата введения: | 09.08.1988 |
| Дата окончания срока действия: | 30.06.2003 |
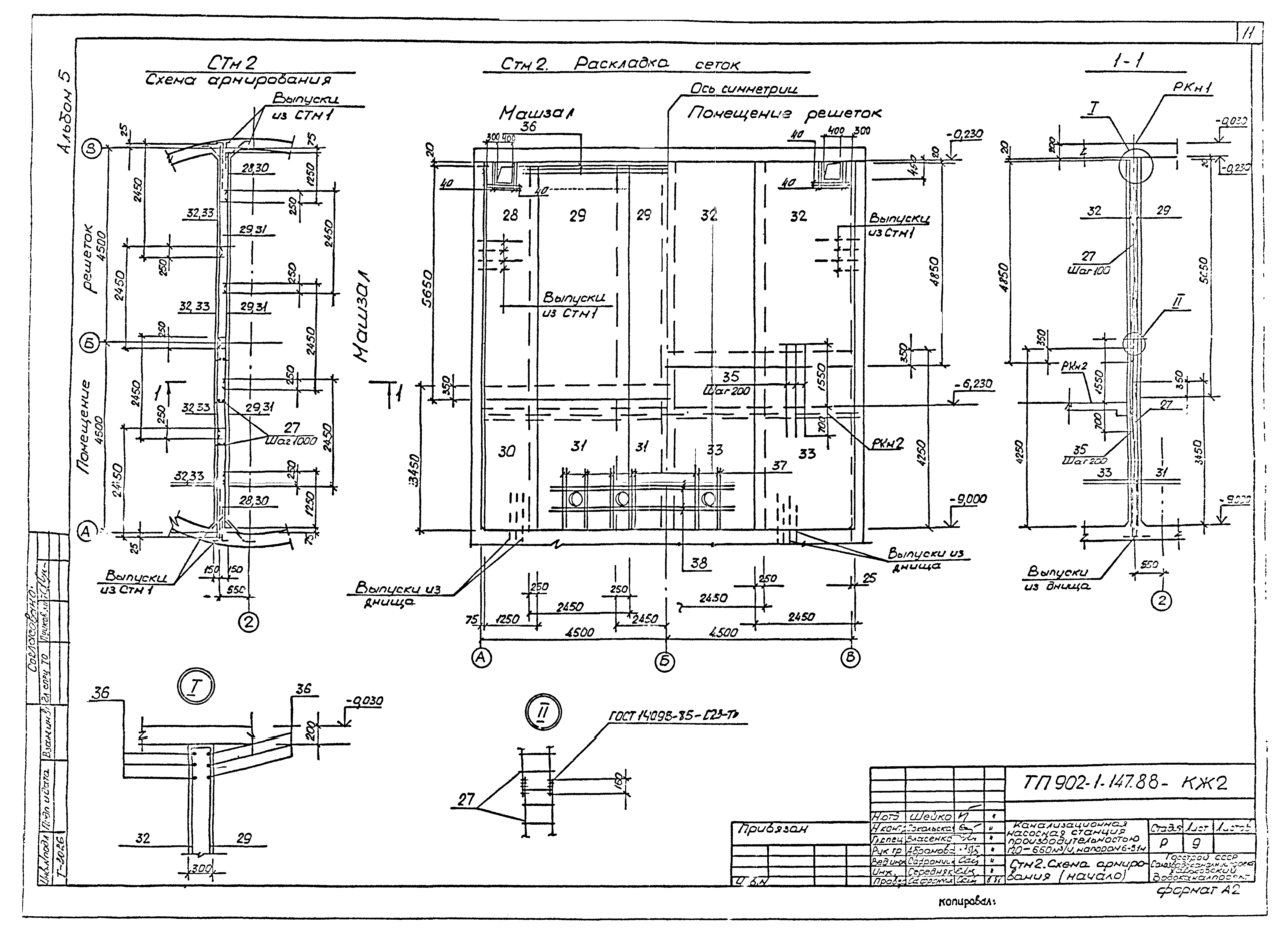
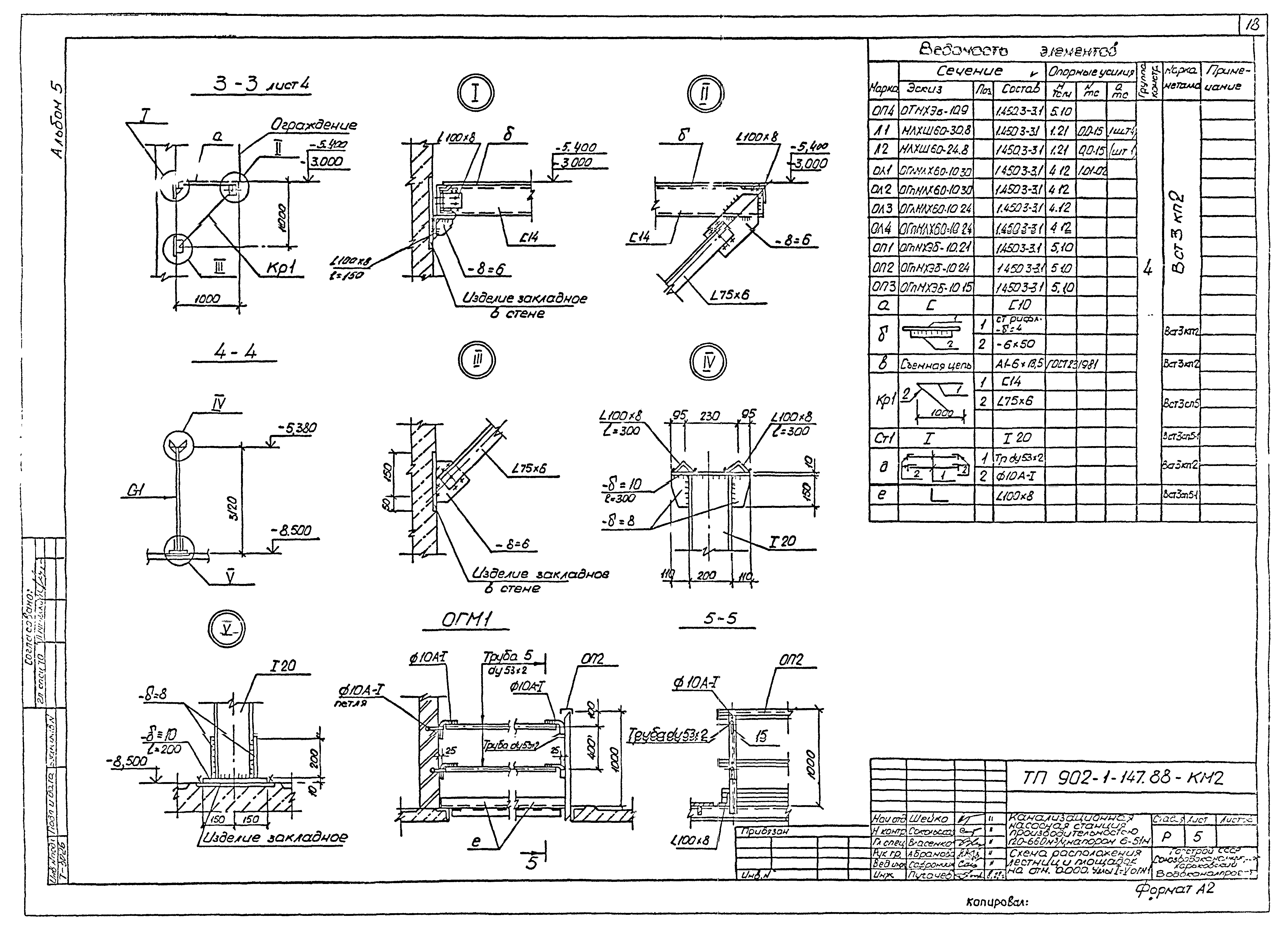
| Оглавление: | Основной комплект чертежей марки КЖ2 Общие данные Планы на отм. -6.200; -8.500; разрезы 1-1, 2-2 Схема расположения элементов подземной части СТМ1, СТМ2. Общий вид Плита днища ПДМ1. Общий вид и схема армирования Плита днища ПДМ1. Схема армирования. Раскрой сеток СТМ1. Схема армирования СТМ2. Схема армирования Схема расположения опорных блоков и форшахты Основной комплект чертежей марки КМ2 Общие данные Схема расположения лестниц и площадок на отм. 0.000 и -3.000 м Схема расположения лестниц и площадок на отм. 0.000. Узлы I-V, ОГМ1 Схема расположения металлической площадки ПМ1. Насосы марки СД Схема расположения металлической площадки. Насосы марки СМ Схема расположения площадки для обслуживания крана на отм. - 2.600 Содержание выпуска Технические требования Каркас плоский КР1, КР2 Каркас плоский КР3 Каркас плоский КР4 Изделие закладное МН1 Изделие закладное МН2 Ведомость расхода стали Изделие закладное МН3 Изделие соединительное МС1 Опорный блок ОБ1 Сетка арматурная С1 Сетка арматурная С2 |
| Разработан: | Харьковский Водоканалпроект |
| Утверждён: | 09.08.1988 Госстрой СССР (Государственный комитет Совета Министров СССР по делам строительства) (USSR Gosstroy 53) |

























