Скачать Руководство по применению опалубки для монолитных железобетонных конструкций. Выпуск 1. Разборно-переставная опалубкаДата актуализации: 01.01.2021
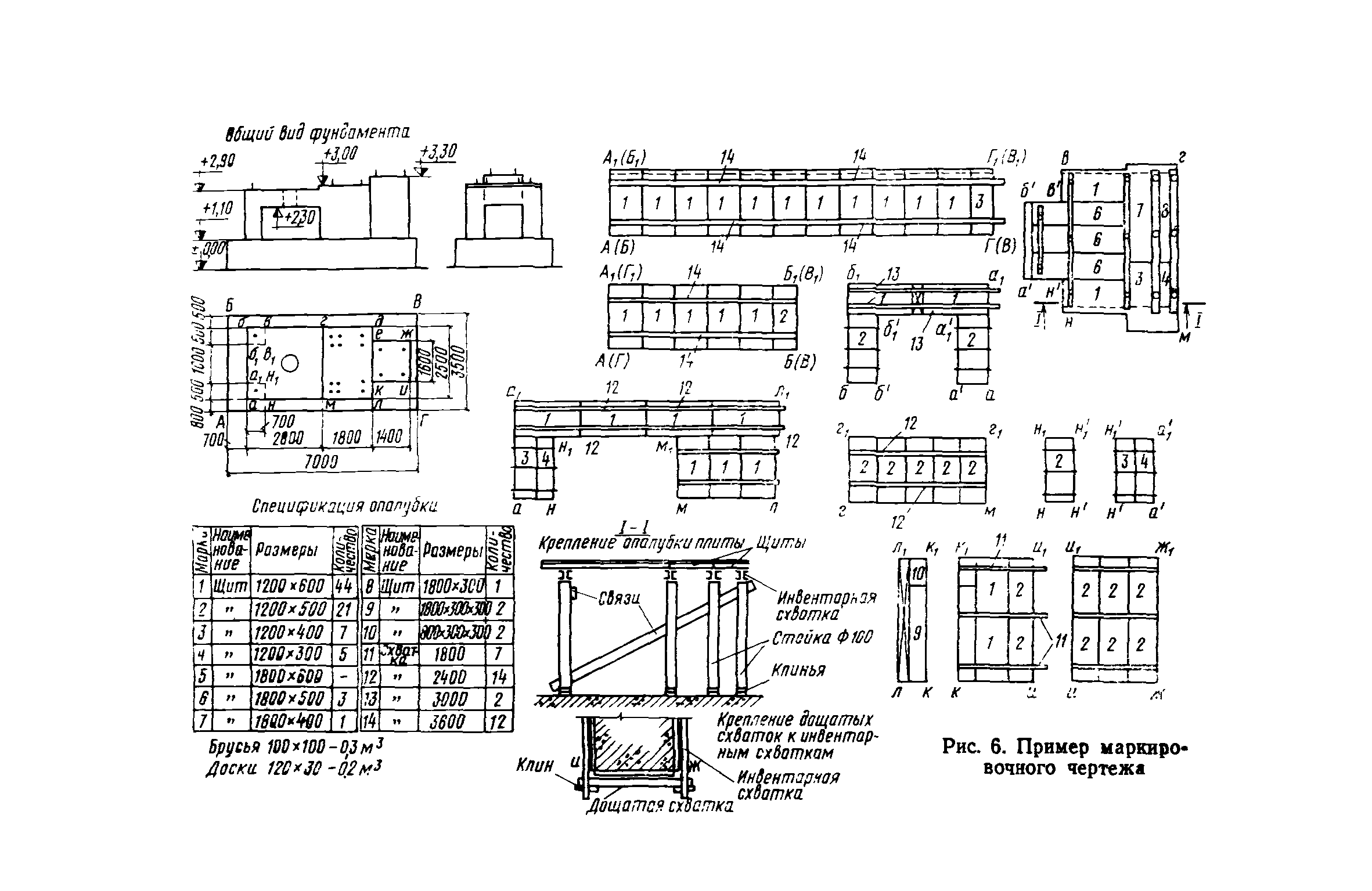
Руководство по применению опалубки для монолитных железобетонных конструкций. Выпуск 1. Разборно-переставная опалубка| Статус: | не действует | | Название рус.: | Руководство по применению опалубки для монолитных железобетонных конструкций. Выпуск 1. Разборно-переставная опалубка | | Дата добавления в базу: | 01.09.2013 | | Дата актуализации: | 01.01.2021 | | Область применения: | В первом выпуске приведены общие данные, касающиеся расчета опалубки и материалов, используемых для изготовления ее элементов. Описана технология сборки разборно-переставной опалубки фундаментов под каркасы зданий и технологическое оборудование, опалубки колонн, ригелей, перекрытий, бункеров и других конструкций и сооружений. | | Оглавление: | Предисловие Глава 1. Общие положения Типы опалубки Материалы для изготовления опалубки Основные данные по расчету опалубки и рекомендации по конструированию Требования к проектированию технологии и организации опалубочных работ Глава 2. Разборно-переставная опалубка Инструменты и приспособления для производства опалубочных работ Сборка опалубки ступенчатых фундаментов Установка опалубки ленточных фундаментов Установка опалубки фундаментов под технологическое оборудование Устройство опалубки стен, маслопроводов, резервуаров Устройство опалубки каркасов рамного типа Устройство опалубки перекрытий Установка опалубки бункеров Установка опалубки сборно-монолитных конструкций Установка опалубки механизированным способом Уход за опалубкой и смазка опалубки Правила техники безопасности и производственной санитарии Приложение I Приложение II Приложение III Приложение IV | | Разработан: | ЦНИИОМТП
| | Утверждён: | Госстрой СССР (Государственный комитет Совета Министров СССР по делам строительства) (USSR Gosstroy )
|
                                                                                                                                                                       
|