Скачать Типовой проект 902-1-104.86 Альбом 3. Часть 2. Архитектурно-строительные решения. Надземная часть. Вариант - легкие металлические конструкцииДата актуализации: 01.01.2021
|
| Обозначение: | Типовой проект 902-1-104.86 |
| Обозначение англ: | 902-1-104.86 |
| Статус: | не определен законодательством |
| Название рус.: | Альбом 3. Часть 2. Архитектурно-строительные решения. Надземная часть. Вариант - легкие металлические конструкции |
| Дата добавления в базу: | 01.09.2013 |
| Дата актуализации: | 01.01.2021 |
| Дата введения: | 27.10.1986 |
| Дата окончания срока действия: | 30.06.2003 |
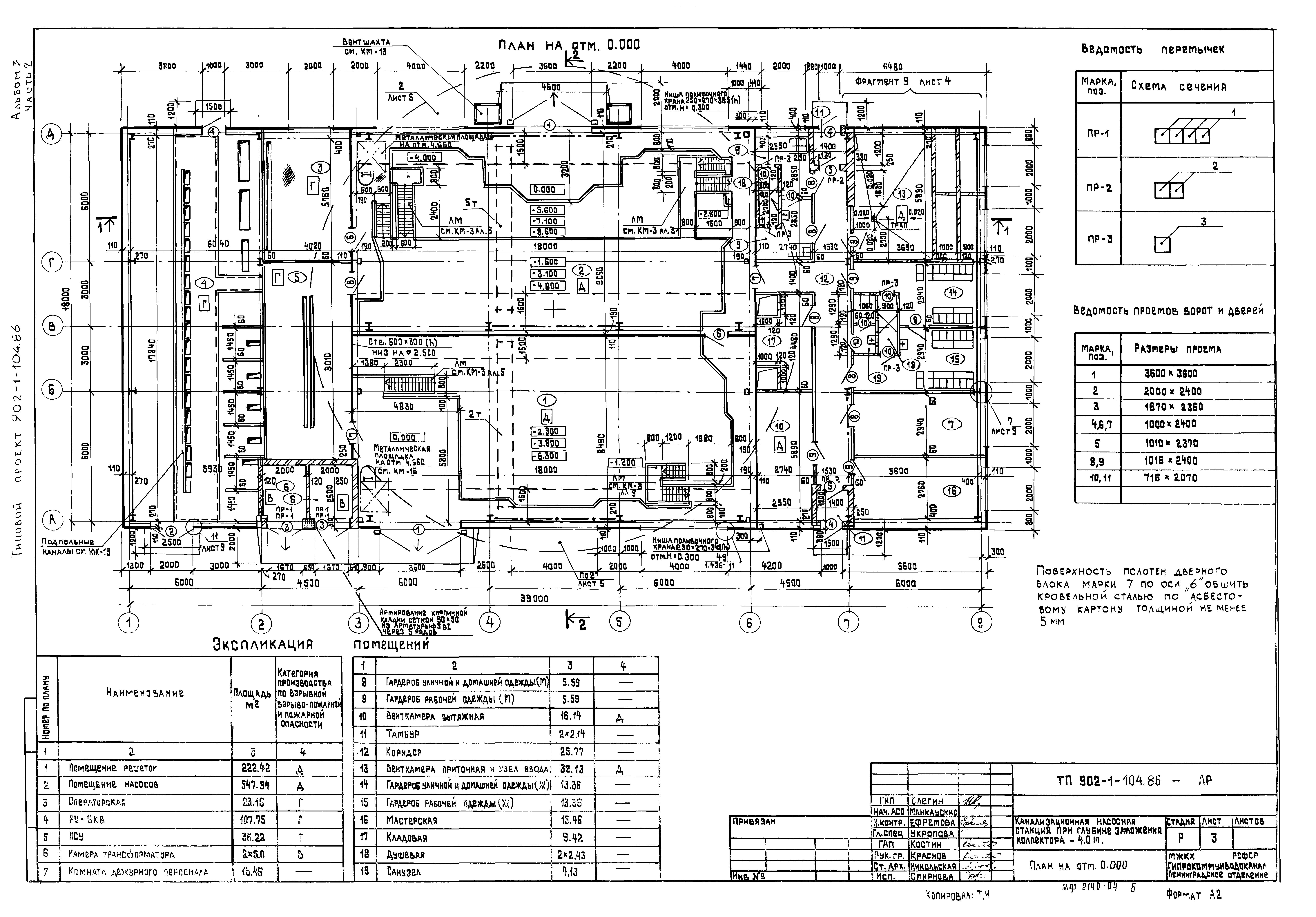
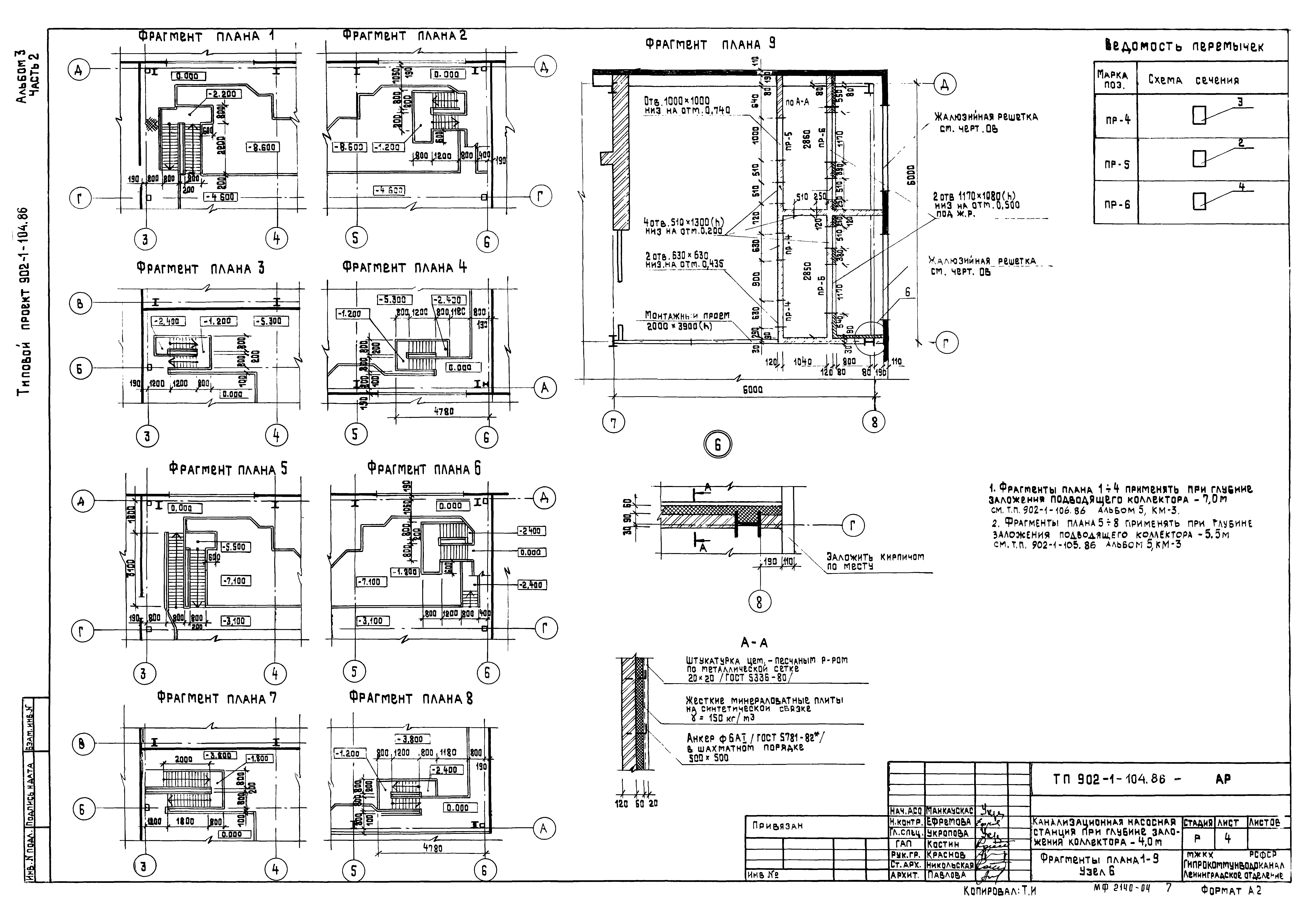
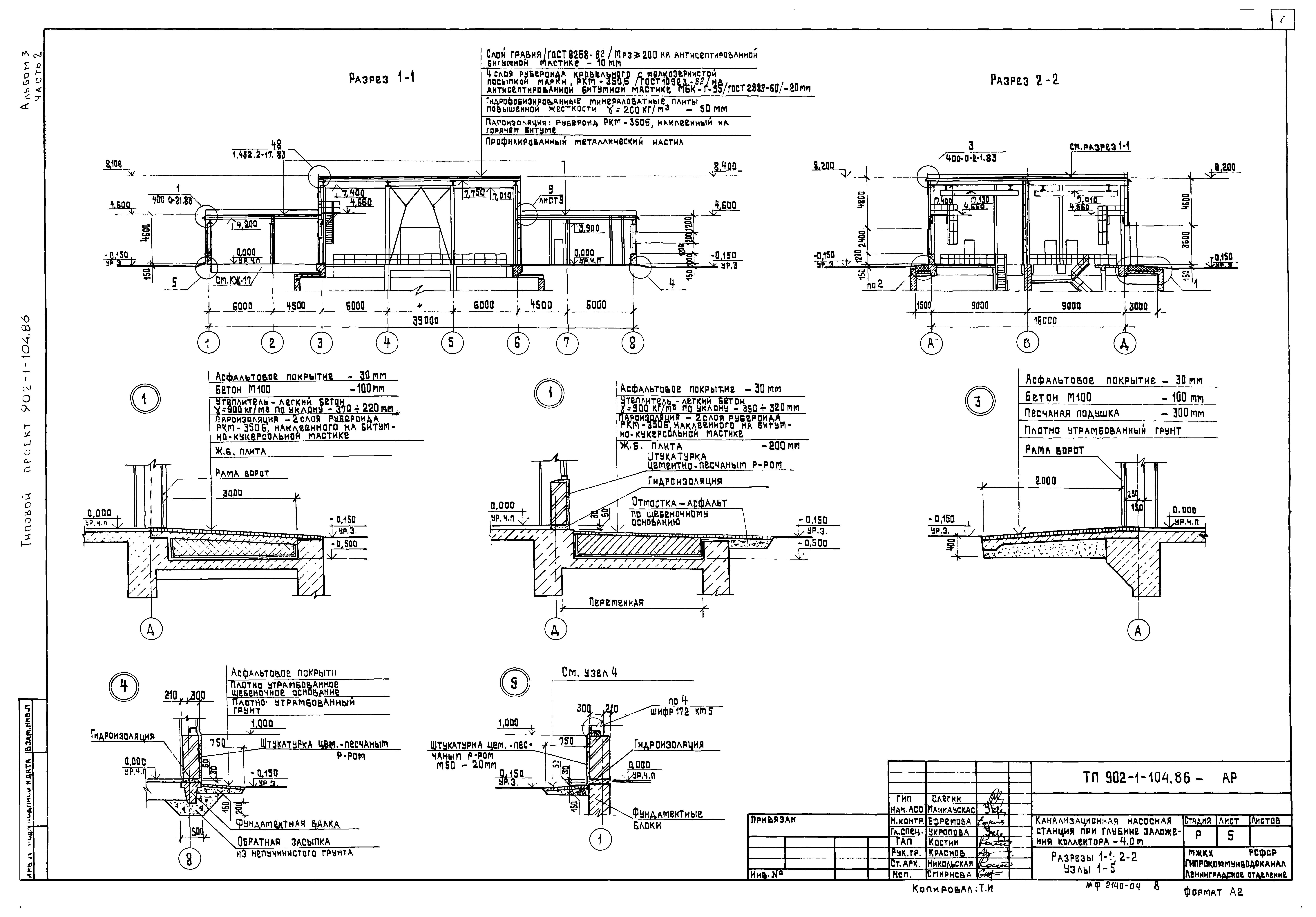
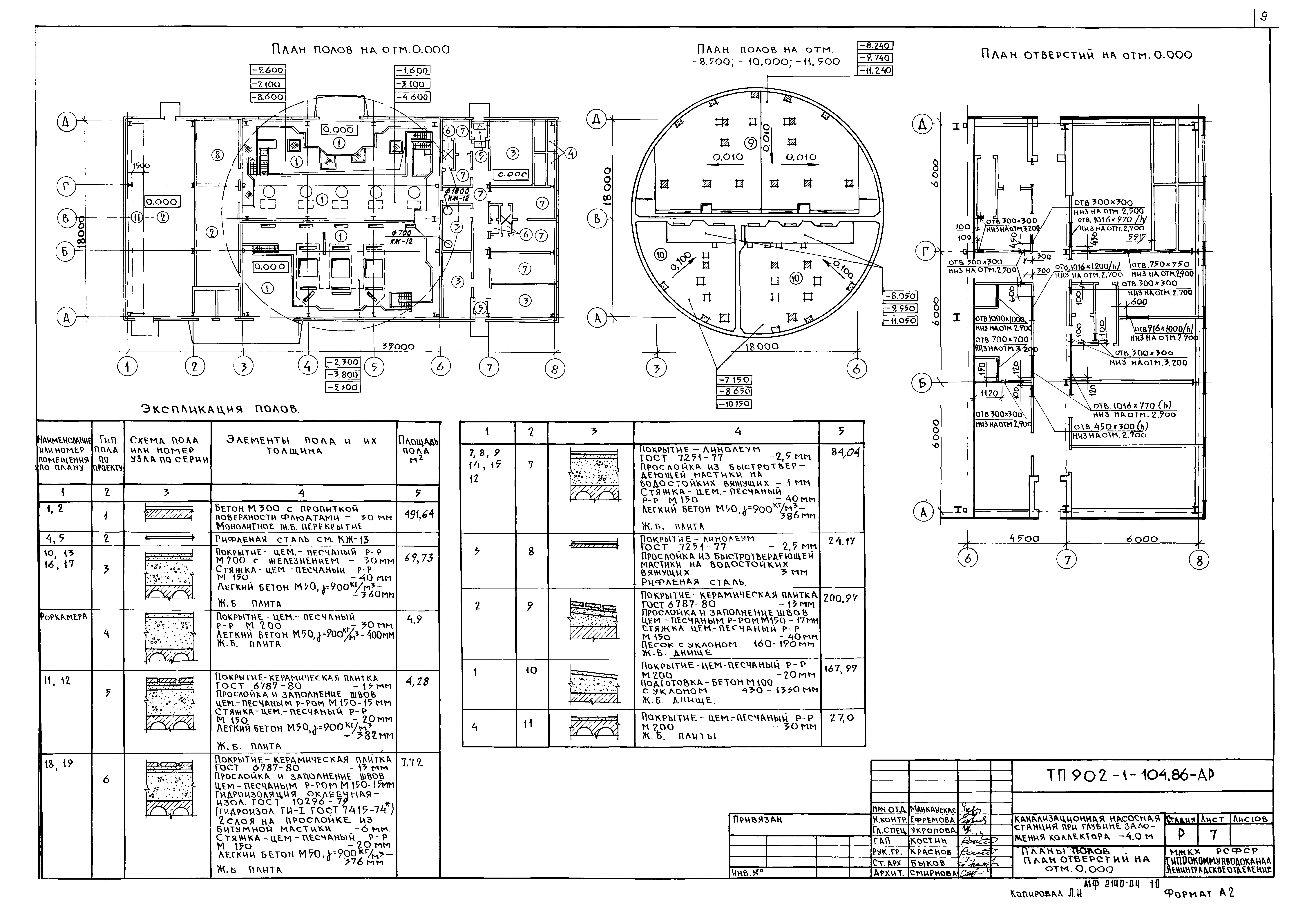
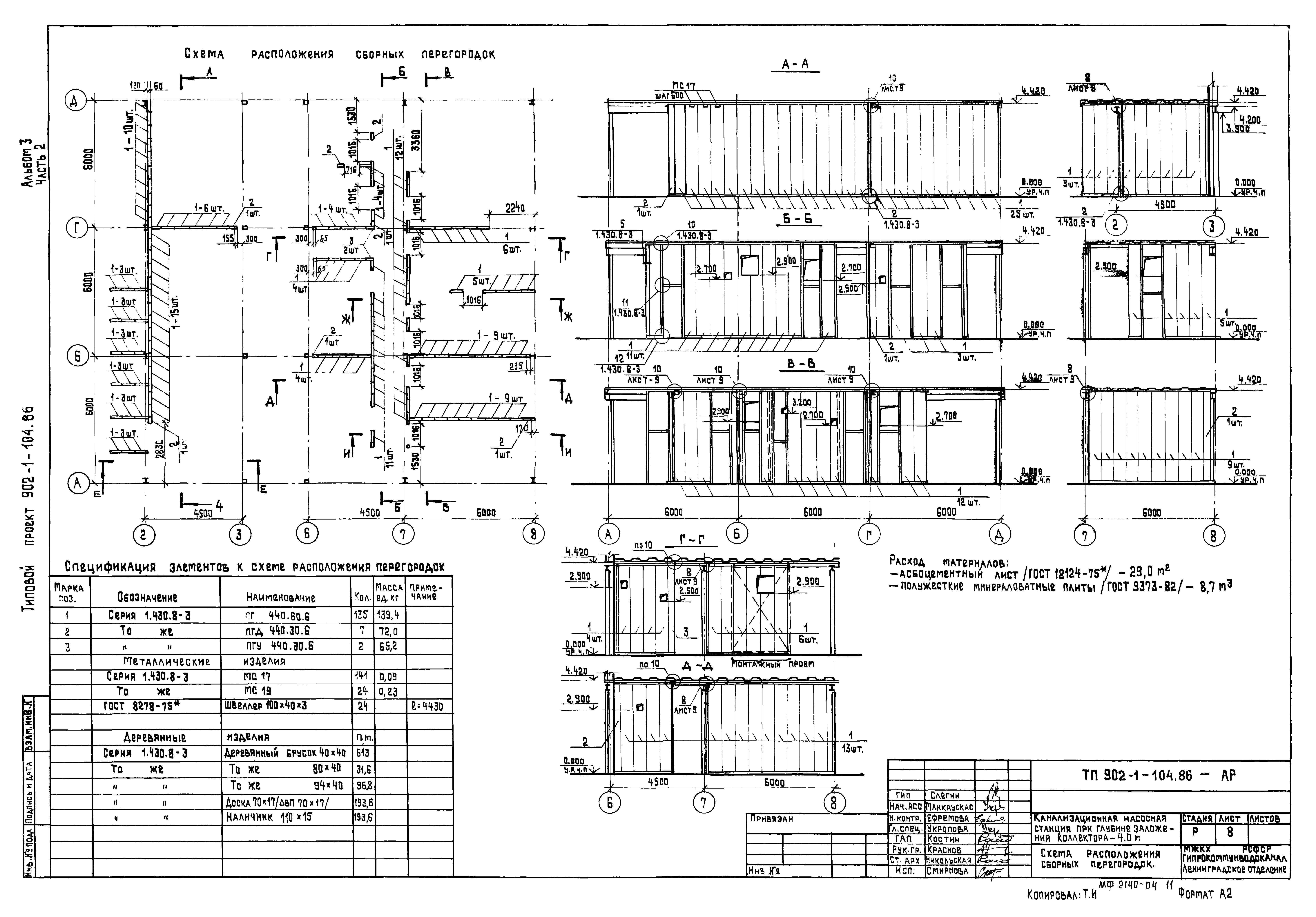
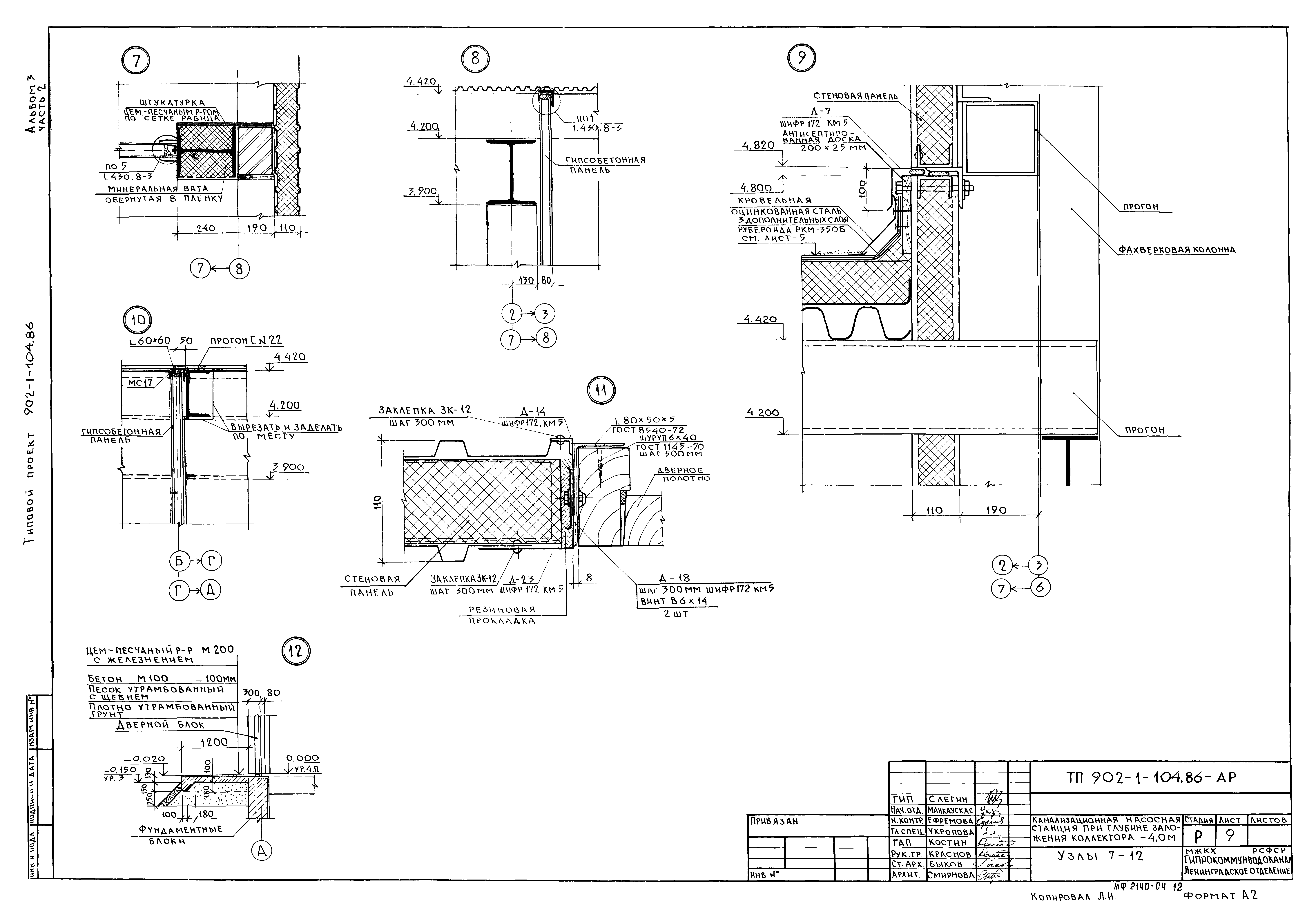
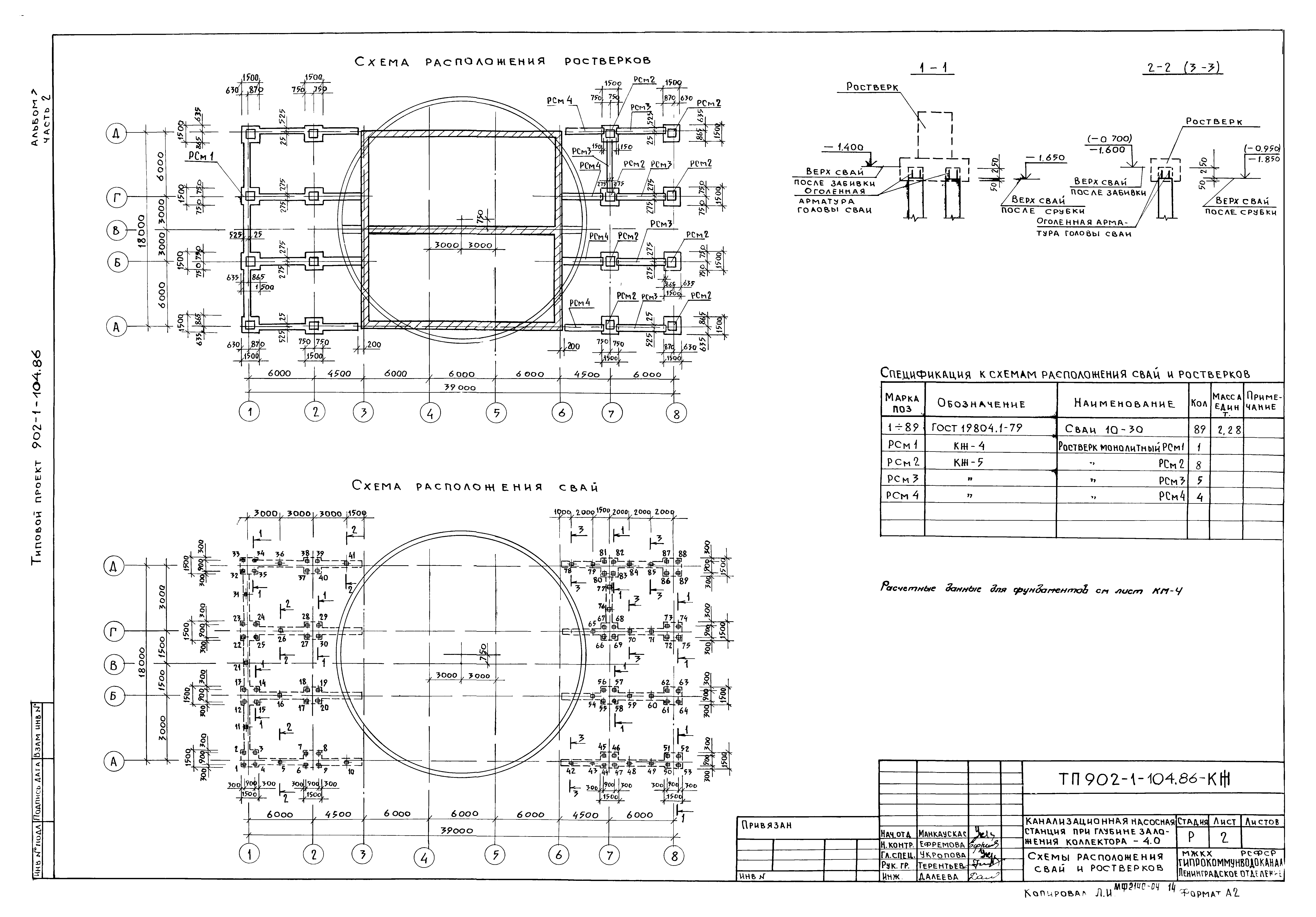
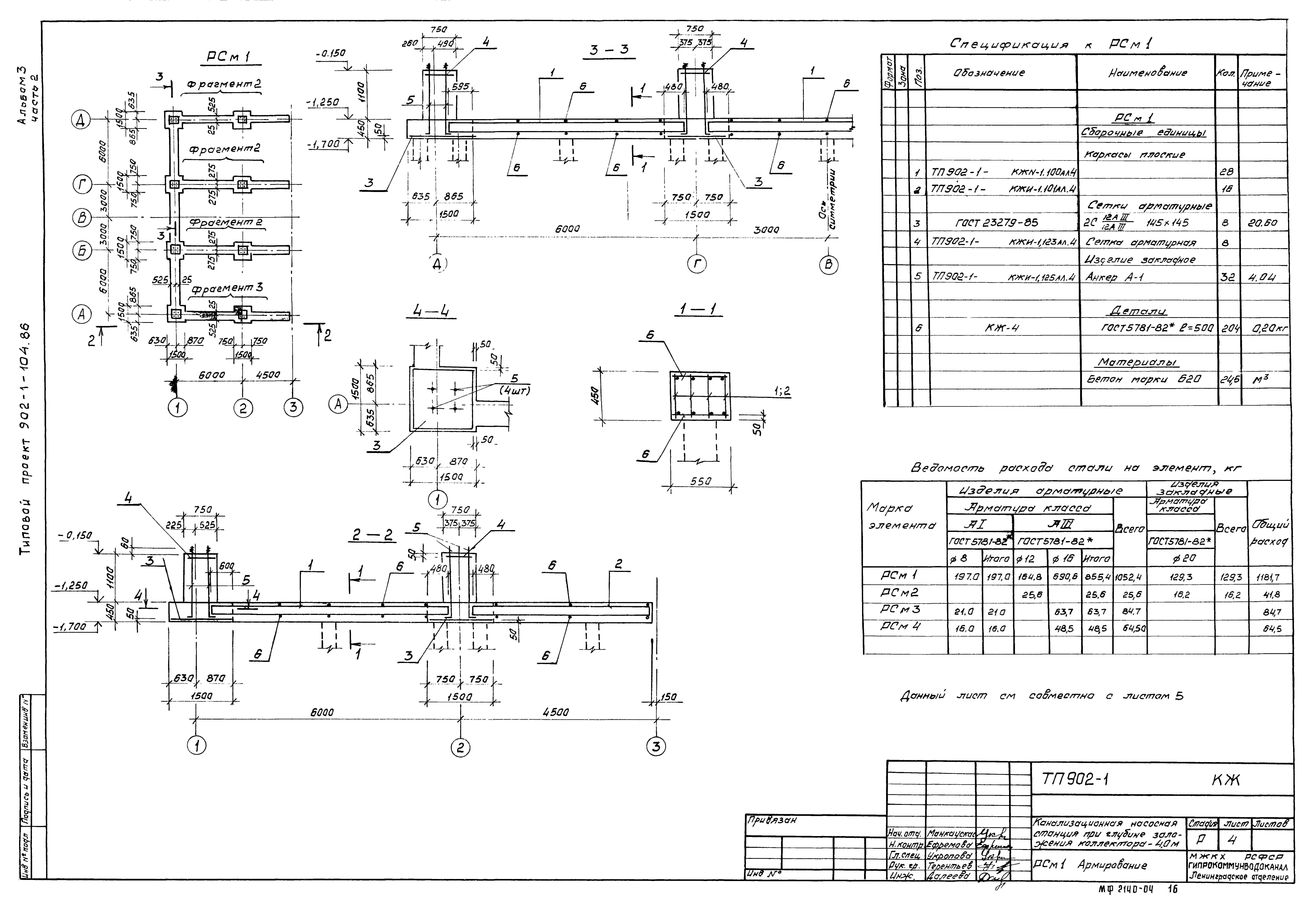
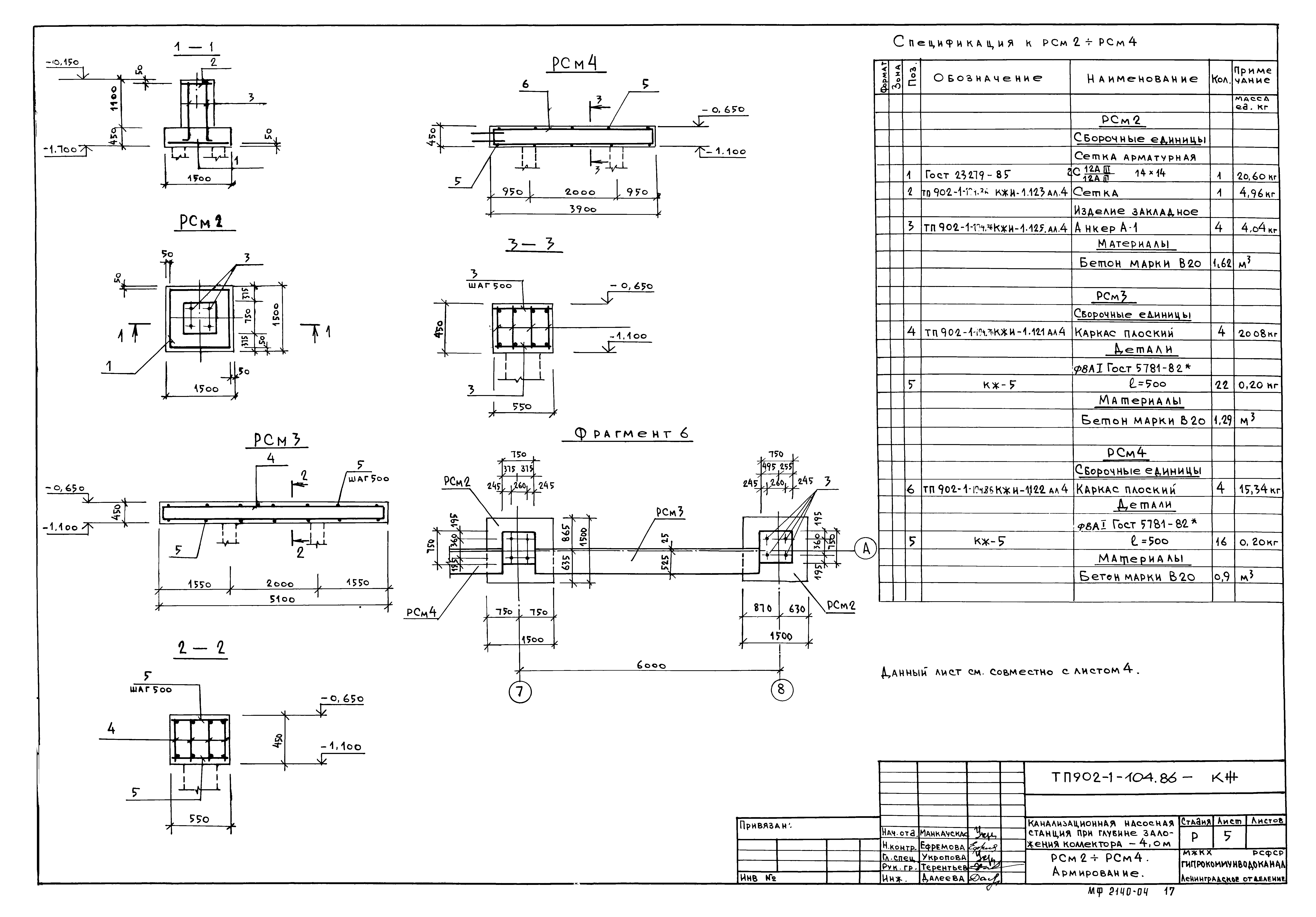
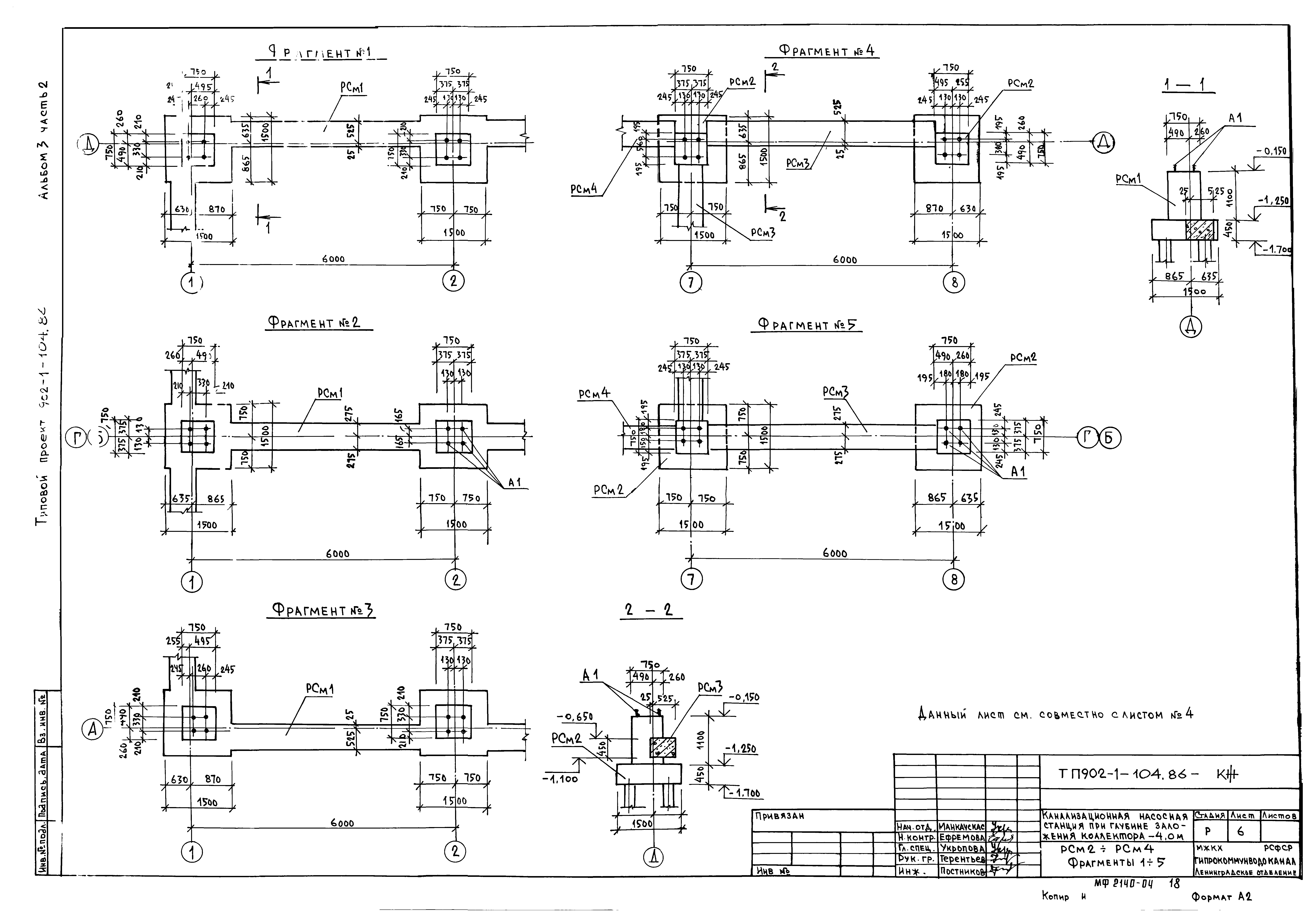
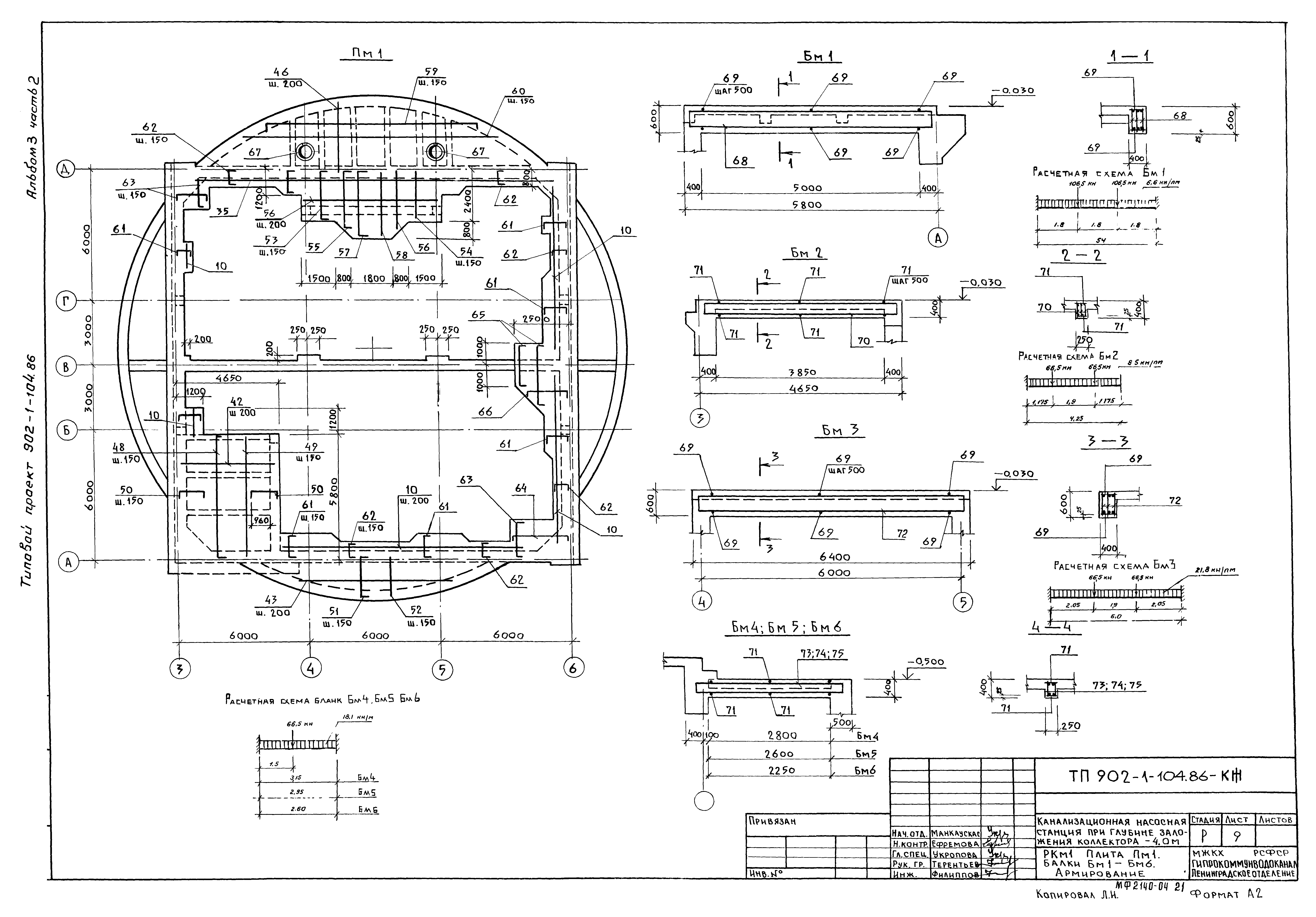
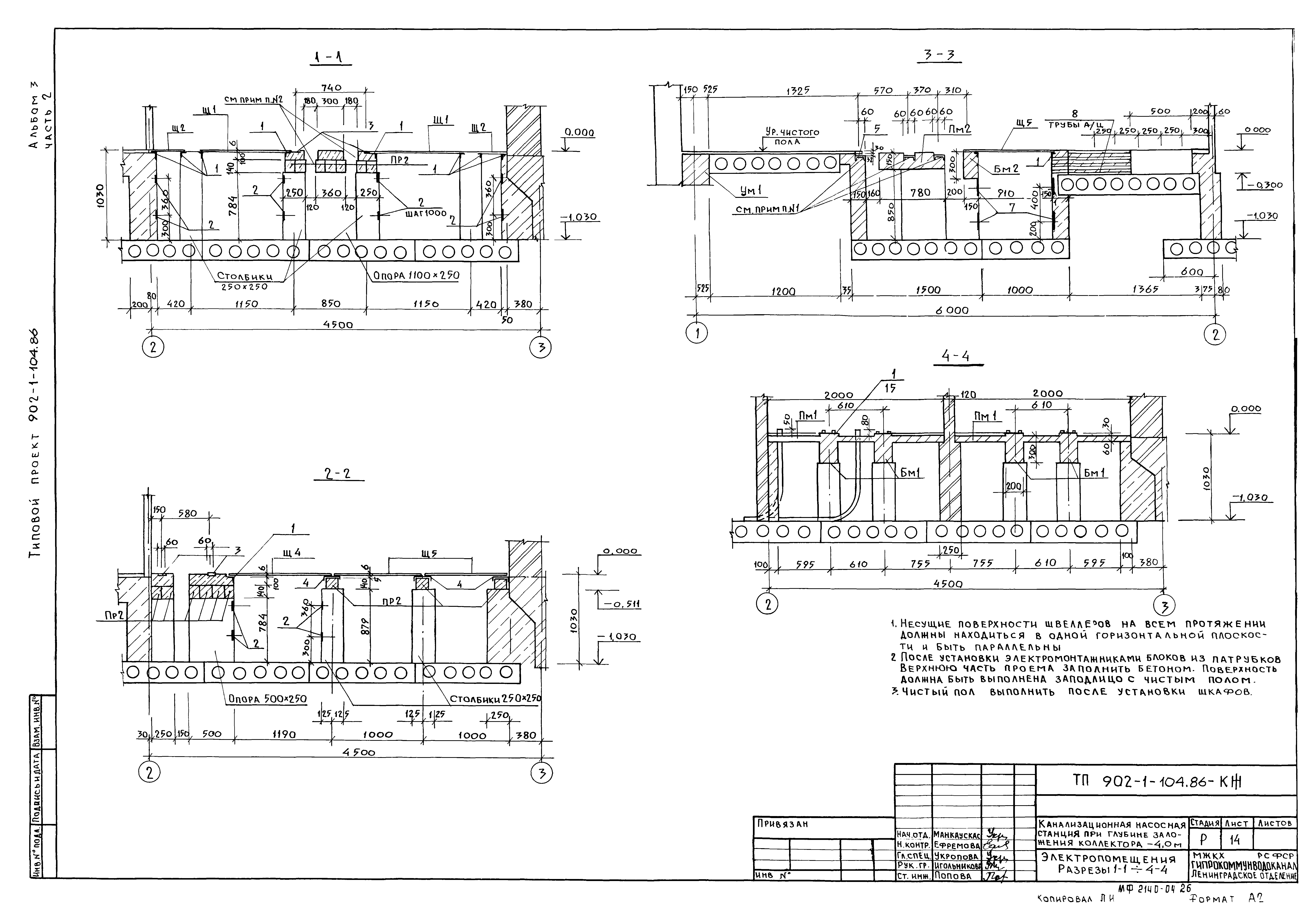
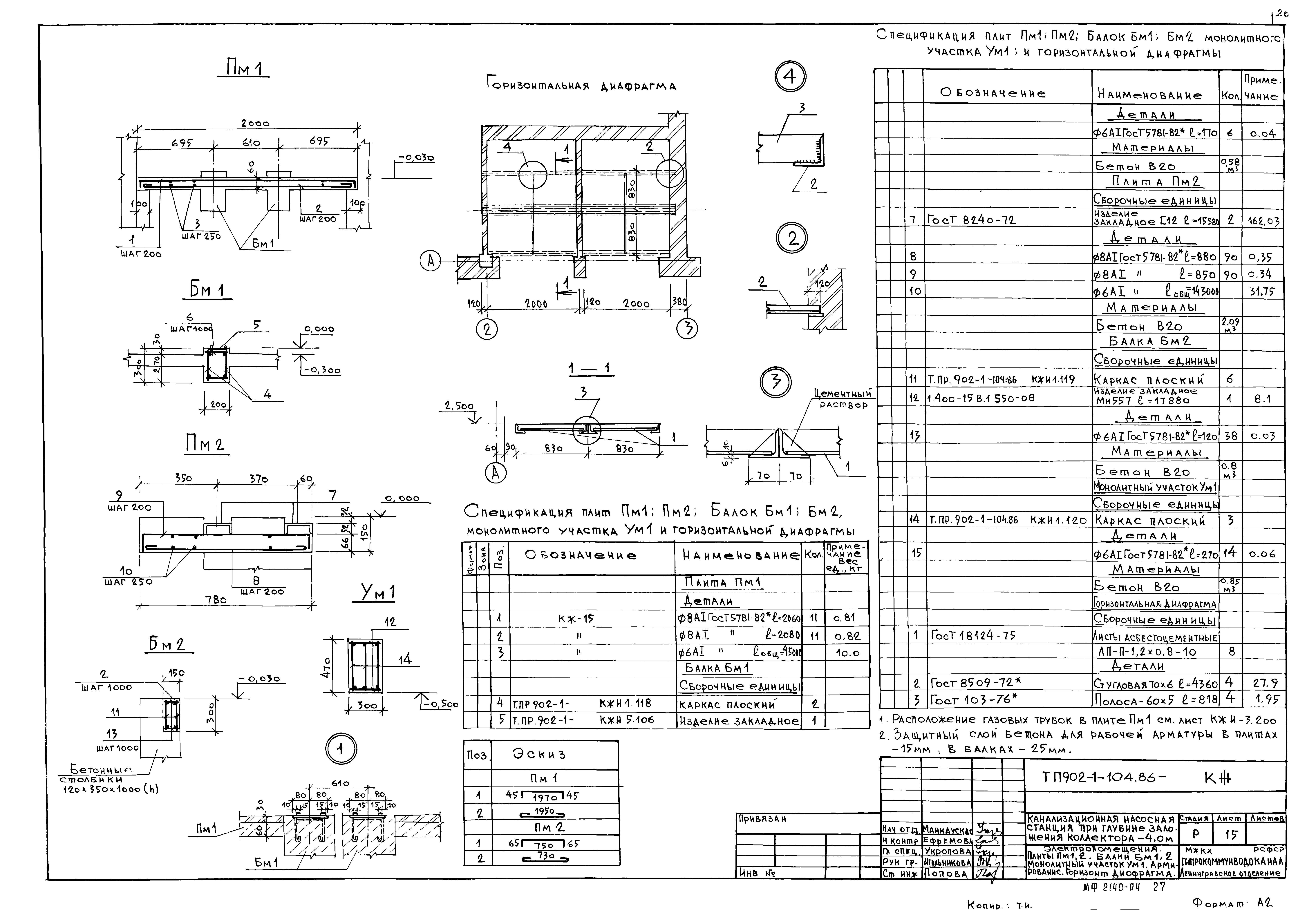
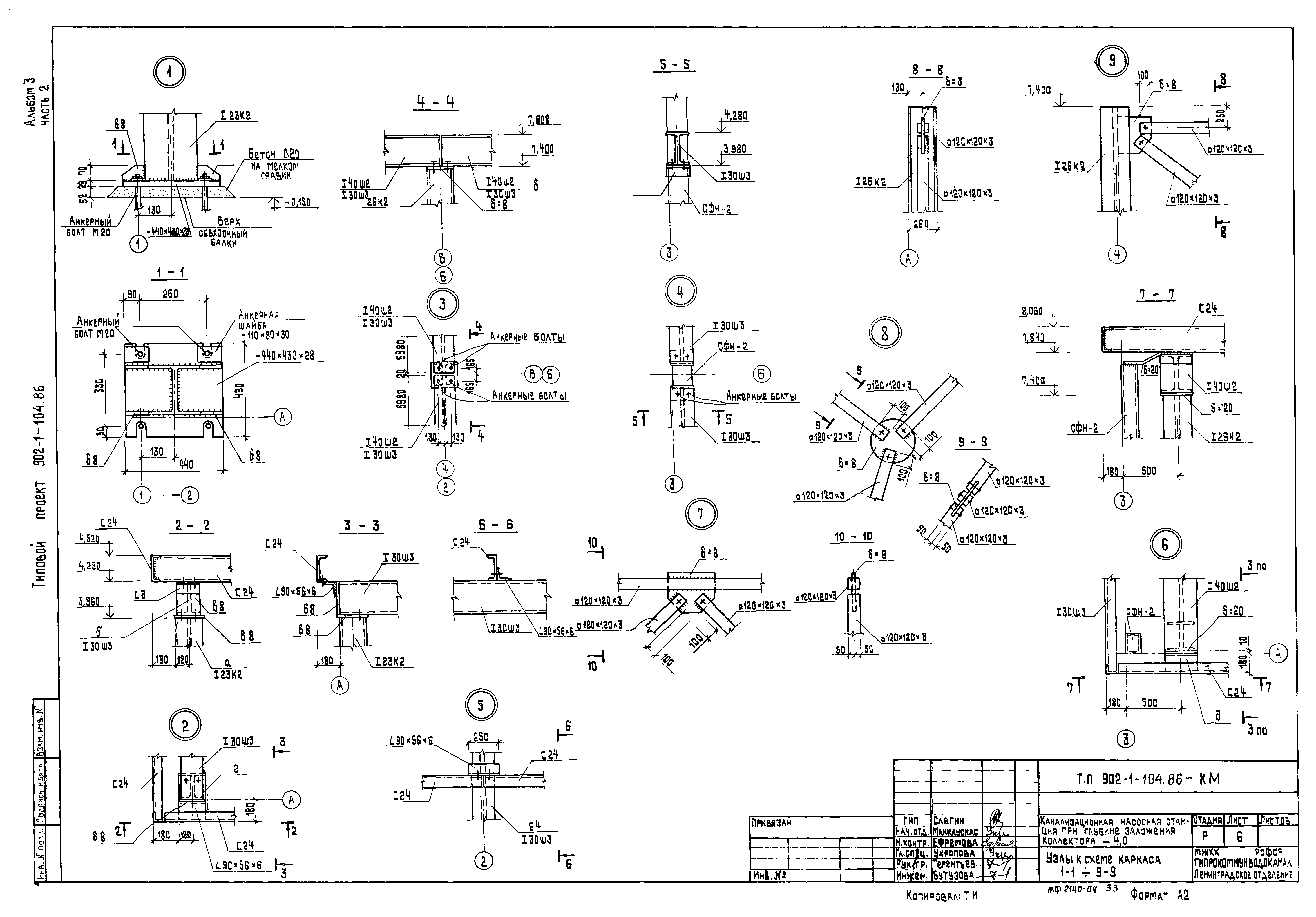
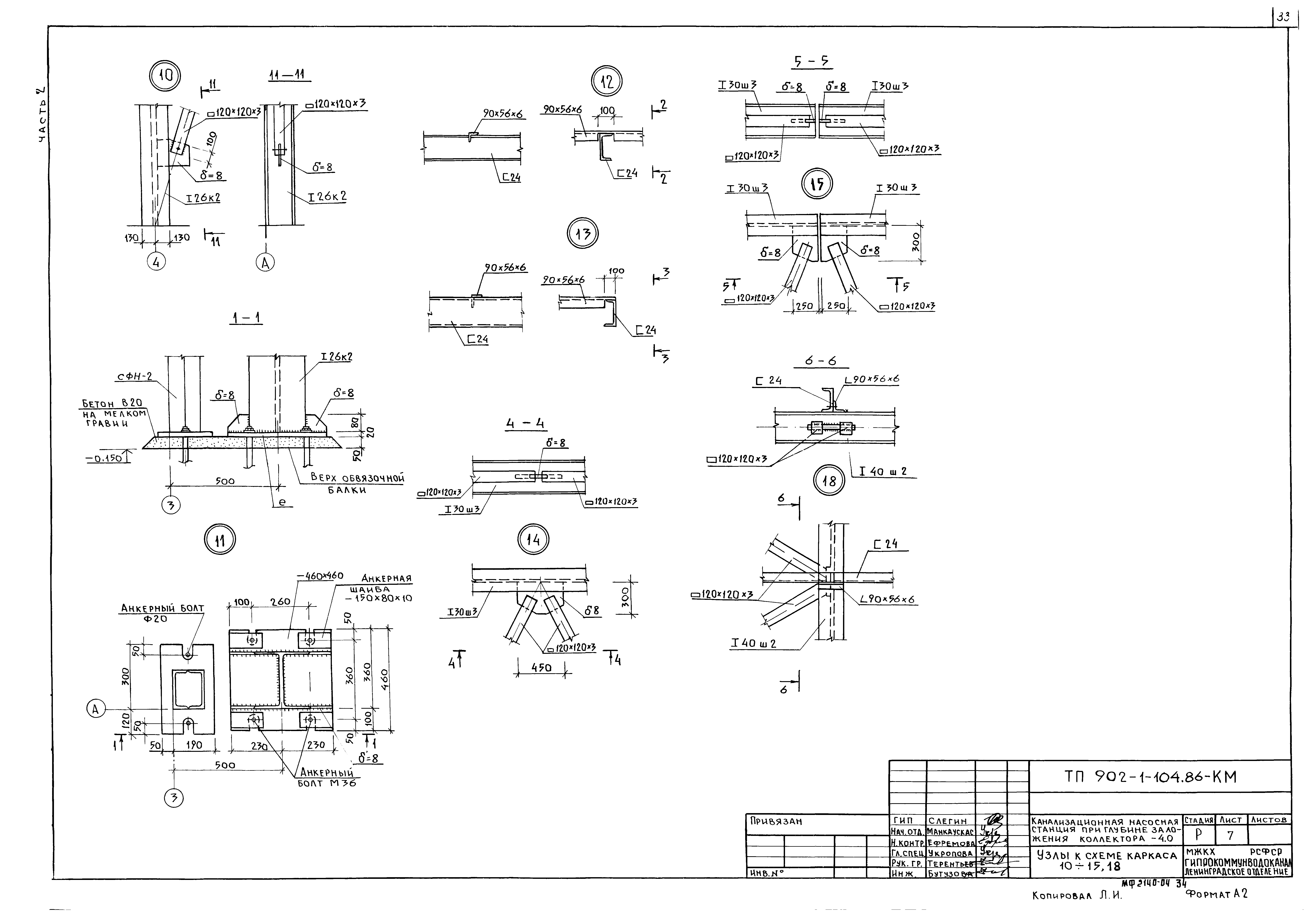
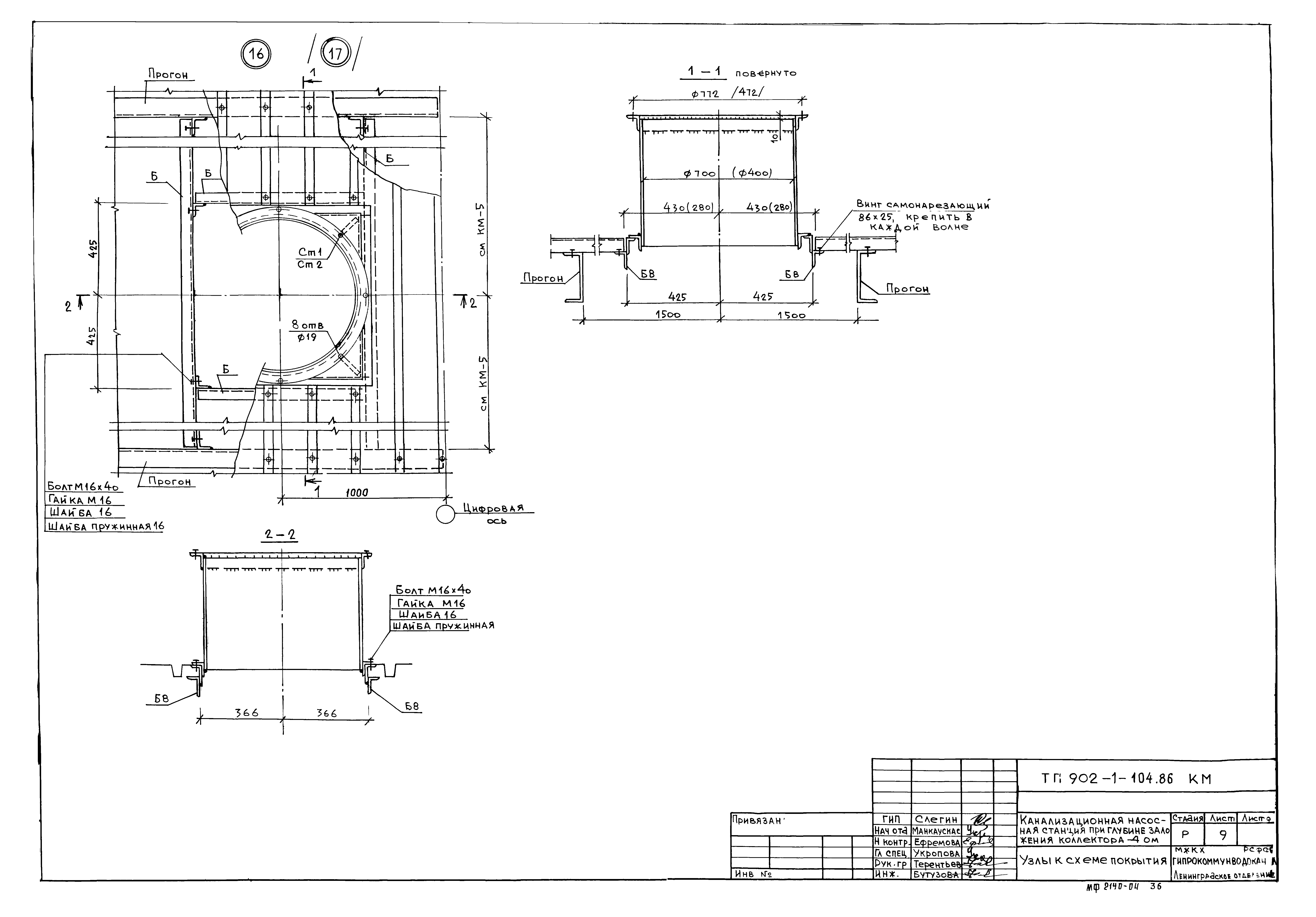
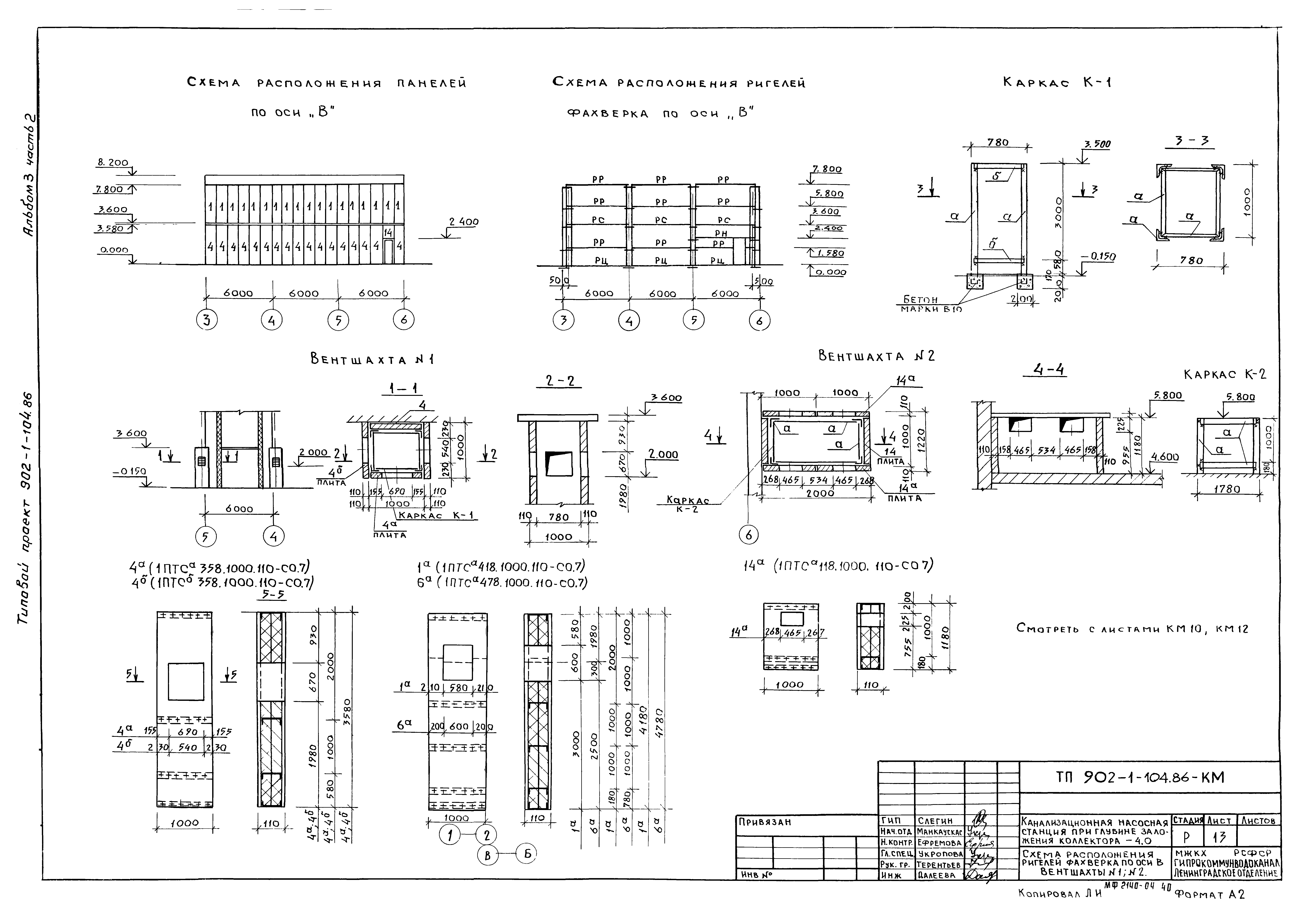
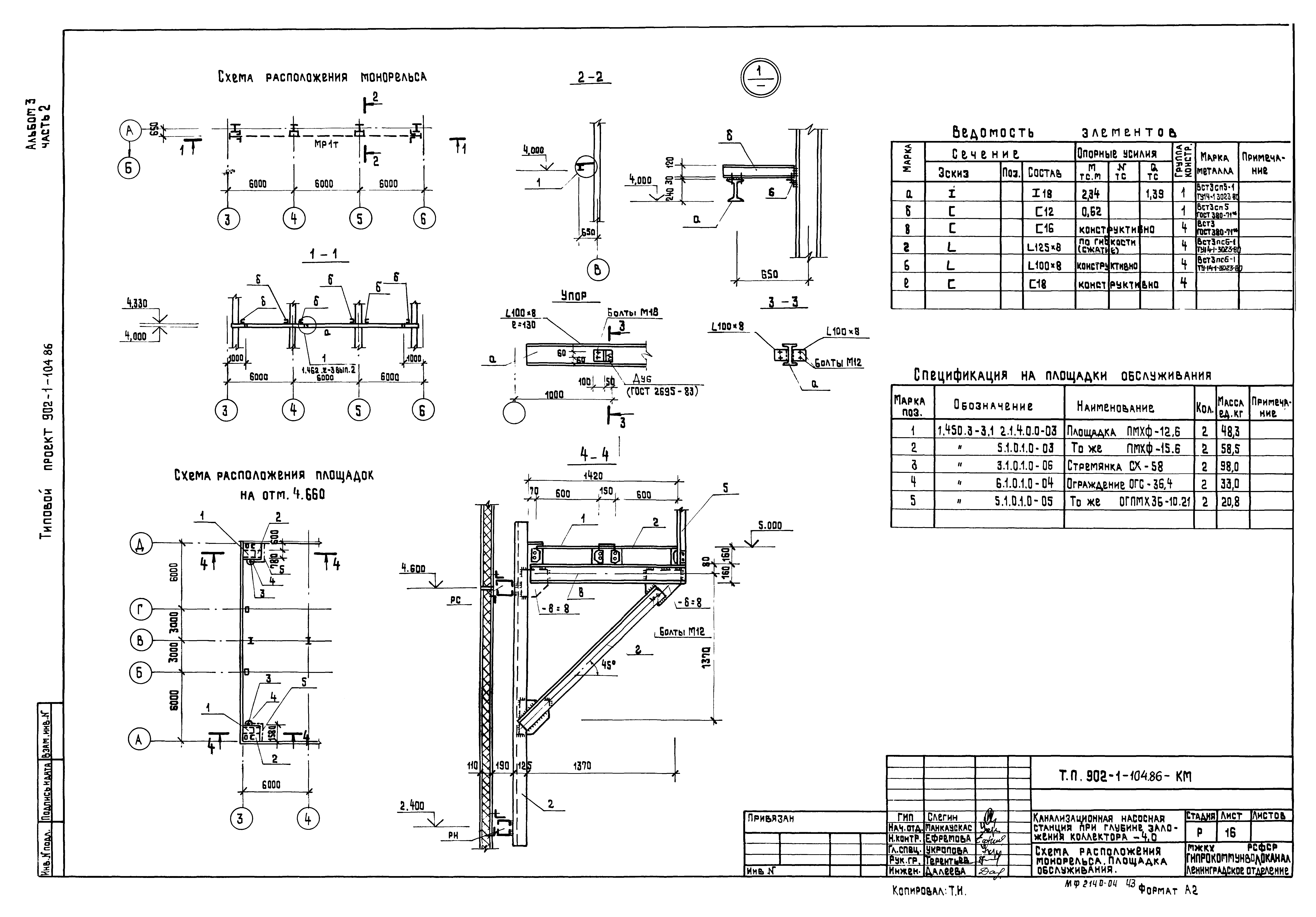
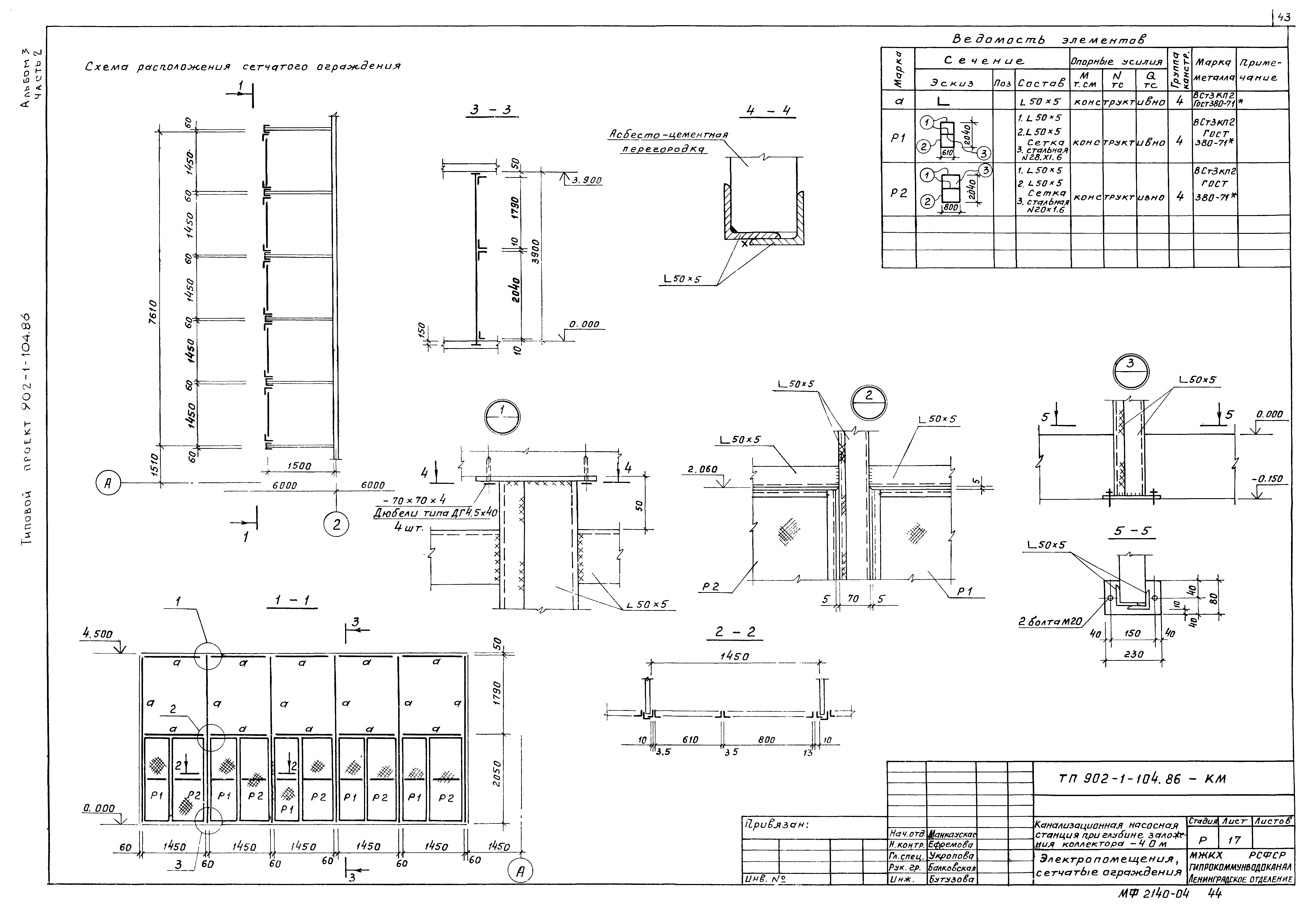
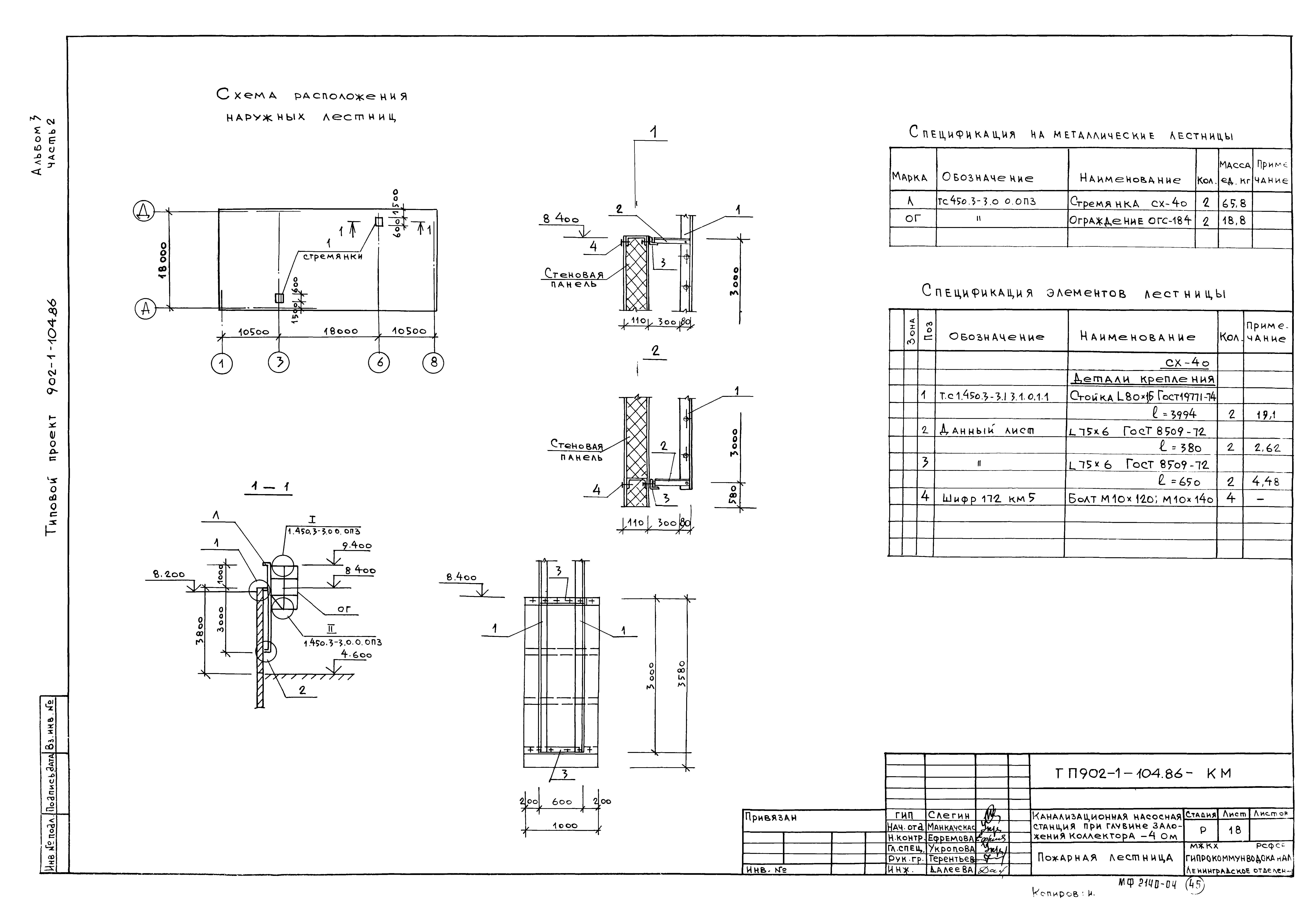
| Оглавление: | ТП 902-1-104.86 Содержание альбома ТП 902-1-104.86-АР Основной комплект марки АР ТП 902-1-104.86-АР Общие данные (начало) ТП 902-1-104.86-АР Общие данные (окончание) ТП 902-1-104.86-АР План на отметке 0.000 ТП 902-1-104.86-АР Фрагмент плана 1-9. Узел 6 ТП 902-1-104.86-АР Разрезы 1-1;2-2. Узлы 1-5 ТП 902-1-104.86-АР Фасады А-Д,Д-А,1-8,8-1 ТП 902-1-104.86-АР Планы полов. План отверстий на отм. 0.000 ТП 902-1-104.86-АР Схема расположения сборных перегородок ТП 902-1-104.86-АР Узлы 7-12 ТП 902-1-104.86-КЖ Основной комплект марки КЖ ТП 902-1-104.86-КЖ Общие данные ТП 902-1-104.86-КЖ Схема расположения свай и ростверков ТП 902-1-104.86-КЖ Схема расположения фундаментов и фундаментных балок ТП 902-1-104.86-КЖ РСм1. Армирование ТП 902-1-104.86-КЖ РСм2-РСм4. Армирование ТП 902-1-104.86-КЖ РСм2-РСм4. Фрагменты 1-5 ТП 902-1-104.86-КЖ РКм1. Общий вид. Разрезы 1-1÷8-8 ТП 902-1-104.86-КЖ РКм1. ОБм1-ОБм5. Армирование ТП 902-1-104.86-КЖ РКм1. Плита Пм1. Балки Бм1-Бм6. Армирование ТП 902-1-104.86-КЖ РКм1. Спецификация (начало) ТП 902-1-104.86-КЖ РКм1. Спецификация (окончание) ТП 902-1-104.86-КЖ Схемы расположения плит перекрытия на отм. -1.030; -0.300; -0.030; -0.430 ТП 902-1-104.86-КЖ Электропомещения. Схемы расположения элементов на отметке 0.000 и каналов ТП 902-1-104.86-КЖ Электропомещения. Разрезы 1-1÷4-4 ТП 902-1-104.86-КЖ Электропомещения. Плиты Пм 1,2. Балки Бм 1,2. Монолитный участок Ум1. Армирование. Горизонтальная диафрагма ТП 902-1-104.86-КМ Основной комплект марки КМ ТП 902-1-104.86-КМ Общие данные. Ведомость металлоконструкций по видам профилей ТП 902-1-104.86-КМ Техническая спецификация металла (начало) ТП 902-1-104.86-КМ Техническая спецификация металла (окончание) ТП 902-1-104.86-КМ Расчетные данные ТП 902-1-104.86-КМ Схемы каркаса ТП 902-1-104.86-КМ Узлы к схеме каркаса 1-1÷9-9 ТП 902-1-104.86-КМ Узлы к схеме каркаса 10-15,18 ТП 902-1-104.86-КМ Схема покрытия ТП 902-1-104.86-КМ Узлы к схеме покрытия ТП 902-1-104.86-КМ Схемы расположения панелей ТП 902-1-104.86-КМ Стеновые панели ТП 902-1-104.86-КМ Схемы расположения ригелей фахверка ТП 902-1-104.86-КМ Схема расположения ригелей фахверка по оси "В". Вентшахты №1,№2 ТП 902-1-104.86-КМ Схема расположения подкрановых путей ТП 902-1-104.86-КМ Подкрановые пути, узлы, детали ТП 902-1-104.86-КМ Схема расположения монорельса. Площадка обслуживания ТП 902-1-104.86-КМ Электропомещения. Сетчатые ограждения ТП 902-1-104.86-КМ Пожарная лестница |
| Разработан: | Ленинградское отделение Гипрокоммунводоканала |
| Утверждён: | 27.10.1986 МЖКХ РСФСР (462) |













































