Скачать Типовой проект 902-1-104.86 Альбом 6. Строительные решения. Подземная часть. ИзделияДата актуализации: 01.01.2021
|
| Обозначение: | Типовой проект 902-1-104.86 |
| Обозначение англ: | 902-1-104.86 |
| Статус: | не определен законодательством |
| Название рус.: | Альбом 6. Строительные решения. Подземная часть. Изделия |
| Дата добавления в базу: | 01.09.2013 |
| Дата актуализации: | 01.01.2021 |
| Дата введения: | 27.10.1986 |
| Дата окончания срока действия: | 30.06.2003 |
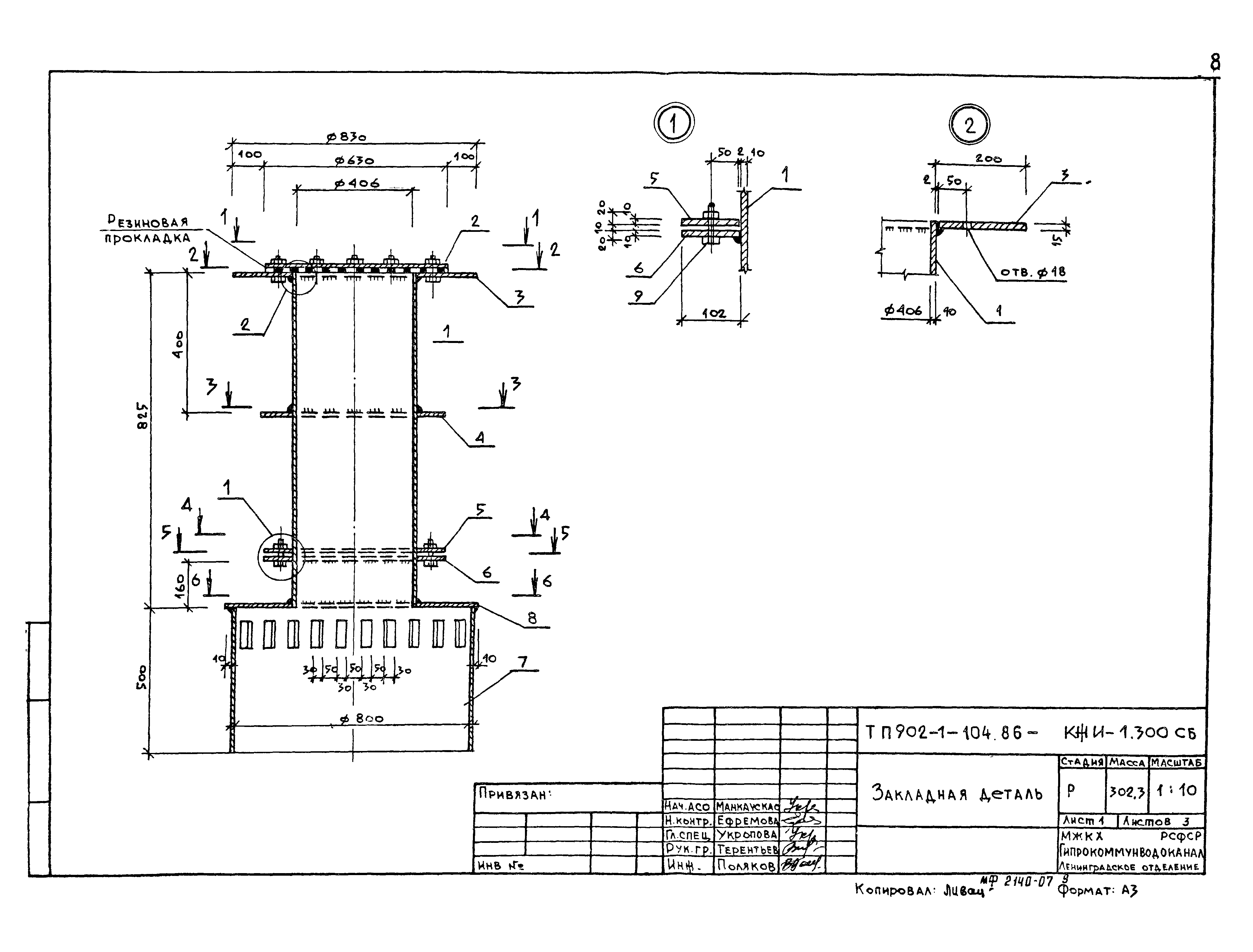
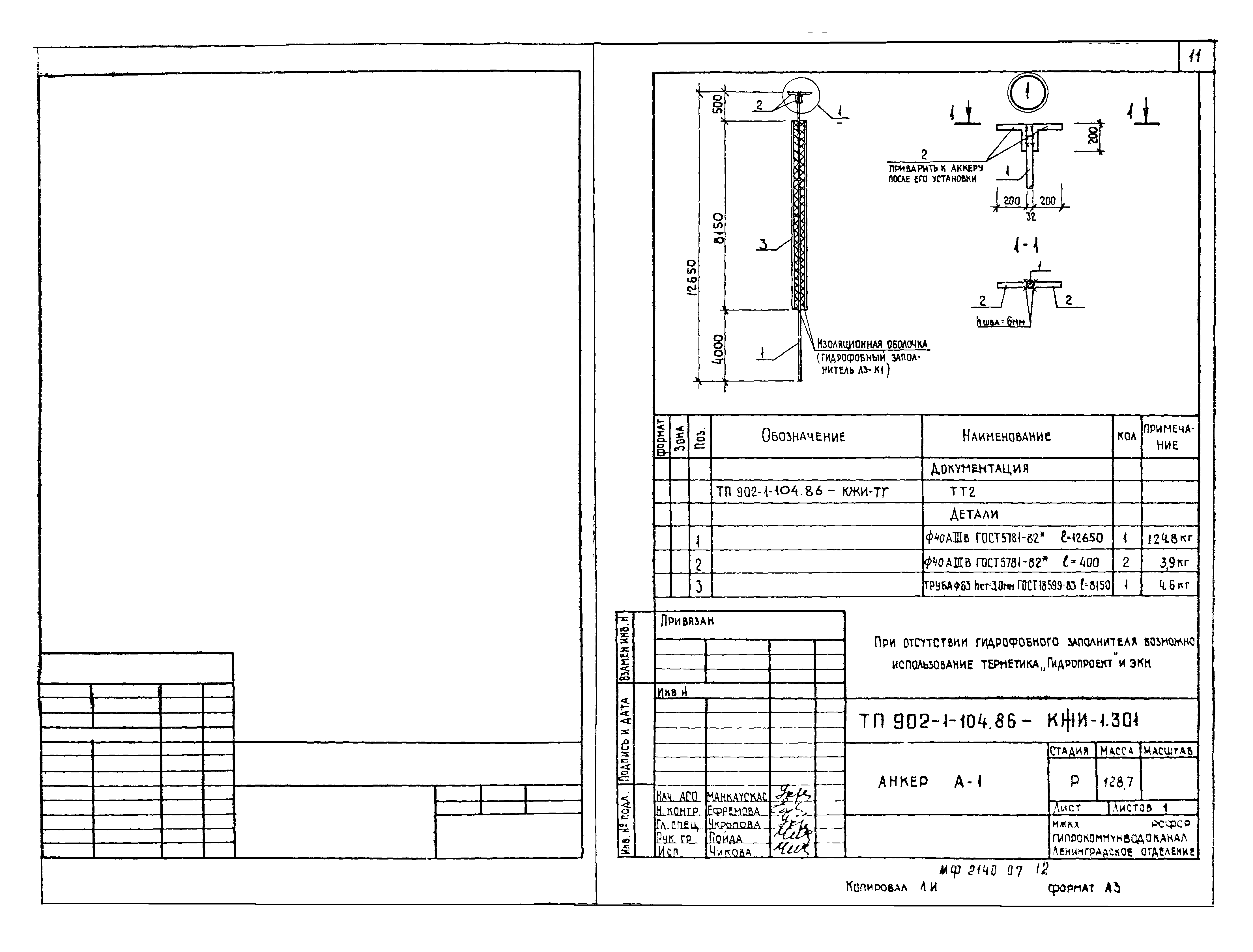
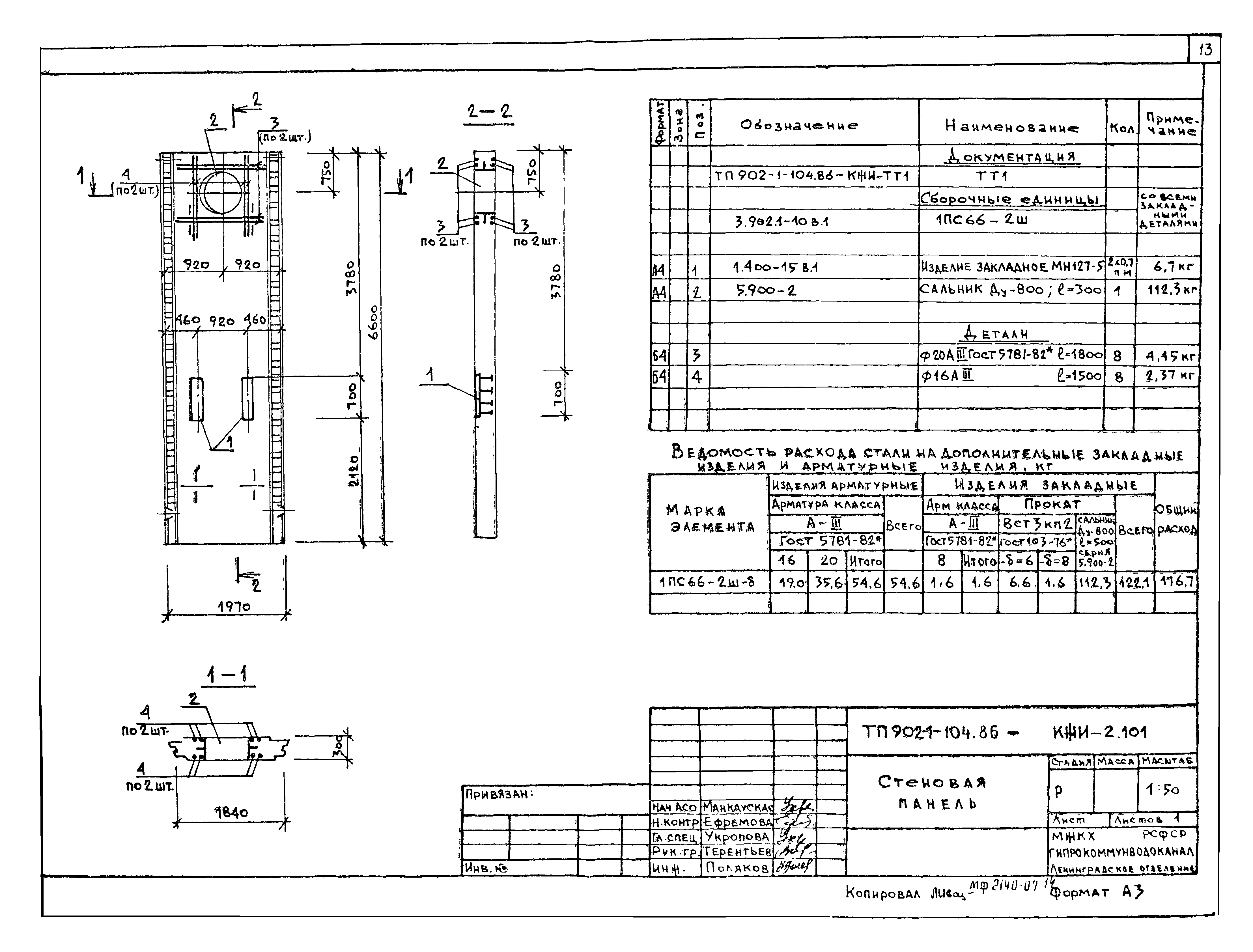
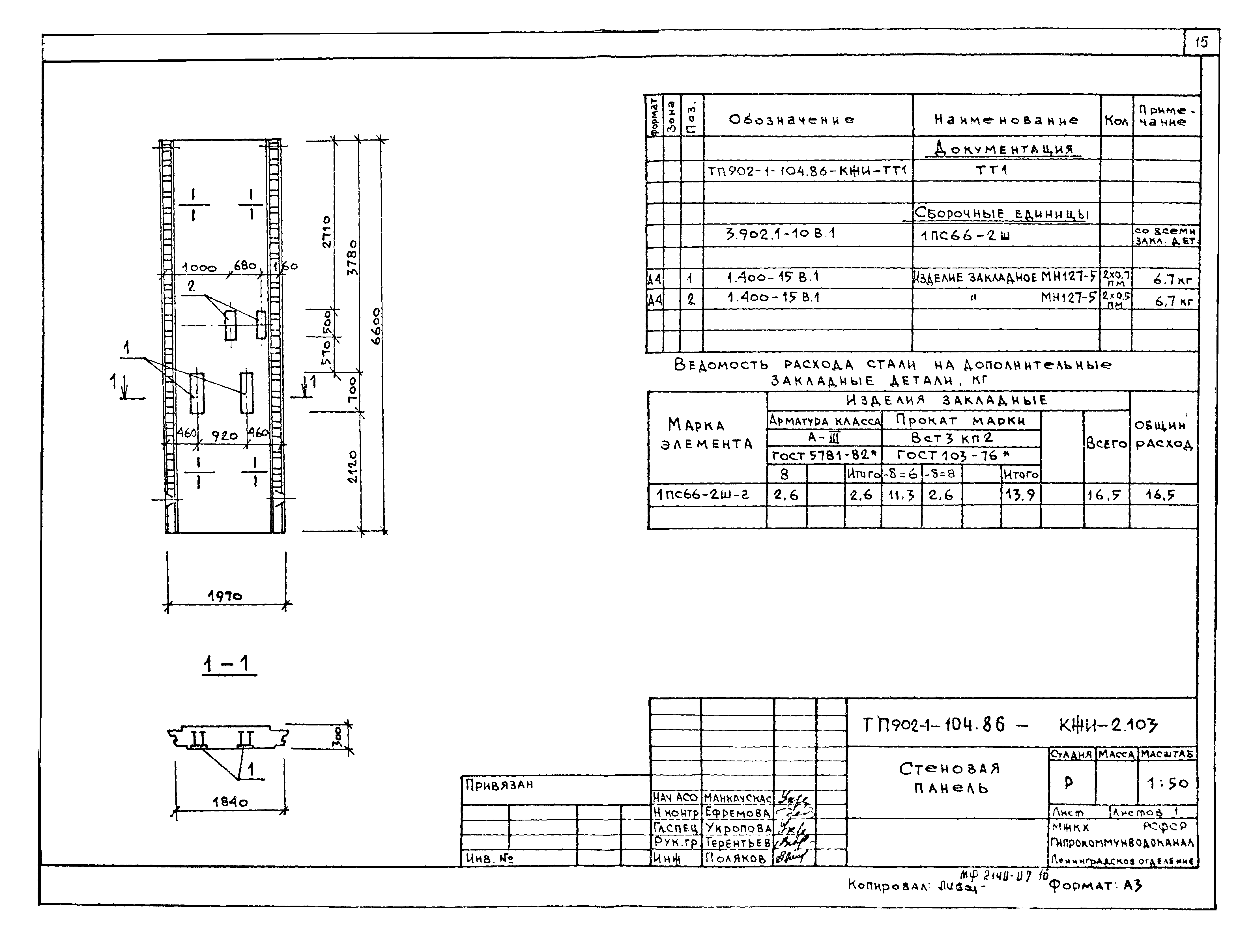
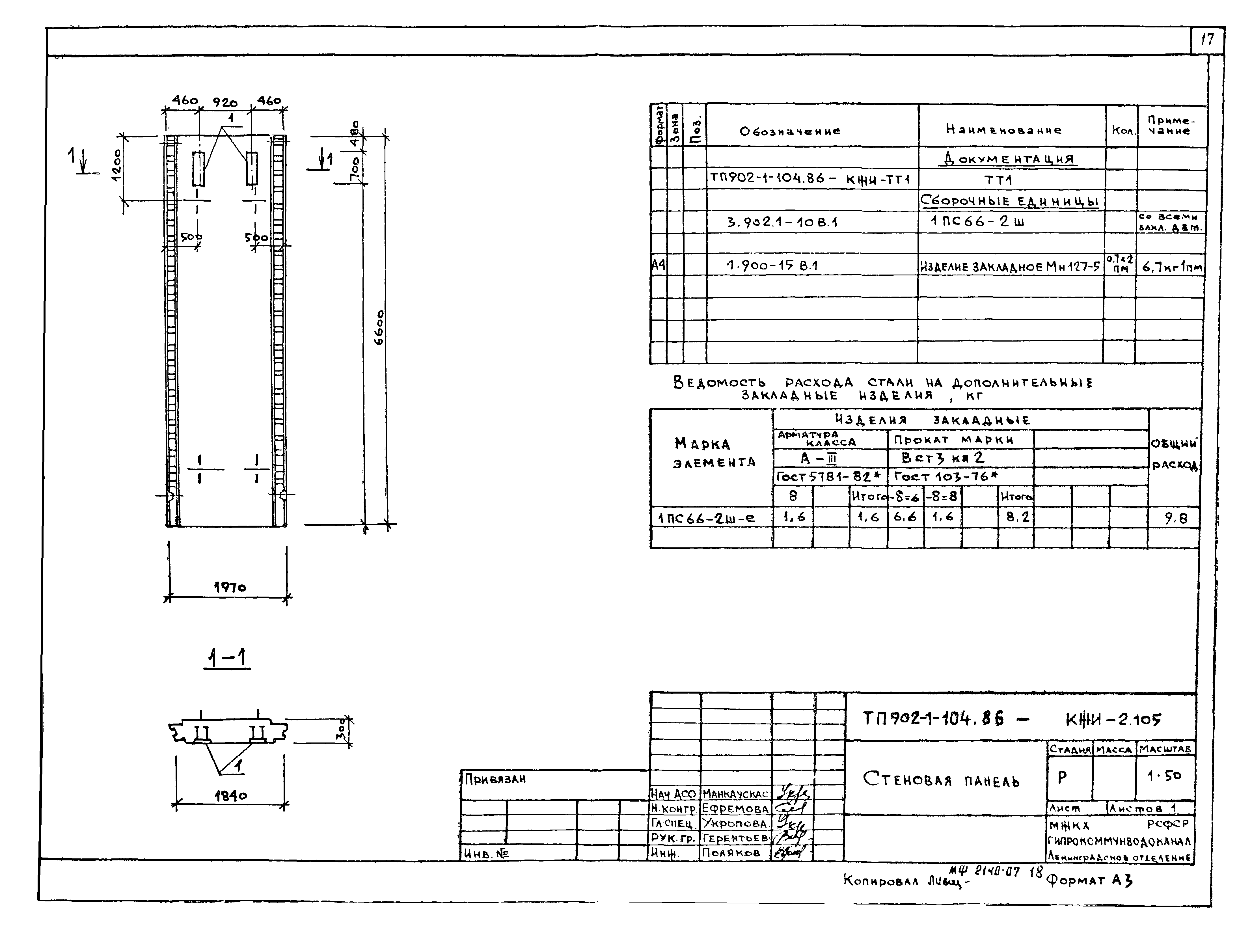
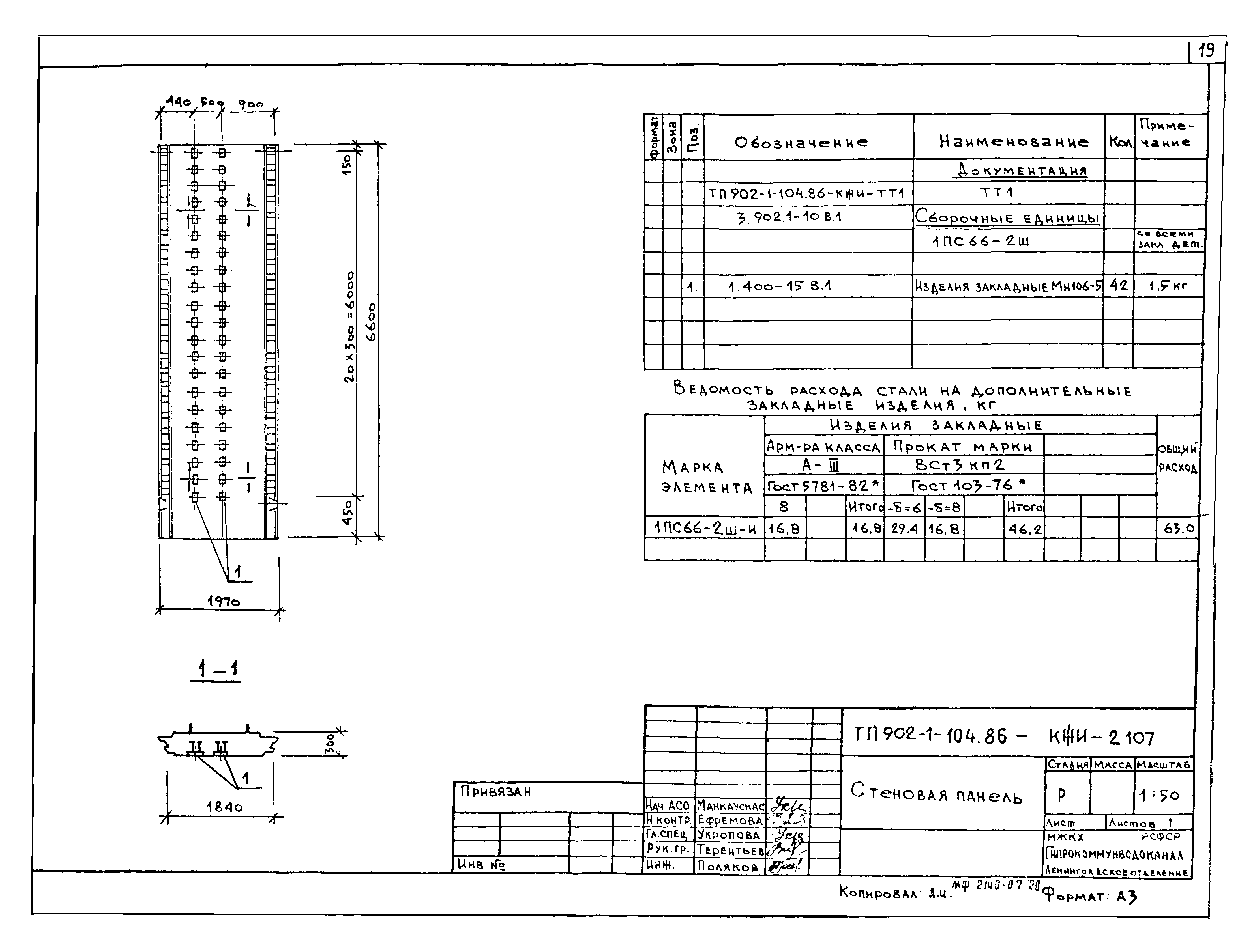
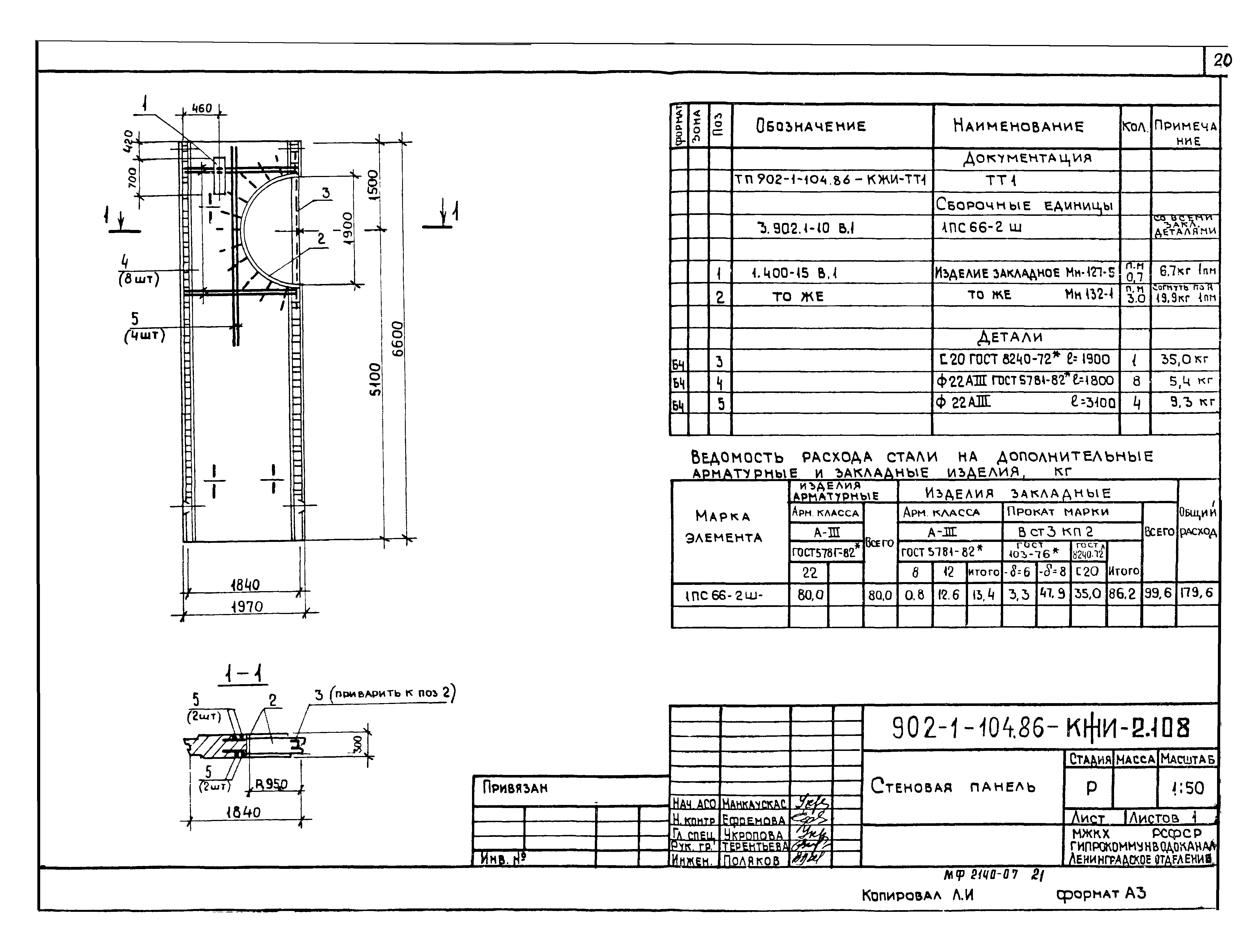
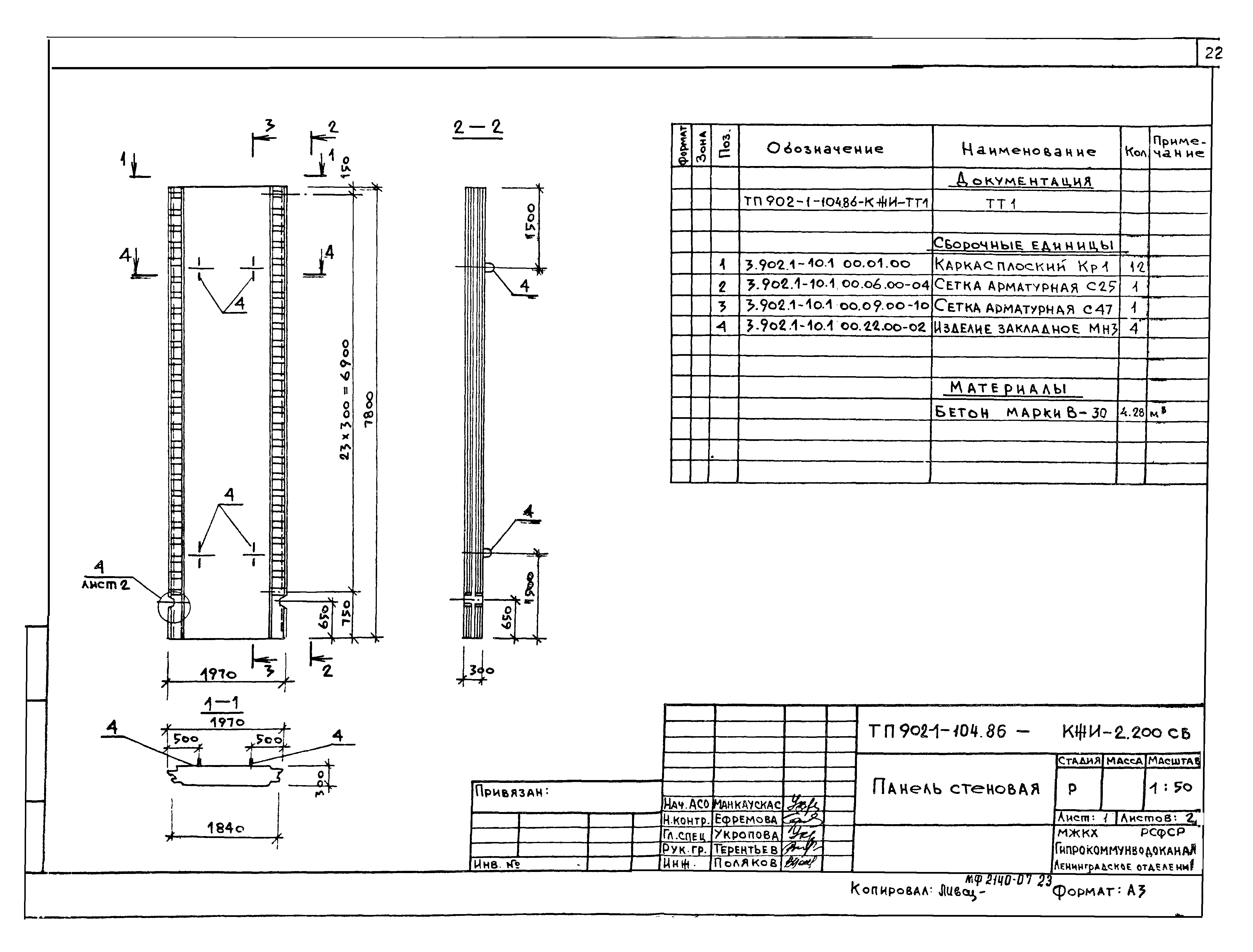
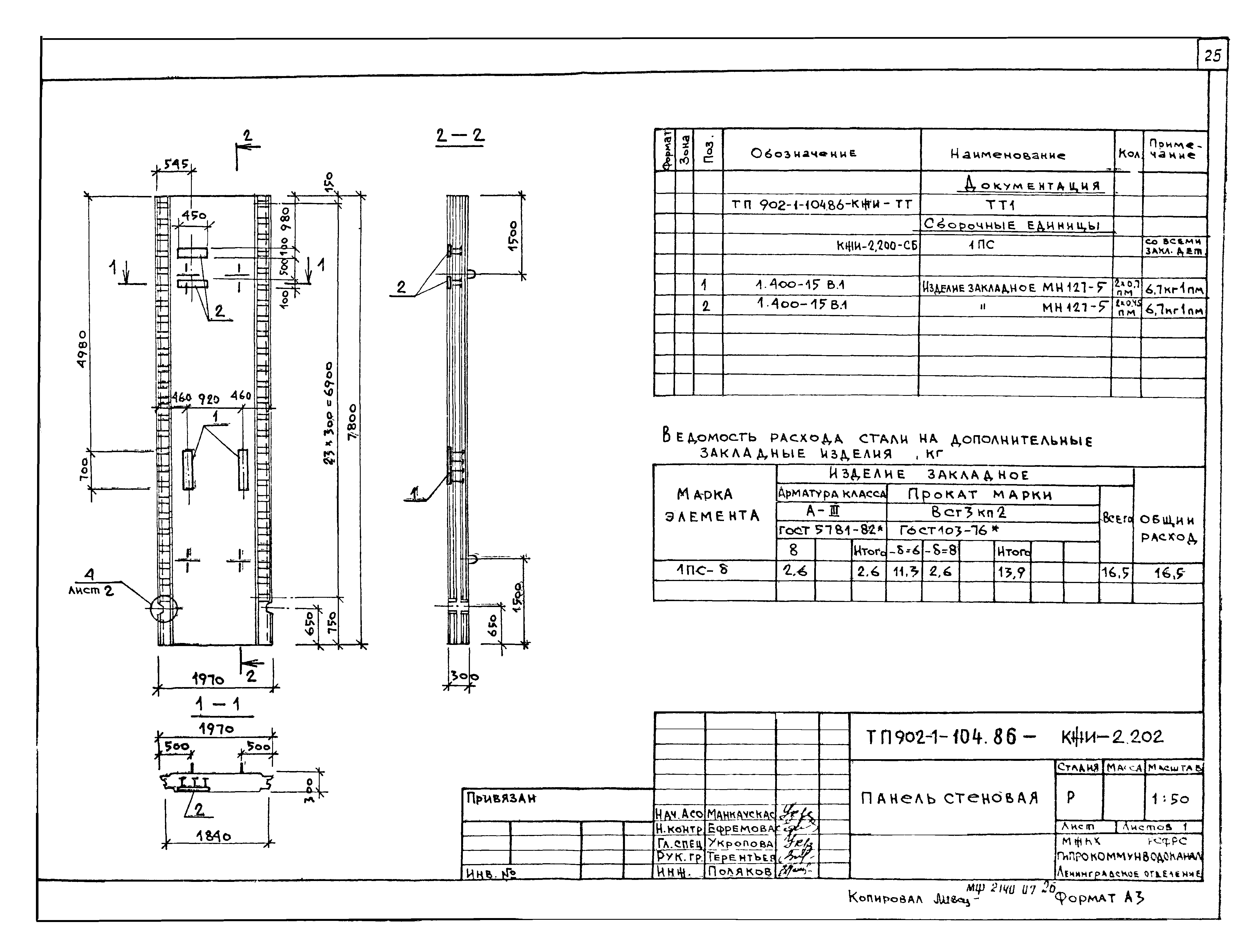
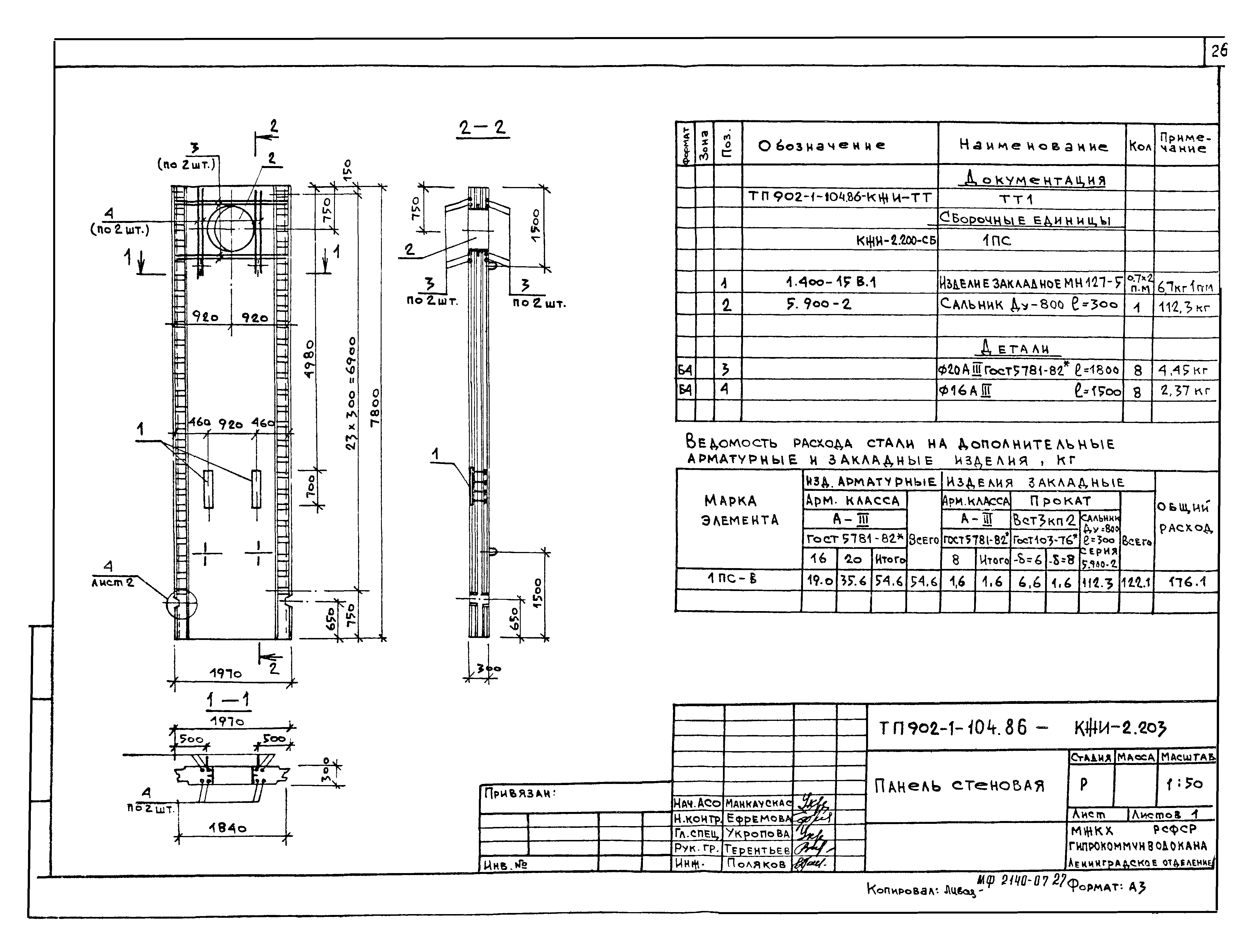
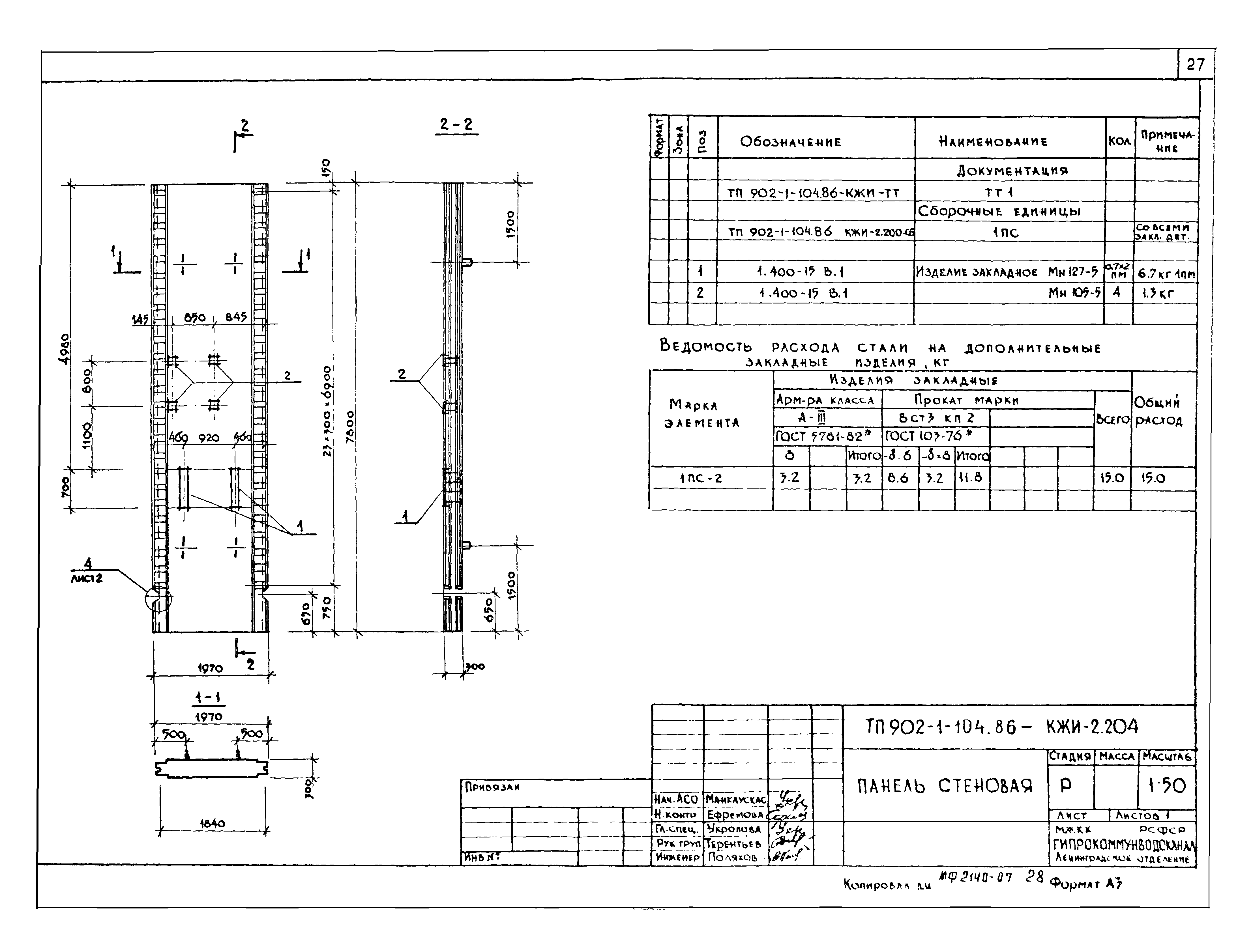
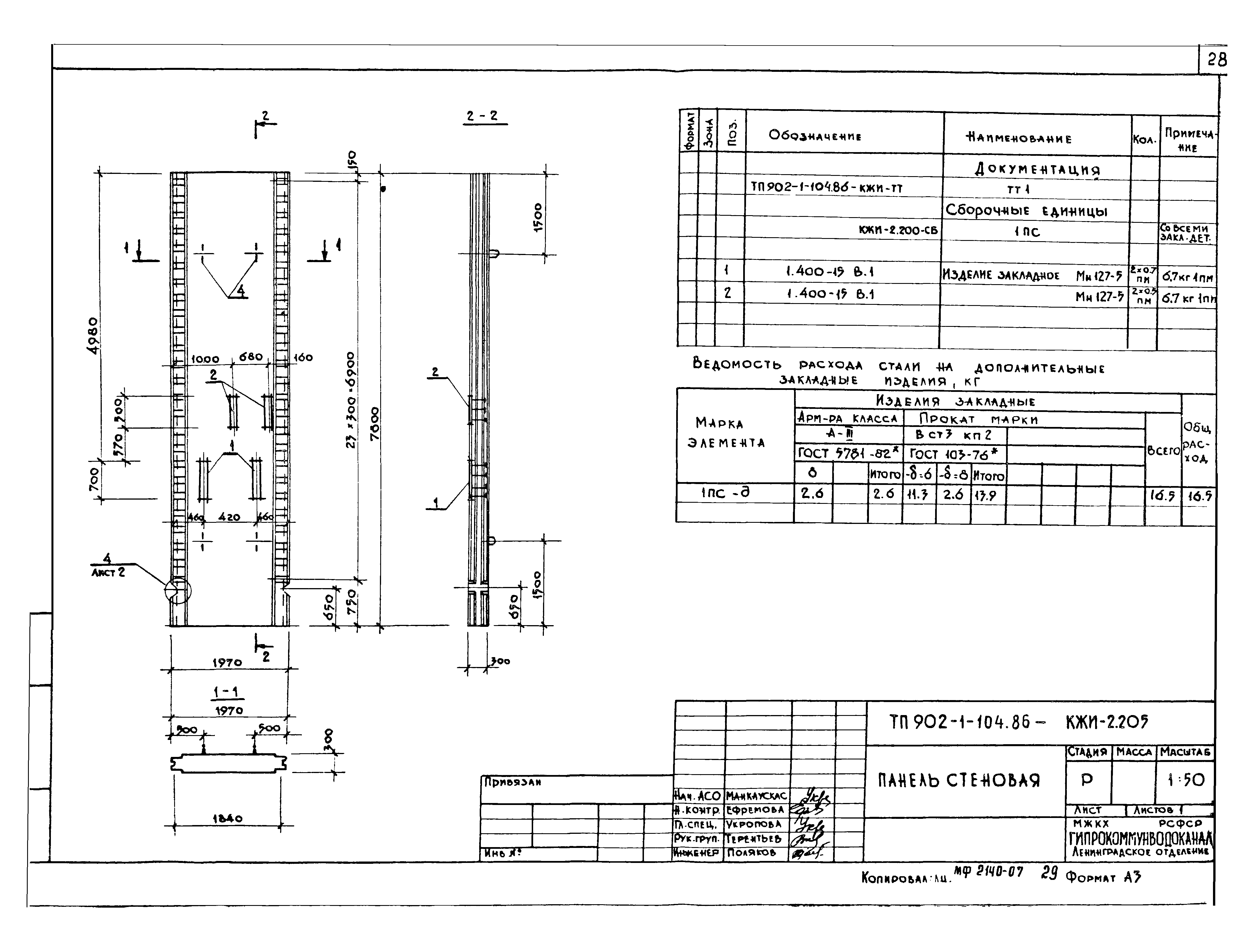
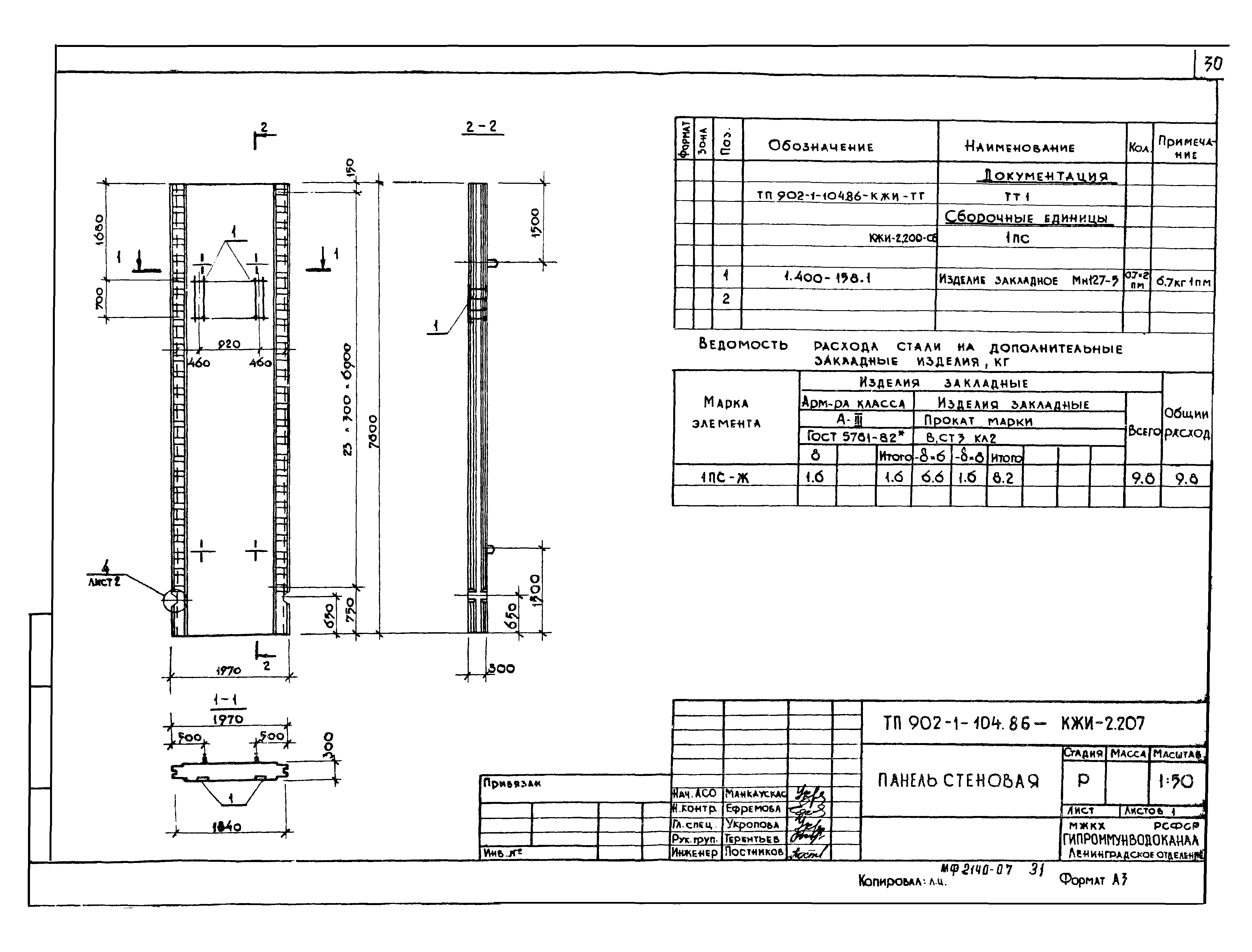
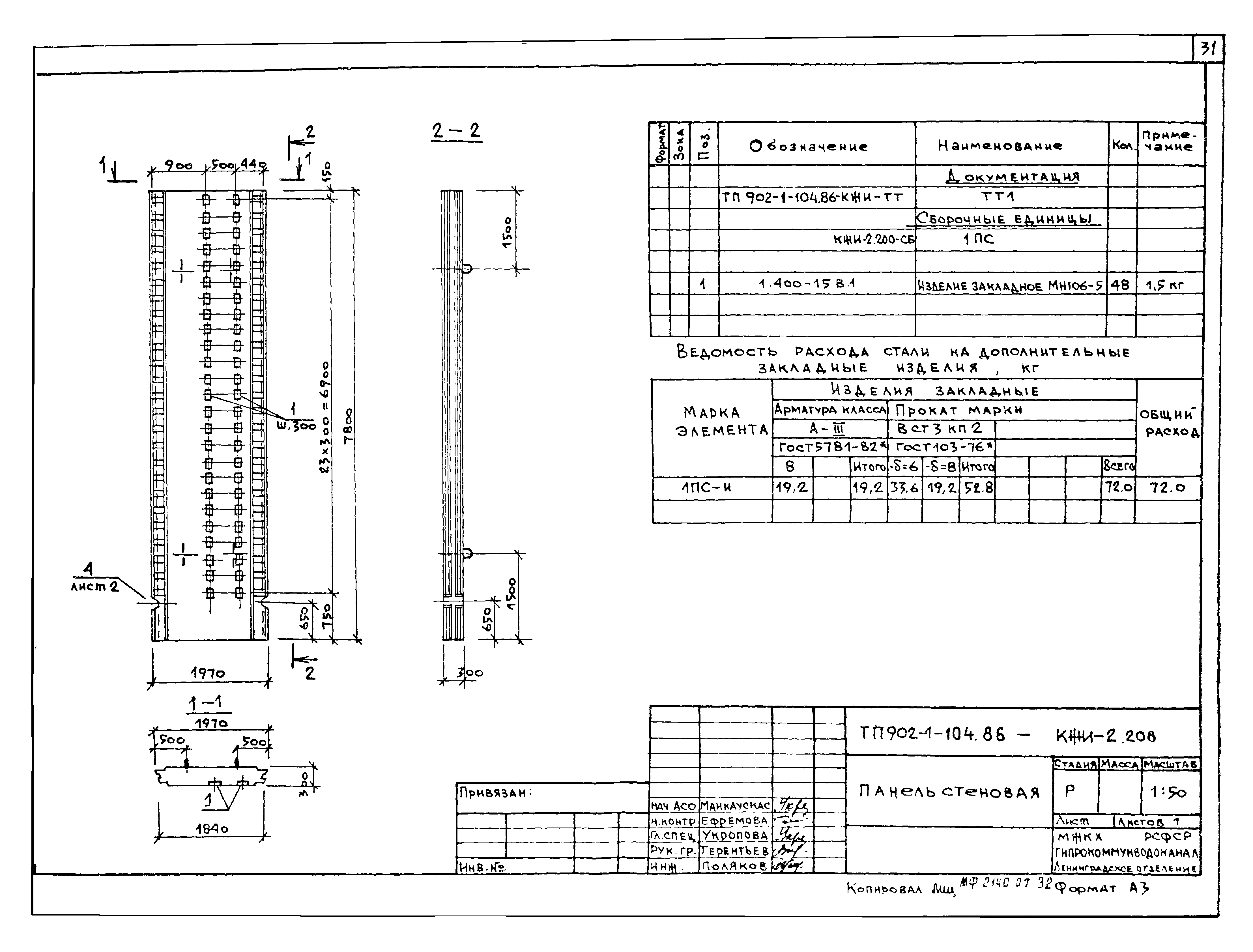
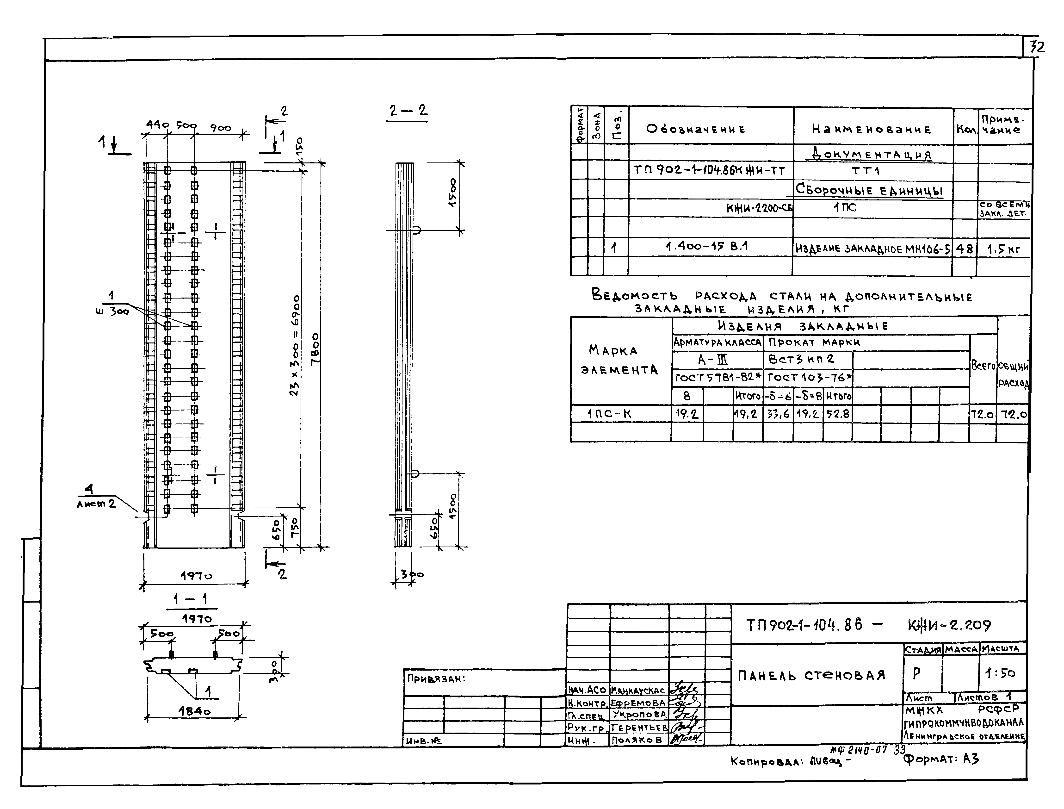
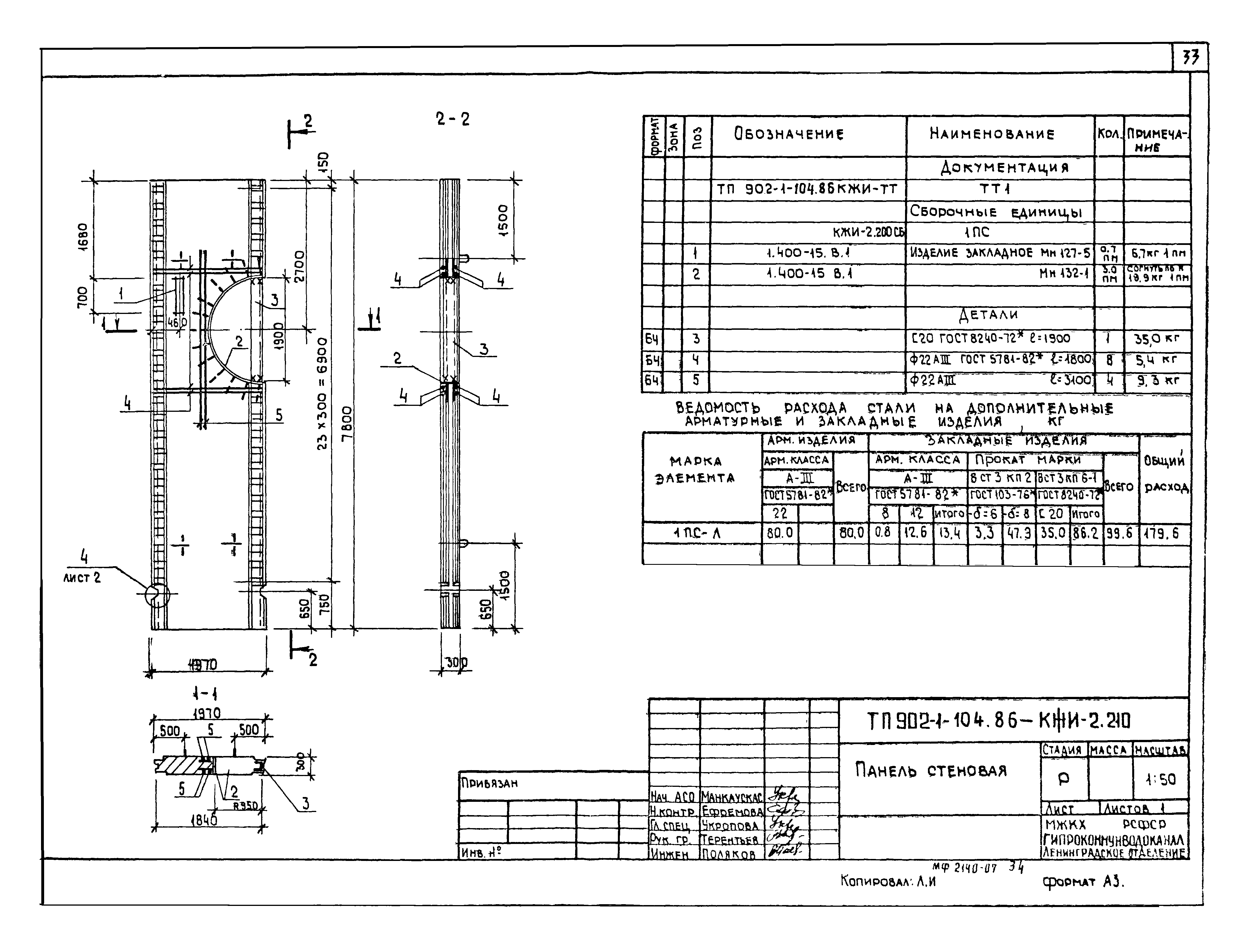
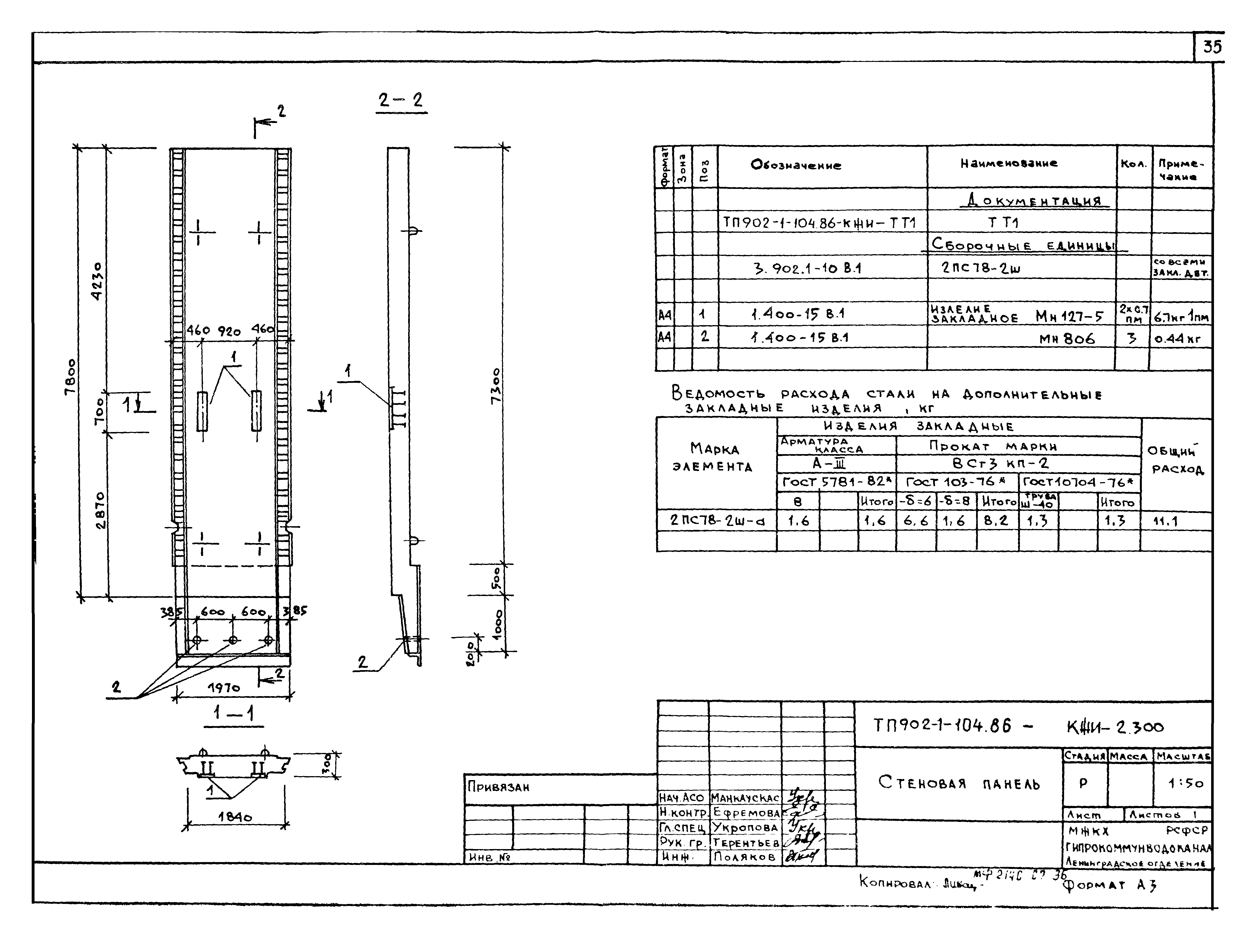
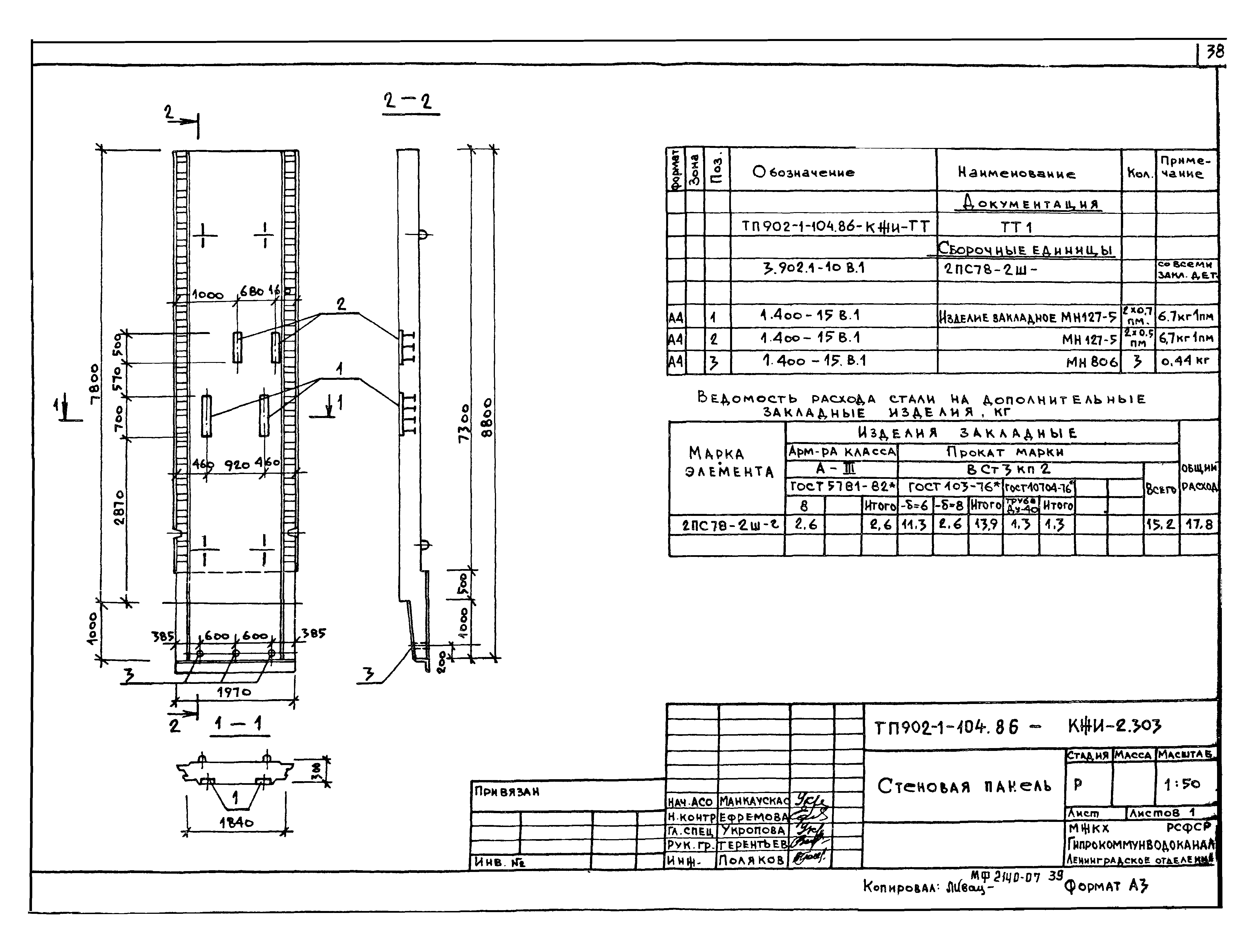
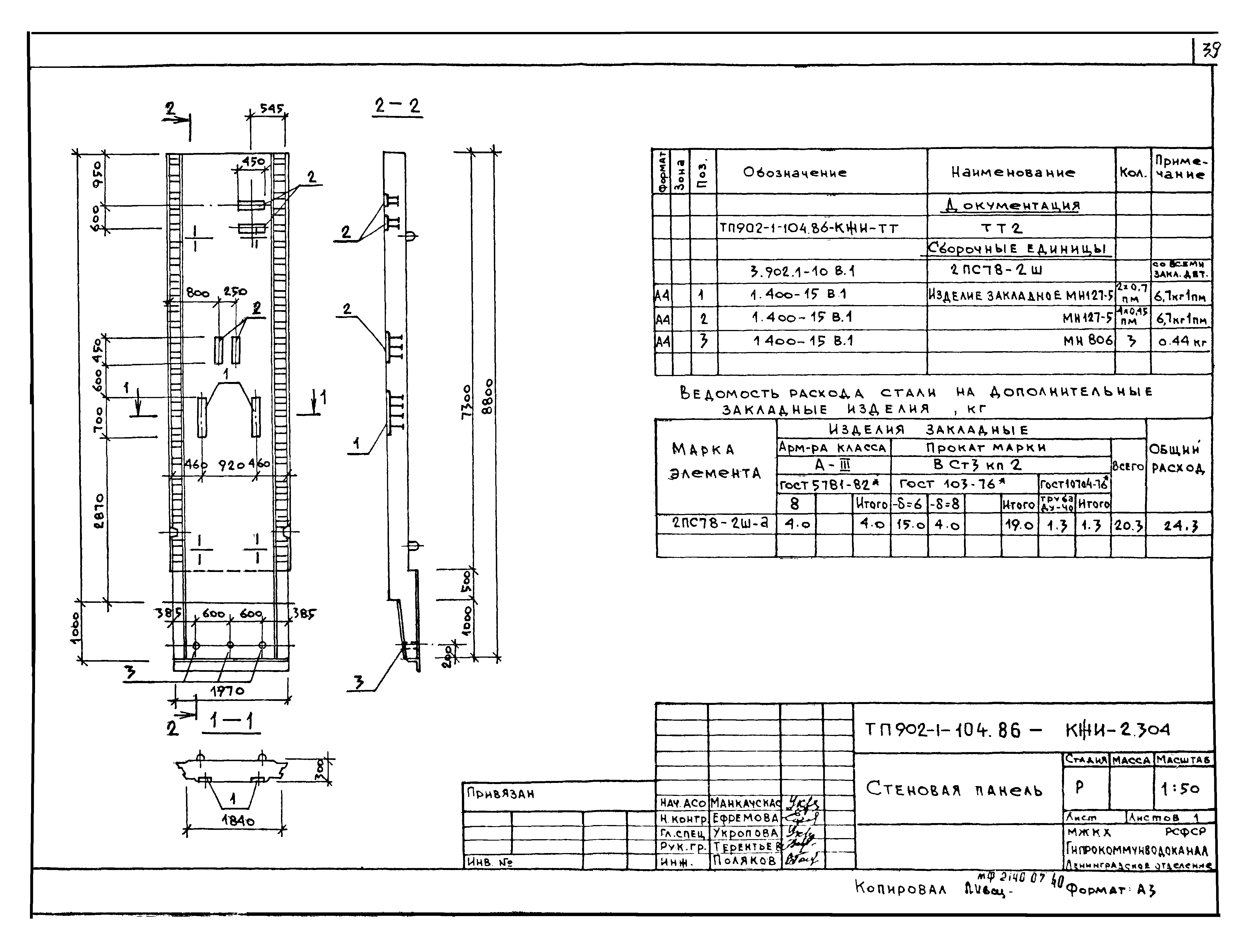
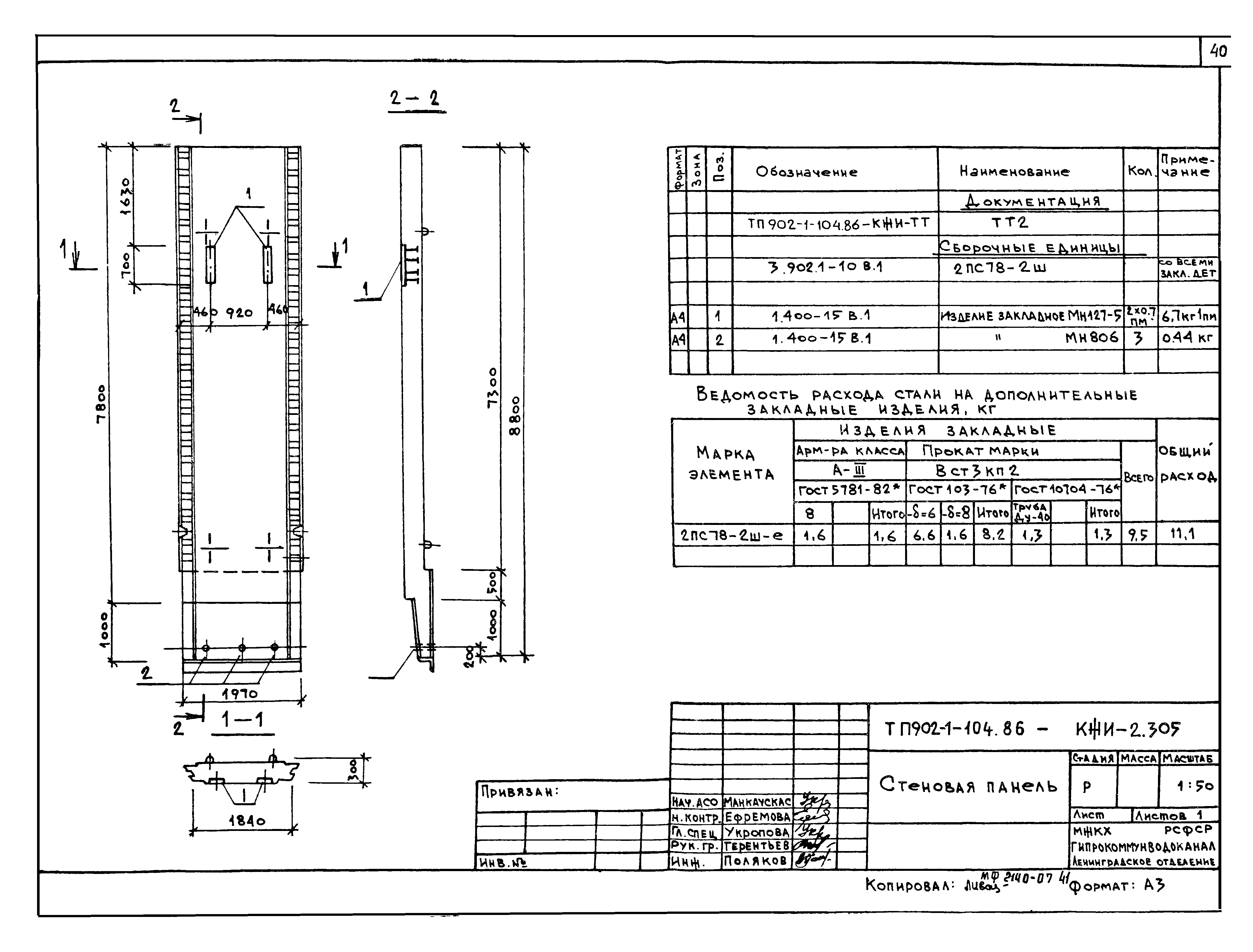
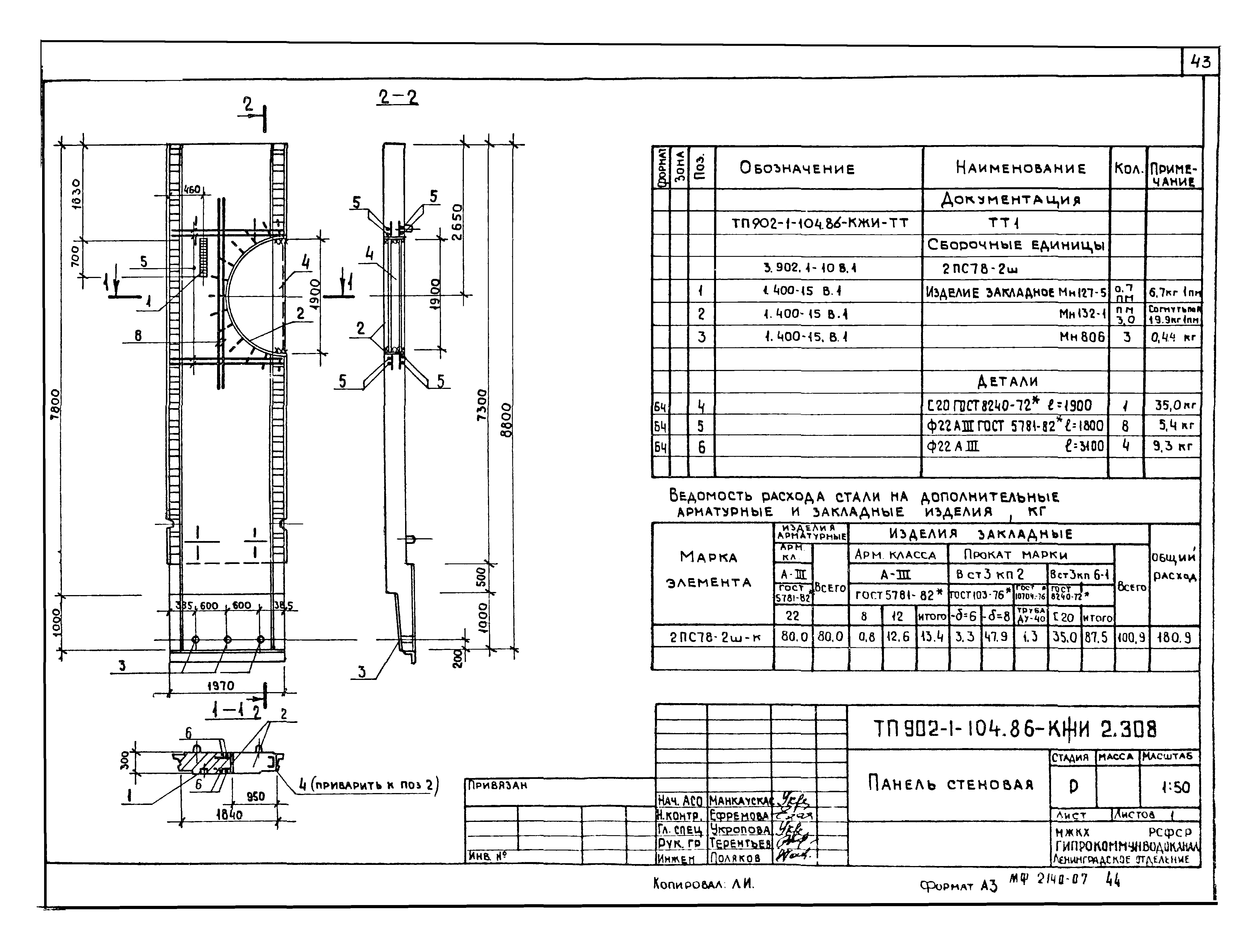
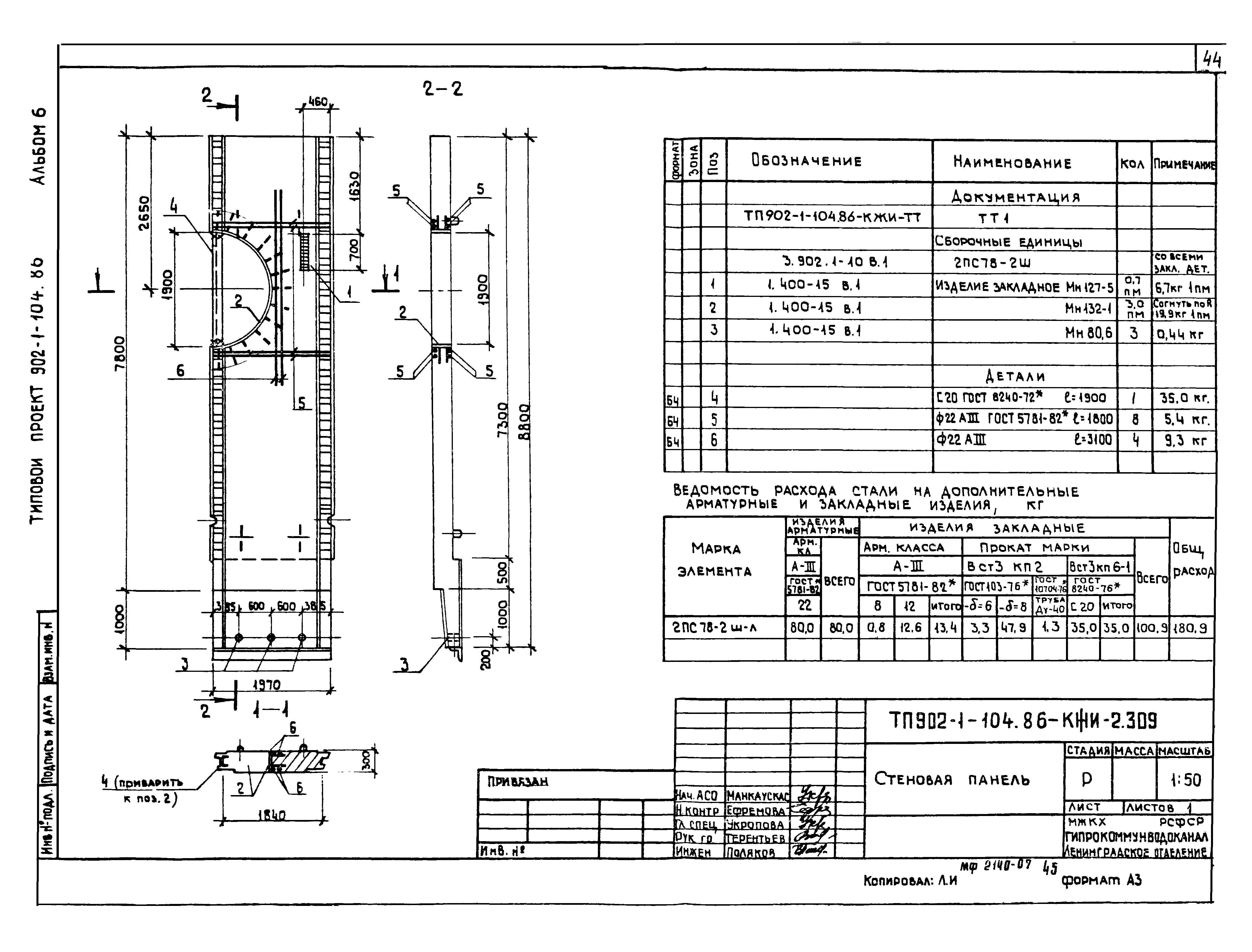
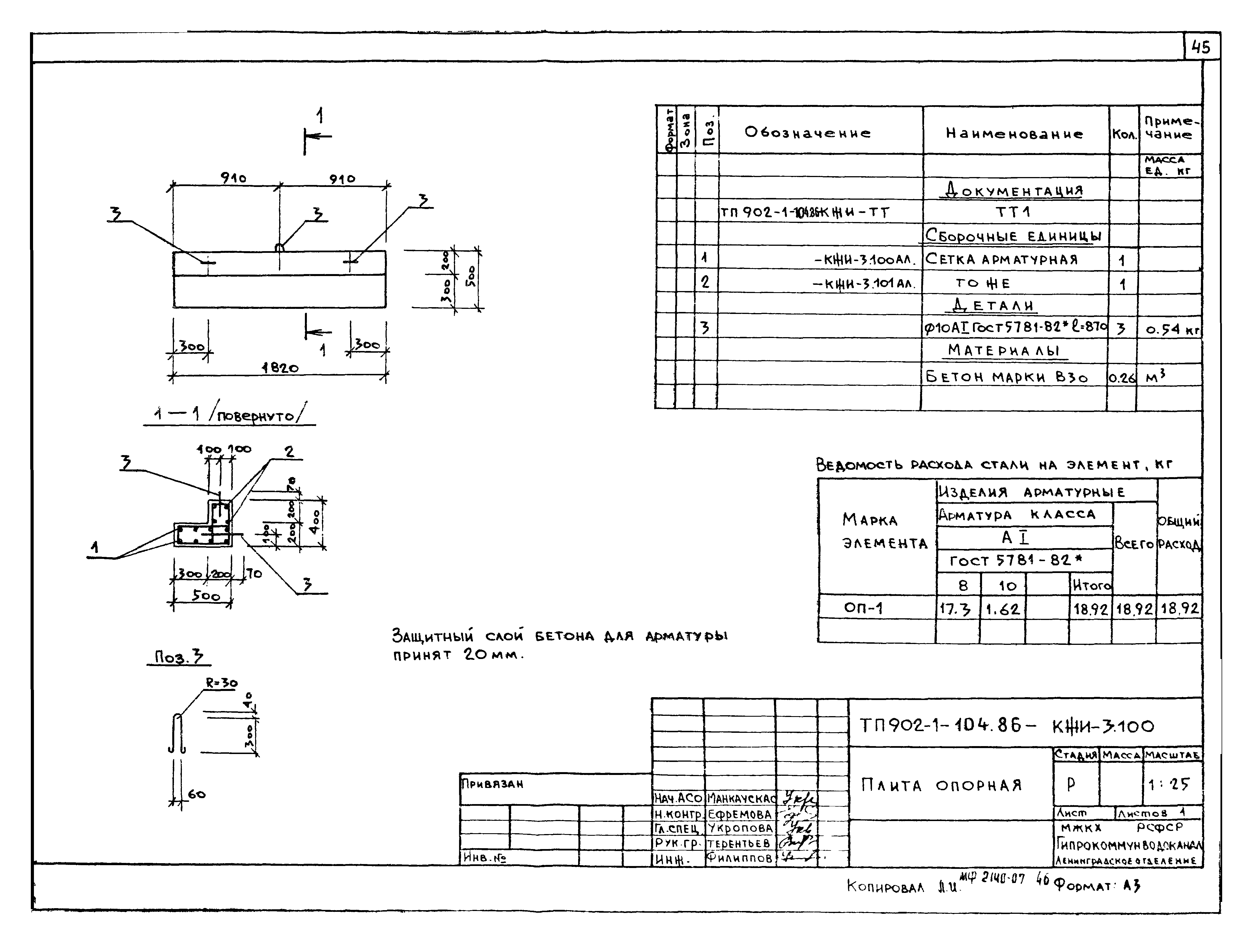
| Оглавление: | ТП 902-1-104.86-КЖИ Содержание альбома ТП 902-1-104.86-КЖИ ТТ Технические требования ТП 902-1-104.86-КЖИ-1.100 СБ Каркас пространственный ТП 902-1-104.86-КЖИ-1.101 Каркас плоский ТП 902-1-104.86-КЖИ-1.200 СБ Каркас пространственный ТП 902-1-104.86-КЖИ-1.201 Каркас плоский ТП 902-1-104.86-КЖИ-1.300 СБ Закладная деталь ТП 902-1-104.86-КЖИ-1.300 Закладная деталь ТП 902-1-104.86-КЖИ-1.301 Анкер А-1 ТП 902-1-104.86-КЖИ-2.100 Стеновая панель ТП 902-1-104.86-КЖИ-2.101 Стеновая панель ТП 902-1-104.86-КЖИ-2.102 Стеновая панель ТП 902-1-104.86-КЖИ-2.103 Стеновая панель ТП 902-1-104.86-КЖИ-2.104 Стеновая панель ТП 902-1-104.86-КЖИ-2.105 Стеновая панель ТП 902-1-104.86-КЖИ-2.106 Стеновая панель ТП 902-1-104.86-КЖИ-2.107 Стеновая панель ТП 902-1-104.86-КЖИ-2.108 Стеновая панель ТП 902-1-104.86-КЖИ-2.109 Стеновая панель ТП 902-1-104.86-КЖИ-2.200 СБ Стеновая панель ТП 902-1-104.86-КЖИ-2.201 Стеновая панель ТП 902-1-104.86-КЖИ-2.202 Стеновая панель ТП 902-1-104.86-КЖИ-2.203 Стеновая панель ТП 902-1-104.86-КЖИ-2.204 Стеновая панель ТП 902-1-104.86-КЖИ-2.205 Стеновая панель ТП 902-1-104.86-КЖИ-2.206 Стеновая панель ТП 902-1-104.86-КЖИ-2.207 Стеновая панель ТП 902-1-104.86-КЖИ-2.208 Стеновая панель ТП 902-1-104.86-КЖИ-2.209 Стеновая панель ТП 902-1-104.86-КЖИ-2.210 Стеновая панель ТП 902-1-104.86-КЖИ-2.211 Стеновая панель ТП 902-1-104.86-КЖИ-2.300 Стеновая панель ТП 902-1-104.86-КЖИ-2.301 Стеновая панель ТП 902-1-104.86-КЖИ-2.302 Стеновая панель ТП 902-1-104.86-КЖИ-2.303 Стеновая панель ТП 902-1-104.86-КЖИ-2.304 Стеновая панель ТП 902-1-104.86-КЖИ-2.305 Стеновая панель ТП 902-1-104.86-КЖИ-2.306 Стеновая панель ТП 902-1-104.86-КЖИ-2.307 Стеновая панель ТП 902-1-104.86-КЖИ-2.308 Стеновая панель ТП 902-1-104.86-КЖИ-2.309 Стеновая панель ТП 902-1-104.86-КЖИ-3.100 Плита опорная ТП 902-1-104.86-КЖИ-3.101 Сетка ТП 902-1-104.86-КЖИ-3.102 Сетка ТП 902-1-104.86-КЖИ-3.103 Изделие соединительное МС2 ТП 902-1-104.86-КЖИ-4.100 Каркас ТП 902-1-104.86-КЖИ-4.101 Каркас ТП 902-1-104.86-КЖИ-4.102 Каркас ТП 902-1-104.86-КЖИ-4.103 Каркас ТП 902-1-104.86-КЖИ-4.104 Каркас ТП 902-1-104.86-КЖИ-4.105 Каркас ТП 902-1-104.86-КЖИ-4.106 Каркас ТП 902-1-104.86-КЖИ-4.107 Каркас ТП 902-1-104.86-КЖИ-4.108 Каркас ТП 902-1-104.86-КЖИ-4.109 Каркас ТП 902-1-104.86-КЖИ-4.200 Каркас ТП 902-1-104.86-КЖИ-4.201 Каркас ТП 902-1-104.86-КЖИ-4.202 Каркас ТП 902-1-104.86-КЖИ-4.203 Каркас ТП 902-1-104.86-КЖИ-4.204 Каркас ТП 902-1-104.86-КЖИ-4.205 Каркас ТП 902-1-104.86-КЖИ-4.206 Каркас ТП 902-1-104.86-КЖИ-4.207 Каркас ТП 902-1-104.86-КЖИ-4.208 Каркас ТП 902-1-104.86-КЖИ-4.209 Каркас ТП 902-1-104.86-КЖИ-4.210 Каркас ТП 902-1-104.86-КЖИ-4.211 Каркас ТП 902-1-104.86-КЖИ-4.212 Каркас ТП 902-1-104.86-КЖИ-4.213 Каркас ТП 902-1-104.86-КЖИ-4.300 Каркас ТП 902-1-104.86-КЖИ-4.301 Каркас ТП 902-1-104.86-КЖИ-4.302 Каркас ТП 902-1-104.86-КЖИ-4.303 Каркас ТП 902-1-104.86-КЖИ-4.304 Каркас ТП 902-1-104.86-КЖИ-4.305 Каркас ТП 902-1-104.86-КЖИ-4.306 Каркас ТП 902-1-104.86-КЖИ-4.307 Каркас ТП 902-1-104.86-КЖИ-4.308 Каркас ТП 902-1-104.86-КЖИ-4.309 Каркас ТП 902-1-104.86-КЖИ-4.310 Каркас ТП 902-1-104.86-КЖИ-4.311 Каркас ТП 902-1-104.86-КЖИ-4.312 Каркас ТП 902-1-104.86-КЖИ-4.313 Каркас ТП 902-1-104.86-КЖИ-4.314 Каркас ТП 902-1-104.86-КЖИ-4.315 Каркас ТП 902-1-104.86-КЖИ-4.316 Каркас ТП 902-1-104.86-КЖИ-4.317 Каркас ТП 902-1-104.86-КЖИ-4.318 Каркас ТП 902-1-104.86-КЖИ-5.100 Каркас ТП 902-1-104.86-КЖИ-5.101 Каркас ТП 902-1-104.86-КЖИ-5.102 Каркас ТП 902-1-104.86-КЖИ-5.103 Каркас ТП 902-1-104.86-КЖИ-5.104 Каркас ТП 902-1-104.86-КЖИ-5.105 Каркас ТП 902-1-104.86-КЖИ-5.106 Каркас ТП 902-1-104.86-КЖИ-5.200 Каркас ТП 902-1-104.86-КЖИ-5.201 Каркас ТП 902-1-104.86-КЖИ-5.202 Каркас ТП 902-1-104.86-КЖИ-5.300 Каркас ТП 902-1-104.86-КЖИ-5.301 Каркас ТП 902-1-104.86-КЖИ-5.302 Каркас ТП 902-1-104.86-КЖИ-5.303 Каркас ТП 902-1-104.86-КЖИ-6.100 Каркас ТП 902-1-104.86-КЖИ-6.101 Каркас ТП 902-1-104.86-КЖИ-6.102 Каркас ТП 902-1-104.86-КЖИ-6.103 Каркас ТП 902-1-104.86-КЖИ-6.104 Каркас ТП 902-1-104.86-КЖИ-6.105 Каркас ТП 902-1-104.86-КЖИ-6.106 Каркас ТП 902-1-104.86-КЖИ-6.107 Каркас ТП 902-1-104.86-КЖИ-6.108 Каркас ТП 902-1-104.86-КЖИ-6.109 Каркас ТП 902-1-104.86-КЖИ-6.110 Каркас ТП 902-1-104.86-КЖИ-6.111 Каркас ТП 902-1-104.86-КЖИ-6.112 Каркас ТП 902-1-104.86-КЖИ-6.113 Каркас ТП 902-1-104.86-КЖИ-6.114 Каркас ТП 902-1-104.86-КЖИ-6.115 Каркас ТП 902-1-104.86-КЖИ-6.116 Каркас ТП 902-1-104.86-КЖИ-6.117 Каркас ТП 902-1-104.86-КЖИ-6.118 Каркас ТП 902-1-104.86-КЖИ-6.119 Каркас ТП 902-1-104.86-КЖИ-6.120 Каркас ТП 902-1-104.86-КЖИ-6.121 Каркас ТП 902-1-104.86-КЖИ-6.122 Каркас ТП 902-1-104.86-КЖИ-6.123 Каркас ТП 902-1-104.86-КЖИ-6.124 Каркас ТП 902-1-104.86-КЖИ-6.125 Каркас ТП 902-1-104.86-КЖИ-6.126 Каркас ТП 902-1-104.86-КЖИ-6.127 Каркас ТП 902-1-104.86-КЖИ-6.128 Каркас ТП 902-1-104.86-КЖИ-6.129 Каркас ТП 902-1-104.86-КЖИ-6.130 Каркас |
| Разработан: | Ленинградское отделение Гипрокоммунводоканала |
| Утверждён: | 27.10.1986 МЖКХ РСФСР (462) |





























































































