Скачать Типовой проект 902-2-394.86 Альбом V. ИзделияДата актуализации: 01.01.2021
|
| Обозначение: | Типовой проект 902-2-394.86 |
| Обозначение англ: | 902-2-394.86 |
| Статус: | не определен законодательством |
| Название рус.: | Альбом V. Изделия |
| Дата добавления в базу: | 01.09.2013 |
| Дата актуализации: | 01.01.2021 |
| Дата введения: | 09.01.1986 |
| Дата окончания срока действия: | 30.06.2003 |
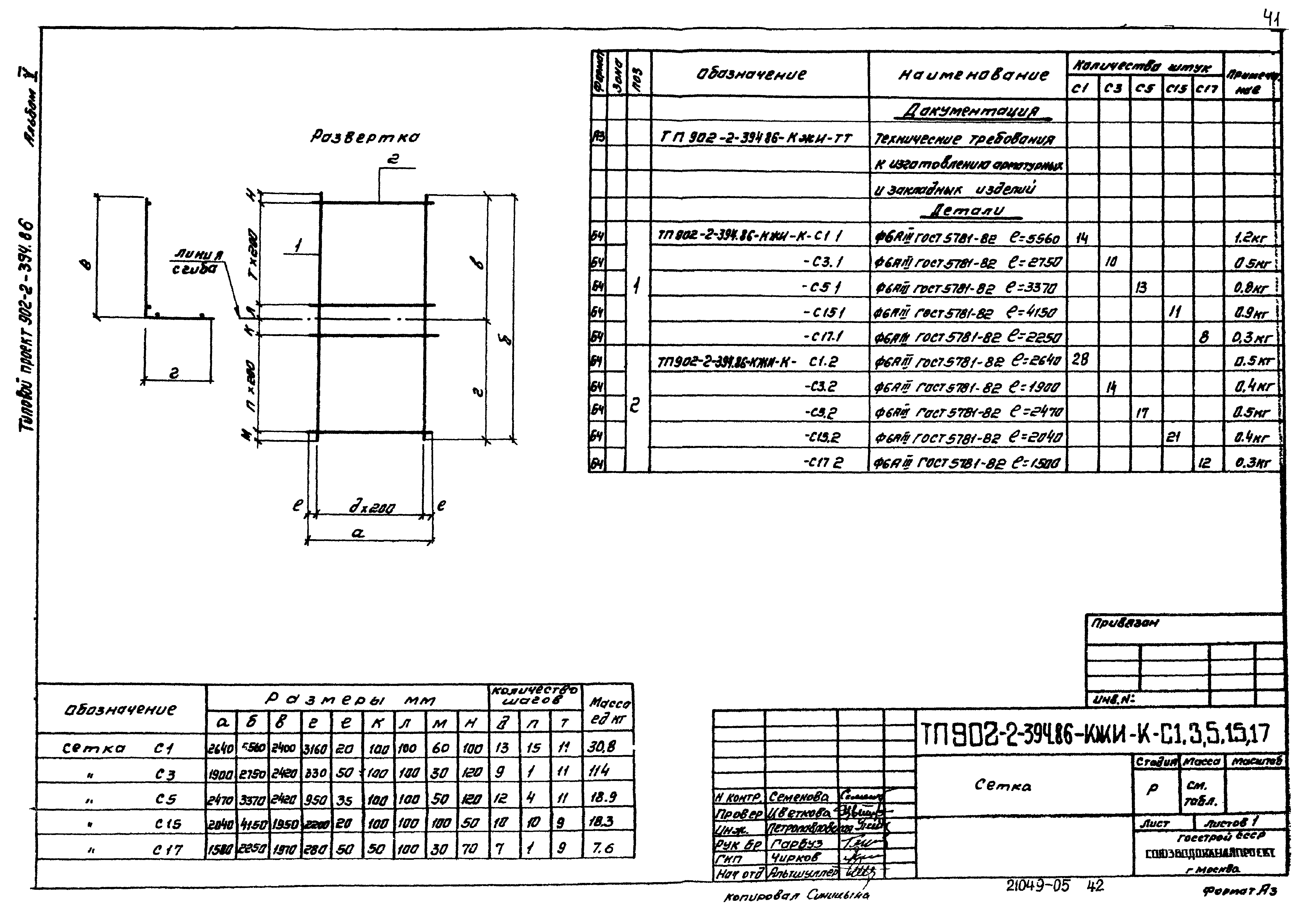
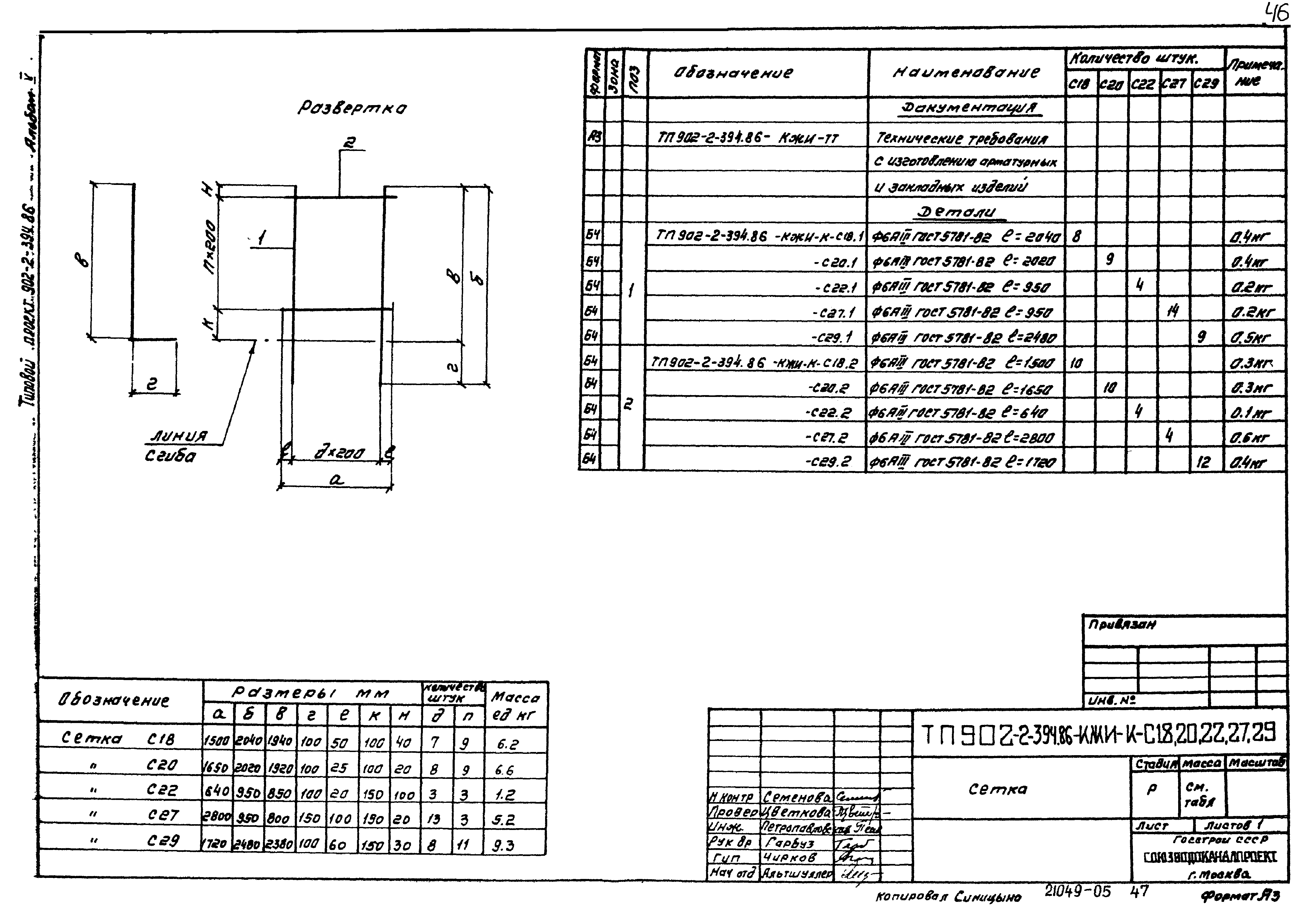
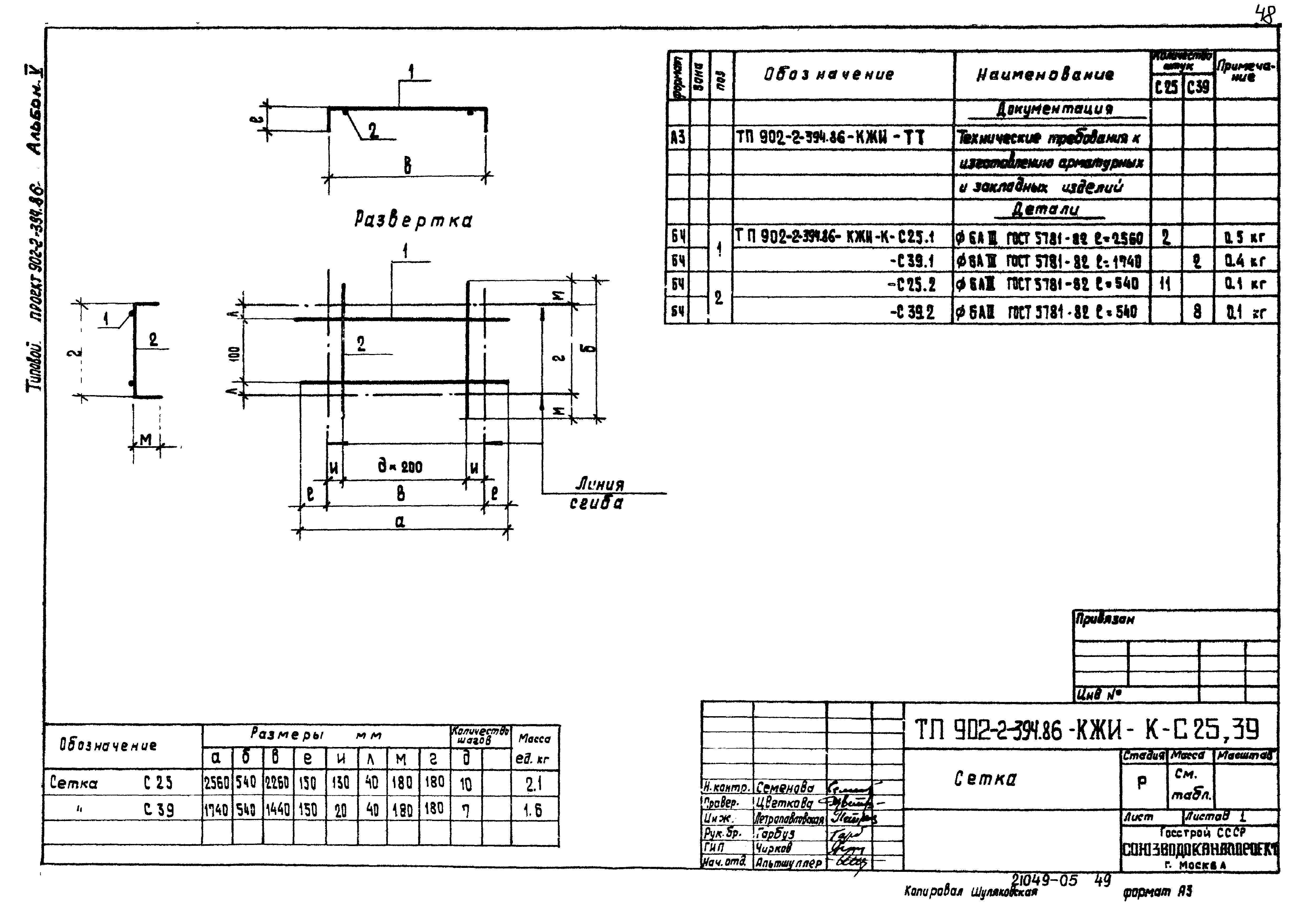
| Оглавление: | ТП 902-2-394.86-КЖИ Содержание альбома (начало) ТП 902-2-394.86-КЖИ Содержание альбома (окончание) ТП 902-2-394.86-КЖИ-ТТ Технические требования к изготовлению арматурных и закладных изделий ТП 902-2-394.86-КЖИ-КП-С16,18 Сетка ТП 902-2-394.86-КЖИ-КП-1,2,5 Каркас пространственный ТП 902-2-394.86-КЖИ-КП-3,8 Каркас пространственный ТП 902-2-394.86-КЖИ-КП-4,9 Каркас пространственный ТП 902-2-394.86-КЖИ-КП-10,11 Каркас пространственный ТП 902-2-394.86-КЖИ-КП-6,7,12 Каркас пространственный ТП 902-2-394.86-КЖИ-КП-С1,3,7 Сетка ТП 902-2-394.86-КЖИ-КП-4,9 С2,4,8 Сетка ТП 902-2-394.86-КЖИ-КП-С5,10,12,13,20 Сетка ТП 902-2-394.86-КЖИ-КП-С6,14 Сетка ТП 902-2-394.86-КЖИ-КП-С9,11,19 Сетка ТП 902-2-394.86-КЖИ-С15,17 Сетка ТП 902-2-394.86-КЖИ-С1,8,11 Сетка ТП 902-2-394.86-КЖИ-С2,9,12 Сетка ТП 902-2-394.86-КЖИ-С3,10,13 Сетка ТП 902-2-394.86-КЖИ-С4,5 Сетка ТП 902-2-394.86КЖИ--С6,7 Сетка ТП 902-2-394.86-КЖИ-КР1 Каркас плоский ТП 902-2-394.86-КЖИ-С14,15 Сетка ТП 902-2-394.86-КЖИ-М1 Изделие закладное ТП 902-2-394.86-КЖИ-М2,4 Изделие закладное ТП 902-2-394.86-КЖИ-М3,5 Изделие закладное ТП 902-2-394.86-КЖИ-МН1,2,5,6 Изделие закладное ТП 902-2-394.86-КЖИ-МН3 Изделие закладное ТП 902-2-394.86-КЖИ-МН7 Изделие закладное ТП 902-2-394.86-КЖИ-МН4 Изделие закладное ТП 902-2-394.86-КЖИ-ПС3,4,5 Панель стеновая ТП 902-2-394.86-КЖИ-ПС7,8,9 Панель стеновая ТП 902-2-394.86-КЖИ-ПС6 Панель стеновая ТП 902-2-394.86-КЖИ-ПС7,8,9 Панель стеновая ТП 902-2-394.86-КЖИ-ПС10,11,12,13 Панель стеновая ТП 902-2-394.86-КЖИ-ПС14,15 Панель стеновая ТП 902-2-394.86-КЖИ-ПГ1,2,3 Панель стеновая ТП 902-2-394.86-КЖИ-ПГ4,5,6 Панель стеновая ТП 902-2-394.86-КЖИ-ПС-ЗДИ3,12,13 Изделие закладное ТП 902-2-394.86-КЖИ-ПС-С1 Сетка ТП 902-2-394.86-КЖИ-ПС-ЗДИ1 Изделие закладное ТП 902-2-394.86-КЖИ-ПМ1 Площадка ТП 902-2-394.86-КЖИ-ПС-ЗДИ2 Изделие закладное ТП 902-2-394.86-КЖИ-Б1 Балка ТП 902-2-394.86-КЖИ-Б2 Балка ТП 902-2-394.86-КЖИ-Б3 Балка ТП 902-2-394.86-КЖИ-Б4 Балка ТП 902-2-394.86-КЖИ-Б-КР1,2 Каркас плоский ТП 902-2-394.86-КЖИ-Б-КР3,5 Каркас плоский ТП 902-2-394.86-КЖИ-Б-КР4,6 Каркас плоский ТП 902-2-394.86-КЖИ-ЛТ1,2,3,4 Лоток ТП 902-2-394.86-КЖИ-Б-ЗДИ1 Изделие закладное ТП 902-2-394.86-КЖИ-Б-ЗДИ2,3 Изделие закладное ТП 902-2-394.86-КЖИ-ЛТ5,6,7,8 Лоток ТП 902-2-394.86-КЖИ-ЛТ9,10,11,12 Лоток ТП 902-2-394.86-КЖИ-ЛТ-ЗДИ1 Изделие закладное ТП 902-2-394.86-КЖИ-ЛТ-ЗДИ2 Изделие закладное ТП 902-2-394.86-КЖИ-ЛТ-ЗДИ3 Изделие закладное ТП 902-2-394.86-КЖИ-ЛТ-ЗДИ4,8 Изделие закладное ТП 902-2-394.86-КЖИ-ЛТ-ЗДИ5,6 Изделие закладное ТП 902-2-394.86-КЖИ-ЛТ-ЗДИ7 Изделие закладное ТП 902-2-394.86-КЖИ-ФЛ1 Лоток ТП 902-2-394.86-КЖИ-ФЛ2 Лоток ТП 902-2-394.86-КЖИ-ФЛ-С1,2 Сетка ТП 902-2-394.86-КЖИ-К-С47 Сетка ТП 902-2-394.86-КЖИ-П5 Плита ТП 902-2-394.86-КЖИ-П-ЗДИ1 Изделие закладное ТП 902-2-394.86-КЖИ-К-С1,3,5,15,17 Сетка ТП 902-2-394.86-КЖИ-К-С2,4,6,8,14,16 Сетка ТП 902-2-394.86-КЖИ-К-С7,9,10,21,23 Сетка ТП 902-2-394.86-КЖИ-К-С11,13,24,26,48,49,55 Сетка ТП 902-2-394.86-КЖИ-К-С12,32 Сетка ТП 902-2-394.86-КЖИ-К-С18,20,22,27,29 Сетка ТП 902-2-394.86-КЖИ-К-С19,28,30,35,37 Сетка ТП 902-2-394.86-КЖИ-К-С25,39 Сетка ТП 902-2-394.86-КЖИ-К-С31,38,46,50,54 Сетка ТП 902-2-394.86-КЖИ-К-С33,34,36,52 Сетка ТП 902-2-394.86-КЖИ-К-С40,42,44,51,53 Сетка ТП 902-2-394.86-КЖИ-К-С41,43,45 Изделие закладное ТП 902-2-394.86-КЖИ-К-ЗДИ1 Изделие закладное ТП 902-2-394.86-КЖИ-К-ЗДИ2,3 Изделие закладное ТП 902-2-394.86-КЖИ-К-ЗДИ4 Изделие закладное ТП 902-2-394.86-КЖИ-К-П-МН1 Изделие закладное ТП 902-2-394.86-КЖИ-К-П1 Плита ТП 902-2-394.86-КЖИ-К-П2 Плита |
| Разработан: | Союзводоканалпроект |
| Утверждён: | 20.09.1984 Союзводоканалпроект (Soyuzvodokanalproject 46) |
| Заменяет собой: |
|
























































