Скачать Типовой проект 902-2-381.84 Альбом V. Задание заводу-изготовителюДата актуализации: 01.01.2021
|
| Обозначение: | Типовой проект 902-2-381.84 |
| Обозначение англ: | 902-2-381.84 |
| Статус: | не действует |
| Название рус.: | Альбом V. Задание заводу-изготовителю |
| Дата добавления в базу: | 01.09.2013 |
| Дата актуализации: | 01.01.2021 |
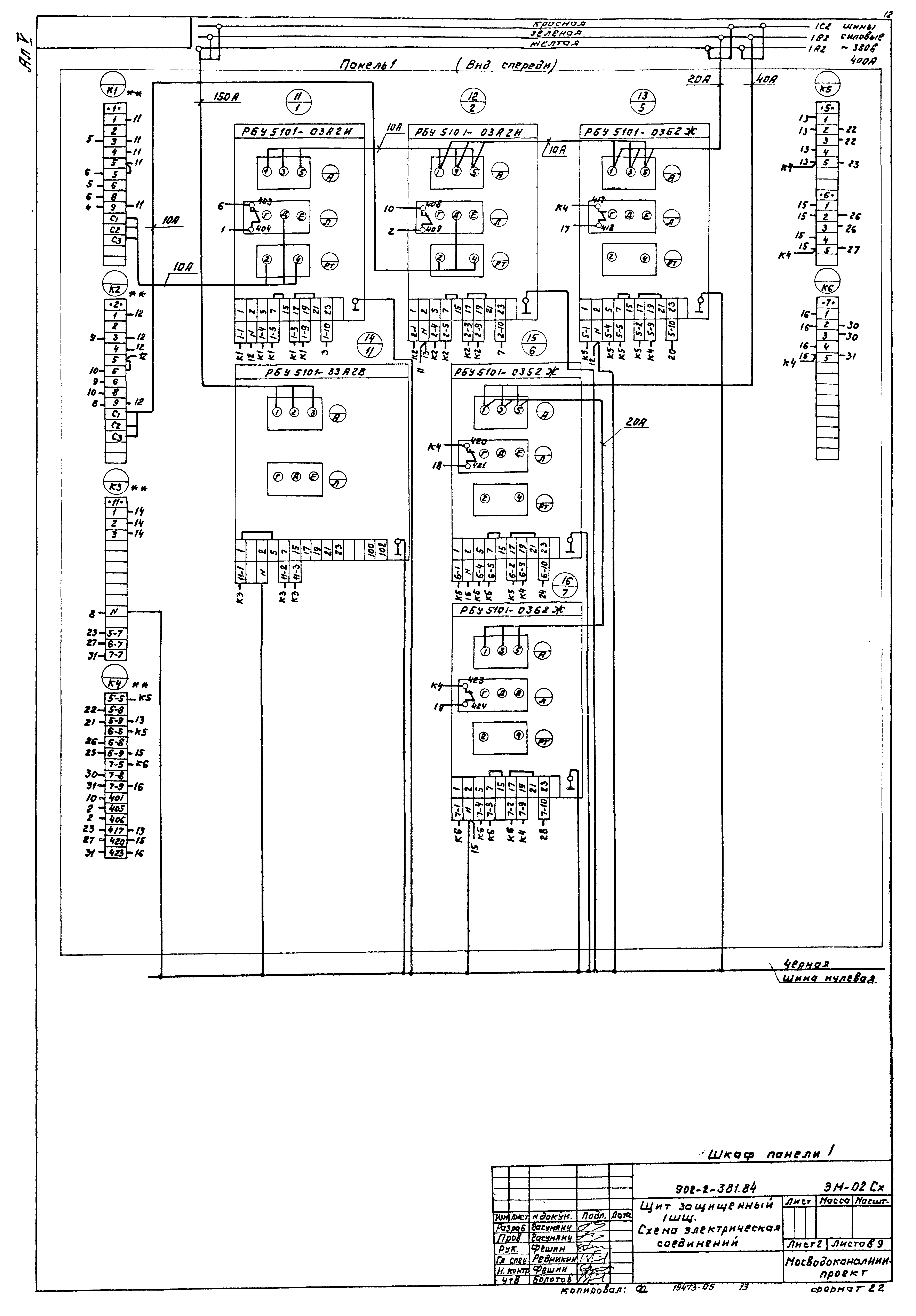
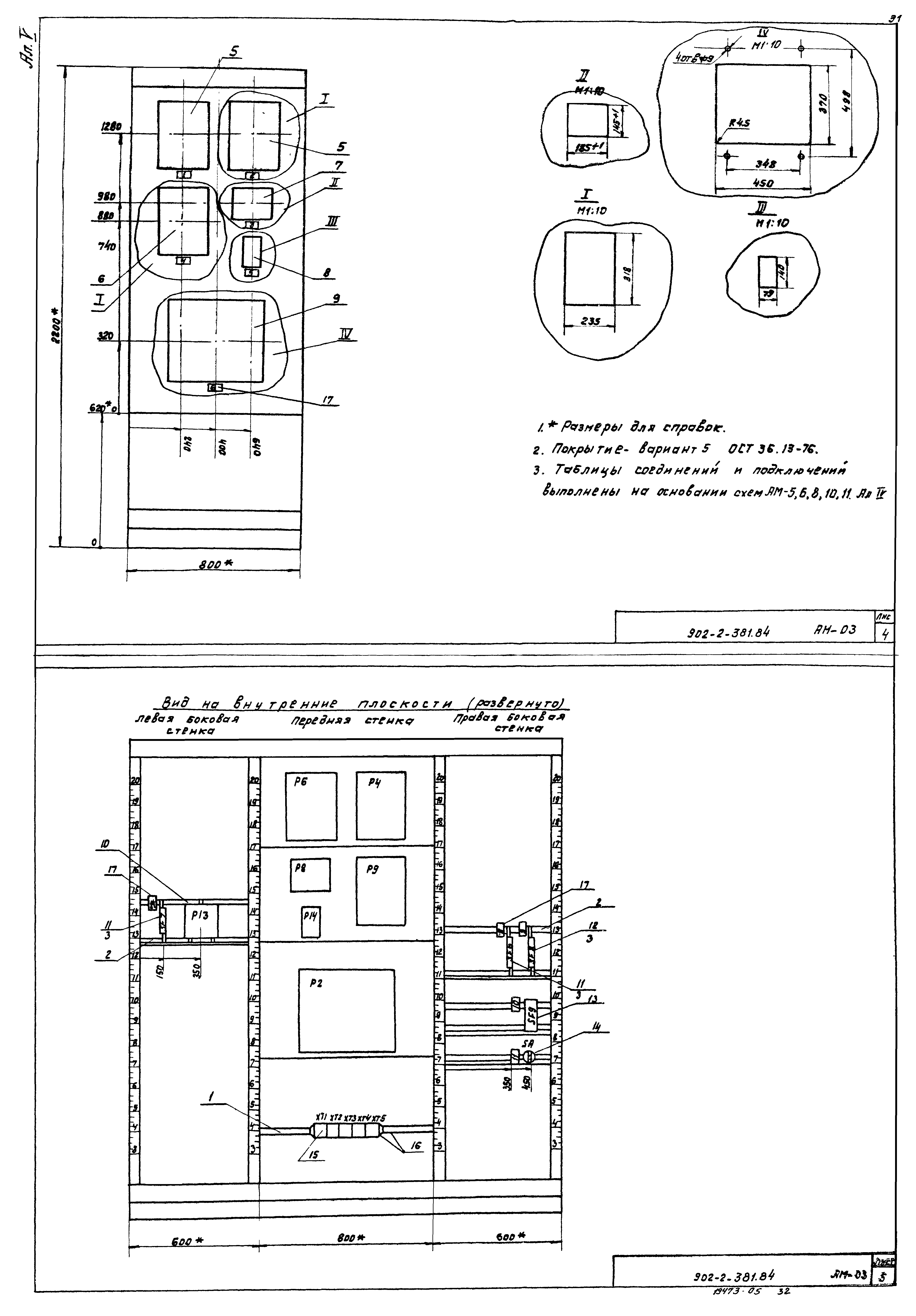
| Оглавление: | ТП 902-2-381.84 ЭМ-01 Перечень комплектных устройств ТП 902-2-381.84 ЭМ-02 Щит защищенный 1ШЩ. Технические данные аппаратов. Лист 1,2,3 ТП 902-2-381.84 ЭМ-02 Щит защищенный 1ШЩ. Технические данные аппаратов. Лист 4,5,6 ТП 902-2-381.84 ЭМ-02ПН Щит защищенный 1ШЩ. Таблица перечня надписей. Лист 1 ТП 902-2-381.84 ЭМ-02ПН Щит защищенный 1ШЩ. Таблица перечня надписей. Лист 2,3,4,5 ТП 902-2-381.84 ЭМ-02ПН Щит защищенный 1ШЩ. Таблица перечня надписей. Лист 6,7 ТП 902-2-381.84 ЭМ-02ОВ Щит защищенный 1ШЩ. Чертеж общего вида. Лист 2 ТП 902-2-381.84 ЭМ-02ОВ Щит защищенный 1ШЩ. Чертеж общего вида. Лист 1 ТП 902-2-381.84 ЭМ-02ОВ Щит защищенный 1ШЩ. Чертеж общего вида. Лист 3,4 ТП 902-2-381.84 ЭМ-02ОВ Щит защищенный 1ШЩ. Чертеж общего вида. Лист 5,6 ТП 902-2-381.84 ЭМ-02ОВ Щит защищенный 1ШЩ. Чертеж общего вида. Лист 7,8 ТП 902-2-381.84 ЭМ-02Сх Щит защищенный 1ШЩ. Схема электрическая соединений. Лист 1 ТП 902-2-381.84 ЭМ-02Сх Щит защищенный 1ШЩ. Схема электрическая соединений. Лист 2 ТП 902-2-381.84 ЭМ-02Сх Щит защищенный 1ШЩ. Схема электрическая соединений. Лист 3 ТП 902-2-381.84 ЭМ-02Сх Щит защищенный 1ШЩ. Схема электрическая соединений. Лист 4 ТП 902-2-381.84 ЭМ-02Сх Щит защищенный 1ШЩ. Схема электрическая соединений. Лист 5 ТП 902-2-381.84 ЭМ-02Сх Щит защищенный 1ШЩ. Схема электрическая соединений. Лист 6 ТП 902-2-381.84 ЭМ-02Сх Щит защищенный 1ШЩ. Схема электрическая соединений. Лист 7 ТП 902-2-381.84 ЭМ-02Сх Щит защищенный 1ШЩ. Схема электрическая соединений. Лист 8 ТП 902-2-381.84 ЭМ-02Сх Щит защищенный 1ШЩ. Схема электрическая соединений. Лист 9 ТП 902-2-381.84 ЭМ-03 Щит защищенный 2ШЩ. Технические данные аппаратов. Лист 1,2,3,4 ТП 902-2-381.84 ЭМ-03ПН Щит защищенный 2ШЩ. Таблица перечня надписей. Лист 1,2,3,4 ТП 902-2-381.84 ЭМ-03ОВ Щит защищенный 2ШЩ. Чертеж общего вида. Лист 1 ТП 902-2-381.84 ЭМ-03ОВ Щит защищенный 2ШЩ. Чертеж общего вида. Лист 2,3 ТП 902-2-381.84 ЭМ-03Сх Щит защищенный 2ШЩ. Схема электрическая соединений. Лист 1 ТП 902-2-381.84 ЭМ-03Сх Щит защищенный 2ШЩ. Схема электрическая соединений. Лист 2,4 ТП 902-2-381.84 ЭМ-03Сх Щит защищенный 2ШЩ. Схема электрическая соединений. Лист 3 ТП 902-2-381.84 ЭМ-04 Ящик 1Я(2Я,3Я,4Я). Технические данные аппаратов. Лист 1,2 ТП 902-2-381.84 ЭМ-04ОВ Ящик 1Я(2Я,3Я,4Я). Чертеж общего вида ТП 902-2-381.84 ЭМ-04ПН Ящик 1Я(2Я,3Я,4Я). Таблица перечня надписей ТП 902-2-381.84 ЭМ-04Сх Ящик 1Я(2Я,3Я,4Я). Схема электрическая соединений ТП 902-2-381.84 Щиты по ОСТ 36-13-76 ТП 902-2-381.84 АМ-01 Ведомость документов ТП 902-2-381.84 Ам-02 Заказная спецификация щитов. Лист 1,2 ТП 902-2-381.84 АМ-03 Щит КИП. Общий вид. Лист 1,2,3,6 ТП 902-2-381.84 АМ-03 Щит КИП. Общий вид. Лист 4,5 ТП 902-2-381.84 АМ-03 Щит КИП. Общий вид. Лист 7,8,9,10 ТП 902-2-381.84 АМ-03 Щит КИП. Общий вид. Лист 11,12,13 ТП 902-2-381.84 ЭМ-03Сх Щит защищенный 2ШЩ. Схема электрическая соединений. Лист 5 |
| Разработан: | МосводоканалНИИпроект |
| Утверждён: | 20.12.1983 МосводоканалНИИпроект (312) |


































