Скачать Типовой проект 902-2-381.84 Альбом VI. Часть 1. Нестандартизированное оборудование. ИлоскребДата актуализации: 01.01.2021
|
| Обозначение: | Типовой проект 902-2-381.84 |
| Обозначение англ: | 902-2-381.84 |
| Статус: | не действует |
| Название рус.: | Альбом VI. Часть 1. Нестандартизированное оборудование. Илоскреб |
| Дата добавления в базу: | 01.09.2013 |
| Дата актуализации: | 01.01.2021 |
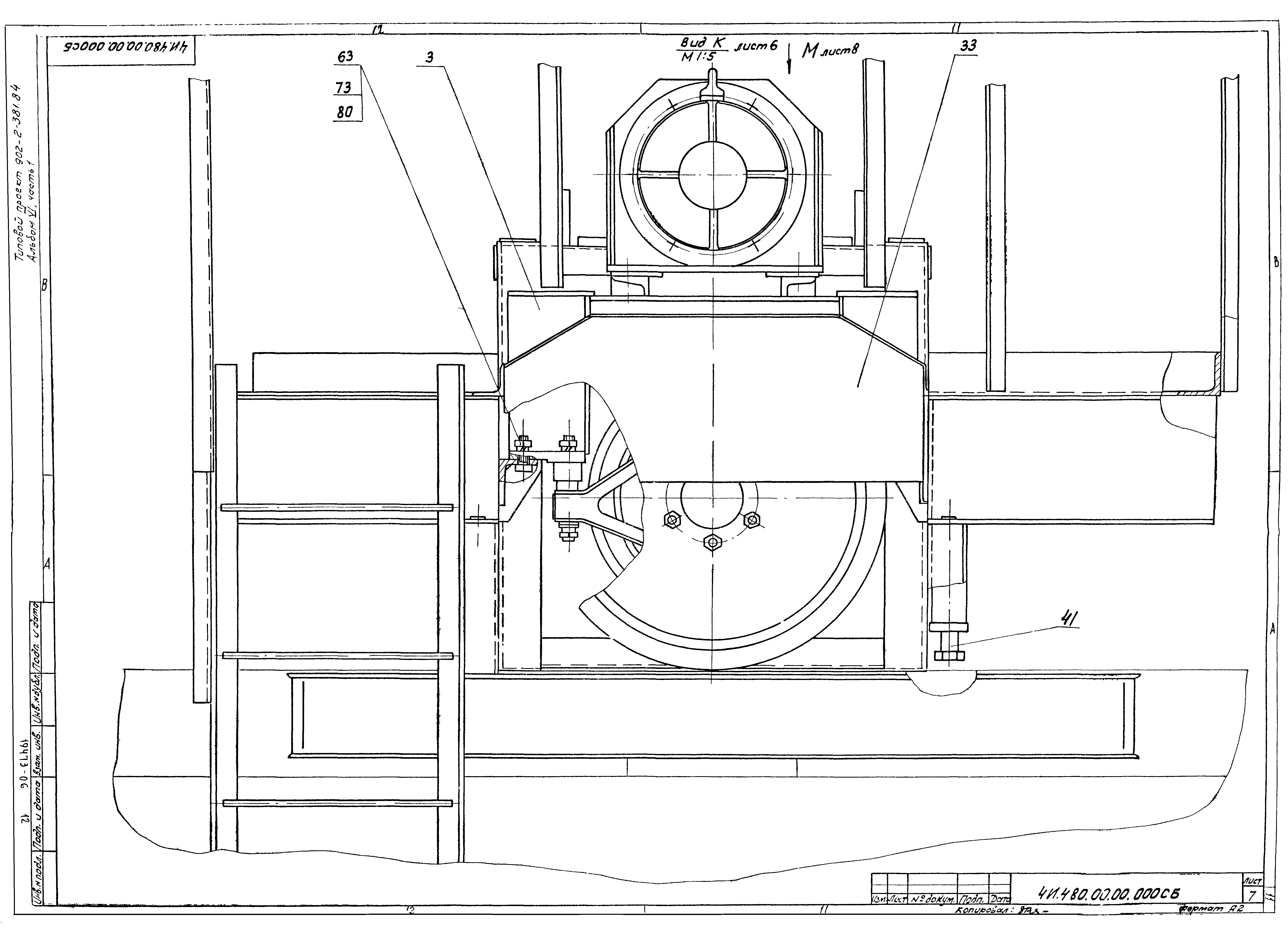
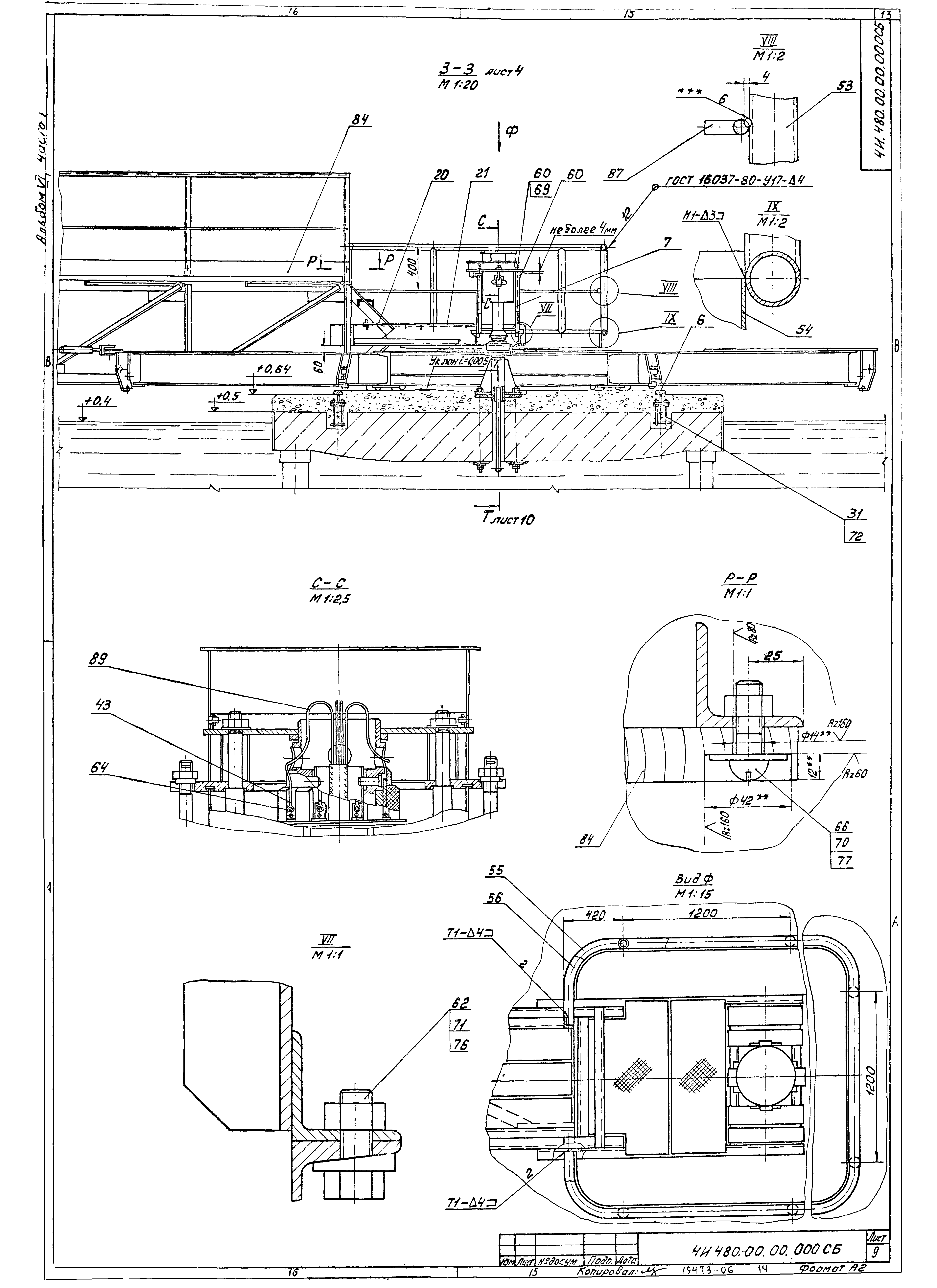
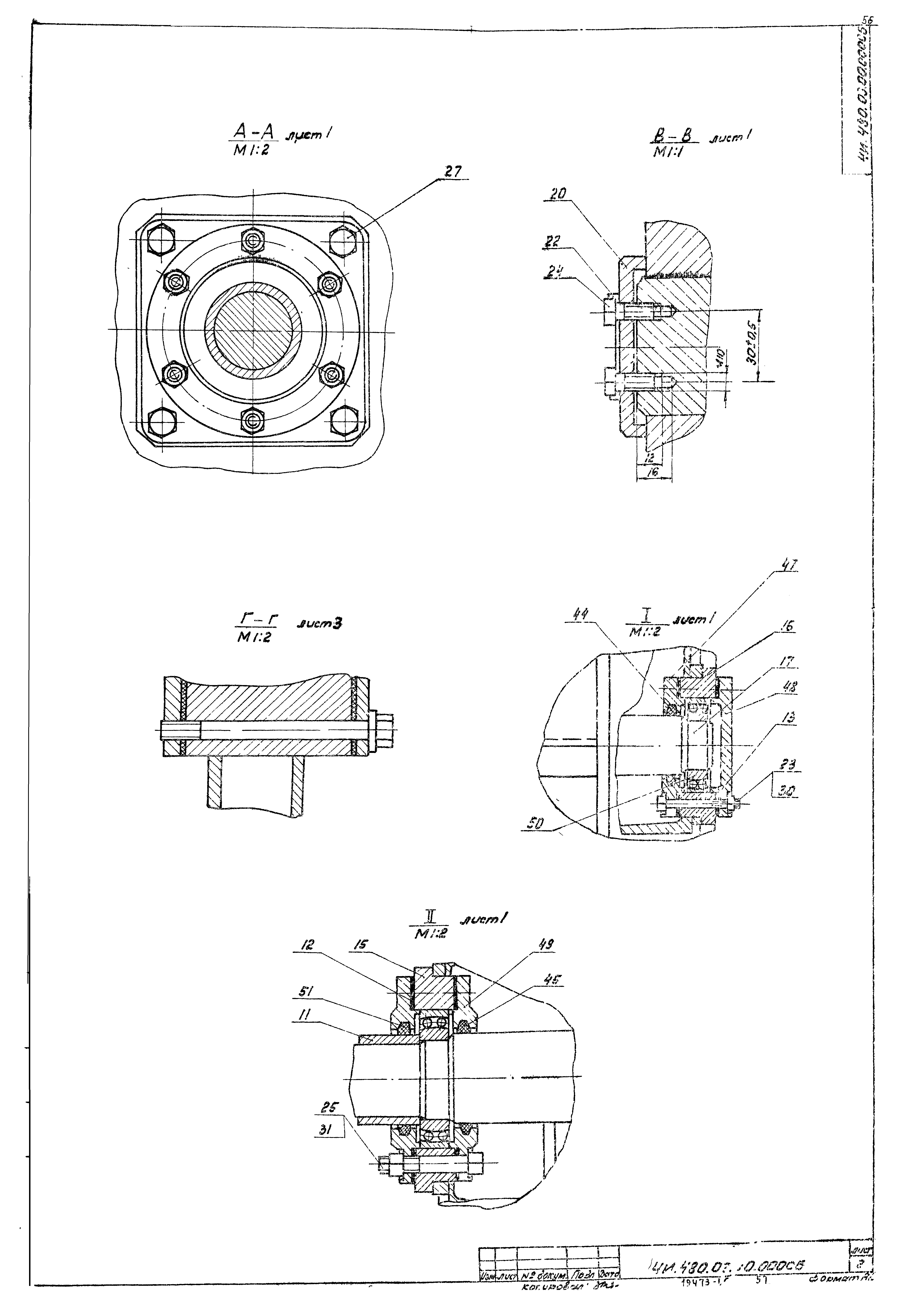
| Оглавление: | Часть I ТП 902-2-381.84 Титульный лист ТП 902-2-381.84 Содержание альбома ТП 902-2-381.84 4И.480.00.00.000 СБ Илоскреб ИПР-50. Лист 1 ТП 902-2-381.84 4И.480.00.00.000 СБ Илоскреб ИПР-50. Лист 2 ТП 902-2-381.84 4И.480.00.00.000 СБ Илоскреб ИПР-50. Лист 3 ТП 902-2-381.84 4И.480.00.00.000 СБ Илоскреб ИПР-50. Лист 4 ТП 902-2-381.84 4И.480.00.00.000 СБ Илоскреб ИПР-50. Лист 5 ТП 902-2-381.84 4И.480.00.00.000 СБ Илоскреб ИПР-50. Лист 6 ТП 902-2-381.84 4И.480.00.00.000 СБ Илоскреб ИПР-50. Лист 7 ТП 902-2-381.84 4И.480.00.00.000 СБ Илоскреб ИПР-50. Лист 8 ТП 902-2-381.84 4И.480.00.00.000 СБ Илоскреб ИПР-50. Лист 9 ТП 902-2-381.84 4И.480.00.00.000 СБ Илоскреб ИПР-50. Лист 10 ТП 902-2-381.84 4И.480.00.00.000 Илоскреб ИПР-50. Спецификация. Лист 1-4 ТП 902-2-381.84 4И.480.00.00.000 Илоскреб ИПР-50. Спецификация. Лист 5-6 ТП 902-2-381.84 4И.480.00.00.000 ТУ Илоскреб ИПР-50. Технические условия ТП 902-2-381.84 4И.480.00.00.000 ВП Илоскреб ИПР-50. Ведомость покупных изделий ТП 902-2-381.84 4И.480.01.00.000 СБ Мост. Лист 1 ТП 902-2-381.84 4И.480.01.00.000 СБ Мост. Лист 2 ТП 902-2-381.84 4И.480.01.00.000 СБ Мост. Лист 3 ТП 902-2-381.84 4И.480.01.00.000 СБ Мост. Лист 4 ТП 902-2-381.84 4И.480.01.00.000 Мост. Спецификация. Лист 1-4 ТП 902-2-381.84 4И.480.01.00.000 Мост. Спецификация. Лист 5-6 ТП 902-2-381.84 4И.480.01.00.001 Угольник ТП 902-2-381.84 4И.480.01.00.001-01 Угольник ТП 902-2-381.84 4И.480.01.00.002 Швеллер ТП 902-2-381.84 4И.480.01.00.003 Уголок опорный ТП 902-2-381.84 4И.480.01.00.004 Ребро ТП 902-2-381.84 4И.480.01.00.005 Втулка ТП 902-2-381.84 4И.480.01.00.006 Пятка ТП 902-2-381.84 4И.480.01.00.007 Лист ТП 902-2-381.84 4И.480.01.00.008 Уголок ТП 902-2-381.84 4И.480.01.00.009 Швеллер ТП 902-2-381.84 4И.480.01.00.011 Накладка ТП 902-2-381.84 4И.480.01.00.012 Стойка ТП 902-2-381.84 4И.480.01.00.013 Лист ТП 902-2-381.84 4И.480.02.00.000 Звезда. Спецификация. Лист 1-2 ТП 902-2-381.84 4И.480.02.00.000 СБ Звезда. Лист 1 ТП 902-2-381.84 4И.480.02.00.000 СБ Звезда. Лист 2 ТП 902-2-381.84 4И.480.02.01.000 СБ Основание звезды. Лист 1 ТП 902-2-381.84 4И.480.02.01.000 Основание звезды. Спецификация. Лист 1-2 ТП 902-2-381.84 4И.480.02.01.100 СБ Накладка ТП 902-2-381.84 4И.480.02.01.100 Накладка. Спецификация ТП 902-2-381.84 4И.480.02.01.101 Косынка ТП 902-2-381.84 4И.480.02.01.200 СБ Накладка ТП 902-2-381.84 4И.480.02.01.200 Накладка. Спецификация ТП 902-2-381.84 4И.480.02.01.001 Косынка ТП 902-2-381.84 4И.480.02.01.002 Уголок ТП 902-2-381.84 4И.480.02.01.003 Ребро ТП 902-2-381.84 4И.480.02.01.004 Балка ТП 902-2-381.84 4И.480.02.01.005 Поперечина ТП 902-2-381.84 4И.480.02.01.006 Поперечина ТП 902-2-381.84 4И.480.02.01.007 Тяга ТП 902-2-381.84 4И.480.02.01.008 Поперечина ТП 902-2-381.84 4И.480.02.01.009 Лист ТП 902-2-381.84 4И.480.02.01.011 Лист ТП 902-2-381.84 4И.480.02.01.012 Тяга ТП 902-2-381.84 4И.480.02.01.013 Лист ТП 902-2-381.84 4И.480.02.02.000 СБ Луч звезды ТП 902-2-381.84 4И.480.02.02.000 Луч звезды. Спецификация ТП 902-2-381.84 4И.480.02.02.100 СБ Накладка ТП 902-2-381.84 4И.480.02.02.100 Накладка. Спецификация ТП 902-2-381.84 4И.480.02.02.001 Балка ТП 902-2-381.84 4И.480.02.03.000 СБ Луч звезды ТП 902-2-381.84 4И.480.02.03.000 Луч звезды. Спецификация ТП 902-2-381.84 4И.480.02.04.000 Стакан. Спецификация ТП 902-2-381.84 4И.480.02.04.000 СБ Стакан ТП 902-2-381.84 4И.480.02.04.001 Гильза ТП 902-2-381.84 4И.480.02.04.002 Основание ТП 902-2-381.84 4И.480.02.04.003 Дно ТП 902-2-381.84 4И.480.02.05.000 СБ Тележка балансирная ТП 902-2-381.84 4И.480.02.05.000 Тележка балансирная. Спецификация. Лист 1-2 ТП 902-2-381.84 4И.480.02.05.100 Обойма. Спецификация ТП 902-2-381.84 4И.480.02.05.10 Накладка ТП 902-2-381.84 4И.480.02.05.100 СБ Обойма ТП 902-2-381.84 4И.480.02.05.101 Щека ТП 902-2-381.84 4И.480.02.05.101-01 Щека ТП 902-2-381.84 4И.480.02.05.103 Ребро ТП 902-2-381.84 4И.480.02.05.001 Ролик ТП 902-2-381.84 4И.480.02.05.002 Ось ТП 902-2-381.84 4И.480.02.05.003 Оседержатель ТП 902-2-381.84 4И.480.02.05.004 Втулка ТП 902-2-381.84 4И.480.02.05.005 Прокладка ТП 902-2-381.84 4И.480.02.05.006 Втулка ТП 902-2-381.84 4И.480.02.06.000 Кронштейн домкрата ТП 902-2-381.84 4И.480.02.06.001 Гайка ТП 902-2-381.84 4И.480.02.06.002 Ребро ТП 902-2-381.84 4И.480.02.00.001 Домкрат ТП 902-2-381.84 4И.480.02.00.002 Швеллер ТП 902-2-381.84 4И.480.02.00.003 Прокладка ТП 902-2-381.84 4И.480.02.00.004 Ось ТП 902-2-381.84 4И.480.02.00.005 Оседержатель ТП 902-2-381.84 4И.480.02.00.006 Втулка ТП 902-2-381.84 4И.480.02.00.007 Угольник ТП 902-2-381.84 4И.480.02.00.008 Прокладка ТП 902-2-381.84 4И.480.03.00.000 СБ Привод. Лист 1 ТП 902-2-381.84 4И.480.03.00.000 СБ Привод. Лист 2 ТП 902-2-381.84 4И.480.03.00.000 СБ Привод. Лист 3 ТП 902-2-381.84 4И.480.03.00.000 Привод. Спецификация. Лист 1-4 ТП 902-2-381.84 4И.480.03.01.000 СБ Вал в сборе ТП 902-2-381.84 4И.480.03.01.000 Вал в сборе. Спецификация. Лист 1-2 ТП 902-2-381.84 4И.480.03.01.100 Траверса. Спецификация ТП 902-2-381.84 4И.480.03.01.101 Полоса верхняя ТП 902-2-381.84 4И.480.03.01.000 СБ Траверса ТП 902-2-381.84 4И.480.03.01.102 Стенка ТП 902-2-381.84 4И.480.03.01.103 Полоса нижняя ТП 902-2-381.84 4И.480.03.01.104 Обойма ТП 902-2-381.84 4И.480.03.01.001 Втулка ТП 902-2-381.84 4И.480.03.01.002 Колесо зубчатое ТП 902-2-381.84 4И.480.03.01.003 Крышка подшипника ТП 902-2-381.84 4И.480.03.01.004 Вал ТП 902-2-381.84 4И.480.03.01.005 Кольцо дистанционное ТП 902-2-381.84 4И.480.03.01.006 Прокладка ТП 902-2-381.84 4И.480.03.01.007 Кольцо уплотнительное ТП 902-2-381.84 4И.480.03.01.008 Кольцо ТП 902-2-381.84 4И.480.03.01.009 Крышка подшипника ТП 902-2-381.84 4И.480.03.01.011 Крышка подшипника ТП 902-2-381.84 4И.480.03.002.000 Рама. Спецификация. Лист 1-2 ТП 902-2-381.84 4И.480.03.02.000 СБ Рама. Лист 1 ТП 902-2-381.84 4И.480.03.02.000 СБ Рама. Лист 2 ТП 902-2-381.84 4И.480.03.02.000 СБ Рама. Лист 3 ТП 902-2-381.84 4И.480.03.02.001 Накладка ТП 902-2-381.84 4И.480.03.02.001-01 Накладка ТП 902-2-381.84 4И.480.03.02.001-02 Накладка ТП 902-2-381.84 4И.480.03.02.002 Швеллер ТП 902-2-381.84 4И.480.03.02.002-01 Швеллер ТП 902-2-381.84 4И.480.03.02.003 Ребро ТП 902-2-381.84 4И.480.03.02.004 Лапа ТП 902-2-381.84 4И.480.03.03.000 СБ Кронштейн ТП 902-2-381.84 4И.480.03.03.000 Кронштейн. Спецификация ТП 902-2-381.84 4И.480.03.03.001 Фланец ТП 902-2-381.84 4И.480.03.03.002 Ребро ТП 902-2-381.84 4И.480.03.03.003 Основание ТП 902-2-381.84 4И.480.03.04.000 СБ Колесо ТП 902-2-381.84 4И.480.03.04.000 Колесо. Спецификация ТП 902-2-381.84 4И.480.03.04.001 Диск ТП 902-2-381.84 4И.480.03.00.001 Шестерня сменная ТП 902-2-381.84 4И.480.03.00.002 Шестерня сменная ТП 902-2-381.84 4И.480.03.00.003 Шестерня сменная ТП 902-2-381.84 4И.480.03.00.004 Колесо зубчатое сменное ТП 902-2-381.84 4И.480.03.00.005 Колесо зубчатое сменное ТП 902-2-381.84 4И.480.03.00.006 Колесо зубчатое сменное ТП 902-2-381.84 4И.480.03.00.007 Втулка ТП 902-2-381.84 4И.480.03.00.008 Прокладка ТП 902-2-381.84 4И.480.03.00.008-01 Прокладка ТП 902-2-381.84 4И.480.03.00.009 Шестерня ТП 902-2-381.84 4И.480.03.00.011 Стакан ТП 902-2-381.84 4И.480.03.00.011-01 Стакан ТП 902-2-381.84 4И.480.03.00.012 Вал ТП 902-2-381.84 4И.480.03.00.013 Ступица ТП 902-2-381.84 4И.480.03.00.014 Палец ТП 902-2-381.84 4И.480.03.00.015 Шайба глухая ТП 902-2-381.84 4И.480.03.00.015-01 Шайба глухая ТП 902-2-381.84 4И.480.03.00.016 Шайба стопорная |
| Разработан: | МосводоканалНИИпроект |
| Утверждён: | 20.12.1983 МосводоканалНИИпроект (312) |














































































