Скачать Типовой проект 902-2-381.84 Альбом VII. Нестандартизированное оборудование. Затворы щитовые, установка сигнализатора уровня осадка и фасонные частиДата актуализации: 01.01.2021
|
| Обозначение: | Типовой проект 902-2-381.84 |
| Обозначение англ: | 902-2-381.84 |
| Статус: | не действует |
| Название рус.: | Альбом VII. Нестандартизированное оборудование. Затворы щитовые, установка сигнализатора уровня осадка и фасонные части |
| Дата добавления в базу: | 01.09.2013 |
| Дата актуализации: | 01.01.2021 |
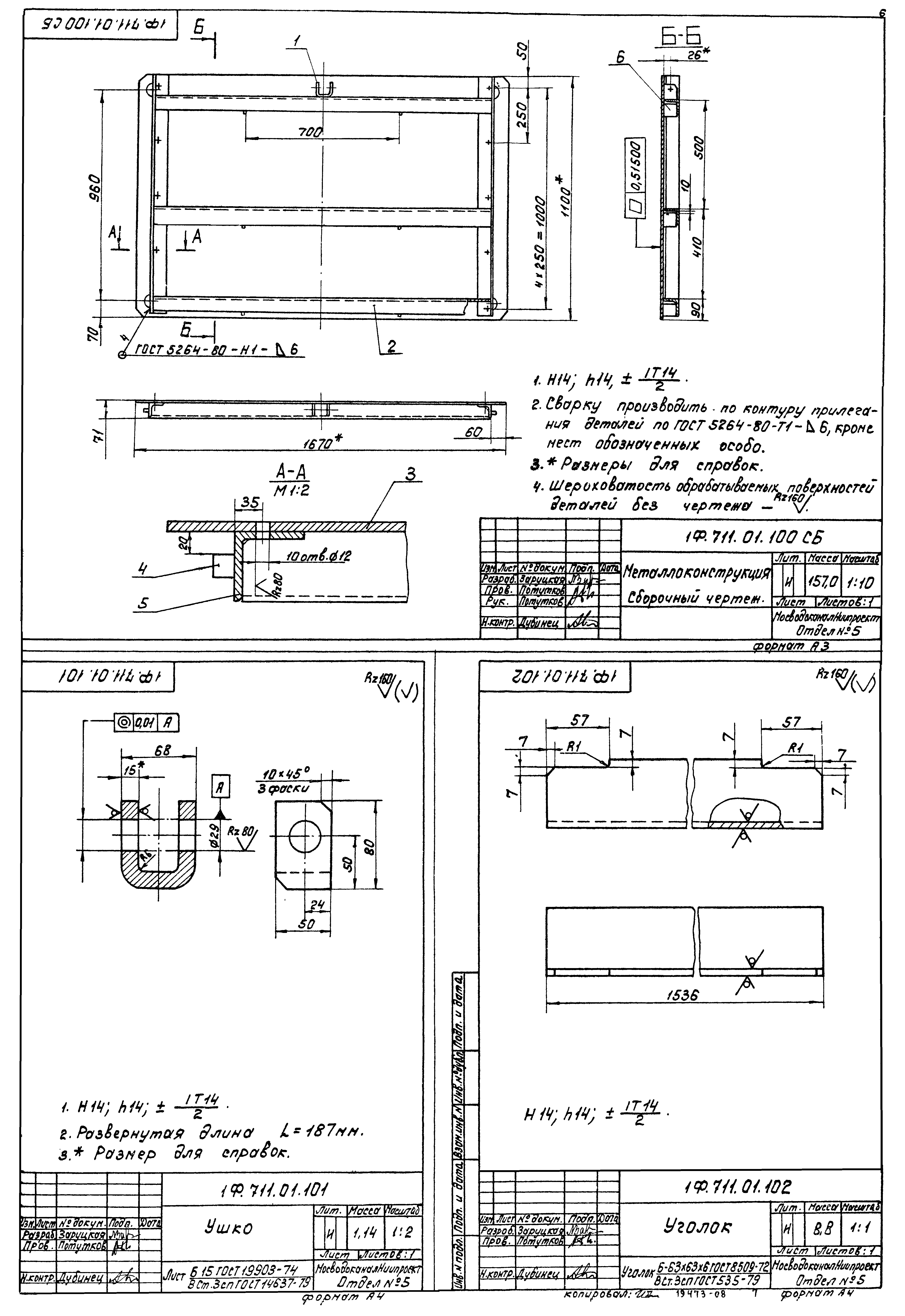
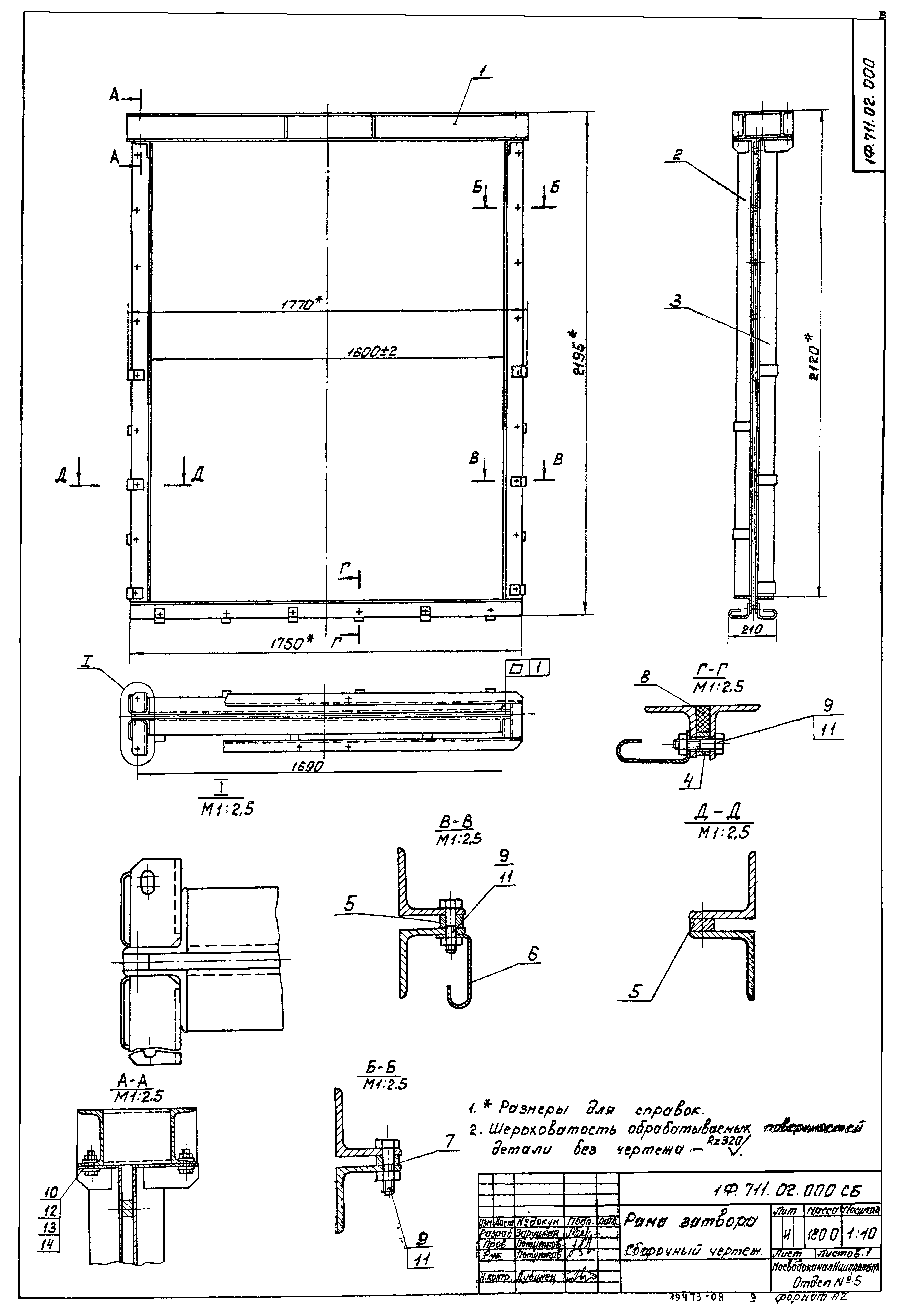
| Оглавление: | ТП 902-2-381.84 Титульный лист ТП 902-2-381.84 Содержание альбома ТП 902-2-381.84 1Ф.711.00.000 МЧ Затвор поверхностный 1600х1100. Лист 1-2 ТП 902-2-381.84 1Ф.711.00.000 Затвор поверхностный 1600х1100. Спецификация. Лист 1-3 ТП 902-2-381.84 1Ф.711.01.000 СБ Щит в сборе ТП 902-2-381.84 1Ф.711.01.000 Щит в сборе. Спецификация ТП 902-2-381.84 1Ф.711.01.000 Металлоконструкция. Спецификация ТП 902-2-381.84 1Ф.711.01.100 СБ Металлоконструкция ТП 902-2-381.84 1Ф.711.01.101 Ушко ТП 902-2-381.84 1Ф.711.01.102 Уголок ТП 902-2-381.84 1Ф.711.01.103 Лист ТП 902-2-381.84 1Ф.711.01.104 Упор ТП 902-2-381.84 1Ф.711.01.001 Накладка ТП 902-2-381.84 1Ф.711.01.002 Уплотнение ТП 902-2-381.84 1Ф.711.02.000 СБ Рана затвора ТП 902-2-381.84 1Ф.711.02.000 Рана затвора. Спецификация. Лист 1-2 ТП 902-2-381.84 1Ф.711.02.100 СБ Рама верхняя ТП 902-2-381.84 1Ф.711.02.100 Рама верхняя. Спецификация ТП 902-2-381.84 1Ф.711.02.101 Ребро ТП 902-2-381.84 1Ф.711.02.200 СБ Рама ТП 902-2-381.84 1Ф.711.02.200-01 СБ Рама ТП 902-2-381.84 1Ф.711.02.200 Рама. Спецификация. Лист 1-2 ТП 902-2-381.84 1Ф.711.02.203 Кронштейн ТП 902-2-381.84 1Ф.711.02.203-01 Кронштейн ТП 902-2-381.84 1Ф.711.02.204 Кронштейн ТП 902-2-381.84 1Ф.711.02.204-01 Кронштейн ТП 902-2-381.84 1Ф.711.02.001 Полоса ТП 902-2-381.84 1Ф.711.02.002 Полоса ТП 902-2-381.84 1Ф.711.02.003 Анкер ТП 902-2-381.84 1Ф.711.02.004 Втулка ТП 902-2-381.84 1Ф.711.03.000 СБ Маховик в сборе ТП 902-2-381.84 1Ф.711.03.000 Маховик в сборе. Спецификация ТП 902-2-381.84 1Ф.711.03.002 Ручка ТП 902-2-381.84 1Ф.711.03.001 Маховик ТП 902-2-381.84 1Ф.711.04.000 СБ Колпак ТП 902-2-381.84 1Ф.711.04.000 Колпак. Спецификация ТП 902-2-381.84 1Ф.711.04.001 Фланец ТП 902-2-381.84 1Ф.711.05.000 Головка штанговая. Спецификация. Лист 1-2 ТП 902-2-381.84 1Ф.711.05.001 Втулка ТП 902-2-381.84 1Ф.711.05.000 СБ Головка штанговая ТП 902-2-381.84 1Ф.711.05.002 Крышка ТП 902-2-381.84 1Ф.711.05.003 Кронштейн ТП 902-2-381.84 1Ф.711.05.004 Вал ТП 902-2-381.84 1Ф.711.05.005 Шестерня коническая ТП 902-2-381.84 1Ф.711.05.006 Кольцо сферическое ТП 902-2-381.84 1Ф.711.05.007 Гайка ТП 902-2-381.84 1Ф.711.05.009 Кольцо сферическое ТП 902-2-381.84 1Ф.711.05.011 Колесо коническое ТП 902-2-381.84 1Ф.711.05.008 Корпус ТП 902-2-381.84 1Ф.711.05.012 Втулка ТП 902-2-381.84 1Ф.711.05.013 Планка стопорная ТП 902-2-381.84 1Ф.711.05.014 Шайба ТП 902-2-381.84 1Ф.711.05.015 Втулка ТП 902-2-381.84 1Ф.711.00.001 Прокладка ТП 902-2-381.84 1Ф.711.00.002 Палец ТП 902-2-381.84 1Ф.711.00.003 Шпиндель ТП 902-2-381.84 1Ф.711.00.004 Ограждение ТП 902-2-381.84 1Р.82.000 МЧ Установка сигнализатора уровня осадка ТП 902-2-381.84 1Р.82.000 Установка сигнализатора уровня осадка. Спецификация ТП 902-2-381.84 1Р.82.100 СБ Корпус ТП 902-2-381.84 1Р.82.100 Корпус. Спецификация ТП 902-2-381.84 1Р.82.101 Труба ТП 902-2-381.84 1Р.82.102 Конус ТП 902-2-381.84 1Р.82.103 Пруток ТП 902-2-381.84 1Р.82.200 СБ Скоба закладная ТП 902-2-381.84 1Р.82.200 Скоба закладная. Спецификация ТП 902-2-381.84 1Р.82.201 Упор ТП 902-2-381.84 1Р.82.202 Шпилька ТП 902-2-381.84 1Р.82.203 Скоба ТП 902-2-381.84 1Р.82.300 СБ Прижим ТП 902-2-381.84 1Р.82.300 Прижим. Спецификация ТП 902-2-381.84 1Р.82.301 Полоса ТП 902-2-381.84 1Р.82.001 Пластина опорная ТП 902-2-381.84 9К.95.000 СБ Люк-лаз Ду600 ТП 902-2-381.84 9К.95.000 Люк-лаз Ду600. Спецификация ТП 902-2-381.84 9К.95.100 Патрубок закладной ТП 902-2-381.84 9К.95.101 Фланец ТП 902-2-381.84 9К.95.001 Заглушка ТП 902-2-381.84 9А.527.00.000 ВП Пробоотборник. Ведомость покупных изделий ТП 902-2-381.84 9А.527.00.000 СБ Пробоотборник ТП 902-2-381.84 9А.527.00.000 Пробоотборник. Спецификация ТП 902-2-381.84 9А.527.01.000 Корпус. Спецификация. Лист 1-2 ТП 902-2-381.84 9А.527.01.002 Лист ТП 902-2-381.84 9А.527.01.000 СБ Корпус ТП 902-2-381.84 9А.527.01.001 Патрубок ТП 902-2-381.84 9А.527.01.003 Лист ТП 902-2-381.84 9К.527.01.004 Лист ТП 902-2-381.84 9К.527.02.000 СБ Крышка откидная ТП 902-2-381.84 9К.527.02.000 Крышка откидная. Спецификация ТП 902-2-381.84 9К.527.02.100 СБ Петля ТП 902-2-381.84 9К.527.02.100 Петля. Спецификация ТП 902-2-381.84 9К.527.02.101 Скоба ТП 902-2-381.84 9К.527.02.102 Скоба ТП 902-2-381.84 9К.527.01.001 Ручка ТП 902-2-381.84 6С.70.34 Патрубок ø2820х10 ТП 902-2-381.84 6С.70.35 Патрубок ø4220х10 |
| Разработан: | МосводоканалНИИпроект |
| Утверждён: | 20.12.1983 МосводоканалНИИпроект (312) |



































