Скачать Типовой проект 902-1-105.86 Альбом 7. Электротехническая часть. Технологический контроль. Связь (из ТП 902-1-104.86)Дата актуализации: 01.01.2021
|
| Обозначение: | Типовой проект 902-1-105.86 |
| Обозначение англ: | 902-1-105.86 |
| Статус: | не определен законодательством |
| Название рус.: | Альбом 7. Электротехническая часть. Технологический контроль. Связь (из ТП 902-1-104.86) |
| Дата добавления в базу: | 01.09.2013 |
| Дата актуализации: | 01.01.2021 |
| Дата введения: | 04.12.1986 |
| Дата окончания срока действия: | 30.06.2003 |
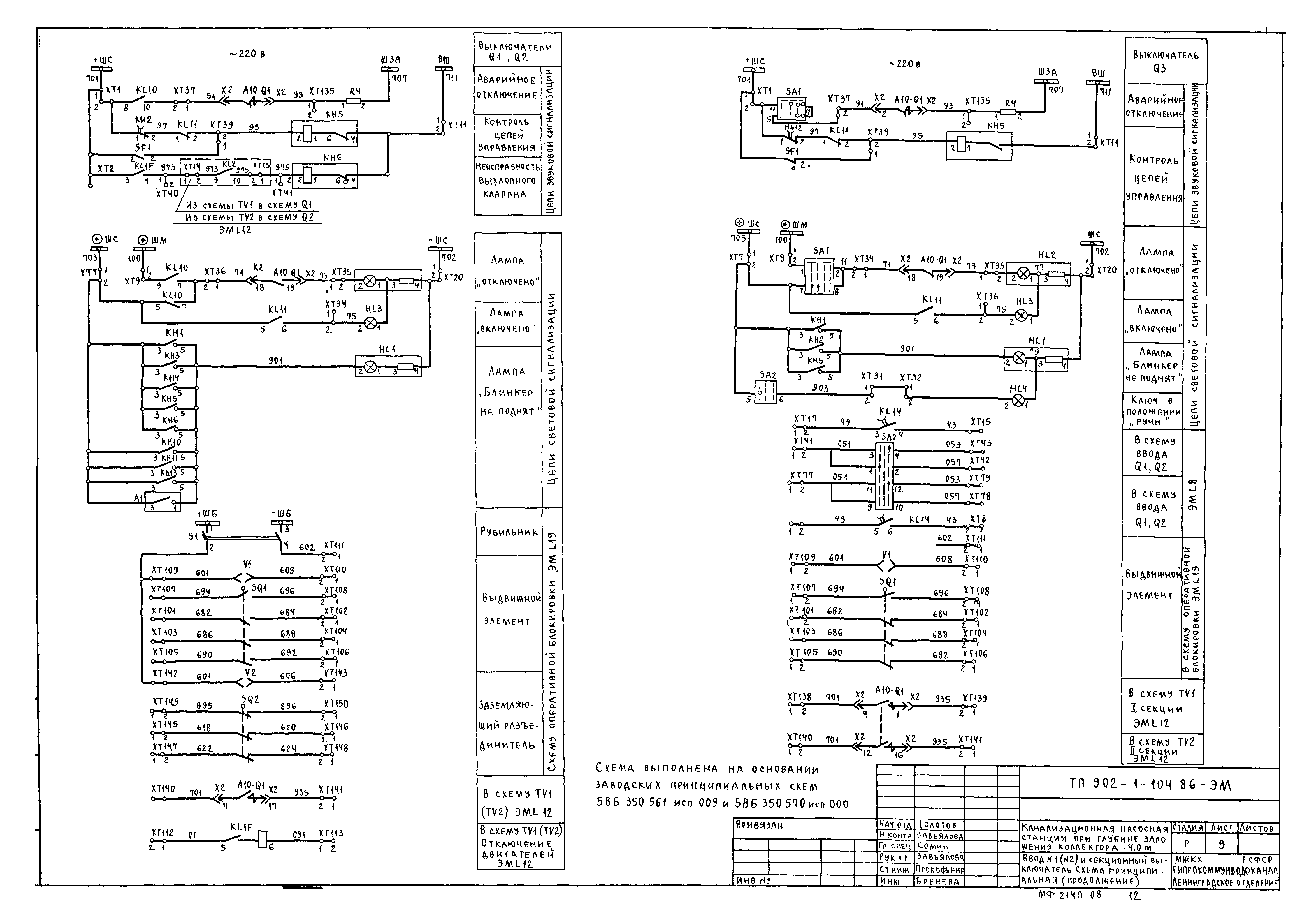
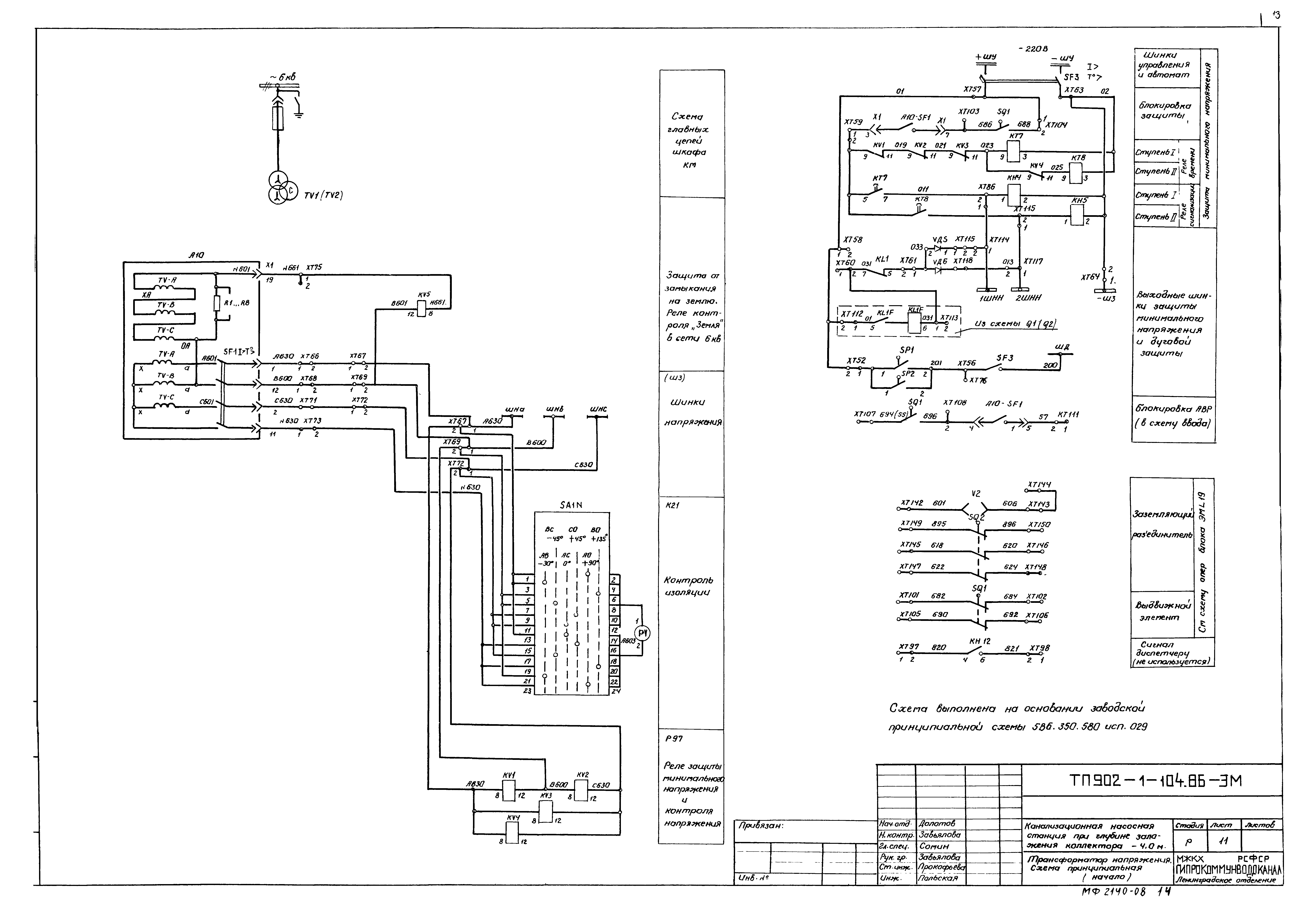
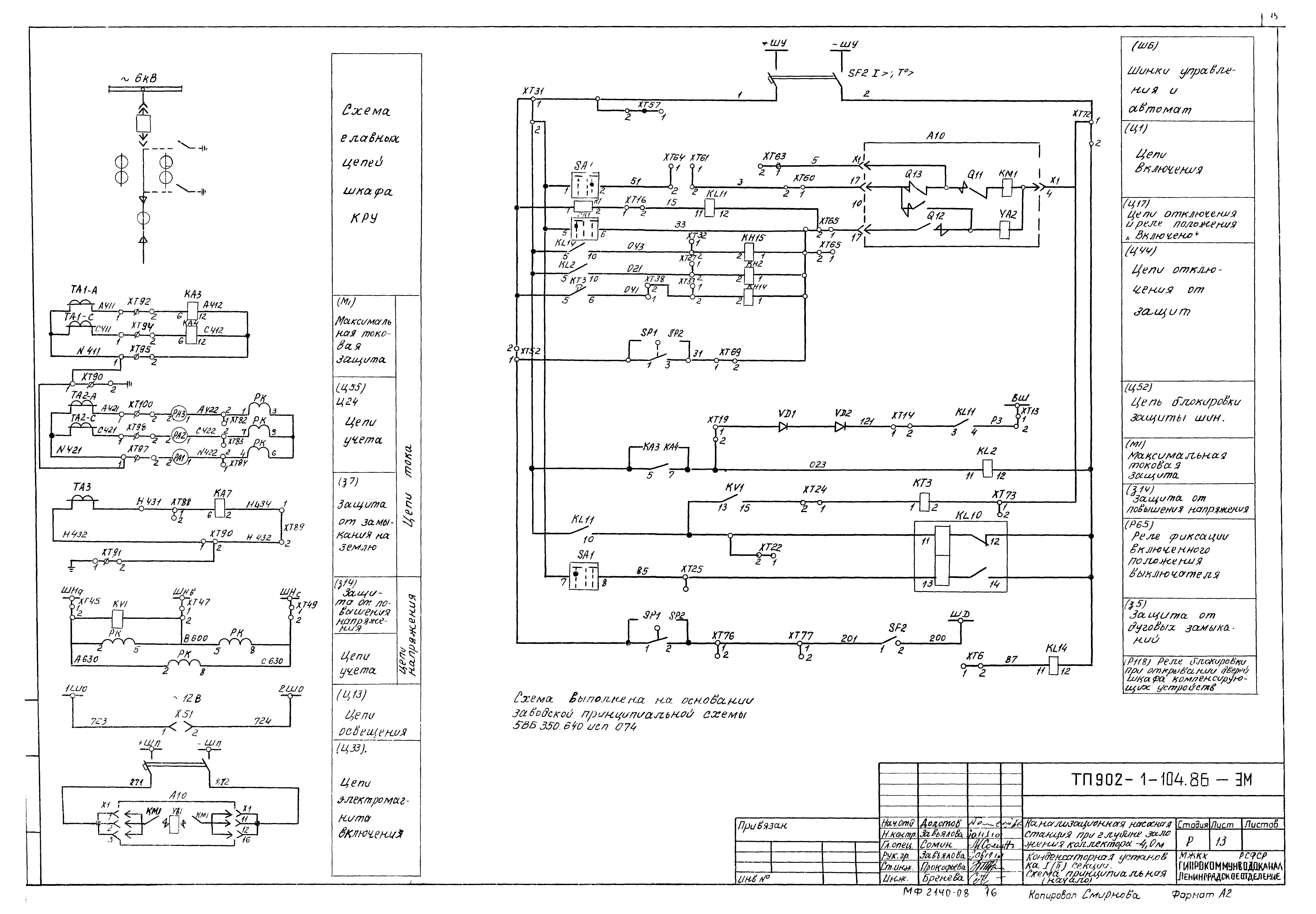
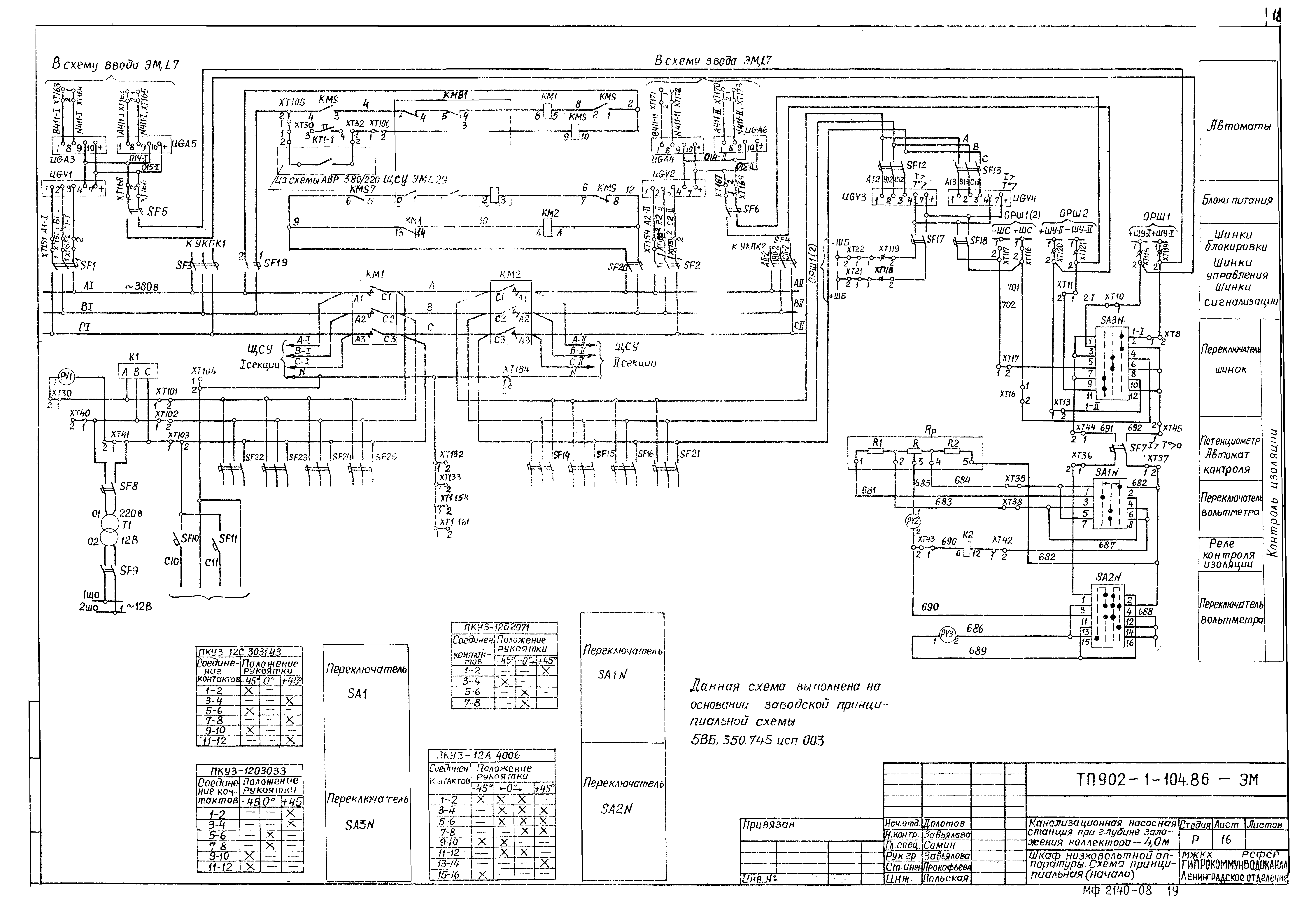
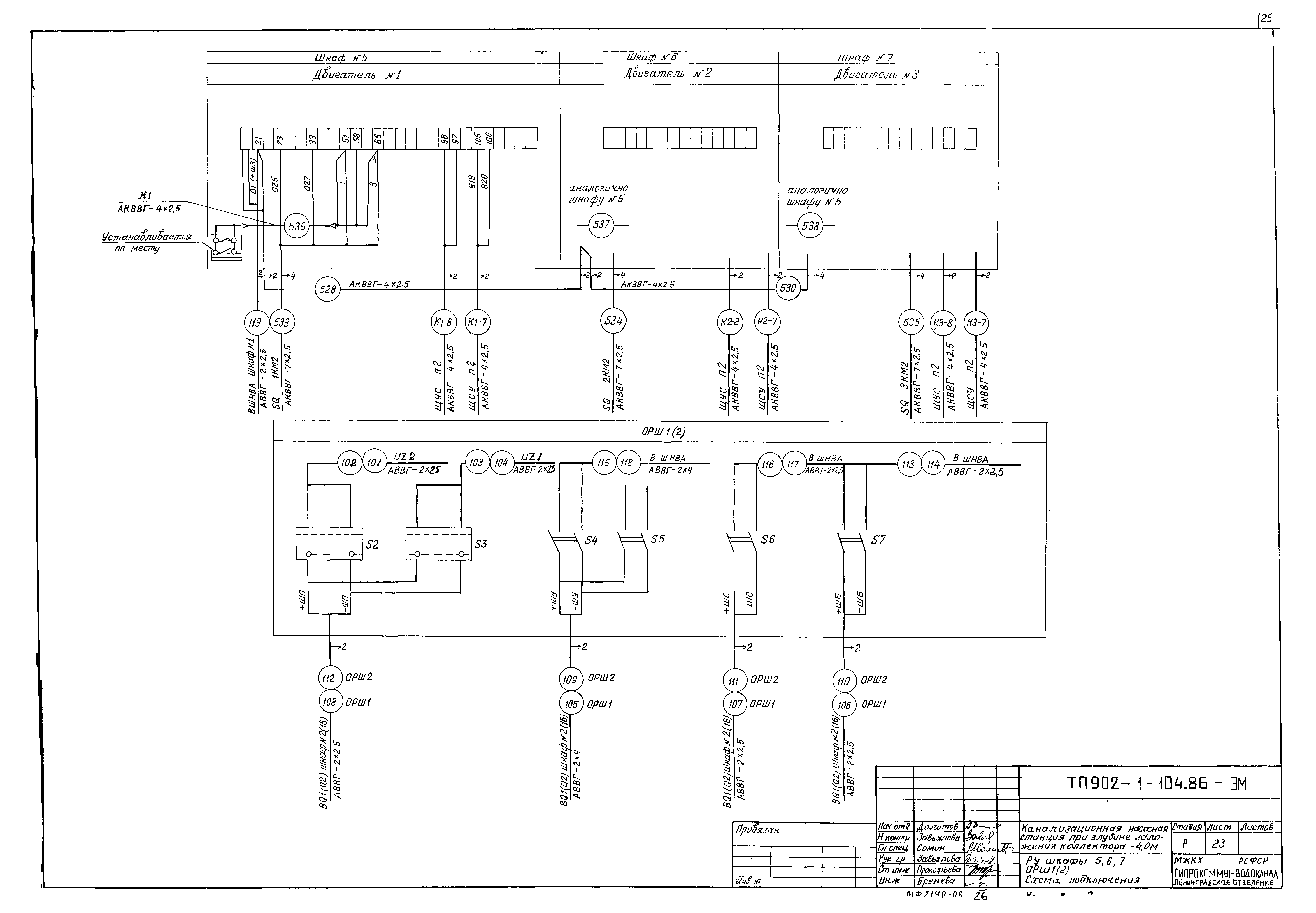
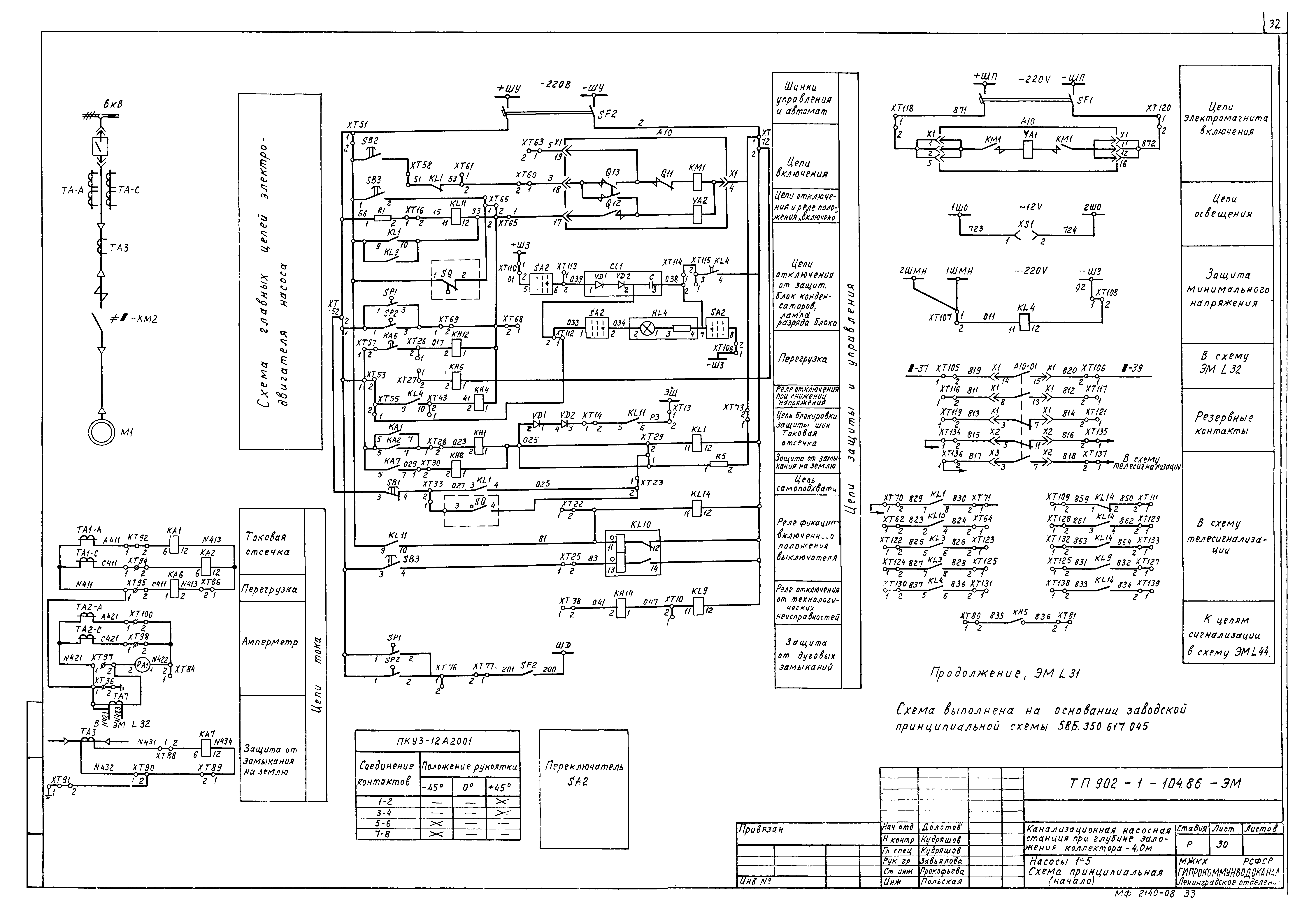
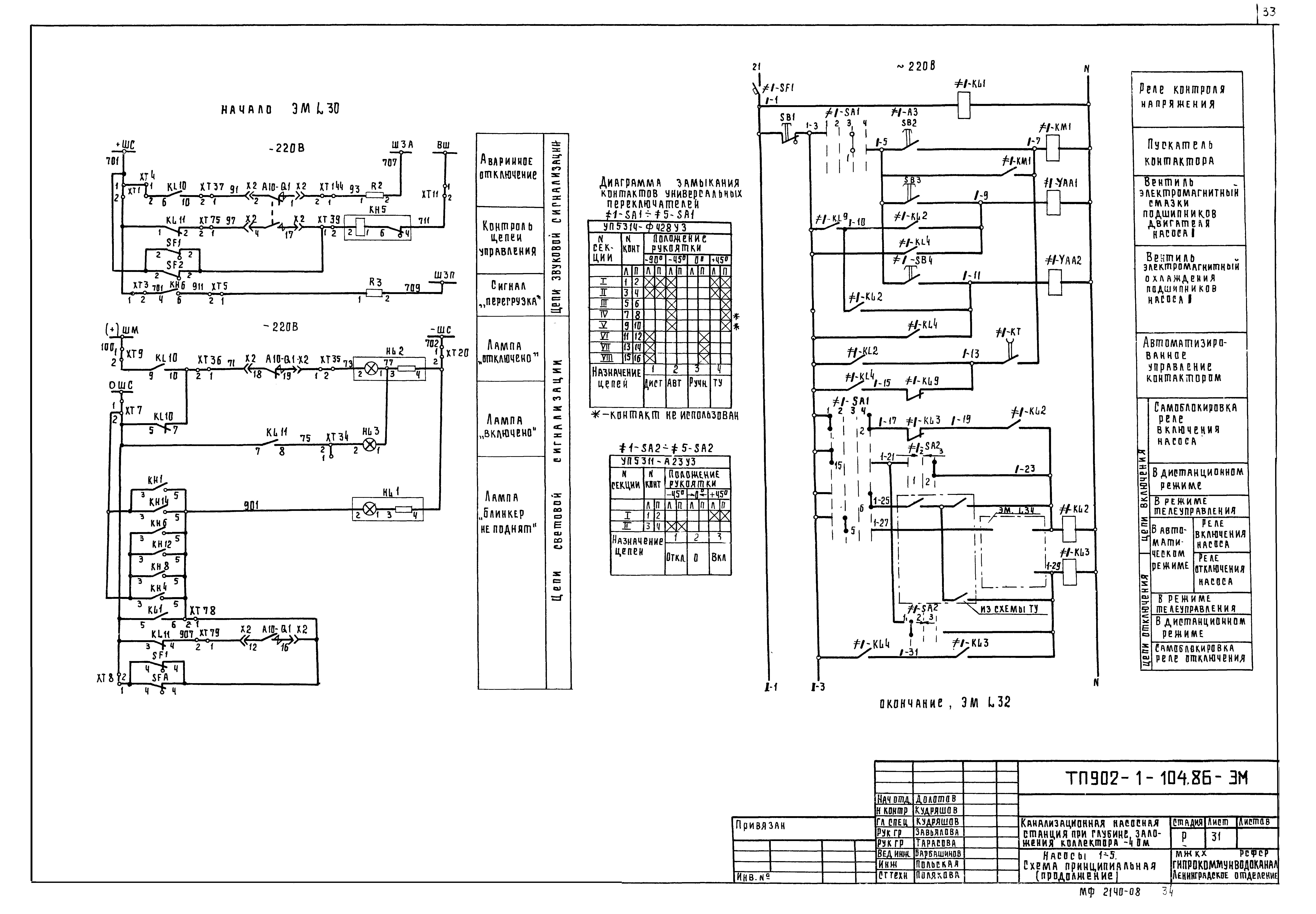
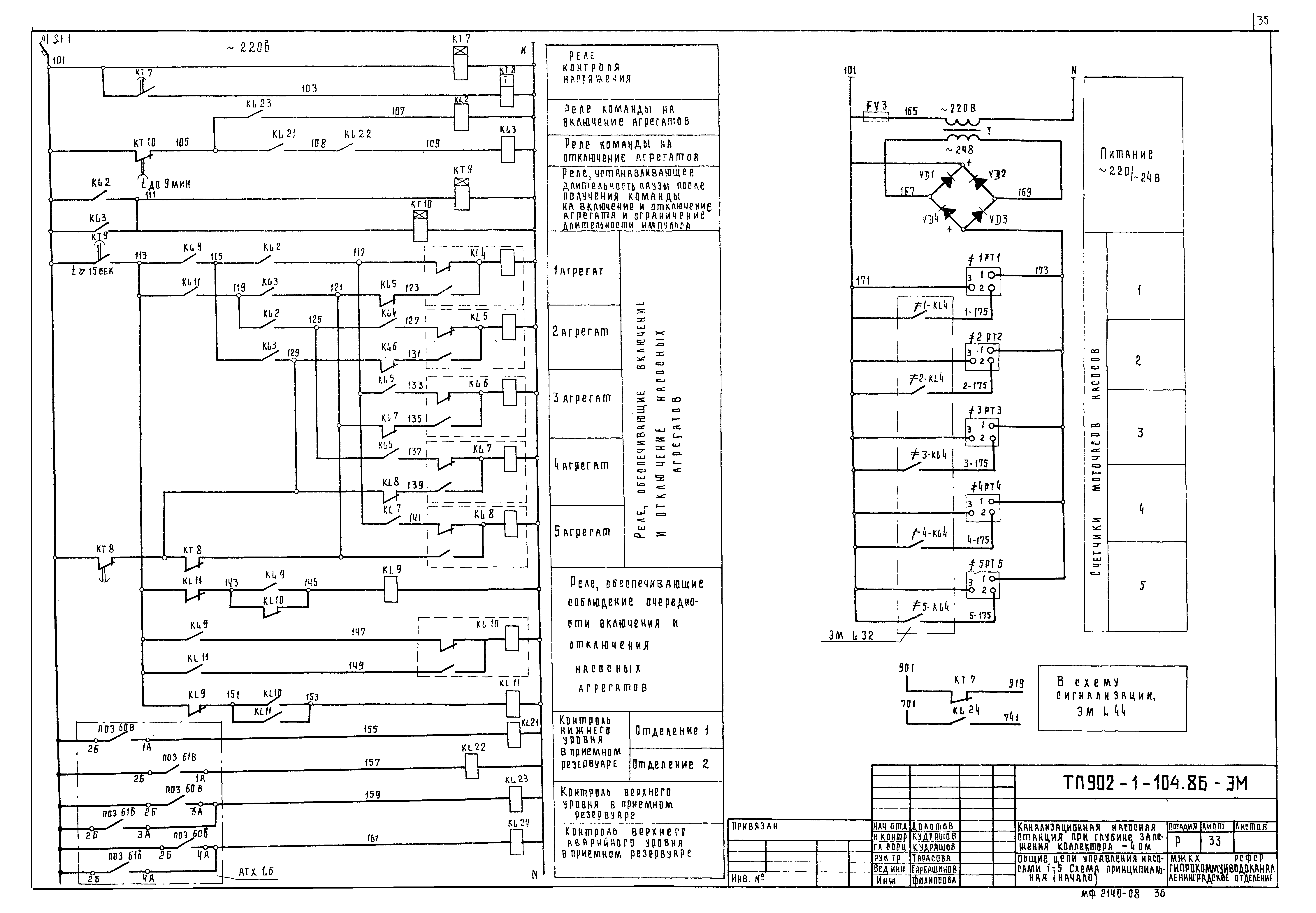
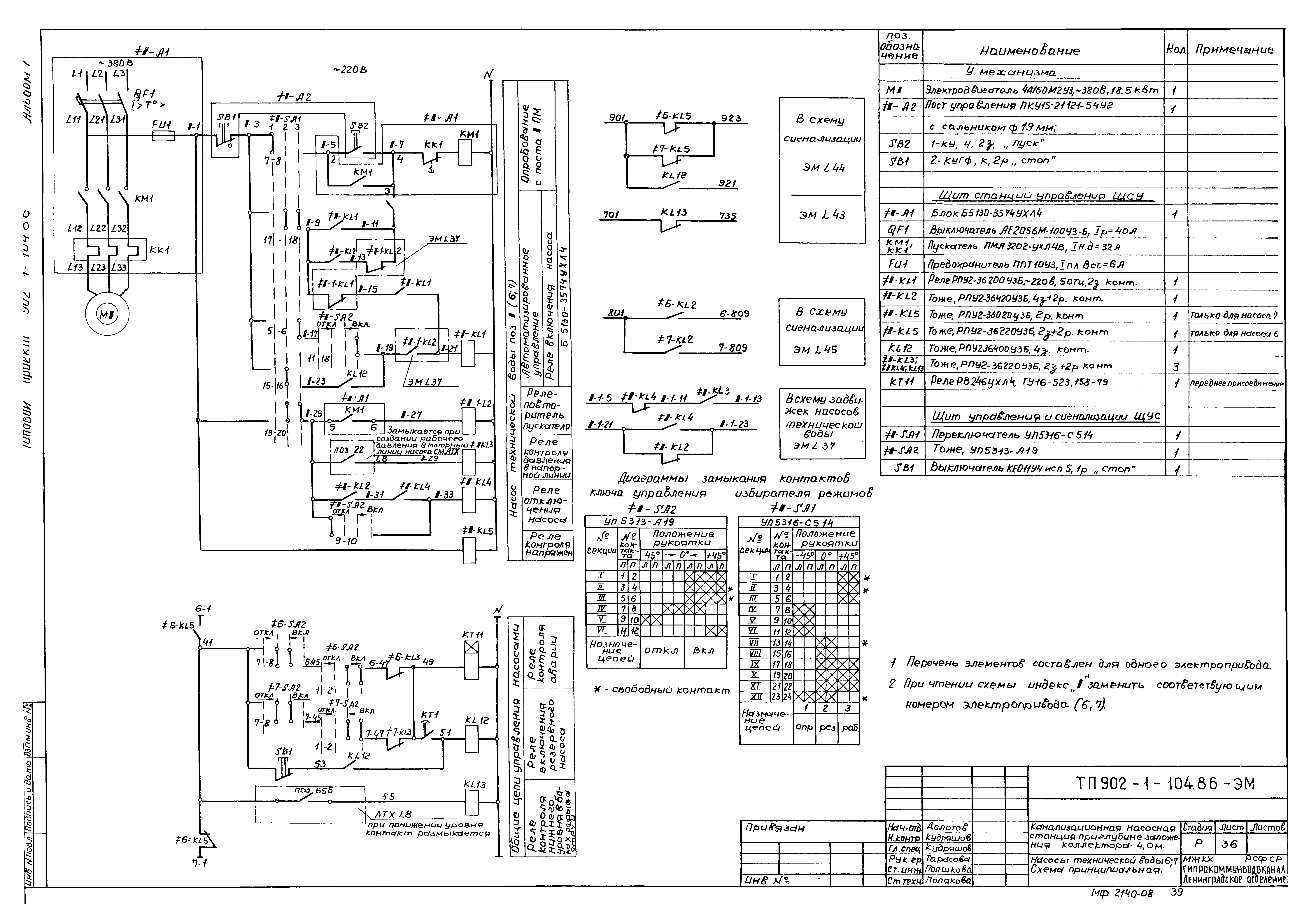
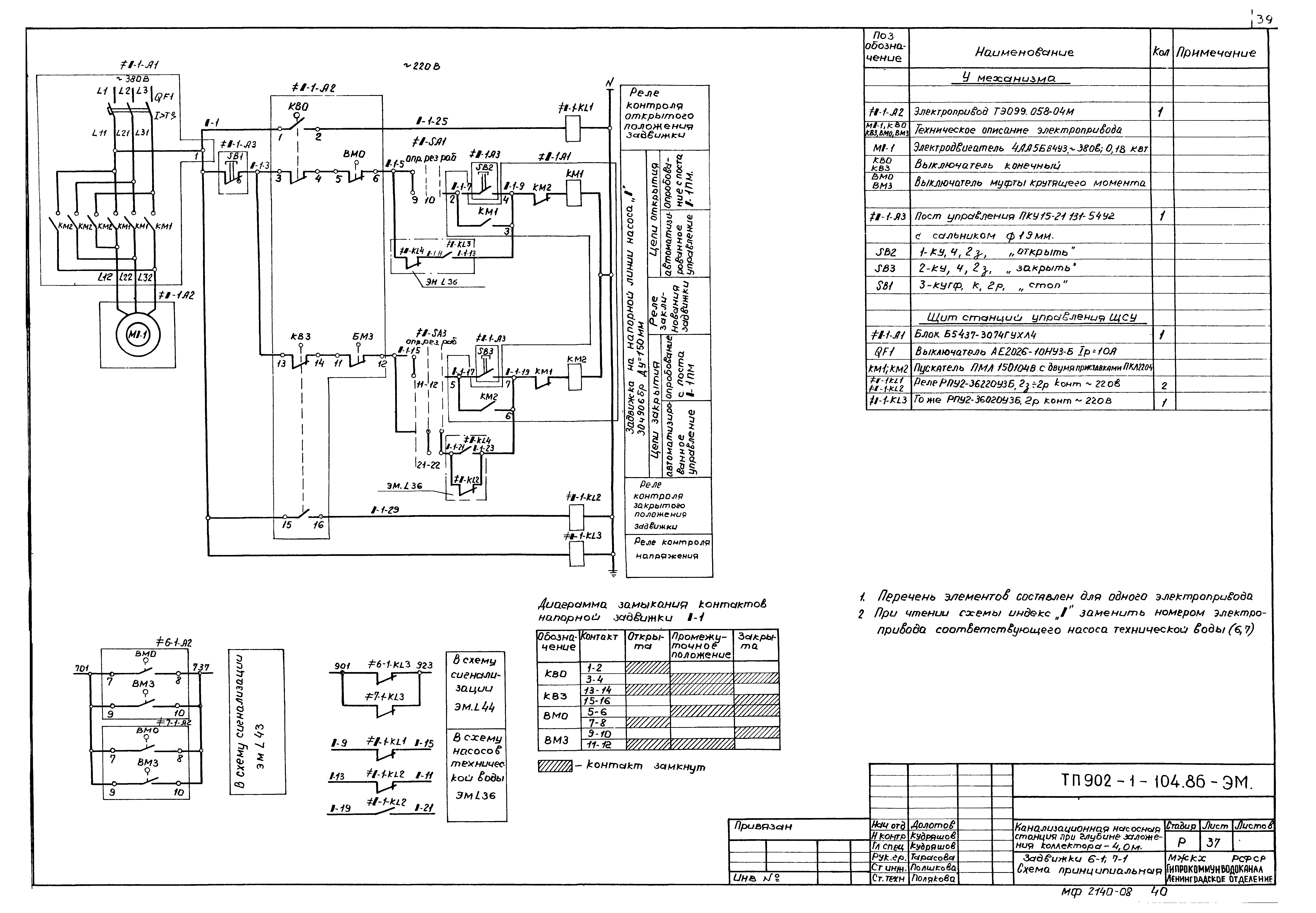
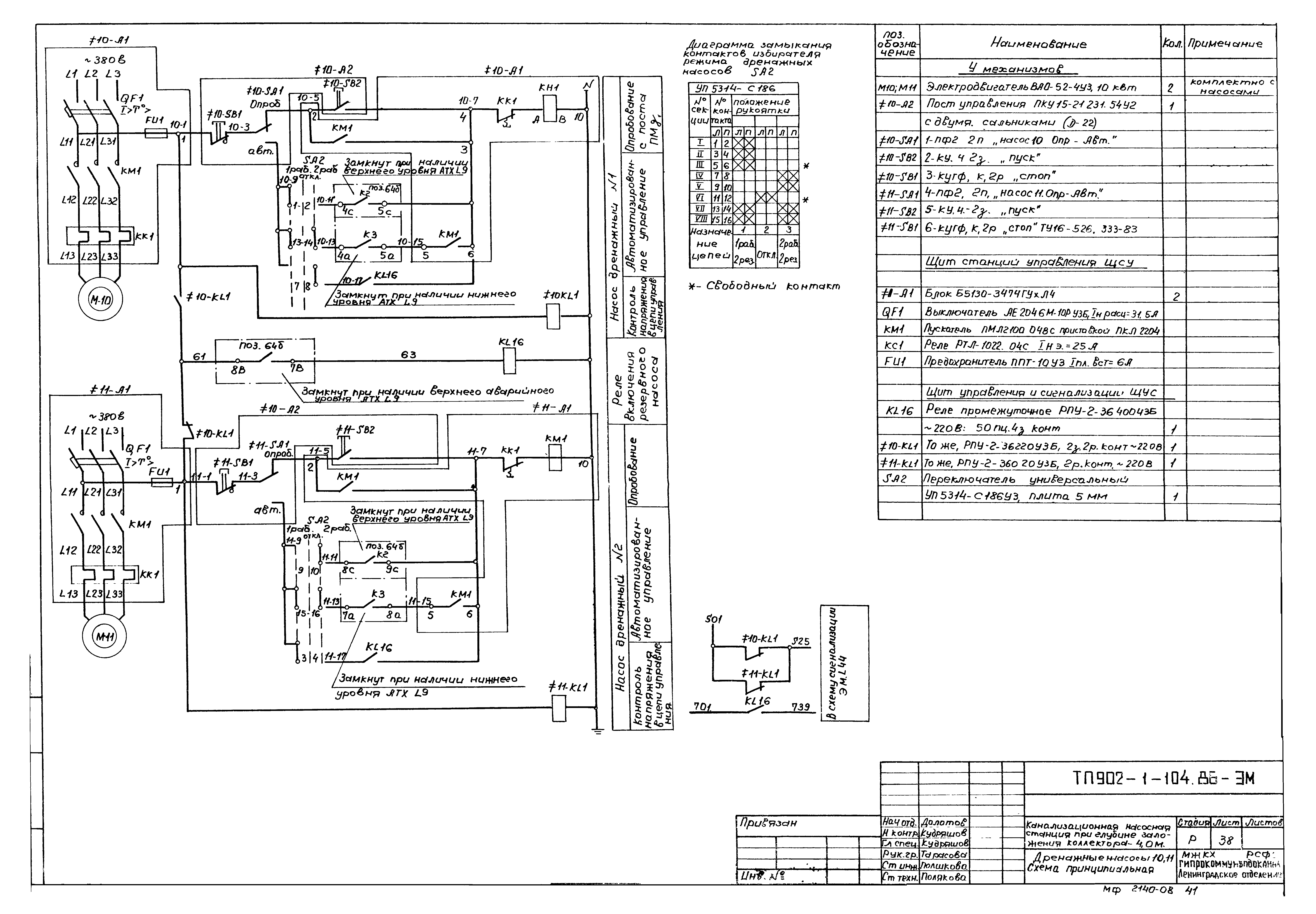
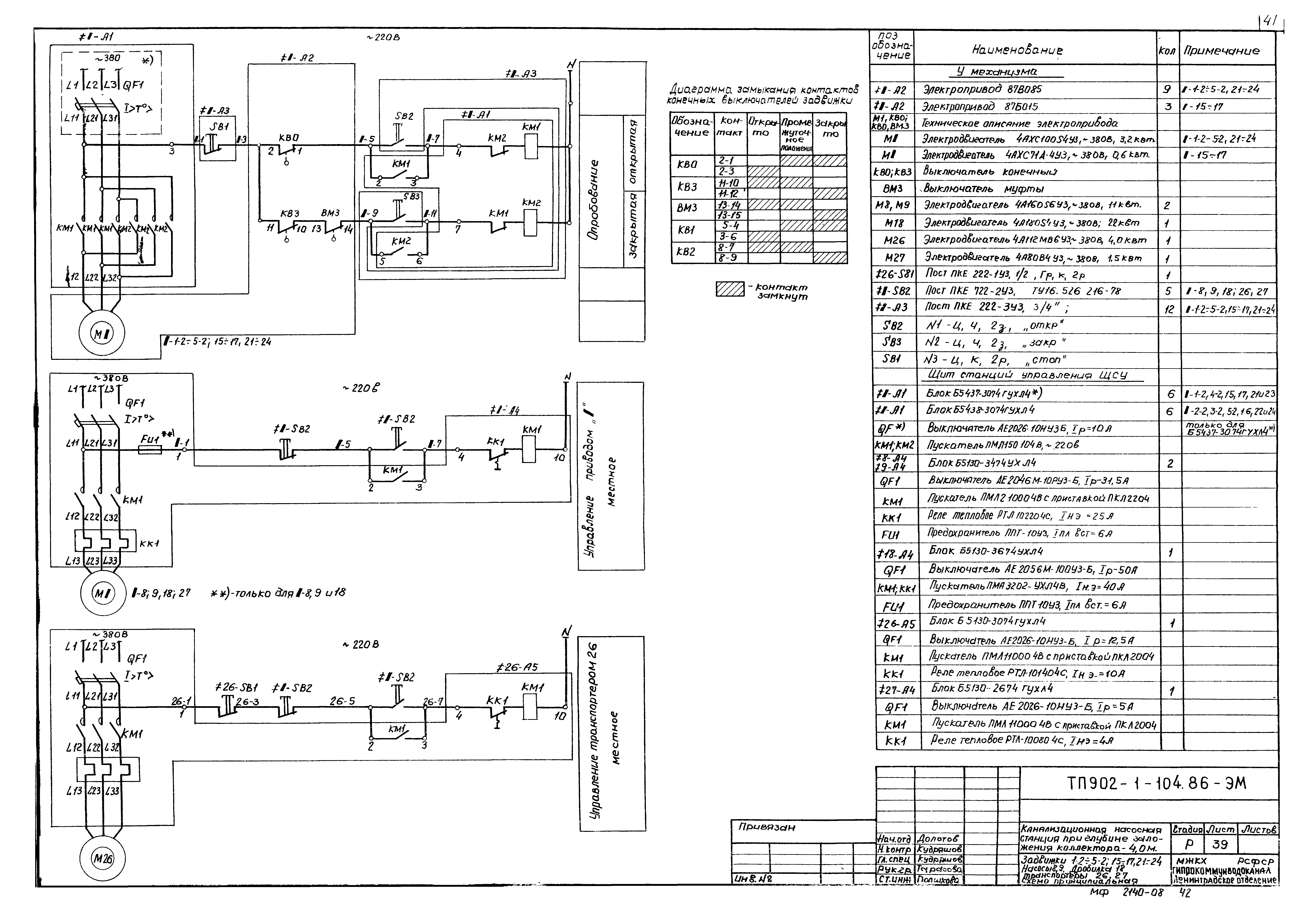
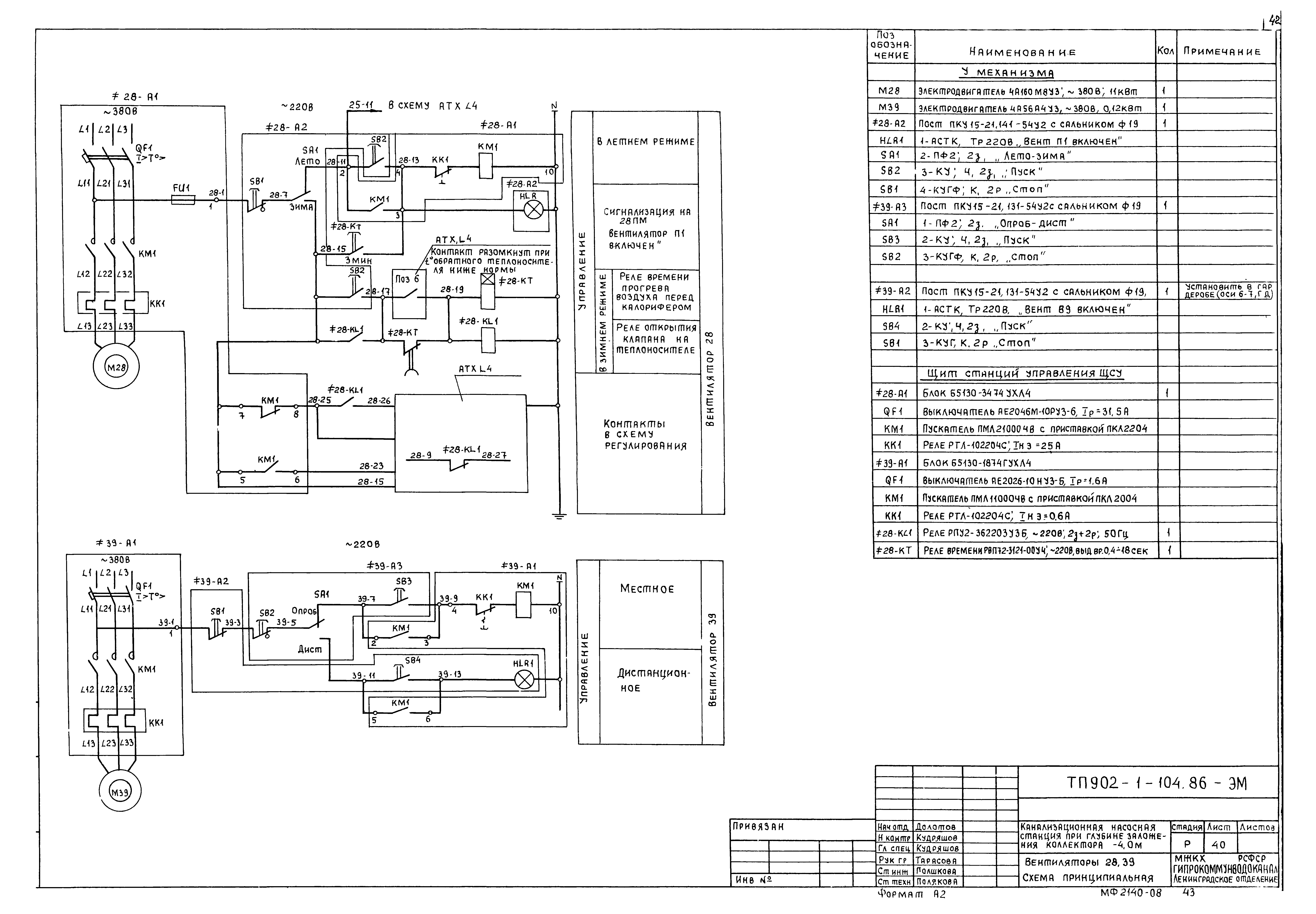
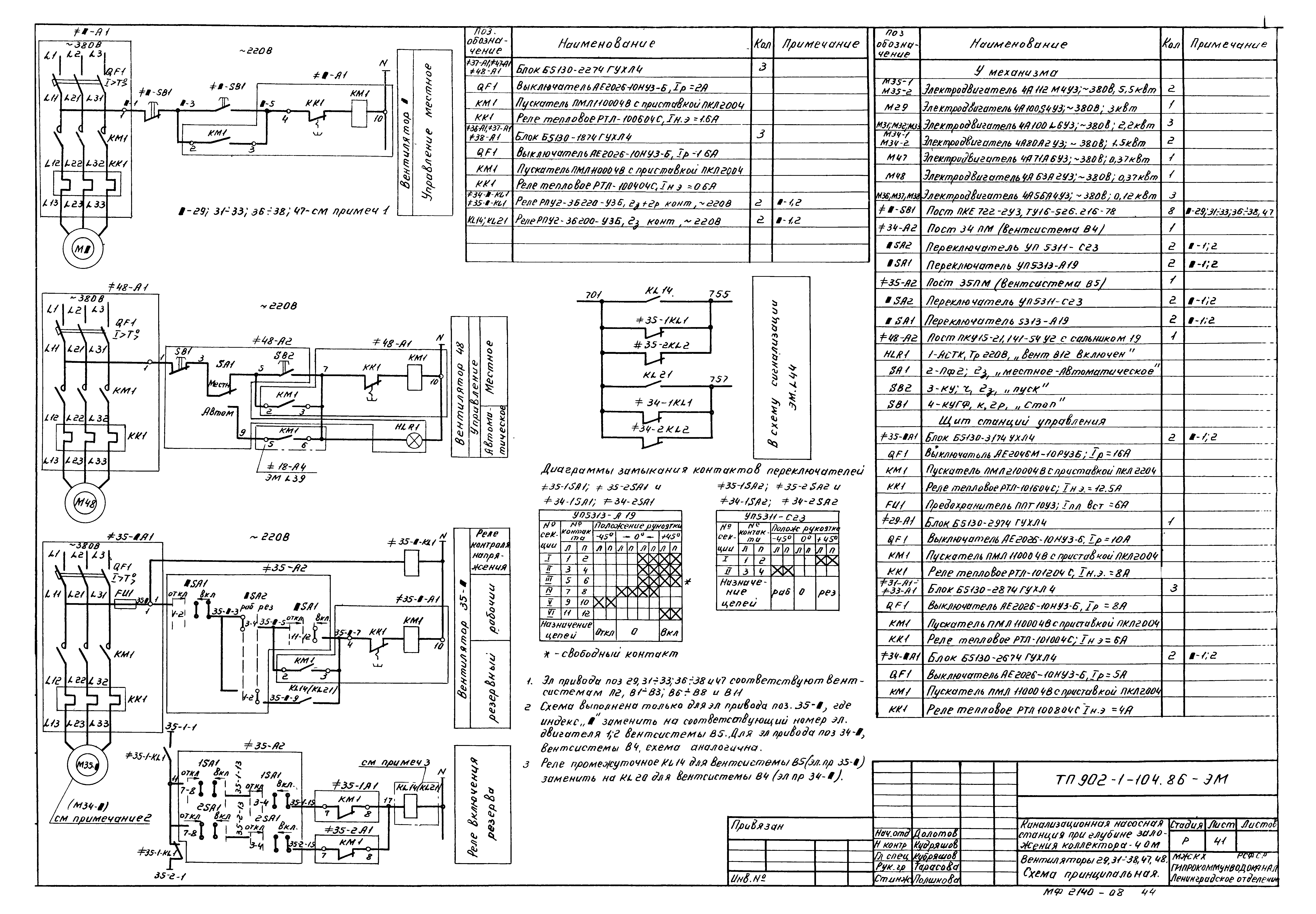
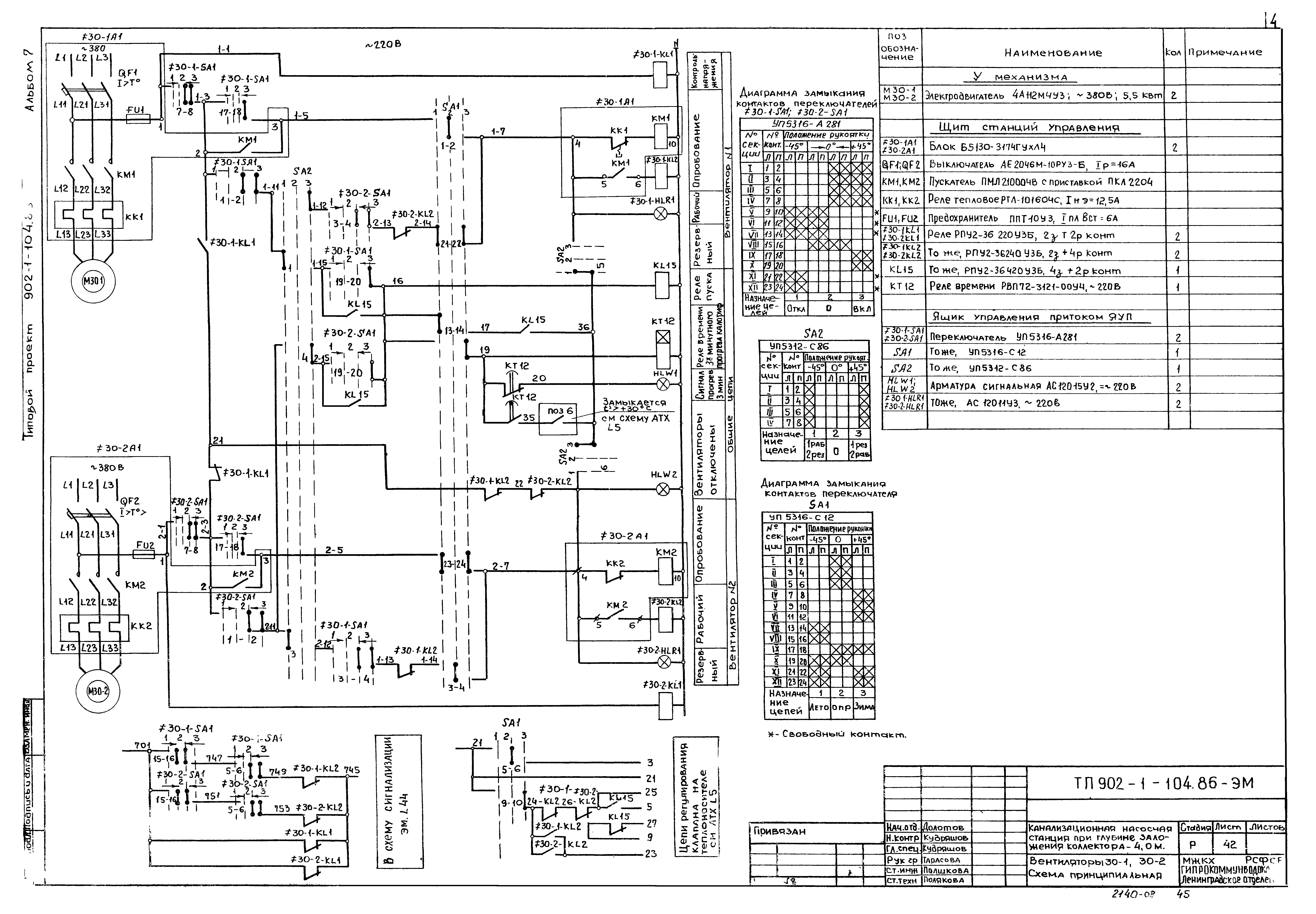
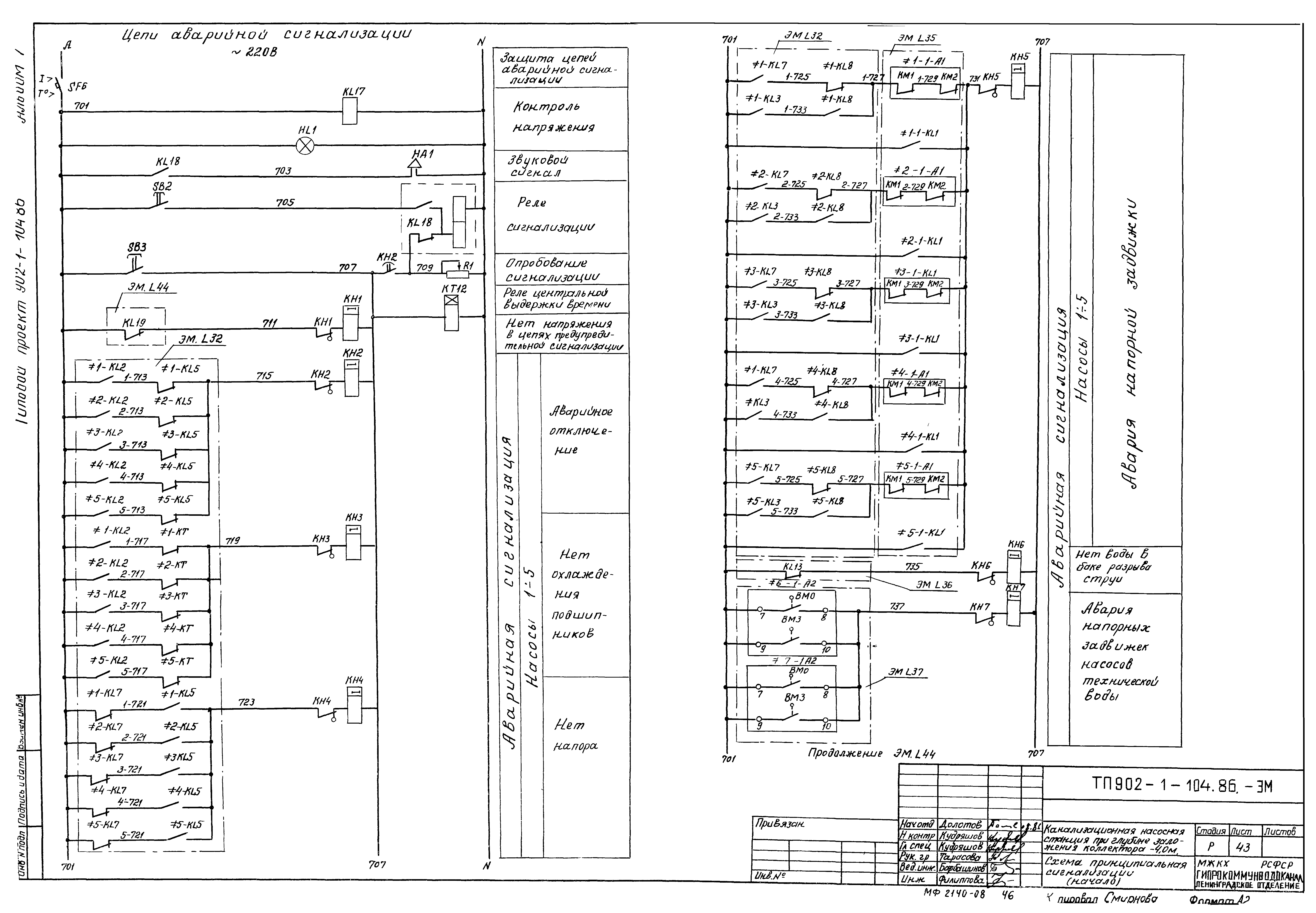
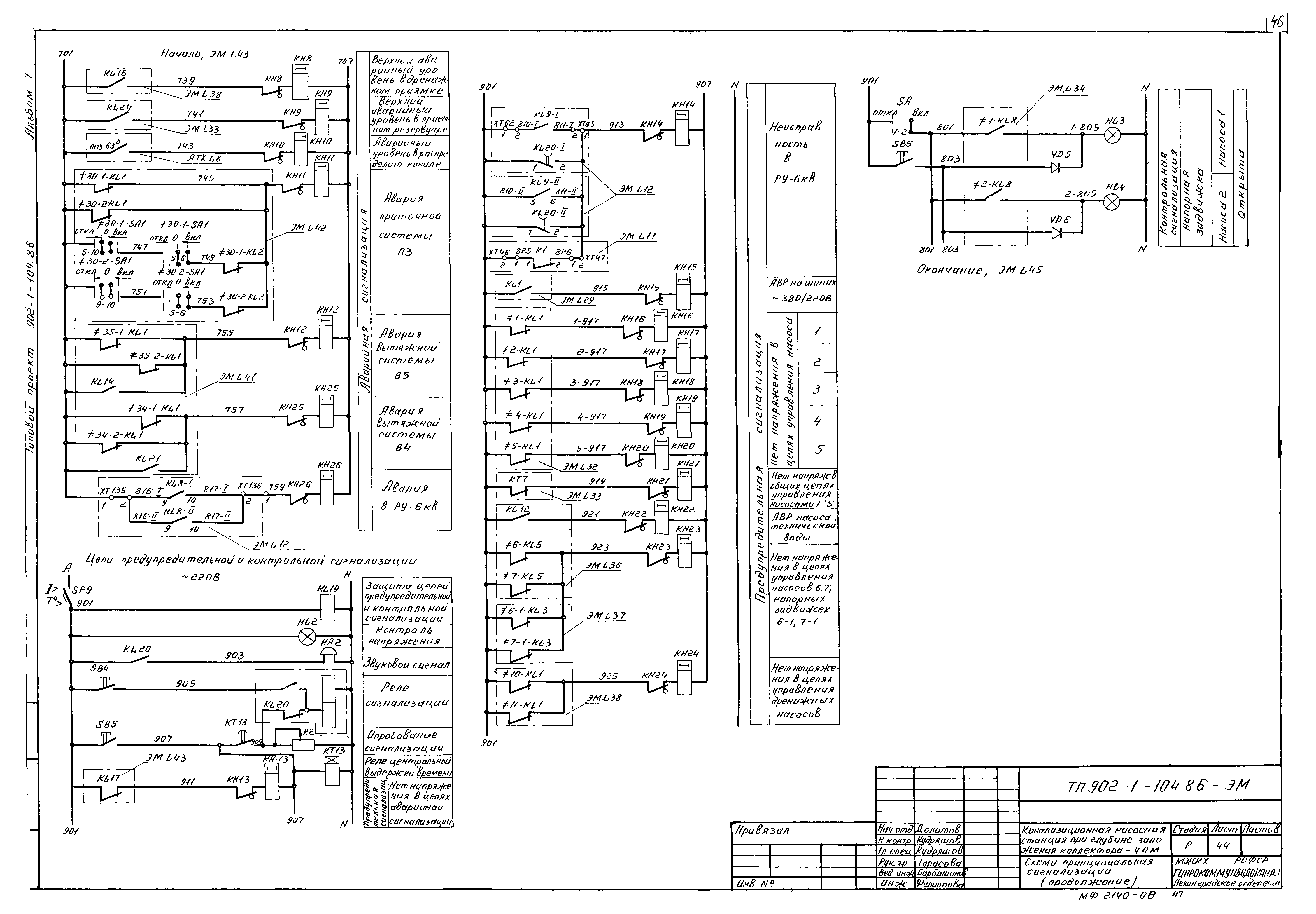
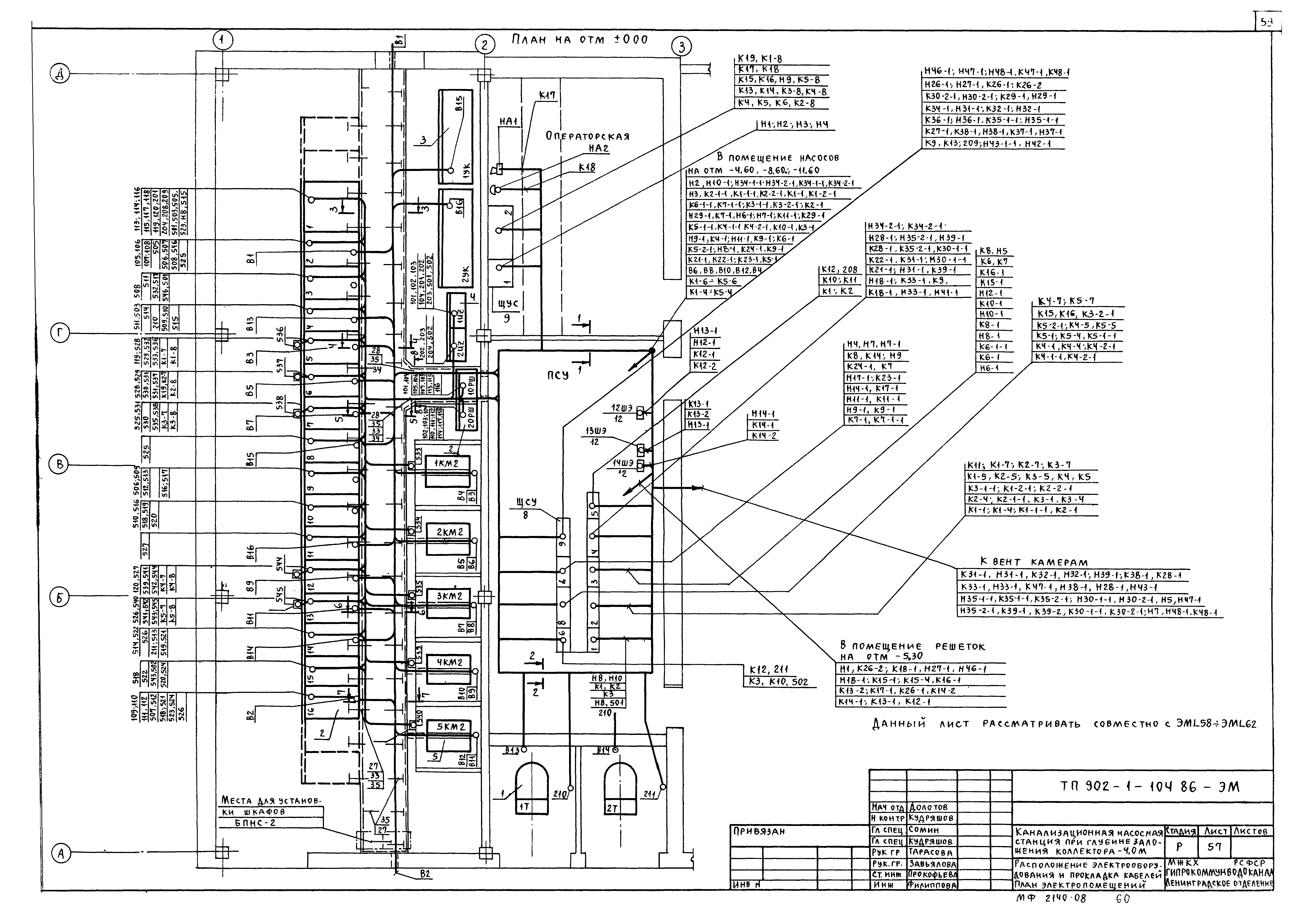
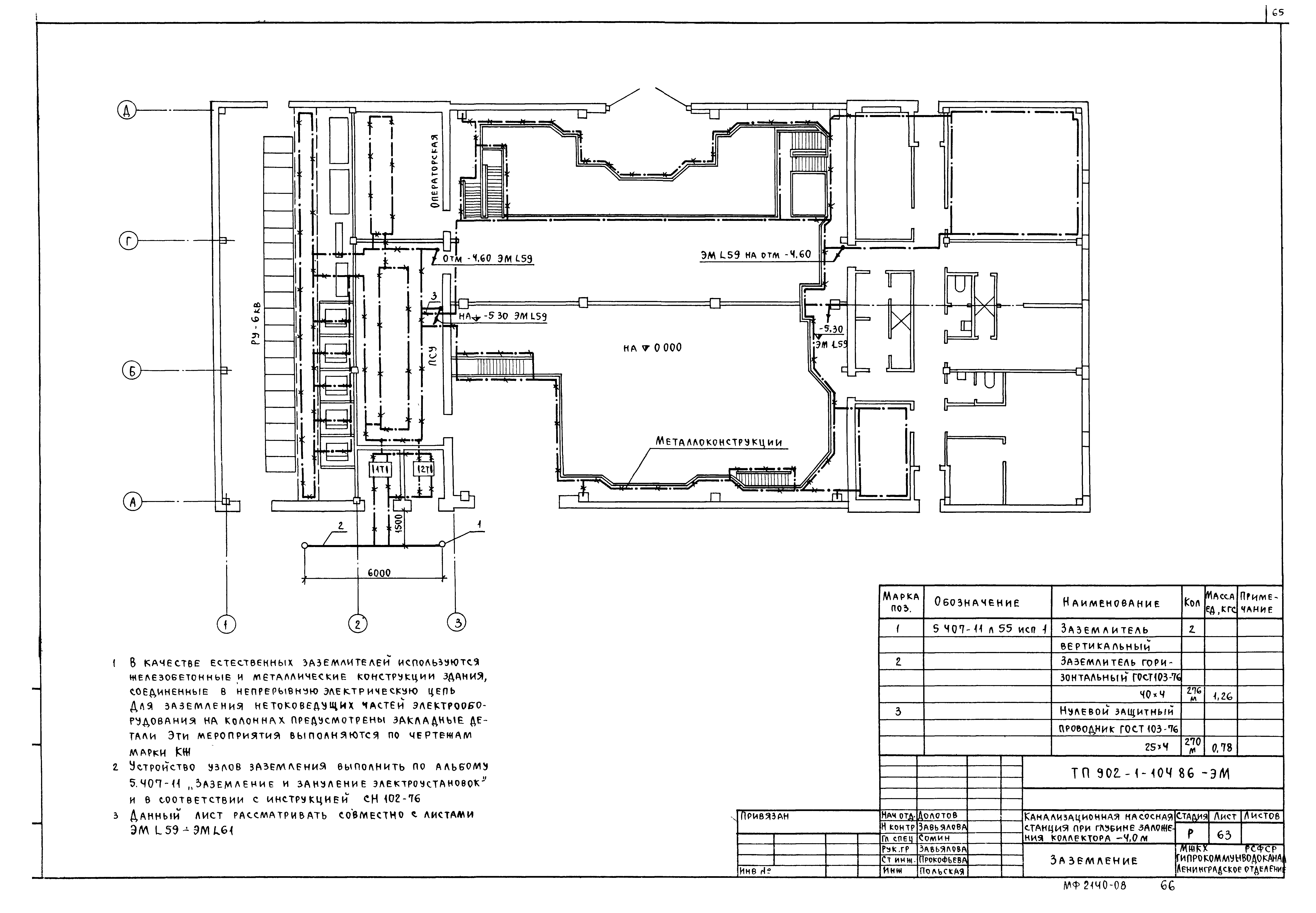
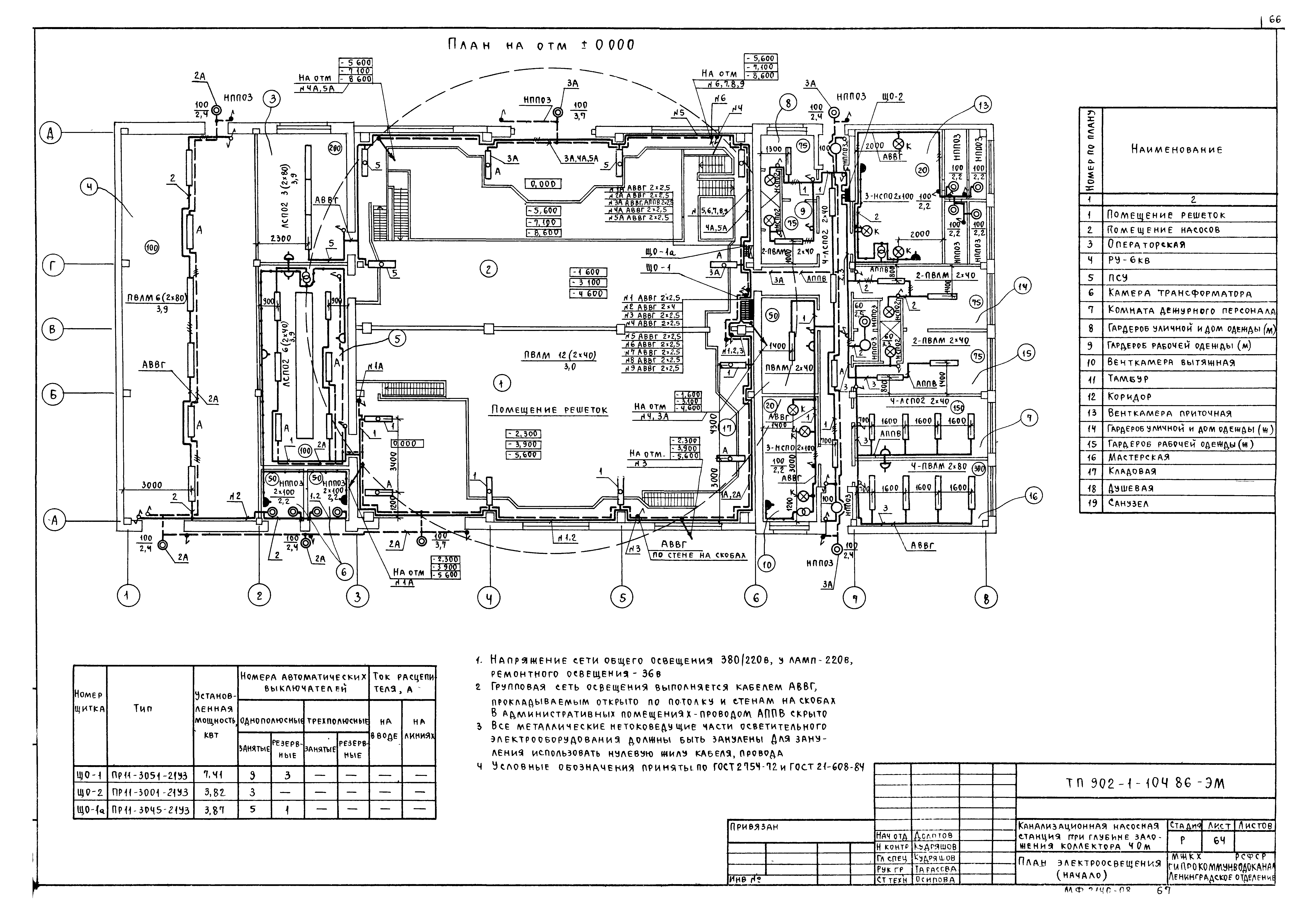
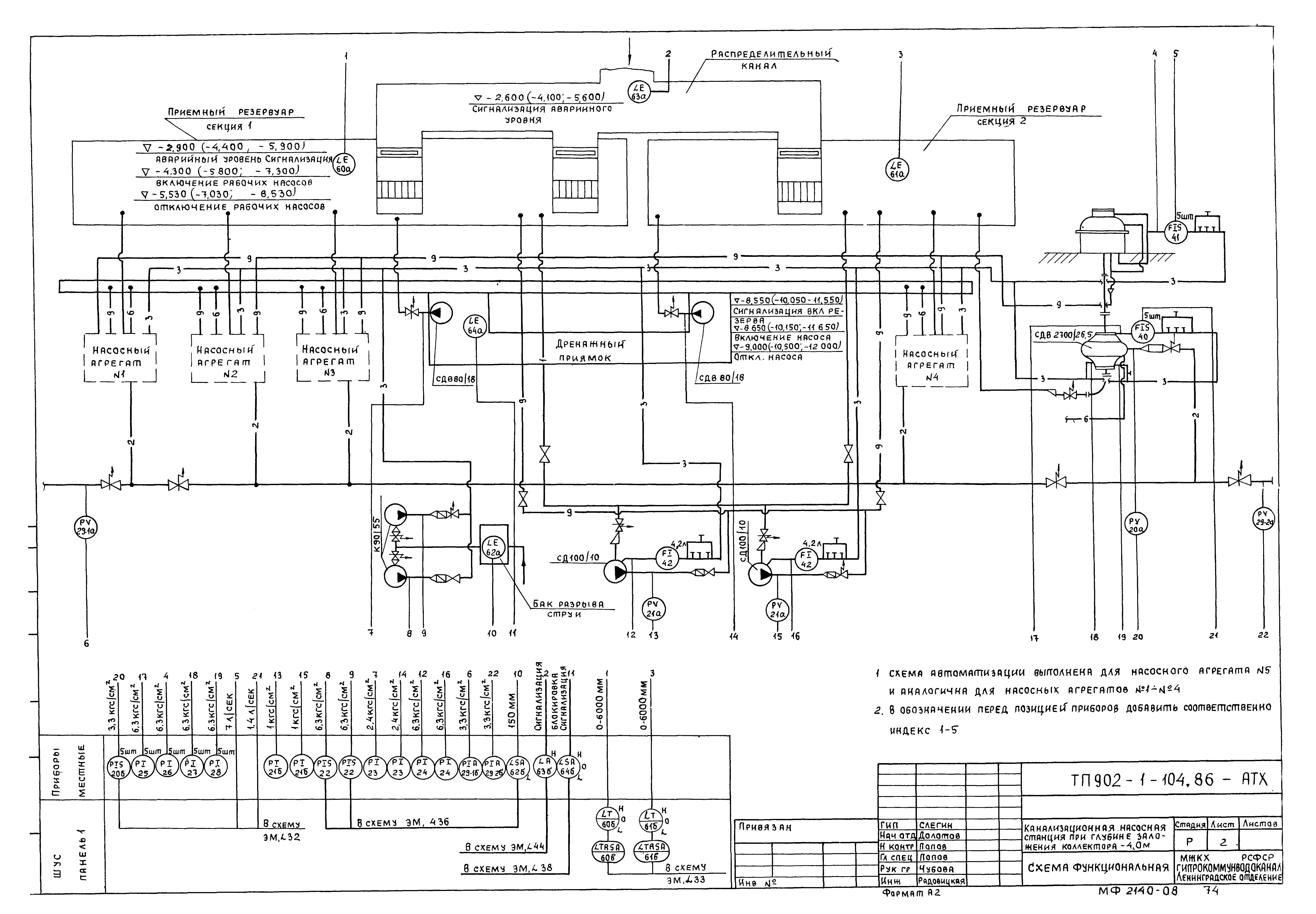
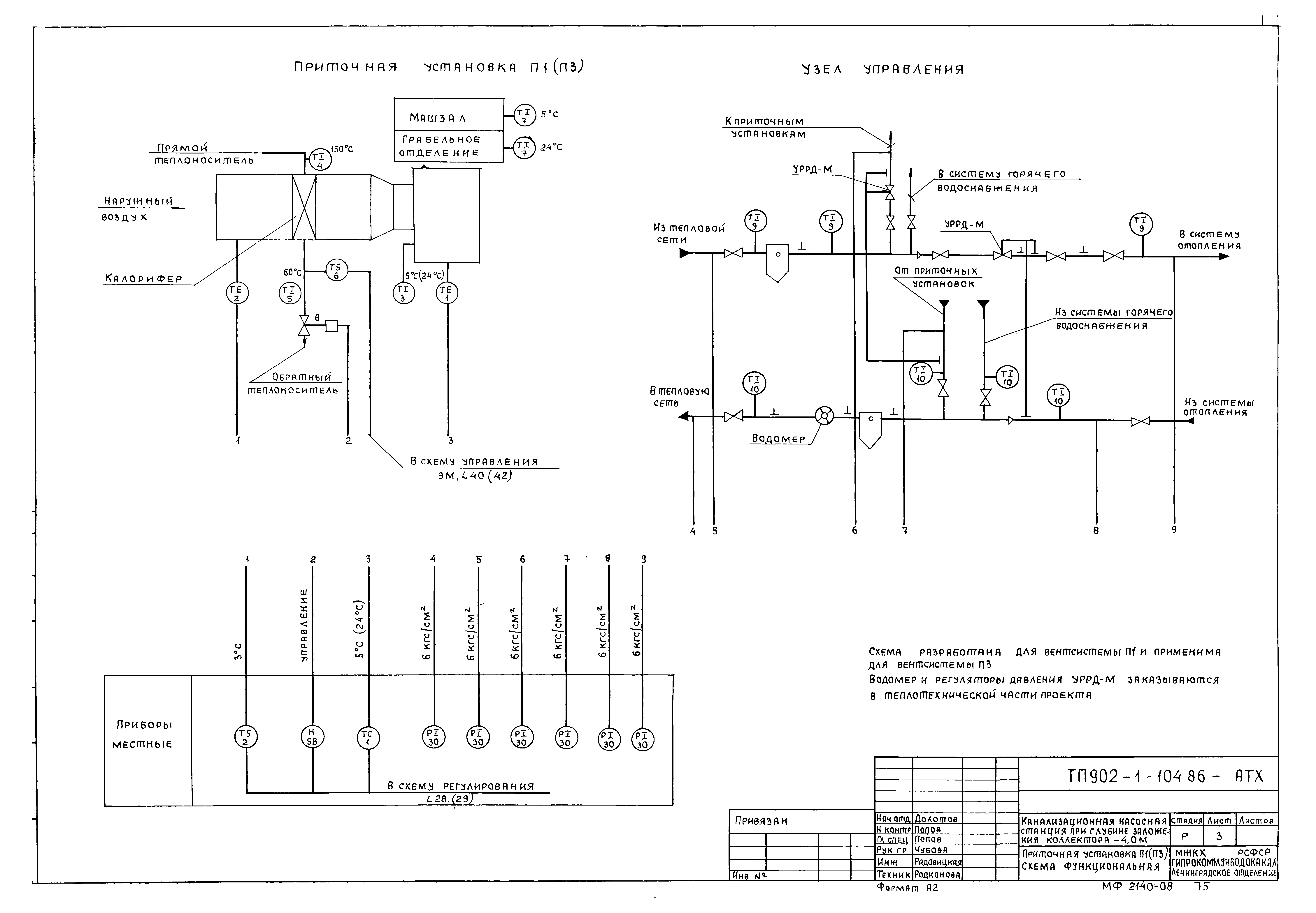
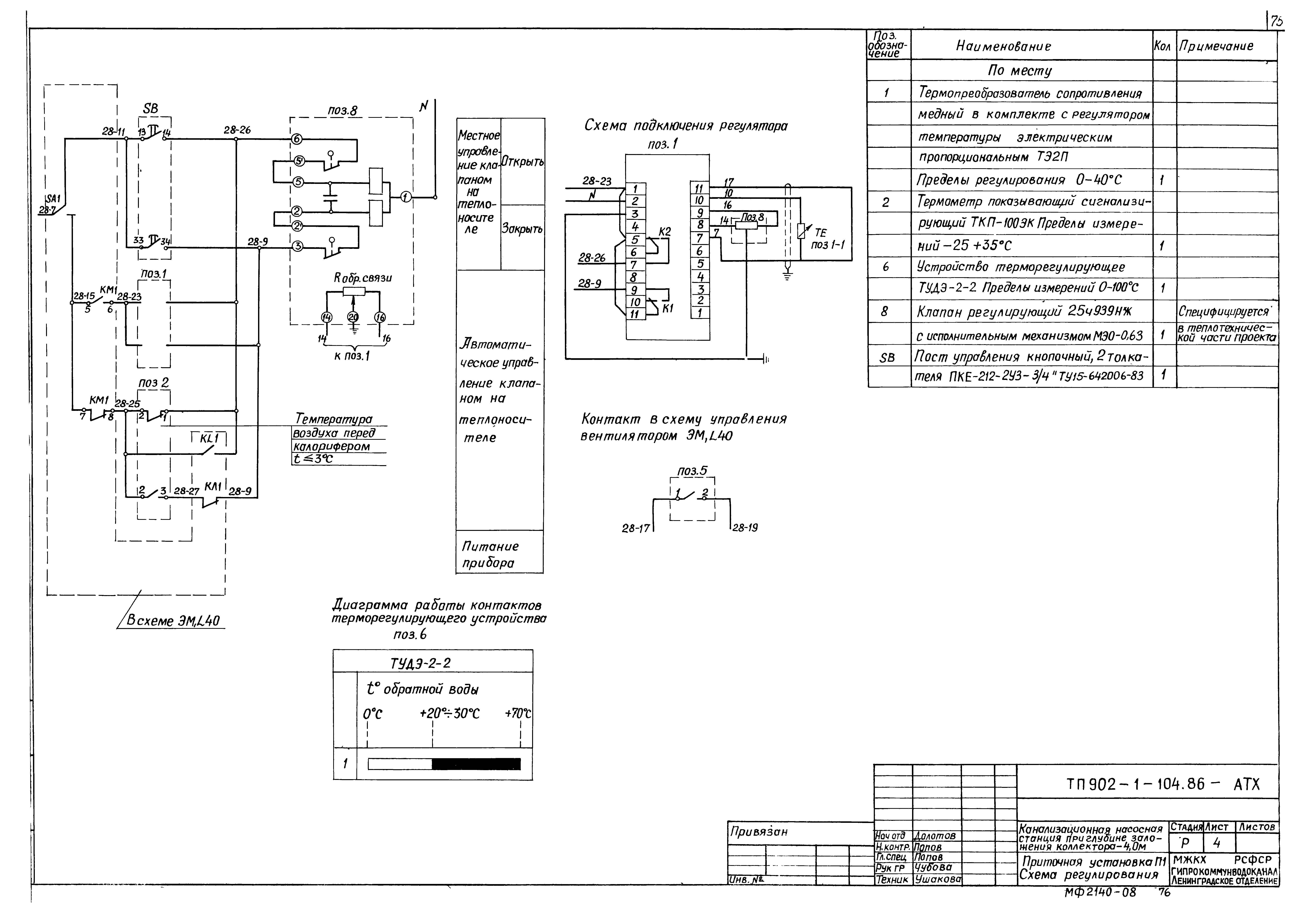
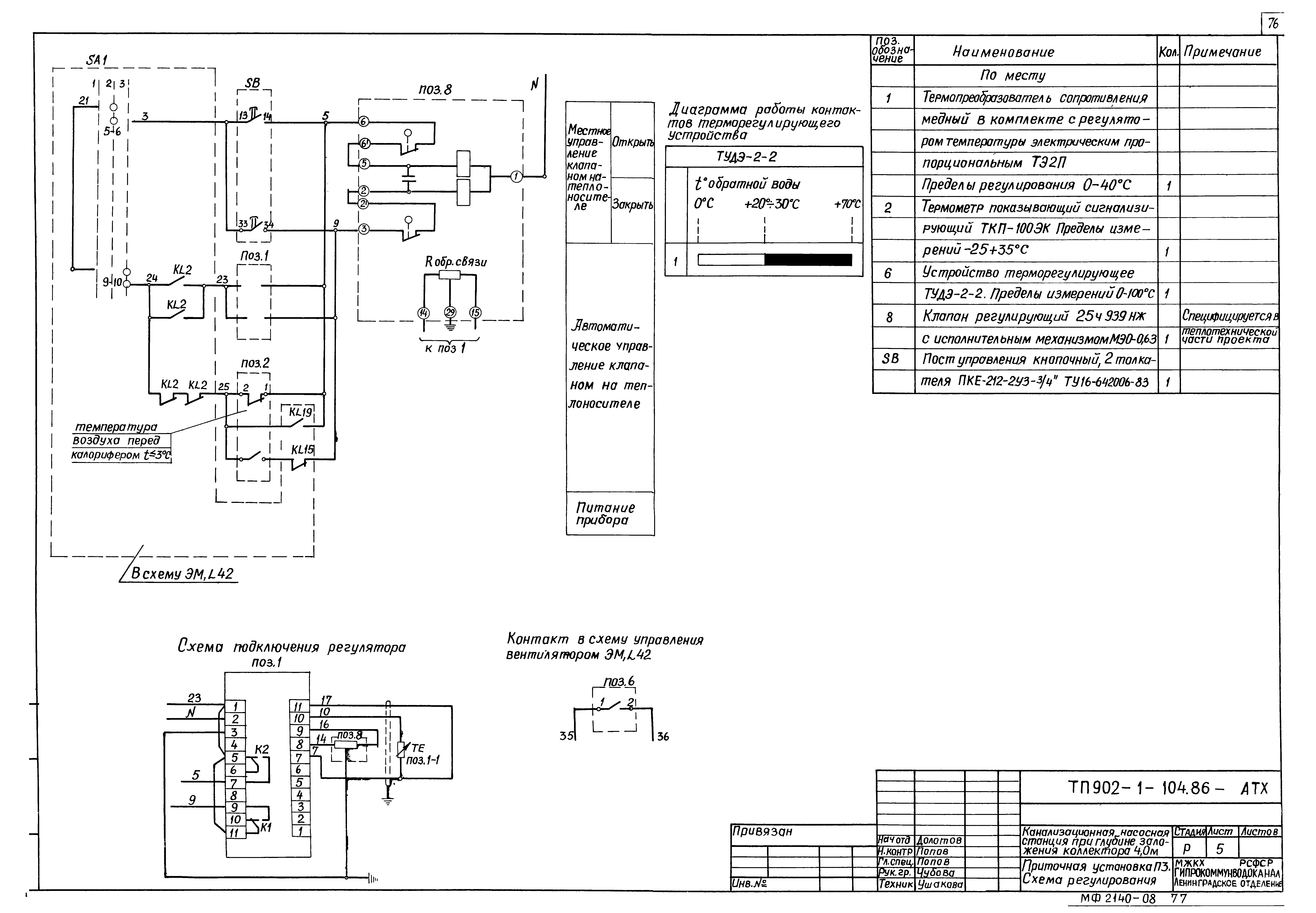
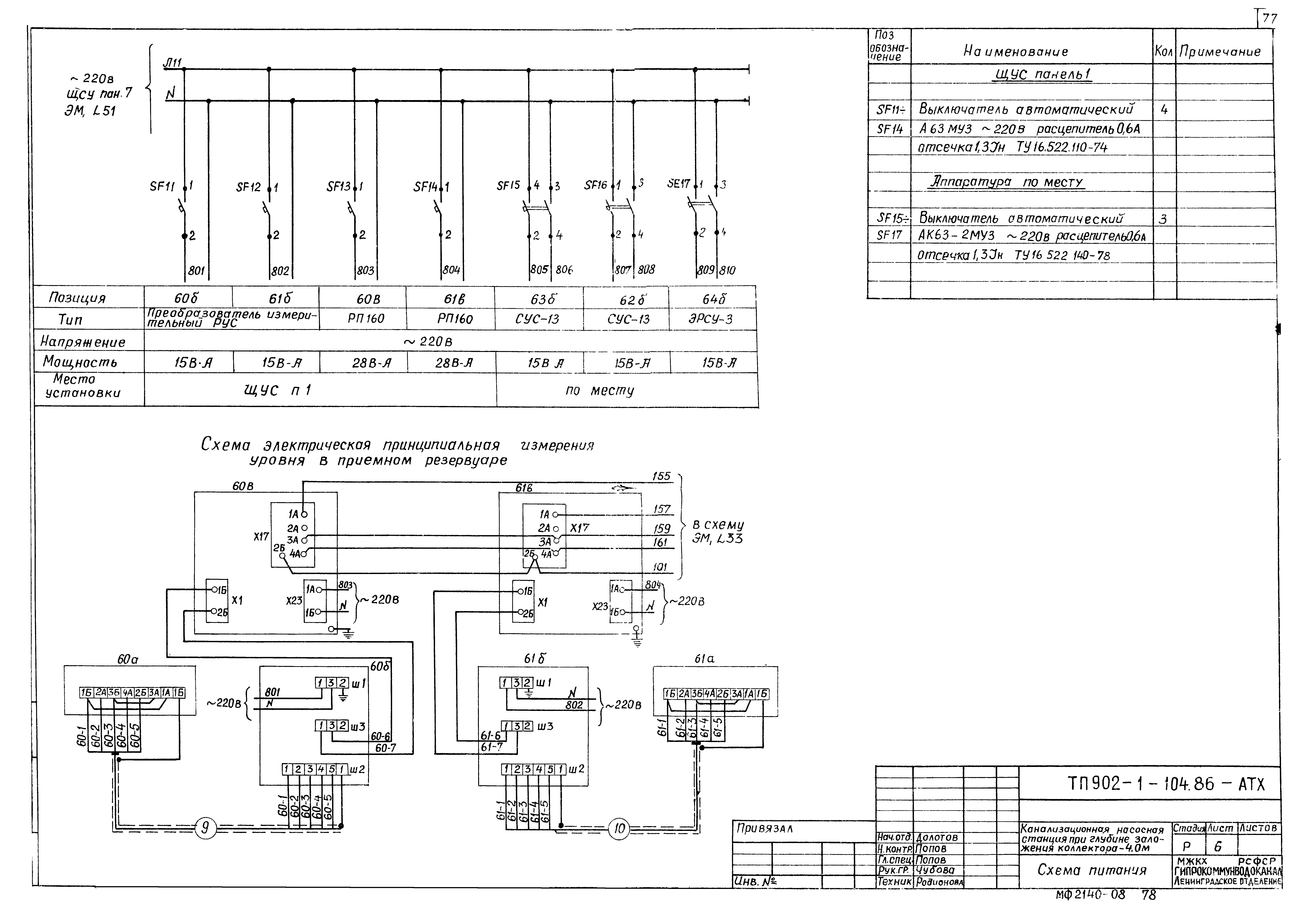
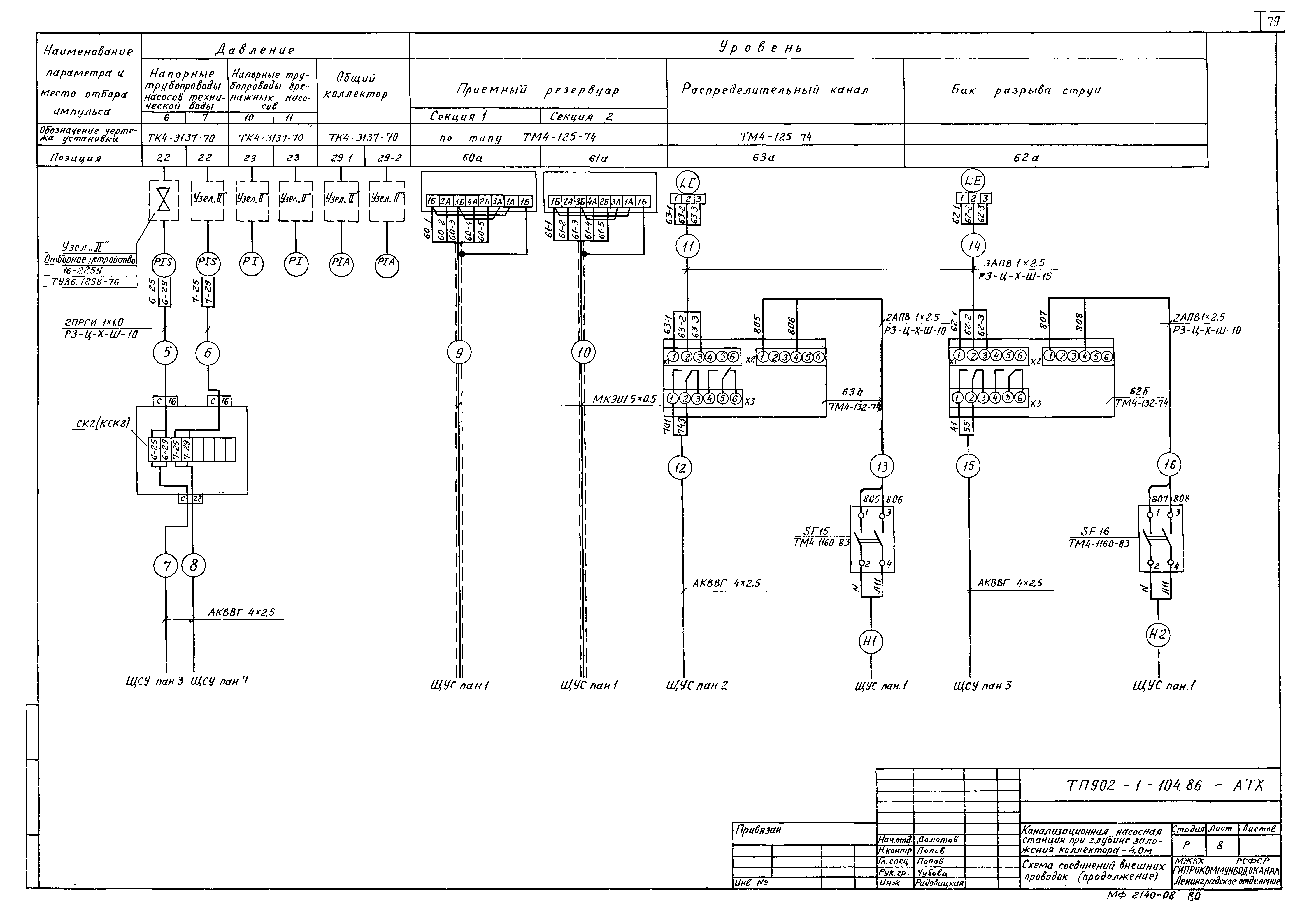
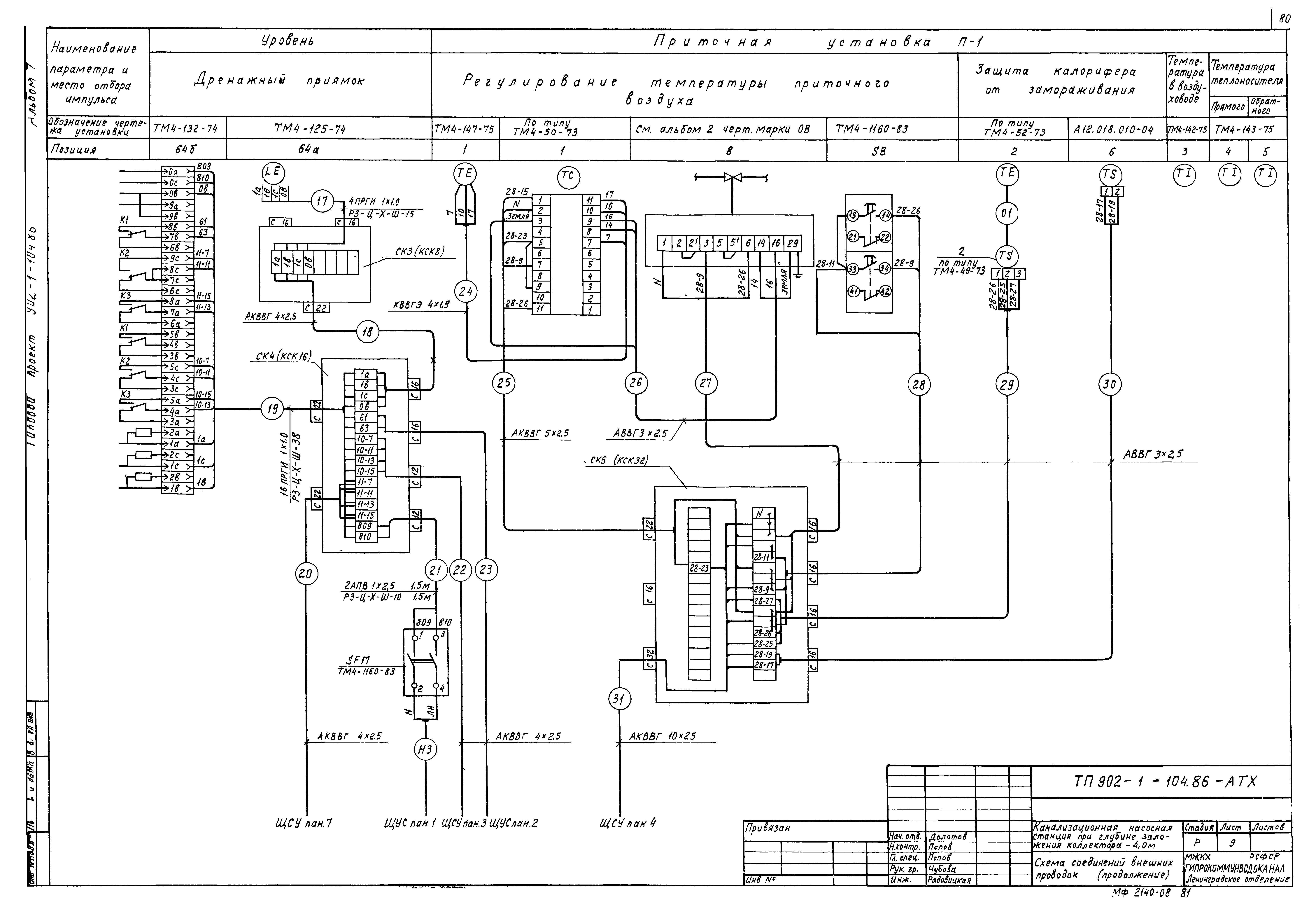
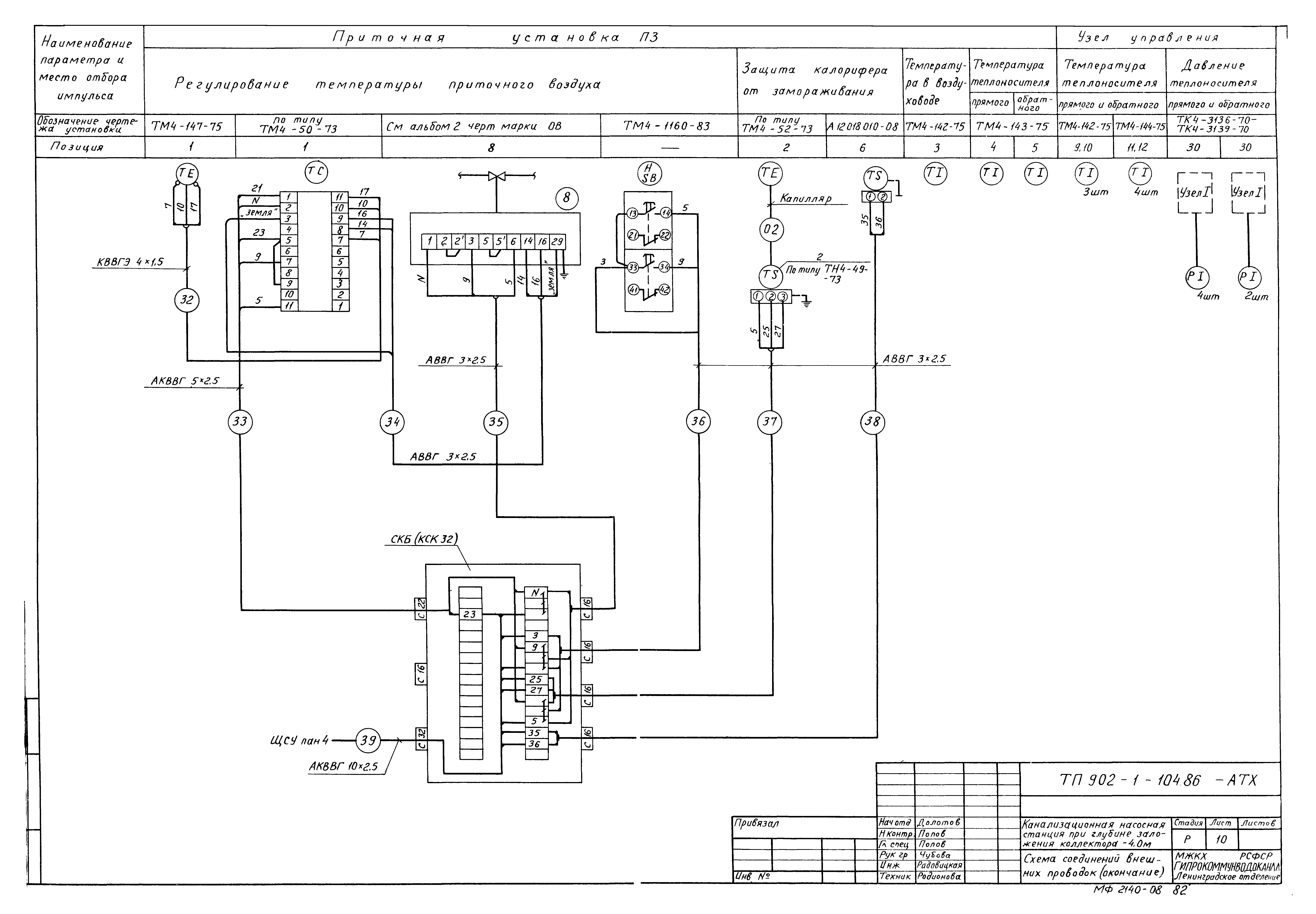
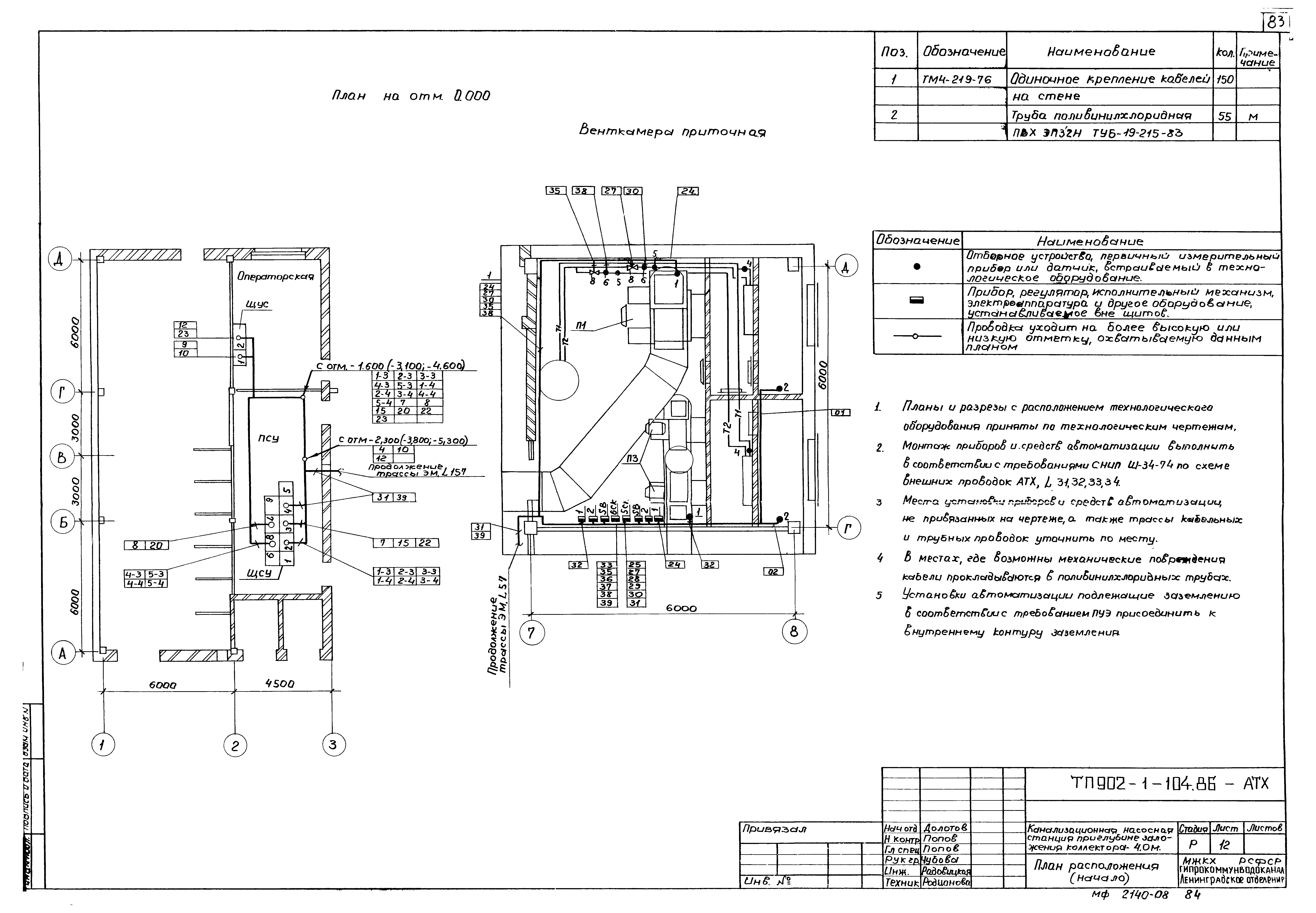
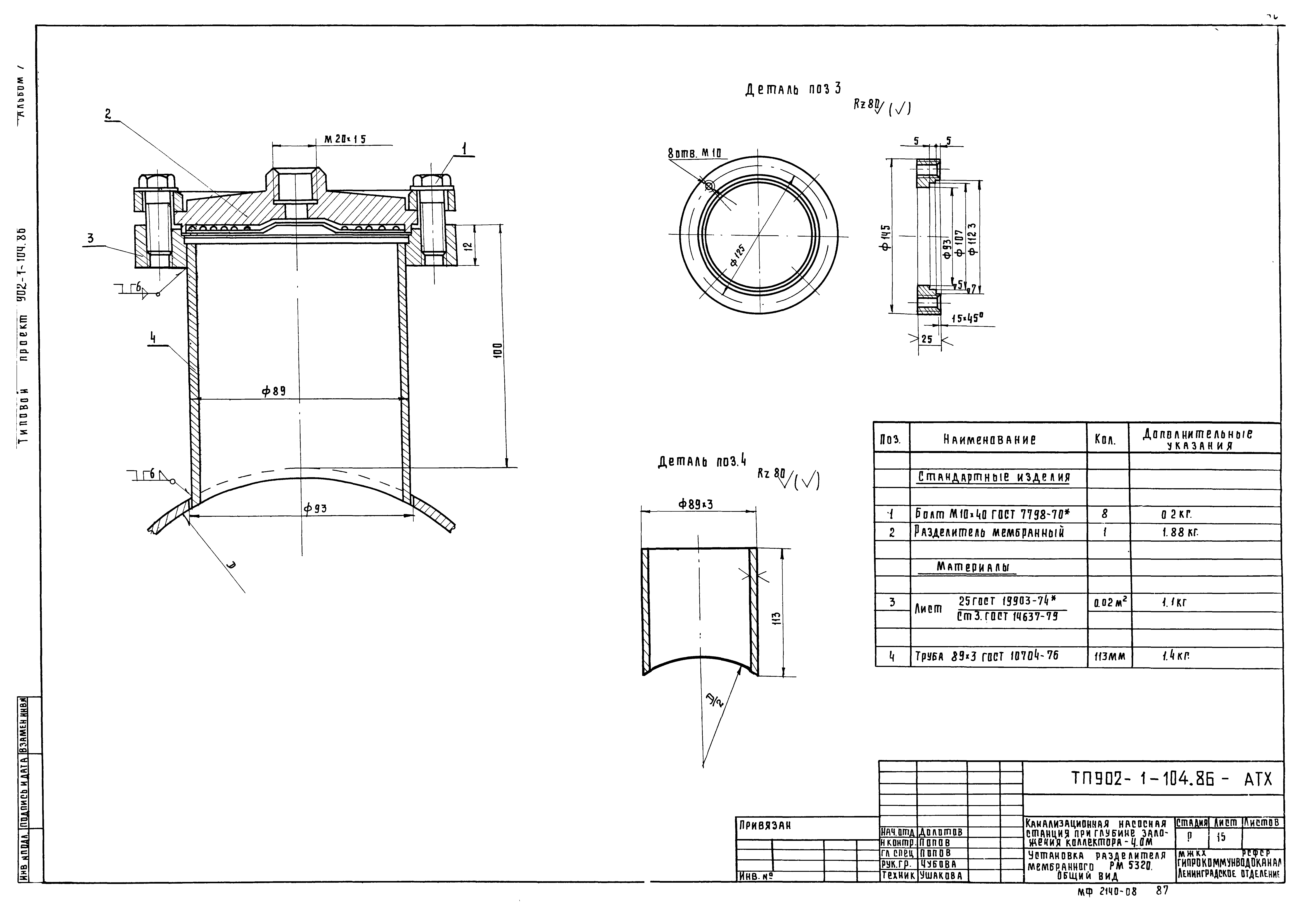
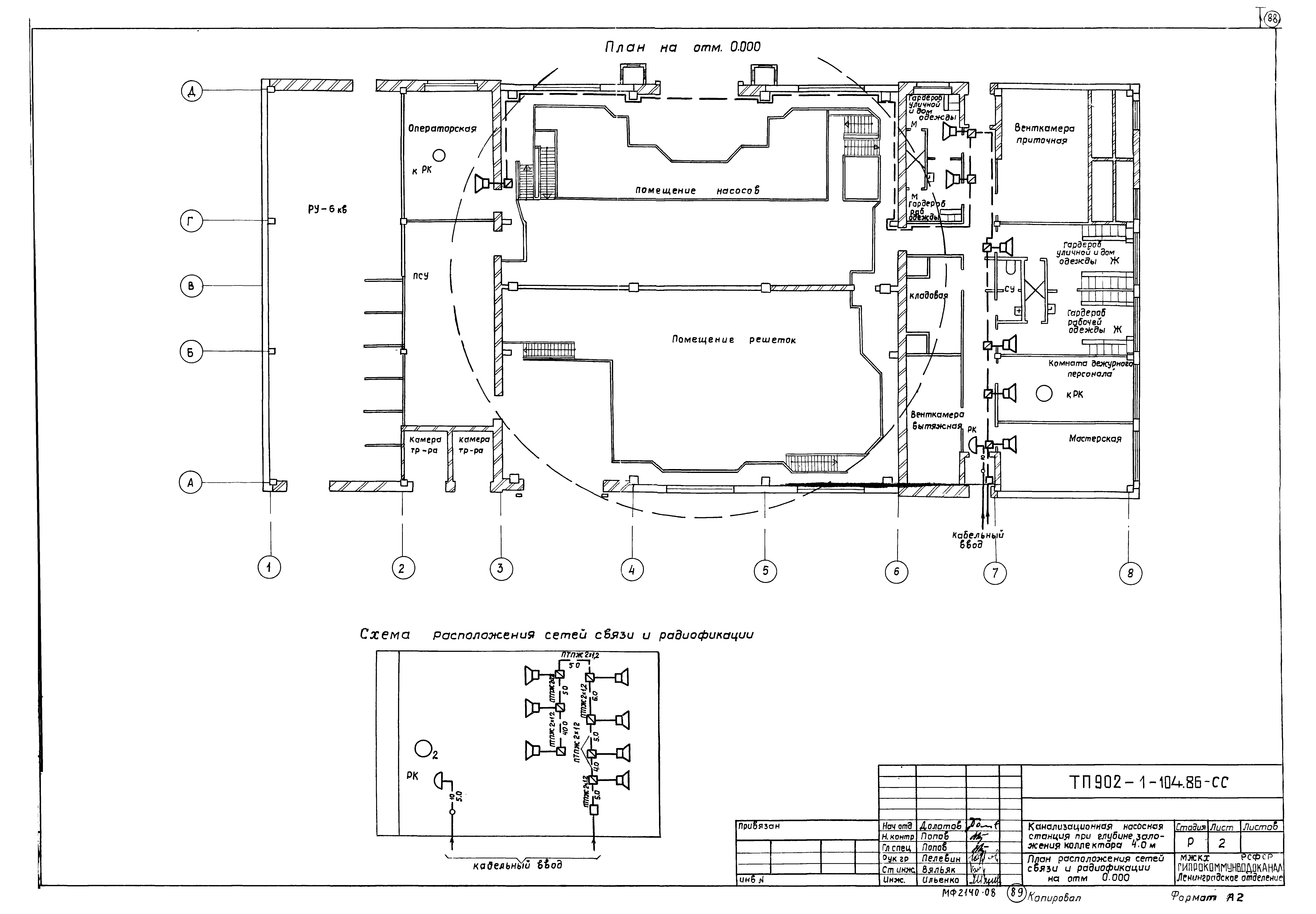
| Оглавление: | ТП 902-1-104.86 Содержание альбома ТП 902-1-104.86-ЭМ Комплект марки ЭМ ТП 902-1-104.86-ЭМ-1 Общие данные (начало) ТП 902-1-104.86-ЭМ-2 Общие данные (окончание) ТП 902-1-104.86-ЭМ-3 Выбор высоковольтных кабелей. Расчет токов К3. Проверка работы блоков питания ТП 902-1-104.86-ЭМ-4 Расчет прямого пуска двигателя ТП 902-1-104.86-ЭМ-5 Расчет релейной защиты. Проверка устойчивости трансформаторов тока к токам К3 ТП 902-1-104.86-ЭМ-6 Схема принципиальная однолинейная сети 6 кВ ТП 902-1-104.86-ЭМ-7 Ввод №1(№2) и секционный выключатель. Схема принципиальная (начало) ТП 902-1-104.86-ЭМ-8 Ввод №1(№2) и секционный выключатель. Схема принципиальная (продолжение) ТП 902-1-104.86-ЭМ-9 Ввод №1(№2) и секционный выключатель. Схема принципиальная (продолжение) ТП 902-1-104.86-ЭМ-10 Ввод №1(№2) и секционный выключатель. Схема принципиальная (окончание) ТП 902-1-104.86-ЭМ-11 Трансформатор напряжения. Схема принципиальная (начало) ТП 902-1-104.86-ЭМ-12 Трансформатор напряжения. Схема принципиальная (окончание) ТП 902-1-104.86-ЭМ-13 Конденсаторная установка I(II) секции. Схема принципиальная (начало) ТП 902-1-104.86-ЭМ-14 Конденсаторная установка I(II) секции. Схема принципиальная (окончание) ТП 902-1-104.86-ЭМ-15 Секционный разъединитель и трансформатор I(II) секции. Схема принципиальная ТП 902-1-104.86-ЭМ-16 Шкаф низковольтной аппаратуры. Схема принципиальная (начало) ТП 902-1-104.86-ЭМ-17 Шкаф низковольтной аппаратуры. Схема принципиальная (окончание) ТП 902-1-104.86-ЭМ-18 Навесной релейный шкаф ОРШ1,ОРШ2 и выпрямительное устройство VZ1,VZ2. Схема принципиальная ТП 902-1-104.86-ЭМ-19 Схема принципиальная оперативной блокировки ТП 902-1-104.86-ЭМ-20 Схема подключения шинок выпрямленного тока ТП 902-1-104.86-ЭМ-21 РУ Шкафы 1,2. Схема подключения ТП 902-1-104.86-ЭМ-22 РУ Шкафы 3,4,12,13,15. Схема подключения ТП 902-1-104.86-ЭМ-23 РУ Шкафы 5,6,7. ОРШ1(2). Схема подключения ТП 902-1-104.86-ЭМ-24 РУ Шкафы 9,10. Схема подключения ТП 902-1-104.86-ЭМ-25 РУ Шкафы 14,16. Схема подключения ТП 902-1-104.86-ЭМ-26 Схема принципиальная однолинейная ~380/220В (начало) ТП 902-1-104.86-ЭМ-27 Схема принципиальная однолинейная ~380/220В (продолжение) ТП 902-1-104.86-ЭМ-28 Схема принципиальная однолинейная ~380/220В (окончание) ТП 902-1-104.86-ЭМ-29 Схема принципиальная однолинейная ~380/220В с АВР ТП 902-1-104.86-ЭМ-30 Насосы 1-5. Схема принципиальная (начало) ТП 902-1-104.86-ЭМ-31 Насосы 1-5. Схема принципиальная (продолжение) ТП 902-1-104.86-ЭМ-32 Насосы 1-5. Схема принципиальная (окончание) ТП 902-1-104.86-ЭМ-33 Общие цепи управления насосами 1-5. Схема принципиальная (начало) ТП 902-1-104.86-ЭМ-34 Общие цепи управления насосами 1-5. Схема принципиальная (окончание) ТП 902-1-104.86-ЭМ-35 Задвижки 1-5÷5-1. Схема принципиальная ТП 902-1-104.86-ЭМ-36 Насосы технической воды 6,7. Схема принципиальная ТП 902-1-104.86-ЭМ-37 Задвижки 6-1,7-1. Схема принципиальная ТП 902-1-104.86-ЭМ-38 Дренажные насосы 10,11. Схема принципиальная ТП 902-1-104.86-ЭМ-39 Задвижки 1-2÷5-2,15-17,21-24. Насосы 8,9. Дробилка 18. Транспортеры 26,27. Схема принципиальная ТП 902-1-104.86-ЭМ-40 Вентиляторы 28,39. Схема принципиальная ТП 902-1-104.86-ЭМ-41 Вентиляторы 29,31-38. Схема принципиальная ТП 902-1-104.86-ЭМ-42 Вентиляторы 30-1,30-2. Схема принципиальная ТП 902-1-104.86-ЭМ-43 Схема принципиальная сигнализации (начало) ТП 902-1-104.86-ЭМ-44 Схема принципиальная сигнализации (продолжение) ТП 902-1-104.86-ЭМ-45 Схема принципиальная сигнализации (окончание) ТП 902-1-104.86-ЭМ-46 Отдельностоящее оборудование. Схема подключения (начало) ТП 902-1-104.86-ЭМ-47 Отдельностоящее оборудование. Схема подключения (продолжение) ТП 902-1-104.86-ЭМ-48 Отдельностоящее оборудование. Схема подключения (окончание) ТП 902-1-104.86-ЭМ-49 Щит ЩУС. Щит ЩСУ панели 1,2. Схема подключения ТП 902-1-104.86-ЭМ-50 Щит ЩСУ, панели 3-5. Схема подключения ТП 902-1-104.86-ЭМ-51 Щит ЩСУ, панели 6-9. Схема подключения ТП 902-1-104.86-ЭМ-52 Кабельный журнал (начало) ТП 902-1-104.86-ЭМ-53 Кабельный журнал (продолжение) ТП 902-1-104.86-ЭМ-54 Кабельный журнал (продолжение) ТП 902-1-104.86-ЭМ-55 Кабельный журнал (продолжение) ТП 902-1-104.86-ЭМ-56 Кабельный журнал (окончание) ТП 902-1-104.86-ЭМ-57 Расположение электрооборудования и прокладка кабелей. План электропомещений ТП 902-1-104.86-ЭМ-58 Расположение электрооборудования и прокладка кабелей. План на отм. 0.00 ТП 902-1-104.86-ЭМ-59 Расположение электрооборудования и прокладка кабелей. План на отм. -4.60;-5.30 ТП 902-1-104.86-ЭМ-60 Расположение электрооборудования и прокладка кабелей. План на отм. -8.60 ТП 902-1-104.86-ЭМ-61 Расположение электрооборудования и прокладка кабелей. План на отм. -11.50 ТП 902-1-104.86-ЭМ-62 Расположение электрооборудования и прокладка кабелей. Сечения ТП 902-1-104.86-ЭМ-63 Заземление ТП 902-1-104.86-ЭМ-64 План электроосвещения (начало) ТП 902-1-104.86-ЭМ-65 План электроосвещения (окончание) ТП 902-1-104.86-ЭМН Щиты ЩСУ,ЩУС, ящики ЯУП,35ПМ. Эскизы общих видов ЭМН ТП 902-1-104.86-ЭМ.ЛО Опросный лист для заказа КРУ серии КМ-1Ф ЭМ.ЛО ТП 902-1-104.86-ЭМ.И Конструкция для установки контактора в камере ЭМ.И ТП 902-1-104.86-ЭМ-69 Ведомость объемов строительных и монтажных работ ЭМ.ВР ТП 902-1-104.86-АТХ Комплект марки АТХ ТП 902-1-104.86-АТХ-1 Общие данные ТП 902-1-104.86-АТХ-2 Схема функциональная ТП 902-1-104.86-АТХ-3 Приточная установка П1(П3). Схема функциональная ТП 902-1-104.86-АТХ-4 Приточная установка П1. Схема регулирования ТП 902-1-104.86-АТХ-5 Приточная установка П3. Схема регулирования ТП 902-1-104.86-АТХ-6 Схема питания ТП 902-1-104.86-АТХ-7 Схема соединения внешних проводок (начало) ТП 902-1-104.86-АТХ-8 Схема соединения внешних проводок (продолжение) ТП 902-1-104.86-АТХ-9 Схема соединения внешних проводок (продолжение) ТП 902-1-104.86-АТХ-10 Схема соединения внешних проводок (окончание) ТП 902-1-104.86-АТХ-11 Кабельный журнал ТП 902-1-104.86-АТХ-12 План расположения (начало) ТП 902-1-104.86-АТХ-13 План расположения (продолжение) ТП 902-1-104.86-АТХ-14 План расположения (окончание) ТП 902-1-104.86-АТХ-15 Установка разделителя мембранного РМ5320. Общий вид ТП 902-1-104.86-СС Комплект марки СС ТП 902-1-104.86-СС-1 Общие данные ТП 902-1-104.86-СС-2 План расположения сетей связи и радиофикации на отм. 0.000 |
| Разработан: | Ленинградское отделение Гипрокоммунводоканала |
| Утверждён: | 27.10.1986 МЖКХ РСФСР (462) |
| Заменяет собой: |
























































































