Скачать Типовой проект 902-2-401.86 Альбом V. Строительные изделияДата актуализации: 01.01.2021
|
| Обозначение: | Типовой проект 902-2-401.86 |
| Обозначение англ: | 902-2-401.86 |
| Статус: | заменен |
| Название рус.: | Альбом V. Строительные изделия |
| Дата добавления в базу: | 01.09.2013 |
| Дата актуализации: | 01.01.2021 |
| Дата введения: | 27.03.1985 |
| Дата окончания срока действия: | 01.10.1987 |
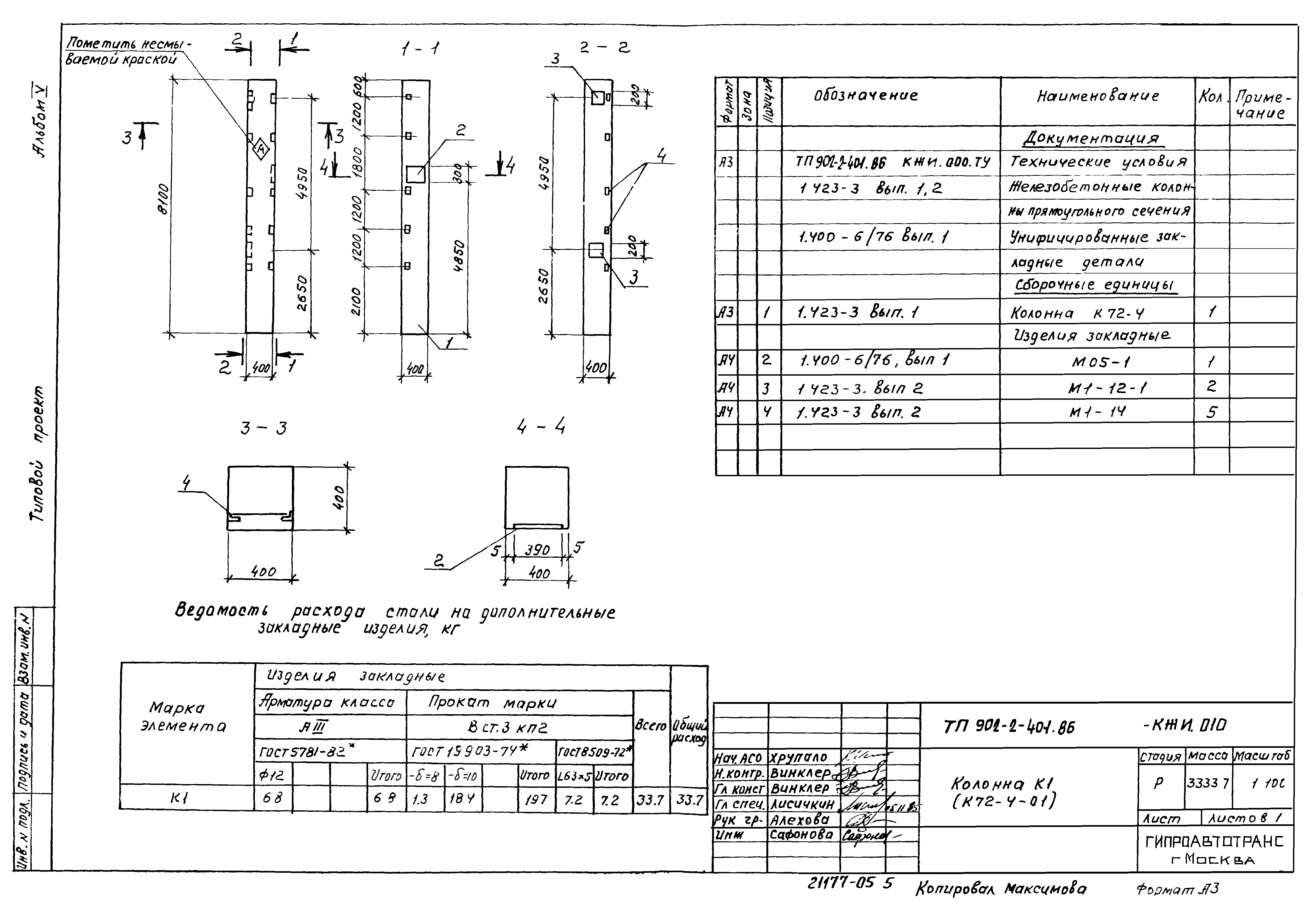
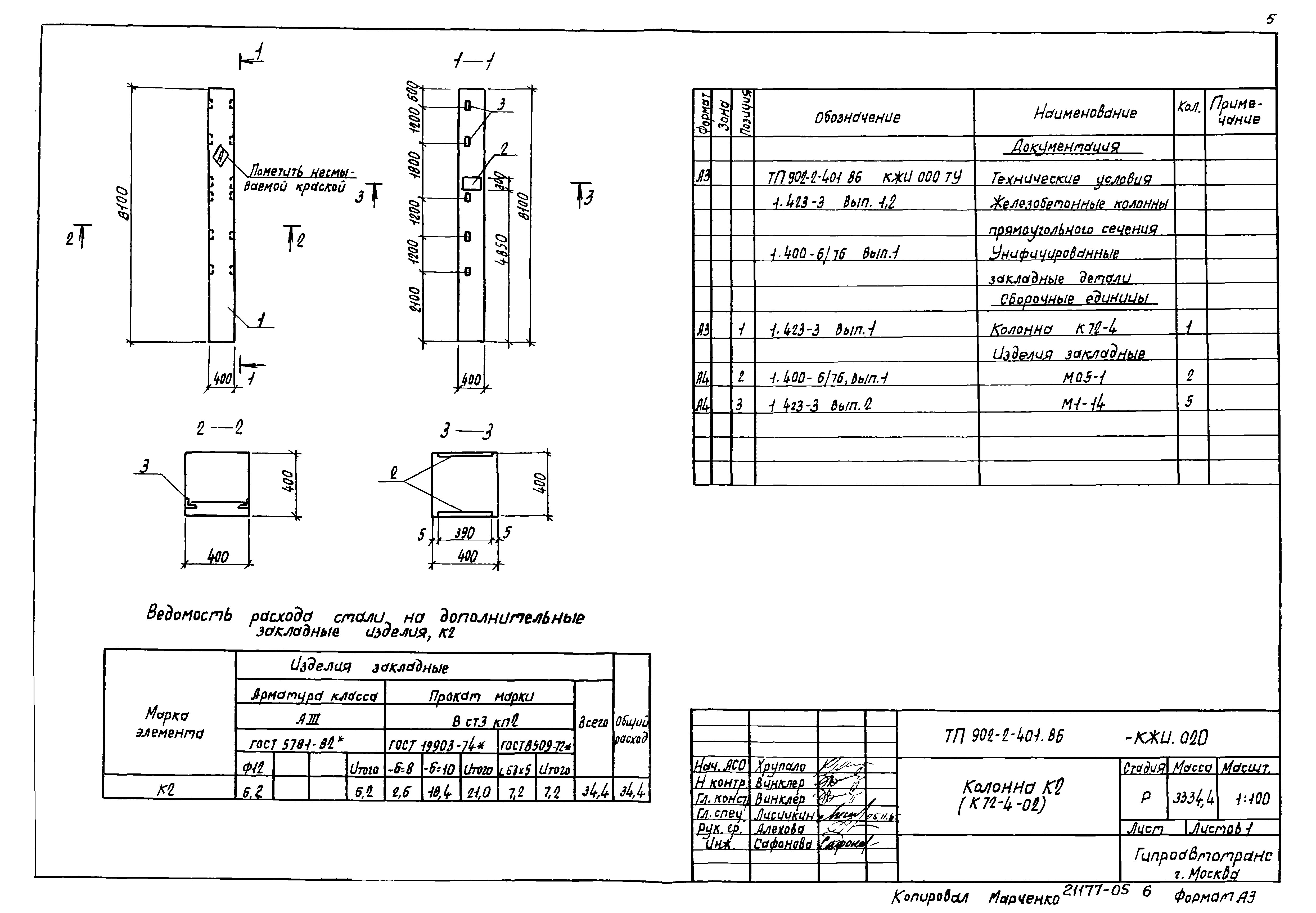
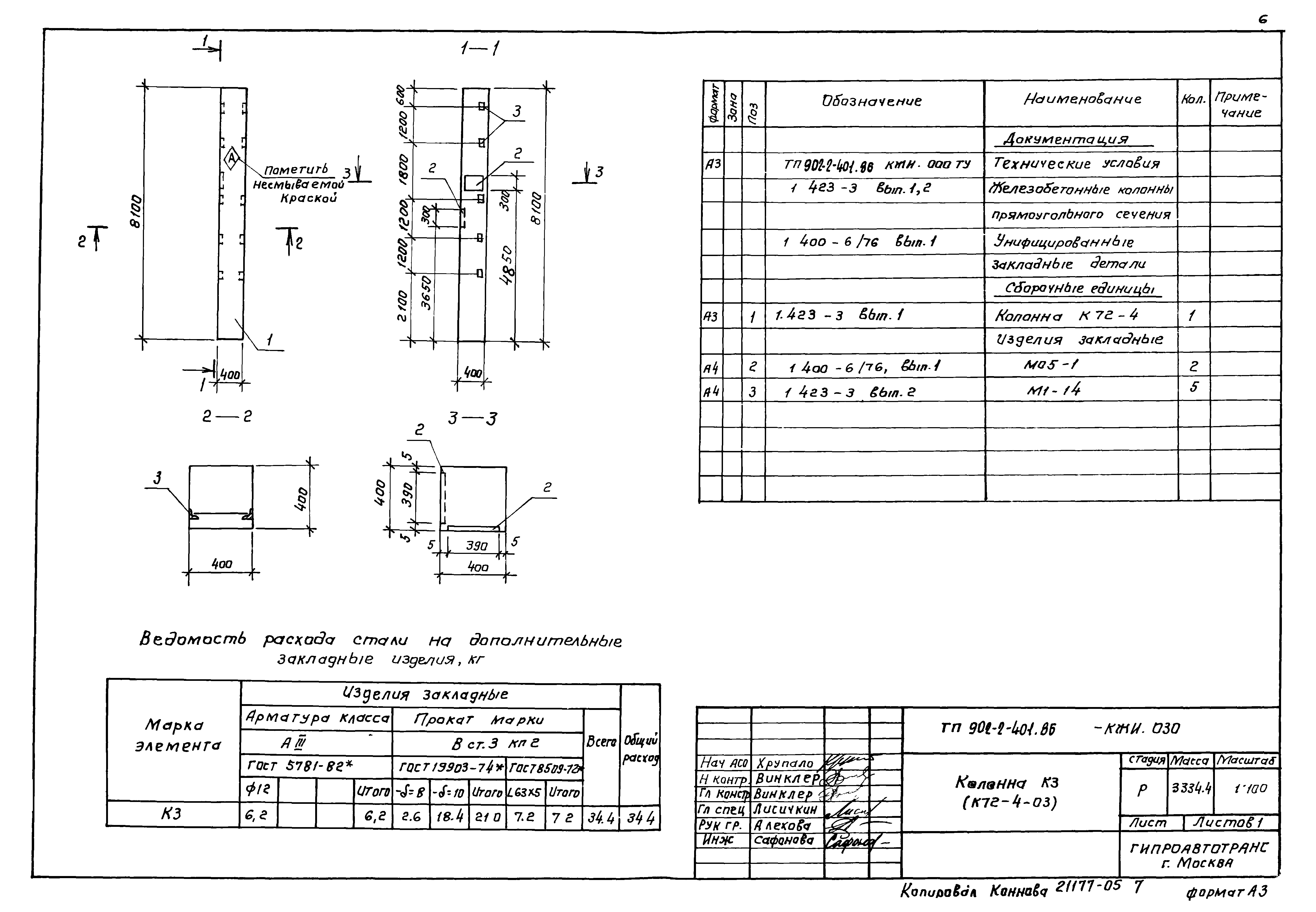
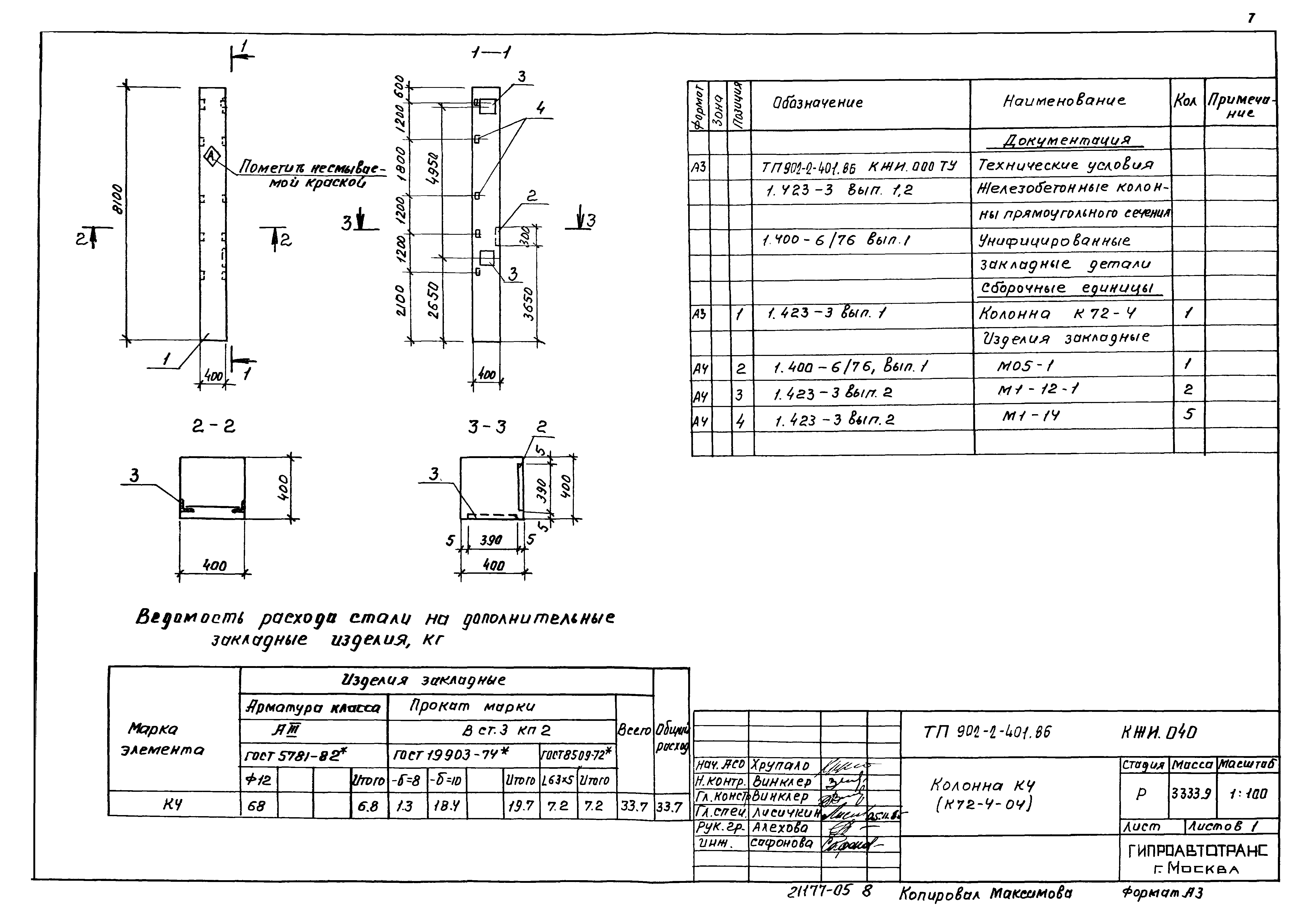
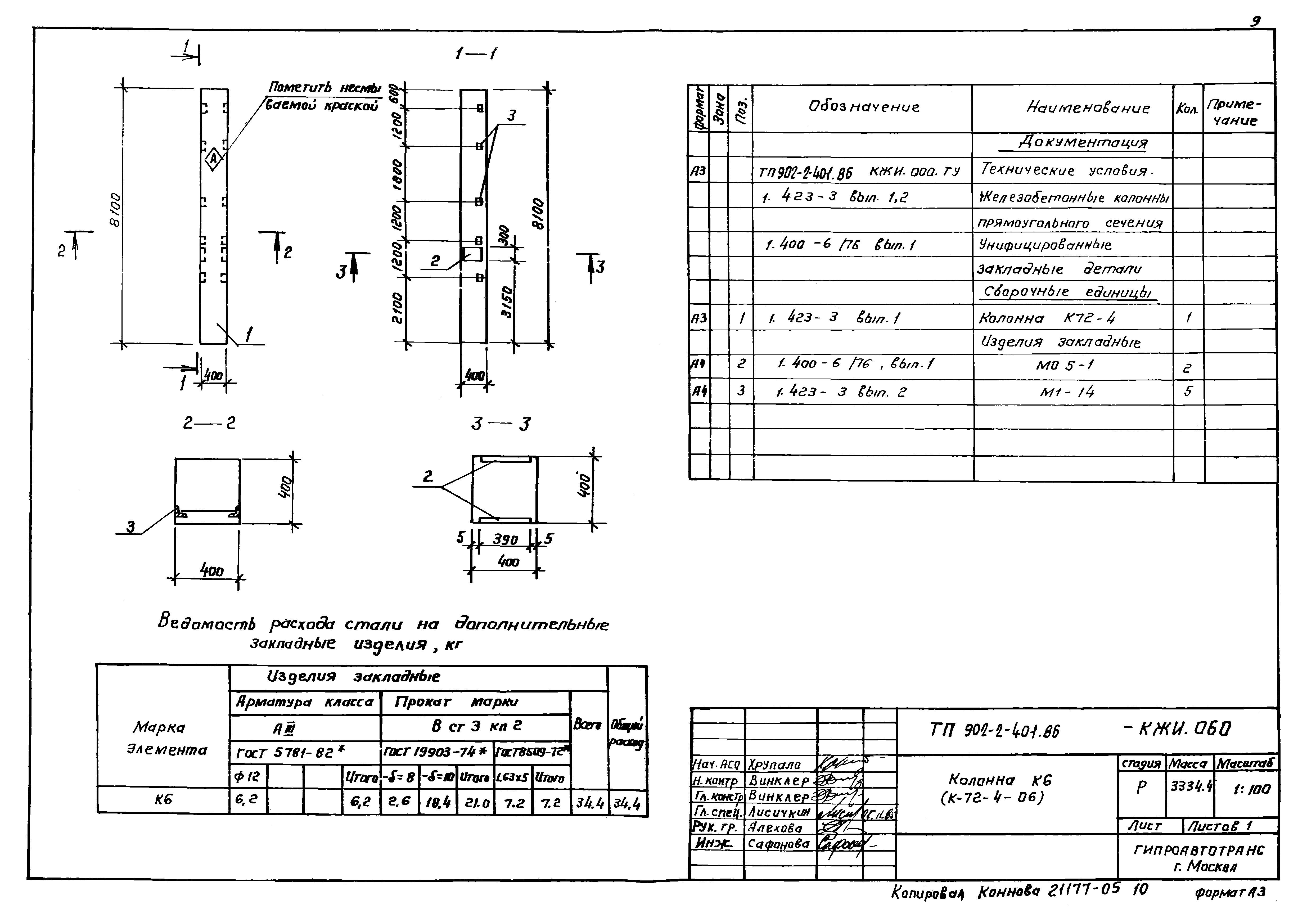
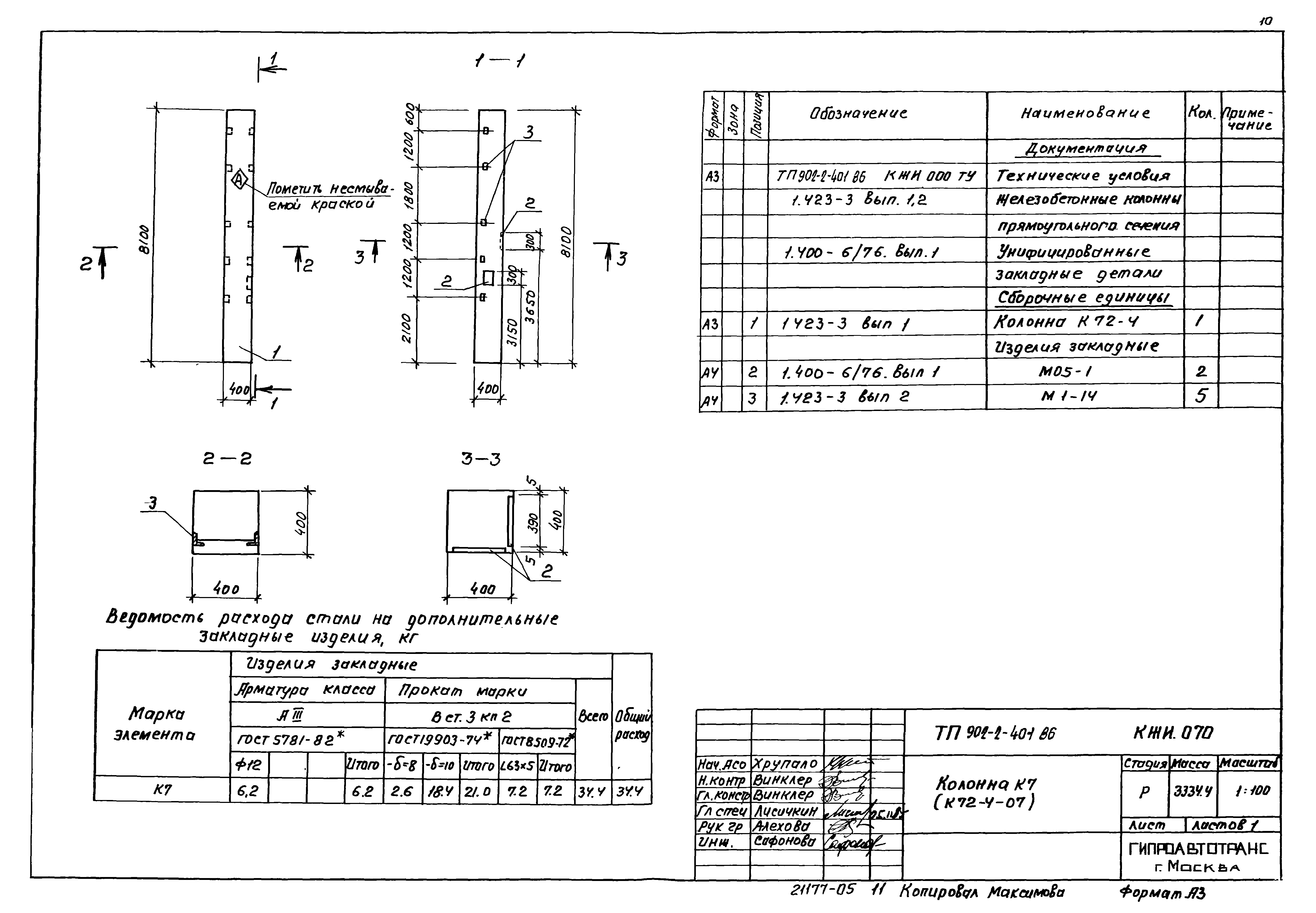
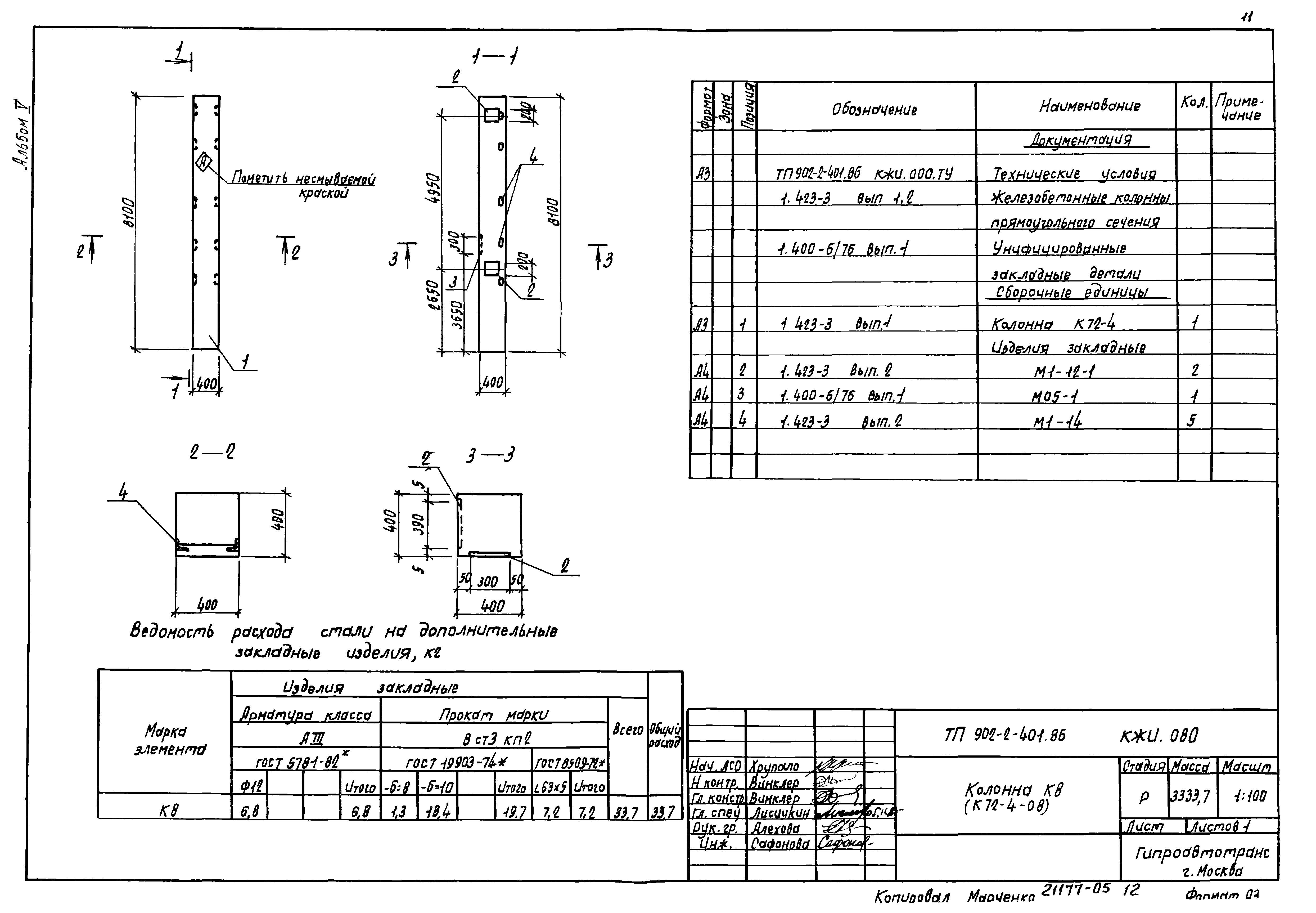
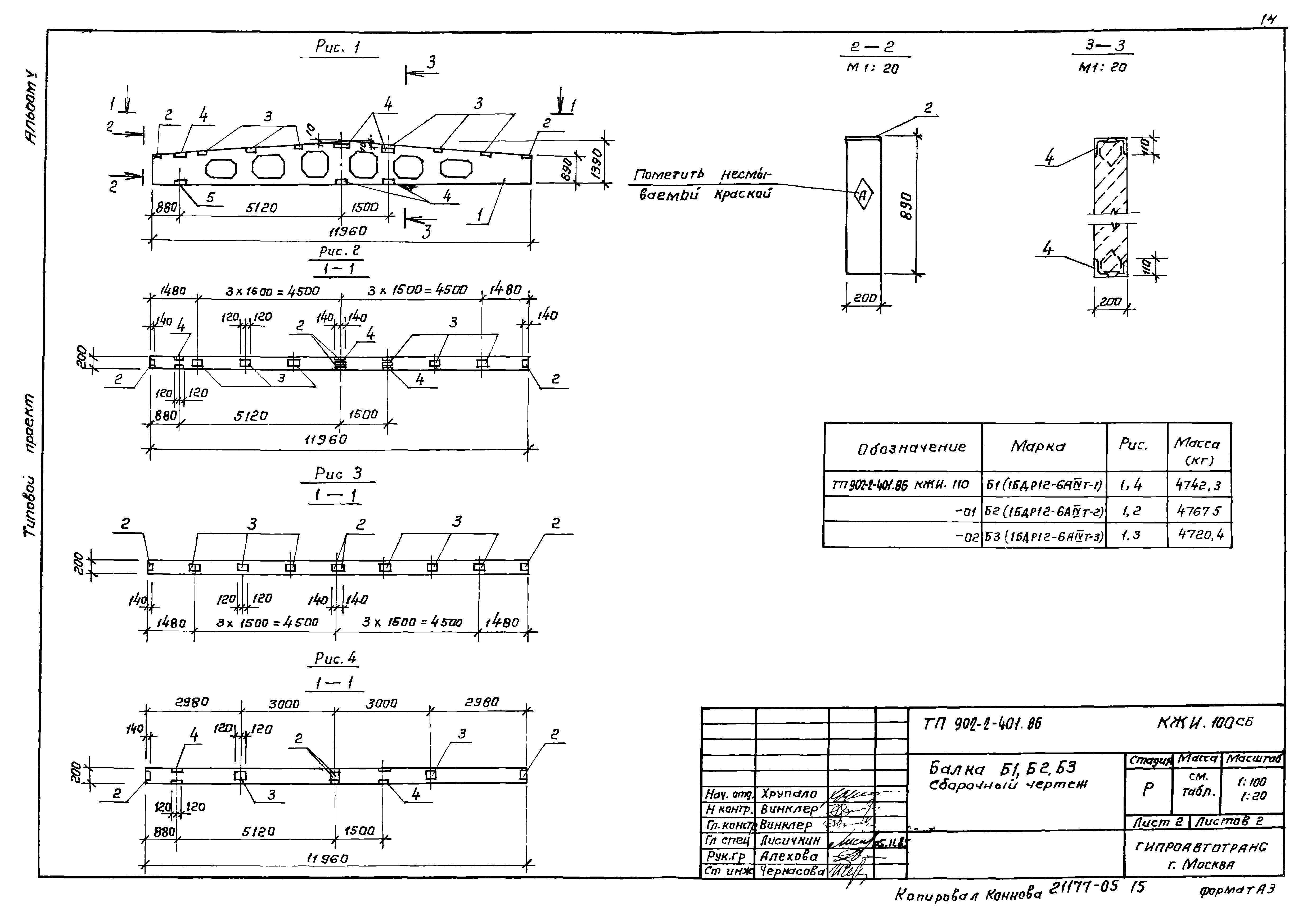
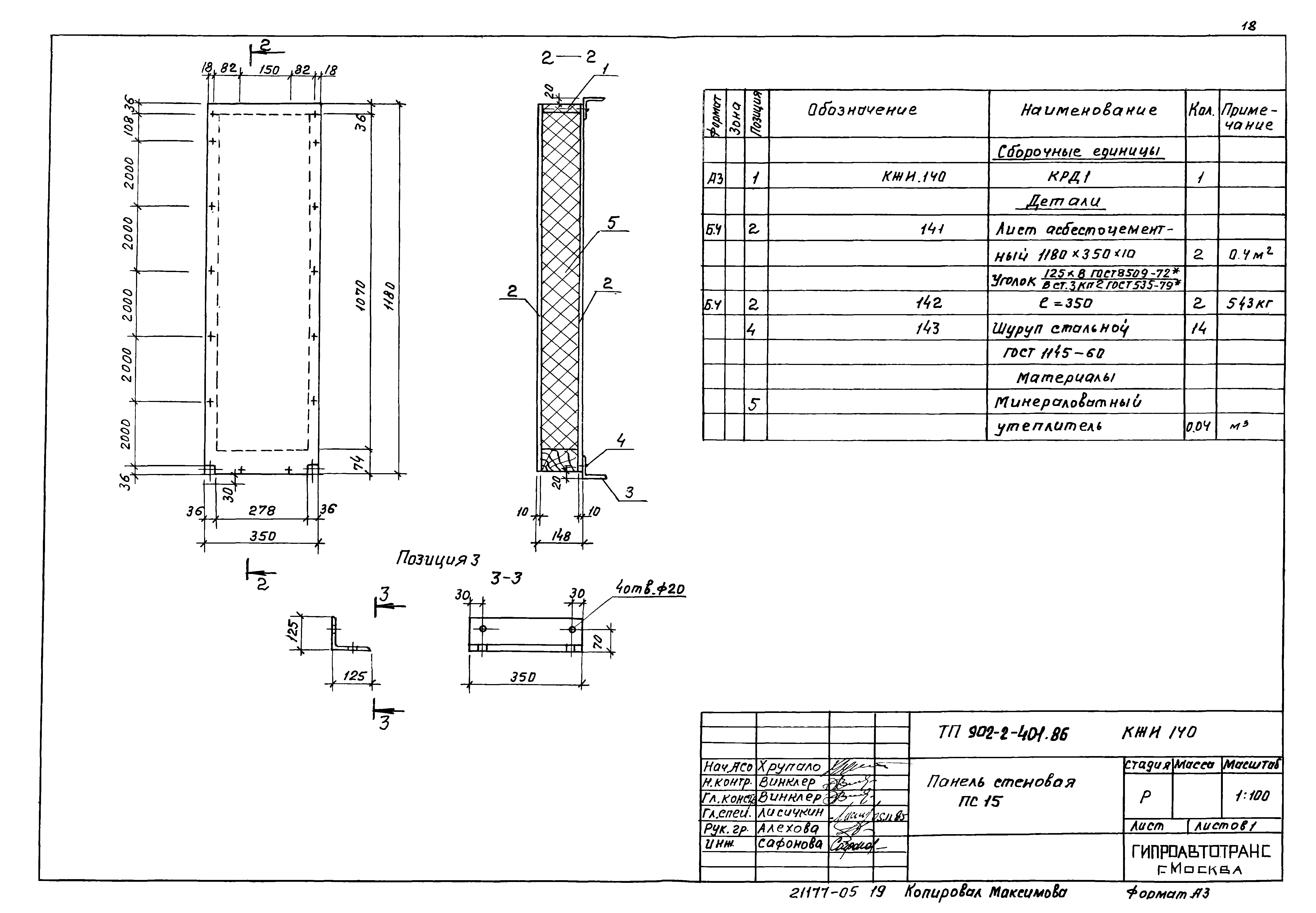
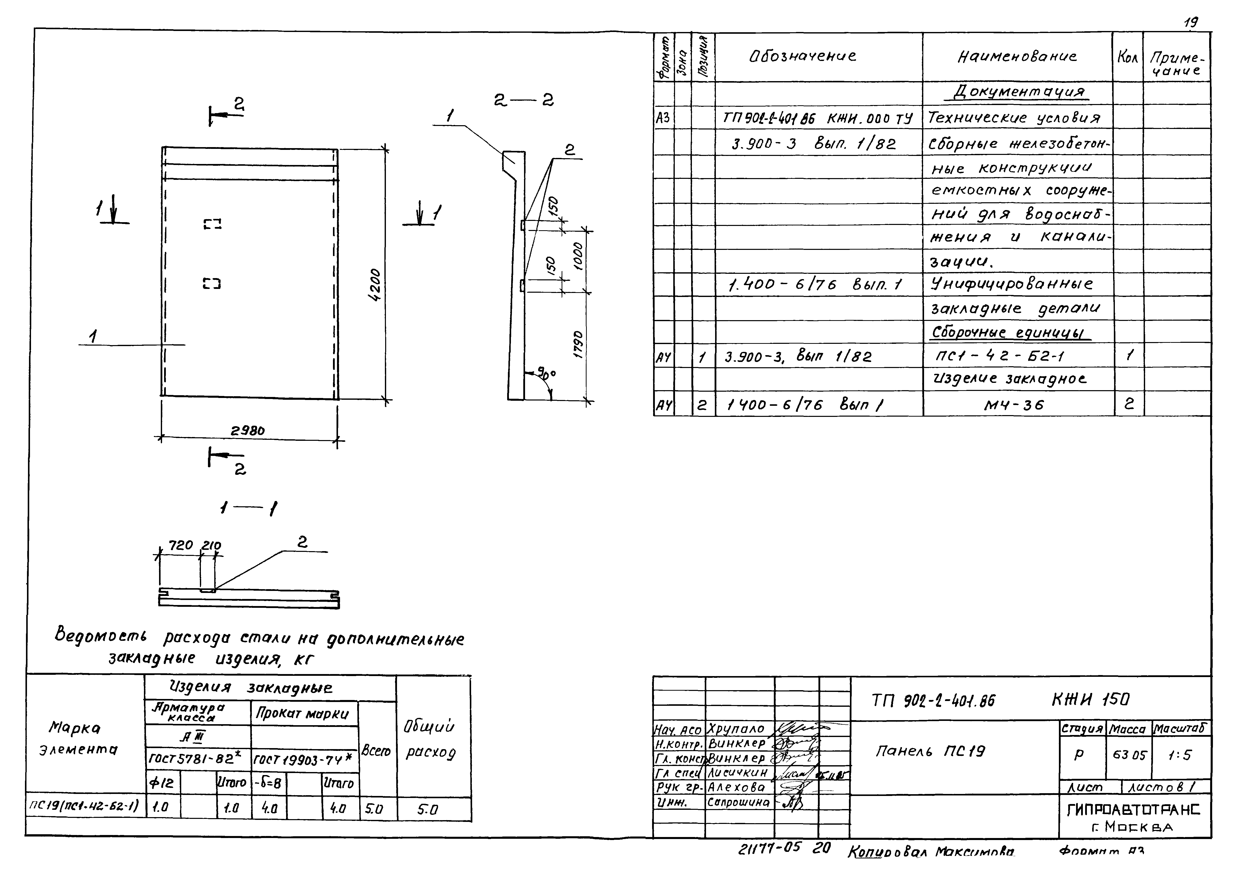
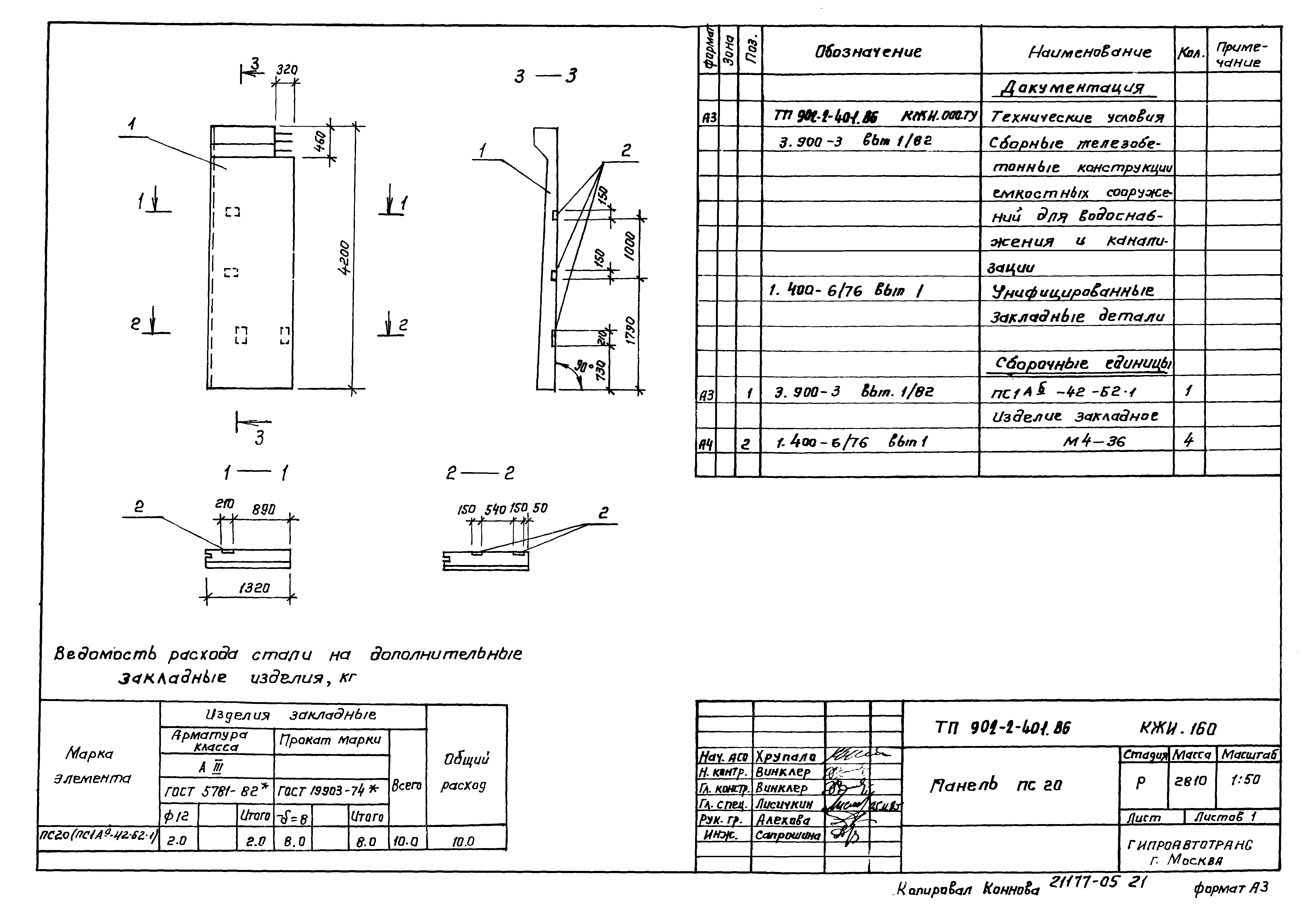
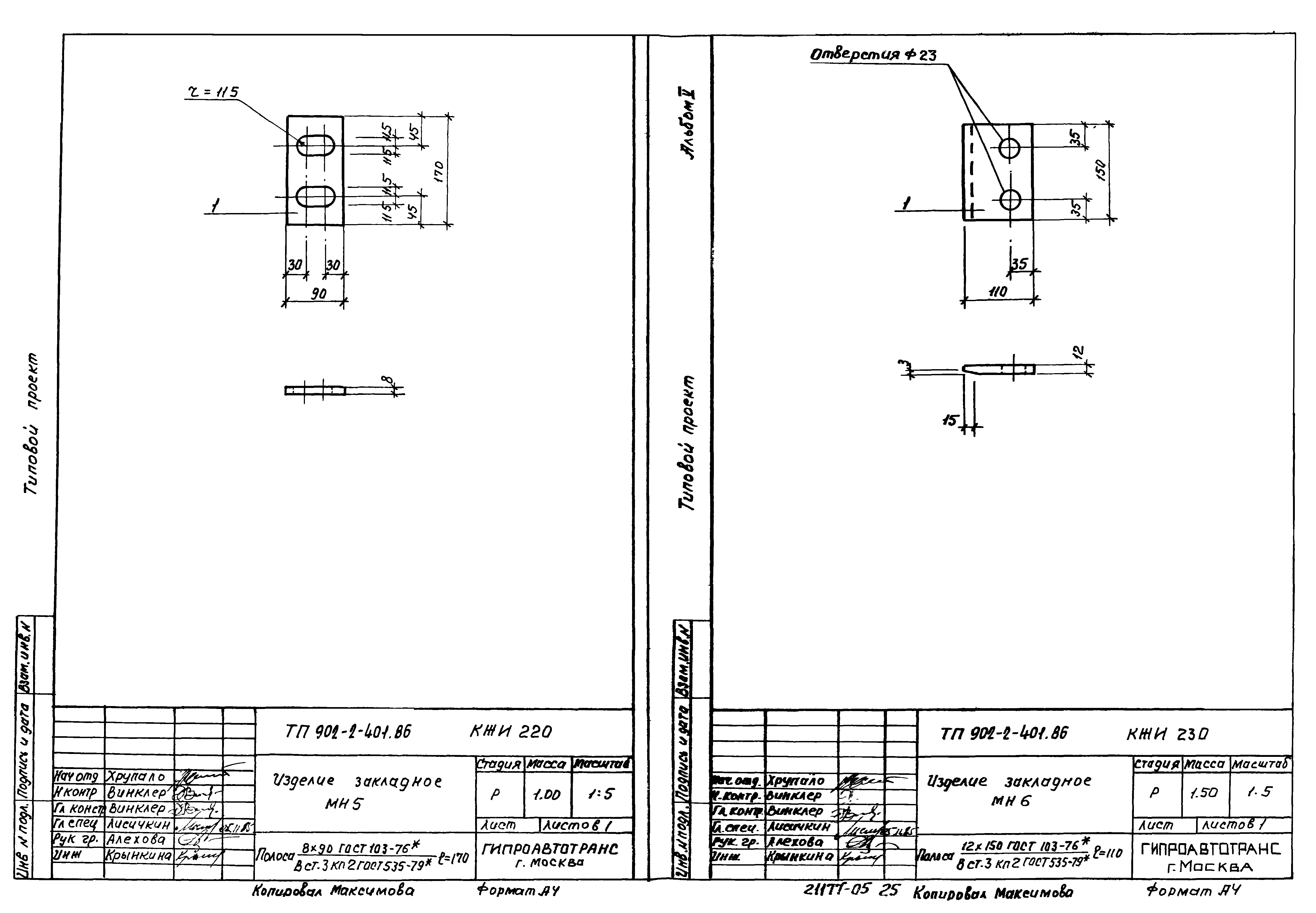
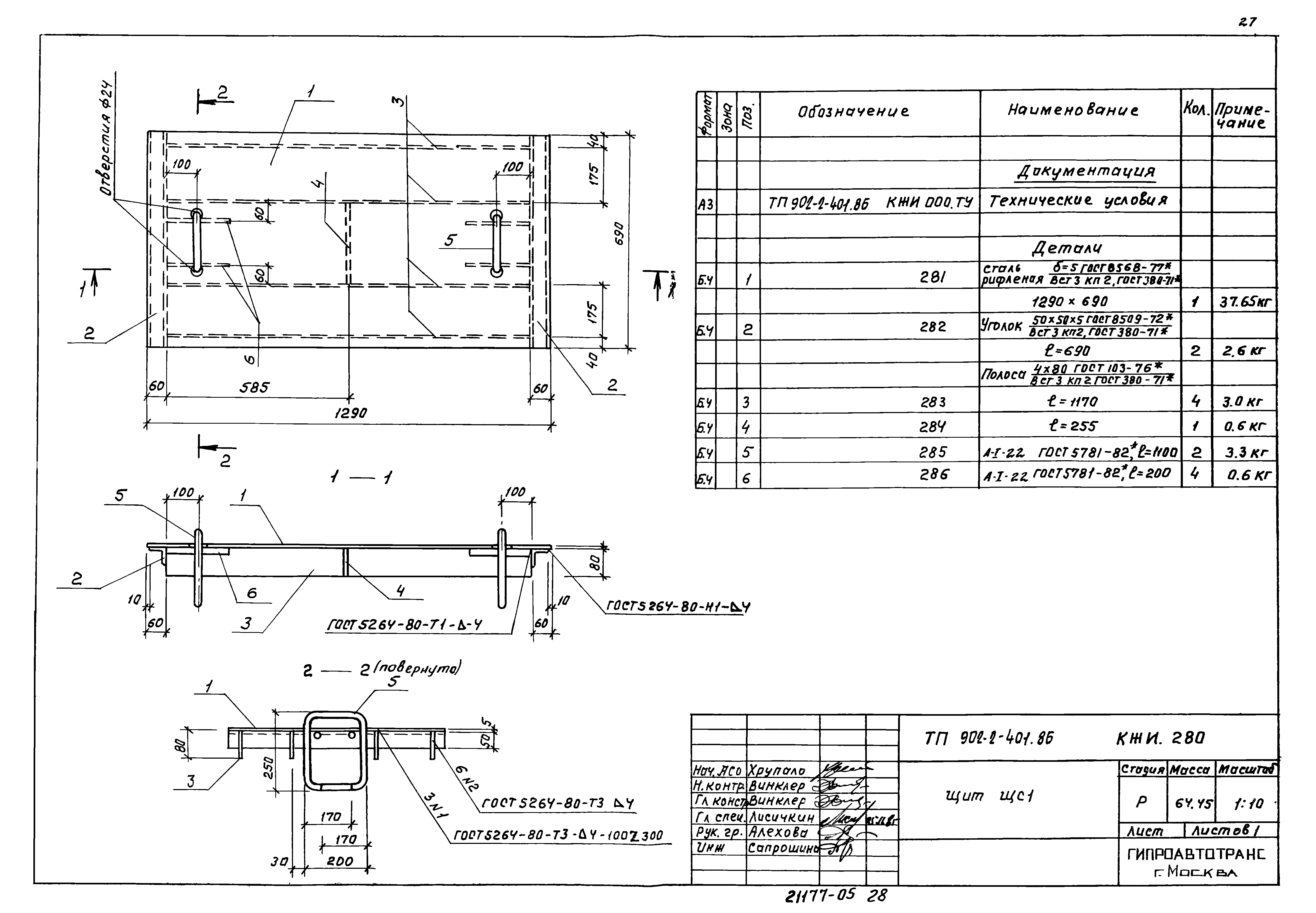
| Оглавление: | ТП 902-2-401.86 Титульный лист ТП 902-2-401.86 Содержание альбома ТП 902-2-401.86-КЖИ.000.ТУ Технические условия ТП 902-2-401.86-КЖИ.010 Колонна К1 ТП 902-2-401.86-КЖИ.020 Колонна К2 ТП 902-2-401.86-КЖИ.030 Колонна К3 ТП 902-2-401.86-КЖИ.040 Колонна К4 ТП 902-2-401.86-КЖИ.050 Колонна К5 ТП 902-2-401.86-КЖИ.060 Колонна К6 ТП 902-2-401.86-КЖИ.070 Колонна К7 ТП 902-2-401.86-КЖИ.080 Колонна К8 ТП 902-2-401.86-КЖИ.090 Колонна К9 ТП 902-2-401.86-КЖИ.100 Балки Б1,Б2,Б3 ТП 902-2-401.86-КЖИ.100 СБ Балки Б1,Б2,Б3. Сборочный чертеж ТП 902-2-401.86-КЖИ.110 Плиты П2,П3,П4 ТП 902-2-401.86-КЖИ.120 Плиты П6,П7 ТП 902-2-401.86-КЖИ.130 Плиты П8,П9,П10 ТП 902-2-401.86-КЖИ.140 Панель ПС15 ТП 902-2-401.86-КЖИ.150 Панель ПС19 ТП 902-2-401.86-КЖИ.160 Панель ПС20 ТП 902-2-401.86-КЖИ.170 Рамки РМ1,РМ2 ТП 902-2-401.86-КЖИ.170 СБ Рамки РМ1,РМ2. Сборочный чертеж ТП 902-2-401.86-КЖИ.180 Изделие закладное МН1 ТП 902-2-401.86-КЖИ.190 Изделие закладное МН2 ТП 902-2-401.86-КЖИ.200 Изделие закладное МН3 ТП 902-2-401.86-КЖИ.210 Изделие закладное МН4 ТП 902-2-401.86-КЖИ.220 Изделие закладное МН5 ТП 902-2-401.86-КЖИ.230 Изделие закладное МН6 ТП 902-2-401.86-КЖИ.240 Каркасы КР1,КР2 ТП 902-2-401.86-КЖИ.250 Сетка С1 ТП 902-2-401.86-КЖИ.260 Сетка С2 ТП 902-2-401.86-КЖИ.270 Насадка НС1 ТП 902-2-401.86-КЖИ.280 Щит ЩС1 ТП 902-2-401.86-КЖИ.290 Каркас деревянный КРД1 |
| Разработан: | Гипроавтотранс |
| Утверждён: | 27.03.1985 Минавтотранс РСФСР (Russian Federation Minavtotrans 55) |
| Чем заменён: |





























