Скачать Типовой проект 902-2-377.83 Альбом VII. Нестандартизированное оборудование. Затворы щитовые, установка сигнализатора уровня осадка и фасонные частиДата актуализации: 01.01.2021
|
| Обозначение: | Типовой проект 902-2-377.83 |
| Обозначение англ: | 902-2-377.83 |
| Статус: | заменен |
| Название рус.: | Альбом VII. Нестандартизированное оборудование. Затворы щитовые, установка сигнализатора уровня осадка и фасонные части |
| Дата добавления в базу: | 01.09.2013 |
| Дата актуализации: | 01.01.2021 |
| Дата введения: | 27.07.1983 |
| Дата окончания срока действия: | 01.03.1990 |
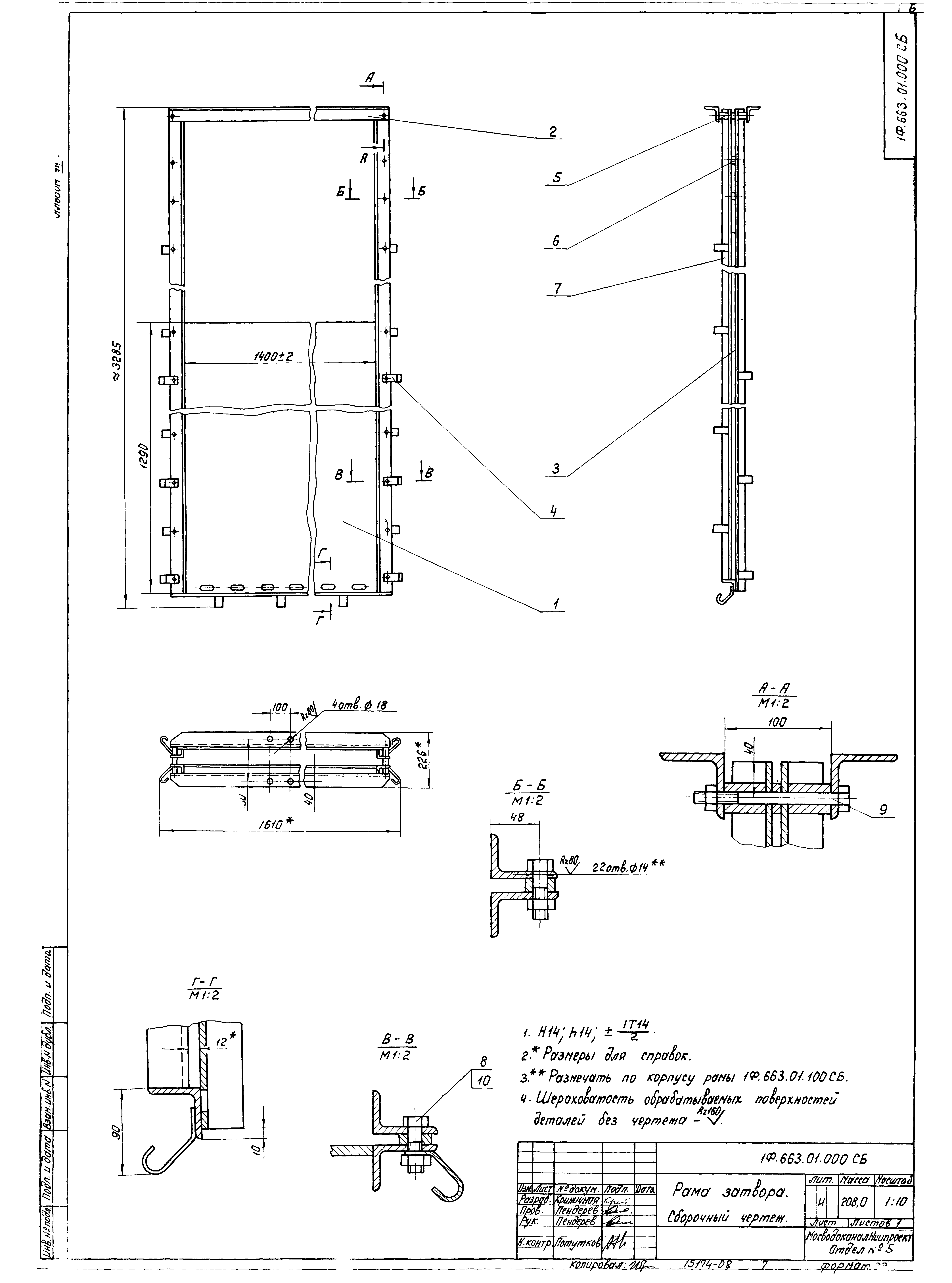
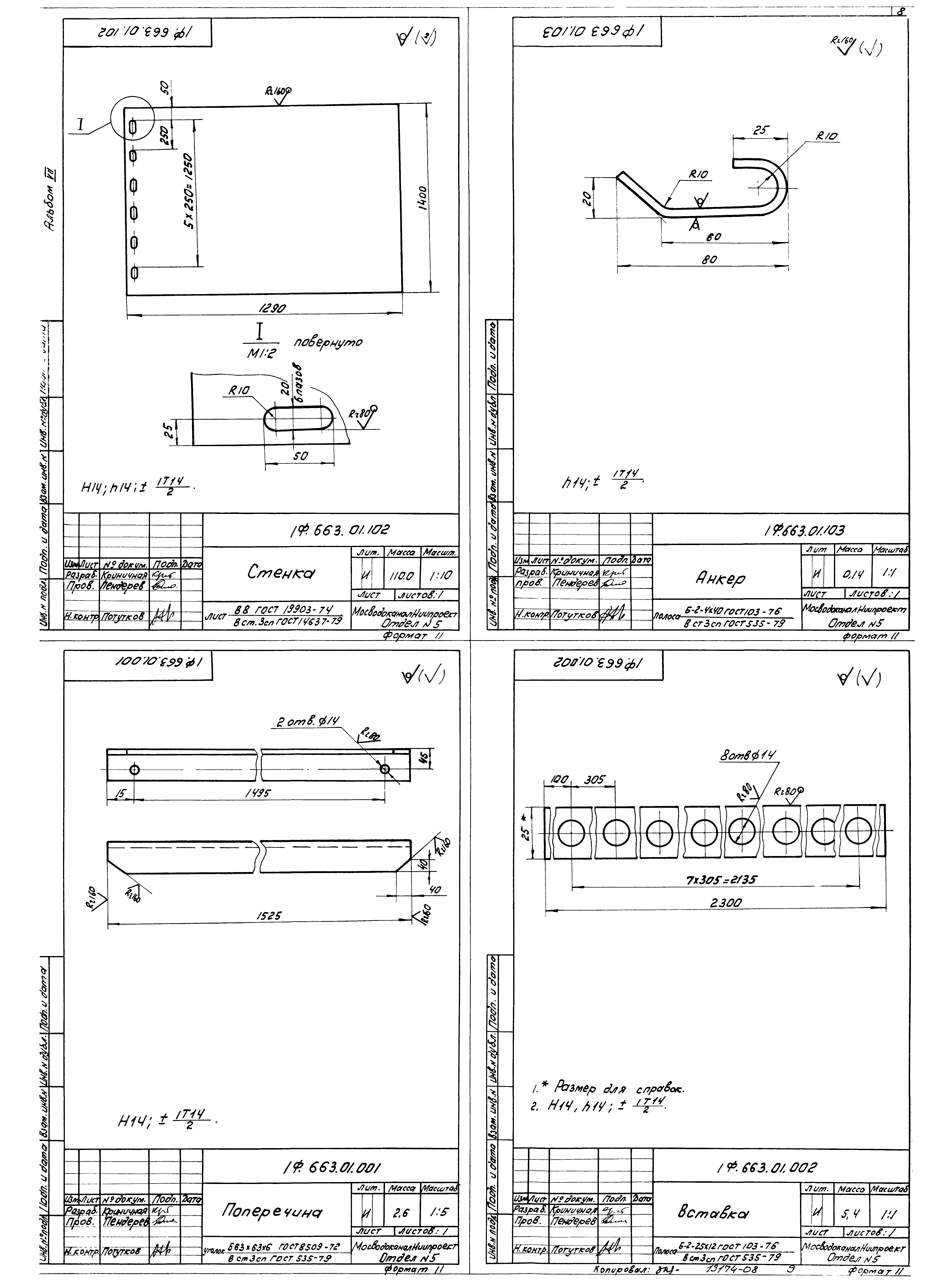
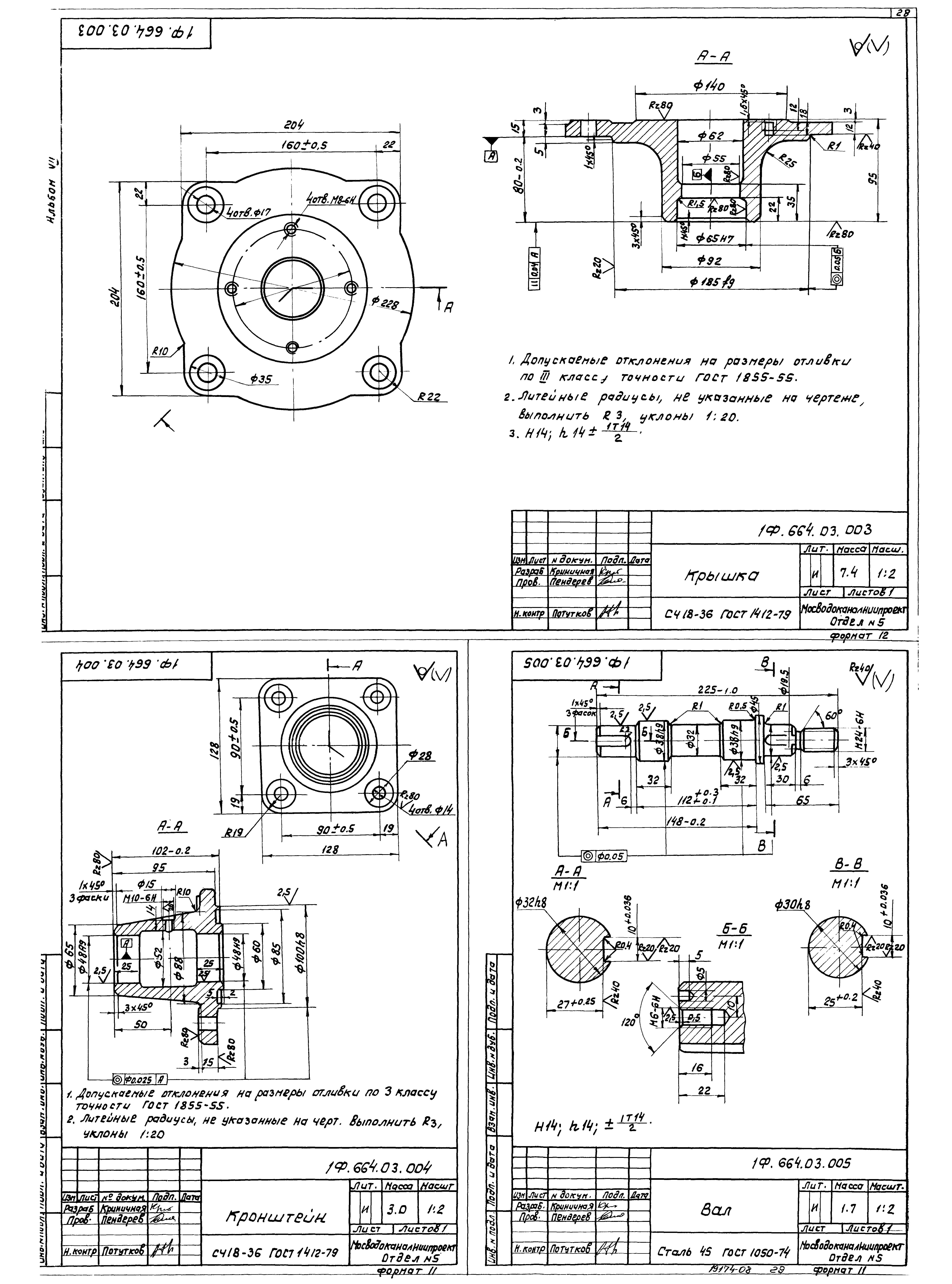
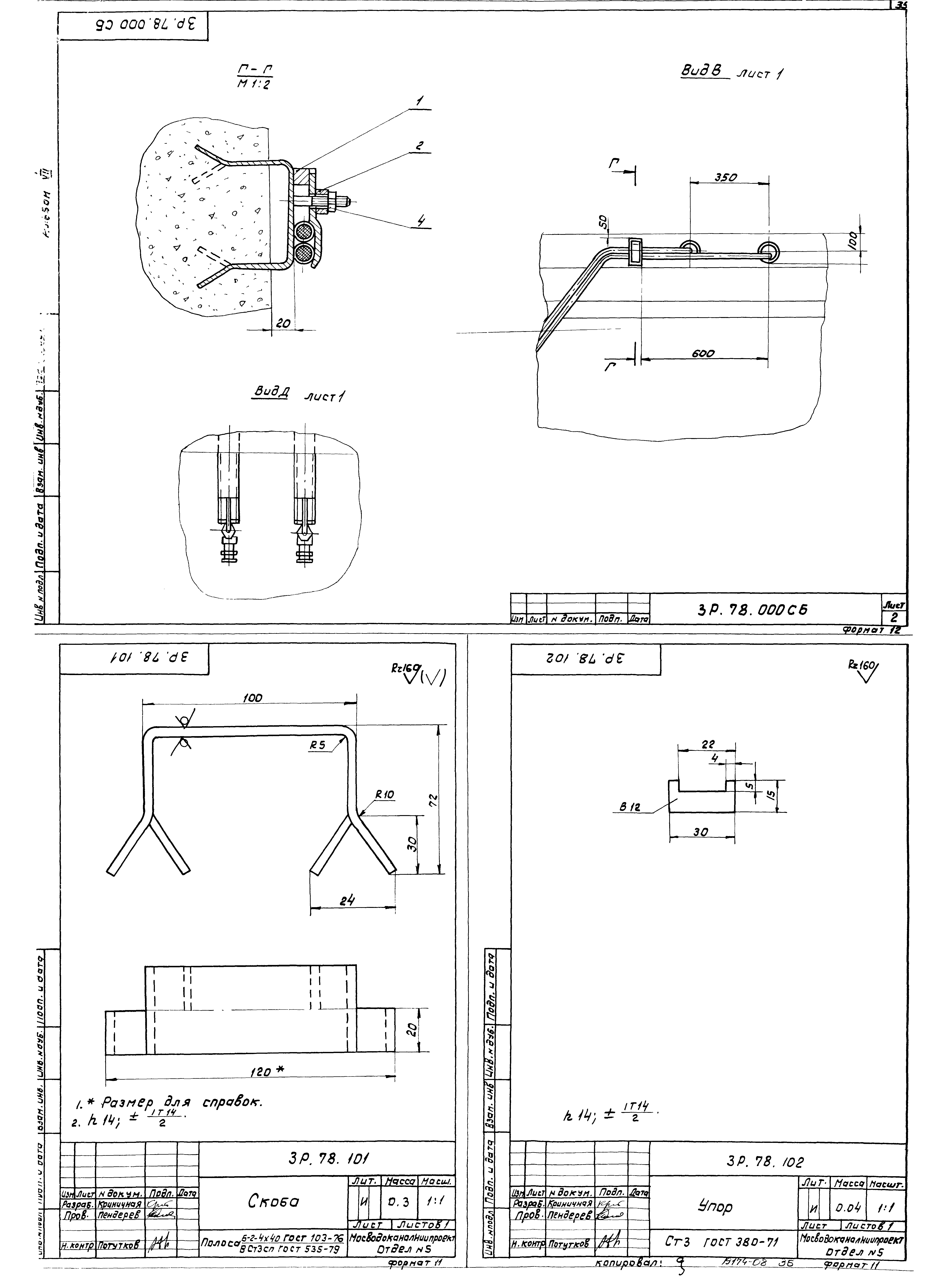
| Оглавление: | ТП 902-2-377.83 Титульный лист ТП 902-2-377.83 Содержание альбома ТП 902-2-377.83 1Ф.663.00.000 ВП Затвор плоский регулирующий с водосливом В=1300. Ведомость покупных изделий ТП 902-2-377.83 1Ф.663.00.000 СБ Затвор плоский регулирующий с водосливом В=1300. Сборочный чертеж ТП 902-2-377.83 1Ф.663.00.000 Затвор плоский регулирующий с водосливом В=1300. Спецификация. Лист 1-2 ТП 902-2-377.83 1Ф.663.01.000 Рама затвора. Спецификация. Лист 1-2 ТП 902-2-377.83 1Ф.663.01.000 СБ Рама затвора. Сборочный чертеж ТП 902-2-377.83 1Ф.663.01.100 СБ Корпус рамы. Сборочный чертеж ТП 902-2-377.83 1Ф.663.01.100 Корпус рамы. Спецификация ТП 902-2-377.83 1Ф.663.01.101 Направляющая ТП 902-2-377.83 1Ф.663.01.102 Стенка ТП 902-2-377.83 1Ф.663.01.103 Анкер ТП 902-2-377.83 1Ф.663.01.001 Поперечина ТП 902-2-377.83 1Ф.663.01.002 Вставка ТП 902-2-377.83 1Ф.663.01.003 Анкер ТП 902-2-377.83 1Ф.663.02.000 Щит с водосливом. Спецификация ТП 902-2-377.83 1Ф.663.02.000 СБ Щит с водосливом. Сборочный чертеж ТП 902-2-377.83 1Ф.663.02.001 Ушко ТП 902-2-377.83 1Ф.663.02.002 Полоса ТП 902-2-377.83 1Ф.663.02.003 Ребро ТП 902-2-377.83 1Ф.663.02.004 Лист ТП 902-2-377.83 1Ф.663.03.001 Гайка ТП 902-2-377.83 1Ф.663.03.000 Подпятник. Спецификация. Лист 1-2 ТП 902-2-377.83 1Ф.663.03.000 СБ Подпятник. Сборочный чертеж ТП 902-2-377.83 1Ф.663.03.100 СБ Основание. Сборочный чертеж ТП 902-2-377.83 1Ф.663.03.100 Основание. Спецификация ТП 902-2-377.83 1Ф.663.03.200 Корпус. Спецификация ТП 902-2-377.83 1Ф.663.03.200 СБ Корпус. Сборочный чертеж ТП 902-2-377.83 1Ф.663.03.101 Фланец ТП 902-2-377.83 1Ф.663.03.202 Обечайка ТП 902-2-377.83 1Ф.663.03.203 Фланец ТП 902-2-377.83 1Ф.663.03.002 Втулка кулачковая ТП 902-2-377.83 1Ф.663.04.000 Колпак. Спецификация ТП 902-2-377.83 1Ф.663.04.000 СБ Колпак. Сборочный чертеж ТП 902-2-377.83 1Ф.663.04.001 Фланец ТП 902-2-377.83 1Ф.663.00.001 Штанга винтовая ТП 902-2-377.83 1Ф.663.00.002 Ось ТП 902-2-377.83 1Ф.664.00.001 Ограждение ТП 902-2-377.83 1Ф.664.00.000 ВП Затвор плоский поверхностный 2200х1000. Ведомость покупных изделий ТП 902-2-377.83 1Ф.664.00.000 Затвор плоский поверхностный 2200х1000. Спецификация. Лист 1-2 ТП 902-2-377.83 1Ф.664.00.000 СБ Затвор плоский поверхностный 2200х1000. Сборочный чертеж ТП 902-2-377.83 1Ф.664.01.000 СБ Рама затвора. Сборочный чертеж ТП 902-2-377.83 1Ф.664.01.000 Рама затвора. Спецификация. Лист 1-2 ТП 902-2-377.83 1Ф.664.01.100 СБ Рама верхняя. Сборочный чертеж ТП 902-2-377.83 1Ф.664.01.100 Рама верхняя. Спецификация ТП 902-2-377.83 1Ф.664.01.101 Ребро ТП 902-2-377.83 1Ф.664.01.001 Кронштейн ТП 902-2-377.83 1Ф.664.01.002 Кронштейн ТП 902-2-377.83 1Ф.664.01.003 Направляющая ТП 902-2-377.83 1Ф.664.01.004 Анкер ТП 902-2-377.83 1Ф.664.01.005 Прокладка ТП 902-2-377.83 1Ф.664.01.006 Угольник ТП 902-2-377.83 1Ф.664.01.007 Уплотнение ТП 902-2-377.83 1Ф.664.02.000 Щит. Спецификация ТП 902-2-377.83 1Ф.664.02.000 СБ Щит. Сборочный чертеж ТП 902-2-377.83 1Ф.664.02.100 СБ Металлоконструкция щита. Сборочный чертеж ТП 902-2-377.83 1Ф.664.02.100 Металлоконструкция щита. Спецификация ТП 902-2-377.83 1Ф.664.02.101 Ригель ТП 902-2-377.83 1Ф.664.02.102 Ребро ТП 902-2-377.83 1Ф.664.02.103 Ушко ТП 902-2-377.83 1Ф.664.02.104 Упор ТП 902-2-377.83 1Ф.664.02.001 Уплотнение ТП 902-2-377.83 1Ф.664.02.002 Накладка ТП 902-2-377.83 1Ф.664.03.000 Головка штанговая. Спецификация. Лист 1-2 ТП 902-2-377.83 1Ф.664.03.001 Кольцо сферическое нижнее ТП 902-2-377.83 1Ф.664.03.000 СБ Головка штанговая. Сборочный чертеж ТП 902-2-377.83 1Ф.664.03.002 Корпус ТП 902-2-377.83 1Ф.664.03.003 Крышка ТП 902-2-377.83 1Ф.664.03.004 Кронштейн ТП 902-2-377.83 1Ф.664.03.005 Вал ТП 902-2-377.83 1Ф.664.03.006 Шестерня коническая ТП 902-2-377.83 1Ф.664.03.007 Колесо коническое ТП 902-2-377.83 1Ф.664.03.008 Гайка ТП 902-2-377.83 1Ф.664.03.009 Втулка ТП 902-2-377.83 1Ф.664.03.011 Кольцо сферическое верхнее ТП 902-2-377.83 1Ф.664.03.012 Планка стопорная ТП 902-2-377.83 1Ф.664.04.000 Маховик ТП 902-2-377.83 1Ф.664.04.001 Маховик ТП 902-2-377.83 1Ф.664.04.002 Ручка ТП 902-2-377.83 1Ф.664.05.000 Колпак. Спецификация ТП 902-2-377.83 1Ф.664.05.000 СБ Колпак. Сборочный чертеж ТП 902-2-377.83 1Ф.664.05.001 Фланец ТП 902-2-377.83 1Ф.664.00.002 Прокладка ТП 902-2-377.83 1Ф.664.00.003 Штанга винтовая ТП 902-2-377.83 1Ф.664.00.004 Палец ТП 902-2-377.83 3Р.78.000 Установка сигнализатора уровня ила с фотосопротивлением. Спецификация ТП 902-2-377.83 3Р.78.100 Скоба закладная. Спецификация ТП 902-2-377.83 3Р.78.100 СБ Скоба закладная. Сборочный чертеж ТП 902-2-377.83 3Р.78.000 СБ Установка сигнализатора уровня ила с фотосопротивлением. . Сборочный чертеж. Лист 1 ТП 902-2-377.83 3Р.78.000 СБ Установка сигнализатора уровня ила с фотосопротивлением. Сборочный чертеж. Лист 2 ТП 902-2-377.83 3Р.78.101 Скоба ТП 902-2-377.83 3Р.78.102 Упор ТП 902-2-377.83 3Р.78.103 Шпилька ТП 902-2-377.83 3Р.78.200 Прижим. Спецификация ТП 902-2-377.83 3Р.78.200 СБ Прижим. Сборочный чертеж ТП 902-2-377.83 3Р.78.201 Полоса ТП 902-2-377.83 3Р.78.300 Патрубок закладной. Спецификация ТП 902-2-377.83 3Р.78.300 СБ Патрубок закладной. Сборочный чертеж ТП 902-2-377.83 3Р.78.301 Труба ТП 902-2-377.83 3Р.78.302 Пруток ТП 902-2-377.83 6С.53.129.000 СБ Тройник косой 45º 820х10-1020х10. Сборочный чертеж ТП 902-2-377.83 6С.53.129.000 Тройник косой 45º 820х10-1020х10. Спецификация ТП 902-2-377.83 6С.53.129.001 Патрубок ТП 902-2-377.83 6С.70.30 Патрубок 3030х10 |
| Разработан: | МосводоканалНИИпроект |
| Утверждён: | 27.07.1983 МосводоканалНИИпроект (169) |
| Заменяет собой: |
|
| Чем заменён: |






































