Скачать Типовой проект 902-1-98.84 Альбом II. Архитектурно-строительные решенияДата актуализации: 01.01.2021
|
| Обозначение: | Типовой проект 902-1-98.84 |
| Обозначение англ: | 902-1-98.84 |
| Статус: | не действует |
| Название рус.: | Альбом II. Архитектурно-строительные решения |
| Дата добавления в базу: | 01.09.2013 |
| Дата актуализации: | 01.01.2021 |
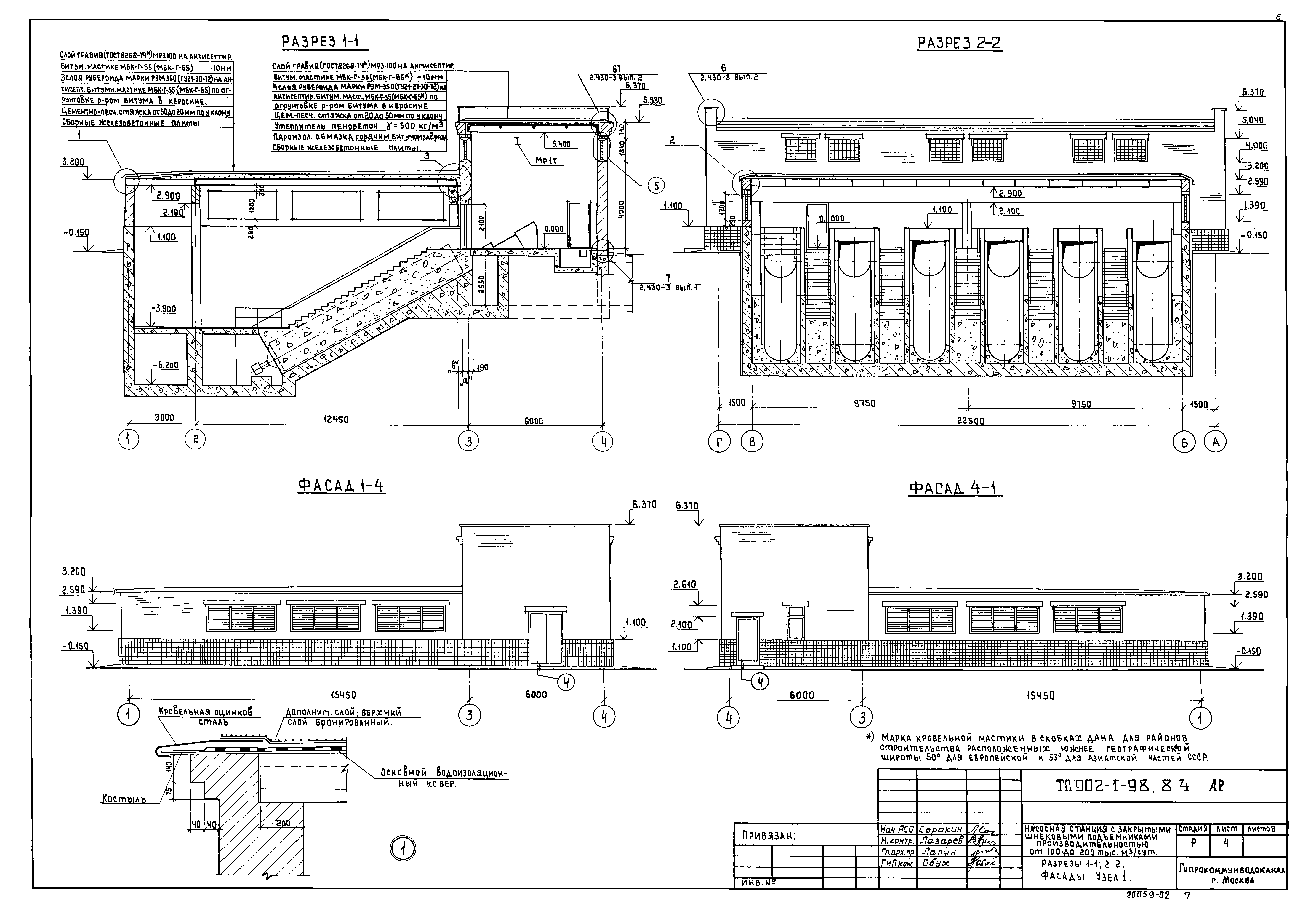
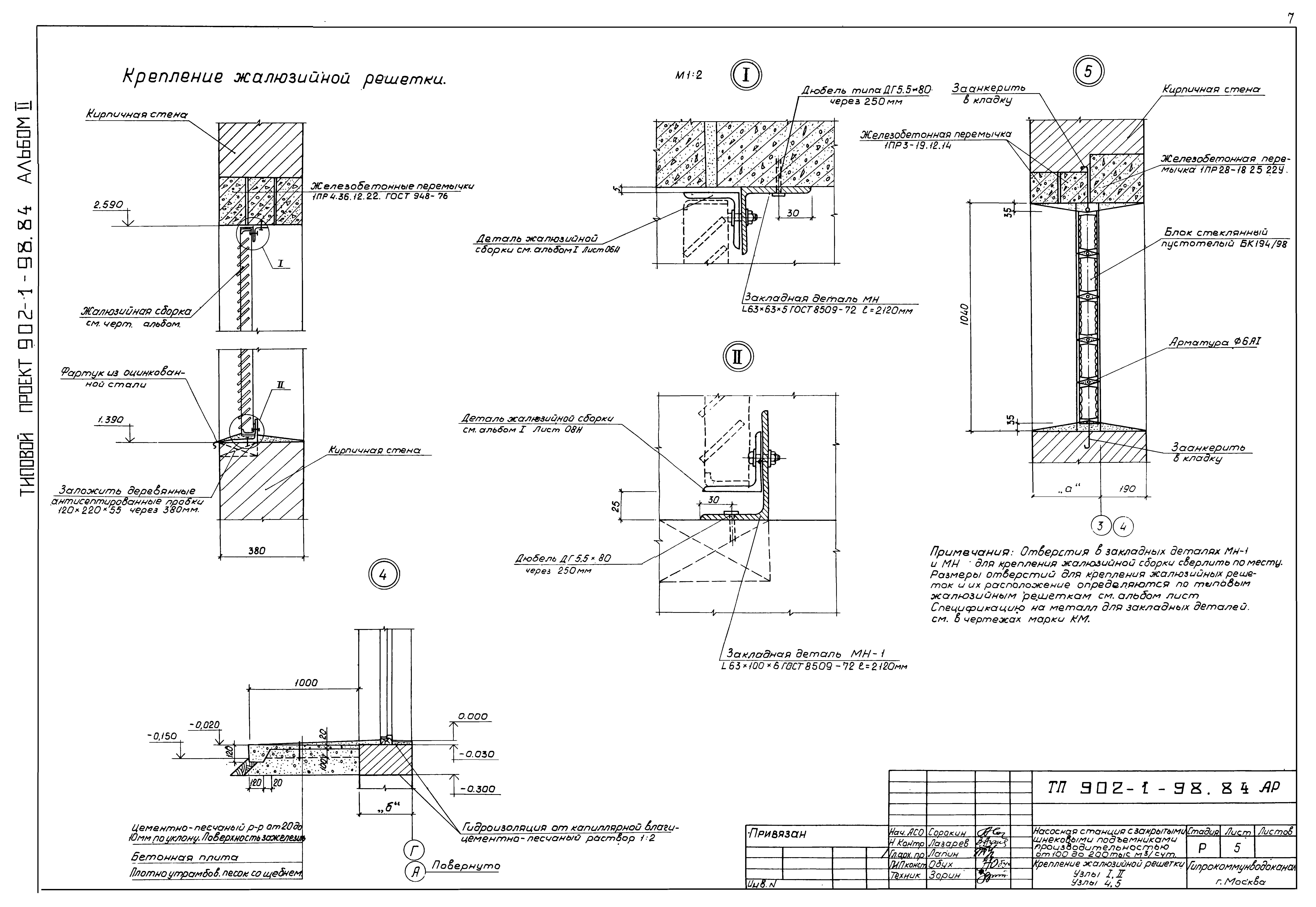
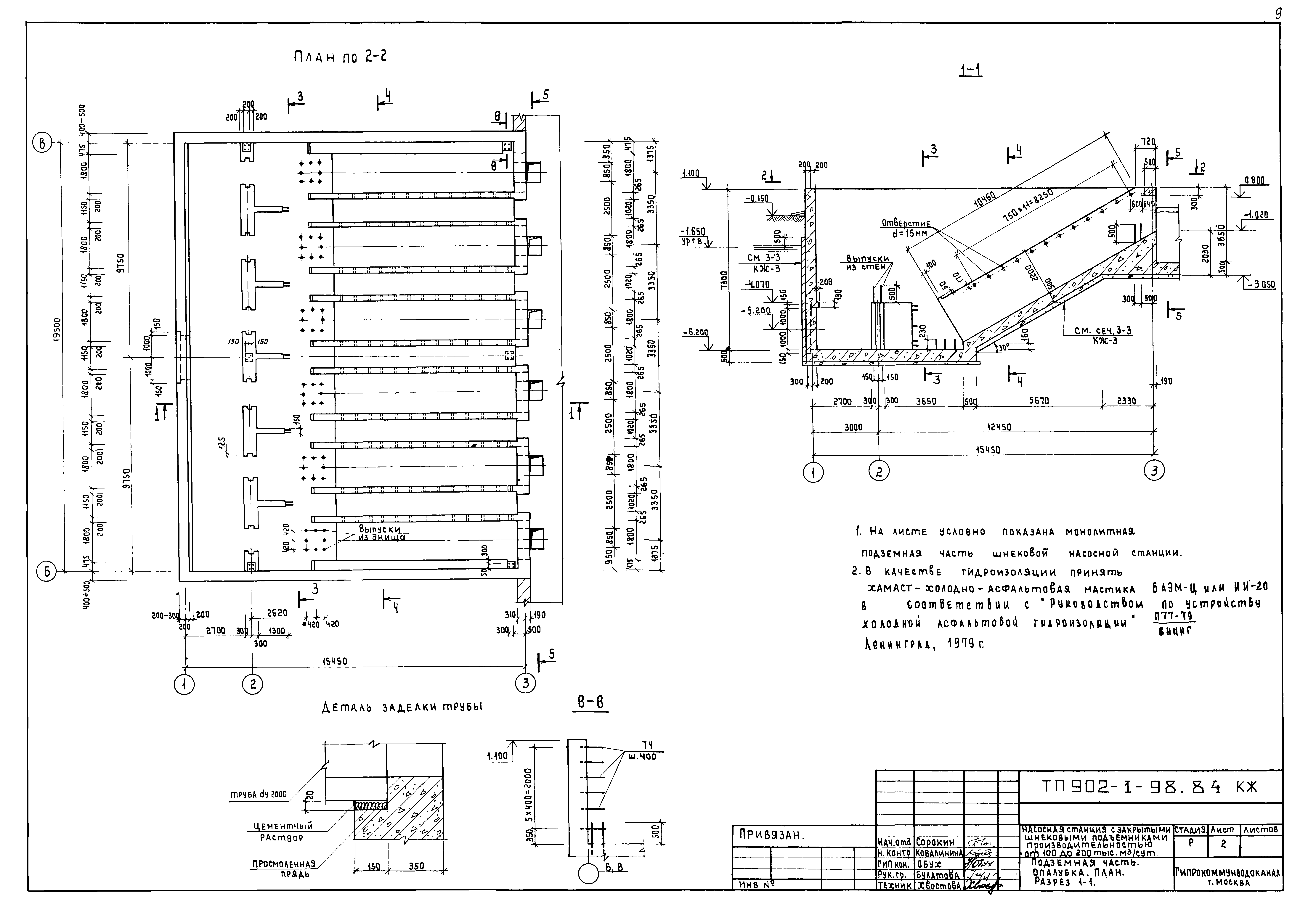
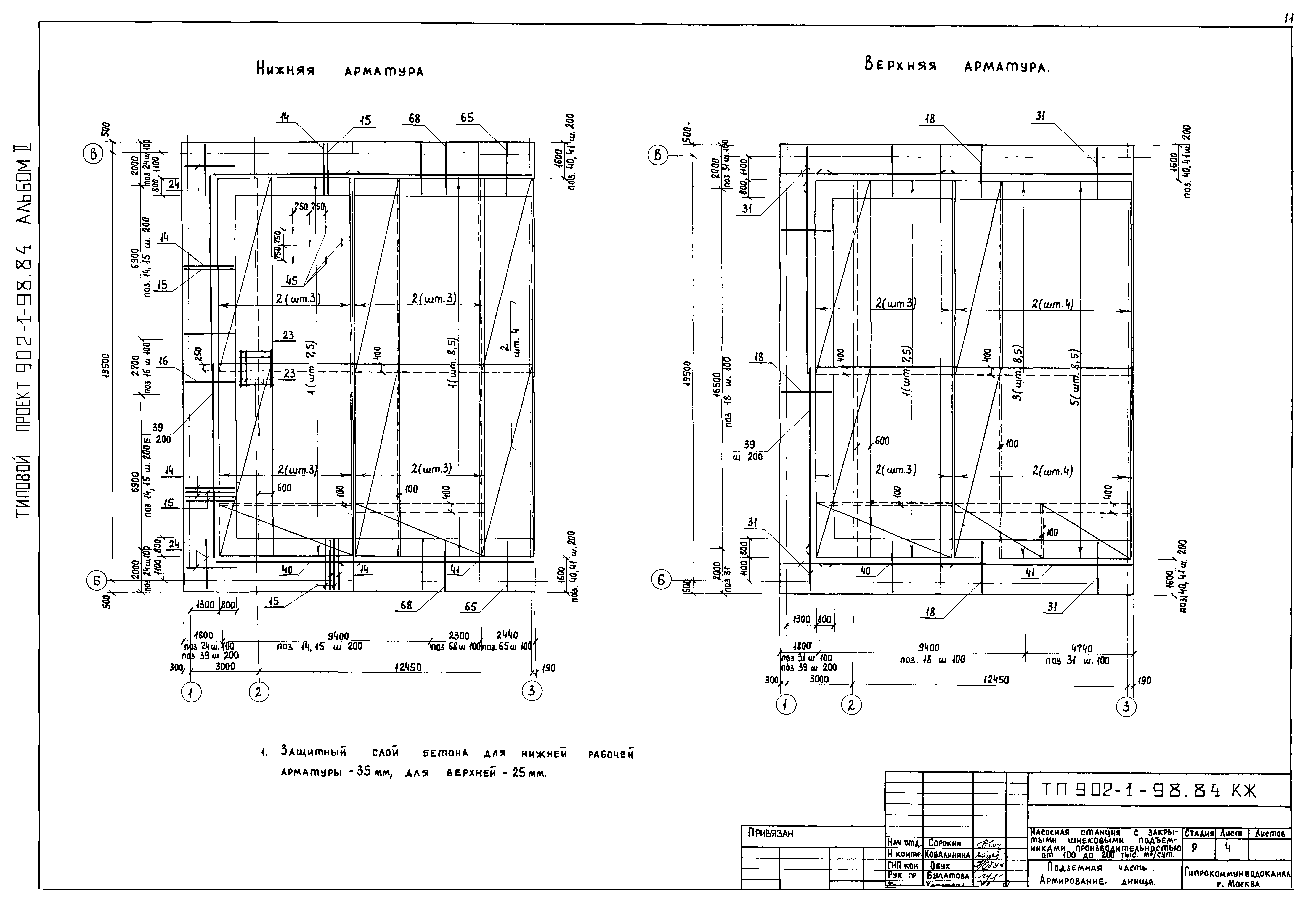
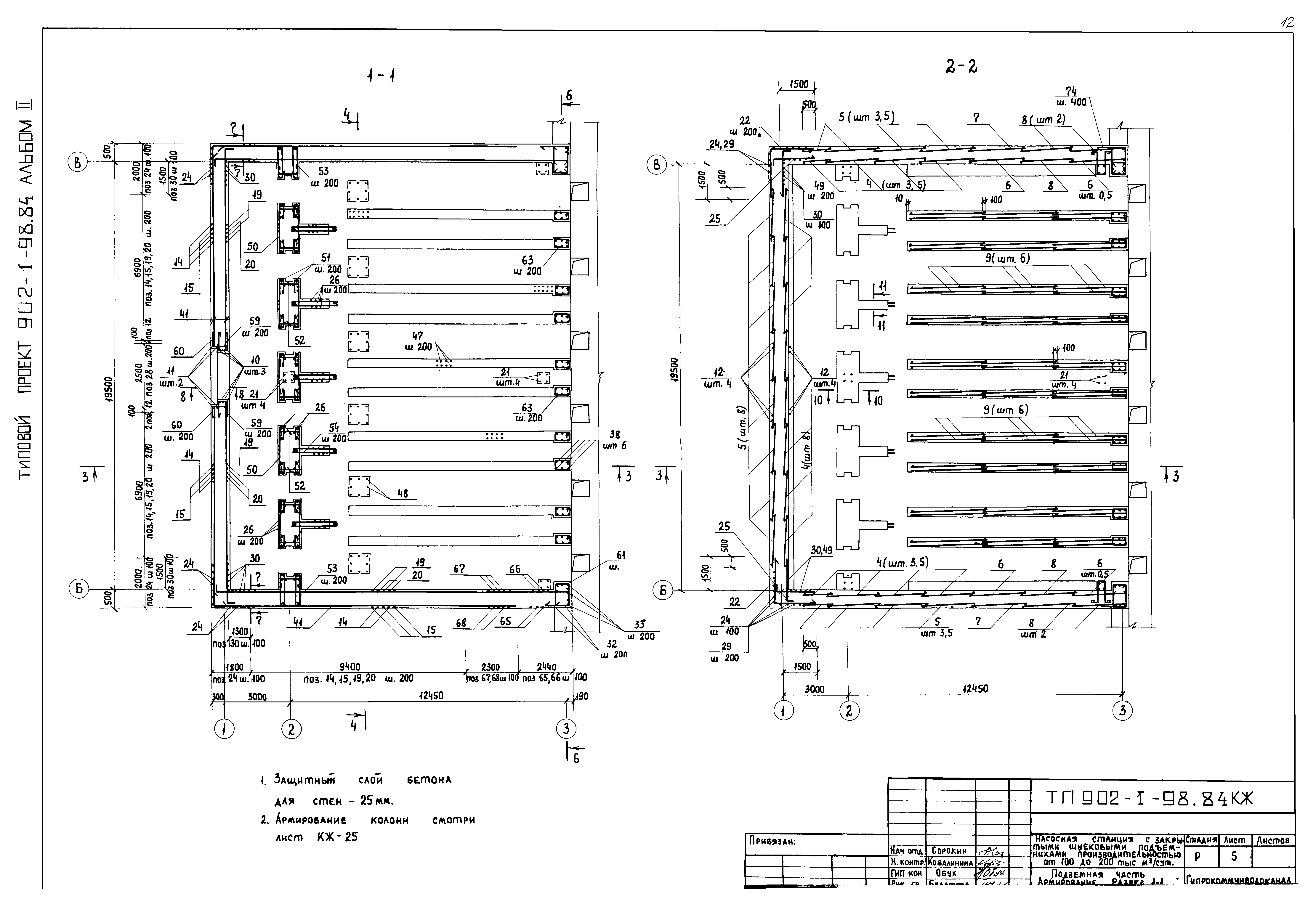
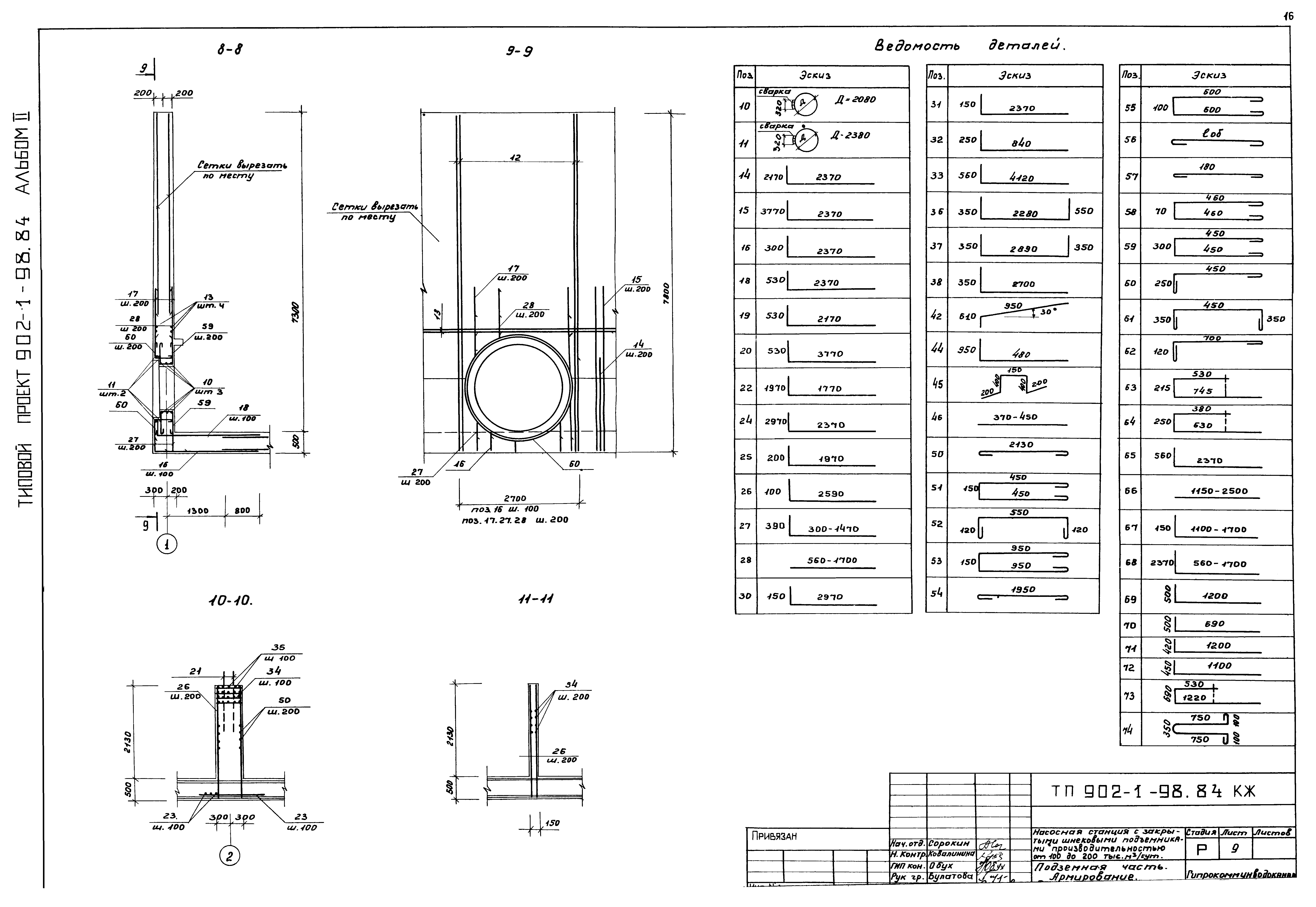
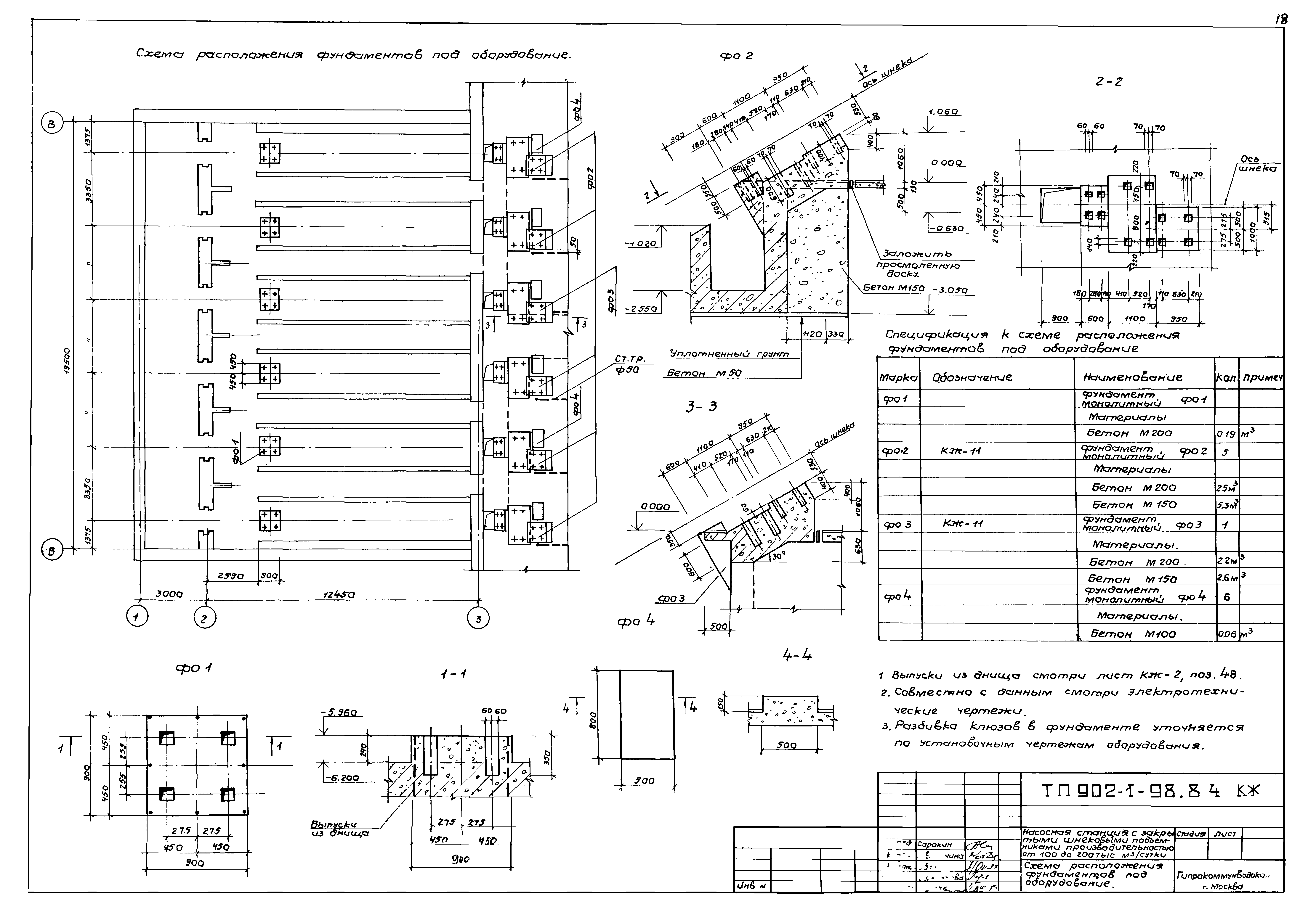
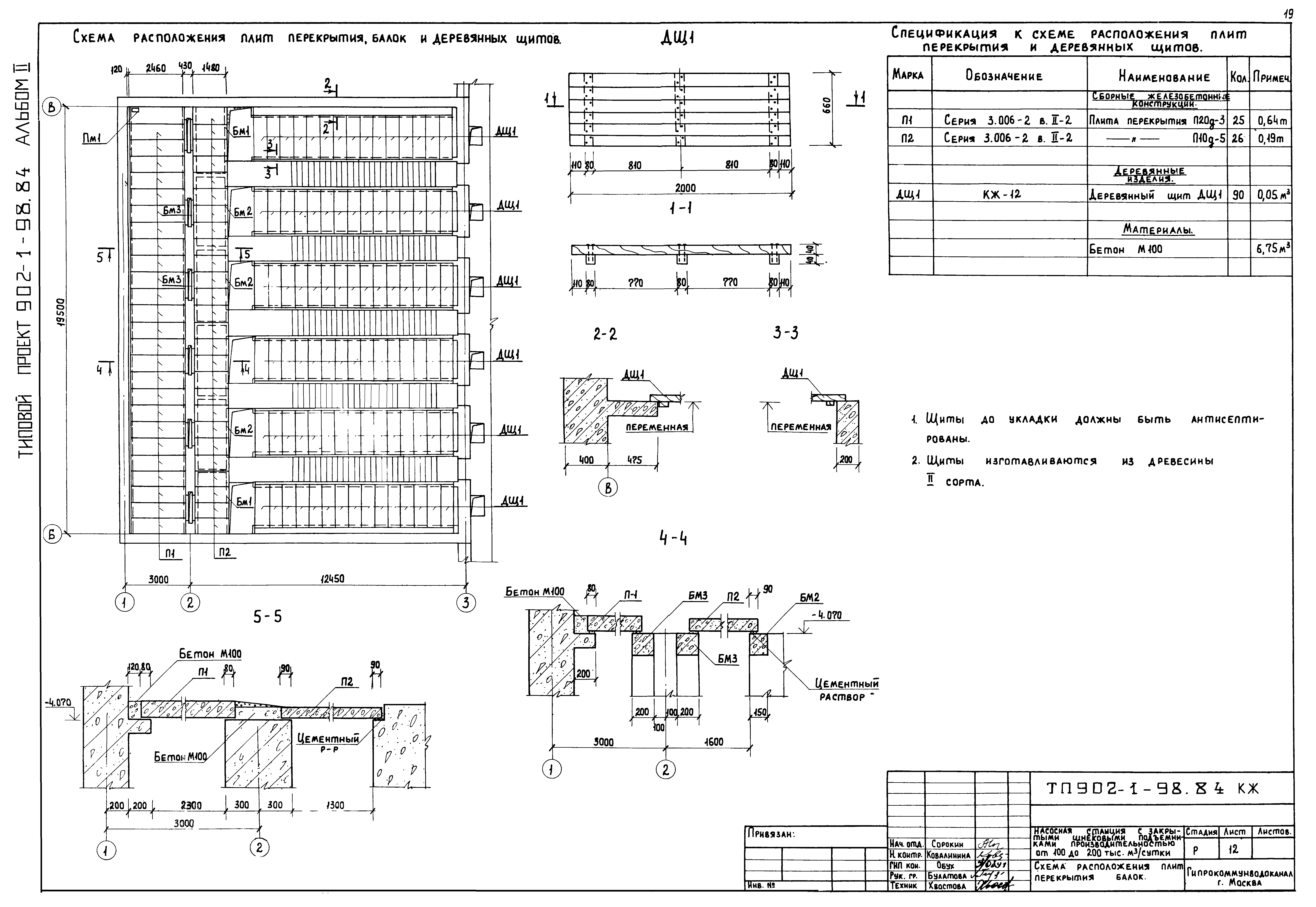
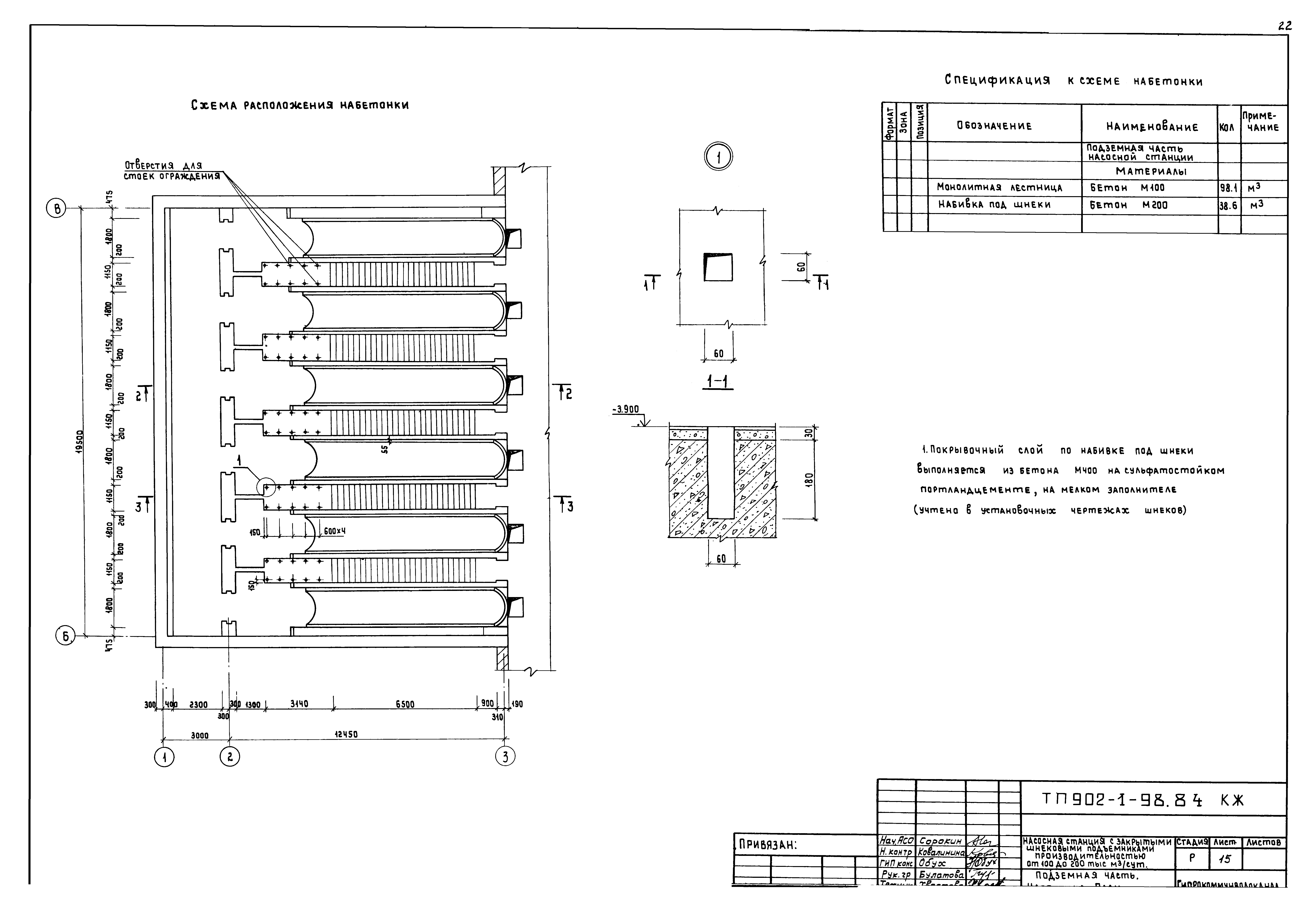
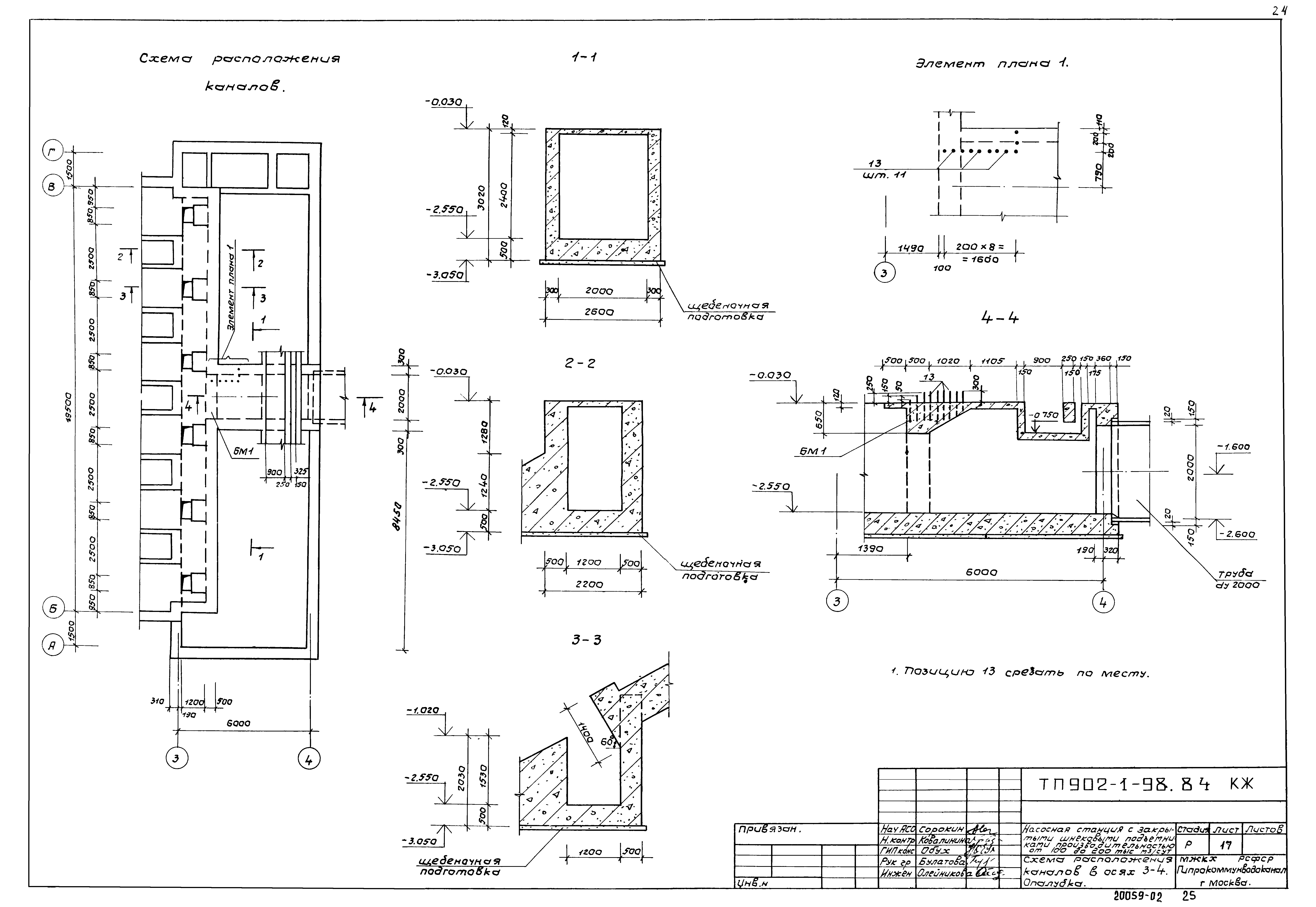
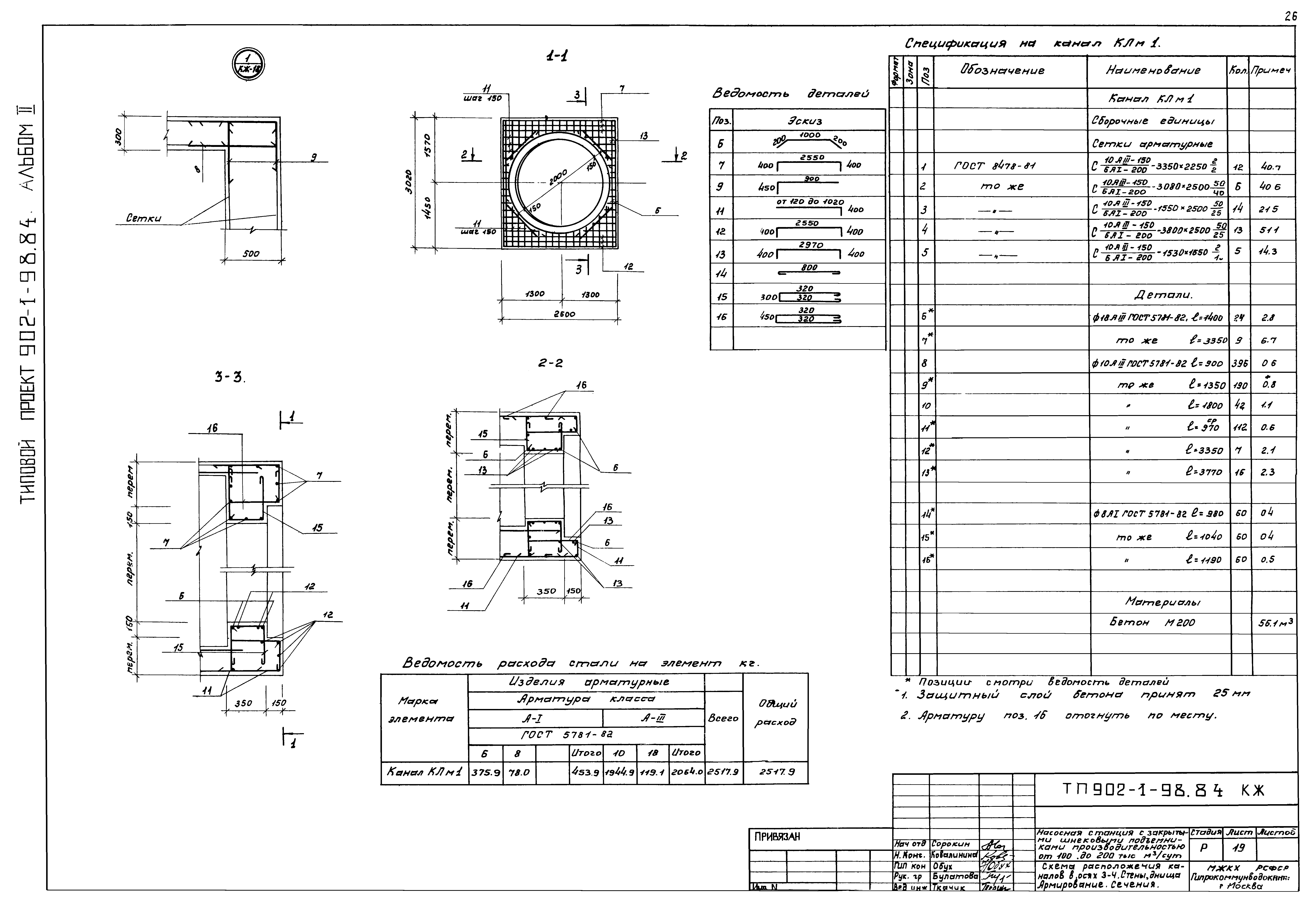
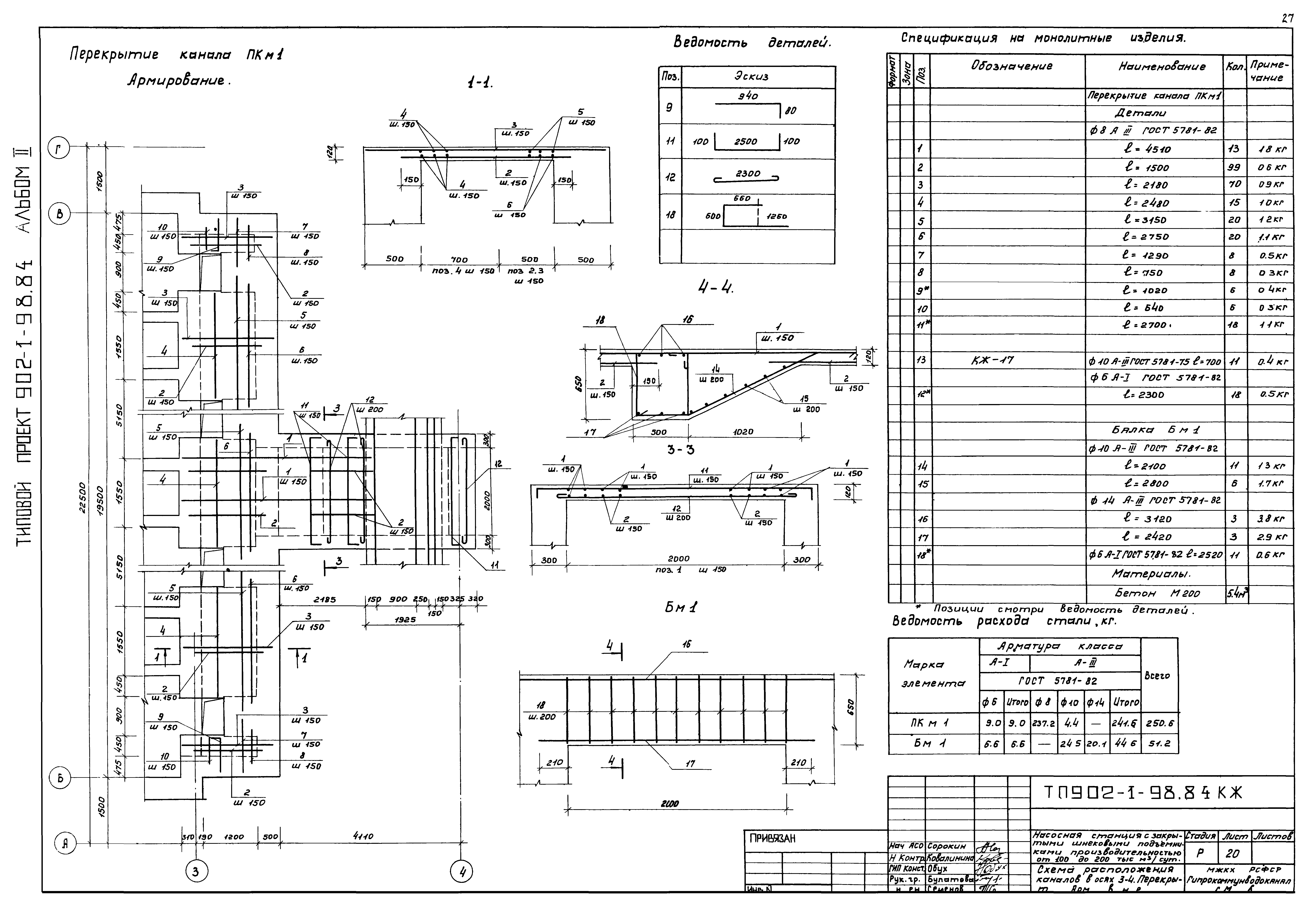
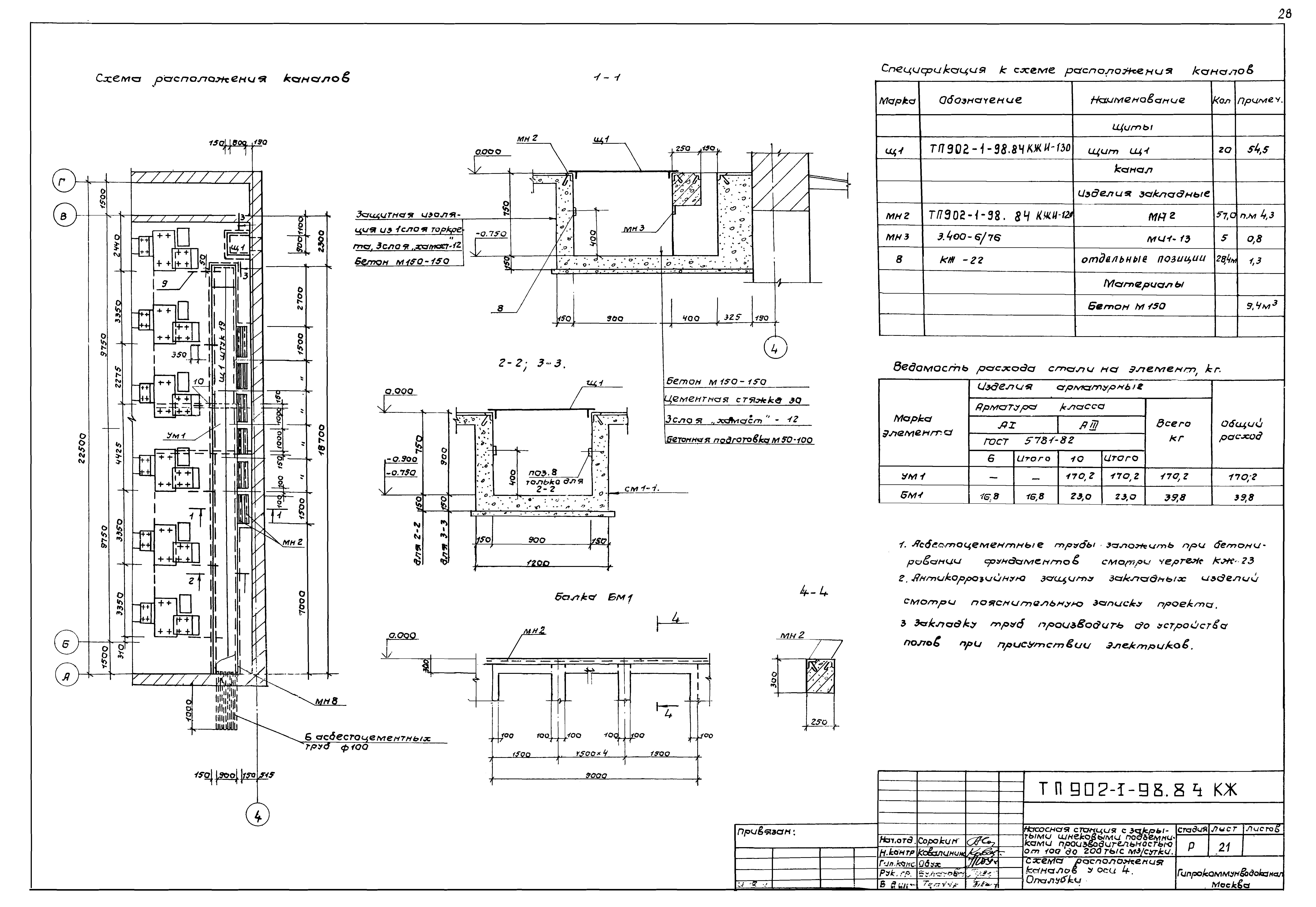
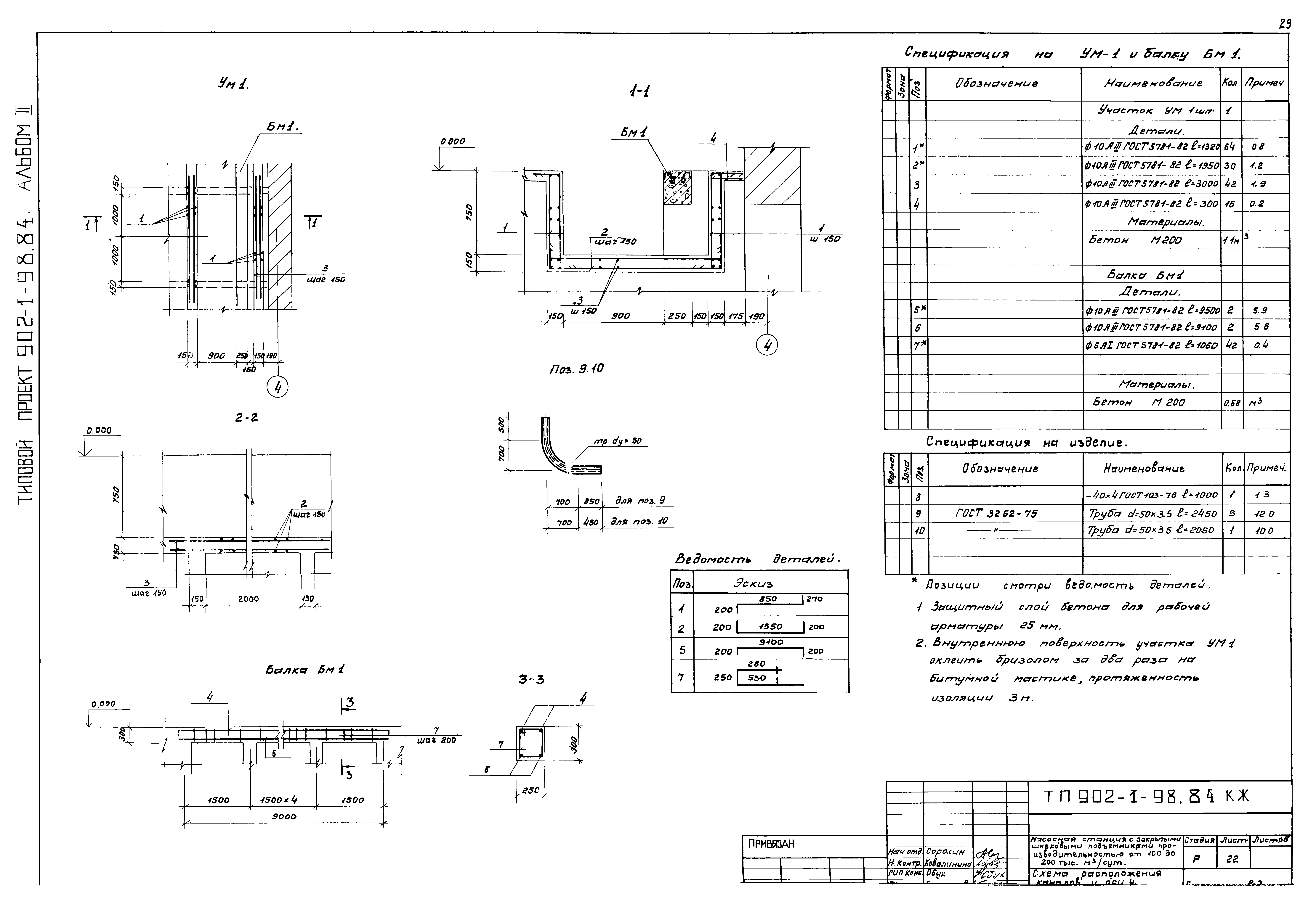
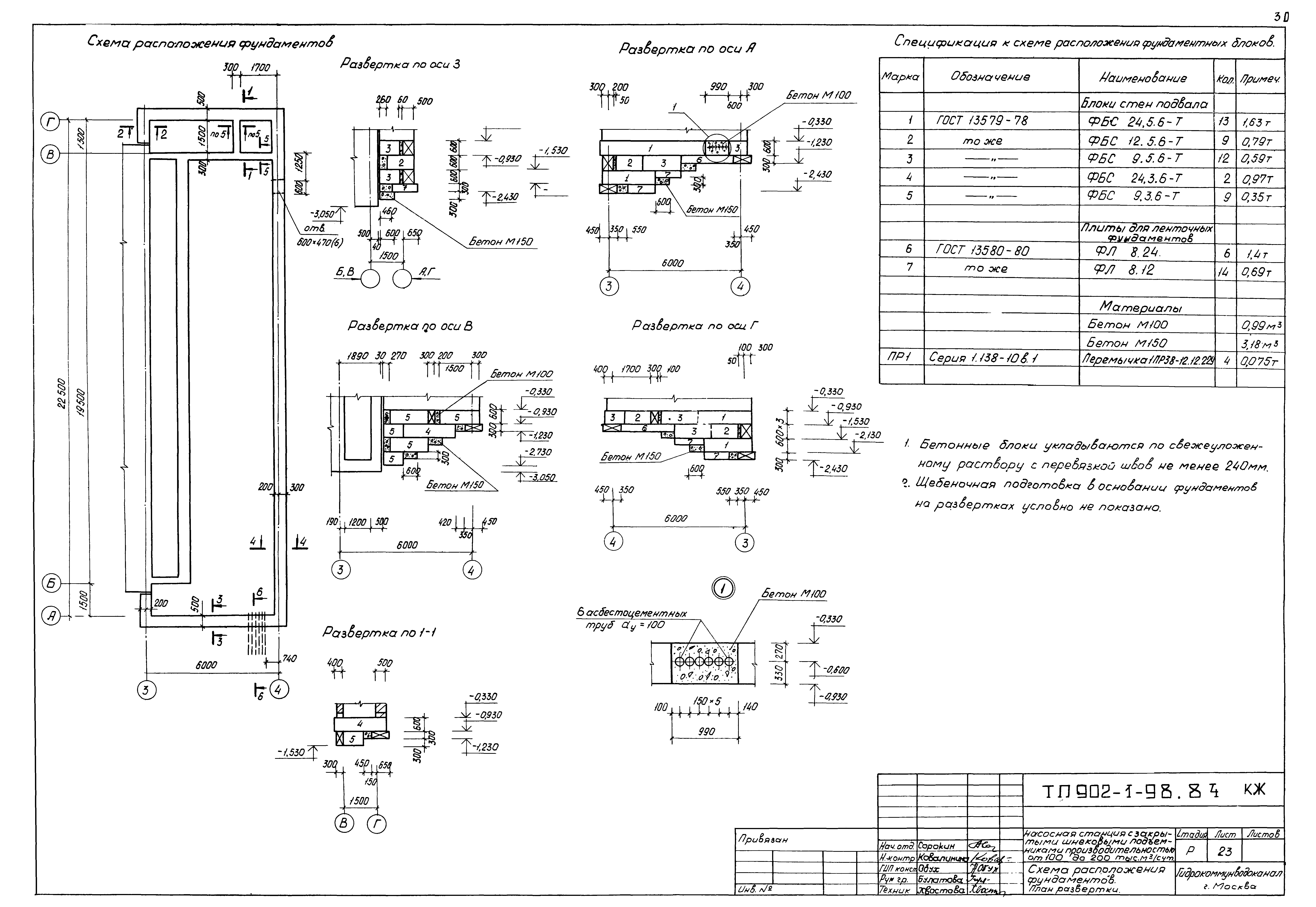
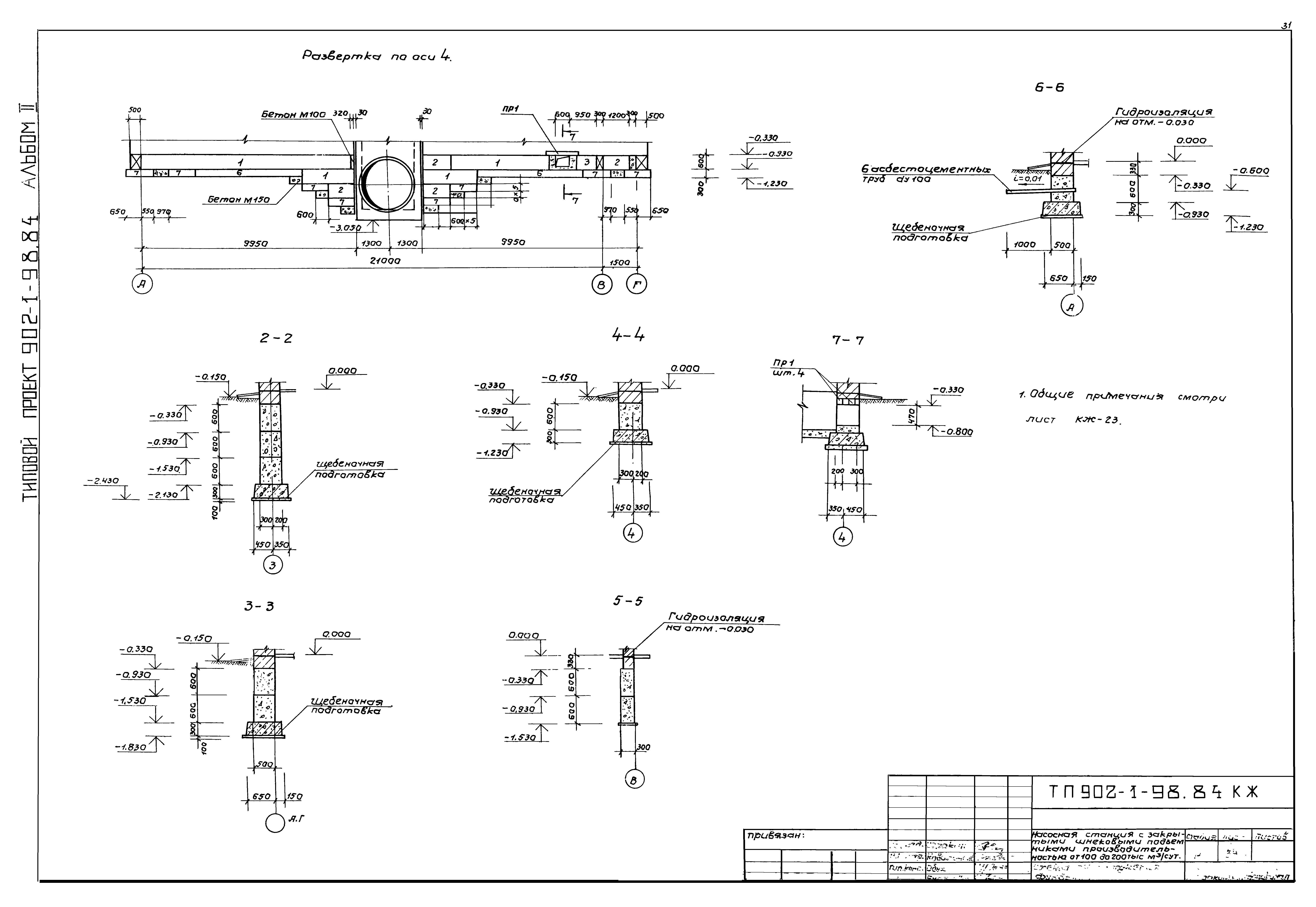
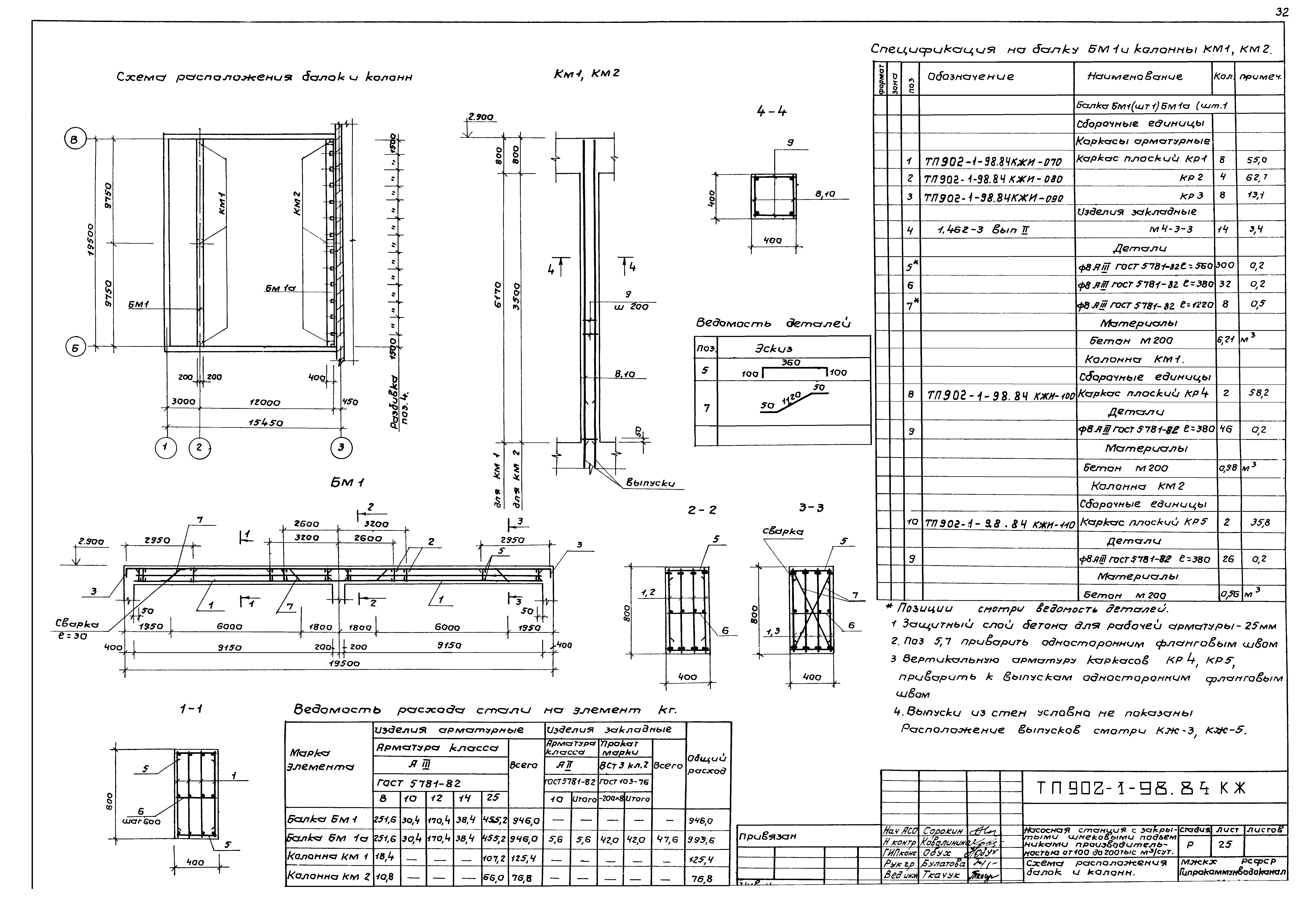
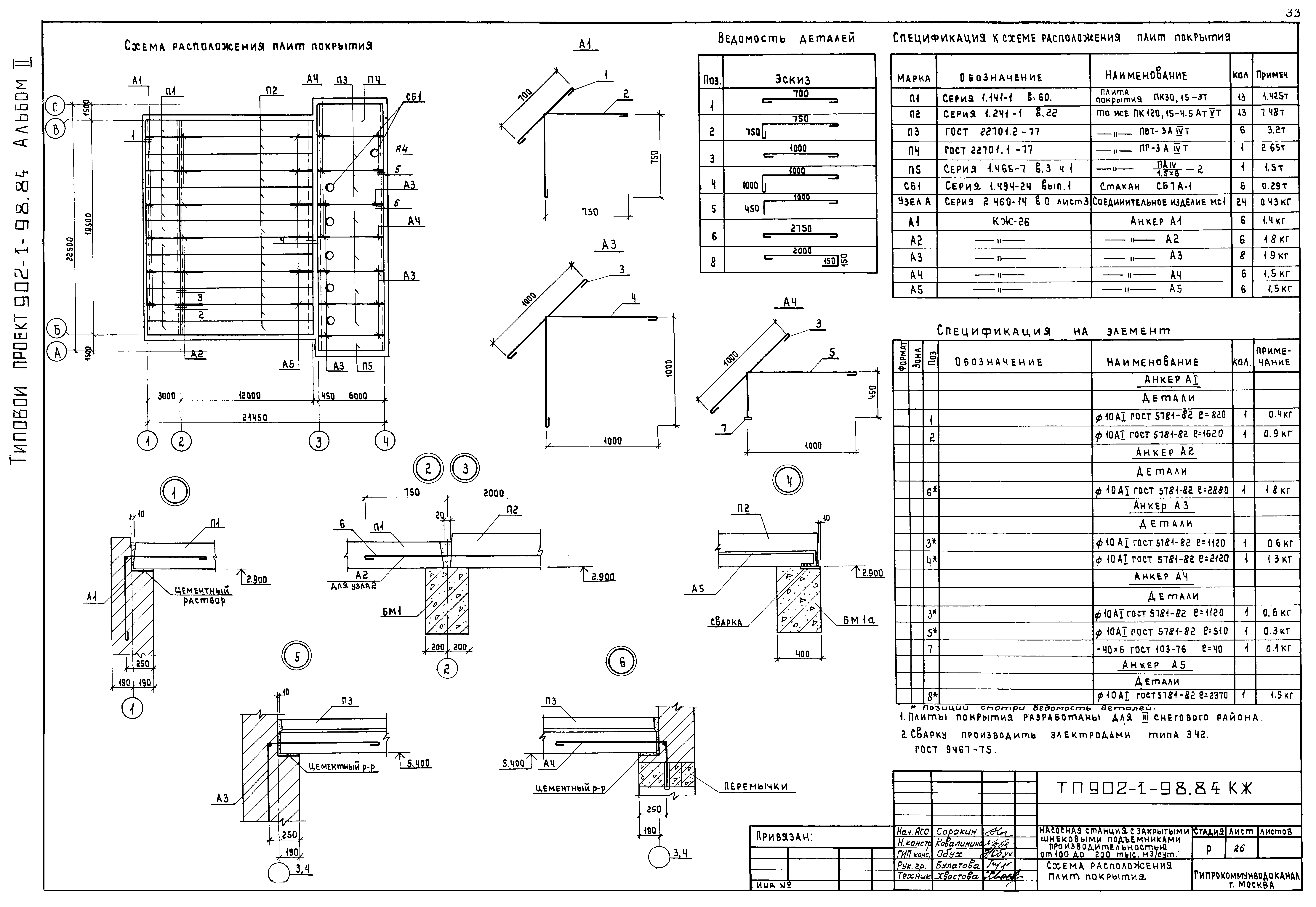
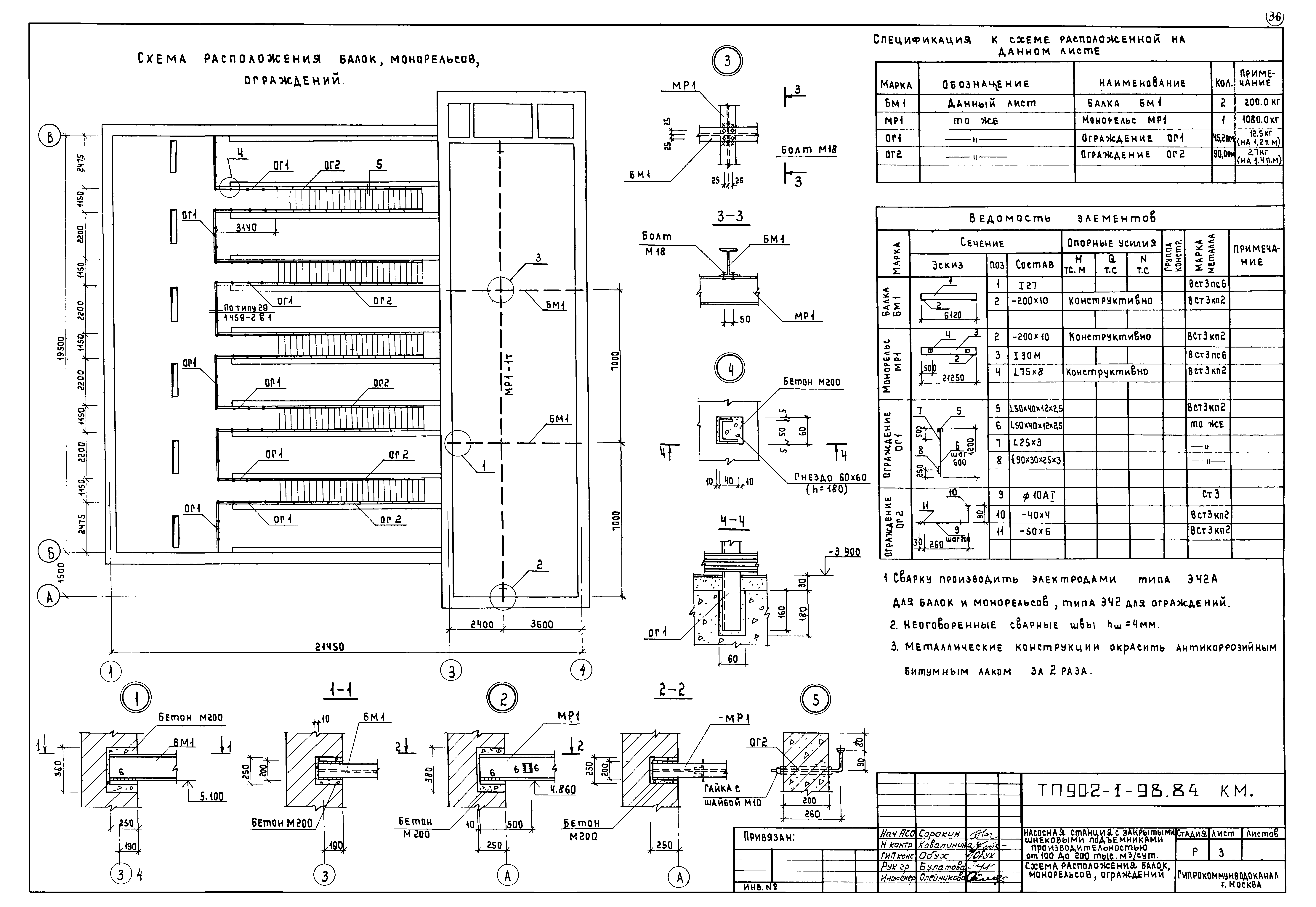
| Оглавление: | ТП 902-1-98.84 Содержание альбома ТП 902-1-98.84-АР-1 Общие данные (начало) ТП 902-1-98.84-АР-2 Общие данные (окончание) ТП 902-1-98.84-АР-3 Планы на отм. 0.000,-3.900;-6.200;+4.500 ТП 902-1-98.84-АР-4 Разрезы 1-1;2-2. Фасады 1-4;4-1. Узел 1 ТП 902-1-98.84-АР-5 Крепление жалюзийной решетки. Узлы 1,2. Узлы 4,5 ТП 902-1-98.84-КЖ-1 Общие данные ТП 902-1-98.84-КЖ-2 Подземная часть. Опалубка. План. Разрез 1-1 ТП 902-1-98.84-КЖ-3 Подземная часть. Опалубка. Разрез 2-2÷7-7 ТП 902-1-98.84-КЖ-4 Подземная часть. Армирование днища ТП 902-1-98.84-КЖ-5 Подземная часть. Армирование. Разрез 1-1;2-2 ТП 902-1-98.84-КЖ-6 Подземная часть. Армирование. Разрез 3-3;7-7 ТП 902-1-98.84-КЖ-7 Подземная часть. Армирование. Разрез 4-4 ТП 902-1-98.84-КЖ-8 Подземная часть. Армирование. Разрез 5-5;6-6 ТП 902-1-98.84-КЖ-9 Подземная часть. Армирование. Разрез 8-8÷11-11 ТП 902-1-98.84-КЖ-10 Подземная часть. Спецификация ТП 902-1-98.84-КЖ-11 Схема расположения фундаментов под оборудование ТП 902-1-98.84-КЖ-12 Схема расположения плит перекрытия, балок ТП 902-1-98.84-КЖ-13 Балки БМ1-БМ3. Плита ПМ1. Армирование ТП 902-1-98.84-КЖ-14 Балки БМ1-БМ3. Плита ПМ1. Спецификация ТП 902-1-98.84-КЖ-15 Подземная часть. Набетонка. План ТП 902-1-98.84-КЖ-16 Подземная часть. Разрезы 2-2÷4-4 ТП 902-1-98.84-КЖ-17 Схема расположения каналов в осях 3-4. Опалубка ТП 902-1-98.84-КЖ-18 Схема расположения каналов в осях 3-4. Стены, днище. Армирование ТП 902-1-98.84-КЖ-19 Схема расположения каналов в осях 3-4. Стены, днище. Армирование. Сечения ТП 902-1-98.84-КЖ-20 Схема расположения каналов в осях 3-4. Перекрытие. Армирование ТП 902-1-98.84-КЖ-21 Схема расположения каналов у оси 4. Опалубка ТП 902-1-98.84-КЖ-22 Схема расположения каналов у оси 4. Армирование ТП 902-1-98.84-КЖ-23 Схема расположения фундаментов. План. Развертки ТП 902-1-98.84-КЖ-24 Схема расположения фундаментов. Сечения ТП 902-1-98.84-КЖ-25 Схема расположения балок и колонн ТП 902-1-98.84-КЖ-26 Схема расположения плит покрытия ТП 902-1-98.84-КМ-1 Общие данные. Техническая спецификация стали ТП 902-1-98.84-КМ-2 Ведомость металлоконструкций по видам профилей ТП 902-1-98.84-КМ-3 Схема расположения балок, монорельсов, ограждений |
| Разработан: | Гипрокоммунводоканал Минжилкомхоза РСФСР |
| Утверждён: | 25.05.1984 МЖКХ РСФСР (10-ТД) |





































