Скачать Типовой проект 902-2-344 Альбом V. Нестандартизированное оборудованиеДата актуализации: 01.01.2021
|
| Обозначение: | Типовой проект 902-2-344 |
| Обозначение англ: | 902-2-344 |
| Статус: | не определен законодательством |
| Название рус.: | Альбом V. Нестандартизированное оборудование |
| Дата добавления в базу: | 01.09.2013 |
| Дата актуализации: | 01.01.2021 |
| Дата введения: | 05.02.1981 |
| Дата окончания срока действия: | 30.06.2003 |
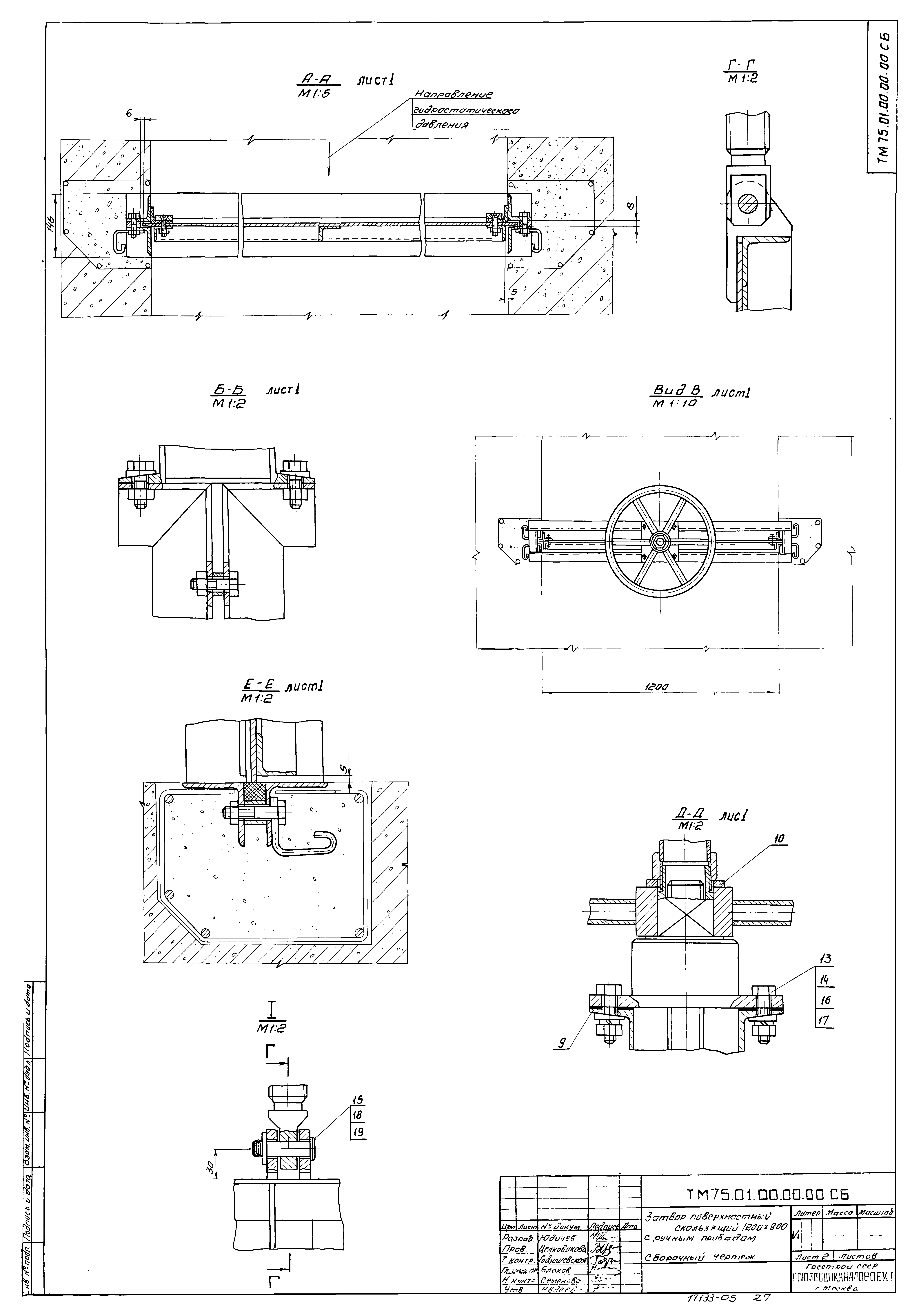
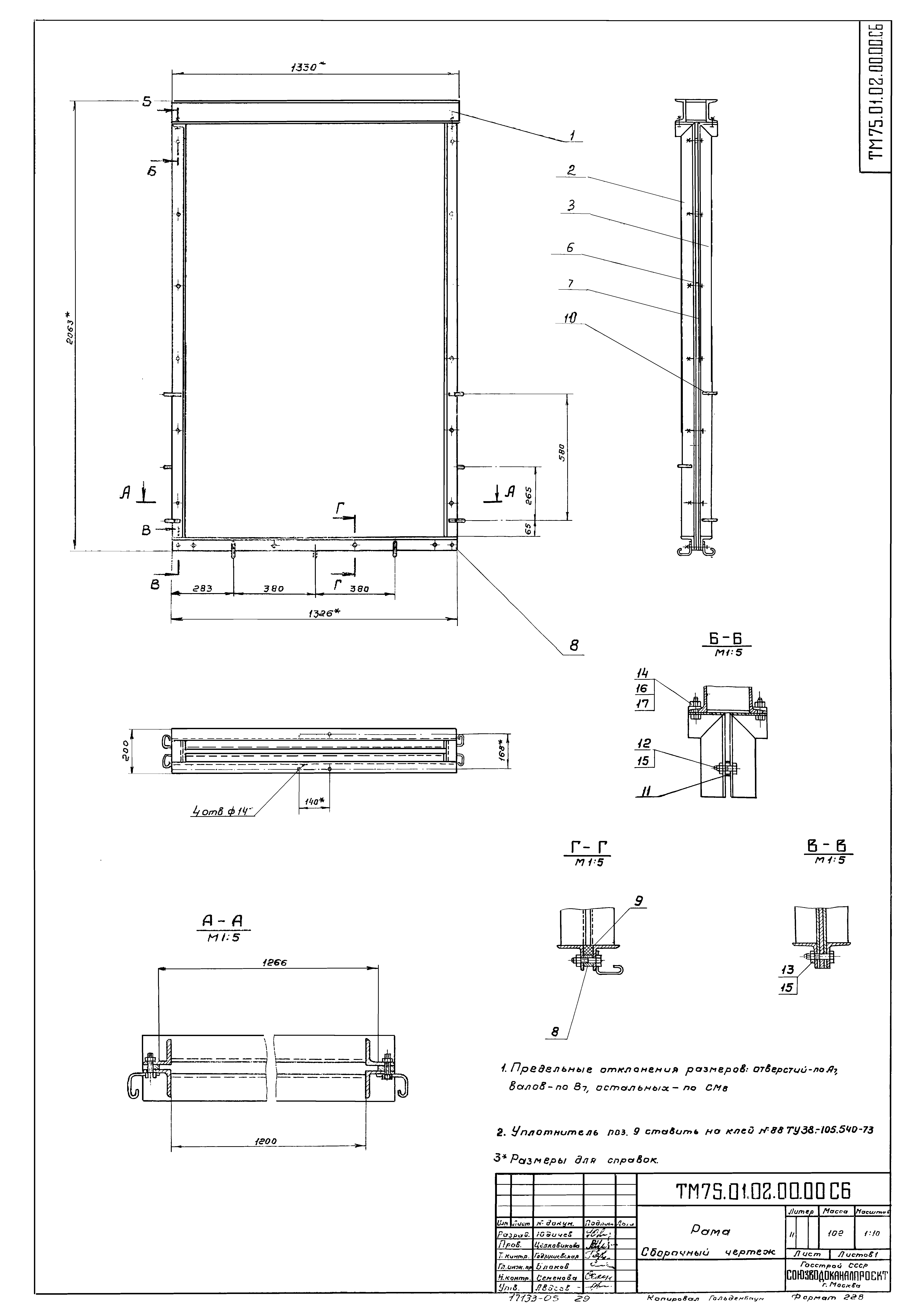
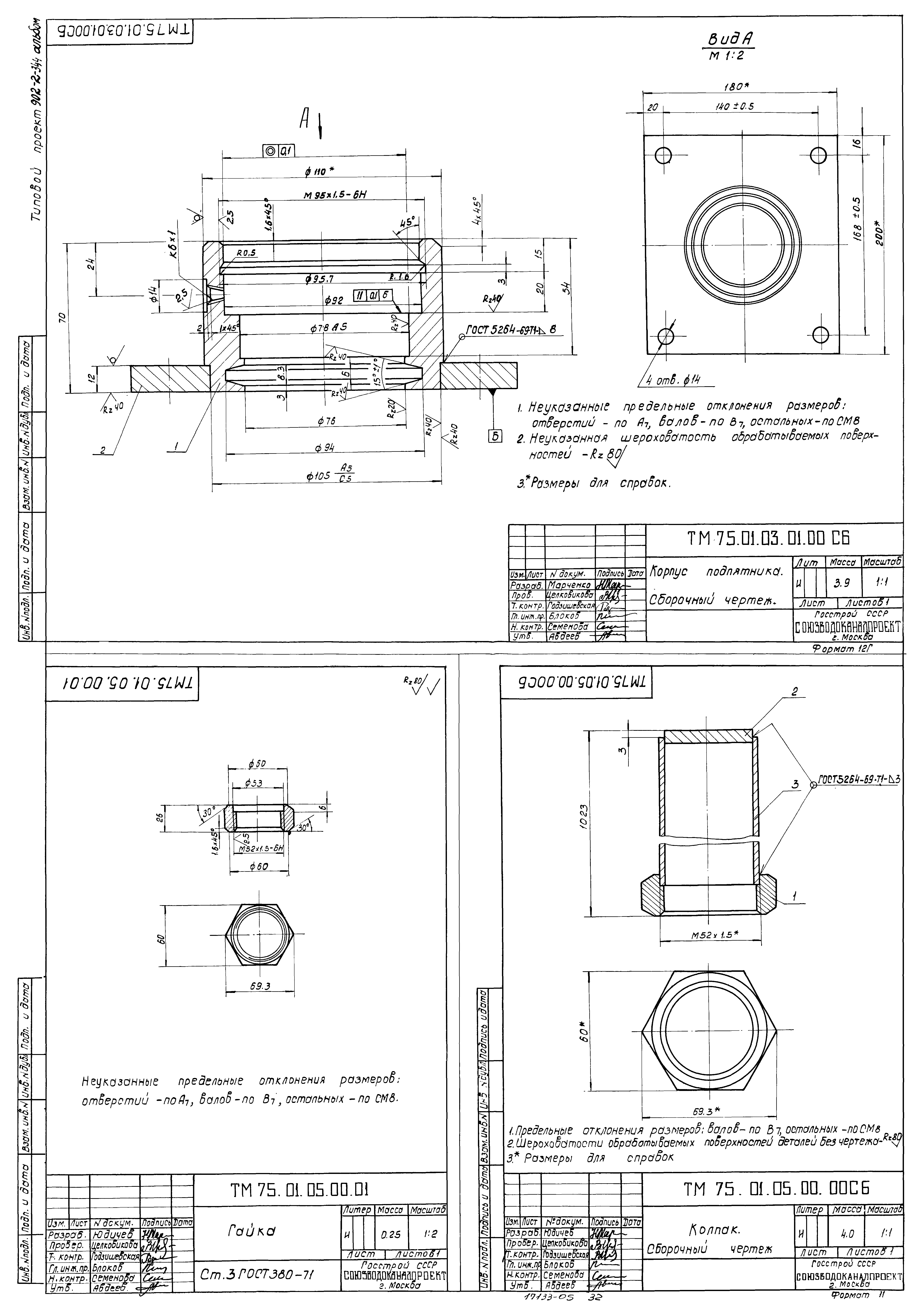
| Оглавление: | ТП 902-2-344 Титульный лист ТП 902-2-344 Содержание альбома ТП 902-2-344 ТМ75.01.00.00.00 Затвор поверхностный скользящий 1200х900 с ручным приводом ТП 902-2-344 ТМ75.01.01.00.00 Щит в сборе ТП 902-2-344 ТМ75.01.01.01.00 Щит ТП 902-2-344 ТМ75.01.02.00.00 Рама ТП 902-2-344 ТМ75.01.02.01.00 Опора ТП 902-2-344 ТМ75.01.02.02.00 Стойка ТП 902-2-344 ТМ75.01.03.00.00 Подпятник ТП 902-2-344 ТМ75.01.03.01.00 Корпус подпятника ТП 902-2-344 ТМ75.01.04.00.00 Маховик ТП 902-2-344 ТМ75.01.05.00.00 Колпак ТП 902-2-344 ТМ75.02.00.00.00 Затвор плоский глубинный 900х500 с ручным приводом ТП 902-2-344 ТМ75.02.01.00.00 Рама ТП 902-2-344 ТМ75.02.02.00.00 Щит в сборе ТП 902-2-344 ТМ75.02.02.01.00 Щит ТП 902-2-344 ТМ75.02.03.00.00 Подпятник ТП 902-2-344 ТМ75.02.03.01.00 Корпус подпятника ТП 902-2-344 ТМ75.02.04.00.00 Штанга ТП 902-2-344 ТМ75.02.05.00.00 Винт ТП 902-2-344 ТМ75.03.00.00 Затвор водослив 1200х500 ТП 902-2-344 ТМ75.03.01.00 Рама ТП 902-2-344 ТМ75.02.06.00.00 Колпак ТП 902-2-344 ТМ75.03.02.00 Щит ТП 902-2-344 ТМ75.03.03.00 Маховик ТП 902-2-344 ТМ75.04.00.00 Затвор щитовой 300х250 ТП 902-2-344 ТМ75.04.01.00 Рама ТП 902-2-344 ТМ75.04.02.00 Щит ТП 902-2-344 ТМ75.05.00 Чаша распределительная №1 ТП 902-2-344 ТМ75.06.00 Чаша распределительная №2 ТП 902-2-344 ТМ75.07.00 Чаша распределительная №3 ТП 902-2-344 ТМ75.08.00 Чаша распределительная №4 ТП 902-2-344 ТМ75.09.00 Эрлифт (узел) ТП 902-2-344 ТМ75.10.00 Эрлифт (узел) ТП 902-2-344 ТМ75.11.00 Эрлифт (узел) ТП 902-2-344 ТМ75.12.00 Тройник ТП 902-2-344 ТМ75.13.00 Труба отводящая ТП 902-2-344 ТМ75.14.00 Труба отводящая ТП 902-2-344 ТМ75.15.00.00 Установка трубки Пито ТП 902-2-344 ТМ75.15.01.00 Трубка Пито ТП 902-2-344 ТМ75.16.00 Патрубок ТП 902-2-344 ТМ75.17.00.00 Блок пористый керамический ТП 902-2-344 ТМ75.17.01.00 Патрубок ТП 902-2-344 ТМ75.17.02.00 Заглушка ТП 902-2-344 ТМ75.17.03.00 Фланец опорный ТП 902-2-344 ТМ75.18.00.00 Блок пористый керамический ТП 902-2-344 ТМ75.18.01.00 СБ Патрубок. Сборочный чертеж ТП 902-2-344 ТМ75.18.01.00 Патрубок ТП 902-2-344 ТМ75.16.00 СБ Патрубок. Сборочный чертеж ТП 902-2-344 ТМ75.01.00.00.00 СБ Затвор поверхностный скользящий 1200х900 с ручным приводом. Сборочный чертеж ТП 902-2-344 ТМ75.01.01.00.00 Щит в сборе ТП 902-2-344 ТМ75.01.01.01.00 СБ Щит. Сборочный чертеж ТП 902-2-344 ТМ75.01.02.00.00 СБ Рама. Сборочный чертеж ТП 902-2-344 ТМ75.01.02.01.00 СБ Опора. Сборочный чертеж ТП 902-2-344 ТМ75.01.02.02.00 СБ Стойка левая. Сборочный чертеж ТП 902-2-344 ТМ75.01.04.00.00 СБ Маховик. Сборочный чертеж ТП 902-2-344 ТМ75.01.03.00.00 СБ Подпятник. Сборочный чертеж ТП 902-2-344 ТМ75.01.03.01.00 СБ Корпус подпятника. Сборочный чертеж ТП 902-2-344 ТМ75.01.05.00.00 СБ Колпак. Сборочный чертеж ТП 902-2-344 ТМ75.01.05.00.01 Гайка ТП 902-2-344 ТМ75.01.00.00.02 Прокладка регулировочная ТП 902-2-344 ТМ75.01.00.00.03 Шайба ТП 902-2-344 ТМ75.01.00.00.01 Винт ТП 902-2-344 ТМ75.01.02.00.04 Уплотнитель ТП 902-2-344 ТМ75.01.01.01.01 Уголок ТП 902-2-344 ТМ75.01.01.01.02 Уголок ТП 902-2-344 ТМ75.01.01.01.03 Уголок ТП 902-2-344 ТМ75.01.01.01.04 Уголок ТП 902-2-344 ТМ75.01.01.01.05 Уголок ТП 902-2-344 ТМ75.01.01.01.06 Ушко ТП 902-2-344 ТМ75.01.01.00.01 Планка ТП 902-2-344 ТМ75.01.01.00.02 Прокладка ТП 902-2-344 ТМ75.01.02.00.01 Направляющая ТП 902-2-344 ТМ75.01.02.00.02 Уголок ТП 902-2-344 ТМ75.01.02.00.03 Планка ТП 902-2-344 ТМ75.01.02.00.05 Скоба ТП 902-2-344 ТМ75.01.03.00.01 Втулка ТП 902-2-344 ТМ75.01.03.00.02 Втулка ТП 902-2-344 ТМ75.01.03.00.03 Втулка ТП 902-2-344 ТМ75.01.03.00.04 Втулка ТП 902-2-344 ТМ75.02.00.00.00 СБ Затвор плоский глубинный 900х500 с ручным приводом. Сборочный чертеж ТП 902-2-344 ТМ75.02.01.00.00 СБ Рама. Сборочный чертеж ТП 902-2-344 ТМ75.02.04.00.00 СБ Штанга. Сборочный чертеж ТП 902-2-344 ТМ75.02.05.00.00 СБ Винт. Сборочный чертеж ТП 902-2-344 ТМ75.02.02.00.00 СБ Щит в сборе. Сборочный чертеж ТП 902-2-344 ТМ75.02.02.01.00 СБ Щит. Сборочный чертеж ТП 902-2-344 ТМ75.02.03.00.00 СБ Подпятник. Сборочный чертеж ТП 902-2-344 ТМ75.02.03.01.00 СБ Корпус подпятника. Сборочный чертеж ТП 902-2-344 ТМ75.02.01.00.01 Поперечина ТП 902-2-344 ТМ75.02.02.00.06 Планка ТП 902-2-344 ТМ75.02.02.00.05 Уплотнение нижнее ТП 902-2-344 ТМ75.02.06.00.00 СБ Колпак. Сборочный чертеж ТП 902-2-344 ТМ75.02.02.00.01 Уплотнение боковое ТП 902-2-344 ТМ75.02.02.00.02 Направляющая ТП 902-2-344 ТМ75.02.02.00.03 Уплотнение верхнее ТП 902-2-344 ТМ75.02.02.00.04 Направляющая верхняя ТП 902-2-344 ТМ75.02.02.01.01 Ребро ТП 902-2-344 ТМ75.02.02.01.02 Ушко ТП 902-2-344 ТМ75.02.00.00.01 Прокладка ТП 902-2-344 ТМ75.02.03.01.01 Фланец ТП 902-2-344 ТМ75.02.04.00.01 Фланец ТП 902-2-344 ТМ75.02.04.00.02 Штанга ТП 902-2-344 ТМ75.02.05.00.01 Фланец ТП 902-2-344 ТМ75.02.05.00.02 Винт ТП 902-2-344 ТМ75.03.00.00.00 СБ Затвор-водослив 1200х500. Сборочный чертеж ТП 902-2-344 ТМ75.03.01.00.00 СБ Рама. Сборочный чертеж ТП 902-2-344 ТМ75.03.02.00.00 СБ Щит. Сборочный чертеж ТП 902-2-344 ТМ75.03.02.01 Ушко ТП 902-2-344 ТМ75.03.00.01 Винт ТП 902-2-344 ТМ75.03.00.02 Фланец верхний ТП 902-2-344 ТМ75.03.00.03 Фланец нижний ТП 902-2-344 ТМ75.03.00.04 Гайка подъемная ТП 902-2-344 ТМ75.03.00.05 Уголок ТП 902-2-344 ТМ75.03.00.06 Линейка ТП 902-2-344 ТМ75.03.00.07 Стрелка ТП 902-2-344 ТМ75.03.00.08 Прокладка регулировочная ТП 902-2-344 ТМ75.04.00.00 СБ Затвор щитовой 300х250. Сборочный чертеж ТП 902-2-344 ТМ75.04.01.00 СБ Рама. Сборочный чертеж ТП 902-2-344 ТМ75.04.02.00 СБ Щит. Сборочный чертеж ТП 902-2-344 ТМ75.03.03.00 СБ Маховик. Сборочный чертеж ТП 902-2-344 ТМ75.05.00 СБ Чаша распределительная №1. Сборочный чертеж ТП 902-2-344 ТМ75.06.00 СБ Чаша распределительная №2. Сборочный чертеж ТП 902-2-344 ТМ75.07.00 СБ Чаша распределительная №3. Сборочный чертеж ТП 902-2-344 ТМ75.08.00 СБ Чаша распределительная №4. Сборочный чертеж ТП 902-2-344 ТМ75.09.00 СБ Эрлифт (узел). Сборочный чертеж ТП 902-2-344 ТМ75.10.00 СБ Эрлифт (узел). Сборочный чертеж ТП 902-2-344 ТМ75.09.01 Диск ТП 902-2-344 ТМ75.09.02 Ребро ТП 902-2-344 ТМ75.10.01 Диск ТП 902-2-344 ТМ75.11.02 Ребро ТП 902-2-344 ТМ75.11.00 СБ Эрлифт (узел). Сборочный чертеж ТП 902-2-344 ТМ75.11.01 Диск ТП 902-2-344 ТМ75.12.00 СБ Тройник. Сборочный чертеж ТП 902-2-344 ТМ75.13.00 СБ Труба отводящая. Сборочный чертеж ТП 902-2-344 ТМ75.14.00 СБ Труба отводящая. Сборочный чертеж ТП 902-2-344 ТМ75.14.01 Раструб ТП 902-2-344 ТМ75.04.00.01 Винт ТП 902-2-344 ТМ75.15.00.00 СБ Установка трубки Пито. Сборочный чертеж ТП 902-2-344 ТМ75.15.01.00 СБ Трубка Пито. Сборочный чертеж ТП 902-2-344 ТМ75.17.00.01 Болт ТП 902-2-344 ТМ75.17.00.06 Шпилька ТП 902-2-344 ТМ75.15.00.01 Бобышка ТП 902-2-344 ТМ75.15.01.01 Фланец ТП 902-2-344 ТМ75.15.01.02 Штуцер ТП 902-2-344 ТМ75.15.00.03 Прокладка ТП 902-2-344 ТМ75.15.00.04 Бобышка ТП 902-2-344 ТМ75.15.01.03 Наконечник ТП 902-2-344 ТМ75.15.01.05 Труба ТП 902-2-344 ТМ75.15.00.02 Штуцер ТП 902-2-344 ТМ75.17.00.00 СБ Блок пористый керамический. Сборочный чертеж ТП 902-2-344 ТМ75.17.01.00 СБ Патрубок. Сборочный чертеж ТП 902-2-344 ТМ75.17.03.00 СБ Фланец опорный. Сборочный чертеж ТП 902-2-344 ТМ75.17.00.05 Муфта ТП 902-2-344 ТМ75.18.00.00 СБ Блок пористый керамический. Сборочный чертеж ТП 902-2-344 ТМ75.17.02.00 СБ Заглушка. Сборочный чертеж ТП 902-2-344 ТМ75.17.00.04 Фланец |
| Разработан: | Союзводоканалпроект |
| Утверждён: | 12.09.1980 Союзводоканалпроект (Soyuzvodokanalproject 57) |




































































