Скачать Типовой проект 901-1-97.88 Альбом II. Архитектурно-строительные решения (надземная часть), отопление, вентиляция, водопровод, канализацияДата актуализации: 01.01.2021 Типовой проект 901-1-97.88
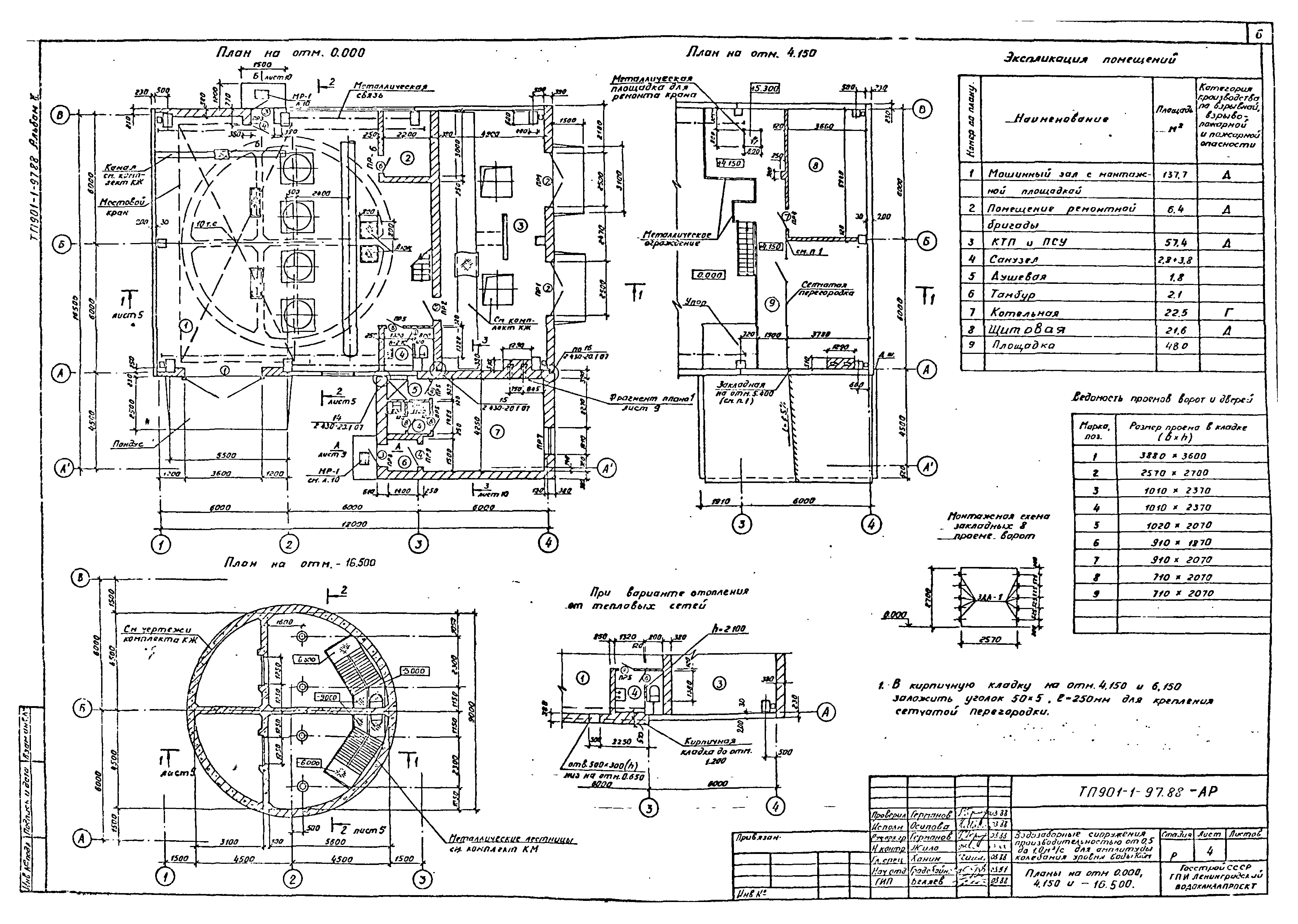
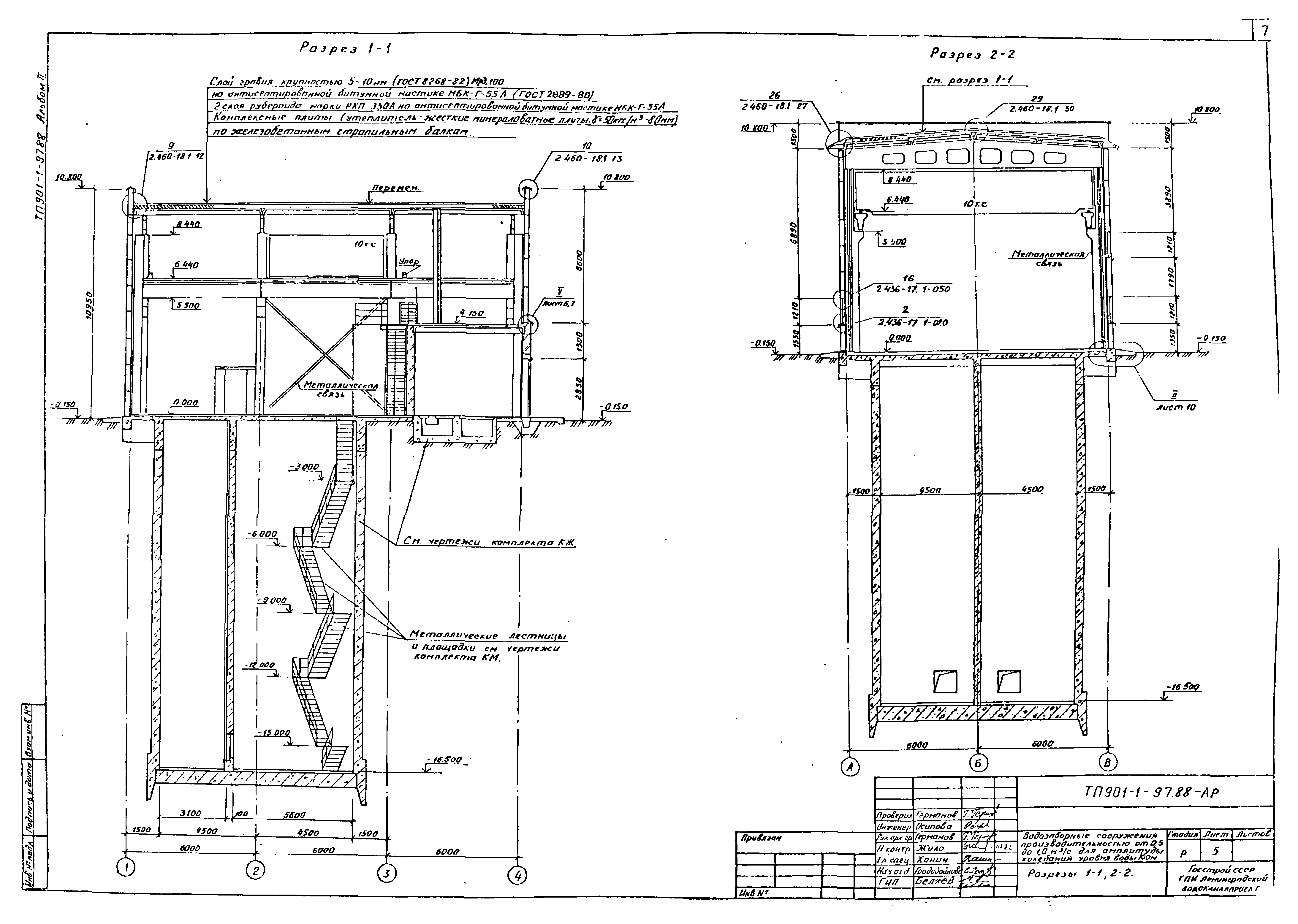
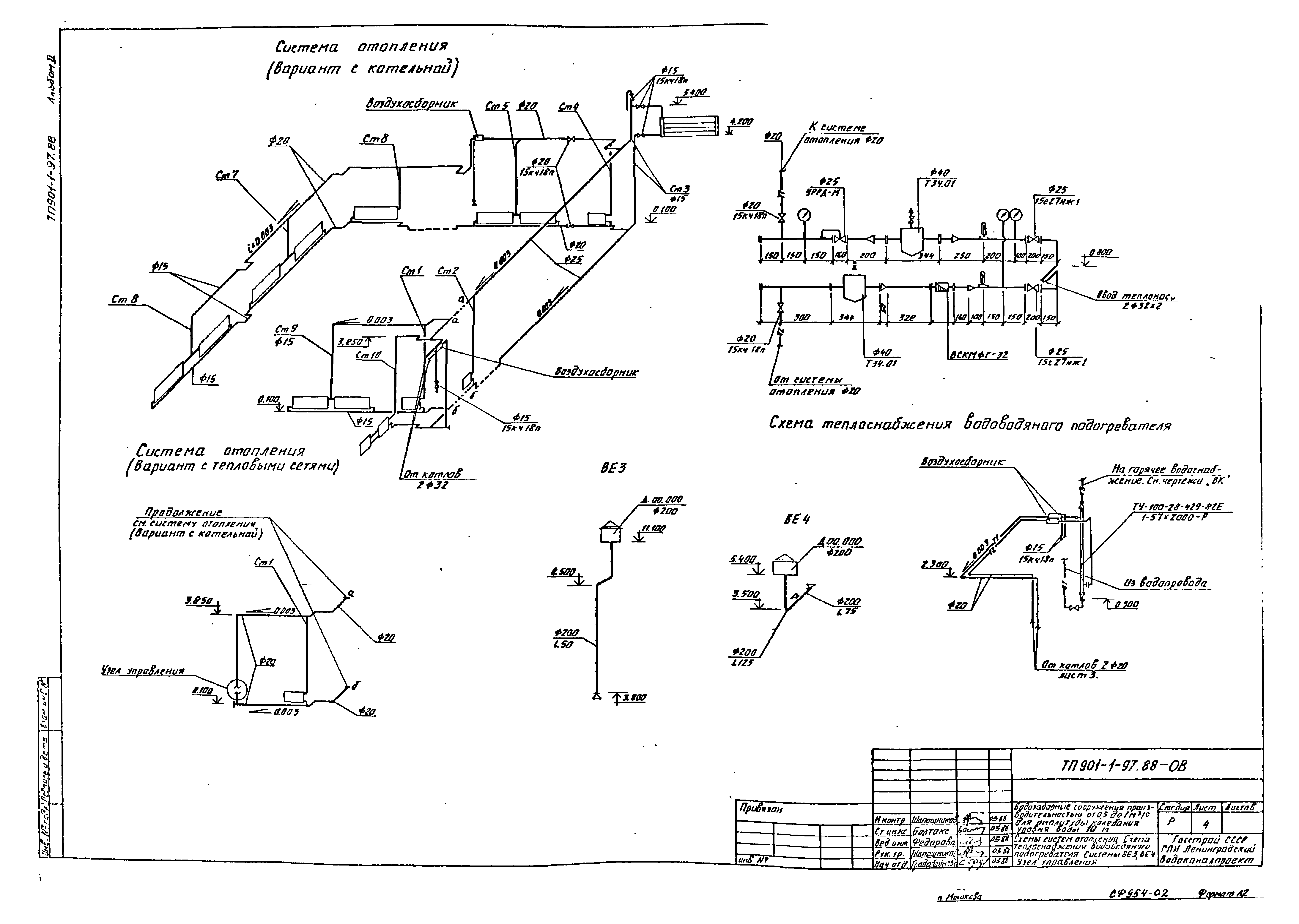
Альбом II. Архитектурно-строительные решения (надземная часть), отопление, вентиляция, водопровод, канализация| Обозначение: | Типовой проект 901-1-97.88 | | Обозначение англ: | 901-1-97.88 | | Статус: | не определен законодательством | | Название рус.: | Альбом II. Архитектурно-строительные решения (надземная часть), отопление, вентиляция, водопровод, канализация | | Дата добавления в базу: | 01.09.2013 | | Дата актуализации: | 01.01.2021 | | Дата введения: | 05.07.1988 | | Дата окончания срока действия: | 30.06.2003 | | Разработан: | Ленинградский Водоканалпроект
| | Утверждён: | 06.04.1988 Госстрой СССР (Государственный комитет Совета Министров СССР по делам строительства) (USSR Gosstroy 25)
| | Издан: | ЦИТП Госстроя СССР (CITP, Gosstroy (USSR) 1988 г. )
| | Заменяет собой: | |
                                                                      
|