Скачать Типовой проект 903-1-224.86 Альбом 2.5. Часть 1. Металлоконструкции газовоздухопроводов для блок-секции котлоагрегата КВ-ТС(В)-10 (вариант с воздухоподогревателем)Дата актуализации: 01.01.2021
|
| Обозначение: | Типовой проект 903-1-224.86 |
| Обозначение англ: | 903-1-224.86 |
| Статус: | действует |
| Название рус.: | Альбом 2.5. Часть 1. Металлоконструкции газовоздухопроводов для блок-секции котлоагрегата КВ-ТС(В)-10 (вариант с воздухоподогревателем) |
| Дата добавления в базу: | 01.10.2014 |
| Дата актуализации: | 01.01.2021 |
| Дата введения: | 20.05.1986 |
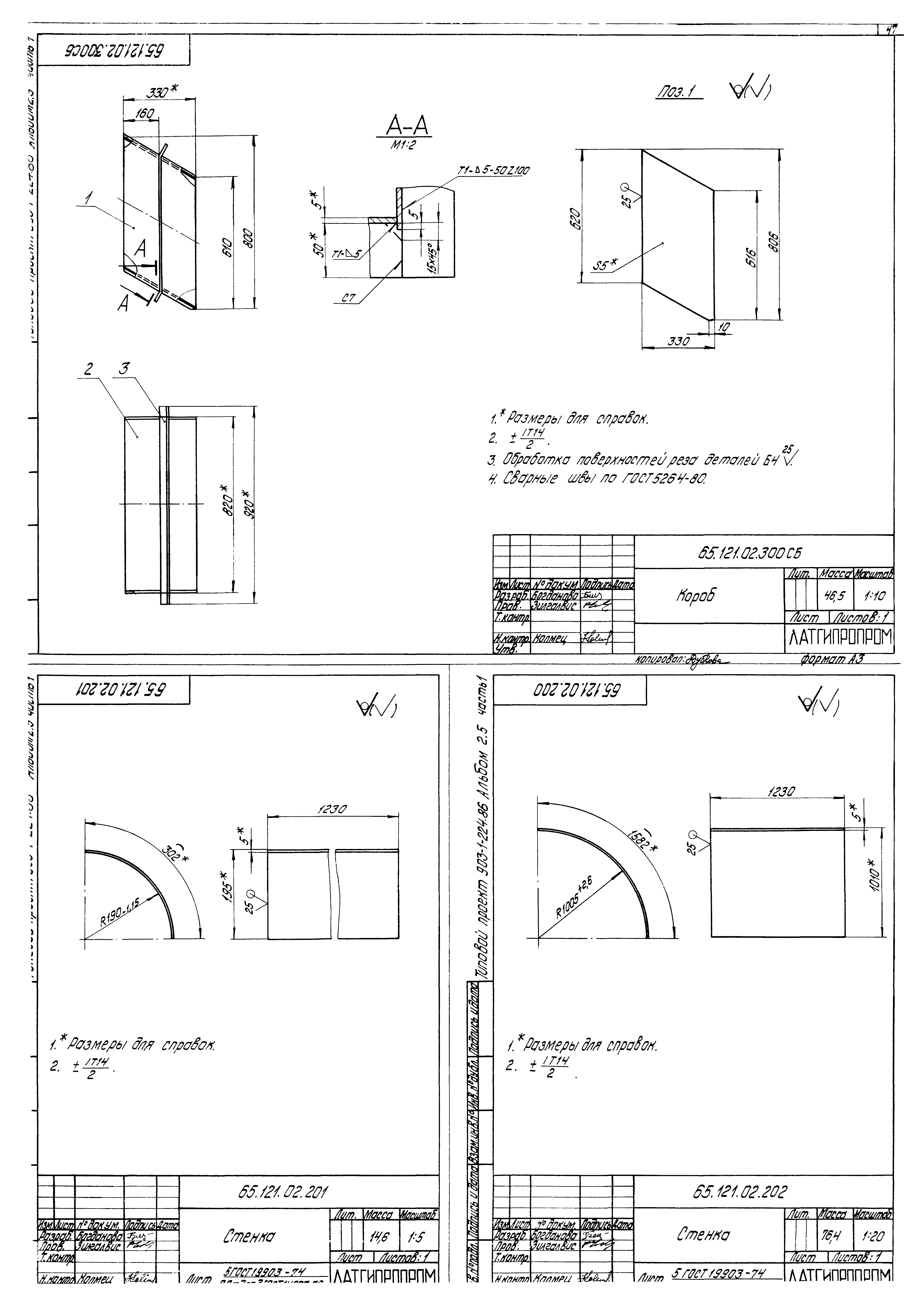
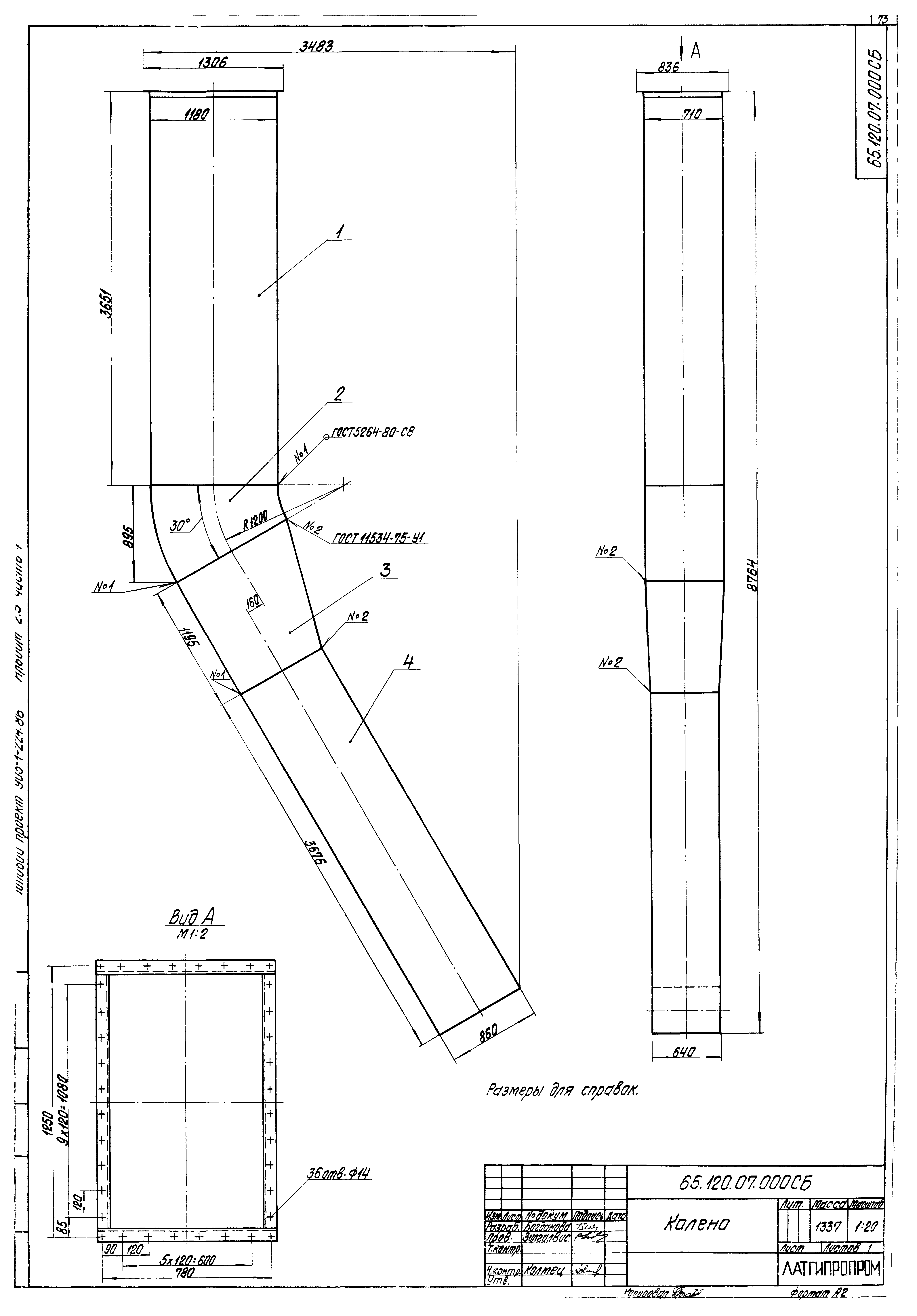
| Оглавление: | Воздуховоды котла КВ-ТСВ-10 64.88.01.000 Воздухопровод всасывающий 64.88.01.000СБ Воздухопровод всасывающий 64.88.01.110 Короб 64.88.01.100 Воздухозаборник 64.88.01.100СБ Воздухозаборник 64.88.01.111 Боковина 64.88.01.112 Стенка 64.88.01.110СБ Короб 64.88.01.113 Стенка 64.88.01.120 Фланец 64.88.01.120СБ Фланец 64.88.01.200 Короб 64.88.01.200СБ Короб 64.88.01.300 Короб с заслонкой 64.88.01.300СБ Короб с заслонкой 64.88.01.301 Вал 64.88.01.310 Короб 64.88.01.310СБ Короб 64.88.01.311 Боковина 64.88.01.312 Стенка 64.88.01.313 Бобышка 64.88.01.314 Усилитель 64.88.01.320 Заслонка 64.88.01.320СБ Заслонка 64.88.01.321 Втулка 64.88.01.322 Ребро 64.88.01.400 Короб 64.88.01.400СБ Короб 64.88.01.500 Переход 64.88.01.600 Переход 64.88.01.500СБ Переход 64.88.01.600СБ Переход 64.88.01.601 Стенка 64.30.02.000 Карман 64.30.02.000СБ Карман 64.30.02.001 Стенка 64.30.02.002 Стенка 64.30.02.003 Полуконус 64.30.02.005 Боковина 64.30.02.004 Фланец 64.30.02.006 Конус 64.30.02.007 Удлинитель 64.89.01.000 Короб 64.89.01.000СБ Короб 64.89.01.100СБ Колено 64.89.01.101 Стенка 64.89.01.102 Стенка 64.89.01.100 Колено 64.89.01.200 Переход 64.89.01.200СБ Переход 64.89.01.300 Короб 64.89.01.300СБ Короб 64.89.01.400 Колено 64.89.01.500 Короб 64.89.01.400СБ Колено 64.89.01.401 Стенка 64.89.01.402 Боковина 64.89.01.500СБ Короб 64.89.01.600 Колено 64.89.01.600СБ Колено 64.89.01.601 Стенка 64.89.01.602 Боковина 64.89.01.700 Переход 64.89.01.800 Колено 64.89.01.700СБ Переход 64.89.01.800СБ Колено 64.89.02.000СБ Короб 64.89.02.801 Боковина 64.89.02.000 Короб 64.89.02.100 Короб 64.89.02.100СБ Короб 64.88.03.000 Короб 64.88.03.100 Короб 64.88.03.000СБ Короб 64.88.03.101 Стенка 64.88.03.100СБ Короб 64.88.03.102 Стенка 64.88.03.200 Патрубок 64.88.03.200СБ Патрубок 64.88.03.300СБ Патрубок 64.88.03.300 Патрубок 64.88.04.000 Колено 64.88.04.000СБ Колено 64.88.04.001 Стенка 64.88.04.002 Стенка 64.88.04.003 Стенка 64.88.05.000 Колено 64.88.05.000СБ Колено 64.88.05.100СБ Патрубок 64.86.07.200СБ Колено 64.86.07.200 Колено 64.86.07.201 Стенка 64.86.07.400СБ Колено 64.86.07.400 Колено 64.86.07.401 Стенка 64.88.05.100 Патрубок 64.88.05.200 Короб 64.88.05.200СБ Короб 64.88.05.300СБ Короб 64.88.05.300 Короб 64.88.06.000 Опора 64.88.06.000СБ Опора 64.88.07.000 Опора 64.88.07.000СБ Опора 64.88.07.001 Распорка 64.89.03.000 Подвеска 64.89.03.000СБ Подвеска 64.89.03.001 Тяга 64.89.03.002 Шайба 64.89.03.100 Лапа 64.89.03.100СБ Лапа Газоходы котла КВ-ТСВ-10 65.121.01.000 Короб 65.121.01.000СБ Короб 65.121.02.000 Колено 65.121.02.000СБ Колено 65.121.02.100 Короб 65.121.02.100СБ Короб 65.121.02.200 Колено 65.121.02.300 Короб 65.121.02.200СБ Колено 65.121.02.300СБ Короб 65.121.02.201 Стенка 65.121.02.202 Стенка 65.121.02.400 Переход 65.121.02.400СБ Переход 65.121.02.401 Стенка 65.121.02.403 Стенка 65.121.02.402 Стенка 65.121.02.500 Бункер 65.121.02.500СБ Бункер 65.121.02.501 Стенка 65.121.02.502 Стенка 65.121.02.503 Стенка 65.121.03.000 Колено 65.121.03.000СБ Колено 65.121.03.100СБ Короб 65.121.03.100 Короб 65.121.03.200 Колено 65.121.03.200СБ Колено 65.121.03.201 Стенка 65.121.03.202 Стенка 65.121.03.300СБ Переход 65.121.03.300 Переход 65.120.02.100 Колено 65.120.02.100СБ Колено 65.120.02.101 Стенка 65.120.02.102 Стенка 65.120.02.200 Короб 65.120.02.200СБ Короб 65.120.03.100 Колено 65.120.03.000 Переход 65.120.03.000СБ Переход 65.120.03.100СБ Колено 65.120.03.101 Стенка 65.120.03.102 Стенка 65.120.03.103 Боковина 65.120.03.200 Короб 65.120.03.200СБ Короб 65.120.03.300 Переход 65.120.03.300СБ Переход 65.120.03.301 Стенка 65.120.03.400 Переход 65.120.03.400СБ Переход 65.120.03.401 Боковина 65.120.03.402 Стенка 65.120.03.500 Колено 65.120.03.501 Стенка 65.120.03.500СБ Колено 65.120.04.000 Короб 65.120.03.502 Стенка 65.120.04.100СБ Короб 65.120.04.100 Короб 65.120.04.000СБ Короб 65.120.04.200 Переход 65.120.04.201 Стенка 65.120.04.200СБ Переход 65.120.04.202 Стенка 65.120.04.300 Переход 65.120.04.300СБ Переход 65.120.04.301 Стенка 65.29.04.000 Карман 65.29.04.000СБ Карман 65.29.04.001 Боковина 65.29.04.003 Стенка 65.29.04.004 Полуконус 65.29.04.002 Стенка 65.29.04.005 Конус 65.29.04.006 Фланец 65.29.04.007 Удлинитель 65.120.05.000 Переход 65.120.05.001 Стенка 65.120.05.000СБ Переход 65.120.05.002 Стенка 65.120.05.003 Стенка 65.120.06.000 Патрубок 65.120.07.000 Колено 65.120.06.000СБ Патрубок 65.120.07.000СБ Колено 65.120.07.100 Короб 65.120.07.200 Колено 65.120.07.100СБ Короб 65.120.07.200СБ Колено 65.120.07.300 Переход 65.120.07.400 Короб |
| Разработан: | Латгипропром |
| Утверждён: | 20.05.1986 Госстрой СССР (Государственный комитет Совета Министров СССР по делам строительства) (USSR Gosstroy АЧ-29) |
| Заменяет собой: |
|












































































