Скачать Типовой проект 903-1-224.86 Альбом 10.7. Металлоконструкции топливоподачи. Конвейер ленточный реверсивный №6Дата актуализации: 01.01.2021
|
| Обозначение: | Типовой проект 903-1-224.86 |
| Обозначение англ: | 903-1-224.86 |
| Статус: | действует |
| Название рус.: | Альбом 10.7. Металлоконструкции топливоподачи. Конвейер ленточный реверсивный №6 |
| Дата добавления в базу: | 01.09.2013 |
| Дата актуализации: | 01.01.2021 |
| Дата введения: | 20.05.1986 |
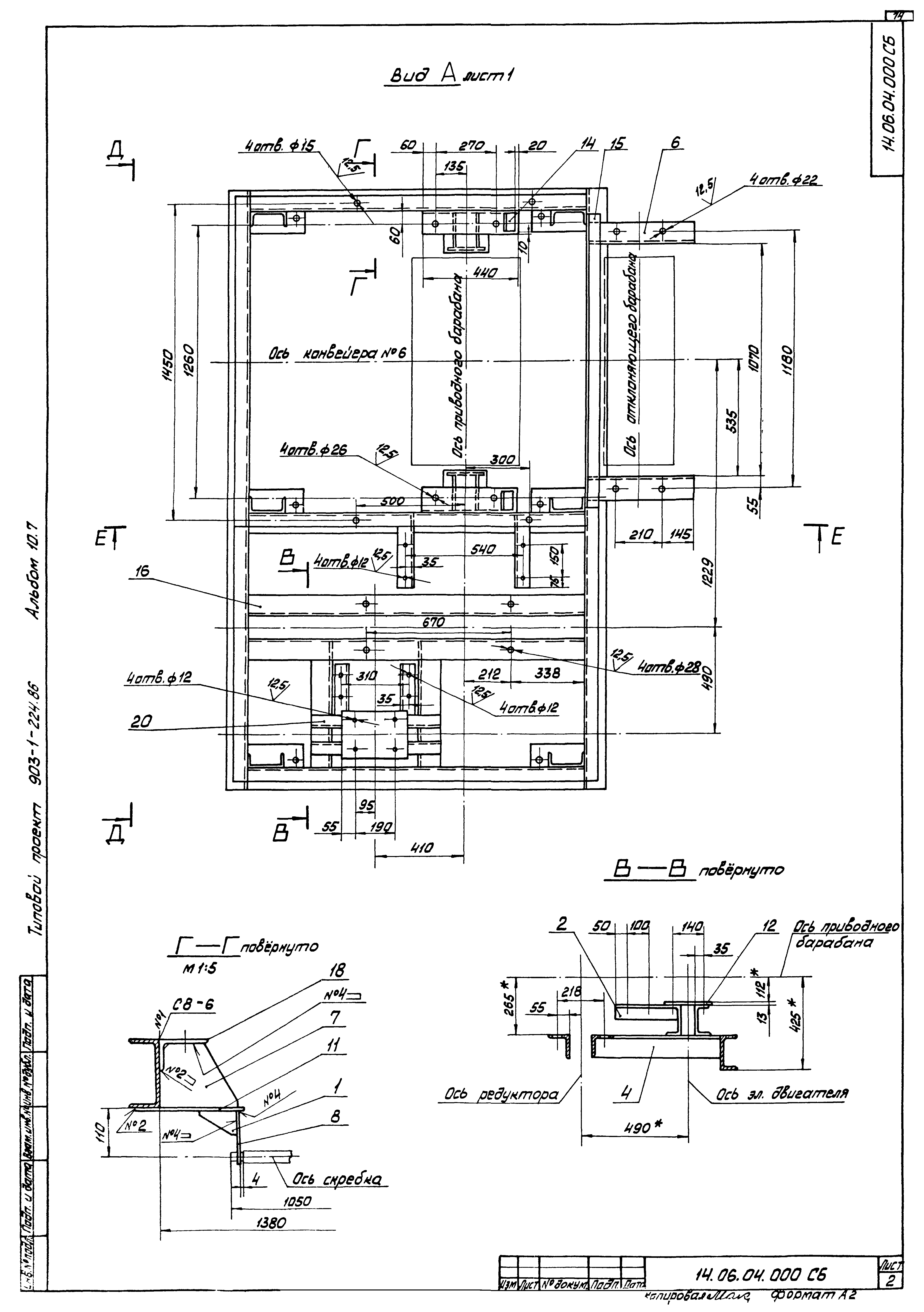
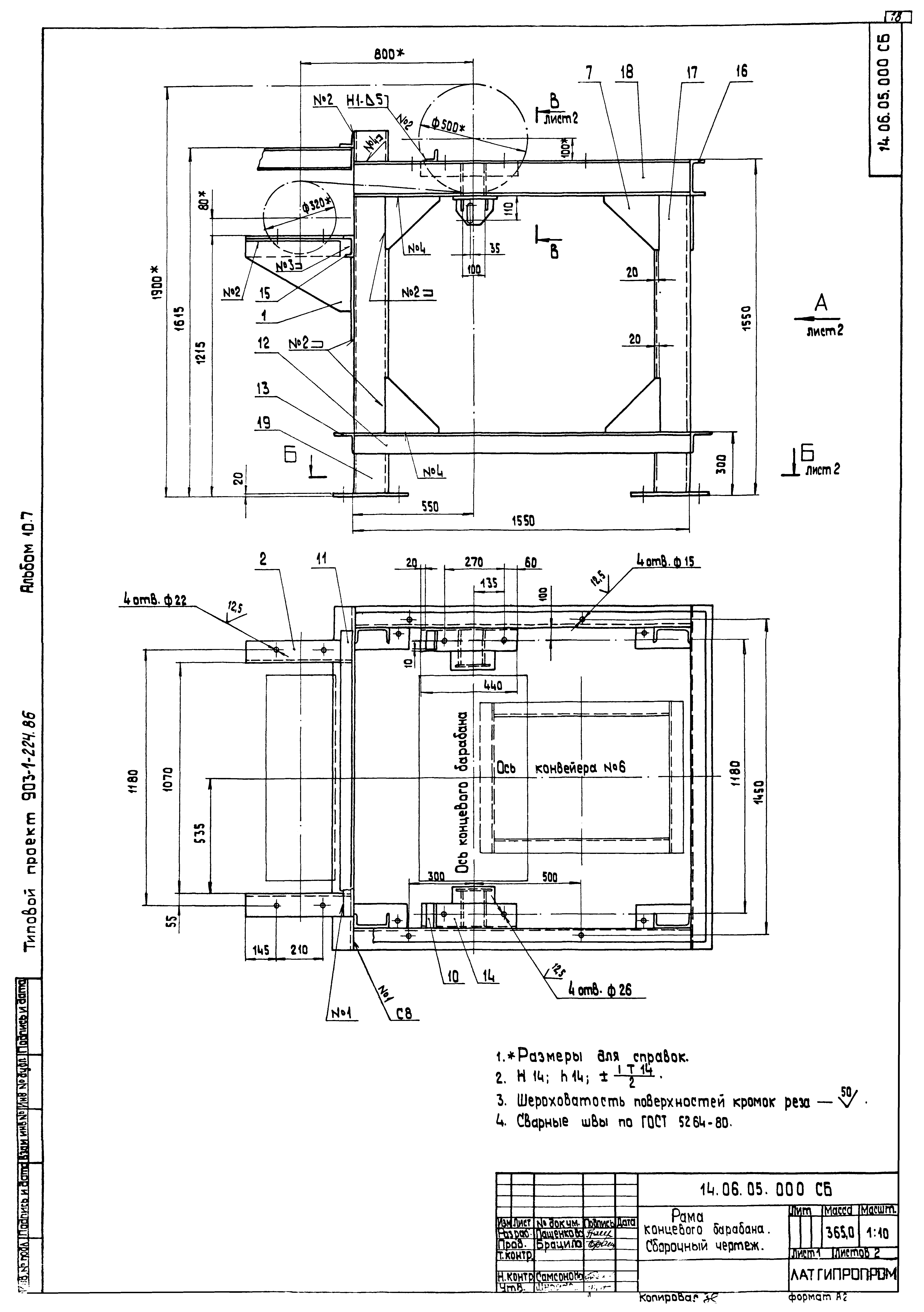
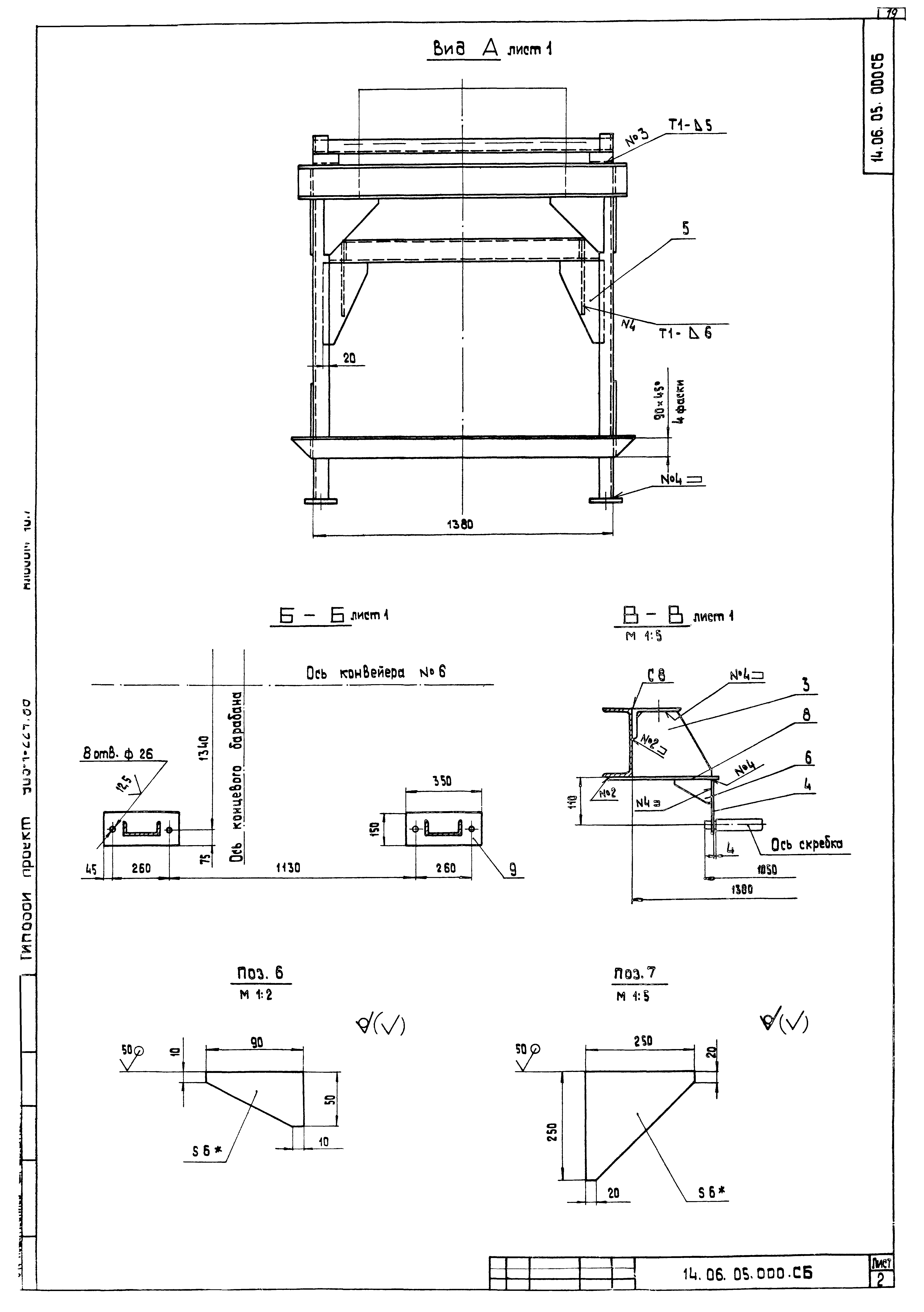
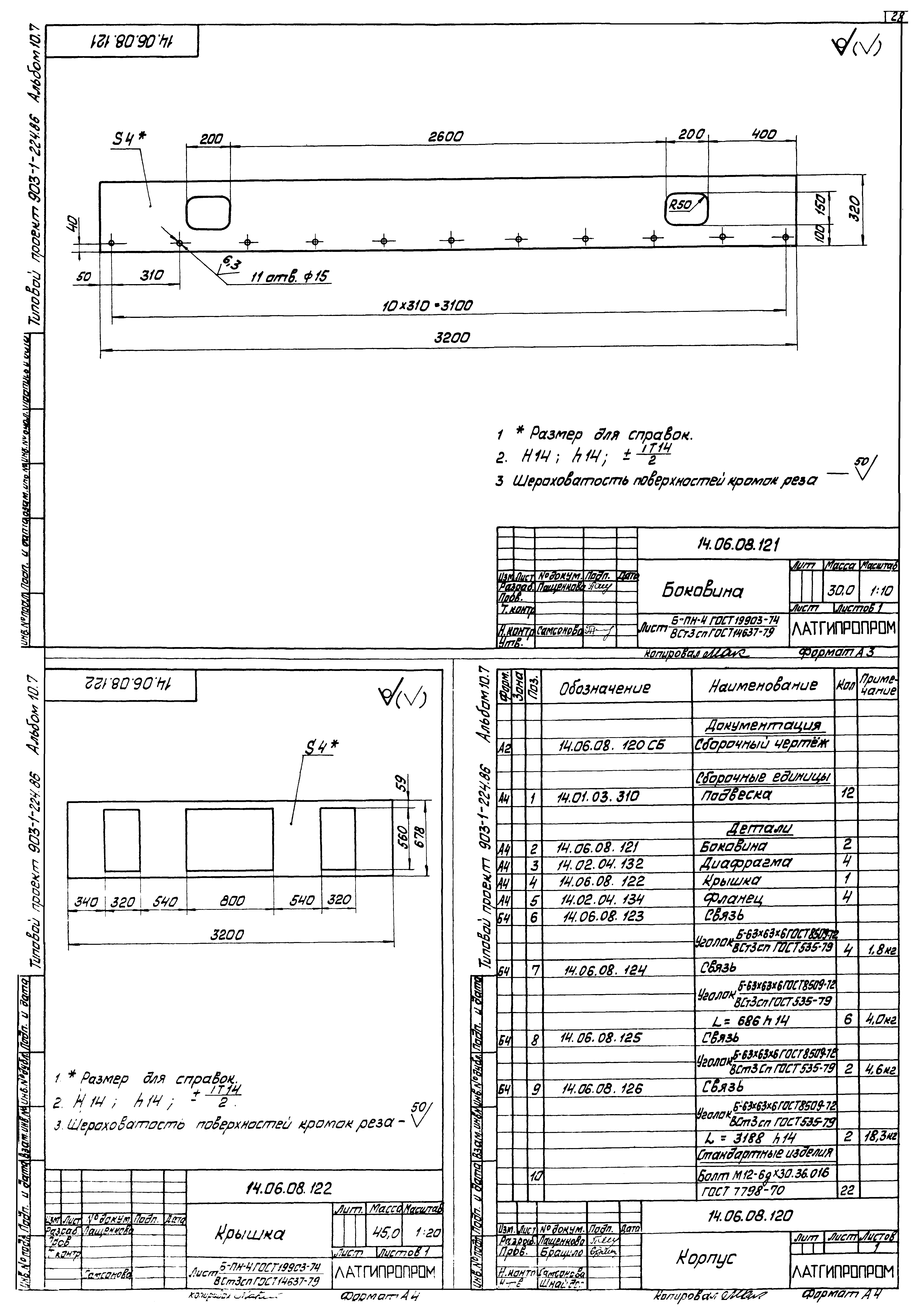
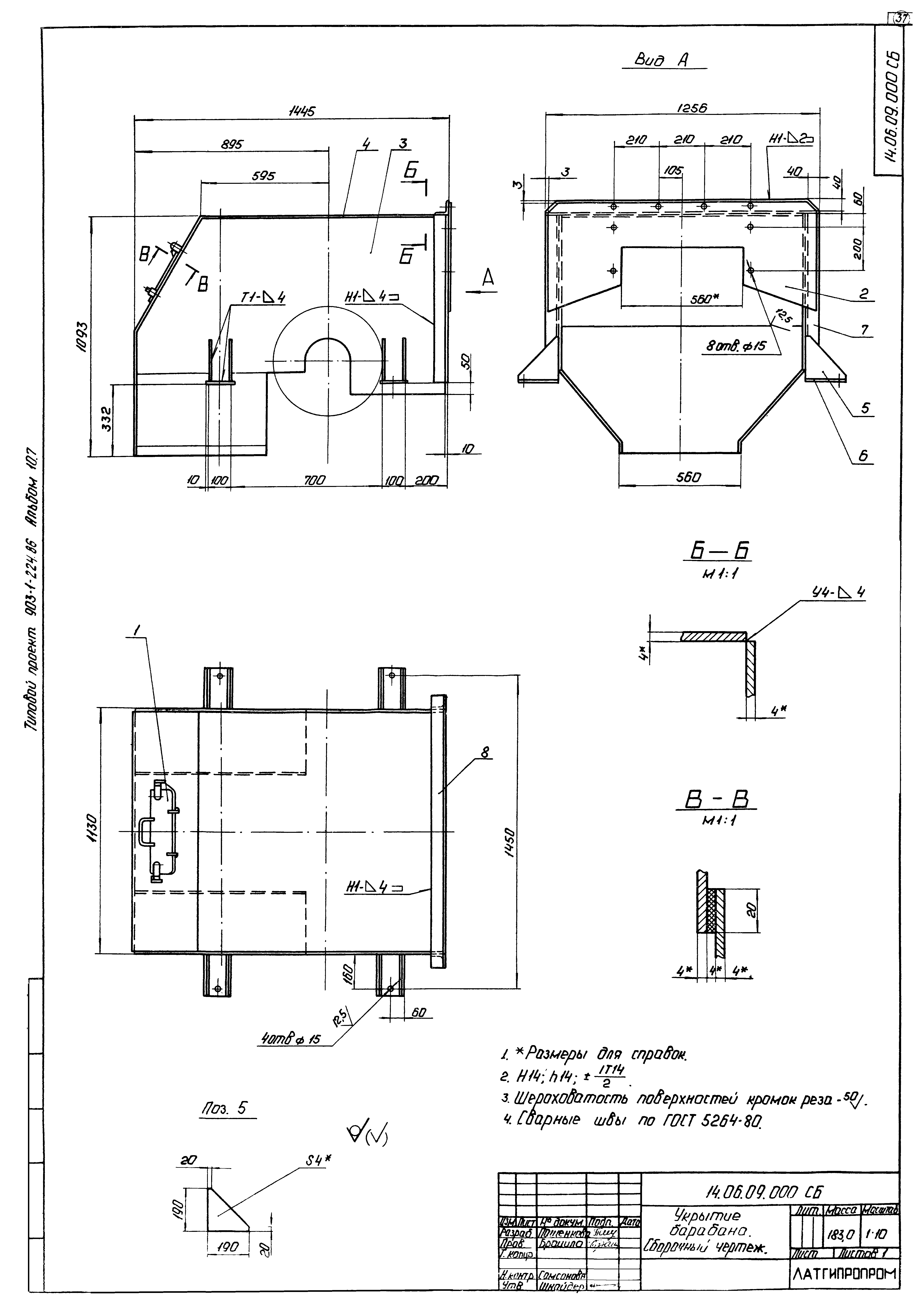
| Оглавление: | ТП 903-1-224.86 Содержание альбома ТП 903-1-224.86 14.06.00.000 Конвейер ленточный желобчатый реверсивный 8050-80;№6;L=6000 ТП 903-1-224.86 14.06.00.001 Опора ТП 903-1-224.86 14.06.00.000 СБ Конвейер ленточный желобчатый реверсивный 8050-80;№6;L=6000. Сборочный чертеж ТП 903-1-224.86 14.06.01.000 Кронштейн ТП 903-1-224.86 14.06.01.001 Стойка ТП 903-1-224.86 14.06.01.000 СБ Кронштейн. Сборочный чертеж ТП 903-1-224.86 14.06.02.000 Ограждение муфты ТП 903-1-224.86 14.06.02.001 Обечайка ТП 903-1-224.86 14.06.02.000 СБ Ограждение муфты. Сборочный чертеж ТП 903-1-224.86 14.06.03.000 Ограждение муфты ТП 903-1-224.86 14.06.03.001 Обечайка ТП 903-1-224.86 14.06.03.000 СБ Ограждение муфты. Сборочный чертеж ТП 903-1-224.86 14.06.04.000 Рама приводного барабана ТП 903-1-224.86 14.06.06.000 Рама натяжки ТП 903-1-224.86 14.06.04.000 СБ Рама приводного барабана. Сборочный чертеж ТП 903-1-224.86 14.06.04.001 Косынка ТП 903-1-224.86 14.06.04.002 Кронштейн ТП 903-1-224.86 14.06.04.003 Кронштейн ТП 903-1-224.86 14.06.04.004 Кронштейн ТП 903-1-224.86 14.06.05.000 Рама концевого барабана ТП 903-1-224.86 14.06.02.005 Косынка ТП 903-1-224.86 14.06.05.000 СБ Рама концевого барабана. Сборочный чертеж ТП 903-1-224.86 14.06.05.001 Косынка ТП 903-1-224.86 14.06.05.002 Кронштейн ТП 903-1-224.86 14.06.05.003 Косынка ТП 903-1-224.86 14.06.05.004 Кронштейн ТП 903-1-224.86 14.06.06.000 СБ Рама натяжки. Сборочный чертеж ТП 903-1-224.86 14.06.07.000 Секция загрузочная L=4890 ТП 903-1-224.86 14.06.08.000 Устройство загрузочное ТП 903-1-224.86 14.06.07.000 СБ Секция загрузочная L=4890. Сборочный чертеж ТП 903-1-224.86 14.06.08.000 СБ Устройство загрузочное. Сборочный чертеж ТП 903-1-224.86 14.06.08.100 Лоток направляющий загрузочный ТП 903-1-224.86 14.06.08.101 Резина боковая ТП 903-1-224.86 14.06.08.112 Накладка ТП 903-1-224.86 14.06.08.113 Резина ТП 903-1-224.86 14.06.08.100 СБ Лоток направляющий загрузочный. Сборочный чертеж ТП 903-1-224.86 14.06.08.110 Завеса боковая ТП 903-1-224.86 14.06.08.111 Завеса ТП 903-1-224.86 14.06.08.110 СБ Завеса боковая. Сборочный чертеж ТП 903-1-224.86 14.06.08.120 Корпус ТП 903-1-224.86 14.06.08.122 Крышка ТП 903-1-224.86 14.06.08.121 Боковина ТП 903-1-224.86 14.06.08.120 СБ Корпус. Сборочный чертеж ТП 903-1-224.86 14.06.08.130 Прижим боковой ТП 903-1-224.86 14.06.08.131 Лист ТП 903-1-224.86 14.06.08.130 СБ Прижим боковой. Сборочный чертеж ТП 903-1-224.86 14.06.09.140 Стойка левая ТП 903-1-224.86 14.06.08.140 СБ Стойка левая. Сборочный чертеж ТП 903-1-224.86 14.06.08.150 СБ Стойка правая. Сборочный чертеж ТП 903-1-224.86 14.06.08.150 Стойка правая ТП 903-1-224.86 14.06.08.200 Лоток направляющий промежуточный ТП 903-1-224.86 14.06.08.201 Резина боковая ТП 903-1-224.86 14.06.08.211 Боковина ТП 903-1-224.86 14.06.08.212 Диафрагма ТП 903-1-224.86 14.06.08.200 СБ Лоток направляющий промежуточный. Сборочный чертеж ТП 903-1-224.86 14.06.08.210 Корпус ТП 903-1-224.86 14.06.08.210 СБ Корпус. Сборочный чертеж ТП 903-1-224.86 14.06.08.220 Прижим боковой ТП 903-1-224.86 14.06.08.221 Лист ТП 903-1-224.86 14.06.08.220 СБ Прижим боковой. Сборочный чертеж ТП 903-1-224.86 14.06.09.000 Укрытие барабана ТП 903-1-224.86 14.06.09.001 Стенка задняя ТП 903-1-224.86 14.06.09.002 Стенка боковая ТП 903-1-224.86 14.06.09.003 Стенка верхняя ТП 903-1-224.86 14.06.09.000 СБ Укрытие барабана. Сборочный чертеж |
| Разработан: | Латгипропром |
| Утверждён: | 20.05.1986 Госстрой СССР (Государственный комитет Совета Министров СССР по делам строительства) (USSR Gosstroy А4-29) |
| Заменяет собой: |
|






































