Скачать Типовой проект 903-1-224.86 Альбом 10.8. Металлоконструкции вспомогательного оборудования и устройствДата актуализации: 01.01.2021
|
| Обозначение: | Типовой проект 903-1-224.86 |
| Обозначение англ: | 903-1-224.86 |
| Статус: | действует |
| Название рус.: | Альбом 10.8. Металлоконструкции вспомогательного оборудования и устройств |
| Дата добавления в базу: | 01.09.2013 |
| Дата актуализации: | 01.01.2021 |
| Дата введения: | 20.05.1986 |
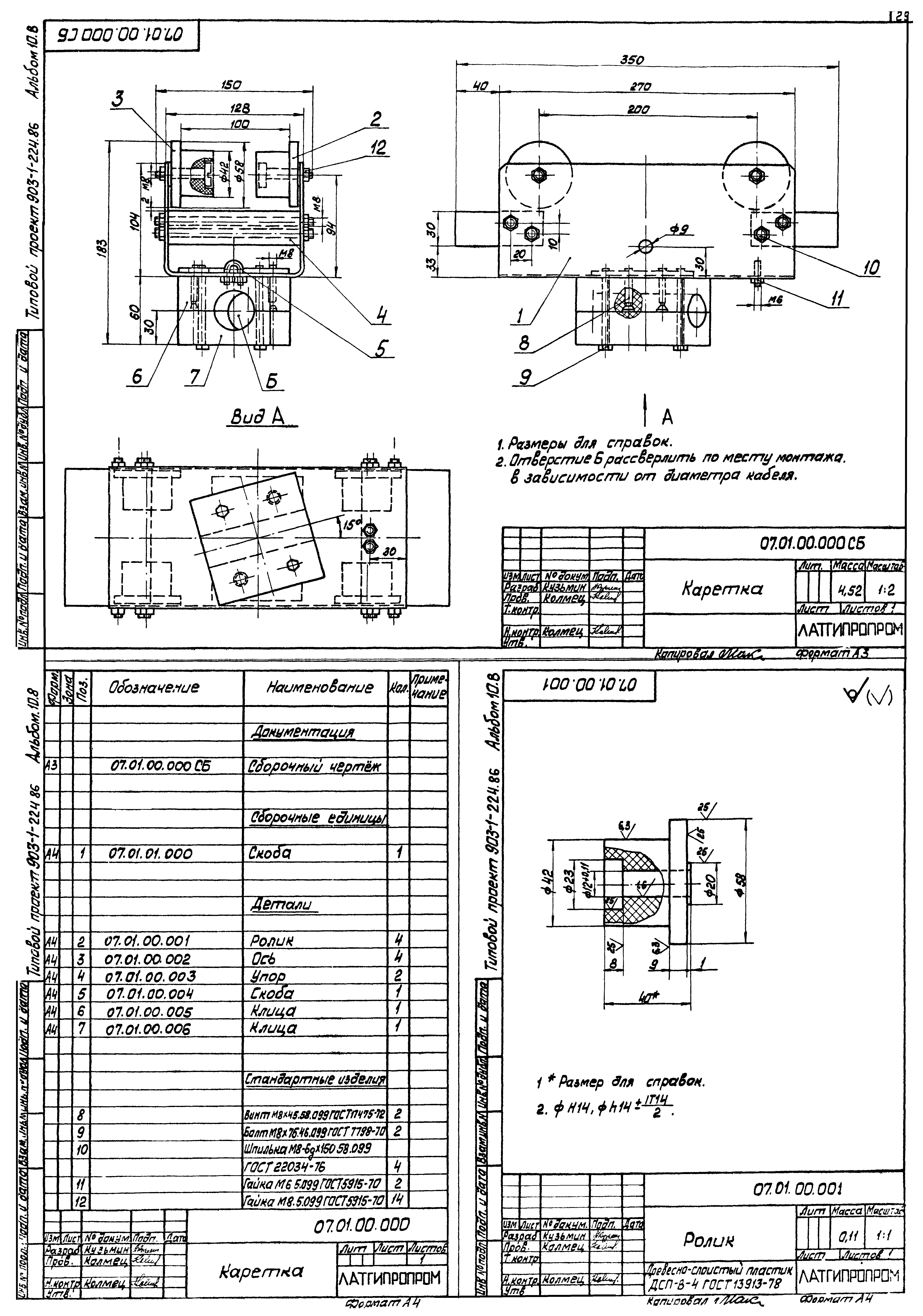
| Оглавление: | ТП 903-1-224.86 Золоудаление ТП 903-1-224.86 12.02.13.000 Короб ТП 903-1-224.86 12.02.13.000 СБ Короб. Сборочный чертеж ТП 903-1-224.86 12.02.13.100 Фланец ТП 903-1-224.86 12.02.13.100 СБ Фланец. Сборочный чертеж ТП 903-1-224.86 12.02.07.300 Задвижка ТП 903-1-224.86 12.02.14.000 Задвижка ТП 903-1-224.86 12.02.14.000 СБ Задвижка. Сборочный чертеж ТП 903-1-224.86 12.02.07.100 СБ Короб. Сборочный чертеж ТП 903-1-224.86 12.02.07.300 СБ Задвижка. Сборочный чертеж ТП 903-1-224.86 12.02.07.100 Короб ТП 903-1-224.86 12.02.07.101 Стенка ТП 903-1-224.86 12.02.15.000 Переход ТП 903-1-224.86 12.02.15.000 СБ Переход. Сборочный чертеж ТП 903-1-224.86 12.02.15.001 Переход ТП 903-1-224.86 12.02.16.000 СБ Опора. Сборочный чертеж ТП 903-1-224.86 12.02.16.000 Опора ТП 903-1-224.86 12.02.17.000 Короб ТП 903-1-224.86 12.02.17.000 СБ Короб. Сборочный чертеж ТП 903-1-224.86 Лаз борова ТП 903-1-224.86 58.01.00.000 СБ Лаз борова. Сборочный чертеж ТП 903-1-224.86 58.01.00.000 Лаз борова ТП 903-1-224.86 58.01.80.003 Ось ТП 903-1-224.86 58.01.00.002 Дверка ТП 903-1-224.86 58.01.00.001 Корпус ТП 903-1-224.86 Предохранительный резервуар ТП 903-1-224.86 21.01.00.000 СБ Предохранительный резервуар. Сборочный чертеж ТП 903-1-224.86 21.01.00.000 Предохранительный резервуар ТП 903-1-224.86 21.01.01.000 Воронка ТП 903-1-224.86 21.01.01.000 СБ Воронка. Сборочный чертеж ТП 903-1-224.86 21.01.01.001 Патрубок ТП 903-1-224.86 21.01.01.002 Решетка ТП 903-1-224.86 21.01.01.003 Воронка ТП 903-1-224.86 21.01.02.000 Резервуар ТП 903-1-224.86 21.01.02.000 СБ Резервуар. Сборочный чертеж ТП 903-1-224.86 21.01.02.100 Опора ТП 903-1-224.86 21.01.02.100 СБ Опора. Сборочный чертеж ТП 903-1-224.86 21.01.02.001 Корпус ТП 903-1-224.86 21.01.02.002 Труба ТП 903-1-224.86 21.01.02.003 Воронка ТП 903-1-224.86 21.01.02.004 Патрубок ТП 903-1-224.86 21.01.02.005 Патрубок ТП 903-1-224.86 21.01.02.006 Патрубок ТП 903-1-224.86 Бак-мерник V=1м³ ТП 903-1-224.86 24.01.00.000 Бак-мерник V=1м³ ТП 903-1-224.86 24.21.02.002 Ручка ТП 903-1-224.86 24.21.00.001 Рейка ТП 903-1-224.86 24.21.01.002 Днище ТП 903-1-224.86 24.21.00.000 СБ Бак-мерник V=1м³. Сборочный чертеж ТП 903-1-224.86 24.21.01.000 Бак ТП 903-1-224.86 24.21.01.001 Корпус ТП 903-1-224.86 24.21.01.000 СБ Бак. Сборочный чертеж ТП 903-1-224.86 24.21.01.003 Крышка ТП 903-1-224.86 24.21.01.004 Сектор ТП 903-1-224.86 24.21.01.005 Сегмент ТП 903-1-224.86 24.21.01.006 Кольцо ТП 903-1-224.86 24.21.01.007 Кронштейн ТП 903-1-224.86 24.21.01.008 Бобышка ТП 903-1-224.86 24.21.02.000 Полукрышка ТП 903-1-224.86 24.21.02.000 СБ Полукрышка. Сборочный чертеж ТП 903-1-224.86 Шкаф аккумуляторный ТП 903-1-224.86 83.02.00.006 Стойка ТП 903-1-224.86 83.02.00.000 Шкаф аккумуляторный ТП 903-1-224.86 83.02.00.001 Обечайка ТП 903-1-224.86 83.02.00.000 СБ Шкаф аккумуляторный. Сборочный чертеж ТП 903-1-224.86 83.02.00.002 Крышка ТП 903-1-224.86 83.02.00.003 Фланец ТП 903-1-224.86 83.02.00.004 Подкладка ТП 903-1-224.86 83.02.00.005 Стойка ТП 903-1-224.86 07.01.00.000 СБ Каретка. Сборочный чертеж ТП 903-1-224.86 07.01.00.000 Каретка ТП 903-1-224.86 07.01.01.000 Скоба ТП 903-1-224.86 07.01.01.000 СБ Скоба. Сборочный чертеж ТП 903-1-224.86 07.02.00.000 СБ Каретка. Сборочный чертеж ТП 903-1-224.86 07.02.00.000 Каретка ТП 903-1-224.86 07.02.01.000 Скоба ТП 903-1-224.86 07.02.01.000 СБ Скоба. Сборочный чертеж ТП 903-1-224.64.113.01.000 СБ Переход. Сборочный чертеж ТП 903-1-224.64.113.02.000 СБ Лючок. Сборочный чертеж |
| Разработан: | Латгипропром |
| Утверждён: | 20.05.1986 Госстрой СССР (Государственный комитет Совета Министров СССР по делам строительства) (USSR Gosstroy А4-29) |
| Заменяет собой: |
|






































